掲載物件一覧
26330件
有玉台のアメリカンレトロな庭付き一軒家
静岡県浜松市中央区有玉台4-26-14
/134.14m²
2LDK の一軒家になります。
2LDK の一軒家と聞くと少し手狭にかんじるかと思いますがとんでもないです!
一階のLDKはなんと28帖と広々で開放感溢れる内観になっています♪
二階も18帖と16帖の吹き抜けが2部屋なので間取りは2LDKになっていますが
高級感溢れる内装はどんなインテリアにもなじみます。
ホテルの様な洗面所はラグジュアリーな内装になっていて毎日の身だしなみが
楽しくなっちゃいます!
階段上には天窓もあり美しく日の当たるお家での暮らしは
日々の喧騒を忘れさせてくれます。
道路に面した大きなお庭はリビングからも出られるので
ペットと一緒のあなたにもわんちゃんにも嬉しいポイントです♪
土場もあるのでガーデニングなんかも楽しめます。
続きを読む
見学したい(無料)楽しいカラーリングの大きなお部屋
静岡県浜松市中央区鴨江2-50
/49.80m²
鉄筋コンクリートのお洒落な内装が自慢のお部屋です!
大きく存在感のあるロフトに木目フローリングが目を引く吹き抜け17帖の広々リビング!
楽しいカラーリングのお洒落なカウンターキッチンはリビングが見渡せるのもgood
広々リビングには大きな窓があり日当たりもバッチリです。
東西の壁には赤と青のカラーが一面ずつ施してあり他のお部屋とは一味違ったレイアウトが楽しめます。
ロフトは存在感がありますがオシャレな木目と大きな階段がとってもお部屋に馴染んでいます。
リビングの照明は高めの天井に長~いライティングレールが付いているのでお部屋のレイアウトも自由自在です!
共用部やエレベータ―は少しレトロな雰囲気がありますがとっても広々としていて
管理人さんも常駐してくれています。
根上り松バス停より徒歩1分の好立地 浜松駅までのバスでのアクセス良好!
セブンイレブンや遠鉄ストアが徒歩圏にありとっても便利!
浜松市街にお勤めの方や一風変わった暮らしがしたいカップル等におススメです!
続きを読む
見学したい(無料)劇的ビフォーアフター!?ドッグもランできる仕様。
静岡県浜松市中央区大人見町 12-324
/69.24m²
なんと新聞屋さんの2階にある隠れ家の様な物件。
劇的ビフォーアフターに出てきそうな物件のですが、
残念ながらビフォーがないんですよ。
ただ全然想像がつかない間取りなのは何となく察して頂けるのでないでしょうか?
白を基調としたモダンなデザインの2LDK。
収納も多く各部屋も8帖と広め。
建物の入り口は分かりづらいですが、建物左手の階段を昇ると柵の扉があり
そこから長めのL字の廊下。
番犬を放っておくには絶好な造りです。
余談ですが近くに浜名湖があり、ここら辺は近年オシャレなスポットが出来ていて注目の場所。
ご興味のある方は内見の方如何でしょう?
続きを読む
見学したい(無料)駅近シンプルライフ
静岡県浜松市中央区上浅田1-10-11
/33.05m²
メインルームは9.6帖で、十分な広さ。
縦長なので、どの辺にテレビ、ソファを置くかなんとなく決めやすく、
家具の配置を迷わなくて済みそうです。
クリームイエローなキッチンは、やさしい味のご飯が作れそう?
寝室は3帖です。ごちゃごちゃ物を置かずにキレイに使いたいですね。
クローゼットもここにあります。
ドアがすりガラスなので閉塞感は感じにくいですよ。
水回りもちょうどよい感じです。
さらに駅が近くて家賃が55000円。
おっ。
シンプルなお部屋で便利な生活、どうでしょう?
続きを読む
見学したい(無料)白×青×赤ハウス
静岡県浜松市中央区高丘北4-6-11
/35.00m²
高丘北の物件のご紹介です
白×青×赤のおしゃれな外観
赤の塗装の階段を昇って
3階の最上階
玄関廊下スペースからは高速道路が眺めますが
騒音はほどんどなく
快適に生活できそうです
北側も南側も視界は広く、青い空が綺麗でした
南側バルコニー側からの日差しはポカポカ
バルコニーは長いく、屋根があるので
多少の雨でも心配なさそうです!
内装をリフォーム
洋室5.5帖のブルーグレーのアクセントクロスはオシャレ
とても落ち着く空間になっています
洗面台を新しく、キッチンには置き型の2口ガスコンロが設置してありました
学校やスーパーなどすべて徒歩圏内
生活しやすい環境です
続きを読む
見学したい(無料)ワンちゃんも一緒
静岡県浜松市中央区葵東2-24-45
/46.80m²
姫街道沿いにございました
1階が駐車場、2階3階が居室になってます
玄関はアンロックなのも嬉しい
DK、洋室とすべて6帖の広さ
東側の洋室6帖は角部屋。出窓があって明るいです
しかし幹線道路側なので、やはり窓を開けると自動車や飛行機の音が少し聞こえてきました
西側洋室6帖の収納はとても大きいです
ただ、押し入れタイプなので、お洋服を掛けるポールがありません
ホームセンターなどであれやこれと買って収納美人になりましょう
1階は整体さんなのも嬉しいです
ちょっと肩が痛いな。と思ったらすぐに通えますね
続きを読む
見学したい(無料)私ならワンルームに!
静岡県浜松市中央区有玉南町1447-4
2DK /35.51m² /1986年1月
と思い撮影してきました^^
間取りは2DKですが、襖で仕切られているのでちゃちゃっと外すと、なんと広々19.5帖のワンルームに早変わりです!!
取り外した襖はベッドの下に隠しちゃうと邪魔にならないですね。
リノベーションしたこのお部屋は、フローリングに代わり、さらに水回りも一新しています。
お風呂が綺麗なことが必須の方にもご納得いただけちゃうかと!
このお部屋でなら、インスタグラムで見るようなおしゃれなお部屋にも挑戦できそうな予感です!
なんてったって、このお家賃。お部屋にかからない分、インテリアを楽しめちゃいます♪
最近は安くてかわいい雑貨とか、食器とか、たくさんありますよね~(*'ω'*)
なんだか妄想が膨らんじゃいます!
しかも駅チカ!自動車学校前駅まで徒歩10分です。
スーパーまでもすいすいっと自転車で行けますね~
初めてのひとり暮らし、お得にスタートしてみませんか??
続きを読む
見学したい(無料)おひとりさまホームシアター
静岡県浜松市中央区三方原町190
1K /32.30m² /1989年6月
ワンランクアップする最強の機械こそプロジェクターだと思うんです。
だって、120インチ相当の大スクリーンですよ、横幅270㎝もあります。
今まで、小さなスマホで見ていたYoutubeも
サブスクで見放題になった名作映画たちも
そして、よりリアルさが増しているゲームも
全て大迫力の大スクリーンで楽しむことができます!
ベッドをいい感じに配置すれば、寝っ転がりながらの映画鑑賞も可能!
これって生活の革命ではありませんか?
部屋の雰囲気も、ライブシアターのような無機質さがオシャレです。
キッチンも3帖あり、広々と使えそう。
冷蔵庫を置くスペースがなく、洋室に置かなくてはかもしれないところが玉に瑕ですが…。
1Kだと侮るなかれ。最高に贅沢な映像体験の日々が待っています。
続きを読む
見学したい(無料)【家電付き】九つの星
静岡県浜松市中央区三方原町190
/32.30m²
付いている家電は冷蔵庫、電子レンジ、洗濯機。うん、これだけあれば、何も用意せずとも生活をしていけそう。
メインの洋室は、10帖。
天井には9つのダウンライトがきらめいています。
特徴的なのは、黒いラック。全部で9つの棚が用意されています。
見せるタイプの収納なので少しセンスは問われますが、
こだわりの服を並べていったらまるでショップのようなオシャレ空間を演出できるかも…?
大きめのテレビを置けるテレビラックとしても機能しそうです。
続きを読む
見学したい(無料)浜松駅チカ!一人暮らしのこだわりたいリノベルーム
静岡県浜松市中央区寺島町17
/20.16m²
リノベワンルームマンションのご紹介!
キレイにリノベーションされたお部屋
スタイリッシュなシャワールーム。
ユニットバスではなくシャワールームてとこが、良いです。
新設されたトイレは淡い水色のクロス張りでとっても清潔感満載♪
キッチンスペースは広くないですが、冷蔵庫置場、洗濯機置場もちゃんとあって
一人暮らしで十分やっていけるだけの広さでは。
浜松駅まで徒歩11分。
スーパーやコンビニなどもほぼ徒歩圏内。
そして1階にはコインランドリーがあり。
続きを読む
見学したい(無料)リノベっていいね
静岡県浜松市中央区高丘東5-21-28
/30.06m²
ベージュ系のクロスに濃紺のドア
とってもお上品で落ち着いた雰囲気のお部屋に仕上がってます
リノベ出来立て物件のご紹介です
玄関入った瞬間からオシャレな空間が広がります。
一人暮らしにはそこそこちょうど良いスペースのダイニングキッチン。
ダウンライト、キッチンにもオシャレな照明が。
一人でも毎日のお料理時間を楽しめそう。
洋室10帖は広々。
オープンクローゼットとドアの色を濃紺色に揃え、とても落ち着いた雰囲気。
インターネット無料です。
(浜松ケーブルテレビウィンディ(事前申込みが必要です)
4階なのですが、バルコニーからの眺めが最高ですし、体力も付いちゃいます!
続きを読む
見学したい(無料)シンプルな一人暮らし。
静岡県浜松市中央区高丘東5-21-28
/30.06m²
10帖の洋室に収納がドーンと1つ置いてあるとてもシンプルなつくり。
まさに余計なものはなにもないって感じです。
広々としているので自分の好きなようにレイアウトできますよ。
DKは5帖あるのでお料理もしやすそう。
広いスペースを一人で好きなように使えるお部屋となっています。
周辺にはスーパーやコンビニも多くあるので買い物は便利。
シンプルな一人暮らしはまずこちらのお部屋からはじめてみては?
続きを読む
見学したい(無料)赤いキッチンのリノベルーム
静岡県浜松市中央区高丘東4-5-3
賃料32,000円
共益費/管理費3,000円
1DK /24.78m² /1993年3月
1993年築と古めの建物ですが、リノベーション済みですよ。
洋室は6帖のシンプル設計、DKもしっかり6帖あるので、広々と料理が出来そうです。
バストイレはユニットバスなので、ここは好みが分かれそう。
水回りに特にこだわりがなければ、コンパクトにまとめて他の部屋のスペースをしっかり確保しているのは評価ポイントですね。
周辺には、多くのコンビニ、スーパー、飲食店があり、生活にはとても便利な立地です。
また、航空自衛隊の基地に近いのも特徴の一つです。
続きを読む
見学したい(無料)最強の一人暮らしを
静岡県浜松市中央区高丘東4-5-3
1DK /24.78m² /1993年3月
家賃がなんと毎月35,000円です。管理費等、敷金、礼金が不要ですのでとてもリーズナブルです♪
間取りは一人暮らしには十分な広さの1DKです。
洋室は6帖の広さで、ベッドやTVを置くことが可能です。収納スペースも付いているので洋服などを収納することができます。
お部屋への日当たりが良く、昼間は電気をOFFにして過ごすことができそうです。お財布にも優しいですね!
DKも6帖の広さで、キッチンに窓が付いているので換気をすることができます。
コンロは付いていないので、自分のお好きなサイズのコンロを設置することができます。
ダイニングテーブルを置くスペースもあるので、寝室の方で食事をしたくない方にはおススメです。
トイレと浴室が一緒になっているユニットバスでも大丈夫な方は、ぜひご検討してみてください。
周辺には買い物施設が豊富で、車をお持ちでない方でも安心してお買い物をすることができます。
続きを読む
見学したい(無料)カウンターテーブルをどう使う?
静岡県浜松市中央区高丘西3-44-6
/57.00m²
立地する場所がよく、暮らすのにはとても便利な場所です。
周辺には、日用品を買うのに便利なスーパーやコンビニがあります。
その他にも、銀行や100円ショップ、小学校や中学校も徒歩圏内にあります。
こちらの物件は、リノベーションされているため内装がとてもきれいです。
間取りは2LDKですが、リビングダイニングルームがとても広く16帖あります。
また、リビングルームの壁紙がとてもおしゃれで、お部屋を華やかにしてくれます。
キッチンは壁向きですが、カウンターテーブルがり、食器類を収納することも可能です。
お部屋は二部屋あり、6帖の和室と5帖の洋室です。
和室は日当たりがとてもよく、冬でもポカポカしています。押し入れも付いていますので、収納が便利です。
洋室には簡易なクローゼットが付いています。こちらのお部屋には、バルコニーが付いています。
クローゼットはリビングにもありますので、整理整頓がばっちりできます!!
続きを読む
見学したい(無料)オシャレな収納がここにあります。
静岡県浜松市中央区高丘西3-44-6
/57.00m²
リビングは淡いブルーとくすみグリーン、そしてホワイトレンガで彩られ、
まるでナチュラルテイストのカフェのような雰囲気。
リビングは14帖と広々としていて南向きなので日当たりもバッチリ。
部屋全体が明るく開放感があります。
そしてこちらのお部屋、なんといっても収納スペースがすべてオシャレ。
洋室にはダウンライト付きの棚スペースがあるので、
コレクションやちょっとしたインテリアを置いたらとっても映えそう。
洋室にはグレーのレンガの壁の奥に広々ウォークインクローゼット!
収納力もあってこんなにオシャレなんて、素敵すぎます。
バルコニーも南面に広々としたバルコニーが1つ、反対側の面にも1つあります。
洗濯物を干すのにも困りませんし、スペースがあるので植物を育てたりもできそうです♪
オシャレさん必見のこちらのお部屋、いかがでしょうか?
続きを読む
見学したい(無料)リビング広っ!角部屋マンション。
静岡県浜松市中央区高丘西3-44-6
1LDK /57.00m² /1987年7月
LDKはなんと18帖!
広々リビングなので、家族みんなが集まれる憩いの場となりそうです。
大きな窓際で、のんびりひなたぼっこもできます。
設備の特徴は、収納や備え付けの棚が多めなこと。
ただ、扉があるのはLDKにある大き目の収納のみ、他は扉無しのオープン収納となります。
だからこそ、よく使うものや好きなものを綺麗に納めて、見せる収納を楽しんでお気に入りのスポットにしちゃいましょう。
日当たり良好の角部屋マンションで、ふたりでのんびり過ごしてみませんか?
続きを読む
見学したい(無料)カフェ風!?高丘ヴィンテージスタイルマンション
静岡県浜松市中央区高丘西3-44-6
2LDK /57.00m² /1987年7月
内装がリノベーションがされていて、丁度良い感じにマッチしています。
2LDKの間取りで11.8帖のLDK、5.3帖と7.5帖の洋室。
そのすべてにバルコニーが付いています。
なので全ての部屋にエアコンをつけることも可能ですし、植物を育ててみたりするのも良いですね。
こちらのお部屋、収納がアクセントとなっていてオシャレな造りとなっています。
収納がおしゃれってどういうこと?と思ったあなた。
とりあえず写真を見て頂ければ言いたいことが分かると思います。
浜松西インターからほど近い高丘エリアのヴィンテージマンション。
VRも是非見てみてください。
続きを読む
見学したい(無料)リノベ!白×ブルーでスッキリ暮らそう
静岡県浜松市中央区葵東2-3-16
/66.56m²
白いお部屋に遊び心にブルーでアクセント
スッキリした気分で、清々しく暮らそう!
分譲マンションのリノベーションルーム
LDK25.4帖の広さには圧倒です。
浴槽、洗面化粧台、温水洗浄便座が全て新品!気持ち良い!
さらに新品エアコンが全室に、照明器具も完備です。
北側と南側には2面バルコニーがあり風通しが良く、陽当たり抜群!
お洗濯物やお布団など沢山干せそうです。
ベランダ門扉から専用のお庭に出られます。
お子様の遊具や夏場にはプール等、を置いて、遊ばせられますね。
ベンチやテーブルなどを置いて、お外ご飯などをしても楽しめそうです!
また、ガーデニングなど季節の花々を育てても良いです!
総戸数39戸の分譲マンション。
築32年とそこそこ築年数がありますが。
綺麗にリノベーション。
共有部分がとっても綺麗にお掃除&整備
木々の緑も綺麗に整えられています。
広々リビングに1階庭付き物件!
小さなお子様が走りまわっても足音気にならないです。
続きを読む
見学したい(無料)にわとりの鳴き声で目覚めて
静岡県浜松市中央区神田町721-2
2LDK /62.05m² /2006.08
撮影しているときに鳴き声が聞こえてきました。
ご近所さんでにわとりを飼っているお家があるのでしょうか。
周辺は田んぼもあるので、どこかの家がにわとりを飼っていてもおかしくない雰囲気があります。
建物は鉄筋コンクリートの3階建て。しっかりとした造りです。
お部屋の玄関にはペットが逃げ出さないように開閉可能な柵の扉が設置されていたり、
リードを掛けるフックがあります。
ペットと一緒に、朝の散歩から一日をスタートしましょう!
続きを読む
見学したい(無料)どこでもペットドア~[ペット可]
静岡県浜松市中央区神田町721-3
1LDK /42.38m² /2005年9月
このお部屋の特徴は、廊下に出ると一番わかります。そう、ペットドア!一部屋にペットドアがついているお部屋はあれど、2部屋お向かいについているのは珍しいのではないでしょうか。ましてやそのうち一部屋は洗面所ですからね…!一人でシャワーを浴びられるペットにはこれほどいいお部屋ないでしょう。どこでもペットと一緒の時間を過ごせますね。逆に6帖の洋室の入り口にはペットドアはないです。ペットの手に届かないようにしたいものは積極的にこのお部屋に置きましょう。
まわりはにわとりが鳴き、田んぼがあるようなゆったりした場所。のどかな生活が送れそうです。
続きを読む
見学したい(無料)FREE STYLE
静岡県浜松市中央区渡瀬町320
2LDK /82.81m² /2019年
木造造りで、自然の香りがします!
全体的に陽当たりがとても良く、また風通しも良好です。
自然光と風通しはお部屋を決めるにあたって重要になってきますが、この物件なら心配ありません!!
どっちもそろってます♪
14帖もあるリビングは夕方でも、陽が当たるので明るいです。
キッチンはシステムキッチンになっており、3口コンロとグリルも付いています。
お料理好きな方にはたまりません!
洗面脱衣所も広々としています。洗面台の鏡はシンプルだがオシャレで鏡の中に収納することが可能です。
浴室も浴槽もゆったりとしており、リラックスでできること間違いなしです。
2階は6帖の洋室が二部屋と、フリースペースのお部屋があります。
どちらの洋室にも大きなクローゼットが完備されており、洋服を簡単に収納することが出来ます。
フリースペースは名前の通り「自由自在」に使うことができます。
お子様の勉強部屋にしたり、書斎にしたり、プレイルームにしたりすることができます。
使い方はあなたの考えた次第!
周辺施設も充実しており、スーパーやコンビニが徒歩圏内にあります。
その他に、小中学校も近くにあるので、お子様にも便利です♪
続きを読む
見学したい(無料)3色フローリングの明るいおうち
静岡県浜松市中央区葵西2-3-50
/59.50m²
LDKも、玄関も、洋室も、そしてクローゼットの中までこのフローリングで統一!どの部屋にいても、明るいフローリングで気分が上がりそうですね!
外観の古さからは想像できない素敵なお部屋ですよ。
続きを読む
見学したい(無料)葵西の明るいお部屋
静岡県浜松市中央区葵西2-3-50
/59.50m²
築39年!
ねんきのいった建物ですが、内装を綺麗にリノベーション!
このお部屋の一番の特徴は3色フローリング!
ブラウン、ミディアム、ホワイトと木の中でも明るめの色を使っているので、非常に朗らかな印象を受けます。
LDKも、玄関も、洋室も、そしてクローゼットの中までこのフローリングで統一!どの部屋にいても、明るいフローリングで気分が上がりそうですね!
南側ベランダで陽当たりポカポカです
外観の古さからは想像できない素敵なお部屋ですよ。
続きを読む
見学したい(無料)上へ上へと広がる住空間
静岡県浜松市中央区東若林町1151-1
2LDK /65.00m² /2014/02
そう、2階の洋室のうちの1部屋には謎の梯子が付いているんです。
梯子を上ると、高さ120㎝くらいのロフトスペースが…!上に上にと沢山の部屋が設計されているので、建物の幅以上に広いお部屋です。
もう一つ、特徴的なのがお風呂!浴槽が広いだけでなく、座りやすい段差付きのものです。快適さにお風呂の時間が長くなりそう。
大きな通りに面した便利な立地のお部屋です。
続きを読む
見学したい(無料)嬉しい特典とは...?!
静岡県浜松市中央区高丘西3-49-4
/25.92m²
ついているのは冷蔵庫・電子レンジ・洗濯機の3点。
初めての一人暮らしで大変なのって、家具も家電もそろえなきゃいけないってこと。
家具は実家から持って行ってもいいんだけど、家電はどうしても、、、
でも初期費用もかかるから大変だよな、、、、、、
っていう理由で一人暮らしに踏み切れない方いませんか?!
このお部屋ならその大部分をカバーできます!
初期費用も比較的お手頃で、家電でお値段がかかる冷蔵庫・洗濯機がもうあるので、
お部屋のインテリアに予算をまわせちゃいますよーーーー(^v^)
続きを読む
見学したい(無料)かわいいをあなたに
静岡県浜松市中央区高丘東3-52-28
1R /31.97m² /1991年10月
写真を撮っているだけでなんだかワクワクが止まりませんでした。
お洒落な扉を開けた向こうには赤い壁紙が目を引くかわいいお部屋が広がっていました。
レトロなタイルがキュートなキッチンはシステムキッチンになっていて、お料理が好きな人にピッタリです。
カウンターがついているので、友人を呼んで一緒に作りながら食べるのも楽しそうです。
お部屋にはロフトがついています。
ロフト付きってなんだか憧れを感じませんか?
あなたの憧れを叶えてくれるお部屋です。
あれ、収納は?って思ったあなた!実はロフト下にハンガーパイプがついていてオープンクローゼットになっているんです!
小技が効いてますねっ
お洒落な一人暮らしを始めたい!そんな方にピッタリな物件です。
ぜひご一緒にお家を見に行きましょう!
続きを読む
見学したい(無料)かわいい扉を開けたら~?
静岡県浜松市中央区高丘東52-28
1R /31.97m² /1991年10月
かわいいドア、かわいい空間、もうトキメキポイント満載でした...!
扉を開けた向こうにはカフェのような素敵なリノベーションが施されたワンルームがありました。
場所は高丘東。一人で住み始めたいけど実家から遠くなっちゃうのは不安だな...なんて人に良いと思います!
*アーチのドア
*タイルのキッチン
*出窓
*はしご
どこを切り取ってもステキなネイビーブルーでかわいくてるんるんしちゃいました!
ぜひご一緒にお家を見に行きましょう!
続きを読む
見学したい(無料)【家電3点付】LOFTがあるのとないのとでは大違い。
静岡県浜松市中央区鴨江町91-15
1R /21.87m² /1993年03月
第一、ロフトがあるだけでドキドキしませんか?
寝室兼リビングは11帖あり、一人で暮らすのに十分なスペースを確保できます。
ロフトも付いているので、物置にしたり、勉強のスペースにしたり、自分だけの趣味のスペースにしてみてはいかがですか?
ロフトの利用の仕方は人それぞれです。
もう一つのポイントは、家電が付いてくるということ。
電子レンジ・冷蔵庫・洗濯機が付いてくるので、ベッドだけ用意をすれば住めちゃいます!
マイナスポイントを一つ挙げるならば、坂の上にこの物件があるということです。
自転車で登るのは、至難の業かと思います。でも、手で押しちゃえばノープロブレム!!
続きを読む
見学したい(無料)床壁おしゃれなメルヘンハウス
静岡県浜松市中央区高丘東4-5-4
/40.08m²
カラーや模様で差が出るキュートな物件です!
まずメインのLDKの扉がもうメルヘン
ファーストメルヘンです
壁はライトブルーとブルーでさわやか
セカンドメルヘンは洋室
壁がレモンイエロー!
もう一方はレンガ風のデザイン!
収納もバチボコに大きいです
トイレや洗面所の床もメルヘン
ヘリンボーンと言って女性に人気です (今知った)
他にもエントランスやお部屋の玄関も
少し変わっていておキャワです
いらっしゃいメルヘンですね。
いろんなメルヘンが詰まったお部屋
どうですか!?
続きを読む
見学したい(無料)我が家に遊びにこない?
静岡県浜松市中央区西伊場町75-6
/47.80m²
中区西伊場町のフルリノベーションされた物件のご紹介です!
コンクリート打ちっ放し、広々玄関スペース、木目フローリングのリビングダイニング17帖、ワイドキッチン、ダウンライト。。
外観、築年数からは想像できないようなフルリノベーションされた素敵な空間になってます!
また賃貸ではあまり見たことないような。。。
浴室乾燥機、浴室は広々1850です。ゆっくりと足を伸ばして入れそうですよ。
洗面、脱衣場、おトイレとは同室になっているので、広々した開放的な空間になってます。
キッチンは日本の高級ブランド、トクラスの2550×750と、とってもワイド。食洗器もついて3口ガスコンロ。
充実したお料理タイムを過ごせそうですね。
お友達を呼んでパーティーなんてしたら楽しそうだな。
窓は2重サッシになっているので、外からの音は一切聞こえず。
ワンランク上の設備が揃ってます!
新生活をフルリノベーションされたとても広々したオシャレな空間で!
いかがでしょうか?
続きを読む
見学したい(無料)ゆったりリノベや[ペット可]
静岡県浜松市中央区葵東1-10-21
1LDK /37.40m² /1982年10月
葵東にありました!
築38年と建物はそこそこ古めではありますが。
室内は大幅リノベーションされていて、とても綺麗です。
キッチン、浴室、洗面スペースはわりと広めで、ゆったりとした空間になっています。
そして嬉しいのがインターネットが無料なんです。
幹線道路前の立地になるので、すこし騒音がしますが、、、
4階なのでなかなか景色が良く、奥行きのある浜松の空を眺められそうですよ。
ぜひペットが飼える物件をおさがしの方、必見ですよ!
続きを読む
見学したい(無料)Dreams Come True!
静岡県浜松市中央区葵東1-10-21
/55.00m²
この立地、この程よい広さ、この雰囲気!
そしてなによりお店を始めやすいお家賃です!!
元々は整体系のお店が入っていたようです。
特に業種は問わないそうですので、カフェ・Bar・サロン・雑貨屋さんなどなどご相談ください!
「いつかは自分のお店を持ちたいな、、、」
そんな夢を抱いている開業ガール&開業ボーイのお力になります!
365LIFEでは内装のデザインもご相談に乗れます。
ご連絡お待ちしております。
続きを読む
見学したい(無料)家族でわいわい!戸建て生活
静岡県浜松市中央区領家2-13-9
3LDK /88.59m² /2017年1月
見どころがたくさんです!
まず、車が駐車3台可能!そして広々としたお庭。
隣は駐車場ですが家の前のスペースはすべてあなたのもの。
15帖の広々リビングに
毎日お料理を頑張るお母さんに喜ばれるであろう広々キッチン!
収納もすでにたくさん設置されています。
2階には洋室が3つ。
お子様専用のお部屋を準備しても十分!
それぞれの洋室にも収納があるので
荷物が多くても困りません。
なんだか、家族がわいわいしている様子が浮かんできそうです。
私もこんな家庭を築きたいな・・・・(小声)
続きを読む
見学したい(無料)白い箱のキャレブラン
静岡県浜松市中央区小豆餅4-3-11
3LDK /85.25m² /2015年3月
浜松市にはこの形で建てられたキャレブランシリーズが、よく建てられています。
今回は中区小豆餅にあるキャレブランをご紹介いたします。
フランス語で「白い四角」を意味するキャレブラン、その名の通りシンプルかつモダンな清々しい佇まいです。
LDKに囲まれた約6帖ほどの広さのウッドデッキと1階のLDKに敷き詰められた真っ白なフロアタイルが大きな特徴。
お部屋の照明にはダウンライトを採用することにより天井面がすっきりと演出されております。
ウッドデッキで元気に遊ぶ子供達を2階から見下ろすことも可能、ウッドデッキの使い道はアナタ次第です。
戸建の様に見えますが境界壁を共有しているため「テラスハウス」としてのお部屋の紹介になります。
続きを読む
見学したい(無料)陽の当たる暮らし
静岡県浜松市中央区領家2-20-27
/63.64m²
中区領家2丁目、とても静かな環境にとってもオシャレなコンクリート造りの建物
入口はオートロックなので防犯設備はバッチリ。
大家様自己管理物件のため、共有スペースや駐車場、駐輪場、ゴミ置き場など、とってもきれいにされております。
玄関はデジタルロックなので、鍵を持つ必要がありません。
2012年築と築浅な為、とっても綺麗。
明るくて日当たりも良いので、お洗濯物がよく干せそう。
とても静かな環境ですが、ここへたどりつくのに一通の細い道をグルグルと回ってやっとたどり着きました。。。
静かな環境で充実したプライベート空間での新生活、いかがでしょうか?
続きを読む
見学したい(無料)ほっこりした光を浴びて
静岡県浜松市中央区領家2-20-27
/63.64m²
中区領家2丁目、とても静かな環境にとってもオシャレなコンクリート造りの建物です。
入口はオートロックなので防犯設備はバッチリ。
大家様自己管理物件のため、共有スペースや駐車場、駐輪場、ゴミ置き場など、とってもきれいにされております。
玄関はデジタルロックなので、鍵を持つ必要がありません。
2012年築と築浅な為、とっても綺麗。
明るくて日当たりも良いので、お洗濯物がよく干せそうです。
とても静かな環境ですが、ここへたどりつくのに一通の細い道をグルグルと回ってやっとたどり着きました。。。
静かな環境で充実したプライベート空間での新生活、いかがでしょうか?
続きを読む
見学したい(無料)陽の光を浴びて暮らしたい
静岡県浜松市中央区領家2-20-27
/63.64m²
中区領家2丁目、とても静かな環境にとってもオシャレなコンクリート造りの建物です。
入口はオートロックなので防犯設備はバッチリ。
大家様自己管理物件のため、共有スペースや駐車場、駐輪場、ゴミ置き場など、とってもきれいにされております。
玄関はデジタルロックなので、鍵を持つ必要がありません。
2012年築と築浅な為、とっても綺麗。
明るくて日当たりも良いので、お洗濯物がよく干せそうです。
とても静かな環境ですが、ここへたどりつくのに一通の細い道をグルグルと回ってやっとたどり着きました。。。
静かな環境で充実したプライベート空間での新生活、いかがでしょうか?
続きを読む
見学したい(無料)お休みはお家のウッドデッキで
静岡県浜松市中央区渡瀬町161
/96.50m²
とても素敵な物件なのでご紹介させていただきます。
周辺には馬込川があり土手をランニングをすることができます。
物件の前の通りは住宅街ですが道は少し狭めです。
白の四角い外観のシンプルなデザイン
玄関から入ってすぐの収納は大容量で、
たくさん靴など収納ができます。
17帖のリビングダイニングには、
テラスに出ることができる大きな窓があり、
晴れた日には日が差し込みます。
ウッドデッキでは家庭菜園、
イスなど置いて読書
日向ぼっこ
使い方はそれぞれです。
シックなのデザインのキッチンは、
3口コンロのガスコンロ、
調理スペースも十分あるので料理好きには嬉しいキッチン
2階の洋室は2部屋とサンルーム
洋室にはそれぞれ大きなクローゼットがあります
サンルームは、ソファーを置いてくつろぎのスペースにも、
お子様の勉強スペースにも、使い方は様々
そして、それぞれの部屋からテラスを見ることができます。
家族の会話が聞こえてきそうなお家です
続きを読む
見学したい(無料)子供と野菜
静岡県浜松市中央区渡瀬町161
/96.50m²
とても素敵な物件なのでご紹介させていただきます。
周辺には馬込川があり土手をランニングをすることができます。
物件の前の通りは住宅街ですが道は少し狭めです。
白の四角い外観のシンプルなデザイン
玄関から入ってすぐの収納は大容量で、
たくさん靴など収納ができます。
17帖のリビングダイニングには、
テラスに出ることができる大きな窓があり、
晴れた日には日が差し込みます。
ウッドデッキでは家庭菜園もでき、
子供の成長とともに野菜の成長も楽しみにすることができます。
赤のデザインのキッチンは、
3口コンロのガスコンロ、
調理スペースも十分あるので料理好きには嬉しいキッチン
2階の洋室は2部屋とサンルーム
洋室にはそれぞれ大きなクローゼットがあります
サンルームは、ソファーを置いてくつろぎのスペースにも、
お子様の勉強スペースにも、使い方は様々
そして、それぞれの部屋からテラスを見ることができます。
家族の会話が聞こえてきそうなお家です
続きを読む
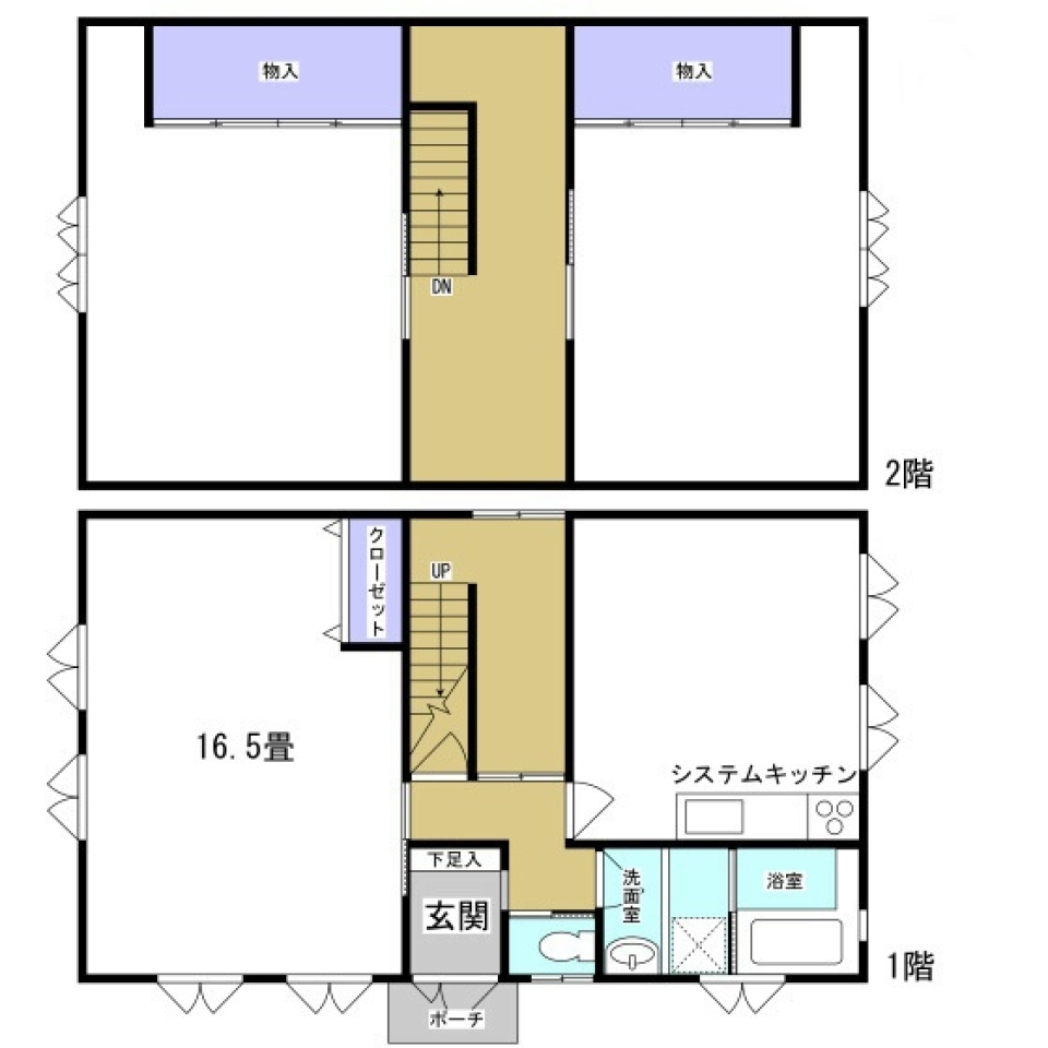
見学したい(無料)ここが私のお家
静岡県浜松市中央区渡瀬町161
/90.50m²
とても素敵な物件なのでご紹介させていただきます。
周辺には馬込川があり土手をランニングをすることができます。
物件の前の通りは住宅街ですが道は少し狭めです。
青と白の外壁で洗礼されたデザインです。
玄関から入ってすぐの収納は大容量で、
たくさん靴など収納ができます。
16.5帖のリビングダイニングには、
テラスに出ることができる大きな窓があり、
晴れた日には日が差し込みます。
赤のデザインのキッチンは、
3口コンロのガスコンロ、
調理スペースも十分あるので料理好きには嬉しいキッチン
お風呂、洗面、トイレにはキッチンとリビングから入ることができます。
2階の洋室は3部屋あり、
それぞれに収納があり困りません。
そして、それぞれの部屋からテラスを見ることができます。
家族の会話が聞こえてきそうなお家です。
続きを読む
見学したい(無料)DECO LIFE ver NATURAL
静岡県浜松市中央区三方原町190
1K /32.30m² /1989年6月
壁のどこにでも、大好きな小物をデコレーション!
お気に入りの小物も、CDも、なんでも壁に飾っちゃおう!
壁一面に広がる小さな穴を活かすと、なんと棚になっちゃいます。
大きさも場所も自由。 この壁一面を、お気に入りの服で埋めてもよし。お気に入りのCDジャケットで埋めてもよし。大好きな自慢のアイテムで、自由にディスプレイし、飾っちゃってください。
自分だけの、自慢の壁。どんどん成長していく壁。
この部屋の仕上げは、あなた次第です。
思いっきり好きに、楽しんでください。
続きを読む
見学したい(無料)ときめきのカラーリング♪
静岡県浜松市中央区三方原町190
/32.30m²
リノベーションがされておりなんともかわいい内装になっています!
洋室には壁に取り付けられた棚があります。
お気に入りの小物も、CDも、なんでも壁に飾れちゃいます。
この棚とはべつに収納もついています。
見せない収納も見せる収納もどっちも気軽にできる洋室になっています。
自分だけの、自慢の壁。どんどん成長していく壁。
この部屋の仕上げは、あなた次第です。
思いっきり好きに、楽しんでください。
家電もついているのでありがたいですね。
ちょっとオシャレな一人暮らしをしたい人におすすめです。
続きを読む
見学したい(無料)Luxury Life AZUKIMOCHI
静岡県浜松市中央区小豆餅4-5-21
/38.88m²
現地に着いた時にはあまりテンションも上がらず玄関へ....。
しかし、玄関扉を開いた瞬間より興奮が止まらない。
ここは中区小豆餅、近隣にはスーパーやドラッグストアも多くあり日用品の買い物は非常に便利な町です。
室内は2DK⇒1LDKでリノベーションされております。
掲載写真こそ日中に撮影されているものの、ご内覧は夜間をオススメします。
ブラウンカラーをメインにしたラグジュアリー空間がお楽しみいただけることでしょう。
バブル期を感じさせるガラスブロックが玄関を開けばお出迎え、洗面空間に存在しない洗濯機置場をしばし探し回ってしまいました。
収納は大きなウォークインクローゼット、U字型にハンガーパイプが掛けられており無数の服も収納OK。
LDKと寝室は3枚の引き戸で仕切られているが共に南に面し明るい空間が確保されております。
何よりこの賃料には驚きですね。
この間取りにこのデザイン、さらには充実した設備が満載で5万円でお釣りが来てしまう。
さぁ、迷っている暇はないさ!今こそ決断の時!!
続きを読む
見学したい(無料)BASICリノベで万人受け
静岡県浜松市中央区丸塚町124-2
2LDK /59.04m² /1989/1
よく言えば「万人受けされるお部屋」
悪く言えば「面白みに欠けるお部屋」といったところでしょうか...(゜д゜)
元々3LDKだったお部屋にお部屋探しのこだわり条件上位ランキングの設備をプラスしたお部屋になっております。
味気ない白1色のお風呂はもうイヤだ「浴室交換」。
急いでる朝に限って寝グセボーン「シャンプードレッサー」
テレビを見ながらウキウキクッキング「対面キッチン」
今や男性も必需品「シャワートイレ」
派手なお部屋はちょっと...、かと言ってあまり地味すぎるのイヤだな。
そんな方にオススメしたいお部屋です
続きを読む
見学したい(無料)スマホで言うと、アンドロイドじゃなくてiPhone。
静岡県浜松市中央区小豆餅4-5-21
/38.88m²
生活に必要なものが、コンパクトに機能的にまとまっている。
例えば、玄関先には大きな鏡。
その正体は、30足は入りそうな大きな靴箱!
キッチン裏の収納の正体は、なんと洗濯機置場です!
キッチン横には、備え付けのテーブルが付いていて、食事までの導線も短く!
洋室にあるクローゼットは、3つのハンガーラックを擁するウォークインクローゼット!
ドアにはオートロック、窓には雨戸&シャッターもついていて、セキュリティーも万全です!
機能的な設備が、非常にスマートにまとめ上げられています。
細かいところまで気配りが届いている、好感度の高いお部屋です。
続きを読む
見学したい(無料)白い家
静岡県浜松市中央区渡瀬町161
/96.50m²
ウッドデッキ付きお家ってなんか憧れますよね。しかも内装も白を基調としていて、とても爽やか。照明はダウンライトで統一されているためすっきりとした空間の印象で、ウッドデッキから差し込む自然光がとても心地よいお家です。ここのウッドデッキから上を見上げると、空にも手が届きそうな気持になります。
子どもも大人も楽しめるお家。ウッドデッキは夏にお子様が遊ぶスペースとして使えるだけではなく、簡単なBBQをしながらビールを一杯という贅沢な使い方もできます。お家の中にお気に入りの場所があるのは良いですよね。対面式キッチンで、ウッドデッキを見ながら料理することができる点も、お母さんには嬉しいです。
一坪もある大きなお風呂など、家族みんなが気持ちよく過ごせるように設計されているこのお家。
大きな空の下で家族と笑顔で暮らす生活を始めましょう!
続きを読む
見学したい(無料)お家で日サロ
静岡県浜松市中央区渡瀬町161
/90.50m²
ウッドデッキ付きお家ってなんか憧れますよね。しかも内装も白を基調としていて、とても爽やか。照明はダウンライトで統一されているためすっきりとした空間の印象で、ウッドデッキから差し込む自然光がとても心地よいお家です。ここのウッドデッキから上を見上げると、空にも手が届きそうな気持になります。
子どもも大人も楽しめるお家。ウッドデッキは夏にお子様が遊ぶスペースとして使えるだけではなく、簡単なBBQをしながらビールを一杯という贅沢な使い方もできます。お家の中にお気に入りの場所があるのは良いですよね。対面式キッチンで、ウッドデッキを見ながら料理することができる点も、お母さんには嬉しいです。
一坪もある大きなお風呂など、家族みんなが気持ちよく過ごせるように設計されているこのお家。
大きな空の下で家族と笑顔で暮らす生活を始めましょう!
続きを読む
見学したい(無料)白亜館TAKAOKA WEST
静岡県浜松市中央区高丘西3-56-11
/81.20m²
シンプルでモダンな清々しいデザインの真っ白な戸建て風住宅。
浜松エリアで人気の高い「キャレブラン」シリーズはそのデザインはもちろんのこと、夏は涼しく冬は暖かい外断熱工法、屋根と床はパネル工法・壁には軸組工法が採用され外力に対して建物が一体となって抵抗する高耐久性も人気のひとつでしょう。
なんといってもこのお部屋のおすすめはプライベートウッドデッキがほぼリビングと同サイズの広さがリビング続きであり、部屋を広く見せてくれるだけではなく、たっぷりの光を室内に取り込みながらアウトリビングが豊かな暮らしを与えてくれること間違いなし?
賃貸でありながら、人目を気にせず日焼けやヨガ、外での朝食や星空を見ながらの晩酌など夢のような暮らしができそうですね。
続きを読む
見学したい(無料)白箱 ~無重力空間~
静岡県浜松市中央区有玉北町1980-3
3LDK /85.25m² /2015年2月
その名の通りシンプルかつモダンな清々しい佇まいです。
LDKに囲まれた約6帖ほどの広さのウッドデッキと1階のLDKに敷き詰められた真っ白なフロアタイルが大きな特徴。
お部屋の照明にはダウンライトを採用することにより天井面がすっきりと演出されております…。
ウッドデッキで元気に遊ぶ子供達を2階から見下ろすことも可能、ウッドデッキの使い道はアナタ次第です。
個人的には昼間はハンモックで読書をしながら日光浴+昼寝、夜は七輪で秋の味覚秋刀魚やキノコ類を焼きながら1杯など楽しみ方をしてみたい。
続きを読む
見学したい(無料)ARITAMA白亜邸館。
静岡県浜松市中央区有玉北町1982
/83.25m²
LDKに囲まれた約6帖ほどの広さのウッドデッキと1階のLDKに敷き詰められた真っ白なフロアタイルが大きな特徴。お部屋の照明にはダウンライトを採用することにより天井面がすっきりと演出されております。。
ウッドデッキで元気に遊ぶ子供達を2階から見下ろすことも可能、ウッドデッキの使い道はアナタ次第です。
個人的には昼間はハンモックで読書をしながら日光浴+昼寝、夜は七輪で秋の味覚秋刀魚やキノコ類を焼きながら1杯など楽しみ方をしてみたい。(≧∇≦)/
続きを読む
見学したい(無料)Love Blue
静岡県浜松市中央区領家1-7-4
賃料67,000円
共益費/管理費3,000円
1LDK /53.30m² /2005年2月
建具がブルーカラーに統一され、お部屋のアクセントとなっています。
ブルーカラーは世界的に見ても、好む人が多く嫌う人が少ないという特徴的なカラーだそう。
リラックス効果も期待でき、心休まる空間になりそうです。
またロフトがある分天井が高く、なんだか開放的。
ロフト部分は約5帖と広く、窓もあり採光も取れるので、収納としてだけ使うのはもったいないかも?
秘密の書斎にするのもいいですね。
晴れた日に室内に降り注ぐ自然光、これまたがブルーカラーとの相性がよいです。
LDKは真四角ではないので家具配置はちょっと悩むかもしれませんが、ロフト階段の下側などうまく有効活用してみてください。
駐車場は2台込なのでカップルにもおすすめですが、サニタリースペースはひとまとめになっています。
譲り合ってお使いください。
※画像は前回募集時のものです。現況を優先いたします。
続きを読む
見学したい(無料)REMEMBER STYLE
静岡県浜松市中央区鴨江町91-15
1R /21.87m² /1993年3月
大自然の中、夕暮れまで夢中で遊んだ幼少期。
この部屋は当時をふと思い出すどこか懐かしい雰囲気が漂っています。
部屋を見上げると、自分が小さくなったとも錯覚する高い天井。
木目や優しいブルーのアクセントが自然のぬくもりを感じさせます。
ロフトに上がれば秘密基地でワクワクした感覚が蘇る。
ノスタルジックな気持ちになる部屋で、当時を重んじ、価値ある日々が送れます。
続きを読む
見学したい(無料)OTONA-MARINE LIFE~海が薫る家~
静岡県浜松市中央区葵西4-13-5
/30.00m²
マリンスタイルの王道ホワイトとブルーにグレーを織り交ぜることで、甘すぎる事なくほど良くかわいいオトナマリンの完成です。貝殻やヒトデをモチーフとした小物や、流木やガラス瓶をディスプレイ。マリンランプを灯せばまるでシーサイドハウスのよう。かわいいだけじゃない、深みあるオトナ女子にぴったりの暮らしを愉しむお部屋です。
続きを読む
見学したい(無料)ロフトのあるお部屋に住みたい
静岡県浜松市中央区葵西4-13-3
/30.00m²
下段はシングルベットマットを置いて棚などを置いても広々
上段にはお荷物
ロフトの広さ使い勝手がとても魅力的で広がります
使い方無限です!
洋8帖、奥行も横幅も広々したクローゼット
一人暮らしには十分の広さになってます
駐車場も1台込みになってます
新生活はこちらのお部屋で始めませんか?
続きを読む
見学したい(無料)普通に飽きたら。
静岡県浜松市中央区領家1-7-3
/30.42m²
玄関脇の収納は1枚扉で一方を開くと片方はオープンのままになるという面白い作りです。棚板が同じカラーで統一されているので見せる収納を楽しみたいですね。
そしてクローゼットをお部屋の真ん中に置いた大胆な間取り。一見、家具の配置に困りそうですが、奥のスペースは長手方向に2m10cmあるので大きなサイズのベッドでなければぎりぎり入ります。
そして賃貸のお部屋には珍しく南面に浴室があり、ウッドデッキまでついています。きっとコレがしたくてこんな他にない間取りになったのでしょう。
「普通」では納まりたくないあなたに住んで頂きたいお部屋です。
続きを読む
見学したい(無料)リラックスブルーがいっぱい。
静岡県浜松市中央区領家1-7-4
/30.42m²
いつもは見向きもされず脇役にまわる建具、すべてをブルーカラーに統一し室内のアクセントとなっています。ブルーはリラックス効果があり心休まるお部屋になりそうです。
晴れた日に室内に降り注ぐ自然光、これまたがブルーカラー建具と相性が抜群です。居室空間は四角形の箱型ではない為家具配置がちょいと難しい。キッチンは独立したスペースにあるのが嬉しいポイントですね。
休日の晴れた日にはお風呂へ入ろう!!こんなにも大きな窓の付き浴室、久しぶりに見ました。自然光を浴びながらゆっくりとした時間を浴室で過ごすものありだと思います。
続きを読む
見学したい(無料)鉄道ファンに告ぐ!線路沿いが熱い!
静岡県湖西市鷲津372-17
1K /23.66m² /2007年3月
音や振動を全身で感じられそうです!
内装は、ナチュラルでロフト付きです。ロフトがあることで、ワクワクします。
1Kですが天井の空間を上手に取り入れることで空間を広く活用できます。
バルコニーがない代わりに"サンルーム"があります。
天井には、物干しもあるので洗濯物を干すことも可能です。
スケルトンの引き戸もあり、サンルームとお部屋の空間を分けることができます。
また、玄関から部屋へ通じる階段付近には、一枚の板が置いてあります。
さて、これはなんでしょうか…謎です。
続きを読む
見学したい(無料)アウトドアLIFE
静岡県湖西市鷲津1660-26
賃料38,000円
共益費/管理費3,000円
1K /27.67m² /2009年3月
上部を有効に活用ができそうです。
大型のモノを収納したり、寝室のように使ってもいいですね。
アウトドアな方にとってもオススメな物件です。
"インナーバルコニー"とは?
サンルームの様な場所のような感じです。
洗濯したものを室内でも干せるように物干し場も付いています。
アウトドア用品の手入れなどもできそうです!
収納スペース兼用でつかうのもOK!。斬新なアイディアです!
採光も入るので、天気のよい日は、気持ちが良さそうですですね。
扉で仕切れるのが嬉しいスペース!
アウトドア好きの方必見のお部屋です!
続きを読む
見学したい(無料)アーチ状の扉をあけて、プリンセスに
静岡県浜松市中央区高丘東4-5-5
/40.08m²
部屋中央のアーチ状のドアがアクセントになっていて、
お部屋の雰囲気がガーリーチックになっています。
プチプリンセス気分になれますね!
白ベースでナチュラルテイストな雰囲気のお部屋です。
玄関を中央に部屋が両サイドにあります。左手にLDK、右手に寝室があります。
廊下のスペースがコンパクトにおさまっています。
共有エントランスのネームプレートがかっこよすぎ!
続きを読む
見学したい(無料)にゃんと素敵な高天井[ペット可]
静岡県浜松市中央区高丘西1-14-9
賃料42,000円
共益費/管理費3,000円
1K /39.00m² /2006年5月
ロフトがプラスされとてもおしゃれな空間です。
吹き抜け空間がとても気持ちが良いです。
ロフト下も高さがあり快適に使えそう。
上部と下部の空間を「見せる収納」と「隠す収納」で上手に活用できそうです。
そして嬉しい1匹までペット相談可。
猫ちゃんならより大喜びしそうです!
※画像は前回募集時のものです。現況を優先いたします。
続きを読む
見学したい(無料)遊びゴコロのある、すみっこくらし
静岡県浜松市中央区高丘北2-55-15
/41.32m²
板材がランダムに張り付けてあるデザインがアクセントになっています。
また、飾り棚もプラスされていて、ダイニングスペースがとってもオシャレなカフェ風に仕上がっています。
出窓と出窓下の扉も気になりますね。内覧の時に開けてみてくださいね。
天井と床がナチュラル感のあるベージュカラーでとても暖かな空間になっています。白がベースでシンプルで明るい印象です。
ウォークインクローゼットもとてもユニークなカタチです。
LDK⇔寝室をつないでいます。
続きを読む
見学したい(無料)10帖の枠を超えてゆけ。
静岡県浜松市中央区根洗町280
1R /25.92m² /1995年3月
そこで間取りを見てください。なんと11帖を超える居住空間のお部屋を見つけました!一人暮らしでもお部屋は居住スペースは広い方がもちろんいいですよ。
11帖も洋室に取れるのでキッチンをカウンター型に。この広さなら圧迫感もないですし、家具の配置は間違いなくしやすいです。
こんなに広いのに面積は25㎡と一般的な1Kと変わらない...さてはお風呂とトイレが一緒なんじゃないの?
いいえ、お風呂とトイレは分かれています!しかし...脱衣所はありません('Д')
そうです、洗濯機置き場は廊下部分にあります。
ここに居住スペースを広く使えるトリックがありました。
そのため玄関たたきも省スペース。シューズBOXは大きいのでご安心を。
根洗という立地もあってかなり良心的な賃料。5階の最上階というのも要チェックです。
続きを読む
見学したい(無料)ピーター・パンが暮らす部屋。
静岡県浜松市中央区根洗町280
賃料37,000円
共益費/管理費2,000円
1R /25.92m² /1995年3月
リノベーションされたお部屋の醍醐味といえばズバリ、”遊び心”ではないでしょうか?このお部屋は、「普通の賃貸物件はもう飽きた!」という方にピッタリです。
さりげなくデザインされた床やロールスクリーン用の収納スペースなど、大人ウケする遊び心が詰まってるんです。さらに自然光がよく降り注ぎ、毎日気持ちよく暮らすことができます!
大人になっても、遊び心を大切にするあなたに住んで欲しい!
続きを読む
見学したい(無料)Stripe floor ROOM。
静岡県浜松市中央区根洗町280
/25.92m²
築20年を超え時代錯誤となってしまった間取りをリノベーション工事により一新されております。
浴室、トイレ、洗濯機置き場をぎゅっとコンパクトに配置されている間取りです!
コンパクトに用事を済ませることができますね!
ドアを挟んで、洋室とキッチンで広々としたお部屋になっています。キッチンは、ダークブラウン調でナチュラルな床ととてもマッチしています。
キッチンスペースが居室部分にあることにより、エアコンの効いた快適空間で料理が出来るという反面、カレーなどに匂いが強い料理をすると室内に匂いが充満してしまいます。
周辺は、畑に囲まれていてゆっくりと時間が流れていくようなのどかな場所です。
近隣には浜松大学・聖隷クリストファー大学があるので学生さんにもオススメのお部屋です。
続きを読む
見学したい(無料)魅了するインテリアとWロフト。
静岡県浜松市中央区高町300-33
1R /36.43m² /2008年3月
高町の高層マンションに隠れるようにして佇むこの2階建てのアパート。
まずドアを開けると玄関が土間になっているのでもちろん広い!ここにBMXやサーフボードのような大きなアウトドア用品を置くとインテリアのセンスもグッとあがりそう!
玄関が土間になっているならお部屋だって普通じゃないでしょ。
デザインとして溶け込んでいる梁に、スポットライトがついて中を照らしています。このデザインだけでもノックアウトものです!
梁の向こうにはロフトがあります。ロフト内部は4帖で、高さは98㎝。エアコン、AC電源、窓と充実しています。
そしてロフトに上って対面を見ると、ななな、なんと逆側にもう一つロフトがあるではありませんか!Wロフトのお部屋です。
こちらのロフトは3帖で電源や窓はありません。収納スペースとして使うのが有効かも(ちなみに間取りにある収納箱は実際にはありません)。
サニタリースペースはバス・トイレは別、しかもシャワートレイになっています。
IHキッチン、冷蔵庫と電子レンジ、洗濯機は設置され、インターネット無料という至れり尽くせりな内容となっています。
前述の建物に埋まるように建っているので、日当たりはよくありません。バルコニーもないため、洗濯物は玄関天井に物干しレールみたいなものが取り付けてあるので、そこで干すようです。
また駐車場もないため、お車お持ちの方は近隣で駐車場を探す必要があるのでそこを吟味してください。
続きを読む
見学したい(無料)デザイナーズワンルーム
静岡県浜松市中央区高町300-33
賃料45,000円
共益費/管理費3,000円
1R /36.43m² /2008年3月
高町の高層マンションに隠れるようにして佇むこの2階建てのアパート。
まずドアを開けると玄関が土間になっていてとても広い。
ここにBMXやサーフボードのような大きなアウトドア用品を置くと、お部屋の雰囲気もぐっとおしゃれになりそう。
この玄関はお部屋だって普通じゃないでしょ、洋室はそんな期待を裏切らない造りになっています。
まず梁にはスポットライト、そして壁際には間接照明。
そしてロフト。ロフトは4帖で、高さは98㎝。エアコン、AC電源、窓と充実していて、寝室としてもよさそうです。
そしてロフトに上って対面を見ると、なんと対面にもう1つロフトがあるではありませんか!
Wロフトのお部屋です。
こちらのロフトは3帖で電源や窓はありません。収納スペースとして使うのがよさそうです。
ちなみに間取りにある収納箱はロフトに上がる階段として使えます。
画像には家電が写っていますが現状はありません。
ただし、洗濯機・冷蔵庫・電子レンジの家電3点を付けることができます。ご相談ください。
前述の通り日当たりはよくありません。
バルコニーもないため、洗濯物は玄関天井のレールにかけるとよさそうです。
また駐車場もありません。
車をお持ちの方は近隣で駐車場を探していただくことになりますので、加味してご検討ください。
浜松駅徒歩圏という便利な立地なので、車がなくても生活できますよ。
※画像は前回募集時のものです。現況を優先いたします。
続きを読む
見学したい(無料)屋根裏部屋に憧れて[戸建]
静岡県浜松市中央区鹿谷町37-2
3LDK /139.12m² /1994年4月
この物件まずユニークなのが、2階が屋根裏部屋のような造りになっていることです。
幼いころに観た映画で、屋根裏部屋でベッドの中から窓の外の月を見ている見ているシーンがあって、なぜか無性にワクワクした記憶が今回蘇りました!
屋根裏部屋は天井が三角になっているので正直家具は配置しにくですし、温熱環境も良くはないでしょう。
でもそれを超えるワクワクがそこにはあります!
間取りもユニークで、ほぼ左右対称になっています。
建物の真ん中に階段があるのですが、この階段なぜか扉で隠されています。
収納だと思って開けた扉が階段へと続く扉になっていて、思わず忍者屋敷か?!とツッコミをいれてしまいました。
水回りは以前にリフォームしているようで、割と新しく洗面所には不思議な位置に梁(?)と窓があります。
外には屋根付きの立派な駐輪場も完備。
「普通」じゃ物足りないあなたにおススメのおうちです。
続きを読む
見学したい(無料)【賃貸事業用事務所】街中広々オフィス。
静岡県浜松市中央区板屋町522
/129.00m²
2階のワンフロアーとなります。
入り口は、通り沿いの階段を上がって、オシャレな扉がお出迎え。
会議室利用もできるようにお部屋が分かれています。
駐車場は4台まで利用できます。
整備されたアクト通りに面しているので、通勤に自転車やランニングも楽しめそう。
続きを読む
見学したい(無料)【賃貸事業用店舗】クラシカルなカフェの居抜き。
静岡県浜松市中央区板屋町522
/113.00m²
オフィスや静岡文化芸術大学、庁舎などが並ぶアクト通りで人気もあり、
移転が残念との声も高いお店。
ということは、需要がある場所ということですね。
大きなカウンターや照明もこのまま利用できそうです。
天井が高く、高い位置の窓から入る光が優しく穏やかな印象です。
落ち着いた雰囲気のお店が似合いそうな建具などの調度品もいいですね。
シャッターを開けると歩行者が目を引きそうな扉もあります。
駐車場は、お客様用に5台確保できます。
365LIFEでは、お店のコンセプト設計から内装デザインまで承っております。
「こんなお店を出店したい!」といったご相談からお話を伺います!
ぜひ、ご相談ください。
続きを読む
見学したい(無料)檜が香る、無垢フロア。
静岡県浜松市中央区根洗町1212-2
/33.00m²
1980年代~90年代前半に多く建てられたオーソドックスな木造2階建て、外観は塗り替えられ綺麗な状態で管理されておりました。
壁紙を張り替えるお部屋は多く目にしますが、床全面を張り替えてしまうお部屋は中々ないのではないでしょうか!?
その理由は....。やっぱりお金が掛かるからですね。(T▽T)
でも違うんですここのお部屋は。
床全面張り替え天然木本来の風合いを感じるお部屋に生まれ変わりました。
張り替えられた床材にはなんと「ヒノキ」の無垢材が使われているではないですか!!
ほのかに感じる「檜」香り、室内の湿度を調整する「檜部屋」に1度住んでみませんか?
ちなみに今なら供給されているガス会社からの「キャンペーン」もあるみたいですよ。
続きを読む
見学したい(無料)隠れ家のある暮らし
静岡県浜松市中央区菅原町9-11
1LDK /45.08m² /2004年8月
充実した一人時間を過ごすためのキーワードは「隠れ家」。開放的な場所よりも、隠れ家風のカフェやバーで過ごす一人時間はより濃いものになり、休息のひとときを与えてくれます。
そんな濃厚な時間を過ごせそうな、隠れ家風の寝室があるこのお部屋。解放的なリビングとは一変して、自分だけの時間を過ごすための場所です。
こんな暮らしを街中から徒歩圏の場所で始められます。友人関係や人付き合いを大事にするからこそ、必要な一人時間。濃厚な一人時間をここで過ごして下さい。
続きを読む
見学したい(無料)街中VIPルーム。
静岡県浜松市中央区菅原町9-11
/133.56m²
4階建てをどぉ振り分ければ13戸になるのか不思議に思った方もいるのではないでしょうか?
その答えは今回募集のお部屋にあります。
2階以上のお部屋はワンフロアに1LDKのお部屋が4戸、2階~4階で計12戸です。
1階のお部屋はなんとこの1LDK?4戸の面積を使った4LDKの特別室になっています。
4LDKと言ってもただの4LDKではなく、なんとLDKが26帖もあるのではないですか!今までの人生26帖のお部屋なんて見たことありますか?
きっと度肝を抜かれる広さなんでしょうね。
133㎡のお部屋なんてそうそう出来てきませんよ。
1階のピロティ部分は専用の2台分駐車場、さらには1LDKの入居者とは別の専用玄関を使うらしいですよ。
まさにVIP待遇ですね!(゚∀゚ )
続きを読む
見学したい(無料)温もりのストーンハウス。
静岡県浜松市中央区市野町1451-7
/165.00m²
外壁に使われている丸くぷっくりした愛らしい石は、
なんとリビングの壁にも現れます!
このダイニングでは、固いパンととろ?りチーズが似合いそう^^
リビング横の和室は、本格的な床の間があり、縁側からウッドデッキへ続きます。
和洋折衷のこの組み合わせかたも面白いですね。
2階も書斎やウォークインクローゼットなど用途に適した設計がなされ、
すぐにでも使用してくださいと語りかけているようです。
きっととても思い入れをもって造られた大切な家だったのでは?
次は、あなたらしく使い込んでみてください!
続きを読む
見学したい(無料)\賃料変更されました!/土間でつながるナチュラルルーム。
静岡県浜松市中央区早出町1211-7
1LDK /48.76m² /1981年12月
このお部屋の特徴は『土間』 30cm各のタイルが玄関からキッチンスペースまで敷き詰められています。スーパーの買い物帰りにそのままキッチンスペースへ、そして冷蔵庫に食料品を入れて、ささっと料理に取り掛かれる。まるで欧米のような暮らしが出来ます。
床はナチュラルカラーのフローリング材を使用し、木の温かみを感じるお部屋です。壁紙は全体的に薄く土色をした壁紙を使っているので空間としてはとてもシックな印象です。
水廻りはキッチンも含め、何も文句はありません。お風呂は追い焚きだし、浴室乾燥まで付いています。
北側の洋室は5.5帖ですが、少し縦長の作りになっています。幅が1.9m程なのでダブルベッドがちょうどよく入って50cmほどの通路が出来る位ですので大きいベッドを入れたい方は注意が必要です。
コンビニも徒歩1分。面する道路には街路樹が整備されていて環境的にも素敵な場所です。
ちょっと余裕のある一人暮らしの方や新婚さんにもってこいのお部屋です。
続きを読む
見学したい(無料)浜松ツインタワー。
静岡県浜松市中央区高丘東2-20-7
/72.00m²
1階が広い駐車場なのですが、そこからも直接エレベーターに乗れます。
雨の日には、濡れなくて済みます!
2階にあるロビーを通ると、管理人さんが何人かいらっしゃいます。
セキュリティ面もとても安心です。
驚いたのが、ロビーに、男女別できちんとトイレがあることです。
コレ、緊急時には、とってもありがたい!
タワーマンションには、これを必須にしていただきたい!
エレベーターが長いと感じることありませんか?^^;
更に集会室まであって、何が行われるのかワクワクします。
眺望も良いタワーマンション、ぜひご覧ください!
続きを読む
見学したい(無料)トライアングルルーム
静岡県浜松市中央区新津町597-17
1K /33.95m² /2010年4月
誰もが覚えている公式ですね。
新津町にあるお部屋の専有面積もこの公式を使って求めることが出来る「トライアングルルーム」です。
部屋は四角じゃなきゃいけないなんて誰が決めたんでしょう?
時には○や△の部屋があったっていいんじゃないか。
部屋の形だけでなく収納やバルコニーまで三角形と、他にはない間取りのお部屋に住んでみるのも面白いかもしれませんね。
続きを読む
見学したい(無料)【家電付き】ロフト付き充実ライフ!
静岡県浜松市中央区新津町597-11
/33.95m²
ロフトがあるだけでワクワクしちゃいますよね!
洋室は8帖の広さ。
ロフトスペースは3.8帖あります。
ロフトを寝室をして使うのもいいですし、物置として使うのも良しです。
洋室にはクローゼットが完備されているので、荷物はクローゼットに
収納しちゃえばお部屋を広々使うことができますよ。
さらにこのお部屋にはインナーバルコニーが付いています。
急な雨でも、洗濯物を外に干したくないという女性にも安心なところがうれしいです。
キッチンは作業台もゆとりのあるスペース。
さらにこのお部屋には冷蔵庫が設置されていますし、IHクッキングヒーター付きですので引越してもすぐに自炊をすることができます。
アパート入り口にはオートロック付きで、安心した暮らしの夢がかないます。
ロフト付きの夢見た一人暮らしはこのお部屋で始めましょう!
続きを読む
見学したい(無料)新津「Triangle」
静岡県浜松市中央区新津町597-17
/36.36m²
誰もが覚えている公式ですね。
新津町にあるお部屋の専有面積もこの公式を使って求めることが出来る「triangle ROOM」発見です。
部屋は四角じゃなきゃいけないなんて誰が決めたんでしょう?
時には○や△の部屋があったっていいんじゃないか。
部屋の形だけでなく収納やバルコニーまで三角形と、他にはない間取りのお部屋に住んでみるのも面白いかもしれませんね。
続きを読む
見学したい(無料)夢見たロフト生活をここから!
静岡県浜松市中央区新津町597-11
賃料44,000円
共益費/管理費3,000円
1K /34.80m² /2010年4月
ロフトがあるだけでワクワクしちゃいますよね!
洋室は8.14帖の広さ。
ロフトスペースは3帖あります。
ロフトを寝室をして使うのもいいですし、物置として使うのも良しです。
洋室にはクローゼットが完備されているので、荷物はクローゼットに収納しちゃえばお部屋を広々使うことができますよ。
さらにこのお部屋にはインナーバルコニーが付いています。
急な雨でも、洗濯物を外に干したくないという女性にも安心なところがうれしいです。
キッチンは作業台もゆとりのあるスペース。
さらにこのお部屋には冷蔵庫が設置されていますし、IHクッキングヒーター付きですので引越してもすぐに自炊することができます。
アパート入り口には安心のオートロック付きで安心した暮らしの夢がかないます。
ロフト付きの夢見た一人暮らしはこのお部屋で始めましょう!
続きを読む
見学したい(無料)おこもり空間でグッドナイト
静岡県浜松市中央区新津町597-17
1R /33.95m² / 2010年3月
でもやっぱりロフトのあるお部屋って天井高くて、おこもり感のある空間でリラックスできるのって、いいな。
そんな思いにお答えする遠鉄 助信駅徒歩8分の物件をご紹介します。
メインの8帖洋室+インナーバルコニー、収納も2つあり、間取り以上に広く感じられます。
ロフト内に上がるとも天井高が高く、圧迫感を感じません。内部はAC電源はありますが、照明や窓がないのが気がかりなところ。
サニタリースペースに行くとバス・トイレは別。洗面台はシャンプードレッサーにトイレはシャワートイレ。こんな充実していていいのでしょうか!?
助信まで歩いて約7分と駅近なのも魅力!外からの明かりはあまり期待できません。
続きを読む
見学したい(無料)敷金礼金ゼロ!冷蔵庫も洗濯機もレンジも!
静岡県浜松市中央区曳馬5-12-6
/28.00m²
その上、すぐに住めるように家電もついてとっても便利!
洗濯機、冷蔵庫の購入が必要ありません。
急な事情で一人暮らしをしたい方、ピッタリです!
205号室には、電子レンジも!
お部屋の中にインポートバルコニーとして、
洗濯物を干せるスペースがあります。
ロフトに照明のスイッチがあるのもとても便利です。
ロフトを寝室にして、お部屋の照明もロフトからOFFできます!
男性の一人暮らしに最適なお部屋ですよ!
続きを読む
見学したい(無料)JEANS LIFE
静岡県浜松市中央区曳馬5-12-6
/27.84m²
よく使う箇所はその人の動きや癖に合わせて色落ちし、独特の風合いが浮き上がる。日々の一つ一つの動きが積み重なり味となり、同じものは二つとないその風合いに愛着が湧く。
まるで家族やパートナーのよう。
この部屋にはジーンズ調の壁がある。
長く強い絆で繋がった家族を表したかのような住まい。
続きを読む
見学したい(無料)1Kの常識全部無視!
静岡県浜松市中央区曳馬5-12-6
1K /27.84m² /2008年2月
学生や貯金中の方向きのお部屋のイメージ。
しかしこのお部屋は、低家賃はそのままに
さらにオシャレさと実用性を盛り込んじゃいました!
デザイナーズ物件で、外観も室内も一味違ったご様子。
特に壁紙は、和紙のようなクシャっとした質感のもので
大人っぽいシックな家具が似合いそう。
天井が高いので、8帖に感じません。
ロフトもあるので実質2部屋ですね
そしてインナーバルコニーなんてものもあります。
さらに家電3点
電子レンジ、冷蔵庫、洗濯機が付いています
よくお引越しする方は搬入とか大変ですよね~
買わなかった分のお金を他のことに使えるのも嬉しい♪
コンロは2個付きで魚も焼けます
脱衣所もあって独立洗面台まで!
敷金礼金ゼロなので
急なお引越しにおすすめですよ~!
1Kの常識を覆し倒してます
これが大人の1Kだ!
続きを読む
見学したい(無料)HAWAII LIFE
静岡県浜松市中央区曳馬5-12-6
1K /27.84m² /2008年2月
ハワイアンモチーフのクロスや木目が、穏やかで自由な気持ちにさせてくれます。
インテリアも濃いブラウンのもので統一して、サーフボード型のテーブルなんかを置くのも素敵です。
ハワイアンブルーを差し色に、帰るたびに楽しくなるようなお部屋づくりができそうですね。
デザインはもちろん、機能性でもポイントがあるこちらのお部屋。
窓側にはインナーバルコニーがあり、お天気を気にせず洗濯物を干しておくことができます。
観葉植物を並べておくのも素敵です。あたたかな気候をイメージしてモンステラなどのグリーンも似合いそう。
ロフトの下はオープンクローゼットになっています。
ハンガーポール付きなので、丈の長いお洋服もかけて収納できます。
インナーやニットなどの収納用に、衣装ケースを買い足すと便利そうです。
バストイレは別ですが、トイレは洗面所と同室です。
お掃除しやすいというメリットもありますが、気になる場合はこまめに換気をすると良さそうです。
続きを読む
見学したい(無料)オシャレな一人暮らし
静岡県浜松市中央区曳馬5-12-6
1K /27.84m² /2008年2月
このお部屋はオシャレな壁紙に、なんとロフト付き!!
今までの1Kのイメージがガラッと変わりそうです。
8帖の洋室にはロフト、クローゼット、インナーバルコニーが付いています。
8帖なので決して広くはありませんが、一人暮らしには十分な広さです。
ロフトの広さも十分です〇
ロフトとクローゼットで収納バッチリです!
インナーバルコニーを開けるといっぱいの日光を取り入れることができます。
閉じると水色の扉がなんともオシャレです。
洗面台とトイレが一緒になっているため、
トイレ後、ドアノブなどに触れることなく手を洗うことができますよ◎
遠鉄曳馬駅の徒歩圏内にあるこの物件。
通勤にもピッタリです~
続きを読む
見学したい(無料)【店舗/事務所/ガレージ使用可】Great Rooftop
静岡県浜松市中央区中沢町9-11
3LDK /135.33m² /1980年7月
1階が道路に面したガレージになっています。
住宅街ですが、152号線から1本入った場所なので、車も人も通ります。
ヤマハの本社工場も近いですし、この13坪のガレージを使って飲食系の店舗にしたら、良さそう!なんて思ってしまいました。
裏通りでテイクアウトも軽食もできる場所としていかがでしょう?
あとは、ガレージなので、アウトドア系のお店なんかも良いかもしれませんね。
2階をカフェスペースにしたり。。。
2階は、広いLDKで、15帖あります。
3階が洋室と2間続く和室。
・・・間取り図では、3階までだったので、階段がまだあることに驚きました。
急な階段ですが、登ってみると・・・スゴイ!最高です!
真夏の暑さが吹き飛ぶくらいの爽快な風が吹き渡る広すぎる屋上。
近隣に大きな駐車場が借りられたら、全面改装して、
3階を倉庫兼事務所にして、屋上まで含めたお店にしてもいいのでは?!
とまで思うくらい活用していただきたい屋上なんです。
是非、店舗をお考えの方、見に行きましょう!
続きを読む
見学したい(無料)布橋の白亜
静岡県浜松市中央区布橋2-9-24
賃料120,000円
3LDK /83.25m² /2015年2月
賃貸というよりも建売の一軒家のような感覚です。
外観と同様室内は真っ白。
床も鏡面のPタイルで高級感もあり、室内はとても明るいです。
そしてプライベートウッドデッキがリビング続きに。部屋をより開放的に広く見せてくれます。
たっぷりの光を室内に取り込みながら、アウトリビングが生活に彩りを与えてくれそうです。
街中にもそんなに遠くなく、周辺には進学校なども充実しているエリア。
ファミリーの皆様におすすめです。
※画像は前回募集時のものです。現況を優先いたします。
続きを読む
見学したい(無料)育むお家
静岡県浜松市中央区菅原町12-10
/64.50m²
フルリフォームに加えオール電化という嬉しいポイントも押さえ、部屋に入れば広々とした16帖のリビングが出迎えてくれる。
立地と広さを考えれば新築ではなかなか手の届かない家賃もこちらのお部屋でなら可能になるのかもしれません。
こちらのお部屋で押さえておきたいポイントは窓からの景色。
そうJRの高架が見える絶景ポイント。浜松駅にも近いので速度が落ちる場所でもあるのでカメラのシャッターも押しやすい、鉄ちゃんにはたまらない物件というわけです。
音はもちろんありますが、電車もないと困るのでしょうがないと考えると気にならなくなりますよ。笑
敷地内の地下駐車場までは雨の日でも濡れずに玄関まで入れ、地下なので車にもやさしく、真夏のあっつい車内を味わう事もないのは車で普段生活される方にはとっても嬉しいポイントだと思います♪
歩いて街中にも行けるの上にドンキやスーパー等が近くに揃っており生活利便性も高く、パートナーとの暮らしをより良いものにしてくれます。
お酒好きのほろ酔いカップルさんに是非ともおススメの物件です♪
続きを読む
見学したい(無料)【事業用賃貸店舗】個室も可能な大型店舗の居抜き。
静岡県浜松市中央区高丘東4-5-39
/162.00m²
住宅地エリアにあり、近くには、日常使いのスーパーや大型ホームセンターもあるため、このエリア住人の目に止まることは、間違いないでしょう。
1階がメインの店舗スペースで、厨房も広く、設備もいくつか残っています。
以前は、焼肉店だったようで、本格的なコンロなどがあります。
テーブル席4?5、座敷席にテーブル2つは置けます。
お一人様向けには、カウンター席も4,5席は、設けられそうです。
内装の手入れは必要ですが、多国籍、和、居酒屋、中華、ラーメンと多ジャンルに対応できそうなところが大きなポイントですね!
店舗付き住宅での貸し出しとのことですが、2階へ上がると、玄関は、料亭さながらに床の間がお出迎えしてくれますので、こちらは、団体のお客様を受け入れることも可能です。
和室が3部屋、洋室が1部屋、DKもあります。
料理を運ぶエレベーターもありますので、2階もお店として使用していたのでしょう。
工場勤務の方々にゆっくり寛いでもらえる、家族連れで楽しんでもらえる、
そんなお店が想像できます!
365LIFEでは、お店のコンセプト設計から内装デザインまで承っております。
「こんなお店を出店したい!」といったご相談からお話を伺います!
ぜひ、ご相談ください。
内見に行かれるときには、入り口の三角屋根下に蜂が巣を作り始めていますので、
気をつけてくださいね^^;
続きを読む
見学したい(無料)【事業用店舗】高丘の新スポット
静岡県浜松市中央区高丘北1-48-18
/63.00m²
近くの小学校と中学校の中間にある立地は通学路にもなっている住宅街。
中は以前の店舗の設備も全て取り払われたスケルトン状態。
築24年ということもあり、当時のコンクリートの型枠の姿が実にかっこいいんです。
天井も圧巻の3.5mの高さを生かしてなにか出来そう・・。
トイレ・水道・設備もない初期費用が掛かる物件にはなりますが、【スケルトン=自由】だからこそできる自分だけのお店作りが叶う物件だと思います。
周りは学校・大型ホームセンター・病院に囲まれた住宅街・・・
こちらの物件が立地する高丘を含む萩丘エリアは浜松市でも一番人口が多く、7.1万人がお住まいです。これは浜松市の人口の約8%。商圏エリアに広がる顧客が多いことはメリットでしかありませんね。
年代別でみると20代~40代で40.2%と2.8万人いることも魅力のエリアです。
飲食店であれば、19.1坪の店舗スペースに28~30席くらいの席数を確保できそう。満席率を7割、回転率を1.5、客単価を3,500円とすると1日の客数は約30名程度と想定され、日当たりの売上は約10万円となります。
専用の駐車場6台あれば十分な規模。
あなたならこの空間をどう使いますか?
365LIFEでは賃貸仲介とともに、お店のコンセプト作りから内装デザインまで一貫して承っております。
掲載以外の物件もお取り扱いできますので、まずは事業内容をお聞かせください!
続きを読む
見学したい(無料)水周りが平成仕様の昭和レトロ。
静岡県浜松市中央区高丘東5-26-61
/57.00m²
こちらのお部屋は、水周りが新しくキレイです。
カラカラと音を立てて開く玄関扉や窓は、実は防犯にもなるのだと気づいたり、
窓の模様も当時のままのレトロ感。
ドアの高さは、175cmと背の高い人はくぐらないとぶつけてしまいそう。
こんな昭和なお部屋が、水周りだけは、平成なのです。
シャワー付きトイレ、追い炊きのお風呂、シャンプードレッサーなど、これは、安心材料ですね。
続きを読む
見学したい(無料)梁が活きるロフトステージ
静岡県浜松市中央区葵西6-23-48
/32.03m²
2階のお部屋に上がる階段は1階の玄関開けたところにあります。
なんと言っても特徴はロフト。簡易的なロフトではなくフローリングが張られ、採光窓、照明、AC電源(1個)があります。高さは約130cmとそれほど高くはありません。
そして目線にある木製の梁が美しい!まるでコテージの様な雰囲気を醸し出します。ファン付きのライトが付けられればなおオシャレですが、残念ながら配管がありません。その変わりライティングレールで演出できます!
12.3帖の洋室はほぼリビングダイニングとして機能。その代りキッチンスペースが少し狭いかな・・・
続きを読む
見学したい(無料)男性専用こだわりの秘密基地
静岡県浜松市中央区葵西6-23-48
/26.00m²
こちらのM・ステージ、外観は、まるで美容室や海岸沿いにあるサーフショップのよう。
4戸がこの1棟にどのように造られているのか、不思議に思いながら、お部屋へIN!
お部屋は、小さなロフト風2段ベッド的な造りになっています!
ロフトほど高い場所ではなく、2段ベッドほど狭くもなく、なんとも面白いスペースの使い方です。
ベッドスペースと表記された場所は、奥行き90cm、幅210cm、高さ110cmです。
2段ベッドよりは、高さがあるかなくらいの広さです。
身長の高い男の人でも寝ることはできそうです。
確かに部屋にベッドを置くより、部屋を広く使えますね!
更に、キッチンを見てみると、2段階段を下がった場所に造られています。
電子レンジ、冷蔵庫も完備されて、すぐにでも使える状態です。
電子レンジがあるのにガスコンロはありませんでしたが・・・^^;
洗面所には、洗濯機もあり、トイレと洗面台が並んでいます。
この広さでお風呂が別というのも嬉しいですね。
小さいですが、ウッドデッキもあるので、ちょっとした家庭菜園なんかもできそうです。
まるで秘密基地のようにコンパクトにまとまった機能、その上ちょっとしたデザインにもこだわりがあって、ワクワクなお部屋です!
続きを読む
見学したい(無料)【事業用店舗】ロマン溢れるカフェ居ぬきはいかが?
静岡県浜松市中央区板屋町522
/107.04m² /2005年3月
周辺には合同庁舎、税理士、法律事務所や静岡文化芸術大学が近くにあるオフィス街。
浜松駅から徒歩10分にある立地で、駅から徒歩通勤・通学や合同庁舎などに行く人々の通り道となっている好立地。
もともとカフェ(喫茶店?)だったこの店舗は天井が3mあるのでホテルのロビーのような高級感があり、開放感のある空間にもなります。
オフィス街なので打合せとしての集客も見込めそう。
また、マダムたちの集うカフェ空間もよさそうです。
駐車場は5台ありますので街中のスペースでもお車での来客も受け入れられるのがいいですね。
重厚感のある建物外観、綺麗に整備された全面道路
に合わせた雰囲気漂う大人の居場所を作りませんか?
365LIFEでは賃貸仲介とともに、お店のコンセプト作りから内装デザインまで一貫して承っております。
掲載以外の物件もお取り扱いできますので、まずは事業内容をお聞かせください!
※内装は2016年11月当時のものです。
続きを読む
見学したい(無料)【賃貸事業用事務所】アクト通り沿いに事業所を
静岡県浜松市中央区中央1-17-22
/56.00m²
5階建ての4階、4階のフロアには、2つのお部屋がありますが、こちらは、東側のお部屋になります。
入り口は、駐車場内のエレベーターホールから上がります。
重厚感のある佇まいのビルと雰囲気がマッチする業種がいいかもしれませんね。
士業系などもオススメです。
整備されたアクト通りに面しているので、通勤に自転車やランニングも楽しめそう。
続きを読む
見学したい(無料)【賃貸事業用事務所】街中オフィスライフ
静岡県浜松市中央区中央1-17-22
/113.00m²
合同庁舎から近く、駅近くにも関わらず閑静な落ち着いたオフィス街に佇むオフィスビル。
浜松駅から徒歩10分といった街中オフィスライフが可能な立地。
約14m?6.5mの広い空間の1室ですが、OAシステムが十分に配置&分電されているので、ワークスペースを分けてゾーニングするのも可能です。
室内は重厚な外観から通ずる格子の窓が海外のビルの様。観葉植物なんか置いたら一気にオシャレに。
床も新品のように綺麗で木目調になっており、固いイメージになりがちのオフィスでも暖かい空間になりそうです。
ワークスペースと分かれている男女別のトイレもお勧めポイント。
タイル貼のトイレも清潔感がありなんかかっこいい。和式の便器がデメリットに感じますが、多数の人々が使用する場所だからこそ清掃しやすい和式便器でもメリットに感じるはずです。
駅に近いということは街中にも近い。お酒を飲んで帰るのにもいい立地。
飲み会好きな社風を目指したい事業者様いかがですか?
続きを読む
見学したい(無料)