浜松エリアのPick up
渋くてカッコいい。レンガ貼りレトロマンションで叶う時短生活
静岡県浜松市中央区高林1-14
価格1,990万円
共益費/管理費14,310円
4LDK /92.70m² /1989年6月
現地に到着した瞬間、総レンガ貼りの外観が放つレトロで重厚な雰囲気に心を奪われました。今の新築にはない、ヴィンテージマンション特有のカッコよさが漂っていて、エントランスに入る前からワクワクさせてくれます。でも、この物件の本当にすごいところは、玄関のドアを開けた先にありました。
なんと、玄関から直接パントリールームに入れる間取りになっているんです。スーパーで重たいお米やペットボトルを買っても、リビングを通らずにそのままパントリーへ直行し、そこからキッチンへと抜けられます。これ、私たち主婦が一番欲しい動線ではないでしょうか。しかも現地で確認したところ、洗濯機置き場もこのパントリースペースに集約されていました。料理をしながら洗濯を回し、乾いた服を畳むといった家事の一連の流れがここだけで完結しそうで、忙しい毎日の最強の味方になってくれるはずです。
専有面積は90平米超えの4LDKと、マンションではなかなか出会えないゆとりの広さです。部屋数も十分にあるので、子供部屋もしっかり確保できます。角部屋のような配置で窓が多く、北側の窓からは山の緑が借景として美しく切り取られていました。家事をふと休んだ時に見える緑は本当に癒やしです。一方でリビングのある南側は陽当たりが良く、ポカポカと明るい空間。さらに嬉しいのが、あの大人気のスーパー銭湯「湯風景しおり」が徒歩圏内にあることです。広いお風呂に入りたいなと思ったらすぐに行ける贅沢、これはこの立地ならではの特権です。
正直なところ、小学校や中学校までは少し距離があります。お子様の足だと毎日の登下校が少し大変に感じるかもしれません。ただ、このエリアは歩道もしっかりしていますし、体力がつく通学路と捉えることもできます。また、築年数は経過していますが、新耐震基準の時期の建物ですし、配管まで含めたフルリノベーションが施されているので中身は新築同様です。駅からの距離や学校の遠さを差し引いても、この「家事動線の良さ」と「圧倒的な広さ」、そして「レンガ造りの雰囲気」は、他には代えがたい魅力だと感じました。
なんと、玄関から直接パントリールームに入れる間取りになっているんです。スーパーで重たいお米やペットボトルを買っても、リビングを通らずにそのままパントリーへ直行し、そこからキッチンへと抜けられます。これ、私たち主婦が一番欲しい動線ではないでしょうか。しかも現地で確認したところ、洗濯機置き場もこのパントリースペースに集約されていました。料理をしながら洗濯を回し、乾いた服を畳むといった家事の一連の流れがここだけで完結しそうで、忙しい毎日の最強の味方になってくれるはずです。
専有面積は90平米超えの4LDKと、マンションではなかなか出会えないゆとりの広さです。部屋数も十分にあるので、子供部屋もしっかり確保できます。角部屋のような配置で窓が多く、北側の窓からは山の緑が借景として美しく切り取られていました。家事をふと休んだ時に見える緑は本当に癒やしです。一方でリビングのある南側は陽当たりが良く、ポカポカと明るい空間。さらに嬉しいのが、あの大人気のスーパー銭湯「湯風景しおり」が徒歩圏内にあることです。広いお風呂に入りたいなと思ったらすぐに行ける贅沢、これはこの立地ならではの特権です。
正直なところ、小学校や中学校までは少し距離があります。お子様の足だと毎日の登下校が少し大変に感じるかもしれません。ただ、このエリアは歩道もしっかりしていますし、体力がつく通学路と捉えることもできます。また、築年数は経過していますが、新耐震基準の時期の建物ですし、配管まで含めたフルリノベーションが施されているので中身は新築同様です。駅からの距離や学校の遠さを差し引いても、この「家事動線の良さ」と「圧倒的な広さ」、そして「レンガ造りの雰囲気」は、他には代えがたい魅力だと感じました。
続きを読む
見学したい(無料)徒歩4分の湖畔リゾート。愛犬と暮らす、広すぎるテラス
静岡県浜松市中央区佐鳴台5-27-27
価格2,980万円
共益費/管理費16,100円
3LDK /87.93m² /2004年6月
このウッドデッキテラス、思わず深呼吸したくなるほどの開放感でした。
窓を開け放てばリビングと一体になり、まるで戸建ての庭のような感覚で使えます。ここで子供たちとプール遊びをしたり、週末にブランチを楽しんだりする光景がはっきりと目に浮かびました。
さすがは浜松が誇る高級マンションブランド、アートフォルムシリーズ。
重厚感のある外観に負けないくらい、室内もゆとりある設計になっています。特にリビングに入った瞬間の広がりは圧巻で、床暖房が完備されているため、冬の朝でも家族みんなが自然とここに集まってきそうです。
しかも驚いたことに、北側の洋室にも床暖房が入っていました。寒くなりがちな北側の部屋を子供部屋や寝室にしても、足元からポカポカと温かいのは本当に心強いポイントです。
佐鳴湖公園まで歩いてたったの4分という立地も、私たち子育て世代にはたまらない魅力です。
お散歩コースには事欠きませんし、何よりペット飼育可なので、ワンちゃんと一緒に湖畔を歩く優雅な毎日が手に入ります。
家事動線や収納もチェックしましたが、シューズクロークにウォークインクローゼット、さらに廊下にも収納棚があり、片付けが苦手な私でもここならスッキリ暮らせそうだと確信しました。かさばるベビーカーや季節外れの家電も、悩み知らずで収納できそうです。
ただ、プロとして正直にお伝えしなければならない点もあります。
今回は現状渡しとなるため、リフォーム工事が必須です。実際、キッチンの食洗機やビルトインオーブンレンジは故障していました。
でも、これをポジティブに捉えてみてください。誰かが使った古い設備を妥協して使うより、最新の機能が付いた新品を最初から入れられる絶好のチャンスです。自分好みのキッチンに作り変えられると考えれば、リノベーションの打ち合わせすらワクワクする時間に変わるはずです。
駐車場が機械式で、所有権移転後に再抽選となる点は少し手間と不安を感じるかもしれませんが、この立地と建物のグレード、そして何よりこのテラスのある暮らしを考えれば、十分に検討する価値のある物件だと感じました。
窓を開け放てばリビングと一体になり、まるで戸建ての庭のような感覚で使えます。ここで子供たちとプール遊びをしたり、週末にブランチを楽しんだりする光景がはっきりと目に浮かびました。
さすがは浜松が誇る高級マンションブランド、アートフォルムシリーズ。
重厚感のある外観に負けないくらい、室内もゆとりある設計になっています。特にリビングに入った瞬間の広がりは圧巻で、床暖房が完備されているため、冬の朝でも家族みんなが自然とここに集まってきそうです。
しかも驚いたことに、北側の洋室にも床暖房が入っていました。寒くなりがちな北側の部屋を子供部屋や寝室にしても、足元からポカポカと温かいのは本当に心強いポイントです。
佐鳴湖公園まで歩いてたったの4分という立地も、私たち子育て世代にはたまらない魅力です。
お散歩コースには事欠きませんし、何よりペット飼育可なので、ワンちゃんと一緒に湖畔を歩く優雅な毎日が手に入ります。
家事動線や収納もチェックしましたが、シューズクロークにウォークインクローゼット、さらに廊下にも収納棚があり、片付けが苦手な私でもここならスッキリ暮らせそうだと確信しました。かさばるベビーカーや季節外れの家電も、悩み知らずで収納できそうです。
ただ、プロとして正直にお伝えしなければならない点もあります。
今回は現状渡しとなるため、リフォーム工事が必須です。実際、キッチンの食洗機やビルトインオーブンレンジは故障していました。
でも、これをポジティブに捉えてみてください。誰かが使った古い設備を妥協して使うより、最新の機能が付いた新品を最初から入れられる絶好のチャンスです。自分好みのキッチンに作り変えられると考えれば、リノベーションの打ち合わせすらワクワクする時間に変わるはずです。
駐車場が機械式で、所有権移転後に再抽選となる点は少し手間と不安を感じるかもしれませんが、この立地と建物のグレード、そして何よりこのテラスのある暮らしを考えれば、十分に検討する価値のある物件だと感じました。
続きを読む
見学したい(無料)【売買物件】変幻自在な間取りを楽しむ平屋
静岡県掛川市下垂木2116
価格2,980万円
1R /117.52m² /1974年1月
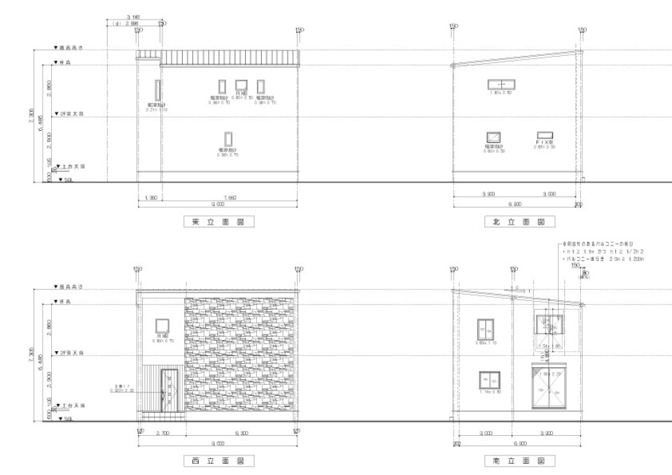
掛川市下垂木の静かな集落に佇む、フルリノベーション平屋住宅のご紹介です。
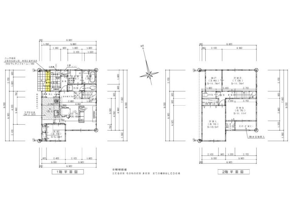
本物件は、117㎡という十分な広さを持ちながら、間仕切りのない“ひとつながり”の空間に生まれ変わった、極めてユニークな住宅です。
23帖のLDKを中心に、12帖、14帖、9帖の空間が壁なく連続し、すべてがワンルームとしてデザインされています。
小屋裏を見せることで実現した天井の高さと、南側の掃き出し窓から草原を望む眺望は、まるでアートのような開放感を演出。
暮らす人の感性に寄り添う、極めて自由度の高い空間構成となっています。
浴室にもあえて壁は設けず、カーテンによる緩やかな仕切りでプライバシーを担保。
日常の枠を取り払うような大胆な設計が、住まいに“余白”をもたらし、暮らしの可能性を大きく広げています。
建築的にも大きな改修が施されており、屋根は瓦からガルバリウム鋼板へと張り替えられ、外断熱仕様に。
床下断熱も施工されており、断熱性を確保しながら、天井のない大空間を快適に保つ工夫がなされています。
キッチンはシンプルでミニマル。
そのままでは収納スペースが限られるため、ご自身で棚や収納家具を組み合わせることで、よりパーソナルな空間へとカスタマイズが可能です。
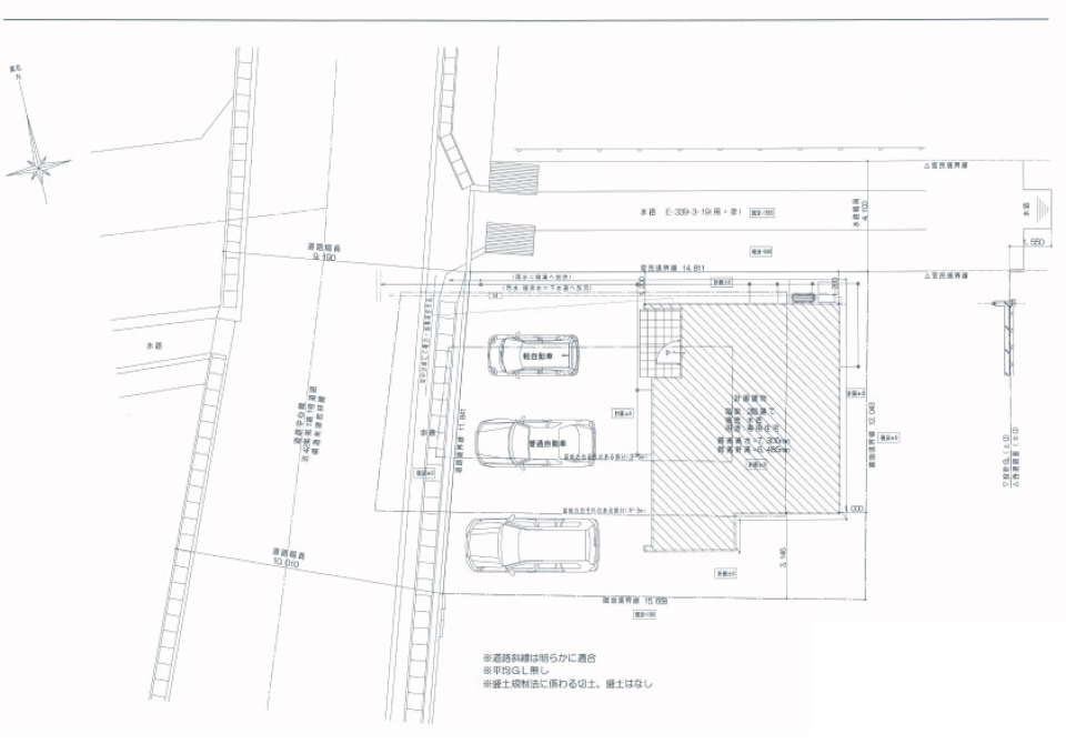
かつて農家だった名残として、コンクリート土間の納屋スペースも付帯。
ガレージハウスやワークスペースとしての活用も期待できるポテンシャルを秘めています。
ただし、シャッターは旧式のため、交換が必要となります。
建物外壁には杉板が使用されており、現在は無塗装。
お好きなカラーで塗装することで、外観に個性を加えることができます。
また、かつてのまま残されたブリキの波板もあり、懐かしさと素朴さが共存する独特の美しさを感じさせます。
■デメリット・注意点
本物件には魅力と同時に、いくつかの明確な制約も存在します。
アクセス道路が狭く、車での出入りには慣れが必要です。
家族向け住宅として利用する場合は、壁や扉などの間仕切り工事が別途必要となり、追加のコストが発生します。
建物自体が築古のため、耐震性は現在の基準と比べると劣ります。
空間が広いため、空調効率の確保には工夫が求められます。
現状、エアコン用コンセントは5箇所に設置されていますが、200V電源は1箇所のみとなっています。
屋根がガルバリウム鋼板のため、雨天時には雨音が響きやすく、静音性を求める方には注意が必要です。
■おすすめの活用方法
通常の住まいとしての利用はもちろん、アトリエやスタジオ、シェアスペース、または民泊事業など、多用途に活用可能な本物件。
近年ニーズが高まっている「自然に囲まれた非日常空間」としてのセカンドハウスや、長期滞在型の宿泊施設としても魅力を発揮します。
併設されている農地を活かして、家庭菜園や小規模な自給農的ライフスタイルを取り入れることも可能です。
本物件は、117㎡という十分な広さを持ちながら、間仕切りのない“ひとつながり”の空間に生まれ変わった、極めてユニークな住宅です。
23帖のLDKを中心に、12帖、14帖、9帖の空間が壁なく連続し、すべてがワンルームとしてデザインされています。
小屋裏を見せることで実現した天井の高さと、南側の掃き出し窓から草原を望む眺望は、まるでアートのような開放感を演出。
暮らす人の感性に寄り添う、極めて自由度の高い空間構成となっています。
浴室にもあえて壁は設けず、カーテンによる緩やかな仕切りでプライバシーを担保。
日常の枠を取り払うような大胆な設計が、住まいに“余白”をもたらし、暮らしの可能性を大きく広げています。
建築的にも大きな改修が施されており、屋根は瓦からガルバリウム鋼板へと張り替えられ、外断熱仕様に。
床下断熱も施工されており、断熱性を確保しながら、天井のない大空間を快適に保つ工夫がなされています。
キッチンはシンプルでミニマル。
そのままでは収納スペースが限られるため、ご自身で棚や収納家具を組み合わせることで、よりパーソナルな空間へとカスタマイズが可能です。
かつて農家だった名残として、コンクリート土間の納屋スペースも付帯。
ガレージハウスやワークスペースとしての活用も期待できるポテンシャルを秘めています。
ただし、シャッターは旧式のため、交換が必要となります。
建物外壁には杉板が使用されており、現在は無塗装。
お好きなカラーで塗装することで、外観に個性を加えることができます。
また、かつてのまま残されたブリキの波板もあり、懐かしさと素朴さが共存する独特の美しさを感じさせます。
■デメリット・注意点
本物件には魅力と同時に、いくつかの明確な制約も存在します。
アクセス道路が狭く、車での出入りには慣れが必要です。
家族向け住宅として利用する場合は、壁や扉などの間仕切り工事が別途必要となり、追加のコストが発生します。
建物自体が築古のため、耐震性は現在の基準と比べると劣ります。
空間が広いため、空調効率の確保には工夫が求められます。
現状、エアコン用コンセントは5箇所に設置されていますが、200V電源は1箇所のみとなっています。
屋根がガルバリウム鋼板のため、雨天時には雨音が響きやすく、静音性を求める方には注意が必要です。
■おすすめの活用方法
通常の住まいとしての利用はもちろん、アトリエやスタジオ、シェアスペース、または民泊事業など、多用途に活用可能な本物件。
近年ニーズが高まっている「自然に囲まれた非日常空間」としてのセカンドハウスや、長期滞在型の宿泊施設としても魅力を発揮します。
併設されている農地を活かして、家庭菜園や小規模な自給農的ライフスタイルを取り入れることも可能です。
続きを読む
見学したい(無料)【売買物件】子供の宿題、大人の仕事。
静岡県浜松市南区東若林町710-50
価格3,130万円
3SLDK /103.24m² /2023年7月
子育てファミリーのための最適な住まい、浜松の魅力的な住宅をご紹介!
お子様の学びと遊び、親のリラックスと仕事、全てを叶える家、それがこちらの物件です。
浜松駅から車で12分。都心へのアクセス良好ながら、閑静な住宅街で安心の子育て環境を実現。
3LDKの快適な空間は、日々の家族の時間を大切にするために設計されました。
3帖のウォークインクローゼットや各洋室のクローゼットで、家族の服や物を整理整頓。
季節の変わり目に活躍する小屋裏収納も完備。
そしてリビングに設けられた「作業用カウンター」は、子供たちの学びの場として、また親のワークスペースとしても活用可能。
同じリビングには隠し収納スペースもあるので、おもちゃや日用品をスマートに収納できます。
システムバスは「お手入れラクラク」で浴室暖房乾燥機付きの一坪サイズ。
システムキッチンには食洗機を完備し、家事をサポート。キッチンから洗面所へ抜ける動線も家事をスマートにこなすためにデザインされています。
また、玄関ポーチに設置された宅配ボックスで、留守中の荷物受取も安心。家全体はオール電化で、安全かつ効率的に生活できます。
安心と快適を追求したこの家には、停電時も家族を守る「災害用電源供給システム」、健康を考慮した「エアーウォッシュフローリング」、高断熱窓と吹付ウレタンの高気密高断熱仕様が採用されています。さらに「省令準耐火構造」により、火災保険の料金もお得に!
外壁は人気のサイディング仕様で、洗練された外観が魅力です。
子供の成長を見守りながら、家族全員が快適に過ごせるこの家。新しい家族の物語を、こちらで始めませんか?
お子様の学びと遊び、親のリラックスと仕事、全てを叶える家、それがこちらの物件です。
浜松駅から車で12分。都心へのアクセス良好ながら、閑静な住宅街で安心の子育て環境を実現。
3LDKの快適な空間は、日々の家族の時間を大切にするために設計されました。
3帖のウォークインクローゼットや各洋室のクローゼットで、家族の服や物を整理整頓。
季節の変わり目に活躍する小屋裏収納も完備。
そしてリビングに設けられた「作業用カウンター」は、子供たちの学びの場として、また親のワークスペースとしても活用可能。
同じリビングには隠し収納スペースもあるので、おもちゃや日用品をスマートに収納できます。
システムバスは「お手入れラクラク」で浴室暖房乾燥機付きの一坪サイズ。
システムキッチンには食洗機を完備し、家事をサポート。キッチンから洗面所へ抜ける動線も家事をスマートにこなすためにデザインされています。
また、玄関ポーチに設置された宅配ボックスで、留守中の荷物受取も安心。家全体はオール電化で、安全かつ効率的に生活できます。
安心と快適を追求したこの家には、停電時も家族を守る「災害用電源供給システム」、健康を考慮した「エアーウォッシュフローリング」、高断熱窓と吹付ウレタンの高気密高断熱仕様が採用されています。さらに「省令準耐火構造」により、火災保険の料金もお得に!
外壁は人気のサイディング仕様で、洗練された外観が魅力です。
子供の成長を見守りながら、家族全員が快適に過ごせるこの家。新しい家族の物語を、こちらで始めませんか?
続きを読む
見学したい(無料)【売買物件】田舎暮らし、浜名湖徒歩50m
静岡県浜松市西区古人見町3033
価格1,490万円
4R /149.85m² /1983年4月
ここは浜松市西区の浜名湖畔にある古人見という町。
浜松近郊にある田舎といっていいのどかな場所です。今回売却に出たのが、この物件なのですが、建物としては昭和58年の築なのでほぼ40年近く経っておりかなり古さを感じますが、この立地は捨てがたい。
なんと浜名湖まで徒歩50mという距離に建っております。徒歩でサクサク歩いて行くと、ちょっとした土手を上がり、そこから鉄梯子で下ります。そこに広がる眺望はまさしくレイクビュー!
ここからボートやSUPなどで湖に繰り出すことを考えたらこの付加価値は捨てがたい。
湖岸からははぜやせいごなどの小魚や車エビなどが取れるようです。もう少し沖に出ればコチなんかも取れるとのこと。釣り好きにはたまりませんね。
お庭にはいくつかの木が生えており、下草も生えております。ナチュラルフォレストガーデンのような感じが素敵ですが、だいぶ生い茂ってきているので多少選定も必要な状況です。
建物は古いため、このまま住むというよりは改装を前提として考えないといけないのが少しネックです。
また接道が幅員3.5m強しかありませんので、建て替え時に若干のセットバックが必要です。
田舎だけどイオンモール志都呂も5kmほどの距離だし、住んでいて不便はあまり感じないのではないでしょうか。
ただ、就学時をお持ちのご家庭では、近くの小学校も基本的にバスで行かなければいけない距離だそうで、その辺がネックかな。
第二の人生の移住先とかでも是非ご検討ください!
浜松近郊にある田舎といっていいのどかな場所です。今回売却に出たのが、この物件なのですが、建物としては昭和58年の築なのでほぼ40年近く経っておりかなり古さを感じますが、この立地は捨てがたい。
なんと浜名湖まで徒歩50mという距離に建っております。徒歩でサクサク歩いて行くと、ちょっとした土手を上がり、そこから鉄梯子で下ります。そこに広がる眺望はまさしくレイクビュー!
ここからボートやSUPなどで湖に繰り出すことを考えたらこの付加価値は捨てがたい。
湖岸からははぜやせいごなどの小魚や車エビなどが取れるようです。もう少し沖に出ればコチなんかも取れるとのこと。釣り好きにはたまりませんね。
お庭にはいくつかの木が生えており、下草も生えております。ナチュラルフォレストガーデンのような感じが素敵ですが、だいぶ生い茂ってきているので多少選定も必要な状況です。
建物は古いため、このまま住むというよりは改装を前提として考えないといけないのが少しネックです。
また接道が幅員3.5m強しかありませんので、建て替え時に若干のセットバックが必要です。
田舎だけどイオンモール志都呂も5kmほどの距離だし、住んでいて不便はあまり感じないのではないでしょうか。
ただ、就学時をお持ちのご家庭では、近くの小学校も基本的にバスで行かなければいけない距離だそうで、その辺がネックかな。
第二の人生の移住先とかでも是非ご検討ください!
続きを読む
見学したい(無料)