閲覧履歴

お気に入り物件

お気に入り物件は会員登録すると使用できます。
未ログインの場合はログインして再度お試しください。

ログイン

保存した検索条件

保存した検索条件は会員登録すると使用できます。
未ログインの場合はログインして再度お試しください。

ログイン

賃貸物件を探す

売買物件を探す

店舗・事務所を探す

賃貸物件を見る

売買物件を見る

新築/築浅

安定の、いい暮らし

26万円
13万円

静岡県浜松市中央区上島4-11-10

賃料130,000円

3LDK /83.25m² /2023年01月

上島駅から徒歩10分!!
落ち着いた街並みの中に佇むこちらの住まいは、スタイリッシュな空間づくりと、毎日の暮らしやすさをどちらも大切にした一室。

1階のLDKは15.5帖。
対面式のシステムキッチンを中心に、家族との会話が自然と生まれる開放的な空間になっています。

存在感のある真っ赤なキッチンは、このお部屋の主役。
3口ガスコンロや魚焼きグリルも備わっており、料理の時間まで楽しくしてくれそうです。

そして、リビングの先には憧れのウッドデッキ。
晴れた日は洗濯物を干したり、椅子を置いてのんびり過ごしたり。
“外とつながる暮らし”を気軽に楽しめます。

2階には、7.2帖・6.4帖・4.7帖の洋室を配置。
全室にクローゼット付きで収納力も充実しています。
中でも7.2帖のメインルームは、ゆったりとした広さが魅力です。

また、ギザギザとしたデザイン階段が空間のアクセントに。
シンプルすぎない、ちょっと遊び心のある雰囲気もこの物件ならでは。

浴室には追い焚き機能と浴室乾燥機を完備。
さらに、シャワー付き洗面台や温水洗浄便座など、水回り設備も快適仕様です。

玄関スペースは広々としており、宅配ボックスも設置済み。
さらにEV車充電器まで備わっていて、これからの暮らしにも自然にフィットします。

そして嬉しいポイントが、駐車場3台分無料!
ただ注意点をお伝えすると、A・B棟が手前にあり、C棟が奥側なので駐車が少し難しいかも?
特に大きな車がバックで駐車するのは要注意です。
是非現地で確認してみてください…!

続きを読む

見学したい(無料)

気づいたら、家時間が増えていた。

13.8万円
6.9万円

静岡県浜松市浜名区小松1003

賃料69,000円  
共益費/管理費3,000円

1LDK /42.00m² /2024年1月

遠州鉄道「遠州小松駅」から徒歩10分!
2024年1月に誕生した築浅マンションに、待望の空き予定が出ました!

入居したその日から無料で利用できる高速Wi-Fiに加え、最先端のAI顔認証オートロックを完備。
防犯性と利便性を兼ね備え、一人暮らしの方はもちろん、カップルにも安心して暮らしていただける住まいです。

室内はグレーを基調とした洗練されたデザイン。
スタイリッシュなキッチンは、どんなインテリアにも自然に馴染み、3口コンロとグリル付きで料理好きの方にも満足いただける仕様となっています◎

LDKと5.5帖の洋室は引き戸で仕切られており、開放すれば広々とした一体空間に。
ライフスタイルに合わせて自由に使い分けができ、心地よい開放感を演出します。
また、大型のシューズインクローゼットや可動式収納棚も備わっており、荷物が多い方でもすっきりとした空間を保てます。

さらに、追い焚き機能付きバス、温水洗浄便座、三面鏡付き独立洗面台など、暮らしを快適にする設備も充実。
宅配ボックスも完備されているため、不在時の荷物受け取りもスムーズです!

南向きならではの明るい陽射しが差し込む室内と、開放感のあるバルコニーの眺め。
毎日の暮らしに心地よさと上質さを与えてくれる、そんな一室です!

お問い合わせお待ちしております!

続きを読む

見学したい(無料)

遊び尽くす「ガレージハウス」!!

25万円
12.5万円

静岡県浜松市中央区大蒲町94-12

賃料125,000円  
共益費/管理費5,000円

2LDK /98.79m² /2026年6月

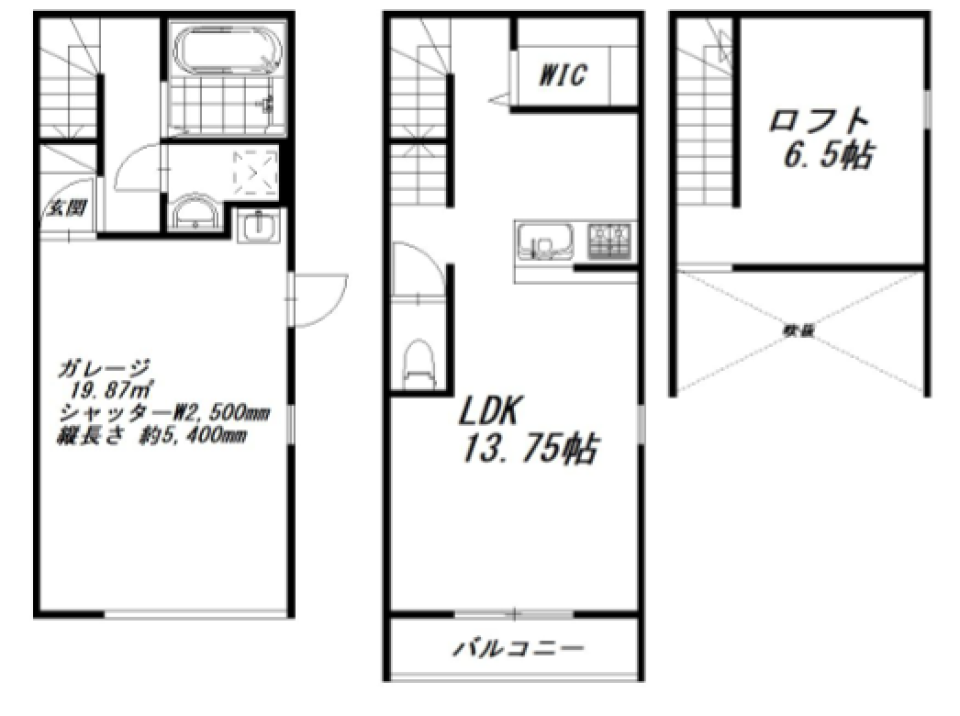
こちらの新築ガレージハウスは、デザインと実用性が高い次元で融合した、まさに「大人の隠れ家」と呼ぶにふさわしい住まいです !!
モノトーンで統一された飽きのこないスタイリッシュな外観に包まれたこの物件は、6棟中ラスト1棟という人気ぶりからもその希少さが伺えます。

最大の特徴であるガレージは、ミニクーパーを格納しても周囲にゆとりが生まれる圧倒的な開放感を誇り、奥行きは609cm(外水栓付近でも564cm)を確保しています。
内部にはEV充電器や、メンテナンスに欠かせない外水栓が完備されており、車のみならずバイクやアウトドアギアも一括で管理できる理想の空間です。
さらに、玄関から広がるシューズインクローゼットは、趣味の道具をそのまま運び込める便利な動線を実現しています...!!

居住スペースは、1階を趣味のガレージと寝室(6帖洋室+WIC)、2階をLDKと水回りに分けることで、生活感と趣味の時間を鮮やかに切り離せる構成になっています。
2階の14帖におよぶLDKはダウンライトが美しく映えるお洒落な空間で、各部屋の扉に異なる色を採用するといったデザイナーズ物件らしい遊び心が散りばめられています。
水回りも非常にハイテクで、キッチンには3口ガスコンロや食器洗浄乾燥機を搭載し、サニタリーには追い焚き機能や浴室乾燥機を備えるなど、日々の暮らしを支える設備も申し分ありません 。

1階に水回りを置かないという珍しい間取りが、趣味と生活の調和をより一層高めています。
洗練されたデザインの中で自分だけの時間を贅沢に楽しみたい方は、ぜひお早めにこの特別な空間を体感してみてください!!

続きを読む

見学したい(無料)

仕事終わりのご褒美は生クリームたっぷりエクレアで。

無料
6.6万円

静岡県浜松市中央区平田町28

賃料66,000円  
共益費/管理費5,000円

1K /32.43m² /2022年2月

浜松駅から600メートルのこの物件。
すぐです。

駐車場はご用意がないので、徒歩や電車で通勤の方に。
2022年築のまだまだ築浅物件です。

転勤の方や浜松駅周辺でお勤めの方に!早い者勝ちですよ!

続きを読む

見学したい(無料)

袋井の築浅

6.1万円
無料

静岡県袋井市上山梨1600-1

賃料61,000円  
共益費/管理費3,000円

1LDK /45.20m² /2019.03

築浅物件を袋井で発見。

オートロック、追い炊き機能、浴室乾燥機など人気設備が充実の物件とあれば、チェックしないわけにはいきません。
ご紹介いたします!

全体的な内装は、白とブラウンで落ち着いた色合いです。
その中で、キッチンのシンクや浴室、洗面所のパステルブルーが、主張しすぎずかわいらしいアクセントになっています。

13.3帖のLDKには、人気の独立キッチンが存在感を放ちます。
キッチンスペース壁面にはテーブルが備え付けられており、作業スペースにするもよし、電子レンジ等のキッチン備品を置くのもよしです。
洋室前には備え付けの棚が。お気に入りを飾って心地よい空間に。
さすが築浅、水回りの設備はぴかぴかです。

エントランスはオートロックになっており安心。
お仕事等で出かけることが多い方には嬉しい、宅配ボックスも備えています。
近隣にはイオンやコンビニもあり、お買い物には困りません。

綺麗で便利な立地のおうちに住みたい!という方へ、ぜひチェックいただきたいお部屋です。

続きを読む

見学したい(無料)

自分だけの趣味空間を

16.8万円
8.4万円

静岡県浜松市中央区和田町538-6

賃料84,000円  
共益費/管理費2,000円

1LDK /74.88m² /2024年12月

和田町にあるガレージハウス。

浜松バイパスまで車で約5分!天竜川駅まで車で約6分!

どこへ出るにもアクセス抜群なエリアにある貴重なガレージハウスです。

ガレージ内と建物前に車を置けるので、
日常使いと趣味用の車を分けられるのも◎

しかも築浅!
取り合い必須!お急ぎください!!

続きを読む

見学したい(無料)

いっぱい食べる君が好き

12.6万円
無料

静岡県浜松市中央区中野町1005-2-7

賃料63,000円  
共益費/管理費3,000円

1LDK /39.33m² /2024年10月

コンビニで期間限定のお菓子やドリンクを見つけると、ついつい買っちゃうそこのあなたへ。
こんな築浅物件はいかがでしょう?

美味しいものいっぱいため込んで置ける、そんなキッチンスペースが、このお部屋にはあります。

キッチン横のパントリーにはお菓子を。
1階だけの特権・床下収納には、お米や梅酒を隠しておきましょう。
可動式の食器棚に、お気に入りのレンジと炊飯器、トースターをおけば、あら不思議!
ついつい食べちゃう、買い込んじゃう、
そんな、美味しい食べ物たちに囲まれた生活が叶います。

食べ過ぎちゃう...?そんなこと気にしなくていいんです。
かくいう私もそんなあなたの仲間ですから!

食べ過ぎたら天竜川のほとりまでお散歩しましょ!!
帰りがけには近くのバローで新発売のドリンクを買って、生活に楽しみと潤いを。

続きを読む

見学したい(無料)

季節の移り変わり[ペット可]

無料
7.1万円

静岡県浜松市中央区砂山町588-2

賃料71,000円  
共益費/管理費5,000円

1LDK /37.08m² /2024年2月

今回は、浜松駅徒歩7分の好立地に誕生した築浅物件「スマートレジデンス砂山 103」の紹介です。

都会的で洗練された外観が目を引くこのマンションは、2024年築という新しさに加え、防犯面でも非常に優れた機能を備えています。
特に、モニタ付オートロックやTVインターホンが完備されており、一人暮らしや女性の方でも安心して毎日を過ごせるのが大きな魅力です。

LDKは12.8畳と広々としており、3口コンロのシステムキッチンや追い焚き風呂、浴室乾燥機など、分譲クラスの充実した設備が整っています。
さらに、インターネット(コミュファ光)が無料で利用できるため、入居後すぐに快適な通信環境を手に入れられるのも嬉しいポイントです。

1階住戸限定で小型犬または猫1匹までの飼育が可能となっており、大切なペットと一緒に新生活をスタートさせることもできます。
宅配ボックスや敷地内ゴミ置き場など、忙しい現代人のライフスタイルに寄り添った共用設備も非常に充実しています。

駅近でありながら、最新の設備とセキュリティに守られた上質な空間での暮らしは、日々の活力を養ってくれるはずです。
利便性と安心感を両立させたこのお部屋で、あなたらしい新生活を始めてみませんか?

続きを読む

見学したい(無料)

だから雨が怖くない

無料
無料

静岡県浜松市中央区河輪町777

賃料62,000円  
共益費/管理費3,000円

1LDK /39.07m² /2026年3月

1階ならではの身軽さと、機能性の高さが魅力!
階段移動の負担が少なく、日々の出入りや荷物の持ち運びもスムーズに行える、スマートな暮らしが叶う住まいです。

さらに、天候に左右されにくい設備が整っている点もポイント。
インナーバルコニーを備えているため、急な雨でも安心して洗濯物を干すことができ、外出中の天気の変化にも柔軟に対応できます。

加えて浴室乾燥機も設置されており、雨の日や花粉の季節でも室内で洗濯物をしっかり乾かせる環境が整っています。天候を気にせず過ごせることで、毎日の暮らしにゆとりが生まれます。

室内は2026年3月完成の新築で、白を基調とした清潔感のあるデザイン。
明るくすっきりとした空間は、家具やインテリアの色味を選ばず、自分らしいコーディネートを楽しみやすい仕様です。

キッチンは収納力にも配慮されており、背面スペースも活用することで調理家電やストック品を整理しやすく、使い勝手の良いキッチンスペースとなっています。

間取りは1LDK(洋室5帖・LDK9帖)、専有面積は39.07㎡。単身でもゆとりを持って暮らしやすいサイズ感で、ライフスタイルに合わせた空間づくりが可能です。

お問い合わせお待ちしております!!

続きを読む

見学したい(無料)

純粋むく。

無料
無料

静岡県浜松市中央区河輪町777

賃料62,000円  
共益費/管理費3,000円

1LDK /39.07m² /2026年3月

1階ならではの身軽さと、機能性の高さが魅力!
階段移動の負担が少なく、日々の出入りや荷物の持ち運びもスムーズに行える、スマートな暮らしが叶う住まいです。

さらに、天候に左右されにくい設備が整っている点もポイント。
インナーバルコニーを備えているため、急な雨でも安心して洗濯物を干すことができ、外出中の天気の変化にも柔軟に対応できます。

加えて浴室乾燥機も設置されており、雨の日や花粉の季節でも室内で洗濯物をしっかり乾かせる環境が整っています。天候を気にせず過ごせることで、毎日の暮らしにゆとりが生まれます。

室内は2026年3月完成の新築で、白を基調とした清潔感のあるデザイン。
明るくすっきりとした空間は、家具やインテリアの色味を選ばず、自分らしいコーディネートを楽しみやすい仕様です。

キッチンは収納力にも配慮されており、背面スペースも活用することで調理家電やストック品を整理しやすく、使い勝手の良いキッチンスペースとなっています。

間取りは1LDK(洋室5帖・LDK9帖)、専有面積は39.07㎡。単身でもゆとりを持って暮らしやすいサイズ感で、ライフスタイルに合わせた空間づくりが可能です。

お問い合わせお待ちしております!!

続きを読む

見学したい(無料)

センスが際立つ時間

無料
無料

静岡県浜松市中央区河輪町777

賃料63,000円  
共益費/管理費3,000円

1LDK /45.75m² /2026年3月

2026年3月に完成したばかりの新しい物件で、室内はホワイトを基調とした明るくすっきりとしたデザインが印象的です。

余白のあるシンプルな空間だからこそ、家具や雑貨、観葉植物なども自然になじみやすく、自分らしいインテリアコーディネートを楽しめる住まいとなっています。

間取りは1LDK(洋室5帖・LDK9帖)、専有面積は45.75㎡。単身でもカップルでもゆとりをもって過ごしやすいサイズ感で、レイアウト次第でくつろぎスペースやワークスペースなど、ライフスタイルに合わせた空間づくりも可能です。

キッチンまわりは収納がしっかり確保されており、背面収納も備わっているため、調理器具や食器類を整理しながら使いやすい設計です。日々の調理もスムーズに行いやすい仕様となっています。

立地は天竜川停車場線からほど近く、日常の生活動線もイメージしやすい環境です。

シンプルで整った住空間だからこそ、住む方のセンスや暮らし方がより引き立つ、そんな“余白のある住まい”です。

お問い合わせお待ちしております。

続きを読む

見学したい(無料)

白からはじまる、しあわせ計画!

無料
無料

静岡県浜松市中央区河輪町777

賃料63,000円  
共益費/管理費3,000円

1LDK /45.75m² /2026年3月

自分らしい空間づくりを楽しみたい方に向いた、シンプルで清潔感のある住まいです!!

2026年3月に完成した新しい物件で、室内はホワイトを基調とした明るいデザインが印象的です。
壁や床のトーンがすっきりと整えられているため、家具や雑貨、観葉植物なども自然に馴染みやすく、インテリアのコーディネートを楽しみやすい空間となっています。

キッチン周りは収納スペースがしっかりと確保されており、背面収納も備わっているため、調理器具や食器類などを整理しながら使うことができます。
日々の料理をスムーズに行いたい方にとっても、使い勝手の良さを感じられるつくりです◎

間取りは1LDK(洋室5帖・LDK9帖)で、専有面積は45.75㎡と、ひとり暮らしや二人暮らしでもゆとりを持って過ごせるサイズ感です。
空間の使い方次第で、くつろぎの場やワークスペースなど、ライフスタイルに合わせたレイアウトも楽しめます。

立地は天竜川停車場線からほど近く、周辺環境も含めて日常の生活動線を考えやすいポジションです。
シンプルな白をベースにした室内だからこそ、住む人の工夫やセンスが自然と引き立つ、そんな“余白のある住まい”です。

お問い合わせお待ちしております!!

続きを読む

見学したい(無料)

新しい暮らしのスタンダード

無料
6.4万円

静岡県磐田市国府台31-5

賃料64,000円  
共益費/管理費3,000円

1LDK /40.85m² /2021年9月

こちらの物件は磐田市国府台の閑静な町に建つマンションの中の1室になります!

ハイグレードマンションを冠する程に充実した設備が魅力です!
オートロックに宅配ボックス、ネット使用料無料・・・ect
お仕事や学校で毎日忙しく過ごすあなたの1人暮らしをきっと手助けしてくれるお家になってくれる事間違いなしです!もちろんカップルでのご入居も!

築浅のお部屋の良さでもありますが、水回りがピカピカなのはやはり嬉しいポイントです♪
オートロックや三面鏡など女性の方にも嬉しいポイントが多いのも良いですね!

ICや駅の中心に位置する通勤に便利な場所で生活利便性も良い町である国府台で、オートロックの充実設備という女性の一人暮らしにも心強いお部屋です♪

続きを読む

見学したい(無料)

ガレージハウスに生まれ変わりました。

8.8万円
8.8万円

静岡県浜松市中央区白羽町338-5

賃料88,000円  
共益費/管理費5,000円

1LDK /78.12m² /2023年2月

南区白羽町、遠州浜からほど近いこの場所に、待望のガレージが誕生です!
元々は6戸タイプの古いアパートだったようで、見事に生まれ変わりました。
日々増え続けるガレージ物件の需要に、浜松市にも着々とガレージ物件が増え始めております。

完成は2023年2月。

駐車場はガレージ内に1台のみとなりますが、SECOM完備、追い焚き、洋室乾燥と充実の設備。
エアコンは嬉しい2台付となります!
すぐ横には杏林堂と、利便性が高いのもgoodなポイント。

数少ないガレージ物件、早い者勝ちですよ!
気になる方は是非お問合せを。

続きを読む

見学したい(無料)

ガレージが味方!自由な一人暮らしの始まりです♪

無料
8.7万円

静岡県浜松市中央区渡瀬町227

賃料87,000円  
共益費/管理費5,000円

1LDK /74.53m² /2020年03月

新生活、新しい一歩をガレージつきのおしゃれな1LDKで始めませんか?これからの素敵な日々が、ここからスタートしますよ!

まず、お部屋の間取りは1LDK。ちょうどいい広さで、自分らしい空間を演出できます。
そして、このお部屋は木造で、心地よい温もりを感じながら、くつろげる空間が広がっています。

周辺施設は充実しており、徒歩圏内にコンビニ、スーパー、ドラッグストア、銀行、郵便局が全て揃っています。
買い物や手続きなどがスムーズに行え、快適な日常生活が送れます。

お料理好きな方には嬉しい3口コンロが付いたキッチンがあり、自分のお気に入りの料理を楽しむことができます。
さらに、お部屋は南向きで、陽当たり良好。明るくて気持ちの良い空間で、毎日が明るく始まります。

そして、何よりも魅力的なのが、ガレージ付き!自分の愛車を守りながら、かっこいいライフスタイルを楽しむことができます。
友達を呼んでワークショップを開いたり、趣味のスペースとして使ったり、アイデア次第で楽しみ方は無限大です。

新しい一人暮らしのスタートに、ガレージつきの素敵な1LDKがピッタリです。
ここでの生活が、自分らしいスタイルを確立する第一歩となるでしょう。気になった方、ぜひ一度足を運んでみてください。
楽しみがたくさん詰まった新しい暮らしを始めましょう!

※画像は管理会社様にご提供いただいたものです。

続きを読む

見学したい(無料)

ぬくもり、ひとりじめ。

無料
6.9万円

静岡県浜松市中央区神田町760-1

賃料69,000円  
共益費/管理費4,000円

1LDK /40.32m² /2024年2月

落ち着いた色合いの内装と充実した設備が魅力の、1LDKのお部屋をご紹介いたします!
単身でゆったりと暮らしたい方はもちろん、新婚やカップルの方にもおすすめできる、機能美あふれる住空間です。

LDKは10.9帖の広さを確保しており、隣接する5.6帖の洋室とは引き戸で仕切られています。扉を開け放てば、ふたつの空間がゆるやかにつながり、より開放感のある大きな一室としてお使いいただけます。
暮らし方に合わせてレイアウトを変えられる、柔軟さも魅力のひとつです。

キッチンには、3口ガスコンロとグリルを備えた本格的なシステムキッチンを採用しました。広めに設けられたカウンターは作業スペースとしても使いやすく、日々の料理はもちろん、少し手の込んだメニューにも挑戦したくなるような設計となっています。

また、収納力の高さもこのお部屋の特長です。
ウォークインクローゼットには衣類や大きなお荷物をすっきりと収めることができ、玄関には容量豊富なシューズボックスをご用意しています。
さらに、洗面スペースや脱衣所もゆとりあるつくりとなっており、日々の動線もスムーズに整えられています。

風通しの良い室内は、一日を通して心地よくお過ごしいただける空間です。
落ち着いたトーンの内装はどのような家具ともなじみやすく、ご自身らしいお部屋づくりをお楽しみいただけます。

ぜひ一度、現地にてこの住み心地をご体感ください!

続きを読む

見学したい(無料)

趣味と快適とギャップの家

27万円
無料

静岡県浜松市中央区馬郡町2232-2

賃料135,000円

2LDK /92.68m² /2025年3月

「駅近」と「ガレージライフ」 今までどちらかを諦めていませんでしたか?
そんな常識を覆す、夢のような物件が舞阪駅の目の前に完成しました!

ここがすごい!推しポイント3選

男心をくすぐる巨大ガレージ 電動シャッターが「ウィーン」と開いた瞬間、テンション上がること間違いなし!
奥行きは約6.0m。
愛車やバイクを雨風から守れるのはもちろん、EV充電設備も完備。
ガレージから直接室内に入れるので、雨の日も濡れずに「ただいま」ができちゃいます。

1階の ガレージの横にある4.8帖の「納戸」。
ここ、ただの収納にするにはもったいない!
リモートワーク部屋にするもよし、キャンプ道具や釣り具を並べてニヤニヤするもよし。
「ガレージ × 趣味部屋」のコンボで、休日の時間の使い方が劇的に変わります。

肝心な内装は白で統一されたスタイリッシュな空間。
階段を登ると13.1帖のスタイリッシュなLDKがお出迎えしてくれます。
真っ白な内装はどんな家具も合いますし、食洗機・IH・浴室乾燥機と設備もフルスペック。
「趣味全開」な1階と、「快適な暮らし」の2階。
このギャップが最高なんです。

さいごに 駅徒歩2分なのに、駐車スペースはなんと3台以上確保可能。
こんなワガママな条件、次はいつ出るかわかりません。
「あ、これ私のための家だ」と思った方、お早めに見に来てください!

続きを読む

見学したい(無料)

艶やかに暮らす、上質2LDK。

無料
8.5万円

静岡県浜松市中央区神立町110-3

賃料85,000円  
共益費/管理費5,000円

2LDK /49.87m² /2026年2月

静岡県浜松市中央区神立町にある、オートロック完備のマンション「リライフ神立 406」の紹介です 。

2026年2月に完成したばかりの築浅物件で、外壁タイル張りの上質な佇まいが目を引きます 。

特に12.2畳ある広々としたLDKは、開放感があってとても心地よい空間です 。
収納面では、洋室に設けられたウォークインクローゼットが非常に便利です 。
衣類や大きな荷物もたっぷり収まるので、お部屋をいつでもすっきりと保てます 。

一方で、3.3畳の洋間は少しコンパクトなサイズ感です 。
ここは寝室というよりも、リモートワーク用の書斎や趣味の部屋として活用するのが良さそうです。

設備も充実しており、ネット使用料が無料で、不在時に助かる宅配ボックスも完備されています 。
さらにバス停まで徒歩3分という近さも、毎日の移動には嬉しいポイントです 。
この新しくて快適な住まいで、あなたらしい毎日を始めてみませんか?

続きを読む

見学したい(無料)

ここがJapanのど真ん中!

無料
無料

静岡県浜松市中央区西伊場町83-1

賃料162,000円

2LDK /65.11m² /2024年3月

自分のお家は自分が主人公!そんな気分に浸って生活したいあなたにぴったりな物件。
東京からも大阪からもアクセス抜群な浜松。
実は、日本地図で見渡してみるとちょうどJAPANのど真ん中!な立地なんです

しかもこの新築貸マンション、免震構造だから長く安心して住めそう。
あなたを守ってくれるあなた専用のお部屋が、ココにあります。
キッチンで好きな音楽でもかけながらお料理してたら、
そのうち「ただいま~」ってかえってくるあの人の足音が聞こえてきそう?!

「何気ない日常に花束を
何気ない景色に額縁を」
ありのままの暮らしを華やかに彩るあなたが主役のお部屋!
ぜひ一度内見してみませんか?

続きを読む

見学したい(無料)

スタイリッシュ3LDK戸建て賃貸

29.6万円
14.8万円

静岡県浜松市中央区佐鳴台3-53-22

賃料148,000円

3LDK /81.25m² /2021年7月

佐鳴台のホワイトストリート沿いの3LDK戸建です!!
スタイリッシュな外観のデザイナーズ賃貸で玄関横にはなんと...!メルセデス純正充電器が設置されています!!(他メーカー車の充電も可能です!)

今回ご紹介のA棟は、B棟と隣接していますが、
隣家との間隔も広く、各棟間のプライバシーに配慮されています。

14帖のLDKはカウンターシステムキッチンがついてます◎
家族の顔を見ながら料理できるのっていいですよね...
LDKから、ウッドデッキへも行くことができます!
ウッドデッキは隣人に洗濯物をみられず、干すことが出来ちゃうのでとても便利です。
DIY作業ができそうなくらい広いので、DIYを趣味にするのもいいかもしれません!

お風呂は、追い焚き・浴室乾燥機付き!しかもTVが見れちゃいます...!
窓からはウッドデッキ眺めることができるので、ウッドデッキに植物やデコレーションライトで飾りつけをして眺めてもいいかも...♪

リビングにある階段を上っていくと、
2階には、6帖と5.5帖と5帖の3部屋の洋室。
それぞれすべてに大きさは違いますがクローゼットがついているので収納には困りません!
また全室エアコンと照明もついています◎

続きを読む

見学したい(無料)

公園が庭

17.6万円
8.8万円

静岡県湖西市新居町中之郷461-8

賃料88,000円  
共益費/管理費2,000円

2LDK /70.80m² /2026.01

目の前に公園があるお家。
遊び盛りのお子様がいるファミリーは最高の立地です。


戸建て風のテラスハウス。
3棟のうちの端っこです。

13.5帖のLDK。
キッチンはワイド210㎝の広々システムカウンターキッチン。
でもなんでかコンロは2口。
その分作業台を広く使えるってもんです。

キッチンには床下収納も備えています。
階段下を利用した奥行き80㎝ 幅110センチの収納もあるので、リビングをスッキリ使うことができそう。

2階は2部屋の洋室。
こういうお家はたいてい5.5帖か6帖くらいなものですが、このお家は9.6帖のビッグな洋室。
南向きにバルコニーがあるお部屋がもう一つ、こちらも6.8帖。

駐車場もゆとりがあって、外水栓もあって、子育てをしやすいお家です。

続きを読む

見学したい(無料)

しっかりしまえて、すっきり暮らす。[新築]

無料
無料

静岡県浜松市中央区佐鳴台1-21-23

賃料148,000円

3LDK /85.08m² /2026年1月

とにかく印象的なのは、計算された収納力と、それを感じさせないすっきりとした空間のバランスです!
しっかりしまえるのに、見た目はあくまでスタイリッシュ。
この“ちょうどいい余裕”が、暮らしやすさにつながっています。

特にキッチン横のパントリーは見逃せないポイント◎
まとめ買い派の方にはかなり頼もしい広さで、食品ストックはもちろん、季節家電までしっかり収まりそうな安心感があります。
生活感を上手に隠しながら、使い勝手もきちんと確保されています。

外観はモノトーンを基調にした落ち着きのあるデザイン。
派手さはないですが、その分長く飽きずに付き合えそうな雰囲気で、帰ってくるたびにちょっと気持ちが引き締まるような印象です。

駐車スペースは普通車と小型車の2台分。
前面道路や周囲の状況によっては、最初は少し慎重に操作する必要がありそうですが、慣れてしまえば大きなストレスにはなりにくそうです。

室内は白・黒・木目のバランスが心地よく、家具のテイストを選びにくいのも魅力。
コーディネート次第で、シンプルにもシックにも振れる柔軟さがあります。
場所によっては隣家との距離感が気になる可能性もありますが、その分、照明やインテリアで雰囲気づくりを楽しめる余白があります。

見た目の良さだけでなく、暮らしやすさもしっかり感じられる物件です!

続きを読む

見学したい(無料)

新たなステージへ、ピカピアオフィス空間

52.8万円
13.2万円

静岡県浜松市中央区神立町110-3

賃料132,000円

/29.11m² /2026年2月

新しい事業の第一歩にふさわしい、2026年2月に誕生したばかりのピカピカな事務所物件の紹介です 。

約8.8帖の室内は、RC造ならではのしっかりとした造りで、1階というアクセスの良さも相まって、お客様を招く拠点としても非常にスマートな印象を与えてくれます 。
全室に照明とエアコンが最初から備わっているため、入居時のコストを抑えてすぐに業務を開始できるのが、経営者目線で嬉しいポイントです 。

夜間の営業が20時頃までという制限があるため、深夜まで稼働するお仕事には向きません 。ですが、その分周囲の環境と調和しながら落ち着いて仕事に打ち込める、静かなオフィス環境が手に入ります。
さらに、この規模の事務所では珍しく駐車場が2台無料で付いてくるため、スタッフ用や自分用として車での移動がメインの方には、まさに「見つけた!」と思える好条件です 。

室内には温水洗浄便座付きのトイレや電気給湯など、コンパクトながらも快適に過ごせる設備が整っています 。
防犯カメラも設置されており、大切な機材や書類を置く場所としての安心感もしっかり確保されています 。

この2台分の駐車場を活かして、どんな風にビジネスを広げていきますか?

続きを読む

見学したい(無料)

庭と一体になる

無料
7.5万円

静岡県浜松市中央区神立町110-3

賃料75,000円  
共益費/管理費5,000円

1LDK /43.40m² /2026年2月

一階のお部屋ならではの特権、専用庭がついた2026年2月築の新しい1LDKの紹介です 。

12.1帖の広々としたLDKは、角住戸の利点を活かした明るく開放感あふれる空間になっています 。
洋室には大型のウォークインクローゼットが備わっているので、お気に入りの服もスッキリと片付き、お部屋を常にモデルルームのような美しさで保てます 。
正直、一階は外からの視線が気になるという方もいらっしゃるかもしれません。ですが、こちらはオートロックや防犯カメラが完備された堅牢な鉄筋コンクリート造で、管理体制もしっかりしているため、プライバシーを守りながら安心して過ごしていただけます 。

また、玄関には靴の脱ぎ履きを助けるサポートチェア、室内には手摺が設置されるなど、あらゆる世代の方が長く快適に暮らせる工夫が随所に散りばめられているのが感動ポイントです 。
IHクッキングヒーターや三面鏡の洗面台、浴室乾燥機といった最新の水回り設備に加え、インターネット使用料が無料なのも、現代の暮らしには欠かせない大きな魅力です 。

バス停「サーラ」から徒歩3分という立地も、毎日の通勤や移動を軽やかにサポートしてくれます 。
自分だけの専用庭でハーブを育てたり、季節の移ろいを感じたりする、そんな丁寧な暮らしをここから始めてみませんか。
このお庭、あなたならどんな風に使ってみたいですか?

続きを読む

見学したい(無料)

"美しい"を形にするとこんな感じ?

無料
7.5万円

静岡県浜松市中央区神立町110-3

賃料75,000円  
共益費/管理費5,000円

1LDK /43.40m² /2026年2月

2026年2月築のフレッシュな1LDKの紹介です 。

12.1帖の広々としたLDKは、角住戸ならではの開放感に溢れ、日々の暮らしを明るく彩ってくれます 。
寝室となる6帖の洋間には、大型のウォークインクローゼットが備わっているため、お気に入りの洋服もスッキリと片付き、お部屋を常にモデルルームのような美しさで保てるのが自慢です 。

駅まではバス利用がメインとなりますが、バス停「サーラ」から徒歩3分と近く、フットワーク軽く活動できる立地です 。
最新のネット無料設備やオートロック、不在時に重宝する宅配BOXといった利便性は、一度味わうと手放せなくなる快適さです 。

さらに、玄関には靴の脱ぎ履きを助けるサポートチェア、室内各所には手摺が設置されるなど、あらゆる世代の方が長く安心して暮らせるバリアフリーへの配慮が感じられる設計です 。
IHクッキングヒーターや三面鏡の洗面化粧台、雨の日でも安心な浴室乾燥機といった最新の水回り設備も、忙しい毎日をスマートにサポートしてくれます 。
RC造の堅牢な造りに加え、防犯カメラも設置されているため、静寂と安心の両方を手に入れたい方にぴったりです 。

2階のお部屋で、心地よい風を感じながら、丁寧で洗練された毎日を始めてみませんか?

続きを読む

見学したい(無料)

車で選ぶ新生活?賃減額特典が個性的すぎる![新築]

無料
6.6万円

静岡県浜松市中央区高丘西2-24-21

賃料66,000円  
共益費/管理費3,000円

1LDK /43.06m² /2026年3月

2026年3月完成のピカピカ新築1LDK!
ここの自慢はなんといっても「超充実のII型カウンターキッチン」!
賃貸ではレアな3口IHコンロで、お料理タイムがもっと楽しく、効率的に。

ネット無料&駐車場1台無料という、お財布に優しい神条件も魅力です。
さらに、軽・小型車なら家賃2,000円OFFというユニークな特典も!

駅からは少し離れますが、その分、設備と広さは超ド級。
車中心の浜松ライフを謳歌したいお二人にぴったりの、贅沢な一室です。

ワンランク上の「質の高い暮らし」、ここから始めてみませんか?

続きを読む

見学したい(無料)

綺麗めコーデ

無料
8.5万円

静岡県浜松市中央区鴨江1-16-16

賃料85,000円  
共益費/管理費3,000円

1LDK /42.28m² /2022年2月

13帖という広々としたLDKには、料理中も会話が弾む対面式のシステムキッチンが備わっています。
3口以上のコンロがあるため、本格的な自炊を楽しみたい方にも最適な環境です。
2022年築という築浅物件ならではの清潔感があり、3階の角部屋という配置が開放的な暮らしを支えます。
バスルームには追い焚き機能や浴室乾燥機、洗面所には三面鏡付洗面化粧台が完備されており、水回りの設備は非常に充実しています。
ネット使用料が不要なコミュファ光が導入されている点も、家計に優しい大きなメリットです。

オートロックやTVインターホン、宅配ボックスといった共用部の設備も整っており、セキュリティ面での安心感があります。
浜松駅から徒歩20分という距離は、駅を毎日利用する方には少し遠く感じるかもしれませんが、駐車場が1台分確保されているため車移動が中心の方には不便を感じさせません。
また、4階建ての3階部分ですがエレベーターがないため、階段移動が苦にならない方に向いています。

鉄筋コンクリート造による気密性の高さや、複層ガラスによる断熱効果により、一年を通して快適に過ごせる設計です。
周辺は落ち着いた住宅街でありながら、利便性と居住性のバランスが取れた1室です!

続きを読む

見学したい(無料)

気品ある日常[新築]

7.65万円
無料

静岡県浜松市中央区飯田町223-1

賃料76,500円  
共益費/管理費4,000円

1LDK /42.23m² /2026年2月

バスタイムの質にこだわりたい方に自信を持っておすすめしたい、1416サイズの広々バスルームを備えた新築物件をご紹介します!
一日の疲れをリセットする場所だからこそ、賃貸では珍しいこのゆったりとしたシステムバスの仕様は本当に贅沢で魅力的です。

新築ならではの清潔感はもちろん、洗面所からキッチンへの動線もスムーズで、日々の家事効率がぐんと上がる使い勝手の良さを感じました。
リビングにある1.7帖のインナーテラスは、天候を気にせず洗濯物を干せるだけでなく、自分だけのちょっとした趣味空間としても活用できそうです!

収納面もウォークインクローゼットが非常に頼もしく、9帖のLDKを家具だけで広々と使えるのが嬉しいポイントですね!

この新築物件で、あなたらしい理想の暮らしを一緒にイメージしてみませんか。

続きを読む

見学したい(無料)

趣味を極めるガレージLife[新築]

15万円
7.5万円

静岡県湖西市鷲津2412

賃料75,000円  
共益費/管理費2,000円

1LDK /70.32m² /2025年12月

ガレージは奥行き約6.5m、間口約3m!
これだけの広さがあれば、大型の乗用車を停めてもなお、周囲に工具棚を置いたり、お気に入りのバイクを並べたりする余裕が十分にあります。
新築ならではの清潔感に加え、ガレージ内にはスロップシンクや可動棚も備わっていて、ただ車を置くだけではない、まさに趣味に没頭するための秘密基地といった趣です。
またガレージ内、ガレージ前。さらに予備駐車スペースで3台まで駐車可能な点には驚きました。

居住スペースである2階へ上がると、南向きの窓から光がたっぷりと差し込む12帖の広々としたLDKが迎えてくれます。キッチンは人気のカウンタータイプで、料理をしながらでもリビングの開放感を感じられるのが魅力です。
システムキッチンには2口コンロ、お風呂には追い焚き機能や浴室乾燥機、さらにはインターネット無料と、今の暮らしに欲しい設備がこれでもかというほど詰め込まれています。特にガレージハウスでこれほど生活動線や設備が充実しているのは、新築物件ならではの強みだと感じました。

徒歩圏内には薬局やコンビニも揃っていて、車移動をメインに考える方ならむしろ静かで落ち着いた理想的な環境です。駅前の騒がしさから離れている分、夜はガレージで心ゆくまで愛車と向き合う、そんな贅沢な時間を過ごすことができます。

2階には6.2帖の洋室も確保されており、プライベートな寝室もしっかり分けられる間取りになっています。
宅配ボックス完備で不在時も安心ですし、何より駐車場が2台分確保されている点も、車好きの方には見逃せないポイントです。
ガレージハウスは一度埋まるとなかなか空きが出ない人気の物件ですので、この新築の輝きがあるうちに、ぜひ早めにご検討いただければと思います!

続きを読む

見学したい(無料)

開ける瞬間が待ち遠しいガレージ[新築]

15万円
7.5万円

静岡県湖西市鷲津2412

賃料75,000円  
共益費/管理費2,000円

1LDK /70.32m² /2025年12月

電動シャッターがゆっくりと上がり、自分だけのガレージ空間が姿を現す瞬間は、何度経験しても特別な高揚感があります。
奥行きが約6.5メートルもあるので、大型の車を停めても背面に作業台や棚を設置する余裕があり、まさに大人の遊び場といった雰囲気です!
ガレージ内にはスロップシンクが付いているので、汚れを気にせず愛車の手入れやパーツの洗浄ができるのも、実際にここで過ごす時間を想像するとかなり嬉しい設備だと感じました。

居住スペースである2階へ上がると、南向きの大きな窓から差し込む光が12帖のLDKを明るく照らしてくれます。新築の清潔感はもちろんですが、カウンターキッチン越しにリビングを見渡せる間取りは、空間をより広く感じさせてくれます。
お風呂の追い焚き機能や浴室乾燥機、さらにはインターネット使用料無料といった最新の設備が整っているため、趣味のガレージライフを楽しみつつも、日々の生活の質を落としたくない方にぴったりです!

駅から徒歩18分と少し距離はありますが、徒歩圏内に杏林堂やクックマートなどの買い物施設が充実しており、車移動がメインの方であれば不便を感じることはほとんどないはずです。

洋室には大きなクローゼットが備わっており、ガレージに置けない衣類や生活用品もすっきりと収まります。

ガレージハウスは一度ご入居されると長く住まわれる方が多く、新築のタイミングで募集が出るのはとても貴重です。
お車やバイクとの暮らしをより豊かにしたいと考えている方は、ぜひこの機会に、現地でこのガレージの広さを体感してみてください!

続きを読む

見学したい(無料)

はじめての二人暮らし

無料
無料

静岡県浜松市中央区西浅田1-6-7

賃料77,000円  
共益費/管理費3,000円

1LDK /42.60m² /2024.09

浜松駅まで徒歩22分。自転車で10分の距離にある2024年9月築の西浅田のマンション。

4階の最上階のこのお部屋は駐車場が2台付いています。
縦列ですが、駐車場は広めなので出し入れも楽にできそう。

敷地内に2台駐車場がある1LDKはなかなか少ないもの。
はじめての2人暮らし、ふたりとも車があるとお部屋探しも大変。

でも大丈夫!こちらはその課題を解決して、お2人をお待ちしております!

続きを読む

見学したい(無料)

生活に便利な新橋のお部屋

6.3万円
無料

静岡県浜松市中央区新橋町1303

賃料63,000円  
共益費/管理費3,000円

1LDK /36.48m² /2024年10月

浜松市中央区新橋町にあるお部屋です。
近くにはイオンタウンがあるので、買い物にはとても便利。
車で一走りすれば海岸に行くこともできます。

賃料も高くなく、新築に住めるのは美味しいPOINT。
浜松市内で車で通勤される方におすすめの物件です。

続きを読む

見学したい(無料)

SOCIAL MEDIA