閲覧履歴

お気に入り物件

お気に入り物件は会員登録すると使用できます。
未ログインの場合はログインして再度お試しください。

ログイン

保存した検索条件

保存した検索条件は会員登録すると使用できます。
未ログインの場合はログインして再度お試しください。

ログイン

賃貸物件を探す

売買物件を探す

店舗・事務所を探す

賃貸物件を見る

売買物件を見る

#静岡県

ナチュラルストライプ。[ペット可]

無料
無料

静岡県浜松市中央区飯田町391

賃料69,000円  
共益費/管理費3,000円

2LDK /54.00m² /1995年3月

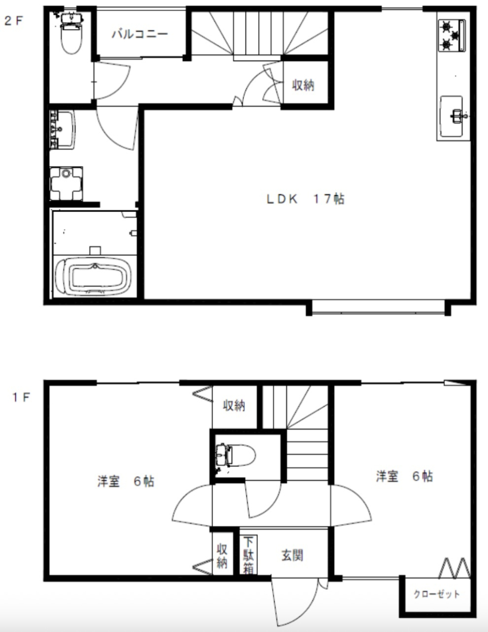
今回ご紹介するのは2LDKのお部屋です!

「2LDK」と言いましたが、洋間とLDKが三枚引き戸で区切られているので、扉を開ければ約17帖の広々リビングの1LDKになります!

2LDKとして書斎、寝室、趣味の部屋など区切って使うもよし!1LDKとして広々リビングでお友達を呼んでパーティーをしてもよし!住む人それぞれの暮らし方によって間取りを変えれるがいいですよね♪

スーパーやコンビニ、ドラックストア、郵便局などが近くにあり生活しやすい立地です。
最寄り駅がJR東海道沿線天竜川駅なので出張などで新幹線をよく利用する方にもおすすめですよ♪

続きを読む

見学したい(無料)

「おかえり」が響く[ペット可]

無料
無料

静岡県浜松市中央区子安町322-5

賃料59,000円  
共益費/管理費3,000円

3LDK /64.26m² /1988年10月

64.26平米の専有面積を活かしたこの物件は、10.9畳のLDKを中心に、独立性の高い6.1畳の洋室、落ち着く4.8畳の和室、そして南向きで陽当たりの良い5.8畳の洋室がバランスよく配置されています 。
この物件は大切な家族の一員であるペットとの入居も可能で、ペットと一緒に新生活をスタートさせることができます 。

室内には無料インターネットが導入されているほか、TVインターホンや温水洗浄便座、シャワー付洗面台といった現代の生活に欠かせない設備もしっかりと整っています 。
また、鉄筋コンクリート造の堅牢な構造に加え、2階以上の角住戸という配置が、日々の安心感とプライバシーを支えてくれます 。

駐車場は1台分が確保されており、必要に応じて2台目の契約も相談できる環境は、お車を複数所有されるご家庭にとって非常に心強いポイントです 。
周辺にはバス停「大蒲西」があり、徒歩6分という近さで交通利便性も確保されています 。
収納面でもクローゼット、押入、物入と各所にスペースが設けられており、家族全員の荷物を機能的に収めることができる、コストパフォーマンスに優れた物件です 。

続きを読む

見学したい(無料)

お買い物しよーっ!

無料
7.3万円

静岡県浜松市中央区小池町2343

賃料73,000円  
共益費/管理費3,000円

1LDK /43.97m² /2020年3月

マンション外観、内装もめちゃめちゃきれいです!

間取りはシンプルな1LDKとなっています。洋室は5帖と少し狭めですが寝室なら問題なしの大きさです。
12.4帖のLDKは、前に高い建物がないので窓から明るい日差しが入ってきます。

バルコニーからはイオン市野がみえます。用事がなくても出かけたくなっちゃうような近さで便利ですね。
休日はイオンにでかけて、お洋服などたくさんショッピングしちゃいましょう!
お洋服をたくさん買うと、収納に困る、、という方、安心です。こちらの物件ほんとに収納が多いんです。
洋室にはウォークインクローゼット、玄関横にはシューズクローク、お部屋には棚があります。

マンション入り口、オートロックになっているので女性の一人暮らしでも安心です。
お部屋はインターネットも無料です。いいとこ尽くしです。

全体的に黒の扉でシンプルでシックな感じです。収納をフル活用してぜひシンプルにまとめていただきたいです!

続きを読む

見学したい(無料)

駐車場2台付き!懐かしlife

無料
無料

静岡県浜松市中央区布橋3-8-32

賃料60,000円  
共益費/管理費3,000円

2LDK /56.75m² /1997/07

新しい家、新しい物語。
あなたと大切な人のための2LDKが、ここにあります。
家族も、カップルも、この温かみのある空間で、毎日を特別なものに変えていきましょう。

白と木目調のインテリアが、ぬくもりと明るさを兼ね備えたこのお部屋。
窓から差し込む日差しは、リビングをより明るく、暖かくします。
朝のコーヒーを飲みながら、日差しの中で読書を楽しむ。
そんな穏やかな一時を過ごせます。

LDKは広々としていて、家族や友人を招いてのホームパーティーにもぴったり。
笑顔と会話が飛び交う、楽しい時間を創り出すことができます。
キッチンでお気に入りの料理を作り、ダイニングでみんなで囲む。
そんな光景が似合う家です。

ふたり暮らしでも、家族としても、ここでなら、思い描いた暮らしが実現します。
晴れた日には、陽光が部屋中を照らし、冬の寒い日でも、暖かい光で包まれる。
そんなぬくもりあふれる空間で、新しい生活を始めてみませんか?

続きを読む

見学したい(無料)
RENT リノベ済み

朝が似合う部屋

無料
無料

静岡県浜松市中央区城北2-23-7

賃料40,000円  
共益費/管理費3,000円

1K /21.53m² /2008年3月

浜松市中央区城北に位置する、静岡大学まで徒歩4分の学生さんにも嬉しい物件です。
バス停「静岡大学」から近く、浜松駅方面へのアクセスも良好な生活至便な立地です。

お部屋は2階建ての最上階角部屋で、南向きのバルコニーから明るい光が差し込みます。
洋室6畳の1Kタイプで、バス・トイレ別、温水洗浄便座などの人気設備が揃っています。
シャワー付洗面化粧台や室内洗濯機置場も完備されており、日々の生活も快適です。
TVインターホンが設置されているため、突然の来客時も室内から確認できて安心です。

賃料は40,000円と手頃で、敷金・礼金が不要なため初期費用を抑えて入居可能です。
駐車場も敷地内に確保されており、お車をお持ちの方の暮らしもサポートします。
周辺は大学に近い落ち着いた住環境で、初めての一人暮らしにも適したエリアです。
利便性とコストパフォーマンスを兼ね備えた本物件を、新しい生活の拠点にご検討ください。

続きを読む

見学したい(無料)

ふわっとのびやかに

無料
無料

静岡県浜松市中央区若林町29

賃料71,000円  
共益費/管理費3,000円

2LDK /63.11m² /2009年1月

家族が集まるLDKが14.4畳もの広さがあり、お部屋に入った瞬間にその開放感にワクワクしました!
南向きの窓からたっぷりと光が差し込み、毎日を明るい気持ちで過ごせそうですね!
さらにバルコニーが南北に2ヶ所もあるので、風通しの良さは抜群です!

対面式キッチンからはリビング全体が見渡せて、お料理中も家族との会話が自然に弾みます。
収納スペースが4ヶ所以上も用意されており、荷物が多いご家庭でもお部屋をスッキリ保てますね!

水回りは追い焚き機能やシャワー付洗面台など、忙しい毎日を支える設備が充実しています!
鉄筋コンクリート造のマンションタイプで、上下左右の音に配慮された造りなのも嬉しいポイントです。

最寄りの駅からは少し距離がありますが、駐車場が1台分無料で付いているのでお車移動の方には最適です!
不在時でも荷物を受け取れる宅配BOXが設置されており、共働きのご夫婦にも便利ですね。
鍵交換費などの初期費用はかかりますが、敷金・礼金が不要なのでスタートの負担を抑えられます!

周辺は落ち着いた住宅街で、角部屋ならではのプライベート感もしっかり確保されていました。
これほど広さと機能性が揃ったお部屋は、お子様の成長に合わせた住み替えにもピッタリな一軒です!

続きを読む

見学したい(無料)

「駅」も「車」もどちらも妥協しない

無料
無料

静岡県浜松市中央区十軒町260-2

賃料67,000円  
共益費/管理費3,000円

2LDK /56.40m² /2003年11月

遠州鉄道の曳馬駅から歩いてわずか7分という、通勤や通学に極めて便利な立地がこの物件の最大の自慢です!

駅近でありながら、実際に周辺を歩いてみると十軒公園などの緑もあり、騒々しさを感じない落ち着いた住環境が広がっています。
さらに、この条件で駐車場が2台分確保されている点は、共働きのご夫婦や、来客の多いご家庭にとって非常に大きなメリットになると確信しました。
お部屋はプライバシーを確保しやすい最上階の角部屋です。
隣室と接する面が少ないため、周囲に気兼ねなくリラックスして過ごせるのが嬉しいポイントですね。
13.5畳ある広々としたLDKには明るい光が差し込み、対面式のキッチンに立つと部屋全体を見渡せる開放感があります。2003年築ということもあり、内装にはどこかホッとする温かみが感じられ、56.4平米というゆとりのある専有面積が日々の生活に心の余裕を与えてくれます。

駅近の利便性と車社会の快適さを両立できるこのお部屋で、新しい生活をスタートさせてみませんか?
お問合せお待ちしております!!

続きを読む

見学したい(無料)

3分先の、ほどける空間。

無料
6.9万円

静岡県浜松市浜名区沼262

賃料69,000円  
共益費/管理費6,000円

1LDK /40.32m² /2023年3月

浜北駅から歩いてわずか3分という、これ以上ないほどの駅近立地に惹かれて現地へ向かいましたが、お部屋に入った瞬間のナチュラルで柔らかな雰囲気にさらに心を掴まれました!!

明るい色調でまとめられた内装はどんな家具とも相性が良さそうで、自分好みの空間づくりを存分に楽しめると感じます。
特にキッチン周りの充実は目を見張るものがあります。
賃貸では珍しい3口コンロとグリルを備えたシステムキッチンは、お料理を本格的に楽しみたい方にとって大きな推しポイントになるはずです。
リビングを見渡せるカウンター越しに会話を楽しみながら、まるでお気に入りのカフェにいるような気分で家事を進めることができます。

収納面についても、洋室に設けられたウォークインクローゼットが非常に頼もしい存在です。
季節物や大きな荷物もまるごと飲み込んでくれる容量があるので、居住スペースに余計な家具を置かずに済み、お部屋のナチュラルな美しさをより引き立ててくれます。
また、LDKだけでなく洋室にも最初からエアコンが設置されているのは本当に嬉しい配慮で、入居したその日からどの部屋にいても快適に過ごせる安心感があります。

正直なところ、1台分の駐車場は無料ですが2台目の空きがないため、お車を2台お持ちの方には検討が必要かもしれません。
ただ、駅がこれだけ近いので、一台は手放して電車移動をメインにするという選択も、この立地なら現実的な選択肢としてポジティブに考えられます!

インターネットも無料で使い放題、さらには更新料も不要という、長く住むほどにメリットを実感できる素晴らしい条件が揃っています。
実際にこのキッチンの使い勝手や、ウォークインクローゼットの広さをその目で確かめてみませんか?
ご案内できるのを楽しみにお待ちしております!

続きを読む

見学したい(無料)

片づくから、もっと可愛い!

無料
7万円

静岡県浜松市中央区小池町2459

賃料70,000円  
共益費/管理費5,000円

1LDK /40.32m² /2025年1月

圧倒的な収納力が魅力!!

大型シューズボックスという言葉では収まりきらない、まるでシューズインクローゼットのような広々としたスペースが確保されており、靴だけでなく外で使う道具もすっきりと収まります。
さらに洋室にはウォークインクローゼットも備わっていて、荷物が多い方でもお部屋の美しさを損なうことなく生活できる実用性の高さが本当にステキです。

2025年1月に完成したばかりの築浅物件ということもあり、内装はどこを切り取っても新しく、かわいらしい雰囲気が漂っています。
リビングにはお洒落なアクセントクロスが施されており、木目調のキッチンカウンターとの組み合わせが絶妙で、自分好みのインテリアを配置するのが今から楽しみになるような空間です。
11.2畳あるLDKは南向きの窓から光が入り、日中も明るく穏やかな気持ちで過ごせます。

自動車学校前駅から徒歩14分という距離は、駅近にこだわる方には少し遠く感じられるかもしれません。
ただ、その分周辺は落ち着いた住環境ですし、駐車場が1台分無料でついているため、お車をお持ちの方であれば駅までの距離を気にせず快適に暮らせるはずです。
インターネットが無料で使い放題、かつルーター設置済みでWi-Fiがすぐに使える点も、引っ越し当日からストレスなく過ごせる嬉しい配慮ですね!

キッチンは3口コンロにグリル付き、さらには追い焚き機能や宅配ボックスといった最新の設備がこれでもかと詰め込まれています。
エアコンもLDKと洋室の2基があらかじめ設置されているので、初期費用を抑えつつ年中快適な温度で過ごすことができます。

築浅ならではの清潔感と、日々の家事を楽しくしてくれる機能美が両立した、一人暮らしやカップルの方におすすめした一室です!
この圧倒的な収納力と、お部屋の可愛らしい雰囲気をぜひ現地で体感してみてください。

お問い合わせいただきありがとうございます!

続きを読む

見学したい(無料)

色を減らすと、部屋はこんなにかっこよくなる

7.1万円
無料

静岡県浜松市中央区紺屋町306-15

賃料71,000円  
共益費/管理費5,500円

1LDK /42.64m² /2019年03月

都会的でシャープなデザインが目を引く、とってもカッコいいマンションです。
一歩足を踏み入れると、自分だけの特別なデザイナーズ空間が広がっています!

12.4帖の広々としたLDKは、家具のレイアウトを考えるだけで楽しくなりますね。
無料Wi-Fi完備なので、入居したその日から動画もネットも使い放題です。
2面採光の角部屋で、お部屋全体が明るい光に包まれて気分も上がります!

オートロックやTVインターホンなど、防犯面もしっかりしていて安心。
室内物干し付きなので、お天気を気にせずスマートにお洗濯ができちゃいます。

周辺には成城石井などのスーパーがあり、毎日のお買い物もとっても便利です!
曳馬駅まで徒歩圏内なので、休日は電車で街中へ遊びに行くのも最高ですね。

洗練されたデザインに囲まれて、憧れのライフスタイルを叶えてみませんか?

この場所で始まる新しい毎日を、ぜひ現地でイメージしてみてください!
新しい自分に出会えるような、期待感たっぷりの住まいがあなたを待っています。

続きを読む

見学したい(無料)

海を感じて[ペット可]

6.6万円
無料

静岡県浜松市中央区白羽町275-1

賃料66,000円  
共益費/管理費2,000円

2LDK /57.91m² /2014年07月

少しずつ温かくなってきて、マリンスポーツが旬になるころ。
川や海が近くにあり、自然を感じられる物件を紹介します。
白羽町にあるので海までは車で10分で行けちゃいます。

さらに嬉しいのがペット可なところ。
海辺で愛犬・愛猫とまったりお散歩、絶対に気持ちいいはず!

室内はとってもシンプルなつくり。
間取りは2LDKですが洋室が小さめなのでカップルや新婚さん向けです。
広々としたシステムキッチンは対面になっているのでお料理しながら会話も楽しめます。
カウンターキッチンになっているのもうれしいポイントです。

収納は洋室にそれぞれひとつずつと、リビングにも細長い収納がひとつ。
多すぎず、少なすぎず、ちょうどいい感じです。

テラスハウスタイプの2階のお部屋ですので、居室スペースへは階段がマスト。
こちらは少し難点ですね。

国1へのアクセスもいいので、湖西や磐田の海へも行けちゃいます。
※津波が気になる方は、残念ですがご遠慮ください。。。

続きを読む

見学したい(無料)

街と私のちょうどいい距離

7.13万円
無料

静岡県浜松市中央区白羽町196-3

賃料71,300円  
共益費/管理費4,000円

1LDK /43.23m² /2025年10月

洋室だけでなく廊下側にもウォークインクローゼットがある、収納力抜群の新築角部屋をご紹介します!

荷物、どこに置こう?
そんな悩みも、これだけの大容量なら10.5帖のLDKを家具で狭めることなく、自分好みの開放的な空間として贅沢に使いこなせそうです!

さらにキッチンカウンター下や洗濯機の上にも棚が作られていて、日々の動線に合わせた細やかな配慮が嬉しいですね。

やっぱり、1階。
外からの視線は少し気になりますが、角部屋の利点を活かしてカーテンを工夫すれば、光を取り込みつつ落ち着けるはずです!

お風呂も1418サイズとかなり広めですし、無料Wi-Fi完備で入居当日からネットを楽しめるのも高ポイント!

2026年3月6日から入居できるので、新しい季節をこの機能的なお部屋で気持ちよくスタートさせてみませんか?

続きを読む

見学したい(無料)

アクセス良好!白羽町の1LDK

6.94万円
無料

静岡県浜松市中央区白羽町196-3

賃料69,400円  
共益費/管理費4,000円

1LDK /43.23m² /2025年10月

浜松市中央区北寺島町という、浜松駅も近くて動きやすい絶好のロケーションでのご紹介です !
2025年10月に完成したばかりの新築なので、誰の手にも触れていないピカピカな状態で新生活をスタートできちゃいます 。

10.5帖あるLDKは、お気に入りのソファを置いても余裕がある開放感で、毎日の生活がワクワクしそうです 。
正直、一番テンションが上がったのは収納の多さで、なんと洋室にはウォークインクローゼットが二つも付いているんです !

洗濯機の上やキッチンカウンターの下まで棚が完備されていて、小物の整理整頓もバッチリこなせるのが助かりますね 。
お風呂も1418サイズと賃貸では珍しいゆとりがあって、ついつい長風呂しちゃいそうなリラックス空間です 。

洋室5.6帖はベッドを置くと少しコンパクトに見えるかもしれませんが、これだけ収納があれば空間を贅沢に使えます 。

このエリアでの暮らしやすさを、ぜひ一度現地で一緒に体感してみませんか?

続きを読む

見学したい(無料)

“便利さ”で選ぶならここ。

7.82万円
無料

静岡県浜松市中央区白羽町196-3

賃料78,200円  
共益費/管理費4,000円

2LDK /55.12m² /2025年10月

浜松市中央区白羽町という、落ち着いた環境でゆったり暮らせるロケーションでのご紹介です!
2025年10月に完成したばかりの新築物件なので、真っ新な室内で気持ちよく新生活をスタートできます 。

11.5帖あるLDKは、対面キッチンからリビング全体が見渡せるので、開放感たっぷりでワクワクしますね 。
特筆すべきは収納の充実ぶりで、洋室には大容量のウォークインクローゼットが完備されているんです 。

さらに洗濯機の上やキッチンカウンターの下にも棚があって、小物の整理整頓が驚くほどスムーズにこなせます !
お風呂も1418サイズと賃貸では珍しいゆとりがあって、毎日のバスタイムが特別な癒やしの時間になりそうです 。

Wi-Fiが無料で使い放題なのも、おうちで動画やSNSをたっぷり楽しみたい私たち世代には外せないポイントですよね 。
洋室が2部屋あるので、寝室と趣味の部屋を分けたり、ライフスタイルに合わせた贅沢な使い方が広がります 。

白羽町での穏やかな暮らしを、ぜひ一度現地で私と一緒に体感してみませんか。

続きを読む

見学したい(無料)

毎日恋するわんにゃんルーム[ペット可]

無料
無料

静岡県浜松市中央区恩地町265

賃料55,000円  
共益費/管理費3,000円

2LDK /61.24m² /1994年3月

LDKにあるピンク色のキッチンがかわいらしく印象的です !
毎日使う場所だからこそ、こうした遊び心のある色使いがあると、お料理の時間も自然と気分が上がりますし、まさに毎日恋をするようなときめきを運んでくれそうです!

お部屋全体は全部屋洋室へとリフォームされており、清潔感のある空間が広がっています。
南向きの角部屋ということもあって、6.5帖の洋室は二面採光になっており、とにかくお部屋が明るいのが自慢です。
さらにこの部屋には可愛らしい出窓がついていて、お気に入りのインテリアを飾ったり、小さな観葉植物を並べたりするのにぴったりな空間になっています。
ねこちゃんはここでお昼寝するのかな?かわいい...

一方で、独立洗面台などの水回り設備には少し時代を感じる部分もあり、最新のデザインを求める方には少し好みが分かれるかもしれません。
ただ、機能面ではしっかりとお手入れされており、シャワー付洗面台として便利に使える実用性は備わっています 。

収納面も非常に優秀で、特に6帖の洋室にある収納スペースは、奥行きがあってとても良い感じに荷物をまとめられそうです。バルコニーが二箇所にある二面バルコニー仕様なので、洗濯物を干すスペースとは別に、ちょっとしたガーデニングを楽しんだり外の空気を入れ替えたりするのにも便利です!

このお部屋は大切なペットと一緒に暮らせるのも大きな魅力で、日当たりの良い出窓でペットが日向ぼっこをしている姿を想像すると、それだけで温かい気持ちになります。
築年数は1994年ですが、鉄筋コンクリート造のしっかりとした構造と、リフォームによる内装の可愛らしさが合わさった、バランスの良い住まいです!

お問合せお待ちしております!

続きを読む

見学したい(無料)

しっとり大人空間

6.1万円
無料

静岡県浜松市中央区宮竹町165-1

賃料61,000円  
共益費/管理費3,000円

2LDK /53.58m² /2003年3月

そこにはしっとりと落ち着いた大人な空気が流れていました。

LDKは11.3帖というゆとりのある広さで、全体的に飽きのこない穏やかな内装のトーンでまとめられており、リラックス感があります。

実際に室内を歩いてみて、何よりもその実用性の高さに感銘を受けました。
特にキッチン横に設けられた収納スペースは非常に便利で、パントリーとして活用すれば、散らかりがちなキッチン周りを常に美しく保つことができます。
冷蔵庫の置き場もしっかりと計算されて確保されており、大型の冷蔵庫を置いても家事動線を邪魔しない設計には、長く住むほどにその恩恵を感じられるはずです。

二つの洋室についても、それぞれに独立した高い収納力が備わっているのが心強いポイントです。
6.6帖と6帖という、使い勝手の良い広さの各居室に奥行きのある収納が配置されているため、寝室や書斎として、それぞれの空間を純粋にくつろぎの場所として使い分けることができます。

重量鉄骨造という堅実な構造も、日々の暮らしに静かな安心感を添えてくれます。ネット無料や追い焚き機能、洗浄便座、TVインターホンなど、現代の生活に求められる設備もしっかりと完備されています。

浜松市中央区宮竹町という、バス停まで徒歩5分で移動にも便利なこの場所で、余計なものに惑わされない、整然とした大人の暮らしを始めてみませんか?

続きを読む

見学したい(無料)

解放感を独り占め

11.8万円
無料

静岡県浜松市中央区西浅田2-18

賃料59,000円  
共益費/管理費5,000円

1K /33.46m² /2024年9月

1人暮らし向けとは思えないほど広々とした12.42帖の洋室。
2024年9月に完成したばかりで、南向きの大きな窓から差し込む光が室内をとても明るく演出しています。
たっぷり荷物を収納できるウォークインクローゼットのおかげで、12帖超えの居住空間を贅沢に活用できるのが大きな自慢です。

キッチンは対面式が採用されており、2口コンロ完備で自炊派の方も納得の使い勝手になっています。 浴室乾燥機や独立洗面台など水回りの設備も充実しており、日々の生活動線がスムーズに設計されています。

インターネット使用料が無料な点も、毎月の固定費を抑えたい方には見逃せないメリットです。防犯カメラやモニタ付オートロック、宅配ボックスも完備され、初めての一人暮らしでも安心感があります 。

新年度を眺めの良いこのお部屋で迎えたい方にぜひ内覧していただきたいです!

続きを読む

見学したい(無料)

ハッピーカラーで暮らす

無料
無料

静岡県浜松市中央区安松町20-14

賃料54,000円  
共益費/管理費3,000円

2LDK /62.72m² /2001年7月

まるで一戸建てのような独立感を楽しめるテラスハウスでの暮らしがここにあります。

1階には12.7帖の広々としたLDKがあり、家族が集まる中心の場所としてゆとりある設計になっています。
キッチンは2口コンロを備えたシステムタイプで、お料理を効率よく楽しめる環境が整っています。
上下階を専用で使えるメゾネットタイプのため、集合住宅で気になる階下への騒音を過度に心配することなく、自分たちのペースでリラックスして過ごせるのがテラスハウスならではの良さです。

2階に上がると、7帖と6.5帖の独立した洋室が配置されており、それぞれの部屋にクローゼット収納もしっかり完備されています。
南向きのバルコニーに面した7帖のお部屋は陽当たりが良く、明るい光の中で朝を迎えることができます。
バス・トイレ別はもちろん、室内洗濯機置場やエアコンといった日々の暮らしに欠かせない設備も整っており、築年数を感じさせない快適な居住空間を提供しています。

またこの物件は安松南バス停から徒歩2分という場所にあり、浜松駅までのアクセスもスムーズです。
さらに駐車場は、敷地内に並列で2台分停められるスペースがあらかじめ賃料に含まれているため、共働きのご夫婦や、お車を所有されている方にとって大きなメリットとなります。

62.72平米という広さを活かし、プライベートな時間と家族の時間をしっかりと分けることができるため、二人入居や小さなお子様のいるご家庭にも適しています。
角住戸ならではの風通しの良さと、南面からの暖かな光に包まれたこの場所で、新しい生活を始めてみませんか。

続きを読む

見学したい(無料)

家具が映えるモダンテラスハウス

無料
無料

静岡県浜松市中央区佐鳴台4-14-30

賃料70,000円

2LDK /64.66m² /1991年3月

人気の佐鳴台エリアに位置するこの物件は、1階と2階を自由に使えるテラスハウスタイプで、上下階の音を気にせず戸建て感覚で過ごせるのが魅力です 。
南向きの専用庭とバルコニーがあり、陽当たりと通風に優れた開放感あふれる空間が広がっています 。

駐車場は敷地内に並列で2台分確保されており、追加料金なしで利用できるため、お車を2台お持ちのご家庭にも最適です 。

1階には12帖の広々としたLDKがあり、会話が弾むカウンター付きのシステムキッチンが備わっています 。
2階には8帖と6帖の洋室があり、どちらのお部屋にも収納スペースが確保されているため、荷物が多い方でもお部屋をスッキリと使うことが可能です 。

設備面では、追い焚き機能付きのお風呂や浴室乾燥・暖房、温水洗浄便座など、ファミリー世帯に嬉しい機能が非常に充実しています 。
TVインターホンも設置されており、防犯面への配慮もなされています 。佐鳴台での新しい生活をスタートさせたい方にお勧めです 。

続きを読む

見学したい(無料)

こんな生活夢見てた

無料
6.7万円

静岡県浜松市中央区海老塚町1-29

賃料67,000円  
共益費/管理費5,000円

1K /27.77m² /2022年03月

浜松駅まで徒歩6分の駅近人気物件。
2022年と築浅物件なのも魅力的POINT◎

共有スペースがとっても充実しています!!
■シェアルーム:大型のテーブル等シェアして利用可。
 個別利用の専用ブースもあり。
 共用ガーデンも作業など利用可。
■シェアルーム:(予約制)映画を見たり、通話をしながらの打ち合わせなどにご利用可。
 オンライン予約で24H可能(深夜の利用不可)

映画好きさんは必見の物件です!!

続きを読む

見学したい(無料)

1Fの特権!わんにゃん[ペット可]

無料
7.3万円

静岡県浜松市中央区高町 212-14

賃料73,000円  
共益費/管理費5,000円

1LDK /43.56m² /2023年1月

こちらの物件は2023年に竣工されたばかりで、外観も内装もとっても綺麗。

LDKは14.21帖とゆとのある広さがあります。
内装はシンプルできれいめな大人っぽい雰囲気。
日当たりが良く日中は明るくポカポカした空間で過ごせます。

LDKに設けられたキッチンは対面式の3口ガスコンロ。
キッチンカウンターが広く、流しも調理スペースもゆったりと使えます。
ちなみに魚焼きグリルも未使用ピカピカです。

少し気になるポイントは洋室。
4.39帖と小さめでエアコンが付けられないのが少しネックに感じるかもしれません。

ただ設備はしっかり充実しています。
お風呂は追い炊き機能に加え浴室乾燥機付き。
雨でお洗濯物が干せないときは、浴室乾燥を使うかLDKの室内物干しを使いましょう!
洗面やトイレといった水回りも、綺麗で清潔感が溢れています。

清潔感やキレイさ、機能面を重視する方にピッタリな物件です◎

続きを読む

見学したい(無料)

青春を塗り直す!爽やかルーム

無料
無料

静岡県浜松市中央区細島町156

賃料65,000円  
共益費/管理費3,000円

1LDK /45.36m² /1991年10月

全体的にパッと明るくて爽やかな雰囲気!

14帖もある広々としたLDKは、清潔感あふれる白色の対面式システムキッチンが主役!
真っさらなホワイトカラーのキッチンって、不思議と「もっと綺麗に、大事に使おう」という気持ちにさせてくれますよね。
対面式になっているので、お料理をしながらリビングにいる家族や友人と楽しく会話ができるのも、毎日の暮らしを豊かにしてくれる素敵なポイントです。

6帖の洋室へ向かうと、爽やかなブルーのアクセントクロスお出迎え!
この色が絶妙で、派手すぎないのにしっかりとお部屋の個性を引き立てていて、とてもセンスが良いなと感じます。
さらに、このお部屋は収納力が本当に抜群です。
ウォークインクローゼットが備わっているので、季節物のお洋服や大きな荷物もまるごと収まってしまいそうで、お部屋を常にスッキリと保つことができそうです!

この物件の隠れた大きな魅力は、3階建ての最上階かつ角部屋という贅沢なポジションにあります。
上階に足音を気にする必要がないのは、集合住宅で暮らす上でこれ以上ない安心感ですよね。
南向きで陽当たりも良好なので、お休みの日には窓際でゆっくりと読書を楽しんだり、明るい光の中で家事をこなしたりと、穏やかな時間が流れるのが想像できます。

1991年築ですが、室内はリノベーションによって電子キーやTVインターホンといった現代的な設備もしっかり導入されており、古さを感じさせない快適な空間に生まれ変わっています。
追い焚き風呂や温水洗浄便座、エアコン2台付きといった、あると嬉しい設備が最初から整っているのも、新生活を始める上での心強い味方です。

お問合せお待ちしております!

続きを読む

見学したい(無料)

駅チカシンプルlife

無料
6.5万円

静岡県浜松市中央区平田町28

賃料65,000円  
共益費/管理費5,000円

1K /31.81m² /2022年2月

浜松駅から徒歩8分、新浜松駅からも徒歩7分という、都市の利便性を存分に享受できるロケーションがこの物件の大きな魅力です 。
築浅マンションならではの清潔感に加え、鉄筋コンクリート造による堅牢な安心感があります 。

共用部にはオートロックやモニタ付きインターホン、宅配ボックスが完備されており、外出が多い方や防犯面を重視される方にとっても心強い仕様が整っています 。
居室はゆとりのある9畳が確保されており、ベッドやデスクを配置しても十分な動線を保つことができます 。
さらに大型のウォークインクローゼットが設置されているため、衣類やスーツケースなどを一箇所に集約して収納でき、生活空間を常にスッキリと保てるのがポイントです 。
インターネットはコミュファWiFiが無料で利用可能となっており、固定費を抑えながら快適な通信環境を手に入れることができます 。
水回りも単身向け物件としては非常に充実しており、洗面所独立タイプでシャワー付洗面台が備わっています 。
浴室乾燥機や温水洗浄便座、室内洗濯機置場といった日常の利便性を高める設備が標準装備されているのも、築浅物件ならではの良さです 。
複層ガラスを採用しているため断熱性にも期待ができ、1年を通して心地よい室温で過ごせる環境が整っています 。

徒歩や電車での通勤・移動をメインにされる方にとって、これほど条件の揃った駅近物件は貴重です。
4階の角住戸という配置もプライバシーを確保しやすく、都市生活の拠点として申し分ありません 。
利便性と居住性の両方を妥協したくない方に、ぜひお勧めしたい物件です。

続きを読む

見学したい(無料)

隠し通す、料理の才能

無料
無料

静岡県浜松市中央区中央2-5-5

賃料70,000円  
共益費/管理費5,000円

1LDK /50.03m² /2007年2月

南向きの大きな窓から差し込む陽光と、角部屋ならではの2面採光が相まって、開放感があるお部屋です 。お気に入りのインテリアを自由にレイアウトする楽しみが広がります 。
浜松駅から徒歩17分という街中にありながら、ゆったりとした自分だけの空間を持てるのは、この物件ならではの贅沢です 。
1フロアに2住戸のみという配置も、プライバシーを大切にしたい方におすすめです 。
隣り合うお部屋が少ないため、周囲の生活音に悩まされることが少なく、静かな環境でリラックスした時間を過ごせます 。

設備面でも、エアコンが2台設置されているほか、インターネット使用料が無料、さらに追い焚き機能や浴室乾燥機、シャワー付洗面台といった、日々の暮らしの質を高めてくれる水回りの充実ぶりからも、住む人の快適さがしっかりと考えられていることが伝わってきます 。
また、6畳の洋室はクローゼットや物入などの収納が2箇所に分かれて確保されているため、生活空間をスッキリと保つことができます 。
防犯面でも、オートロックやダブルディンプルキー、モニタ付インターホンが完備されており、都会での一人暮らしや二人入居でも安心感を持って新生活をスタートできます 。
鉄筋コンクリート造の造りに加え、閑静な住宅街に位置するこの物件は、落ち着いた大人の暮らしを求める方に選んでいただきたいお部屋です 。
南向きのバルコニーで風を感じながら、この広いリビングでどんな時間を過ごそうかと想像するだけでわくわくしませんか?

続きを読む

見学したい(無料)

夕焼け色に染まりたくて

無料
無料

静岡県浜松市中央区住吉5-5-6

賃料65,000円  
共益費/管理費3,000円

4LDK /76.30m² /1994年03月

マンションでありながら、ワンフロアに1世帯という贅沢な造りのおかげで、まるで戸建てに住んでいるような独立感と開放感を味わえるのがこの物件の何よりの魅力です 。
3階建ての最上階に位置し、開けた角住戸となっているため、お隣への音の配慮を過度に気にせず過ごせるのは、小さなお子様のいるご家庭には大きな安心材料になるはずです 。リビングを中心に、8帖の広々とした洋室から落ち着く和室まで計4つの居室があり、家族それぞれの個室もしっかり確保できる76.3平米という広さには目を見張るものがありました 。
内装リフォームが施されているため、築年数から想像するよりもずっと清潔感のある心地よい空間が広がっています 。
南向きのバルコニーに面した和室と洋室は陽当たりが良く、洗濯物も気持ちよく乾きそうです 。また、駐車場が縦列で2台分確保されている点も、お車を2台お持ちのご家庭にとっては大きなメリットと言えます 。
設備面では、エアコンが既に2台設置されていたり、独立洗面台や温水洗浄便座が完備されていたりと、現代の生活に欠かせない機能がしっかりと整っています 。
収納スペースも十分にあり、季節ものの衣類や生活用品もスッキリと片付けることができそうです 。聖隷病院入口バス停まで徒歩5分という立地も、通勤や通学の強い味方になってくれるでしょう 。
ご家族構成に合わせた家具配置のイメージ作りや、実際の階段の上り下りの感覚を確かめに、ぜひ現地へ足を運んでみませんか。

続きを読む

見学したい(無料)

反則級に落ち着く[ペット可]

無料
無料

静岡県浜松市中央区恩地町265

賃料55,000円  
共益費/管理費3,000円

2LDK /61.24m² /1994年3月

まずアーチ型の入り口がわいい!一気に心を掴まれてしまいました。

リノベーションされた内装は、木目調の天井や床が織りなす反則級に落ち着く色合いで、初めて訪れた場所とは思えないほどのリラックス感があります!
何より驚いたのが、洗面スペース手前に設けられたオープンな収納スペースの充実ぶりです。
可動式になってるので、好みの幅に調節可能です◎
玄関にも可動棚がずらりと並んでいて、靴はもちろん、お気に入りの雑貨を飾ったり、アウトドア用品を置いたり、まるでおしゃれなショップのような空間を自分で作り上げることができます。これだけの容量があれば、玄関周りが散らかる心配もなさそうです。

広々とした12.4畳のLDKに足を踏み入れると、南向きの大きな窓から柔らかな光が差し込み、お部屋全体を明るく包み込んでいます。
グレー系のキッチンパネルやタイルのアクセントが、ナチュラルな床材と絶妙にマッチしていて、どんな家具を置こうか想像するだけで楽しくなります!

また、こちらはペットと一緒に暮らせる物件なので、この広々としたリビングで大切な家族と一緒に過ごす時間は、きっと何物にも代えがたい癒やしのひとときになるはずです!

収納については、玄関だけでなく洋室にもクローゼットが備わっており、2LDKという間取りを最大限に活かせる工夫が凝らされています。

この落ち着いた雰囲気のデザインと、日々の動線を考え抜かれた機能性を兼ね備えたお部屋なら、新しい生活を穏やかな気持ちでスタートできると自信を持っておすすめできます!

お問合せお待ちしております!

続きを読む

見学したい(無料)

自分色に染めてこっ!

無料
無料

静岡県浜松市中央区住吉3丁目15-7

賃料35,000円  
共益費/管理費3,000円

1K /25.80m² /1999/03

居室は8.5帖と、一般的な1Kの間取りよりも一回り大きなサイズ感になっています 。ベッドだけでなく、デスクやテレビボードを置いても自分なりの動線がしっかり確保できる広さがあるのは、家で過ごす時間を大切にしたい方にとって大きな強みです。
また、インターネット使用料が無料でコミュファWiFiが完備されているため、通信費を気にせず動画視聴やオンライン授業に集中できる環境が整っています 。
鉄筋コンクリート造の重厚な構造や、不審者の侵入を防ぐオートロック、不在時に重宝する宅配ボックスといった、分譲マンションのような安心の設備も揃っています 。
1階のお部屋ではありますが、セキュリティへの配慮があることで、女性の初めての一人暮らしでも落ち着いて過ごせるはずです。

水回りはバス・トイレ別で、温水洗浄便座も完備されているなど、日々の使い勝手にも配慮されています 。
キッチンも3帖のスペースが確保されており、窮屈さを感じることなくお料理を楽しめます 。
周辺にはスーパーやコンビニなど、毎日のお買い物に欠かせないお店が揃っており、生活のしやすさを感じられます。
浜松駅からはバスで23分ほど離れますが、徒歩圏内で生活が完結する利便性の高さと、家賃設定を考えれば、非常にコストパフォーマンスの高い選択です 。

続きを読む

見学したい(無料)

心地よい抜け感

無料
7.2万円

静岡県浜松市中央区泉1-12-32

賃料72,000円  
共益費/管理費3,000円

1LDK /44.63m² /2023/02

玄関を開けると視界が開ける12.87帖もの広いLDKがこのお部屋の主役です。
一般的な1LDKの単身向け物件と比べてもリビングのゆとりが際立っており、大きなソファやダイニングテーブルを置いても窮屈さを感じさせない空間設計です。
南向きの窓から差し込む光が、明るいトーンの床材を照らし、お部屋全体をより一層広く見せてくれます。
キッチンは本格的なお料理も楽しめるシステムタイプで、お友達を呼んで手料理を振る舞うシーンも自然とイメージが膨らみます。

収納面でも一切の妥協がなく、洋室にはウォークインクローゼットが備わっています。
季節ものの衣類はもちろん、スーツケースや掃除機といった場所を取る荷物まで一箇所に集約できるのは、生活感を隠してスッキリ暮らしたい方には最高のポイントだと言えます。
水回りも追い焚き機能や浴室乾燥機、温水洗浄便座といった人気の設備がフル装備されており、日々の家事やリラックスタイムの質をぐっと引き上げてくれるはずです。
また、ネット使用料が無料という点も、在宅ワークや動画視聴が多い現代のライフスタイルには嬉しい配慮です。

物件は鉄筋コンクリート造の2階の角部屋です。隣室との接地面積が少ないため、プライバシーを重視したい方にも安心してお勧めできます。
エントランスには宅配ボックスや防犯カメラが設置されており、一人暮らしの女性や帰宅が遅くなりがちな方への配慮も行き届いています。
バス停からも徒歩5分と近く、利便性と居住性のバランスが非常に高いレベルで整った、長く住み続けたくなるようなお部屋です。

続きを読む

見学したい(無料)

おばあちゃん家

無料
無料

静岡県浜松市中央区尾張町126-2

賃料39,000円  
共益費/管理費3,000円

2K /28.22m² /1988年6月

もともと独身の単身赴任者向けに建てられた賃貸マンションで、共有のラウンジ(食堂)やランドリースペースが付いている珍しい賃貸マンション
数年前にリノベーションによりなんと共用スペースにスポーツジムが。
ランニングマシン、そしてエアロバイクと筋トレマシーンが1台づつあります。
本格的なサーキットトレーニングでムッキムキな体を目指しましょう!
また、大きな姿見とヨガマットもご用意してありますので本格的なヨガやちょっとした柔軟体操も楽しめます。

また、ちょっとしたラウンジスペースには電子レンジやトースターなどの設備もありますので運動のあとにお食事も楽しめるのです。
なんかシェアハウスみたいでいいですね。このジムで出会いなんかもあったりしたら毎日が楽しめそう。
共有のランドリースペースには洗濯機とガス式の衣類乾燥機もついていますのでこれもかなりポイントが高い!
一人暮らしだとどうしても洗濯物が溜まったりして干すのも面倒なのでこの設備はありがたいです。ちなみに男性用と女性用は別々のランドリースペースが用意されているのもうれしいですね。

また、オートロックのエントランスを入った奥には室内自転車置き場もあり、大切な愛車もしっかりと保管できます。

ほかには無い魅力がいっぱいのこのお部屋
是非どうでしょう?

続きを読む

見学したい(無料)

オトナコーデ。

11.8万円
無料

静岡県浜松市中央区篠ヶ瀬町1285-1

賃料59,000円  
共益費/管理費3,000円

2LDK /58.96m² /1981年3月

浜松市東区、自動車街通り近くにあるリノベ物件です!
お部屋はフルリノベーションでどこもかしこもぴかぴか。
木目調の床とキッチン廻りのくすみブルーの色合いがシックでなんともおしゃれです。
天井に埋め込まれたダウンライトも相まって大人な雰囲気のお部屋になっています♪

南側の洋室には壁一面のクローゼット、北側洋室には便利なオープンクローゼットがあります。
おしゃれなだけでなく、収納もたくさんあるのは嬉しいポイントですね。

おしゃれ好きなオトナ女子・オトナ男子は必見なお部屋です!

続きを読む

見学したい(無料)

SOCIAL MEDIA