閲覧履歴

お気に入り物件

お気に入り物件は会員登録すると使用できます。
未ログインの場合はログインして再度お試しください。

ログイン

保存した検索条件

保存した検索条件は会員登録すると使用できます。
未ログインの場合はログインして再度お試しください。

ログイン

賃貸物件を探す

売買物件を探す

店舗・事務所を探す

賃貸物件を見る

売買物件を見る

掲載物件一覧

26296件

白を基調としたLDK

無料
無料

静岡県浜松市中央区幸3-14-13

2LDK /69.40m² /1995年1月

~マイページを活用して便利な検索!~
マイページ登録すれば以下の便利機能が使えます!
・気になった物件のハートを押して「お気に入り」に保存
・お気に入り登録された物件の条件が変わったら更新情報がメールで送信されます。
・勤務先からの距離と時間で検索できるBP検索(ベストプレイス検索)
・検索条件を保存して、同じ条件で検索できる「検索条件保存機能」

この物件が気になったら
まずは内見のご予約を!
以下の問合せフォームよりご連絡ください。

続きを読む

見学したい(無料)

魅力満載の成子ライフ

17.6万円
8.8万円

静岡県浜松市中央区成子町18-11

3LDK /78.03m² /1996年06月

成子町の最高のライフスタイルが、魅力的な3LDK賃貸物件で待っています!広々とした間取り、駅チカの便利さ、そして周囲の生活施設が揃っている、理想的なお住まいです。

新浜松駅への徒歩わずか12分で、通勤や通学もラクラク。朝の忙しい時間もストレスなしで過ごせます。また、お買い物も便利で、コンビニ、スーパー、ドラッグストアが近くにあるので、急な買い物も簡単に済ませられます。

そして、お子様をお持ちのファミリーにとっては、小学校や中学校が徒歩圏内にあるため、通学も安心です。親御さんもお子様も、毎日の通学路を安心して歩けることでしょう。

キッチンには3口コンロが付いており、お料理好きな方にはうれしい設備が整っています。収納スペースもたっぷり確保されているので、お部屋をすっきりと保つことができます。また、和室もあり、押し入れも完備。伝統的な日本の空間を楽しんでいただけます。

一方、デメリットとして、駐車場は敷地外にあるため、月額1万円かかります。駐車スペースを必要とする方にはご負担かもしれませんが、この素晴らしいお住まいの魅力を考えると、それほど大きなデメリットではないかもしれません。

広々とした空間、駅近の便利さ、学校や生活施設の近さ、設備の充実、和室の風情。これらがあなたとあなたの家族の新しい生活のスタートを彩ります。気になった方は、お気軽にお問い合わせください。この賃貸物件が、あなたの新しいホームになることを楽しみにしています!

※画像は管理会社様にご提供いただいたものです。

続きを読む

見学したい(無料)

まるで高級ホテルの贅沢森林浴

無料
無料

静岡県浜松市中央区広沢1-14-1

2LDK /60.06m² /1997/01/

人気の広沢のマンションのご紹介です。

細い路地を進んでいった住宅街の先に、突然現れるホテルのような佇まいのマンション。
エントランスもホテルのロビーのようです。

お部屋もおしゃれで、リビングの窓からは緑が見え、木漏れ日が差し込む癒しのお部屋。
外には遊歩道があり、緑あふれる木々から小鳥の心地よいさえずりが聴こえてきます。
本当に、いるだけで癒される空間、、、。

キッチンは別にあり、リビング横には洋室と北側にも洋室があります。
各部屋に収納もあり、廊下にも収納が所々にあるので、荷物が多くても安心。

こんな癒しの部屋で過ごしたら、毎日心が満たされそうですね。

続きを読む

見学したい(無料)

パステル気分でウキウキ!

無料
無料

静岡県浜松市中央区入野町1900-25

2LDK /66.19m² /1993年3月

閑静な住宅地にあるアクセス良好のマンションのご紹介です!

入野町の雄踏街道から少し入った通り沿いにあるこちらのマンション。
少し古さはありますが、リフォームされているので中は綺麗です。そして嬉しい角部屋!

LDKは13帖ですが、6帖の洋室と繋げれば19帖という広さに変身します!
ちょっとした区切りの壁があるので、使い勝手も良さそうです。
水色のアクセントクロスもおしゃれ。トイレやお風呂などもパステルカラーなので、毎日がウキウキ楽しい気持ちになりそう。

リビングにはクローゼットもついていて、さらに飾り棚もあるので、お気に入りの写真や本棚として使えそうです。
9.2帖の洋室にはウォークインクローゼットがあります!
その他、洗面所手前の廊下にも収納があったりと、収納には困らなそう。

ファミリーや二人暮らしにおすすめの物件です。ぜひお問い合わせください。

続きを読む

見学したい(無料)

壁から壁へ、よ~いドン!!

無料
無料

静岡県浜松市中央区高林3-11-26

1LDK /66.57m² /1986/10

助信駅から徒歩約9分!!という好立地にあるアクセス良好の物件をご紹介します。

152号線を少し入った閑静な住宅地にある少し古いマンションですが、
中はしっかりとリノベーションされているのでとっても綺麗!!

驚いたのは、LDKがとにかく広~~いこと!!
もともと二部屋だった場所を繋げてあるので17帖以上あり、日当たりも良いので心も開放的な気分に(^^)
思わず壁から壁へ、よ~いドン!!と競争したくなります(笑)
リビングには大きなウォークインクローゼットもあるので、荷物はすべてここに収めれそうです。

お部屋は他にもう一部屋あり、寝室にぴったりなお部屋です。

そして嬉しいのは、水まわりが全て新品なこと!古さで気になるのはやはり水まわりですが、こちらはその心配もなく、ピカピカなキッチン、トイレ、お風呂で快適な生活を送れます♪

ドアなどは昭和感が残る古さを感じますが、「レトロ」と捉えて、それも活かしたインテリアにするのもいいかもしれません。

デメリットとしてはガスレンジやシューズクローゼットが無いのでご用意が必要なこと。
とはいえ、それを考慮しても駅チカで、キレイにリノベされたこちらの物件は魅力的かと思います。

ぜひお問合せ下さい♪

続きを読む

見学したい(無料)
FULL リノベ済み 360VR

水まわりはピカピカに

無料
無料

静岡県浜松市中央区高林3-11-26

1LDK /66.57m² /1986/10

助信駅から徒歩約9分!!という好立地にあるアクセス良好の物件をご紹介します。

152号線を少し入った閑静な住宅地にある少し古いマンションですが、
中はしっかりとリノベーションされているのでとっても綺麗!!

驚いたのは、LDKがとにかく広~~いこと!!
もともと二部屋だった場所を繋げてあるので17帖以上あり、日当たりも良いので心も開放的な気分になります(^^)
リビングには大きなウォークインクローゼットもあるので、荷物はすべてここに収めれそうです。

お部屋は他にもう一部屋あり、寝室にぴったりなお部屋です。

そして嬉しいのは、水まわりが全て新品なこと!古さで気になるのはやはり水まわりですが、こちらはその心配もなく、ピカピカなキッチン、トイレ、お風呂で快適な生活を送れます♪

ドアなどは昭和感が残る古さを感じますが、「レトロ」と捉えて、それも活かしたインテリアにするのもいいかもしれません。

デメリットとしては三階まで階段のみなこと、ガスレンジやシューズクローゼットが無いのでご用意が必要なこと。
とはいえ、それを考慮しても駅チカで、キレイにリノベされたこちらの物件は魅力的かと思います。

ぜひお問合せ下さい♪

続きを読む

見学したい(無料)

部屋も心も開放~!

無料
無料

静岡県浜松市中央区高林3-11-26

1LDK /66.57m² /1986年10月

助信駅から徒歩約9分という好立地にあるアクセス良好の物件をご紹介します。

152号線を少し入った閑静な住宅地にある少し古いマンションですが、中はしっかりとリノベーションされているのでとっても綺麗。

驚いたのは、LDKがとにかく広~~いこと!
もともと2部屋だった場所を繋げてあるので17帖以上あり、日当たりも良いので心も開放的な気分になります。
リビングには細長いウォークインクローゼットもあるので収納も心配なし。

お部屋は他にもう1部屋あり、そちらにもクローゼットがついています。

そして嬉しいのは、水まわりが全て新品なこと!
古さで気になるのはやはり水まわりですが、こちらはその心配もなく、ピカピカなキッチン、トイレ、お風呂で快適な生活を送ることができます。

ドアなどは昭和感が残る古さを感じますが、「レトロ」と捉えて、それも活かしたインテリアにするのもいいかもしれません。

デメリットとしては3階まで階段のみなこと、ガスレンジやシューズクローゼットが無いのでご用意が必要なこと。
とはいえ、それを考慮しても駅チカで、キレイにリノベされたこちらの物件は魅力的かと思います。

続きを読む

見学したい(無料)

愛犬と快適ライフ!

無料
無料

静岡県浜松市中央区上浅田1-14-39

2LDK /74.52m² /2007年12月

ペット好きにはたまらない、そんな理想のお部屋がここにあります。

ペット可のこの物件、20帖の広々としたリビングはあなたと愛犬の楽園。
一緒に過ごす時間がもっと特別なものになるはずです。

そして、収納スペースはたっぷり。
ペット用品も、お気に入りのアイテムもすっきり収められます。
お部屋は常にスッキリ、心地よい空間を保てますよ。

さらに駅チカなので、毎日の通勤もラクラク。
お出かけも思い立ったらすぐに。
この便利さ、毎日感じることができます。

2人暮らし、そして愛犬との暮らしに最適なこのお部屋。
オシャレでスタイリッシュな空間で、新しい生活をスタートさせませんか?
あなたとペットのための、理想的な住まいがここにあります。
あなたと愛犬の新しい物語が、ここから始まります。

※画像は管理会社様からご提供頂いた物です。

続きを読む

見学したい(無料)

湖畔の美しい景色とペットとの生活を楽しめる最高のお部屋

24万円
無料

静岡県浜松市中央区富塚町1928-8

3LDK /89.22m² /1986年12月

ペットと共に暮らす夢の湖畔ライフ!
素晴らしい眺望を誇る理想的な賃貸物件です!

ペットを家族の一員として大切にするご家族様の気持ちを形にしたお部屋!
扉には、ペット用の扉も完備しており、お部屋を自由に行き来できます!

他のお部屋と比べ、フローリングの色味や、キッチン、洗面台が
綺麗なところもおススメです!

そして、このお部屋の最大の特徴は、佐鳴湖の眺望です。
早朝の散歩や夕暮れ時のリラックスタイムに、湖岸を散策することが
できます。自然の美しさが四季を通じて変化する様子を、あなたのお部屋から直接体験してみて下さい!

※画像は管理会社様からご提供頂いたものです。

続きを読む

見学したい(無料)

可愛い家族との、理想の居場所

19万円
無料

静岡県静岡県浜松市中央区富塚町1928-8

3LDK /80.78m² /1986年12月

ペットとの生活を愛するあなたにぴったりの、ペット同居可能なお部屋!
大切な家族であるペットと共に、快適で安心な毎日を過ごすことができます!

周辺環境もペットに優しく、散歩や運動に最適な公園が近くにあります!
少し足を伸ばして、佐鳴湖周辺に出れば、お散歩をしている方が多いので、お友達も増やせるかも!

リビングは自然光が惜しむことなく降り注ぐ、優しい明るいお部屋!
キッチンは、大きなシンクがついていて、洗い物もすいすい出来ちゃう、主婦の味方!
周辺施設も、充実しており立地条件も最高!

あなたとペットにとって、新しい幸せな生活の始まりを、ここで見つけてみてはいかがですか?

※画像は管理会社様よりご提供頂いたものです。

続きを読む

見学したい(無料)

【新築!!】私のスタート!!

無料
8.2万円

静岡県浜松市中央区西浅田2-2-39

2LDK /60.13m² /2024年1月下

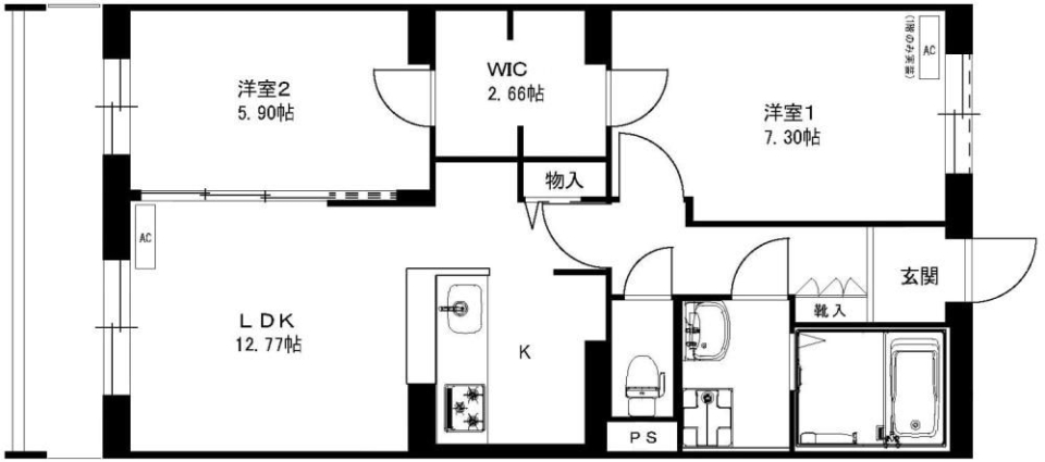
2024年1月下旬完成予定!!の新築マンションのご紹介です!!
(※入居は2月からになります)

場所は、西浅田町。浜松駅までも近く、近隣にはスーパーやコンビニなど住環境が充実している住みやすい町です。

LDKは、12.77帖と広く、他に洋室も二部屋あります。南面なので陽当たりも良く、心地よい日差しが降り注ぎます。
そして収納も、ウォークスルークローゼット付きで、南から北側のお部屋へと繋がっています。

設備も、光インターネット無料(1Gbps)1Fのみエアコン2台(LDKと北洋間)!スロープ状の廊下でベビーカーも楽々です♪

まだ誰も踏み入れてない新しい部屋へ、最初の一歩を踏み出しませんか??
お問い合わせお待ちしております。

※写真は、工事中の写真になります。

続きを読む

見学したい(無料)

【新築!!】心も家も新たに!!

無料
8万円

静岡県浜松市中央区西浅田2-2-39

2LDK /60.13m² /2024年1月下

2024年1月下旬完成予定!!の新築マンションのご紹介です!!
(※入居は2月からになります)

場所は、西浅田町。浜松駅までも近く、近隣にはスーパーやコンビニなど住環境が充実している住みやすい町です。

LDKは、12.77帖と広く、他に洋室も二部屋あります。南面なので陽当たりも良く、心地よい日差しが降り注ぎます。
そして収納も、ウォークスルークローゼット付きで、南から北側のお部屋へと繋がっています。

設備も、光インターネット無料(1Gbps)1Fのみエアコン2台(LDKと北洋間)!スロープ状の廊下でベビーカーも楽々です♪

まだ誰も踏み入れてない新しい部屋へ、最初の一歩を踏み出しませんか??
お問い合わせお待ちしております。

※写真は、工事中の写真になります。

続きを読む

見学したい(無料)

【新築!!】ピカピカ?ほやほや?

無料
8万円

静岡県浜松市中央区西浅田2-2-39

2LDK /60.13m² /2024年1月下

2024年1月下旬完成予定!!の新築マンションのご紹介です!!
(※入居は2月からになります)

場所は、西浅田町。浜松駅までも近く、近隣にはスーパーやコンビニなど住環境が充実している住みやすい町です。

LDKは、12.77帖と広く、他に洋室も二部屋あります。南面なので陽当たりも良く、心地よい日差しが降り注ぎます。
そして収納も、ウォークスルークローゼット付きで、南から北側のお部屋へと繋がっています。

設備も、光インターネット無料(1Gbps)1Fのみエアコン2台(LDKと北洋間)!スロープ状の廊下でベビーカーも楽々です♪

まだ誰も踏み入れてない新しい部屋へ、最初の一歩を踏み出しませんか??
お問い合わせお待ちしております。

※写真は、工事中の写真になります。

続きを読む

見学したい(無料)

ガレージが味方!自由な一人暮らしの始まりです♪

無料
8.7万円

静岡県浜松市中央区渡瀬町227

1LDK /74.53m² /2020年03月

新生活、新しい一歩をガレージつきのおしゃれな1LDKで始めませんか?これからの素敵な日々が、ここからスタートしますよ!

まず、お部屋の間取りは1LDK。ちょうどいい広さで、自分らしい空間を演出できます。そして、このお部屋は木造で、心地よい温もりを感じながら、くつろげる空間が広がっています。

周辺施設は充実しており、徒歩圏内にコンビニ、スーパー、ドラッグストア、銀行、郵便局が全て揃っています。買い物や手続きなどがスムーズに行え、快適な日常生活が送れます。

お料理好きな方には嬉しい3口コンロが付いたキッチンがあり、自分のお気に入りの料理を楽しむことができます。さらに、お部屋は南向きで、陽当たり良好。明るくて気持ちの良い空間で、毎日が明るく始まります。

そして、何よりも魅力的なのが、ガレージ付き!自分の愛車を守りながら、かっこいいライフスタイルを楽しむことができます。友達を呼んでワークショップを開いたり、趣味のスペースとして使ったり、アイデア次第で楽しみ方は無限大です。

新しい一人暮らしのスタートに、ガレージつきの素敵な1LDKがピッタリです。ここでの生活が、自分らしいスタイルを確立する第一歩となるでしょう。気になった方、ぜひ一度足を運んでみてください。楽しみがたくさん詰まった新しい暮らしを始めましょう!

※画像は管理会社様にご提供いただいたものです。

続きを読む

見学したい(無料)

憧れの戸建てに愛犬と[ペット可]

無料
無料

静岡県浜松市中央区神田町92-10

3LDK /66.52m² /1993年1月

希少なペット可の戸建て物件のご紹介です!!

場所は、馬込川からほど近い場所ある神田町。スーパーやドラックストアなど住環境の整ったエリアにあります。

外観からすると古いな~という感じですが、中へ入ると多少の古さは感じるものの、壁紙全張替、二階の床張り替え、キッチン、洗面所やトイレなど水回りも大型リフォームされているのでとても綺麗です。

ペット可でも戸建てとなると少なく、あっても家賃がお高めの場合が多いんですが、こちらの物件は戸建てでありながら、家賃は68,000円!!しかも、小型犬なら二匹まで可能となっているので、愛犬と一緒に暮らしたい!!という方には、とてもおすすめです♪

お部屋も3LDKと十分な広さがあり、一階に二部屋、二階がLDKと洋室が一部屋あります。収納も各部屋にあり充実しています。

リビングには、なかなか天窓があるという珍しい部屋。二階なので陽当たり抜群!!愛犬と一緒に日向ぼっこしながら眠るのもいいかもですね~。
そしてリビングの変な場所に床下収納がなぞにあるという(笑)ちょっと面白い物件です。

一階にはシャッターがあり、テレビインターホンもあるので防犯面も安心です。

ただ一つ、建物前の駐車場が狭いので、軽自動車であれば問題ないですが、それ以外のお車の場合は車幅を確認したほうが良いと思います。

戸建でワンちゃんと一緒に暮らしませんか??ぜひお問い合わせください。

続きを読む

見学したい(無料)

あなたが待ち望んだ理想の住まい

6.8万円
無料

静岡県浜松市中央区上石田町2287

2LDK /57.71m² /2020年10月

新生活を彩る理想のお部屋がこちら!
築浅でピカピカの内装が自慢のこの物件、一人暮らしにも二人暮らしにもぴったりなサイズ感です。
日々の暮らしを快適にするたっぷりの収納スペースも完備。
洋服や趣味のアイテムもすっきりと収められます。

そして、キッチン!これがまた使いやすいんです。
広々とした対面キッチンは、料理をしながら会話も楽しめる設計。
友達を招いてのホームパーティーも、もっと楽しくなりそう。

お部屋のもう一つの魅力は、陽当たりの良さ。
朝の柔らかな光が、新しい一日を優しく迎えてくれます。
窓辺での一息が、日々の小さな幸せに。

こんな素敵なお部屋で、あなた色の生活を始めてみませんか?
新しいスタートにふさわしい、おしゃれで快適な空間がここにあります。

続きを読む

見学したい(無料)

【築浅!!】高級ホテルみたい!?

22万円
11万円

静岡県浜松市中央区常盤町141-13

2LDK /89.02m² /2020/12

浜松の街中にある戸建て風のアパートのご紹介です?
場所は、常盤町。遠州病院駅から徒歩2分!!浜松駅までも徒歩圏内で行ける好アクセスな場所にあります。街中なので、車をお持ちでない方でも何かと便利♪お車の方も、目の前に駐車場が一台付いています。

直ぐ近くにスーパーや保育園もあるので、小さいお子様がいる方も便利。

そして一見すると二階建ての戸建てに見える建物ですが、こちらは一階と二階だけの二棟のアパートになります。ですので、普通のアパートよりも周りの音を気にすることなく過ごせるのは、嬉しい特権です。今回ご紹介するのは、二階部分のお部屋です。

中へ入ると、シックなブラウンの内装が落ち着いた雰囲気。階段を上るとちょっと豪華な手すりがついた場所は、広い踊り場となっています。
そして、ガラス戸を開けるとそこは広~い20.2帖もあるLDK!!

ワイドキッチンにカウンタースペースも広々!!なんだか高級ホテルみたいです。LDKの一部スペースには、ん!??本棚がある!!??と思いきや、本棚を模した壁紙でした(笑)ここは、おしゃれな書斎コーナーなんです。

そしてリビングには、大容量のウォークインクローゼットもあります。洋室は奥に二部屋あり、それぞれにクローゼットがあるので、収納には困りません。
バルコニーも広いので、お洗濯物も余裕で干せます。

お風呂は追い焚きで一坪風呂、全室エアコン、照明付き!!設備も充実しています。

唯一、LDKがガラス戸なので、気になる方は気になるかもしれませんが、場所や他が充実しているのでおすすめの物件です?
ぜひお問い合わせください。

続きを読む

見学したい(無料)

【新築】憧れのガレージハウス!!

無料
9.2万円

静岡県浜松市中央区助信町31-59

1LDK /64.45m² /2023年12月

助信駅より徒歩7分、新築ガレージハウスが完成します!

お部屋は1LDKで、3階建ての全5戸となります。
LDKは12.3帖となかなかの広さです。

車を重視しすぎて肝心の居住スペースに余裕がない何てこともしばしば、、、

しかし2口のキッチンや洋室、収納も十分にあります!
機能性もさることながら、デザイン性も良いのがイメージパースから見て取れますね◎

何かと場所をとるアウトドアギアの数々、かさばってゆくお洋服や荷物、もう困る事はありません!
ガレージハウスを選んで暮らす多趣味な貴方にピッタリです。

新築ならではの充実設備のおうちをぜひ!

続きを読む

見学したい(無料)

愛車と暮らすガレージハウス[新築]

無料
9.7万円

静岡県浜松市中央区助信町31-59

2LDK /74.32m² /2023年12月

助信駅より徒歩7分、新築ガレージハウスが完成します!
3階建全5戸タイプのテラスハウスとなっており、こちらのB号室は2LDKとなっています。

三階建てとなっており、一階はガレージとトイレ&お風呂などの水回り、二階はLDK、三階に洋室二部屋があり、日当たりの良い明るい部屋となっております。

LDKは12.3帖、洋室は5帖と4.5帖のコンパクトなサイズですが、大きなウォークインクローゼットもあったり、バルコニーも小さいながらに二階と三階それぞれにあります。
設備も、2口のキッチン、浴室乾燥機、追い焚き機能、防犯カメラもついていて、充実しています。

居住スペースもしっかりと確保されているので、愛車を愛でながらプライベートもゆったりと過ごしたい方にはピッタリです。

ガレージの車幅が車によってはギリギリなので、一度見ていただくことをお勧め致します。
新築ならではの充実設備のおうちをご家族でぜひ!!


※定期借家契約ですのでご注意ください。

続きを読む

見学したい(無料)

【売買物件】和モダン、ここに極まれり

静岡県磐田市一言761-5

4LDK /122.24m² /1976年01月

この4LDKのリデザインホームは、古き良き日本の伝統と現代のスマートな生活が見事にハーモニーを奏でています。

間取りは4LDK。和室も隣接されながら、18帖の広々LDKはリノベーションされていて、インテリアによってはモダンテイストに大変身。

床の冷たさ知らずの畳部屋で、季節の移ろいを感じながらのんびりとお茶を楽しむもよし。
洋室で最新のガジェットに囲まれて生活の質をアップデートするもよし。

この家は生活を彩る舞台です。
モダンなキッチンで料理の腕をふるいつつ、時には和室でゆったりと寛ぐ。そんな風に、一日のシーンを切り替える楽しみ方ができます。


※画像は管理会社様からご提供いただいたものです。

続きを読む

見学したい(無料)

清潔感のあるキッチン

無料
6.1万円

静岡県磐田市富丘95-1

1LDK /47.81m² /2010年12月

日差しがたっぷりと降り注ぐ南向きの部屋、そんなあなたの新しい住まいはいかがですか?磐田駅まで車でほんの14分、徒歩でもちょっとした散歩気分で55分の距離。ちょっと車を走らせれば、たった5分でバイパスにアクセスできます。これなら、通勤やお出かけもラクラクですね。

ちなみに、お車をお持ちの方には駐車場もご用意してありますが、有料となっております。しかし、インターネット使用料はなんと無料!!リモートワークをされる方には特に嬉しいポイントですよね。おうち時間をもっと充実させましょう。

部屋は1LDKで、ちょうどいい広さ。二人暮らしにも、一人暮らしにもぴったりです。特におすすめしたいのが、専用の庭付き。ここでは、お好きな植物を育てたり、のんびりとしたティータイムを楽しんだり。自分だけの特別な空間を作ることができます。

新生活をゆったりと、そしてのんびりと始めたい方にぴったりのこの物件。日々の生活にちょっとした幸せを感じることができるはずです。興味が湧いたら、ぜひ一度見に来てくださいね。あなたの新しい住まいが、ここにありますよ。

※画像は管理会社様からご提供頂いたものです。

続きを読む

見学したい(無料)

【新築!ペット可】こんな戸建て探してた!!

30万円
無料

静岡県浜松市中央区蜆塚3-8-41-2

3LDK /89.44m² /2024/1

出来立てホヤホヤ!!2024年1月にできたばかりの新築戸建て賃貸のご紹介です。

こちらは広沢小学校、蜆塚中学校からも近い距離にある人気の蜆塚にあります。蜆塚はアクセスも良好で暮らしやすい環境なので、人気がありますよね。
この戸建ては同じ間取りの賃貸が、9棟並んでいます。

外観も可愛いのですが、中もナチュラルな木の風合いが落ち着く、家族が楽しく明るく過ごせそうな空間になっています。
更に愛犬家には嬉しい、新築なのにペット可物件なんです!!庭も広いので、ワンちゃんと子供たちと遊ぶこともできますよ。

LDKは16帖と広く、二階には3部屋あります。ウォークインクローゼットはじめ、収納は各部屋に付いているので、家族が多く荷物が多くなっても安心です。

入居は、3月からになりますが、春からの新しい門出を家族でステキな戸建てからスタートしませんか??

続きを読む

見学したい(無料)

【新築!ペット可】毎日愛犬と運動会?

30万円
無料

静岡県浜松市中央区蜆塚3-8-41-2

3LDK /89.44m² /2024/1

出来立てホヤホヤ!!2024年1月にできたばかりの新築戸建て賃貸のご紹介です。

こちらは広沢小学校、蜆塚中学校からも近い距離にある人気の蜆塚にあります。蜆塚はアクセスも良好で暮らしやすい環境なので、人気がありますよね。
この戸建ては同じ間取りの賃貸が、9棟並んでいます。

外観も可愛いのですが、中もナチュラルな木の風合いが落ち着く、家族が楽しく明るく過ごせそうな空間になっています。
更に愛犬家には嬉しい、新築なのにペット可物件なんです!!庭も広いので、ワンちゃんと子供たちと運動会さながらに走ることもできちゃいます♪

LDKは16帖と広く、二階には3部屋あります。ウォークインクローゼットはじめ、収納は各部屋に付いているので、家族が多く荷物が多くなっても安心です。

入居は、3月からになりますが、春からの新しい門出を家族でステキな戸建てからスタートしませんか??

続きを読む

見学したい(無料)

家族も愛犬も安心の戸建て[新築]

30万円
無料

静岡県浜松市中央区蜆塚3-8-41-2

3LDK /89.44m² /2024/1

出来立てホヤホヤ!!2024年1月にできたばかりの新築戸建て賃貸のご紹介です。

こちらは広沢小学校、蜆塚中学校からも近い距離にある人気の蜆塚にあります。蜆塚はアクセスも良好で暮らしやすい環境なので、人気がありますよね。
この戸建ては同じ間取りの賃貸が、9棟並んでいます。

外観も可愛いのですが、中もナチュラルな木の風合いが落ち着く、家族が楽しく明るく過ごせそうな空間になっています。
更に愛犬家には嬉しい、新築なのにペット可物件なんです!!庭も広いので、ワンちゃんと子供たちと運動会さながらに走りまわることもできます♪

LDKは16帖と広く、二階には3部屋あります。ウォークインクローゼットはじめ、収納は各部屋に付いているので、家族が多く荷物が多くなっても安心です。

入居は、3月からになりますが、春からの新しい門出を家族でステキな戸建てからスタートしませんか??

続きを読む

見学したい(無料)

いつも一緒に、愛犬と住む戸建て[ペット可]

30万円
無料

静岡県浜松市中央区蜆塚3-8-41-2

3LDK /89.44m² /2024/1

出来立てホヤホヤ!2024年1月にできたばかりの戸建て賃貸のご紹介です。

こちらは広沢小学校、蜆塚中学校からも近い距離にある人気の蜆塚にあります。蜆塚はアクセスも良好で暮らしやすい環境なので、人気がありますよね。
この戸建ては同じ間取りの賃貸が、9棟並んでいます。

外観も可愛いのですが、中もナチュラルな木の風合いが落ち着く、家族が楽しく明るく過ごせそうな空間になっています。
更に愛犬家には嬉しい、新築なのにペット可物件なんです!庭も広いので、ワンちゃんと子供たちと遊ぶこともできますよ。

LDKは16帖と広く、二階には3部屋あります。ウォークインクローゼットはじめ、収納は各部屋に付いているので、家族が多く荷物が多くなっても安心です。

入居は、3月からになりますが、春からの新しい門出を家族でステキな戸建てからスタートしませんか?

続きを読む

見学したい(無料)

【新築!ペット可!】のびのび暮らせる家族空間

30万円
無料

静岡県浜松市中央区蜆塚3-8-41-2

3LDK /89.44m² /2024/1

出来立てホヤホヤ!!2024年1月にできたばかりの新築戸建て賃貸のご紹介です。

こちらは広沢小学校、蜆塚中学校からも近い距離にある人気の蜆塚にあります。蜆塚はアクセスも良好で暮らしやすい環境なので、人気がありますよね。
この戸建ては同じ間取りの賃貸が、9棟並んでいます。

外観も可愛いのですが、中もナチュラルな木の風合いが落ち着く、家族が楽しく明るく過ごせそうな空間になっています。
更に愛犬家には嬉しい、新築なのにペット可物件なんです!!庭も広いので、ワンちゃんと子供たちと遊ぶこともできますよ。

LDKは16帖と広く、二階には3部屋あります。ウォークインクローゼットはじめ、収納は各部屋に付いているので、家族が多く荷物が多くなっても安心です。

入居は、3月からになりますが、春からの新しい門出を家族でステキな戸建てからスタートしませんか??

続きを読む

見学したい(無料)

家族にもペットにも優しい家[新築]

30万円
無料

静岡県浜松市中央区蜆塚3-8-41-2

3LDK /89.44m² /2024/1

出来立てホヤホヤ!!2024年1月にできたばかりの新築戸建て賃貸のご紹介です。

こちらは広沢小学校、蜆塚中学校からも近い距離にある人気の蜆塚にあります。蜆塚はアクセスも良好で暮らしやすい環境なので、人気がありますよね。
この戸建ては同じ間取りの賃貸が、9棟並んでいます。

外観も可愛いのですが、中もナチュラルな木の風合いが落ち着く、家族が楽しく明るく過ごせそうな空間になっています。
更に愛犬家には嬉しい、新築なのにペット可物件なんです!!庭も広いので、ワンちゃんと子供たちと遊ぶこともできますよ。

LDKは16帖と広く、二階には3部屋あります。ウォークインクローゼットはじめ、収納は各部屋に付いているので、家族が多く荷物が多くなっても安心です。

入居は、3月からになりますが、春からの新しい門出を家族でステキな戸建てからスタートしませんか??

続きを読む

見学したい(無料)

憧れの戸建てに愛犬と暮らす!![新築]

30万円
無料

静岡県浜松市中央区蜆塚3-8-41-2

3LDK /89.44m² /2024/1

出来立てホヤホヤ!!2024年1月にできたばかりの新築戸建て賃貸のご紹介です。

こちらは広沢小学校、蜆塚中学校からも近い距離にある人気の蜆塚にあります。蜆塚はアクセスも良好で暮らしやすい環境なので、人気がありますよね。
この戸建ては同じ間取りの賃貸が、9棟並んでいます。

外観も可愛いのですが、中もナチュラルな木の風合いが落ち着く、家族が楽しく明るく過ごせそうな空間になっています。
更に愛犬家には嬉しい、新築なのにペット可物件なんです!!庭も広いので、ワンちゃんと子供たちと遊ぶこともできますよ。

LDKは16帖と広く、二階には3部屋あります。ウォークインクローゼットはじめ、収納は各部屋に付いているので、家族が多く荷物が多くなっても安心です。

新しい門出を家族でステキな戸建てからスタートしませんか??

続きを読む

見学したい(無料)

ペットも人も快適な住まい[ペット可]

30万円
無料

静岡県浜松市中央区蜆塚3-8-41-2

3LDK /89.44m² /2024/1

出来立てホヤホヤ!!2024年1月にできたばかりの築浅戸建て賃貸のご紹介です。

こちらは広沢小学校、蜆塚中学校からも近い距離にある人気の蜆塚にあります。蜆塚はアクセスも良好で暮らしやすい環境なので、人気がありますよね。
この戸建ては同じ間取りの賃貸が、9棟並んでいます。

外観も可愛いのですが、中もナチュラルな木の風合いが落ち着く、家族が楽しく明るく過ごせそうな空間になっています。
更に愛犬家には嬉しい、新築なのにペット可物件なんです!庭も広いので、ワンちゃんと子供たちと遊ぶこともできますよ。

LDKは16帖と広く、二階には3部屋あります。ウォークインクローゼットはじめ、収納は各部屋に付いているので、家族が多く荷物が多くなっても安心です。

入居は、3月からになりますが、春からの新しい門出を家族でステキな戸建てからスタートしませんか??

続きを読む

見学したい(無料)

曳馬ライフ、始めよう!13帖の幸せ空間

14.4万円
7.2万円

静岡県浜松市中央区曳馬4-11-4

1LDK /47.88m² /2007年9月

新しい生活のスタートにぴったりの賃貸物件をご紹介します。
曳馬駅からたったの徒歩6分という、便利な立地で、日々の通勤やお出かけにもストレスフリー。
おしゃれなカフェや便利なショップが近くにあるので、生活がもっと楽しくなりそうですね。

この物件の特長は、その広々とした13帖の1LDK。
リビングとダイニングが一体となった空間は、お一人様にも、カップルにもちょうど良い広さです。
友達を呼んでホームパーティーを楽しんだり、のんびりと自分だけの時間を過ごしたり、使い方はあなた次第。

そして、この物件のハイライトはそのミントグリーンのキッチン。
色といいデザインといい、料理をするたびに気分が上がりそう!
お料理好きなあなたにも、これから料理を始めたいあなたにも、毎日のキッチンタイムをもっと楽しいものにしてくれるはず。

シンプルだけどおしゃれ、そして機能的。
そんな物件で新しい生活をスタートさせませんか?
きっと、ここがあなたの新しいお家になることを感じられるはずです。

※画像は管理会社様にご提供いただいたものです。

続きを読む

見学したい(無料)

光溢れる部屋で、新生活スタート!

無料
6万円

静岡県磐田市小立野573

2LDK /55.27m² /2014年3月

新生活を始めるあなたにぴったりのお部屋、見つけました!
明るくて日当たりの良いこの角部屋は、一人暮らしやカップルに最適。
朝から自然の光がさんさんと降り注ぎ、気持ちの良いスタートを切れますよ。

特に注目したいのは、一坪もあるゆったりとしたお風呂。
長い一日の疲れをじっくり癒せる空間です。
おしゃれなデザインの洗面台も、毎日のルーティンを特別な時間に変えてくれます。
お部屋の中での小さな贅沢を、ぜひ楽しんでくださいね。

キッチンは対面式。
料理をしながらお部屋を見渡せるので、一人でも、大切な人と一緒にいても、会話が弾みます。
友達を招いてのホームパーティーも、より楽しいものになるはず。
おしゃれな空間で、美味しい食事と楽しい時間を。

このお部屋は、新しい一歩を踏み出すあなたを待っています。
日差しいっぱいの明るい空間で、心地良い毎日を送りませんか?

※画像は管理会社様からご提供頂いたものです。

続きを読む

見学したい(無料)

四角いギャラリーに住まう[ペット可]

22万円
11万円

静岡県浜松市浜名区細江町中川2668-2

4SLDK /110.95m² /2022年

目の前には都田川が流れる細江町の自然豊かな場所に、突然現れるギャラリーのような四角い戸建て。
真っ白いお家はパッと目を惹きます。

庭もとっても広いので駐車場も3台くらい停めれそう(※要確認)。お子様のいる方は、ブランコや遊び場にもなりそうです。

内装は木を基調としたナチュラルな空間で、リビングは窓を大きくとってあり、吹き抜けとなっています。
家族が多くの時間を過ごす家の中心であるリビングの吹き抜けは、いつでも家族を近くに感じられる空間になっています。

吹き抜けを通じて2階廊下とリビング空間が繋がることで、より家族のコミュニケーションが取りやすくなり、小さなお子さまがいる場合は家事をしながら子どもの様子を確認できて安心です。

さらにリビングのスケルトン階段も、階段自体がインテリアとしておしゃれな空間のアクセントになっています。
この空間にいると、本当に美術館にでも来たような感じに。トイレや洗面台もところどころオシャレで、テンションが上がります!

キッチンもワイドなのでとっても広く、自然と家族が集まって団らん出来そうです。料理好きな方は腕を振るいたくなりそうですね。

収納も充実していて、一階には玄関横に大きな収納倉庫があります。二階には、洗面所の奥にウォークインクローゼットがあります。

二階は、水回りと4.5帖の洋室が三部屋があり、そのうちの一つは二部屋を繋げて9帖の部屋にすることができるので、お子様の成長や用途に合わせて自由にできるのも魅力です。

環境も静かで、隣には幼稚園と小学校があるので、お子様が通うのも安心な距離です。

ただ、こちらは2027年1月までの定期借家となっておりますので、その辺りをご了承の上、ご検討ください。
自然豊かな環境で子育てしたい方、家族で静かに暮らしたい方にぜひおすすめです!

続きを読む

見学したい(無料)

日当たり良好!セキュリティ万全!

無料
5.9万円

静岡県磐田市上大之郷2-1

1LDK /37.01m² /2020年9月

静岡産業大学磐田キャンパスのすぐそば、
徒歩5分のところにあるこの賃貸物件、学生さんや若いカップルにぴったりですよ!

築浅で、お部屋の中は木の温もりを感じるデザイン。
新しい生活を始めるには最高の環境です。

南向きで最上階の角部屋なので、日当たりはもちろん、プライバシーの面でも安心。
朝から太陽の光がたっぷりと差し込み、気持ちのいい一日のスタートを切れます。
勉強や読書、趣味の時間も、自然光あふれるお部屋だともっと楽しくなるはず。

セキュリティ面もバッチリ。
一人暮らしや、初めての共同生活を始める方にも安心してお選びいただける条件を整えています。
夜遅くなっても、安心して帰宅できる立地なので、学校行事やお仕事で遅くなることがあっても大丈夫です。

さらに、木のぬくもりを感じる内装は、落ち着いた雰囲気でリラックスできる空間を作り出します。
自分だけのスペースを自由にアレンジして、快適な生活を楽しんでみませんか?

※画像は管理会社様からご提供頂いたものです。

続きを読む

見学したい(無料)

【新築!】すっきりエコに暮らそう

無料
7.5万円

静岡県浜松市浜名区小松4543-1

1LDK /41.12m² /2023/12

浜北小松駅から徒歩2分!!というアクセス便利な場所にできた、2023年12月完成の新築物件をご紹介します!!

これだけでも十分魅力的なんですが、まだまだ魅力満載なんです!!

というのも、こちらの物件はめちゃくちゃ収納が充実しているんですね。写真を見ていただいてもわかるように、廊下にもリビングにもキッチンにも、洋室にも洗面所、トイレと、収納だらけ(笑)収納の無い部屋は無いと思います。見せる収納と隠す収納を上手に使い分けて、「自分スタイル」をぜひ楽しんでください?

そしてさらにこのお部屋、とってもお財布に優しいんです。
超省エネ+創エネで一次エネルギー収支ゼロ!!を目指すZEH-M物件なんですね~。電気代が高騰している今、これはかなり嬉しいですよね。太陽光発電なので電気代の心配もいりませんし、備え付けの照明はLED、高効率エアコンと至れり尽くせりです。

セキュリティーもALSOK、一階ですがシャッターがあるので防犯面も安心です。
浴室乾燥、室内干しなどあるので外干しに抵抗がある女性や、雨の日でも安心して過ごせます。

LDKも12.2帖と5.2帖があり、ウォークインクローゼット付きと、設備も充実。

まだ誰も踏み入れていない新築のお部屋に、最初の一歩を踏み入れませんか??

続きを読む

見学したい(無料)

駅チカ、心ピカ、あなたの新しい巣

14万円
7万円

静岡県浜松市中央区曳馬4-11-4

1LDK /47.88m² /2007年9月

新しい生活のスタートにぴったりの賃貸物件をご紹介します。
曳馬駅からたったの徒歩6分という、便利な立地で、日々の通勤やお出かけにもストレスフリー。
おしゃれなカフェや便利なショップが近くにあるので、生活がもっと楽しくなりそうですね。

この物件の特長は、その広々とした13帖の1LDK。
リビングとダイニングが一体となった空間は、お一人様にも、カップルにもちょうど良い広さです。
友達を呼んでホームパーティーを楽しんだり、のんびりと自分だけの時間を過ごしたり、使い方はあなた次第。

そして、この物件のハイライトはそのミントグリーンのキッチン。
色といいデザインといい、料理をするたびに気分が上がりそう!
お料理好きなあなたにも、これから料理を始めたいあなたにも、毎日のキッチンタイムをもっと楽しいものにしてくれるはず。

シンプルだけどおしゃれ、そして機能的。
そんな物件で新しい生活をスタートさせませんか?
きっと、ここがあなたの新しいお家になることを感じられるはずです。

※画像は管理会社様にご提供いただいたものです。

続きを読む

見学したい(無料)

物を増やさない部屋[新築]

無料
7.95万円

静岡県浜松市浜名区小松4543-1

1LDK /43.91m² /2023年12月

こちらの物件はめちゃくちゃ収納が充実しているんですね。
写真を見ていただいてもわかるように、廊下にもリビングにもキッチンにも、洋室にも洗面所、トイレと、収納だらけ。
収納の無い部屋は無いと思います。
これだけあれば、物も増えずにすっきりと過ごせますね◎

そしてさらにこのお部屋、とってもお財布に優しいんです。
超省エネ+創エネで一次エネルギー収支ゼロ。を目指すZEH-M物件なんです。
電気代が高騰している今、これはかなり嬉しいですよね。
太陽光発電なので電気代の心配もいりませんし、備え付けの照明はLED、高効率エアコンと至れり尽くせりです。

セキュリティーもALSOK、一階ですがシャッターがあるので防犯面も安心です。
浴室乾燥、室内干しなどあるので外干しに抵抗がある女性や、雨の日でも安心して過ごせます。

LDKも12.2帖と5.2帖があり、ウォークインクローゼット付きと、設備も充実。

まだ誰も踏み入れていない新築のお部屋に、最初の一歩を踏み入れませんか。

続きを読む

見学したい(無料)

【新築!】見せる収納&隠す収納

無料
7.5万円

静岡県浜松市浜名区小松4543-1

1LDK /41.12m² /2023/12

浜北小松駅から徒歩2分!!というアクセス便利な場所にできた、2023年12月完成の新築物件をご紹介します!!

これだけでも十分魅力的なんですが、まだまだ魅力満載なんです!!

というのも、こちらの物件はめちゃくちゃ収納が充実しているんですね。写真を見ていただいてもわかるように、廊下にもリビングにもキッチンにも、洋室にも洗面所、トイレと、収納だらけ(笑)収納の無い部屋は無いと思います。見せる収納と隠す収納を上手に使い分けて、「自分スタイル」をぜひ楽しんでください?

そしてさらにこのお部屋、とってもお財布に優しいんです。
超省エネ+創エネで一次エネルギー収支ゼロ!!を目指すZEH-M物件なんですね~。電気代が高騰している今、これはかなり嬉しいですよね。太陽光発電なので電気代の心配もいりませんし、備え付けの照明はLED、高効率エアコンと至れり尽くせりです。

セキュリティーもALSOK、一階ですがシャッターがあるので防犯面も安心です。
浴室乾燥、室内干しなどあるので外干しに抵抗がある女性や、雨の日でも安心して過ごせます。

LDKも12.2帖と5.2帖があり、ウォークインクローゼット付きと、設備も充実。

まだ誰も踏み入れていない新築のお部屋に、最初の一歩を踏み入れませんか??

続きを読む

見学したい(無料)

【新築!!】エコライフな快適空間?

無料
7万円

静岡県浜松市浜名区小松4543-1

1LDK /41.12m² /2023/12

浜北小松駅から徒歩2分!!というアクセス便利な場所にできた、2023年12月完成の新築物件をご紹介します!!

これだけでも十分魅力的なんですが、まだまだ魅力満載なんです!!

というのも、こちらの物件は超省エネ+創エネで一次エネルギー収支ゼロ!!を目指すZEH-M物件なんですね~。電気代が高騰している今、これはかなり嬉しいですよね。太陽光発電なので電気代の心配もいりませんし、備え付けの照明はLED、高効率エアコンと至れり尽くせりです。

それだけではありません。セキュリティーもALSOK、一階ですがシャッターがあるので防犯面も安心です。
浴室乾燥、室内干しなどあるので外干しに抵抗がある女性や、雨の日でも安心して過ごせます。

LDKも12帖と4.6帖があり、ウォークインクローゼット付きと、設備も充実。

まだ誰も踏み入れていない新築のお部屋に、最初の一歩を踏み入れませんか??

続きを読む

見学したい(無料)

駅近!家賃安!家族にジャストフィット!

10万円
5万円

静岡県浜松市中央区中島1-4-7

3LDK /69.05m² /1987年11月

家族での新生活を夢見ているあなたにピッタリの賃貸物件がここにあります!
浜松駅まで歩いてたったの15分。毎日の通勤や買い物もラクラクで、休日のお出かけにも便利な立地ですよ。

この物件の魅力は、なんといってもその広さ。
3LDKの広々とした間取りは、家族での生活にぴったり。
リビングでの家族団欒の時間、それぞれのプライベートを大切にできる個室など、家族それぞれの幸せな時間を過ごせます。

内装はシンプルで、どんな家具やデコレーションにもマッチする普通のデザイン。
自分たちの好みでアレンジできるから、あなたの家族にとって最高の空間を作り出せます。
そして、何よりも家賃がリーズナブル。
家族住まいを考えているけど家賃を抑えたい方には、まさに理想的です。

さらに、2面、3面採光の明るい部屋も魅力の一つ。
自然光がたっぷり入るから、お部屋はいつも明るく、心地良い空間に。
朝日を浴びながらのスタートは、一日を元気に過ごす秘訣です。

「手頃な家賃で、家族みんなが快適に過ごせる場所」をお探しのあなたに、この物件はぴったりです。
きっと、あなたとあなたの家族にとって、理想のホームがここにありますよ。

※画像は管理会社様にご提供いただいたものです。

続きを読む

見学したい(無料)

日差しいっぱい、心も晴れやか

無料
無料

静岡県浜松市中央区曳馬3-30-15

賃料60,000円

1LDK /54.55m² /1998年10月

ぜひこの素敵な賃貸物件をチェックしてみてください!
遠州鉄道の曳馬駅と助信駅のど真ん中に位置していて、どちらの駅も歩いて15分の距離にあります。
朝の通勤や週末のお出かけにもぴったりの立地ですよ。

この物件の一番の自慢は、その広々とした18帖のLDK。
ゆったりとした空間で、お友達を招いたり、自分だけの時間を楽しんだり、思いのまま。
2面採光のおかげで、部屋はいつも明るく、心地よい自然光がたっぷり。
日差しを感じながらのんびり過ごす時間は、最高にリラックスできます。

内装は和モダンなテイストでまとめられていて、落ち着いた雰囲気の中にも新しさが感じられます。
一人暮らしにも、ふたり暮らしにもぴったり。
新しい生活を始めるあなたに、最高のスタートを切ってもらえるような、そんな物件です。

日々の暮らしを彩る素敵な空間で、新たなスタートを切ってみませんか?
きっと、あなたの理想の暮らしがここにはあるはずです。

※画像は管理会社様にご提供いただいたものです。

続きを読む

見学したい(無料)

時短通勤、時間の達人。

12.8万円
6.4万円

静岡県浜松市中央区上島2-25

1LDK /42.99m² /2008年5月

新しいスタートを切るあなたにピッタリな、おしゃれな物件をご紹介します!

この物件の自慢は何と言ってもキッチン。
きれいで使いやすいカウンターキッチンがお料理時間をもっと楽しく、特別なものに変えてくれるはずです。
料理をしながら、お気に入りの音楽やポッドキャストを楽しむ時間は、まさに至福のひととき。

そして、この物件のもう一つの魅力は、遠州鉄道上島駅まで徒歩たったの3分という好立地。
毎日の通勤やちょっとしたお出かけがとっても便利に。
時間を有効に使いたい忙しいあなたには、まさにうってつけの場所です。

この物件は、忙しくても質の高い生活を送りたい、そんな一人暮らしを始めるあなたにぴったり。
新生活の第一歩を踏み出す場所として、ぜひこの物件を選んでみてはいかがでしょうか。
ここから新しい毎日が始まりますよ。

※画像は管理会社様にご提供いただいたものです。

続きを読む

見学したい(無料)

快適な通勤生活

無料
7万円

静岡県袋井市高尾787-1

1LDK /49.21m² /2015年01月

新しいスタートを切りたいなら、この1LDK賃貸物件がぴったり!袋井駅まで徒歩わずか10分の駅チカな好立地で、忙しい朝もらくらく通勤できます。

このお部屋の魅力はたくさんあります。まず、ウォークインクローゼットとシューズボックスが完備されています。ファッション愛好者にとっては夢のような収納スペースで、おしゃれな洋服やシューズをたっぷり収納できます。お部屋は広々としており、LDKはなんと13.5帖ものスペースがあり、快適な生活を楽しめます。

また、カップルにもおすすめの物件です。ゆったりとしたリビングで二人の時間を大切に過ごせます。キッチンも広く、一緒に料理を楽しむことができますよ!

安心のホームセキュリティも完備しています。防犯カメラやセキュリティガラス、カードキーで、安全面もバッチリです。

おしゃれでスタイリッシュな生活を叶えたい方にぴったりのお部屋です。新しい一歩を踏み出して、この素敵な賃貸物件で素敵な生活を始めませんか?あなたの新しいライフスタイルがここから始まります!

※画像は管理会社様からご提供頂いたものです。

続きを読む

見学したい(無料)

【新築!】新しい一歩はあなたから

無料
7万円

静岡県浜松市浜名区小松4543-1

1LDK /41.12m² /2023/12

浜北小松駅から徒歩2分!!というアクセス便利な場所にできた、2023年12月完成の新築物件をご紹介します!!

これだけでも十分魅力的なんですが、まだまだ魅力満載なんです!!

というのも、こちらの物件は超省エネ+創エネで一次エネルギー収支ゼロ!!を目指すZEH-M物件なんですね~。電気代が高騰している今、これはかなり嬉しいですよね。太陽光発電なので電気代の心配もいりませんし、備え付けの照明はLED、高効率エアコンと至れり尽くせりです。

それだけではありません。セキュリティーもALSOK、一階ですがシャッターがあるので防犯面も安心です。
浴室乾燥、室内干しなどあるので外干しに抵抗がある女性や、雨の日でも安心して過ごせます。

LDKも12帖と4.6帖があり、ウォークインクローゼット付きと、設備も充実。

まだ誰も踏み入れていない新築のお部屋に、最初の一歩を踏み入れませんか??

続きを読む

見学したい(無料)

収納たくさんが嬉しい

無料
7.65万円

静岡県浜松市浜名区小松4543-1

1LDK /43.91m² /2023/12

浜北小松駅から徒歩2分というアクセス便利な場所にできた、2023年12月に完成した物件をご紹介します!

これだけでも十分魅力的なんですが、まだまだ魅力満載なんです!

というのも、こちらの物件はめちゃくちゃ収納が充実しているんですね。写真を見ていただいてもわかるように、廊下にもリビングにもキッチンにも、洋室にも洗面所、トイレと、収納だらけ。収納の無い部屋は無いと思います。これだけあれば、きちんと片付いて毎日すっきりですよね!

そしてさらにこのお部屋、とってもお財布に優しいんです。
超省エネ+創エネで一次エネルギー収支ゼロ!を目指すZEH-M物件なんですね~。電気代が高騰している今、これはかなり嬉しいですよね。太陽光発電なので電気代の心配もいりませんし、備え付けの照明はLED、高効率エアコンと至れり尽くせりです。

セキュリティーもALSOK、1階ですがシャッターがあるので防犯面も安心です。
浴室乾燥、室内干しなどあるので外干しに抵抗がある女性や、雨の日でも安心して過ごせます。

LDKも12.2帖と5.2帖があり、ウォークインクローゼット付きと、設備も充実。

素敵なお部屋で新たな生活を始めてみませんか?

続きを読む

見学したい(無料)

すっきりと暮らしたいあなたへ[新築]

無料
7.5万円

静岡県浜松市浜名区小松4543-1

1LDK /41.12m² /2023/12

浜北小松駅から徒歩2分!!というアクセス便利な場所にできた、2023年12月完成の新築物件をご紹介します!!

これだけでも十分魅力的なんですが、まだまだ魅力満載なんです!!

というのも、こちらの物件はめちゃくちゃ収納が充実しているんですね。写真を見ていただいてもわかるように、廊下にもリビングにもキッチンにも、洋室にも洗面所、トイレと、収納だらけ(笑)収納の無い部屋は無いと思います。これだけあれば、きちんと片付いて毎日すっきりですよね♪

そしてさらにこのお部屋、とってもお財布に優しいんです。
超省エネ+創エネで一次エネルギー収支ゼロ!!を目指すZEH-M物件なんですね~。電気代が高騰している今、これはかなり嬉しいですよね。太陽光発電なので電気代の心配もいりませんし、備え付けの照明はLED、高効率エアコンと至れり尽くせりです。

セキュリティーもALSOK、一階ですがシャッターがあるので防犯面も安心です。
浴室乾燥、室内干しなどあるので外干しに抵抗がある女性や、雨の日でも安心して過ごせます。

LDKも12.2帖と5.2帖があり、ウォークインクローゼット付きと、設備も充実。

まだ誰も踏み入れていない新築のお部屋に、最初の一歩を踏み入れませんか??

続きを読む

見学したい(無料)

お財布に嬉しいエコな部屋

無料
7.2万円

静岡県浜松市浜名区小松4543-1

賃料72,000円  
共益費/管理費6,000円

1LDK /41.12m² /2023年12月

浜北小松駅から徒歩2分というアクセス便利な場所にできた、2023年12月完成の物件をご紹介します!

これだけでも十分魅力的なんですが、まだまだ魅力満載なんです!

というのも、こちらの物件は超省エネ+創エネで一次エネルギー収支ゼロを目指すZEH-M物件なんですね。電気代が高騰している今、これはかなり嬉しいですよね。太陽光発電なので電気代の心配もいりませんし、備え付けの照明はLED、高効率エアコンと至れり尽くせりです。

それだけではありません。セキュリティーもALSOK、1階ですがシャッターがあるので防犯面も安心です。
浴室乾燥、室内干しなどあるので外干しに抵抗がある女性や、雨の日でも安心して過ごせます。

LDKも12帖と4.6帖があり、ウォークインクローゼット付きと、設備も充実。

快適な空間から生活を始めてみませんか?

続きを読む

見学したい(無料)

安全なひとり暮らしのスタート地点

無料
5.65万円

静岡県浜松市中央区和合町27-91

1LDK /33.78m² /2013年12月

新生活を始めるには、この1LDK賃貸物件が最適です!落ち着いた一人暮らしを叶えられる素敵なお部屋が、ここにあります。

まず、周辺施設が充実しています!コンビニまで徒歩わずか3分、スーパーまでは徒歩9分、郵便局も5分で行ける便利なロケーションです。忙しい日常もストレスなしにこなせ、買い物もサクサク済ませられますよ。

おしゃれなアイテムを大切にする方には、ウォークインクローゼットとシューズクロークが完備されています。洋室は少し狭めで、3.3帖ですが、落ち着いた雰囲気で自分らしい空間を演出できます。おしゃれなインテリアや小物を飾って、心地よいひとときを楽しんでください。

また、女性のひとり暮らしにも安心のセキュリティ対策が整っています。防犯カメラ、防犯ガラス、カードキーが導入されており、安全面も万全です。

このお部屋は、おしゃれでスタイリッシュな暮らしを求める方にぴったり。新しいスタートをこの素敵な1LDKで切りませんか?

※画像は管理会社様からご提供頂いたものです。

続きを読む

見学したい(無料)

12帖のLDK

無料
7.8万円

静岡県浜松市中央区高林2-10-25

1LDK /43.63m² /2015年03月

新しい生活を始めるなら、この素敵な1LDK賃貸物件がぴったりです!駅チカ好立地なので、忙しい朝もらくらく通勤が叶います。たくさんの魅力が詰まったこのお部屋、ぜひご覧ください。

まず、ウォークインクローゼットが自慢です!ファッション愛好者の方には夢のような収納スペースで、おしゃれな洋服やアクセサリー、バッグをたっぷり収納できます。さらに、シューズクロークや床下収納も完備していますので、お部屋はいつもスッキリと片付いています。

1LDKの広々とした間取りは、ひとり暮らしにもふたり暮らしにもぴったり。自分らしい空間を演出しやすく、生活のスタイルに合わせてアレンジできます。リビングとダイニングの広さも魅力で12帖あり、友達を招いて楽しいひとときを過ごすこともできますよ!

そして、助信駅まで徒歩わずか7分というアクセスの良さ。通勤・通学はもちろん、お買い物も便利です。周辺にはコンビニやスーパーなどが徒歩圏内に揃っており、快適な生活が約束されています。

このお部屋で新たなスタートを切りませんか?おしゃれでスタイリッシュな暮らしを叶えるチャンスがここにあります。お気軽にお問い合わせください。あなたの新しいライフスタイルが待っています!

※画像は管理会社様からご提供頂いたものです。

続きを読む

見学したい(無料)

新生活、一歩前進

無料
6.5万円

静岡県浜松市中央区佐鳴台1-26-2

1LDK /40.28m² /2023年9月

新しい生活のスタート地点はこちら!

南向きで日当たり抜群の築浅角部屋が、あなたを待っています。
明るい日差しは、毎日の活力となり、ポジティブな気持ちを育ててくれます。
築浅ならではの清潔感と快適さが、新しい生活を特別なものにします。

セキュリティーは万全。
安心して暮らせる環境で、プライバシーもしっかり守られています。

さらに、佐鳴湖に近く、公園もあるので、自然の美しさを楽しむことができます。
散歩やピクニック、リフレッシュする場所が身近に広がっています。

おしゃれでスタイリッシュな生活を始めたいひとり暮らしの方、新しい冒険をスタートしませんか?
南向きの陽光、築浅で新たなステージ、角部屋のプライバシー、セキュリティーの安心、佐鳴湖と公園の自然。
新しい生活が、ここから始まります!

※画像は管理会社様からご提供頂いたものです。

続きを読む

見学したい(無料)

新生活、はじめますか? - あなたとこの物件、ぴったりの理由

無料
無料

静岡県浜松市中央区小池町827-2

1LDK /45.90m² /2007年3月

あなたの新しい生活を始めるのに最適な賃貸物件をご紹介します。
この物件は、一人暮らしにも二人暮らしにもぴったりなサイズ感で、暮らし方に合わせて自由にレイアウトできます。
キッチンは、対面式で広々とした料理スペースを確保しているので、料理好きにはたまらない空間です。
さらに、LDKは13帖と広めで、ゆったりとした時間を過ごすことができます。

内装は、大きな特徴はないけれど、シンプルで無駄がなく、ストレスフリーな作りになっています。
シンプルながらも心地よい空間で、あなたのライフスタイルに合わせて自分だけの空間を作ることができます。

周辺環境も魅力的で、イオンモール市野まで車でわずか4分の好立地。
買い物にも便利で、日々の生活がさらに充実すること間違いなしです。
新しい生活を始めるあなたに、この物件は最高の選択になるはずです。

※画像は管理会社様にご提供いただいたものです。

続きを読む

見学したい(無料)

明るい明日が待ってる

無料
無料

静岡県浜松市中央区安間町99-4

1LDK /41.57m² /1990年3月

新しいスタートを迎えるなら、ここで決まり!

この角部屋は南向きで、一年中陽光が溢れます。
明るくて暖かい日差しは、毎日をポジティブに始めるお手伝い。
また、天竜川と公園が近くにあるので、気軽にお散歩や自然散策が楽しめます。
自然の美しさを感じながら、リフレッシュできる場所が身近に広がっています。

角部屋なら、静かなプライバシーが守られます。
周囲の騒音を気にせず、自分らしい時間を過ごせます。
また、学生の方にもおすすめの理想的な環境です。
静かな環境で勉強に集中でき、自然に囲まれた場所でリラックスできることでしょう。

おしゃれでスタイリッシュな生活を始めたい方、新たな冒険をスタートしませんか?
南向きの明るさ、天竜川と公園の癒し、角部屋のプライバシー、学生にもおすすめの環境。
新しい生活が、ここから始まります!

続きを読む

見学したい(無料)

最上階、湖と陽光

無料
無料

静岡県浜松市中央区蜆塚3-19-26

1LDK /45.90m² /2005年3月

新しい生活の舞台、ここにあります!

南向きの明るいお部屋は、陽光がたっぷり差し込み、心地よい温かさが広がります。
朝日で目覚める幸せな瞬間は、ここから始まります。
最上階に位置し、静かな環境で快適に暮らせます。

佐鳴湖が近くにあるので、お散歩や自然散策も楽しめます。緑豊かな公園や湖畔の風景は、ストレス解消にぴったり。自然の美しさを満喫し、リフレッシュしましょう。

安心のオートロックが完備されています。
セキュリティ面でも安心して新生活をスタートできます。
プライバシーを守りつつ、安全で快適な生活を楽しむことができます。

特に学生の皆さんにおすすめのお部屋です。
静かな環境で勉強に集中でき、佐鳴湖でリフレッシュできる贅沢さがあります。
新しい知識と共に、快適な生活を送ることができるでしょう。

おしゃれなスタイリッシュな生活を始めたい方、新たな冒険に出発しませんか?
南向きの明るさ、佐鳴湖の癒し、オートロックの安心、最上階のプライバシー、学生にもおすすめの環境。
新しい生活が、ここから始まります!

※画像は管理会社様からご提供頂いたものです。

続きを読む

見学したい(無料)

木目調のおうちでナチュラリスト

無料
無料

静岡県浜松市中央区天龍川町42-1

1LDK /45.90m² /2010年10月

新しい住まいを探している方、シンプルでナチュラルな生活空間に魅力を感じる方にぴったりの物件をご紹介します。
天竜川駅から徒歩たったの10分という便利な立地で、日々の移動が楽になること間違いなしです。

室内に一歩入れば、その白と木目調のナチュラルテイストに心が和みます。
清潔感と温もりが調和した空間は、シンプルながらも洗練された印象を与えてくれるんです。
さらに、嬉しいのが対面式のキッチン。
料理をしながら家族や友人との会話も楽しめますし、お料理好きにはたまらない設計ですよね。

ただ、主要採光が東向きであることは多少のデメリットかもしれません。
でも、朝日を浴びながらのスタートは、一日を爽やかに始めるのに最適です。
そして、夕方には間接照明やキャンドルで、また違った雰囲気のリラックス空間を作り出すこともできます。

この物件は、シンプルで上質な生活を求める方にぴったり。
新しい生活の扉が、ここに待っています。

※画像は管理会社様にご提供いただいたものです。

続きを読む

見学したい(無料)

土間スタイルでおしゃれに

無料
無料

静岡県浜松市中央区早出町1365-8

1LDK /45.90m² /2010年8月

新生活をスタートさせるのにぴったりな物件をご紹介します。
助信駅から歩いてわずか18分の距離にあるこの物件は、毎日の通勤や通学にも便利な立地です。
部屋に一歩足を踏み入れると、まず目に飛び込んでくるのが、その土間っぽい開放的な間取り。
おしゃれなインテリアや植物を置いて、あなただけの特別な空間を作り上げることができますよ。

そして、驚くべきはその収納力。
ウォークインクローゼットがなんと2つもあるんです。
衣類や趣味のアイテム、季節ごとの装飾品など、何でもすっきりと収納できちゃいます。
白い壁と床が清潔感を演出し、どんな家具やデコレーションも映える空間になっています。

この物件は、贅沢な1人暮らしにも、仲の良い二人暮らしにもぴったり。
友達を招いてのホームパーティーも、この開放的な空間なら盛り上がること間違いなしです。
新しい生活をスタートするなら、このおしゃれでスタイリッシュな物件で決まり!

※画像は管理会社様にご提供いただいたものです。

続きを読む

見学したい(無料)

佐鳴湖の自然と共に

無料
無料

静岡県浜松市中央区蜆塚3-19-26

1LDK /45.90m² /2005年3月

こんにちは、新しいスタートをお考えの皆さん!

こちらのお部屋は、南向きで日当たり抜群。
陽光がたっぷり差し込み、毎日を明るく照らしてくれます。
朝の目覚めが格別で、ポジティブな気持ちで1日を始めることができることでしょう。

佐鳴湖が近くにあるので、お散歩やリフレッシュする場所も充実。
自然の美しさを楽しんだり、ストレスを発散したりするのにぴったりです。

また、安心のオートロックが完備されています。
セキュリティー面でも安心して新生活をスタートできます。
プライバシーを守りつつ、快適な都会生活を楽しむことができます。

特に学生の皆さんにおすすめのお部屋です。
静かな環境で勉強に集中でき、佐鳴湖でリフレッシュできる贅沢さがあります。
新しい知識と共に、快適な生活を送ることができるでしょう。

おしゃれなスタイリッシュな生活を始めたい方、新たな冒険に出発しませんか?
南向きの明るさ、佐鳴湖の癒し、オートロックの安心、学生にもおすすめの環境。
新しい生活が、ここから始まります!

※この画像は管理会社様からご提供頂いたものです。

続きを読む

見学したい(無料)

抜群の立地で便利な暮らし

無料
無料

静岡県浜松市中央区板屋町622

1LDK /42.86m² /2005年6月

~マイページを活用して便利な検索!~
マイページを登録すると以下の便利機能が使えます!
・気になった物件のハートを押して「お気に入り」に保存
 お気に入り登録された物件の条件が変わったら更新情報がメールで送信されます。
・勤務先からの距離と時間で検索できる「BP(ベストプレイス)検索」
・検索条件を保存して、同じ条件で検索できる「検索条件保存機能」

こちらの物件が気になったら、まずは内見のご予約を!
以下のお問い合わせフォームよりご連絡ください。

※画像は管理会社様からご提供いただいたものです。

続きを読む

見学したい(無料)

黄色いキッチンで、ペットもニコニコ!

5.6万円
5.6万円

静岡県浜松市中央区佐鳴台2-7-25

2DK /49.00m² /1987年1月

佐鳴湖のそばにあるこの賃貸物件は、ペット愛好家にぴったりの場所です。
小型犬や猫を飼っている方には最高の選択肢と言えるでしょう。
朝の散歩には、すぐそばの佐鳴湖へ。
新鮮な空気と自然の中で、ペットと一緒にリラックスした時間を過ごせます。

特に目を引くのが、明るく温かみのある黄色いキッチン。
料理をしながらも、ペットの様子を見守ることができます。
また、室内設備はエアコンや照明器具、追い焚き機能付きのお風呂など、生活を豊かにするアイテムが充実。
一年中、快適な室内環境でペットと過ごすことができます。

この物件では、ペットとの幸せな暮らしを大切に考えています。
ペットと一緒に新しい生活を始めたい方、佐鳴湖の美しい自然を楽しみながら過ごしたい方には、まさに理想の家です。
興味を持たれた方は、ぜひ一度足を運んでみてください。
新しい生活の第一歩を、ここから始めましょう。

※画像は管理会社様にご提供いただいたものです。

続きを読む

見学したい(無料)

料理と笑顔が交差する家

21万円
10.5万円

愛知県豊橋市小池町24-1

3LDK /81.56m² /2020年1月

豊橋の心地よい住宅街で、新しい家族の物語を始めませんか?
築浅の戸建て物件が、あなたの日々を特別なものに変える準備をしています。

この家の魅力は、何と言ってもその立地。
豊橋駅まで車で10分、小池駅までは歩いてたったの10分。
通勤やお出かけにも大変便利です。周辺環境も素晴らしく、安心して子育てや生活を楽しめる環境が整っています。

室内に目を向けると、白と木目が織りなすスタイリッシュな空間が広がっています。
洋間が3部屋もあり、家族それぞれのプライベート空間を確保しつつ、共有スペースでのふれあいも豊かに。
家族が集まるリビングは、会話や笑い声で溢れることでしょう。

そして、料理好きにはたまらない広々としたキッチン。
ここで作る食事は、家族の絆を深める素敵な時間になります。
週末には、家族みんなでお気に入りのレシピに挑戦してみてはいかがでしょうか?

新しい家族の思い出を、この築浅戸建てで紡ぎ始めましょう。
快適な家族生活を夢見るあなたに、ぴったりの場所です。
新しい家族の章がここから始まります!

※画像は管理会社様にご提供いただいたものです。

続きを読む

見学したい(無料)

リビングで笑う、幸せの3LDK[新築]

15万円
無料

静岡県浜松市浜名区西中瀬1-3-8

3LDK /69.86m² /2024年3月

新しい家族の物語、新築の3LDKで始めませんか?
遠州芝本駅までの徒歩20分の道のりは、平坦で気持ちの良い散歩が楽しめます。
閑静な住宅街に位置し、日々の生活に安らぎを与えてくれるこの場所は、まさに理想の住まい。

ゴルフやテニスがお好きなら、近くのコートやゴルフ場で趣味の時間を満喫できます。
週末は家族でアクティブに過ごしたり、リラックスしたり、充実した時間を過ごすことができるでしょう。

家の中は、広々とした共有スペースが特長。
家族が集まるリビングは、会話や笑い声でいっぱいになります。
キッチンも広く、一緒に料理を楽しむのにも最適。
食後は、一坪以上の広々としたお風呂で、日頃の疲れを癒やしましょう。

新築ならではの清潔感と、使い勝手の良い設計は、毎日の生活をより快適にしてくれます。
子どもたちがのびのびと成長できる環境、家族が集い、笑顔があふれる家。
そんな夢のような生活、ここで実現しませんか?

※画像は管理会社様にご提供いただいたものです。

続きを読む

見学したい(無料)
FULL 新築

新築モダン、一人も二人も楽しい

10万円
無料

静岡県浜松市浜名区西中瀬1-3

1LDK /45.27m² /2024年3月

新しいスタートを切るのに最適な場所、それがここ、遠州芝本駅近くの新築物件です。
一人暮らしでも、二人暮らしでも、このスタイリッシュなお部屋で毎日を彩りましょう。

まず、安全性に注目してください。
防犯カメラやオートロックシステムが整っているので、安心して生活を楽しめます。
新築ならではの清潔感と、最新の設備があなたの生活をサポートします。

お部屋から遠州芝本駅まで徒歩20分。朝の通勤や休日のお出かけも気軽に。そして、周辺のショッピング施設での買い物や食事が、日々の楽しみになるでしょう。

このお部屋は、一人暮らしの自由さと、二人暮らしの共有の喜びを同時に味わえる場所です。
週末はおしゃれなカフェでブランチを楽しんだり、近くの公園でリフレッシュしたり。
あなたのライフスタイルに合わせて、色々な使い方ができます。

新しい生活、新しい自分を発見するための一歩を、ここから始めてみませんか?

※画像は管理会社様にご提供いただいたものです。

続きを読む

見学したい(無料)
FULL 新築

ゴルフ好き、新築でホールインワン

15万円
無料

静岡県浜松市浜名区西中瀬1-3

3LDK /70.86m² /2024年3月

新しい家族の物語、新築の3LDKで始めませんか?
遠州芝本駅までの徒歩20分の道のりは、平坦で気持ちの良い散歩が楽しめます。
閑静な住宅街に位置し、日々の生活に安らぎを与えてくれるこの場所は、まさに理想の住まい。

ゴルフやテニスがお好きなら、近くのコートやゴルフ場で趣味の時間を満喫できます。
週末は家族でアクティブに過ごしたり、リラックスしたり、充実した時間を過ごすことができるでしょう。

家の中は、広々とした共有スペースが特長。
家族が集まるリビングは、会話や笑い声でいっぱいになります。
キッチンも広く、一緒に料理を楽しむのにも最適。
食後は、一坪以上の広々としたお風呂で、日頃の疲れを癒やしましょう。

新築ならではの清潔感と、使い勝手の良い設計は、毎日の生活をより快適にしてくれます。
子どもたちがのびのびと成長できる環境、家族が集い、笑顔があふれる家。
そんな夢のような生活、ここで実現しませんか?

※画像は管理会社様にご提供いただいたものです。

続きを読む

見学したい(無料)

読書もコーヒーも日差しと

無料
無料

静岡県浜松市中央区布橋3-8-32

2LDK /56.75m² /1997年7月

新しい家、新しい物語。
あなたと大切な人のための2LDKが、ここにあります。
家族も、カップルも、この温かみのある空間で、毎日を特別なものに変えていきましょう。

白と木目調のインテリアが、ぬくもりと明るさを兼ね備えたこのお部屋。
窓から差し込む日差しは、リビングをより明るく、暖かくします。
朝のコーヒーを飲みながら、日差しの中で読書を楽しむ。
そんな穏やかな一時を過ごせます。

LDKは広々としていて、家族や友人を招いてのホームパーティーにもぴったり。
笑顔と会話が飛び交う、楽しい時間を創り出すことができます。
キッチンでお気に入りの料理を作り、ダイニングでみんなで囲む。
そんな光景が似合う家です。

ふたり暮らしでも、家族としても、ここでなら、思い描いた暮らしが実現します。
晴れた日には、陽光が部屋中を照らし、冬の寒い日でも、暖かい光で包まれる。
そんなぬくもりあふれる空間で、新しい生活を始めてみませんか?

※画像は管理会社様にご提供いただいたものです。

続きを読む

見学したい(無料)

窓辺の絵画、暮らしのアート

13万円
無料

静岡県浜松市中央区半田山3-31-3

2LDK /54.01m² /2002年7月

ふたりの特別な日常を、もっと輝かせるための2LDKがここにあります。
目の前に広がる青い空と池のせせらぎが、日々の喧騒を忘れさせてくれるような眺望です。
リビングの窓からの景色は、まるで生きている絵画のよう。
この家でなら、毎日がもっとポジティブに、もっと豊かに感じられるはず。

和室があるのもポイント。
畳の香りに包まれながら、ゆったりとした時間を過ごすのも良し。
日本の四季を感じるインテリアで、お茶を楽しむのも良し。
ふたりで、または家族で、和の趣を味わいながら心安らぐ休日を。

そして、嬉しいのが対面キッチン。
お互いの顔を見ながら会話ができるから、料理の時間ももっと楽しくなります。
週末には、お互いの得意料理でチャレンジメニューを作ってみるのも素敵ですね。
食卓が笑顔でいっぱいになる瞬間、このキッチンから生まれます。

ふたり暮らしも家族暮らしも、ここならきっと理想のスタイルが見つかります。
青い空と池を眺めながら、穏やかな時間を過ごす。
そんな生活を始めてみませんか?お待ちしています!

※画像は管理会社様にご提供いただいたものです。

続きを読む

見学したい(無料)

新たな家族の冒険を楽しむ場所

無料
無料

静岡県浜松市中央区富塚町202-44

2LDK /51.56m² /2004年03月

新生活を笑顔でスタートさせたいファミリーの皆さん、こちらの賃貸物件をご紹介します!広々とした2LDKのお部屋で、快適な生活が待っています。

まず、この物件は閑静な住宅地に位置しており、佐鳴湖へは車でわずか7分。自然に恵まれた環境で、リフレッシュの場所も近くにあります。お部屋は南向きなので、日当たりが良好で、明るい空間を楽しむことができます。

全室が洋室となっており、どちらの洋室にもクローゼットが完備されています。収納スペースが充実しているので、お部屋をスッキリと使うことができます。キッチンは対面式ではありませんが、多くの収納スペースが設けられており、調理や食事の準備がスムーズに行えます。

また、小学校や中学校も徒歩圏内にあるため、お子様の登下校も安心です。ファミリーにとって理想的な生活環境が整っています。

※画像は管理会社様からご提供頂いたものです。

続きを読む

見学したい(無料)

静寂と共にコーヒーブレイク

無料
無料

静岡県浜松市中央区富塚町254-3

2LDK /56.52m² /2008年9月

パートナーとの新生活、ちょっぴり特別なスパイスを加えませんか?
想像してみてください。
目覚めた朝、窓を開けるとそこは自然が息づく絵画のような風景。
そんな素敵な場所で、二人だけの秘密基地を始めるんです。

リビングには、特徴的な青い対面キッチンが。
ここでは、お互いの料理バトルが繰り広げられたり、時には一緒に新レシピに挑戦したり。
美味しい香りと笑顔が絶えない空間になるでしょう。

この家は、ふたり暮らしにジャストフィット。
共有スペースも自分の時間も、バランスよく楽しめます。
コーヒーを片手に過ごす静かな読書タイム、またはデッキでの朝食。
二人の趣味や好きなものを、たっぷりと詰め込んで。

ああ、そして、忘れちゃいけないのが、休日の楽しみ方。
近くの公園でピクニックや、周辺のトレイルを散策するのもおすすめですよ。
自然とのふれあいが、毎日をもっと豊かにしてくれます。

さあ、この自然豊かな立地で、青いキッチンが映える家で、新しい章を始めませんか?
ふたりの物語に、ぴったりな家をご覧になってみてください。
待っていますよ!

※画像は管理会社様にご提供いただいたものです。

続きを読む

見学したい(無料)

水色のカウンターがアクセントのキッチン

無料
無料

静岡県浜松市中央区高林3-10-14

1LDK /55.80m² /1983年03月

新しい生活を始めるなら、こちらの賃貸物件が最適です!一人暮らしを楽しむ方やカップルでの同棲を考えている方、お待たせしました~
助信駅からわずか徒歩10分の好立地で、赤電を利用すれば通勤も楽ちん♪

お部屋の特徴は、水色のキッチンカウンターがアクセントとなり、お部屋全体に癒しの色彩を醸し出しています。そして、キッチンが対面タイプなので、TVを見ながら、大切な人とおしゃべりしながら、料理や後片付けを楽しむことができます。13.2帖の広々としたリビングルームへの日差しもたっぷり差し込み、明るい空間で過ごせます。10.4帖の洋室には、ダブルベッドを置くスペースがあり、さらに化粧台や作業台として利用できるスペースも完備されています。

この物件で、毎日が笑顔とユーモアにあふれた楽しい日々を過ごしませんか?新しいスタートを切るには、最適な場所です!!

※画像は管理会社様からご提供頂いたものです。

続きを読む

見学したい(無料)

緑に囲まれる、癒しの家族時間

無料
無料

静岡県浜松市中央区広沢1-5-48

3SLDK /76.45m² /1992年3月

お子さんの笑い声が響く、緑あふれる閑静な住宅街で、家族時間をアップグレードしませんか?
洋室が3部屋もあるから、家族それぞれのプライバシーも守られます。

そして広々としたLDKは、家族の絆を深めるスペース。
キッチンで料理をしながら、子どもたちの宿題を見守ったり、週末にはみんなでボードゲームを広げたり。
そんなシーンが似合う空間です。

日々の喧騒から離れて、自然に囲まれたこの場所で、家族の幸せな時間を育んでみませんか?
ゆったりとした時の流れるこの家で、家族みんなの新しいチャプターを始めてみてください。
家族でのほほえみが増える家、お問い合わせお待ちしております!

※画像は管理会社様にご提供いただいたものです。

続きを読む

見学したい(無料)

広々LDKでダンス!

1万円
9.45万円

静岡県掛川市緑ケ丘1-13-3

2LDK /50.54m² /2000年3月

新しい生活のスタートラインに立ってみませんか?
ここには、広々としたLDKが皆さんを待っています。
リビングでダンスができるほどのスペースを楽しみながら、ソファに寝転んで星を数えるような夜を過ごせるんです。
そして、各部屋への出入りは、まるで自分の家にいるかのような心地よさ。
家族での生活も、2人だけの甘い時間も、この家ならもっと特別なものになることでしょう。

さて、外に出れば、掛川駅までの道のりはあっという間の12分。
健康のためにもちょっとした散歩を楽しめる距離です。
電車での通勤やお出かけも楽ちんですね。

まるで友達の家に遊びに行くみたいに、ノックもいらず、気軽に立ち寄れるオープンハウスを開催中です。
この文章を読んでくださっているあなた、ぜひ一度、実際にこの「あたたかみのある」空間を体感しに来てください。
お待ちしております!

※画像は管理会社様にご提供いただいたものです。

続きを読む

見学したい(無料)
FULL リノベ済み

リノベ派、必見!

無料
無料

静岡県浜松市中央区早出町833-1

2LDK /54.09m² /1983年3月

おしゃれなあなた、新しいスタイリッシュな生活の舞台がここにあります!

まず、南向きの窓から差し込む陽光が、毎日を明るく照らします。
朝日を浴びて目覚める幸せな瞬間、ここから始まります。
お部屋はリノベーション済みで、新しい生活のスタートにぴったりです。

外には物置があります。
収納に困らないのは嬉しいことですね。
季節のアイテムや自転車、荷物が増えても、心地よい広さで暮らせます。

そして、おしゃれなポイントは、青色の壁。
かわいらしい雰囲気が、毎日の生活にほんのり幸せをプラスします。
お部屋を彩る青色の壁は、あなたのスタイリッシュなライフスタイルとぴったり合います。

自分らしい空間で新しい生活をスタートさせませんか?
明るい南向きの窓、リノベーションの新しさ、便利な物置、かわいい青色の壁。
おしゃれでスタイリッシュな暮らしを叶えるチャンスです。

※画像は管理会社様からご提供頂いたものです。

続きを読む

見学したい(無料)

便利な暮らし、充実の日々

無料
無料

静岡県浜松市中央区富塚町202-67

3LDK /66.15m² /1991年10月

おしゃれで快適な新生活のスタートは、このリノベーション物件から!
明るい未来が待っています。

まず、お部屋の魅力は広々とした対面キッチンにあります。
料理好きのあなたにぴったり。
友達や家族と楽しいひとときを過ごしながら、新しいレシピを試すことができます。
食事がより楽しくなりますよ!

そして、このお部屋はリノベーション済み。
新しさと快適さが融合された空間で、毎日が特別な日になります。
新生活のスタートにふさわしい、おしゃれな空間が広がっています。

バスルームには追い焚き機能と浴室乾燥機が完備されています。
いつでも温かくて快適なお風呂に入り、洗濯物も手軽に乾かせます。
ストレスのないバスタイムを楽しんでください。

お部屋の陽当たりも良好。
南向きの窓から差し込む陽光が、明るい生活を約束しています。
朝日で目覚める幸せな瞬間が、ここで待っていますよ。

周辺には充実した施設がたくさんあります。
コンビニ、レストラン、公園など、日常の便利なアクセスもばっちり。
新しい生活をより楽しく快適にするための環境が整っています。

これからの新生活を、おしゃれでスタイリッシュに始めませんか?

※画像は管理会社様からご提供頂いたものです。

続きを読む

見学したい(無料)

陽光&お庭、最高!

6万円
無料

静岡県浜松市中央区白羽町21-1

1LDK /45.00m² /2010年4月

ここでは、南向きで陽光がたっぷり差し込む明るいお部屋、
対面キッチンで楽しむおしゃれな時間、そして快適な追い焚き機能と浴室乾燥が付いたバスルームが魅力です。

まず、南向きの窓から差し込む陽光は、朝から活力をチャージするのに最適。
カーテンを開ければ、明るい笑顔で新しい一日を迎えられます。

お部屋には、おしゃれな対面キッチンがあります。
料理をしながら友達や家族と会話を楽しむことができ、アットホームなひとときを過ごせます。
これからのおしゃれな食事体験が待っていますよ!

そして、バスルームには追い焚き機能と浴室乾燥が完備されています。
いつでも温かいお風呂が楽しめ、洗濯物も手軽に乾かせます。
ストレスのない快適なバスタイムを提供します。

そして、おまけにお庭が付いています!
自分の小さなオアシスでリラックスしたり、お庭でバーベキューを楽しんだりできる贅沢さがあります。

このお部屋は、一人暮らしの方にも、ふたりで楽しむ方にもおすすめ。
快適な居住スペースとおしゃれな雰囲気で、自分らしい生活を実現できます。

そして、さらに嬉しいことに、ネット使用料が不要!
快適なインターネット環境が提供され、オンラインでの楽しみもストレスなしで楽しめます。

新しいスタートを切りたいなら、このお部屋が最適です。
快適でおしゃれな生活を手に入れませんか?さあ、新たな冒険が待っています!

※画像は管理会社様からご提供頂いたものです。

続きを読む

見学したい(無料)

スタイリッシュな新天地

6.8万円
無料

静岡県浜松市中央区半田山4

1LDK /43.05m² /2023年12月

新しい生活のスタートに最適な賃貸物件が登場しました!
この物件はまさにおしゃれでスタイリッシュな生活を求めるあなたにぴったりです。

まず第一に、このお部屋は新築だから、全てがピカピカ!
未使用のキッチンやバスルーム、新しい床、クリーンな壁、どれもが新品。
だから、自分のスタイルでカスタマイズするのが楽しいと思います。

ウォークインクローゼットは、収納スペースが豊富なのがウリ!
衣類、シューズ、バッグ、アクセサリー、何でも収納できるから、
おしゃれ好きなあなたのコレクションもきっと喜ぶこと間違いなし!

一人暮らしの方も、ふたり暮らしの方も大歓迎!
広々とした空間が、あなたのライフスタイルに合わせた使い方ができます。
友達を呼んで楽しいひとときを過ごすのも、一人の時間を大切にするのも、
このお部屋なら思いのままではないでしょうか。

※画像は管理会社様からご提供頂いたものです。

続きを読む

見学したい(無料)

カフェ、図書館、教室、全てがお隣!

無料
無料

静岡県浜松市中央区富塚町919-6

1R /38.37m² /2006年8月

おはよう、新入生!
君の新しい旅は『歩くだけで元気!ユースフルマンション』から始まる。
ここは、毎朝の10分間が小さな冒険になる特別な場所。
大学までの道のりは、新しい発見と出会いに満ちている。

このマンションから大学までの道は、まるで君専用のウォーキングコース。
歩いててばったり、運命の相手に会えるかも・・・。
さあ、スマホをポケットに入れて、耳にはお気に入りの音楽を。
歩いているうちに、心も体もスッキリ目覚めるはずだ。

部屋は君のプライベートゾーン。
勉強に集中するもよし、友達を招いてのパーティもよし。
そして、窓から見える景色は、四季折々の美しさを提供してくれる。

『歩くだけで元気!ユースフルマンション』で、健康的で楽しい大学生活を送ろう。
ここが、君の新しいスタートラインだ!

※画像は管理会社様から提供いただいたものです。

続きを読む

見学したい(無料)

都会の喧騒にサヨナラ!LOHASな生活を始めよう!

13万円
無料

静岡県浜松市浜名区細江町中川1198-1

2LDK /77.42m² /2011年2月

毎朝、鳥のさえずりと共に自然に優しく起こされ、ロハスな一日をスタート。
リビングからは季節の変わり目を田んぼが教えてくれます。
春は新緑、夏は蛍の光、秋は黄金色の稲穂、冬は静かな田園。
四季折々の景色が、あなたの新しいスクリーンセーバーです。

「ほんの少し田舎」を感じさせるこの物件は、忙しい毎日からちょっぴり離れたい、でも全部捨てるのはちょっと…という方にぴったり。
仕事中にデスクからの眺めに感動して、仕事の手が止まるかもしれませんが、
そんなときは、田んぼに感謝しつつ、一息ついてみてください。

「都会の喧騒にサヨナラ」して、自然と共に過ごす新しい生活を始めてみませんか?
毎朝楽しみになる、コーヒーの香りとともに広がる田園風景。
日本の美しさを再発見する、そんな物件です。

※画像は管理会社様にご提供いただいたものです。

続きを読む

見学したい(無料)

ウッドデッキのある新築物語

無料
13万円

静岡県浜松市中央区高塚町4827-1

3LDK /83.25m² /2024年1月

新しい家族の物語を、スタイリッシュな新築で始めませんか?
今回ご紹介するのは、シンプルモダンなデザインが自慢のキャレブランです。
新築のこの家は、ファミリー向けの広々とした間取りで、日々の暮らしが一層楽しくなりそう!

特に目を引くのが、ウッドデッキ。
ここでの朝食は、いつもよりちょっと特別な気分にさせてくれます。
週末のリラックスタイムには、家族でくつろいだり、友人を招いてホームパーティーを開いたり、使い方はあなた次第。
このウッドデッキが、新しい家族の思い出の場になること間違いなしです。

内装はシンプルでありながらも、洗練されたデザイン。
おしゃれでスタイリッシュな空間は、どんなインテリアも映えることでしょう。
毎日がもっと楽しく、もっと快適になるような住空間を、家族みんなで楽しんでください。

さて、新生活をスタートさせるのにふさわしいこのお家、気になりましたか?
ぜひ一度、足を運んでその魅力を実感してみてください。
あなたとご家族を、新しい夢のスタート地点でお待ちしています!

※画像は管理会社様にご提供いただいたものです。

続きを読む

見学したい(無料)
FULL リノベ済み 360VR

コスパ重視

無料
無料

静岡県浜松市中央区和合北1-2-61

1LDK /33.54m² /1987年3月

和合北の木造アパート、上下1戸ずつの2階建てです。

玄関の扉を空けると、外観からは想像できない室内の広さに驚きました。
そして、リノベーションできれいになった内装。

リビングはV字の柱がアクセント。
この柱と収納が空間をゆるりとゾーニングしており、リビングとダイニングキッチンを分けてくれています。
そして1階全フロアなので3方向に窓があり明るいです。

寝室となる洋室は5帖。
水色のストライプ柄のクロスが可愛いです。

サニタリー周りもきれいです。
それぞれ可愛らしいクロスがアクセントになっています。

気になるとすれば、キッチンがミニサイズIH1口コンロという点。
お料理大好きという方には物足りないかもしれません。

でもお料理はあんまり、とにかくコスパ重視!という方にはよさそうです。

続きを読む

見学したい(無料)

洗練されたデザインのファミリーホーム

無料
13万円

静岡県浜松市中央区高塚町4827-1

3LDK /83.25m² /2024年1月

新しい家族の物語を、スタイリッシュな新築で始めませんか?
今回ご紹介するのは、シンプルモダンなデザインが自慢のキャレブランです。
新築のこの家は、ファミリー向けの広々とした間取りで、日々の暮らしが一層楽しくなりそう!

特に目を引くのが、ウッドデッキ。
ここでの朝食は、いつもよりちょっと特別な気分にさせてくれます。
週末のリラックスタイムには、家族でくつろいだり、友人を招いてホームパーティーを開いたり、使い方はあなた次第。
このウッドデッキが、新しい家族の思い出の場になること間違いなしです。

内装はシンプルでありながらも、洗練されたデザイン。
おしゃれでスタイリッシュな空間は、どんなインテリアも映えることでしょう。
毎日がもっと楽しく、もっと快適になるような住空間を、家族みんなで楽しんでください。

さて、新生活をスタートさせるのにふさわしいこのお家、気になりましたか?
ぜひ一度、足を運んでその魅力を実感してみてください。
あなたとご家族を、新しい夢のスタート地点でお待ちしています!

※画像は管理会社様にご提供いただいたものです。

続きを読む

見学したい(無料)

新婚さんいらっしゃい

無料
無料

静岡県浜松市中央区高丘北1-14-1

2LDK /56.55m² /2009年3月

高丘に建つ2LDKのこちらの物件。
周辺は商業施設に恵まれ、マンションの裏手には公園があったりと生活至便な好立地となっております!

LDKは、13.52帖と広く、日当たり抜群で木漏れ日が心地よく、家族が心地よく過ごせるお部屋に。
隣の洋室の扉を開放すれば、約20帖と広~い空間になります。

キッチンも対面で会話しながら料理も話も弾みそう!ただし、ガスコンロは設置が必要です。
そして収納が多めなのも嬉しい!!ウォークインクローゼットや収納が各洋室についています!

高丘はアクセスしやすく、人気の土地でもあります。
静かな環境で、休みの日には、公園でまったり読書や散歩するのもいいですね。

新婚さんは、こんな場所でスタートすれば楽しい日々が送れそうですよね!
日当たりも良好な広々リビングでまったり過ごしてみませんか?

続きを読む

見学したい(無料)

白壁木床、癒しの空間

無料
無料

静岡県浜松市中央区高丘北2-12-19

1LDK /55.41m² /1996年8月

おしゃれでスタイリッシュなあなたにぴったりの部屋がここにあります。

リノベーション済みで、新鮮な気持ちで新生活をスタートできること間違いなし。
南西向きの窓からは、たっぷりの日光が降り注ぎ、毎日を明るく照らします。
心地よい朝の目覚めから、穏やかな夕暮れまで、日当たりの良さが生活の質を高めてくれるでしょう。

さらに、収納スペースも豊富。
洋服から趣味のアイテムまで、すべてがすっきりと収まります。
お部屋をいつも整頓された状態に保てるので、気持ちも新たに過ごせます。

そして、お風呂好きにはたまらない追い焚き機能付きのバスルーム。
いつでも好きな時に温かいお湯でリラックスできる至福の時間をお約束します。

部屋全体は白い壁と木の床で統一されたデザイン。
ナチュラルで落ち着いた空間が、あなたの日々に穏やかな時間をもたらします。
ここはただの「住む場所」ではなく、あなたのライフスタイルそのものを映し出す空間。
新しい一歩を踏み出すのに最適な場所です。

※画像は管理会社様からご提供頂いたものです。

続きを読む

見学したい(無料)

お家でCafe 気分♪

13.4万円
6.7万円

静岡県浜松市中央区葵東1-8-55

1LDK /40.80m² /2021年3月

紹介します物件は中区葵東の5階建てマンションです。
築年数も浅く、外観や室内ともにシンプルかつ清潔感のある物件となっています!

こちらのお部屋、アンティーク風のドアやところどころアイアンを使っていたり、ライトがおしゃれだったり♪
いるだけでテンションがあがりそうなお部屋なんです。

まずはキッチン!!アイアンライトに照らされた対面キッチンカウンターは、広さもあり、丸椅子なんか置いたら本当にカフェにいるような気分になりそう♪友達や恋人とカフェ気分でお喋りするのも楽しいですよね♪
但し、ガスコンロは無いので自身での設置が必要です。

そして一人暮らしや忙しい方に嬉しいのが、こちら「生協宅配サービス」を利用することができるんです。
コンビニだけじゃ栄養が偏って心配な方は、こういうサービス利用は便利かも。

LDKは11帖で、一階ですが日当たりも良く明るいです。
キッチンとの繋がりで一体感もあり開放的な空間にもなりますが、隣の洋室とつなげると約16.6帖にもなる大きなお部屋としても使用できます!
仕切り扉を使用しているので開閉は楽にしていただけます。

そして収納はウォークインクローゼットがあり、さらに玄関のシューズボックスの他、大容量の物入れもあったりと収納が充実しています。
周辺にはスーパーやコンビニ等生活しやすい環境が整っていたりと、メリットしかでてきません!

気になる方はお早めにお問い合わせを♪

続きを読む

見学したい(無料)

鳥のさえずりに癒されて、、、

14万円
無料

静岡県浜松市中央区半田山1-22-3

2LDK /48.80m² /2003/12

人気の半田山の物件をご紹介します。

医大のすぐ隣にあるマンションで、目の前にはスターバックス、知久屋、ドラックストアなど充実した環境が整っていて、アクセスも良好な場所にあります!!
これだけでもめっちゃおすすめ物件!!

このマンションは、シニアマンションとして建てられましたが、シニア以外でもOKなんです。
一階には、美容室や歯科、そしてリラクゼーションサロンが並んでいます。疲れた日には、一階でマッサージ受けて癒されるのもいいですね。

通り沿いですが、車の騒音などは気にならないかと思います。むしろドアを開けた瞬間、小鳥の心地いいさえずりがBGMのように聴こえ、日当たりのいいリビングには温かい日差しが差し込む癒し空間が広がっていました。

もともとシニアマンションな事もあり、バリアフリーで、玄関はじめ全ての扉が引き戸になっています。なので、足腰の悪い方や車いすの方にもおすすめです。各場所に手すりもついていて、さらに何かあった時の為の緊急用ボタンが各所にあるので安心です。

キッチンはリビングに壁付けであり、火の消し忘れのないIHクッキングとなっています。
リビングは、9帖!他に洋室が二部屋あります。

クローゼットも各部屋についているので収納も充実しています。

若干のシニアマンションっぽさはありますが、場所といい、部屋の心地よさといい、とてもおすすめの物件です♪

続きを読む

見学したい(無料)

笑顔増殖中!夢のファミリーホーム

13.8万円
無料

静岡県浜松市中央区上島3-20-17

3DK /56.23m² /2002年11月

家族の笑顔が広がる、そんな暮らしを始めませんか?
今ご紹介するのは、静かな住宅街に佇む3DKの素敵な賃貸物件。
家族でのんびりと過ごすのにぴったりの広々とした共有スペースが魅力です。
リビングで映画を見たり、ダイニングで一緒に料理を楽しんだり、家族の絆を深める時間がここにはあります。

そして、このお部屋の特別なポイントは、洋室と和室が両方楽しめること。
洋室でモダンな生活を満喫しつつ、和室で日本の伝統と落ち着きを感じることができます。
お子様の遊び場にも、大人のリラックス空間にもなる和室は、まさにファミリーに優しい設計です。

さらに、嬉しいことに、このお部屋、家賃がとってもリーズナブル。
家族の新しいスタートにも、お財布にもやさしいんです。
周辺には子供が遊べる公園もあり、休日は家族でピクニックも楽しめますよ。

「家族でゆったり、穏やかに暮らしたい」そんな願いを叶えるこの物件。
まずは一度、足を運んでみませんか?
あなたとご家族の新たなスタートを、ここで切り開きましょう。お待ちしています!

※画像は管理会社様にご提供いただいたものです。

続きを読む

見学したい(無料)

ウッドデッキで、癒し時間

19.6万円
9.8万円

静岡県浜松市中央区和合北2-18-10

4LDK /117.00m² /1998年3月

おしゃれでスタイリッシュな生活を求めるあなたに、完璧な家がここにあります。

この戸建ては、洋室と和室のバランスが絶妙。
モダンな生活にも、日本の伝統的な癒しにも寄り添うデザインです。

そして、驚きの駐車場スペースは3台分!
車好きにはたまらない、あなたの趣味を存分に楽しむための十分なスペースがここに。

さらに、おしゃれなあなたに嬉しいニュース。大容量のシューズクローゼットがあなたの靴コレクションをしっかりサポートします。すっきりと整理された空間で、毎日がもっと快適に。

そして、この家の魅力のひとつが、南向きで日当たりの良い明るい空間。
自然光がたっぷり入るので、心も体もリフレッシュ。
おしゃれなウッドデッキでは、
朝のコーヒータイムも、夜のリラックスタイムも、もっと特別なものに。

あなたの新しい生活は、ここから始まります。
スタイリッシュで心地よいこの空間で、毎日を自分らしく、思いのままに過ごしてみませんか?

※画像は管理会社様からご提供頂いたものです

続きを読む

見学したい(無料)

角部屋、広々ライフ!

無料
無料

静岡県浜松市中央区幸2-47-1

2LDK /51.99m² /2001年2月

おしゃれでスタイリッシュな生活を夢見るあなたに、最上階の角部屋が待っています。
開放感たっぷりのこの空間は、2LDKの広々としたレイアウトで、
ひとり暮らしにもふたり暮らしにも最適。
自分だけの空間を自由にアレンジし、理想の生活を実現させましょう。

さらに、ネット使用料は無料。
いつでも高速インターネットに接続できるので、映画や音楽、オンラインゲームも思う存分楽しめます。
また、自慢の駐車場はなんと2台分無料。
車があるあなたも、友だちが遊びに来る時も、もう駐車場を探す手間はありません。

窓からは美しい景色が広がり、毎日の暮らしが一層輝きます。
朝は爽やかな陽光で目覚め、夜は星空に癒される。
そんな特別な時間を、この部屋で過ごしてみませんか?
あなたが長く憧れていた、自分らしい生活がここにあります。

※画像は管理会社様からご提供頂いたものです。

続きを読む

見学したい(無料)

バルコニーで星空デート♪

無料
無料

静岡県浜松市中央区幸2-47-1

2LDK /51.99m² /2001年2月

広々としたバルコニー。
朝のコーヒーを楽しんだり、夜空を眺めたり、小さなガーデニングに挑戦したり。
あなたのプライベートな空間を、もっと自由に、もっと楽しく。
この部屋では、日々の暮らしに新しい息吹が吹き込まれるはず。

自分らしさを大切にするあなたに、最適な空間がここに。

※画像は管理会社様からご提供頂いたものです。

続きを読む

見学したい(無料)

心も体もポカポカ♪

無料
無料

静岡県浜松市中央区菅原町9-11

1LDK /45.08m² /2004年8月

仕事や遊びが充実すればするほど、一人で過ごす時間が恋しくなる方にオススメのお部屋です。

充実した一人時間を過ごすためのキーワードは「居心地の良さ」。
お日様のポカポカの温かい空間は、ずっといたくなるような安心感と休息のひとときを与えてくれますよね。心も体も温まりそうです♪

そしてキッチンはシンプルですが、小ぶりのカウンター付きで、ここで珈琲を飲んだり、朝の忙しい時間でも食事をササっと済ませることができそう。

リビングに隣接したもう一部屋は、5.2帖の寝室にピッタリな部屋。ウォークインクローゼットの他、廊下にもクローゼットがあるので収納も充実しています。(ガスコンロ設置が必要)

ベランダからはアクトが見渡せ、浜松駅までも徒歩圏内で行けるアクセス良好な場所は、とても過ごしやすい環境課と思います。
一つ、エレベーターが無いので階段にはなりますが、ちょうどいい運動になるのではないでしょうか??

友人関係や人付き合いを大事にするからこそ、必要な一人時間。心も体も温まる空間で一人時間を大切にこのお部屋で過ごしませんか??

続きを読む

見学したい(無料)

ヴィレッジヴァンガードコラボROOM!!

無料
無料

静岡県浜松市中央区木戸町10-10

1R /24.37m² /1987年3月

浜松駅から徒歩15分のアクセス良好な場所にあるオシャレなリノベルームをご紹介します!!

なんと今回の物件は、あの「ヴィレッジヴァンガードとコラボ」したおしゃれなお部屋です!!
内装がフルリノベーションされ、アップルグリーンの個性的な壁紙と、配管むき出しのインダストリアルスタイルなデザインがカッコいい♪
まるで雑誌から飛び出してきたようなお洒落空間です。

玄関を入ってすぐ左手に洗濯機置場があり、その隣にはシャワールームがあります。浴槽&脱衣所はないので、シャワーを浴びてそのままバスローブを着て過ごすのも良いかも!!ちょっとドラマっぽくてカッコイイ!?男性なら全く問題ないかと思います。

キッチンは対面で、後ろの壁にはちょっとした棚があります。調味料でもいいし、おしゃれなインテリアを飾ってもいいですね。
そしてビックリですが、キッチンの後ろにトイレがあります。

収納はありませんが、部屋にハンガーラックがあるので洋服をかけることができます。あえて魅せるのが、またおしゃれ!!
ワンルームのお部屋は9.9帖で、日当たりも良く、ベランダからは電車や新幹線が見えます。ちなみに、音はそれほど気にならないと個人的には思いました。

立地もバッチリ。浜松駅まで歩いて約1キロで、静岡芸術大学までも900メートルって、自転車でサクッと行ける距離。
通学や通勤にもラクラクですね!!

一人暮らしを始めるなら、こんなおしゃれなメンズライクな部屋がいいですよね。
友達を招いてのホームパーティーや、自分だけのリラックスタイムにもぴったり。
新しい生活を、おしゃれに彩るための完璧なスタート地点、ここにありますよ!

続きを読む

見学したい(無料)

二面バルコニーで広々感!

13.4万円
無料

静岡県浜松市中央区龍禅寺町43

3LDK /66.49m² /1995年7月

おしゃれで快適な暮らしを実現できる、素敵な賃貸物件をご紹介します!
この南向きのお部屋は、陽当たりバッチリで、毎日を明るく爽やかに過ごせます。
朝から晩まで自然光があふれ、心地よい空間が広がっているんです。

さらに、収納スペースがたっぷり。
服や趣味のアイテム、季節ごとの荷物もすっきりと片付きます。
お部屋が常に整っていると、気持ちも自然と前向きになりますよね。

そして、このお部屋の特別なポイントは二面にあるバルコニー。
一つはリラックス空間として、もう一つは趣味のスペースとして使うなど、自由にアレンジ可能です。
朝のコーヒータイムや夜の星空鑑賞も、このバルコニーならもっと特別な時間になること間違いなし。

内装もきれいでスタイリッシュ。
シンプルながらも温かみのあるデザインなので、どんなインテリアにもマッチします。
自分だけのスタイルで、お部屋を彩ってみてください。

おまけに、無料のWIFIも完備!
動画視聴やオンラインでのお仕事、趣味の時間もスムーズに楽しめます。
快適なネット環境が、新しい一人暮らしをより充実させてくれるはず。

新しい暮らしをスタートするあなたに、最高のお部屋を。
この物件で、新しい生活を輝かせましょう!

※画像は管理会社様からご提供頂いたものです。

続きを読む

見学したい(無料)

新生活、キラキラ輝く!

14.2万円
無料

静岡県浜松市中央区上島3-20-17

2LDK /56.23m² /2002年11月

新しい生活の扉を開けよう!
あなたを待っているのは、静かで心地よい住宅街に位置する、ちょっぴりラグジュアリーな賃貸物件。
リフォームしたてのこのお部屋、一歩足を踏み入れると、まず目に飛び込んでくるのは、フロアタイルの床。
キラキラ輝くタイルが高級感を演出して、まるでモデルルームみたい!
白い壁紙が清潔感たっぷりで、どんなインテリアにもピッタリ合うんです。

ここはあなたのスタイルを映し出す最高のステージ。
インテリアにこだわりたい、おしゃれな生活を送りたいと思っているあなたにぴったり。
朝、目覚めた時の爽やかな陽の光が、新しい一日の始まりを告げてくれる…そんな気分を毎日味わえますよ。

周辺は静かで、日々の喧騒から離れた穏やかな時間が流れています。
でも、必要なお店や便利な施設もすぐ近くにあるから、生活はとっても便利。
もうこれ以上ないくらい理想的な場所です。

さあ、ここで新しい章を始めませんか?
お部屋探しをしているあなた、ぜひ一度見に来てください。待ってます!

※画像は管理会社様にご提供いただいたものです。

続きを読む

見学したい(無料)

静寂の2戸、あなたへ

無料
無料

静岡県浜松市中央区中郡町868

1LDK /45.00m² /2001年6月

新しい住まいを探している皆さん、ちょっと待ってください!
遠州鉄道西ヶ崎駅から徒歩10分の好立地に、落ち着いた生活を求めるあなたにぴったりの賃貸物件が登場しました。
この物件は全2戸だけ。だからこそ、静かで心地よい一人暮らしが実現できるんです。

まずは、立地の良さから。
駅までの徒歩10分は、ちょうど良い距離で日々の運動にもなり、心地よい自然とのふれあいも楽しめます。
そして、全2戸という限られた空間。
あなたのプライベートタイムを大切にしたい方には最適。
周囲を気にせず、自分だけの時間を存分に楽しむことができますよ。

この物件の内装にも注目です。
シンプルで洗練されたデザインは、どんな家具やインテリアにもマッチしやすく、自分だけのオアシスを作り出すのに最適
。長く住むほどに、この場所があなたにとって特別な空間になっていくことでしょう。

さらに、この物件の周辺環境は、生活に必要なものがそろっていて便利。
スーパーやカフェ、レストランも近くにあり、お買い物や食事に困ることはありません。
自由なライフスタイルを送るには最適な環境です。

一人暮らしを始めるにあたり、何を優先するかは人それぞれ。
ですが、この物件は、静かで心地よく、そして何よりも「自分らしい」生活を送りたいあなたにとって、まさに理想の場所。是非、一度足を運んでみてください。
お問い合わせをお待ちしています!

※画像は管理会社様にご提供いただいたものです。

続きを読む

見学したい(無料)

開放感あふれるプライベート空間

14.4万円
無料

静岡県浜松市中央区野口町380

3LDK /65.94m² /1996年12月

みなさん、新生活のスタートにぴったりなお部屋をご紹介!
この角部屋は最上階に位置していて、開放感たっぷり。
周りを気にせず、自分だけの空間を楽しめます。
朝起きて窓を開ければ、そこはもう、あなたのプライベートスカイ。
日々の忙しさを忘れさせてくれるような、穏やかな時間が流れています。

このお部屋のもう一つの魅力は、南向きで日当たりが良いこと。
自然光がたっぷり入るから、お部屋はいつも明るくポジティブな雰囲気。
日中はカフェみたいにリラックスして、夜は落ち着いた空間で過ごせます。

収納スペースもたっぷりあるから、二人暮らしでもスペースに困ることはありません。
おしゃれなインテリアや趣味のアイテムも、すっきりと収めることができるので、
常にスタイリッシュな部屋をキープできます。

さて、お風呂好きの方には特に嬉しいニュース。
このお部屋には追い焚き機能付きのお風呂があります。
忙しい一日の終わりには、ゆったりと暖かいお湯に浸かって、日頃の疲れを癒すことができます。
自分だけのリラックスタイムを存分に楽しんでください。

おしゃれで快適な一人暮らし、二人暮らしを始めたい方、このお部屋はまさにあなたのためにあるような特別な空間です。
新しい生活のスタートに、ぜひこのお部屋を選んでみてはいかがでしょうか。
※画像は管理会社様からご提供頂いたものです。

続きを読む

見学したい(無料)

朝日も夜風も、おまかせ

無料
無料

静岡県浜松市中央区積志町1688-1

2DK /54.27m² /2003年2月

遠州鉄道積志駅からたったの徒歩5分という好立地。
毎日の通勤やお出かけがとっても便利になりますよ◎

さて、この物件の一番の魅力は、その明るさ。
全室が2面採光で、自然光がたっぷりと入るお部屋は、いつも明るく心地よい空間を提供してくれます。
清潔感も抜群で、新生活を気持ちよくスタートできること間違いなしです。

また、バルコニーがなんと2つも!
朝のカフェタイムや夜のひとときを、心地よい風と共に楽しむことができます。
この開放感、都会の生活ではなかなか味わえないかもしれませんね。

この物件は、カップルや小さなご家族にもぴったり。
ゆとりある生活空間で、大切な人との時間をより豊かに過ごせます。
シンプルで機能的な間取りは、あなたのライフスタイルに柔軟に対応してくれるはず。

新しいスタートにふさわしい、快適で明るい住まい。
ぜひ一度、見に来てみませんか?お問い合わせを心からお待ちしています!

※画像は管理会社様にご提供いただいたものです。

続きを読む

見学したい(無料)

ホワイトブラウンなモダンな暮らし

5.8万円
無料

静岡県浜松市中央区東若林町891

3DK /56.10m² /1991年3月

新しい生活をスタートさせたい方、必見!
あなたの理想の家がここにあります。

この賃貸物件は、明るく清潔感あふれる白いお部屋が自慢です。
リビングや寝室の壁には、温もりを感じさせる茶色のアクセントが施されており、洗練された雰囲気を演出しています。

この物件の周辺環境も魅力の一つ。
日々のお買い物に便利なスーパーやコンビニが徒歩圏内にあり、何かと忙しいあなたにとって、生活しやすい場所となっています。
家の中も外も、あなたの生活をサポートしてくれること間違いなし!

さて、間取りは2LDK。
お一人でも、カップルでも、小さな家族でも、ちょうど良い広さです。
そして何と言ってもこのコスパの良さ!
質と価格のバランスがとれたこの物件は、お求めやすい価格で提供されています。

まるで自分の家のようにくつろげる空間、そして日々の生活を快適にする周辺環境。
この機会にぜひ、あなたの新しい生活の拠点としてご検討ください。
お問い合わせ、お待ちしています!

※画像は管理会社様にご提供いただいたものです。

続きを読む

見学したい(無料)

さりげない盗み聞きが楽しめるリビング

21万円
無料

静岡県浜松市中央区元浜町32-6

2LDK /74.80m² /1997年10月

お料理中の私、実はちょっとしたスパイなんです………

新しい我が家は、リビングの様子が丸見えのL字型キッチン付き。
家族の笑い声に耳を傾けながら、こっそりと今日のメニューを決定。
そして、ある日窓からふわりと漂う新鮮な空気。
そう、私たちの秘密の基地、ルーフバルコニーへの扉がリビングのすぐそばに!
家族の誰かがバルコニーで秘密の会議をしていても、私の耳には届くのです。

隣の和室からは、夫のため息と子どもたちの足音が聞こえてきます。
そう、彼らは私の和風スパイスが効いた料理を待ちわびているのです。
リビングでのひそひそ話も、和室でのくつろぎタイムも、私のキッチンからは一望できるので、家族の絆を育む秘訣は「見守り上手なキッチン」にあるのかもしれません。

この家にいると、どうやら私は料理するだけでなく、家族のコミュニケーションマスターにもなれるようです。

毎日がちょっとしたドラマで、私はそのヒロイン。
さあ、今夜はどんなストーリーが繰り広げられるのでしょうか。
ルーフバルコニーで星を数えながら、明日の料理プランを練るのも楽しみの一つですね。

※画像は管理会社様からご提供いただいたものです

続きを読む

見学したい(無料)

相手の料理を失敗した瞬間の表情も見逃さない、この対面キッチン

無料
無料

静岡県浜松市中央区安間町8-1

1LDK /40.05m² /2008年9月

新しい一歩を踏み出す私たちには、この薄緑のキッチンがいい。

ヘルシーでナチュラルな暮らしへの憧れを形にするには、まさにこの1LDKの対面キッチンがピッタリ。
パートナーのちょっとした失敗も愛おしく感じられる空間。

窓からは自然光が降り注ぎ、キッチンの薄緑がさらに鮮やかに。2人でオーガニック食材を選んで、からだに優しいメニューを一緒に考えたい。
対面キッチンからは、リビングでリラックスする彼の姿もばっちり。
彼の微笑みながらの「手伝おうか?」の一言が、日々の料理をさらに楽しくれそう。

時には彼の奇想天外な料理に私の目が丸くなる。
でも、その表情が私の心を和ませ、この部屋での生活がいつも新鮮でユニークになる。

ここでは、食事も生活も、すべてが自然体でありのまま。
共に過ごす時間は、まるで自然派カフェで過ごしているかのよう。

愛と薄緑色のキッチン、そしてたくさんの笑顔で溢れる、
私たちだけの小さな楽園です。

※画像は管理会社様からご提供いただいたものです

続きを読む

見学したい(無料)

「白くて広々とした壁、自分の将来と同じくらい広がりがある」って、お母さんが言ってました。

無料
無料

静岡県浜松市中央区佐藤3-24-22

2LDK /49.50m² /2009年3月

大学デビューにふさわしい新居、それがここです。

お母さんの言葉を借りれば、「白くて広々とした壁は、あなたの将来と同じくらいの可能性を秘めている」。
まさに、新たなスタートに相応しい空間。

この2LDKの部屋に一歩足を踏み入れると、自分だけの城に王子様になった気分。
壁には夢や希望を描くための無限のキャンバスが広がっています。
リビングでは、新しい友達を迎えてのゲームナイト、壁一面を使った映画の夜、あるいは大学のプロジェクトに集中する静かな夜も想像できそう。

キッチンは、インスタ映えする料理に初挑戦するのにぴったり。
清潔感あふれるこの空間で、たとえ料理が茶色くこげても、周りはいつもピカピカ。

そして、広いベランダでは、大学生活のストレスを吹き飛ばす深呼吸。
清潔感のあるこの部屋で、新しい自分を発見し、未来をデザインしたい。
母が言っていた通り、壁もあなたの未来も、実はまっしろなキャンバスなんだから。

※画像は管理会社様からご提供いただいたものです

続きを読む

見学したい(無料)

"ラテ"な生活、はじめませんか?

無料
無料

静岡県浜松市中央区佐藤3-24-22

2LDK /49.50m² /2009年3月

新生活をスタートさせるのに、"温かいラテのような空間"で、どうですか?

こちらの2LDKは、まるでミルクをたっぷり入れたカフェラテが床に広がったかのよう。
ふわっと包み込むベージュのフローリングと扉が、あなたのストレスをほっと一息させます。
白い壁は清潔感があり、訪れた友人を「おっ」と言わせること間違いなし。

リビングは広々としていて、疲れた日はゴロンと横になってココアを一口も良し、友達とのパーティーで盛り上がるのも良し。

そして、このキッチン!
料理が苦手な人でも、ここなら何か作ろうという気にさせる魔法を持っています。

ベランダからは、まるでカプチーノのフォームのような柔らかい空のグラデーションを楽しめますよ。

日常に小さな幸せと笑いを。
さあ、あなたの"ラテ"な生活をここからスタートしませんか?

※画像は管理会社様からご提供いただいたものです

続きを読む

見学したい(無料)

あなただけのコレクションを

無料
無料

静岡県浜松市中央区三和町395

1LDK /40.43m² /2006年8月

コレクション好きなあなたに必見な物件のご紹介です!

大手ハウスメーカー施工のこちらの物件、間取りは1LDK+WIC付。
リビングは10帖、洋室は6帖と狭すぎず広すぎず、まさにゆとりのある一人暮らしにぴったりなサイズ感。
1Rや1Kだと、荷物の収納も困るし、寝室とリビングは分けたい…というあなたの願いも叶えられます。
仲良しカップルさんでも過ごしやすい間取りだと思いますよ!

特徴的なのがカウンターキッチン。
手前はオープン収納になっていますので、あなたの大事なコレクションを飾ることができます。
キッチンの色、そして壁紙はパステルカラーで統一されて気分もあがる華やかさ。

是非こちらのお部屋でおひとり様満喫、してみませんか?

※画像は管理会社様からご提供いただいたものです。

続きを読む

見学したい(無料)

おひとりさま、満喫!

無料
無料

静岡県浜松市中央区三和町395

1LDK /40.43m² /2006年8月

ゆとりのある一人暮らしがしたい、そんなあなたに必見の物件のご紹介です!

大手ハウスメーカー施工のこちらの物件、間取りは1LDK+WIC付。
リビングは10帖、洋室は6帖と狭すぎず広すぎず、まさにゆとりのある一人暮らしにぴったりなサイズ感。
1Rや1Kだと、荷物の収納も困るし、寝室とリビングは分けたい…というあなたの願いも叶えられます。
仲良しカップルさんでも過ごしやすい間取りだと思いますよ!

特徴的なのがカウンターキッチン。
手前はオープン収納になっていますので、あなたの大事なコレクションを飾ることができます。
キッチンの色、そして壁紙はパステルカラーで統一されて気分もあがる華やかさ。

是非こちらのお部屋でおひとり様満喫、してみませんか?

※画像は管理会社様からご提供いただいたものです。

続きを読む

見学したい(無料)

浜松市街中を望む、家族での新しい暮らし

19.4万円
無料

静岡県浜松市中央区高町201-28

3SLDK /91.00m² /1988/09

中区でも学校、図書館、美術館など教育施設が集まる文教地区です。
そんな背景のエリアにふさわしい重厚な佇まいのマンション。

お部屋は、3SLDK/91平米とかなり広々。ファミリー向けのお部屋です。
15帖の広いリビングは大きな窓が2つと出窓が1つで日当たり抜群。
リビングに続く和室6.3帖には押し入れがついています。

洋室2部屋にはどちらも収納がついており、さらには2.9帖の納戸もついています。
大きな荷物の収納もこれでバッチリ。お子さまの秘密基地にしてもいいかもですね。

リビングのシステムキッチンは2.5m以上の大型キッチン。
なんとオーブンも付いていますので、お料理好きの奥様には、ぴったりの物件です。

浜松城まで徒歩7分の近さなので、週末は家族でピクニックなんかもいいかも。
浜松市街中へのアクセスも良好なこちらの物件。
是非ご家族で新しい生活をはじめてみませんか?

※画像は管理会社様からご提供いただいたものです。

続きを読む

見学したい(無料)

SOCIAL MEDIA