閲覧履歴

FULL リノベ済み 360VR

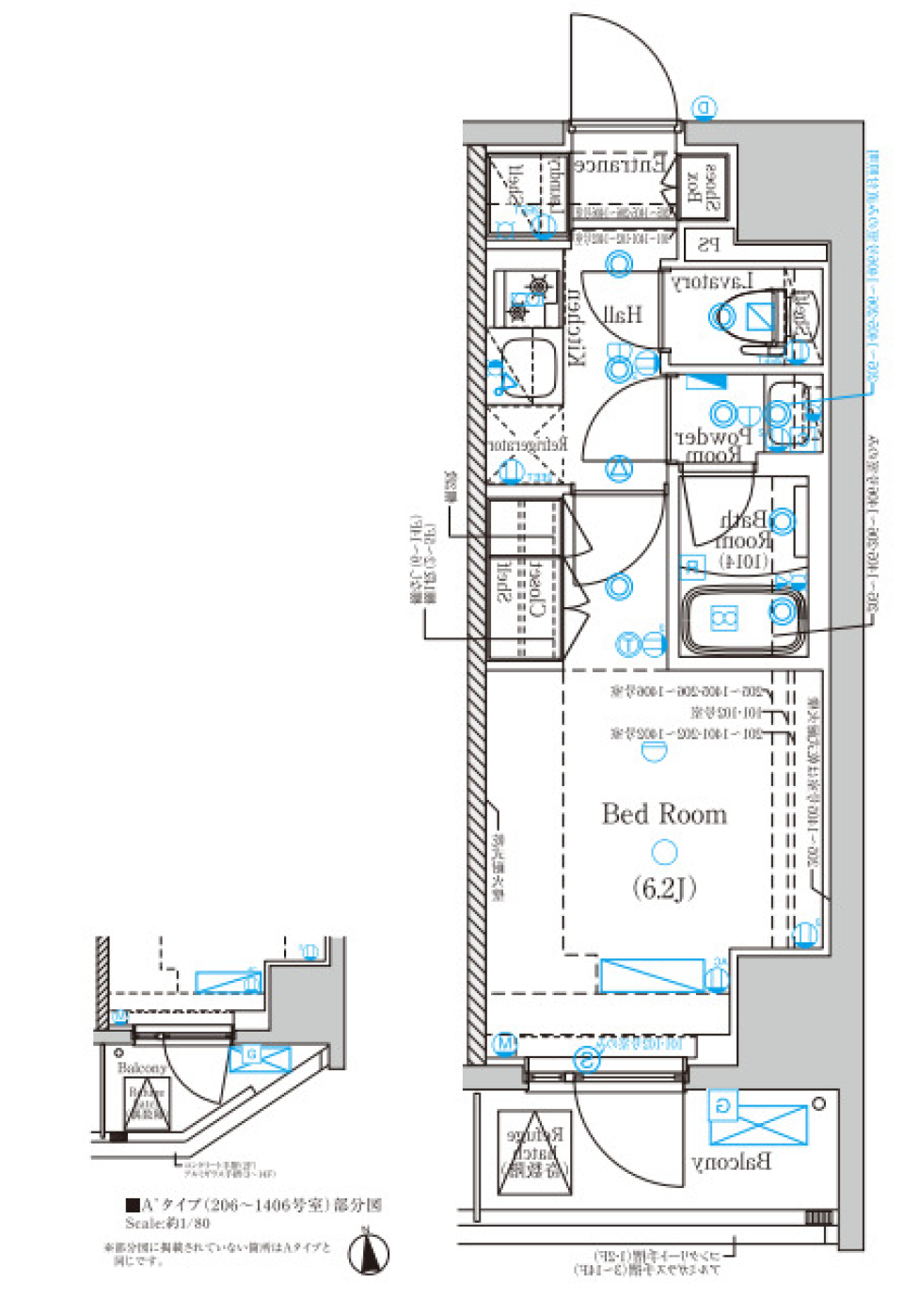
家族で過ごす2LDK

6.3万円
6.3万円

静岡県磐田市鳥之瀬176-1

2LDK /51.84m² /1994年07月

こちらの物件は、磐田市にあります。
間取りは2LDKで、ファミリー層向けのお部屋です。

LDKは9.8帖あり、バルコニーは南向きなので日当たりも良好です。
TVやソファー、ダイニングテーブルをお好きなように設置することができます。
キッチンは、便利なシステムキッチンで3口のコンロとグリルが付いております。時短で料理ができるのは、日々忙しい私たちにとって嬉しいですね♪

洋室は全部で二部屋あり、どちらも6帖の広さです。
LDK横の洋室には、収納棚とハンガーのまま洋服を収納できるクローゼットが付いていおります。南面なので日当たりもバッチリです。
もう一つの洋室は玄関近くです。こちらの洋室にもハンガー収納と物置スペースも付いています。

近くには、コンビニやスーパーもあるので日用品のお買い物に困りません。

続きを読む

見学したい(無料)

幸せ家族の住空間

無料
無料

静岡県浜松市中央区幸1-15-36

/61.40m²

6階建ての2階
マンション名はシティガーデン・幸
地名にちなんで幸ですが、バルコニーからの眺めは開放的に感じます
前面は広々遮る建物がないので、新鮮な空気が流れこみます
家族が幸せになれる住空間です
住吉バイパス沿いですが、車の音はほとんど感じられません
駐車場は広々していて2台無料、エレベーター付でオートロック、設備が整った物件になります
駐輪場と専用ゴミ捨て場が設置していて、共有ス―ペースがとてもきれいに管理されてました
間取りは広々2LDK
北南を繋ぐ広々ウォークスルークローゼットがポイントです
ご家族分のお洋服とお荷物を集め沢山収納。スッキリスマートに暮らせます
リビングは広々14帖
洋間6.2帖の間仕切りを広げれば、広々20帖としてもご利用いただけます
キッチン回りも広々
お気に入りのカップボードを置けます
洗面脱衣場と洗濯機置場も広々。廊下側とキッチン側2か所にドアがあり
家事導線がなかなか良いです
建物1階は紳士服のアオキさん。
広々駐車場からはメディカルビル、ケンタッキーさん。
小児科、眼科、整形外科には直ぐに行くことができます!

通勤や通学、スーパーなどのお買い物、病院。
快適に生活することができそうですよ。

続きを読む

見学したい(無料)

新たな暮らしを

無料
7.4万円

静岡県浜松市中央区植松町1474-5

1LDK /43.87m² /2021年8月

築浅物件を探していらっしゃる方、必見です!
こちらの物件はなんと2021年8月にできたばかりの物件です。

間取りは1LDKで、最上階の角部屋です。
一人暮らしの方でも、二人暮らしの方でも大歓迎です!

LDKは13.6帖の広さで、角部屋のため窓の数が多く陽当たりがとても良いです。
キッチンは、対面タイプなのでお話をしながら、TVを観ながらご飯作りやお皿洗いができます。
収納スペースも付いているので、整理整頓に役立ちそうです。

洋室は6帖です。便利なウォークインクローゼットも付いています!
玄関先にもクローゼットが付いているので、収納スペースに困ることはありません。

周辺には、便利なコンビニや大型スーパーがありますので、お買い物も楽ちんです。

続きを読む

見学したい(無料)

ぴかぴかのお風呂がいい!

無料
無料

静岡県浜松市中央区早出町991-1

/60.07m²

こちらは曳馬駅から徒歩13分の位置にあるリノベーション物件です。
こちらの物件の最大の魅力は築年数を感じさせないその綺麗さ。
なんていったって水回りがピカピカなんです。
やっぱりお風呂が綺麗だとテンション上がりませんか?

間取りは2LDKと広々。日当たりもばっちりです!
カップルさんでも家族でもゆったり過ごせる広さですね。
さらに収納もたっぷりあるので荷物が多くても大丈夫!

スーパーや100均も徒歩5分圏内にあるので、立地も抜群です♪
是非こちらのリノベーション部屋でぴかぴかの新生活を送りましょう!

続きを読む

見学したい(無料)

White ROOM.

無料
無料

静岡県磐田市森下86

/44.26m²

白が基調の部屋だから、どんな色を飾っても似合いそうだ。
たっぷり入るWICにはお気に入りの服を並べよう。気分はちょっぴりファッション雑誌。


玄関回りもオシャレに気を遣うあなた好み。靴箱は天井までたっぷりとあって足元のお洒落も完ペキに。
玄関からもウォークインクローゼットにはいれちゃう。玄関の鏡で最終チェックしてみたら、ちょっと気分が変わってもすぐにお着替えできるね。
出かけるときは毎回、抜群な状態のあなたでいられそう。

さぁ、とびきりにお気に入りな服を着て、町へ出かけよう!

続きを読む

見学したい(無料)

川沿いに佇む[ペット可]

無料
無料

静岡県浜松市中央区入野町16310-1

2LDK /50.06m² /1998年7月

佐鳴湖畔から流れる新川沿いに佇むこちらのマンション。
お部屋の中は木目調の天井でなんだかログハウスの別荘に来た気分。
バルコニーに出ると、5階からの景色は最高です。
とっても広いバルコニーなので、ガーデンソファを置いて川を眺めながらベランダでワインなんて飲んだらもう、、気分はすっかりリゾートですね。

対面式の広々キッチンは、3口コンロ・グリル付き、収納力も抜群。
半個室になっているので小さいお子様がいるご家庭でも安心してお料理できますよ。

LDKとつながる和室もなんだかモダンな雰囲気で家具次第でおしゃれ空間にできちゃいそう。
さらにペット可の物件なので、わんちゃん猫ちゃんがいるご家庭でも大丈夫!
佐鳴湖畔まですぐ近くなので、お散歩コースは決まりですね。

小中学校も近く、スーパーは徒歩圏内、さらにオートロックもついていてセキュリティもバッチリ。
小さいお子様&わんちゃん猫ちゃんがいるご家庭におすすめの物件です。

続きを読む

見学したい(無料)

stay calm.

無料
無料

静岡県浜松市中央区佐鳴台1-787-1

/76.11m²

穏やかに暮らしたい。

ここは浜松市内でも人気の佐鳴台エリア。
佐鳴湖というちょっとした湖がほど近く、素敵なお店がぽつぽつとあって
お気に入りのお店を見つけたくなります。

コンクリート打ちっぱなしの都会的な外観がとても目を引きます。
お部屋は74.68㎡と2LDKのマンションとしては広めなクラスになりますね。
全体的に白を基調としていて、かなり高級感を感じます。
気になるのがリビングから見えるインナーバルコニー。
外観の素敵な打ちっぱなしの外壁がお目見えし、花粉や雨風からお洗濯物を守るのはもちろんのこと、
この空間でグリーンを育てたら無機質な雰囲気に生命感が出て住む人の心を癒してくれることでしょう。

設備面は築年数の浅いハイグレードマンション、さすがの充実さです。
エントランスにはオートロックと宅配BOX、お部屋のキッチンは広々W2200で調理スペースとしても活用できるカウンターがついています。
水回りは天井までのびた大きな鏡が特徴的な洗面脱衣所に、ゆったりとくつろげる1坪風呂があります。トイレもタンクレスでとってもスマートな印象です。


家での時間の充実こそ今の時代の家族には大切だと思います。
上質で少しリッチなこのマンションでの暮らし、いかがですか?

続きを読む

見学したい(無料)

【ペット可】ワンニャンLIFE

無料
無料

静岡県浜松市中央区布橋3-7-4

/62.77m²

ワンちゃんも猫ちゃんもどっちも大好きで選べない!という方、必見です。
こちらの物件、小型犬と猫、それぞれ2匹まで相談可となっています。
合計で4匹、なんと賑やかなおうちでしょう。。
徒歩5分圏内に公園が2つあるので、ワンちゃんと遊ぶのにも困りません!

LDKは14.4帖と広々。
洋室は2室ありどちらもリビングとつながっているので、
引き戸を開けると開放感がありさらに広々とします。

キッチンは壁で隔てられている独立型になっているので、
来客の際は人目を気にせずに調理に集中できます!
リビングやダイニングまで油や煙が広がりにくいのも独立型のいいところですね。

スーパーやドラッグストアも徒歩10分圏内にあり立地も良しです!
こちらの物件でぜひ大切なペットたちと過ごしてみてはいかがですか??

続きを読む

見学したい(無料)

SUNNY HOUSE

無料
無料

静岡県浜松市中央区中沢町45-57

/74.52m²

暖色カラーの壁とレンガが可愛らしいこちらのおうち、
中沢町にあるファミリーにも人気のテラスハウスタイプの物件です。

こちらのおうち、3面採光といいまして南、北、東の3つの面すべてに窓がついているので、日当たり抜群!
まさにお日さまに愛されるおうちなのです。

部屋に入るとまず広がるのは15帖の広いリビング。キッチンも快適な広さです。
そして2階には6帖ほどのお部屋が2室、さらに納戸まであるんです!
洋室2室にはそれぞれクローゼットと物置がついているので、収納スペースは申し分ないはず。
納戸の使い方は自由なので、物置にしてもよし、子供部屋にだってできちゃいます♪

立地も中沢町なので浜松市街からさほど遠くないですし、
徒歩5分圏内に公園が2つもあるので休日はお子さんと遊んだり、
ランニングしたりとリフレッシュにも最適ですよ!
公園までの道のりは緑が多く、晴れた日に車を走らせるとすごく気持ちいいです。

戸建て気分を味わえちゃうこちらの素敵なテラスハウス、ご家族の新生活にいかがでしょうか?

※家近くの坂道は少し急になっています。

続きを読む

見学したい(無料)

こっちの部屋からあっちの部屋へ

無料
9.5万円

静岡県浜松市中央区上西町1255

2LDK /61.07m² /2021/08

こちらは2021年8月に建てられた新築のマンションです。

ご紹介するのは、最上階3階の角部屋!!隣や上階を気にすることが無いのがいいですよね♪

お部屋は、温かい茶色と白をベースに、どんな色の家具でも合わせやすいようになっています。木を感じられるデザインに、心が落ち着くこと間違いなし!今以上に家が好きになりますよ。

LDKのアクセントクロスは、陶磁器が割れて生まれたひび割れをイメージしたデザインになっていて、光が当たると艶感や立体感を色と質感で表現してくれます。
デザイン性もバッチリです。

15.1帖のLDKにはみんな大好きカウンターキッチンがあります。なんと約2メートルを超える大型システムキッチンで、使いやすさバッチリ!!調理スペースも充分です料理もはかどりますね。横には収納棚もあるので便利です。

他に2つの洋室があり、洋室同士を繋ぐウォークスルークローゼットになっているので、部屋の移動も楽々♪たくさん服をしまいたくなるような広々空間です。間取り的にも動線がとっても動きやすくなっています。

近くにはコストコ、スーパー、コンビニが勢ぞろいで、柳通りが近くにあるのでアクセスも良好♪
休日はどこにお買い物に行こうか悩んじゃいますね。

続きを読む

見学したい(無料)

夢も広がる1LDK

無料
無料

静岡県浜松市中央区布橋3-7-45

/50.20m²

このお部屋はLDKと隣の洋室を引き戸で繋げることができます。
自由度の高いお部屋になっています。
活用の幅が広がりますよ。

LDKには青色のキッチンがついています。
シンプルなお部屋のデザインに青色アクセントになっています。
お料理にハマるかも、、、

洋室にはウォークインクローゼットがついています。
中は洋服を掛けるだけでなく、棚もついているのでたくさん収納できます。

玄関には大きめのシューズボックスがついています。
オシャレが好きな人にピッタリです。

駐輪場もついていますので自転車をお持ちの方にもおすすめです。

続きを読む

見学したい(無料)
FULL リノベ済み 360VR

10月のリノベ

無料
無料

静岡県浜松市中央区細島町200-1

1R /31.40m² /1999年06月

2020年10月にリノベされた物件です!

シャワートイレや
エアコン、モニターフォン、宅配ボックスと設備充実!

1Rだけど収納もしっかりあって
バルコニーも比較的広いです

メインルームが12帖あるのも素敵です♪

ところどころ壁が音楽室みたいになっていて
鍵や帽子を掛けておけるの、いい!
また、ユニークな場所に洗面台があるので
印象に残りやすいお部屋ですね

ネットが無料なので
映画や音楽三昧な毎日がやってくる!

続きを読む

見学したい(無料)

お気に入り物件

お気に入り物件は会員登録すると使用できます。
未ログインの場合はログインして再度お試しください。

ログイン

保存した検索条件

保存した検索条件は会員登録すると使用できます。
未ログインの場合はログインして再度お試しください。

ログイン

賃貸物件を探す

売買物件を探す

店舗・事務所を探す

賃貸物件を見る

売買物件を見る

掲載物件一覧

7864件

愛を知るまでは

無料
無料

静岡県磐田市城之崎1-15-6

/57.93m²

こちらの物件は磐田市城之崎の閑静な住宅地に建つマンションの1室になります。

大きな14.5帖のLDKで全室洋室のお部屋となっており、バルコニーからは自然豊かな町並みが見渡せてとっても癒されるおうちです♪
このお部屋の広さと充実設備に加えて低賃料と、心にもお財布にも優しいおうちなのが嬉しいポイントです。

お部屋の内装はシンプルな2LDK。
玄関、リビング、トイレには遊び心くすぐるデザイン壁紙が施されており毎日の暮らしに彩を与えてくれます。

毎日ののんびりとした時間を大切にした暮らしを楽しみたいカップルやご家族におススメの物件です。

続きを読む

見学したい(無料)

安心して暮らせるおうち

無料
無料

静岡県浜松市中央区三和町351-1

/56.72m²

こちらの物件は、三和町にあります。
間取りは2LDKで、ファミリー層向けの物件となっています。
2016年に建築され、外観・内観ともに綺麗な状態です。建物全体がオートロックなので、1階でも防犯対策がしっかりとできています。

LDKは12.3帖あり、陽当たりがとても良く、天気の良い昼間は電気をOFFにして過ごすことができそうです。
キッチンは便利な対面式で、時短かつスムーズにお料理ができる3口コンロも付いています!
対面式の良いところはお子様の様子を見ながら、テレビを観ながらご飯作りや後片付けができることです。

洋室は二部屋とも6帖の広さです。
リビングルーム横の洋室はバルコニーと直接つながっているので、洗濯物の出し入れが簡単です。
洗面所近くの洋室には窓が2つ付いており、換気をバッチリ行うことができます。昼間は電気を付けなくても過ごせます。
洋室と洋室の間に収納スペースたっぷりのウォークインクローゼットが付いています。
ハンガーのまま洋服を収納できるのが嬉しいポイントです♪

お子様が安心して徒歩で通える小学校や中学校もあるので、親御さんも心配せずにお子様を見送ることができます!
スーパーやコンビニからも近いところにあるので、お買い物も便利です。

続きを読む

見学したい(無料)

西日に当たりながら

無料
無料

静岡県浜松市中央区高丘東4-43-15

/66.15m²

西日に当たりながらまったりとした時間を暮らす。
そんな日常にちょっとした幸せを感じませんか?
こちらの物件はそんな小さな幸せを感じることができます。

LDKには対面キッチンが付いています。
家族や大切な人と話しながらお料理を楽しむことができます。
対面キッチンの良さは料理中にリビングに背中を向けることが少ないこと。
料理の時間も話したり、リビングの様子を見たりできるので人のぬくもりを感じることができそうです。

LDKの隣には和室があります。
小さな机を囲んで団らんしたり、人を招いてお茶したりと活用がたくさんできそうです。

周辺にはスーパーやコンビニ、薬局などが揃っています。
ちょっとした買い物に便利ですよ。


続きを読む

見学したい(無料)

新しい暮らしのスタンダード

6.4万円
6.4万円

静岡県磐田市国府台31-5

1LDK /40.85m² /2021年9月

こちらの物件は磐田市国府台の閑静な町に建つマンションの中の1室になります!

ハイグレードマンションを冠する程に充実した設備が魅力です!
オートロックに宅配ボックス、ネット使用料無料・・・ect
お仕事や学校で毎日忙しく過ごすあなたの1人暮らしをきっと手助けしてくれるお家になってくれる事間違いなしです!もちろんカップルでのご入居も!

築浅のお部屋の良さでもありますが、水回りがピカピカなのはやはり嬉しいポイントです♪
オートロックや三面鏡など女性の方にも嬉しいポイントが多いのも良いですね!

ICや駅の中心に位置する通勤に便利な場所で生活利便性も良い町である国府台で、オートロックの充実設備という女性の一人暮らしにも心強いお部屋です♪

続きを読む

見学したい(無料)

希望の始まり。

無料
無料

静岡県磐田市国府台31-5

/40.50m²

こちらの物件は磐田市国府台の閑静な町に建った新築のマンションの中の1室になります!

ハイグレードマンションを冠する程に充実した設備が魅力です!
オートロックに宅配ボックス、ネット使用料無料・・・ect
お仕事や学校で毎日忙しく過ごすあなたの1人暮らしをきっと手助けしてくれるお家になってくれる事間違いなしです!もちろんカップルでのご入居も!

新築のお部屋の良さでもありますが水回りがピカピカなのはやはり嬉しいポイントです♪
オートロックや三面鏡など女性の方にも嬉しいポイントが多いのも良いですね!

ICや駅の中心に位置する通勤に便利な場所で生活利便性も良い町である国府台で
新築オートロックの充実設備という女性の一人暮らしにも心強いお部屋です♪

続きを読む

見学したい(無料)

陽光と君と。

無料
無料

静岡県磐田市千手堂981-4

2LDK /66.31m² /2006年10月

こちらの物件は磐田市千手堂の閑静な町に建つマンションの1室になります。
近場にスーパーやディスカウントショップ、ホームセンターまで揃っている生活利便性に優れた町でありながらお家の周りは車通りも少なく、とってものびのびとした環境で快適にお過ごしいただけます。
バイパス加茂ICからも車で約10分の好立地なので通勤にも便利です。

お部屋の内装は曲線の壁に取り付けられたデザイン窓がお洒落な雰囲気とシックな印象を両立させてくれている収納たっぷりな2LDK!

居室につけられたデザイン窓からは1階お部屋にもかかわらず十分に陽の灯りが差し込みます。

各お部屋に収納がついているのはもちろん、それとは別で3つの収納がありついつい物で溢れかえってしまいがちなあなたにも安心のお部屋になっております。

充実設備の中、大きなLDKで過ごすパートナーやご家族との時間を大切にしていただけるおうちです。

続きを読む

見学したい(無料)

オシャレなバルコニーで優雅に過ごす

無料
無料

静岡県浜松市中央区楊子町111-1

/60.67m²

オシャレなバルコニーがあるこの物件。
洋風な雰囲気を感じる長いバルコニーで日々の生活に癒しをもたらしてくれそうです。

13.1帖のLDKには対面キッチンがあります。
お料理をしながらお部屋の様子を見ることができるので、小さいお子様がいる家庭でも安心です。
カウンターキッチンになっているので、お料理をしながら食べたり飲んだりすることができます。
幸せな時間を過ごせそうです。

2つの洋間をつなぐウォークインクローゼットは広々とした造りになっています。
物が多い人のも、家族が多い人にもありがたいですね。
ウォークインクローゼットとは別に収納もついています。

周辺施設にはスーパーやコンビニなどが揃っています。
徒歩圏内にあるのがとても嬉しいですね。

続きを読む

見学したい(無料)

交通良し!住みやすさ良し!

無料
無料

静岡県浜松市中央区早出町987-1

2LDK /50.85m² /1987.05

交通の利便性を重視している方へピッタリの物件のご紹介です!
間取りは2LDKで、とても暮らしやすい構造になっています。

こちらの物件は早出町に立地しており、曳馬駅からも上島駅からも徒歩13分のところにあります。
電車を利用して通学・通勤する方にはちょうど良い距離にあると思います。

LDKは13.5帖の広さで、太陽の光がばっちりとお部屋を照らしてくれます!
天気の良い日は日向ぼっこをすることもできちゃいます。
キッチンスペースもゆったりとしており、二人で並んでお料理することも可能です。
キッチンはシステムキッチンで、全体的に白を基調としています。

7.5帖の洋室には収納スペースがたっぷりあるクローゼットが付いています。
ハンガーのまま洋服を収納できるのは嬉しいですね。
メインバルコニーとも直接繋がっており空気の入れ替えをしっかりとすることができます。
6帖の洋室はとてもシンプルで窓が一つ付いています。日当たりが良好な点がおススメポイントです。

電車通勤の方は是非お問い合わせ下さい!

続きを読む

見学したい(無料)

【リノベ物件】おさんぽ

無料
無料

静岡県浜松市中央区早出町987-1

/50.85m²

こちらは早出町にあるリノベ物件です。
間取りは2LDKで、住みやすい構造になっています。

LDKは13.5帖に広さで縦に長いです。バルコニーから太陽の光がばっちり入ります。
リビングルームに収納スペースたっぷりのクローゼットが付いているので、整理整頓をしっかりとすることができます。
キッチンはシステムキッチンで白を基調としているので清潔感があります。
3口コンロが設置されているのでわざわざコンロを用意しなくても大丈夫です!
3口コンロの良いところは、時短かつスムーズにお料理が出来るということ。

リビング横の洋室は7.5帖の広さで、クローゼットが付いています。ハンガーのまま洋服を収納できるのがおススメポイントです。
バルコニーとも直接つながっているので、洗濯物の取り込みにも便利なお部屋です。
もう一つの洋室は6帖の広さです。こちらのお部屋にはクローゼットは付いていない、シンプルなお部屋となっています。

物件の目の前には、馬込川という川が流れておりお散歩がいつでもできちゃいます。
生活の中に自然があると、季節の変わり目を肌で感じることができます!

続きを読む

見学したい(無料)

【リノベ物件】まったりできるお家

無料
無料

静岡県浜松市中央区早出町987-1

2LDK /56.43m² /1987年5月

こちらの物件は、早出町にあります。
元寄の駅まで徒歩13分で、交通の利便性がとても良いです。電車を利用して通学・通勤する方にはピッタリの物件です。

間取りは2LDKで、ファミリー層にもおススメの物件です。
2021年にリノベーションされ、浴室、キッチンなどの水回りも清潔感があります。

LDKは12帖の広さです。決してそこまでは広いとは言えませんが、家族全員でまったりできるくらいの広さはあります。
陽当たりもとても良いので、天気の良い日は電気を点けなくても過ごすことができそうです!
リビングルームにも収納スペースが付いているので、整理整頓に役立ちそうです。

洋室は二部屋あり、どちらも6帖の広さです。
リビング横の洋室にはクローゼットは付いていませんが、メインバルコニーと直接つながっています。
もう一つの洋室にはクローゼットが二つ付いており、洋服の収納がばっちりできます。専用のバルコニーも付いています!

小学校や中学校からも近く、お子様にも安心して通学してもらうことができます。

続きを読む

見学したい(無料)

【リノベ物件】住みやすさ重視

無料
無料

静岡県浜松市中央区早出町987-1

/56.52m²

こちらの物件は、リノベーション物件です。
早出町に立地しており、交通の利便性もとても良いです。電車を利用して出勤される方にも便利です!

間取りは2LDKで、ファミリー向けの物件となっております。
LDKはL字型で、広々と16.3帖あります。日当たりとても良く、昼間は電気を点けないで過ごすことが出来そうです。節電にもなるので、一石二鳥ですね♪

キッチンは便利なシステムキッチンで、白を基調としています。
3口のガスコンロも付いておりますので、時短でスムーズにお料理をすることが可能です。

洋室は二部屋あり、どちらも6帖の広さです。
リビング横にある洋室には、ハンガーのまま洋服を収納することが出来ます。
もう一つの洋室にはクローゼットはありませんが、窓が付いており喚起をばっちりすることができます。

小学校や中学校も徒歩圏内にあり、安心してお子様を送り出すことができます!

続きを読む

見学したい(無料)

我愛?

無料
無料

静岡県浜松市中央区元浜町354

賃料74,000円  
共益費/管理費3,000円

1SLDK /59.72m² /1987年2月

こちらの物件は浜松市中区八幡駅から徒歩4分の好立地に建つマンションの1室です。
新しくリノベーションされたこちらのお部屋はデザイン事務所「あの家」監修のデザインリノベーション物件となっております。

セメント板にきらりと光る真鍮目地が施されたゆとりある15帖LDKには小上がりになったワークスペースがついています。
スペースの背面にはリモート通話中背景にもなる敷居が設けられており、プライベート空間との区切りがしっかりできる仕様になっています。
ここまで床にくつろぎながらリモートワークや作業にうってつけな空間は中々他のお家ではお目にかかれません。

LDKの奥には小上がりになったシックなカラーリングの洋間があり、生活にメリハリがつくようにデザインされた飽きの来ない素敵な空間に仕上がっています。

こういったシックでかわいいお部屋でならおうちの中でも思いっきりお洒落して暮らしたいですね
自分をもっともっと可愛がれるおうちでの生活。悪くないと思います♪

お部屋のいたるところに細かい遊び心施されておりあなたの感性を日々くすぐってくれる事間違いなしです!
ぜひ他所のお部屋との違いを感じてみてください。

続きを読む

見学したい(無料)

インナージャーニー

無料
無料

静岡県浜松市中央区元浜町354

/59.72m²

こちらの物件は浜松市中区八幡駅から徒歩4分の好立地に建つマンションの1室です。
新しくリノベーションされたこちらのお部屋はデザイン事務所「あの家」監修のデザインリノベーション物件となっております。

LDKのデザイン壁上部には間接照明が施されておりお部屋全体を程よく照らしてくれ、落ち着いた雰囲気を醸し出してくれます。
13.5帖のLDKはダイニングにできる部分と仕切りがついているおかげでお部屋のレイアウトがとってもやりやすそうです♪

水回りも新しく綺麗にリノベーションされており、お部屋の雰囲気と相まってとっても清潔感溢れます。

CL付きの6帖洋室が2部屋あるのでカップルやご家族での暮らしも、みんなのライフスタイルにピッタリとフィットする暮らしが送れると思います♪

続きを読む

見学したい(無料)

毎日通いたくなる『船の公園』はすぐそこ!

無料
無料

静岡県浜松市中央区雄踏1-22-26

/60.67m²

徒歩5分ほどに、西区では充実した遊具、噴水遊びができる公園として有数な公園
堀出前中央公園という、その名も『船の公園』と呼ばれる公園があります!
大きな船そのものが遊具!!!
小さなお子様から小学高学年まで遊べる滑り台や縄遊び、ブランコ。
子供にはたまらない遊び場となってます!
お昼間には小さなお子様を連れた方や、幼稚園の郊外活動として遊びに来ているほど、
とても賑わってます!

LDKは洋室6帖続き間で、広々19帖としてご利用できます!
南西角部屋、2面バルコニーなので風通りも良く、陽当たりポカポカー。
洋室6帖2間の間にはウォークスルークローゼットが。
ご家族分のお荷物やお洋服を収納できます。
キッチンは広々対面式キッチンの為、お子様を眺めながらのクッキングタイムをどうぞ!
キッチン後ろスペースにはお気に入りのカップボードをどうぞ。

特に小さなお子様のいらっしゃるファミリーにもおススメしたいです!
近隣にはスーパーやショッピングセンター、ドラッグストア
小中学校も全て徒歩圏です。

続きを読む

見学したい(無料)

CRACK WALL

無料
無料

静岡県浜松市中央区上西町1255

/61.07m²

こちらは2021年8月に建てられた築浅のマンションです。

温かい茶色と白をベースに、どんな色の家具でも合わせやすいようになっています。
LDKのアクセントクロスは、陶磁器が割れて生まれたひび割れをイメージしたデザインになっていて、光が当たると艶感や立体感を色と質感で表現してくれます。

15.1帖のLDKにはみんな大好きカウンターキッチンがあります。
白いキッチンで調理スペースも充分です。料理もはかどります。

2つの洋室を繋ぐウォークインクローゼットはたくさん服をしまいたくなるような広々空間です。

近くにはコストコ、スーパー、コンビニが勢ぞろいです。
休日はどこにお買い物に行こうか悩んじゃいますね。

マンション入り口はオートロック、お部屋にはTVインターホンがついています。セキュリティー面も抜群です。
なんとインターネットも無料ですよ。
ぜひピカピカのお部屋で充実ライフを。

続きを読む

見学したい(無料)

こっちの部屋からあっちの部屋へ

無料
9.5万円

静岡県浜松市中央区上西町1255

2LDK /61.07m² /2021/08

こちらは2021年8月に建てられた新築のマンションです。

ご紹介するのは、最上階3階の角部屋!!隣や上階を気にすることが無いのがいいですよね♪

お部屋は、温かい茶色と白をベースに、どんな色の家具でも合わせやすいようになっています。木を感じられるデザインに、心が落ち着くこと間違いなし!今以上に家が好きになりますよ。

LDKのアクセントクロスは、陶磁器が割れて生まれたひび割れをイメージしたデザインになっていて、光が当たると艶感や立体感を色と質感で表現してくれます。
デザイン性もバッチリです。

15.1帖のLDKにはみんな大好きカウンターキッチンがあります。なんと約2メートルを超える大型システムキッチンで、使いやすさバッチリ!!調理スペースも充分です料理もはかどりますね。横には収納棚もあるので便利です。

他に2つの洋室があり、洋室同士を繋ぐウォークスルークローゼットになっているので、部屋の移動も楽々♪たくさん服をしまいたくなるような広々空間です。間取り的にも動線がとっても動きやすくなっています。

近くにはコストコ、スーパー、コンビニが勢ぞろいで、柳通りが近くにあるのでアクセスも良好♪
休日はどこにお買い物に行こうか悩んじゃいますね。

続きを読む

見学したい(無料)

新たな暮らしを

無料
7.4万円

静岡県浜松市中央区植松町1474-5

1LDK /43.87m² /2021年8月

築浅物件を探していらっしゃる方、必見です!
こちらの物件はなんと2021年8月にできたばかりの物件です。

間取りは1LDKで、最上階の角部屋です。
一人暮らしの方でも、二人暮らしの方でも大歓迎です!

LDKは13.6帖の広さで、角部屋のため窓の数が多く陽当たりがとても良いです。
キッチンは、対面タイプなのでお話をしながら、TVを観ながらご飯作りやお皿洗いができます。
収納スペースも付いているので、整理整頓に役立ちそうです。

洋室は6帖です。便利なウォークインクローゼットも付いています!
玄関先にもクローゼットが付いているので、収納スペースに困ることはありません。

周辺には、便利なコンビニや大型スーパーがありますので、お買い物も楽ちんです。

続きを読む

見学したい(無料)

新築のピカピカハウス

無料
無料

静岡県浜松市中央区植松町1474-5

/53.77m²

こちらの物件、なんと今年の8月にできたばっかりなんです!
新築のピカピカハウスで新生活を始めませんか?

LDKは12.4帖あります。
対面式のキッチンには、収納棚が付いているので、便利なこと間違いなしです。
隣の洋室と繋げると18帖を超える広さになります。
広々リビングとして活用できそうです。

それぞれの洋室にはクローゼットとウォークインクローゼットが付いています。
それぞれについているので、季節で分けて使うのもいいですね~

周辺にはコストコやコンビニなど充実しています。
新生活の幕開けです~

続きを読む

見学したい(無料)

【新築】ピカピカハウスで暮らす

無料
無料

静岡県浜松市中央区植松町1474-5

/40.56m²

こちらの物件、なんと今年の8月にできたばっかりなんです!
新築のピカピカハウスで新生活を始めませんか?

LDKは11.5帖あります。
隣の洋室と繋げると17帖を超える広さになります。
広々リビングとして活用できそうです。

洋室にはウォークインクローゼットが付いています。
服や小物が多い方にもピッタリです。
玄関にはクローゼットや鏡付きのシューズボックスがついているので、全身を見ながらコーディネートを組むことができますよ!

周辺にはコストコやコンビニなど充実しています。
新生活の幕開けです~

続きを読む

見学したい(無料)

NEW LIFEをここから

無料
無料

静岡県浜松市中央区植松町1474-5

/53.77m²

こちらの物件は、出来立てホヤホヤの物件です!
2021年8月に建築されたばかりの物件となっています。

間取りは1LDKで、新たに一人暮らしを始めたい方、カップルで仲良く二人暮らしを始めたい方におススメの物件です。
LDKは11.5帖の広さです。日当たりがとてもよく、昼間は電気をOFFにして過ごすことができそうです。

キッチンは便利な対面タイプです。対面式なので、面倒なお皿洗いもTVを観ながらやれば一瞬です!
収納棚も付いているので、整理整頓に役立ちそうです。
3口コンロが設置されているので、新たに購入しなくても大丈夫です。

洋室は6帖の広さで、リビングルームのすぐ隣です。
便利なウォークインクローゼットも付いているので、お洋服の収納スペースに困ることはありません!

コストコも近いので、週末に買いだめができそうです。

続きを読む

見学したい(無料)

太陽はすぐそこに!!

無料
無料

静岡県掛川市和光3-6-11

/66.75m²

こちらのお部屋は3階建ての最上階にあるお部屋です。
3階とはいえど、目の前には畑、田んぼだらけなので静かな雰囲気溢れる過ごしやすそうな場所です。
なので景色も良く、見通しも抜群です。

LDKの窓が特徴的なこのお部屋は、たくさんの窓からの光でとっても明るいです。
晴れた日には太陽の光と気持ちいい風が入ってきそうで、太陽を近くに感じることができます。

北側の洋室も同じく特徴的な窓がついています。やっぱり窓があるだけで部屋の明るさや雰囲気が全然違いますよね。
部屋の陽当たり重視される方からしたら、とっておきなお部屋だと思います。

南側の洋室はLDKと扉で仕切ることが出来ます。
扉を開けてLDKと洋室合わせちゃえば、22.3帖の広々空間の出来上がりです。
洋室には広々ウォークインクローゼットもついています。
2LDK、やっぱり誰かと暮らす方が多いんではないでしょうか。
そんな二人の荷物もまとめて収納可能です。

この太陽まで届きそうなこの明るいお部屋で、明るい暮らしをしてください。

続きを読む

見学したい(無料)

メルセデス純正充電器付きの家

29.6万円
14.8万円

静岡県浜松市中央区佐鳴台3丁目53-20

3LDK /81.25m² /2021年7月

佐鳴台のホワイトストリート沿いに、3LDK戸建て賃貸ができました!
スタイリッシュな外観のデザイナーズ賃貸で
玄関横にはなんと...!メルセデス純正充電器が設置されています!(他メーカー車の充電も可能です!)

今回ご紹介のC棟は、B棟と隣接していますが、
隣家との間隔も広く、各棟間のプライバシーに配慮されています。

14帖のLDKはカウンターシステムキッチンがついてます◎
家族の顔を見ながら料理できるのっていいですよね...
LDKから、ウッドデッキへも行くことができます!
ウッドデッキは隣人に洗濯物をみられず、干すことが出来ちゃうのでとても便利です。
DIY作業ができそうなくらい広いので、DIYを趣味にするのもいいかもしれません!

お風呂は、追い焚き・浴室乾燥機付き!しかもTVが見れちゃいます...!
窓からはウッドデッキ眺めることができるので、ウッドデッキに植物やデコレーションライトで飾りつけをして眺めてもいいかも...♪

リビングにある階段を上っていくと、
2階には、6帖と5.5帖と5帖の3部屋の洋室。
それぞれすべてに大きさは違いますがクローゼットがついているので収納には困りません!
また全室エアコンと照明もついています◎

続きを読む

見学したい(無料)

スタイリッシュ3LDK戸建て賃貸

29.6万円
14.8万円

静岡県浜松市中央区佐鳴台3-53-20

3LDK /81.25m² /2021年7月

佐鳴台のホワイトストリート沿いに、3LDK戸建て賃貸がでました!!
スタイリッシュな外観のデザイナーズ賃貸で玄関横にはなんと...!メルセデス純正充電器が設置されています!!(他メーカー車の充電も可能です!)

今回ご紹介のA棟は、B棟と隣接していますが、
隣家との間隔も広く、各棟間のプライバシーに配慮されています。

14帖のLDKはカウンターシステムキッチンがついてます◎
家族の顔を見ながら料理できるのっていいですよね...
LDKから、ウッドデッキへも行くことができます!
ウッドデッキは隣人に洗濯物をみられず、干すことが出来ちゃうのでとても便利です。
DIY作業ができそうなくらい広いので、DIYを趣味にするのもいいかもしれません!

お風呂は、追い焚き・浴室乾燥機付き!しかもTVが見れちゃいます...!
窓からはウッドデッキ眺めることができるので、ウッドデッキに植物やデコレーションライトで飾りつけをして眺めてもいいかも...♪

リビングにある階段を上っていくと、
2階には、6帖と5.5帖と5帖の3部屋の洋室。
それぞれすべてに大きさは違いますがクローゼットがついているので収納には困りません!
また全室エアコンと照明もついています◎

続きを読む

見学したい(無料)

和と洋のある暮らし

無料
無料

静岡県掛川市下垂木2318-2

/52.99m²

こちらのお部屋はリノベーションされたお部屋になります。
北側のお部屋が水色の壁紙でとってもかわいらしくなっています。
でも全部が洋室ではなく、和室も残されているあたりがうれしいですね。
日本人からしたら、やっぱり畳は落ち着きます。
壁一面の収納もあるのがうれしいポイントです。洋室に入りきらない分を一気に片付けましょう。

水色の洋室の収納はオープン式のクローゼットになっているのでオシャレに収納する力が大事になってきます。
北側のお部屋なので出窓に植物を置いたら、一気に部屋が明るくなるんじゃないでしょうか。

お部屋はとってもかわいくリノベーションされていますが細かいところまでちゃんときれいになっています。
お風呂場、トイレも白で清潔感があります。

キッチンの前には窓があるので、匂いや煙を気にしないで料理がはかどります。
ちょうどいいサイズのキッチンでおいしい料理をたくさん作りましょう。

3DKの広々としたこのお部屋で家族でワイワイ住むのもいいですし、仲良し新婚さんで広々と暮らすしてほしいです。

続きを読む

見学したい(無料)

洋間で和を感じる

23.4万円
無料

静岡県浜松市中央区布橋3-9-21

4LDK /103.41m² /1980年03月

こちらの物件は戸建てです。
2階建てで部屋数も多く、2世帯で暮らしたい方、大家族の方必見です!

LDと和室はガラス戸によって仕切られています。
半透明のガラス戸なので、プライバシーは守られつつも互いの存在を感じることができます。

2階建ての特権である、階段下収納がございます。
LDにもキッチンにも近いところにあるので、便利です。

2階に行くと、3つの洋間があります。
中でも12帖の洋間は簡易的ではありますが、仕切ることができるので活用の幅が広がります。

この物件の近くにはコンビニや公園などがあり、便利です。
閑静な住宅街でのんびりライフしませんか?

続きを読む

見学したい(無料)

時の共有。明るい部屋で。

無料
無料

静岡県磐田市今之浦5-8-8

/50.45m²

こちらの物件は磐田市今之浦の今之浦川付近の閑静な住宅街に建つマンションの1室になります。

川沿いの堤へすぐ出られる場所にあるので夏場のランニングコースには困りません♪
冬場も新しく出来たばかりの今之浦公園も徒歩圏内なので年中通して体を動かせる環境置けれます。

43号線沿いの飲食店も数多く近場にある生活利便性の高い街なので男性の一人暮らしも安心です♪

お部屋は全室洋室の2LDK。
8.5帖のLDKと隣の洋室は吹き抜けにもなる仕様で合わせれば15.2帖の広々リビングとしてもご使用いただけます。

大きなLDKにソファとダイニングテーブルを置いてもう1つの洋室(7帖)を寝室にするシンプルなレイアウトがとってもマッチするお部屋になっています。
大切なパートナーとの時の共有。ご家族と過ごす緩やかな日常へのあこがれ。
そんな願いを持つ方達におススメの物件となっております。

続きを読む

見学したい(無料)

コモンセンスを壊せ。

無料
無料

静岡県磐田市今之浦1-7-4

1LDK /43.00m² /1991年12月

こちらの物件は磐田市今之浦の今之浦川付近の閑静な住宅街に建つアパートの1室になります。

安久路大通りや43号線沿いの飲食店も数多く近場にある生活利便性の高い街なので男性の一人暮らしも安心です♪

お部屋の内装は2LDKから1LDKへリノベーションされたお部屋になります。
キッチン・洗面台は新品へ交換されており新設されたクローゼットも便利です♪

14.5帖のLDKは奥の洋室とも繋がっているので吹き抜けにすればとっても広々と使えるのでレイアウトするのに腕が鳴りそうです♪レトロカラーな家電や家具がとっても映える内装なのでぜひレイアウトに取り入れてみてください。

カップルやパートナーとのご入居ももちろん可能ですが、男性の1人暮らしでこそこのおうちでの優雅な暮らしが満喫できると私は思います。
ぜひ自分のこだわりを溢れるほど詰め込んでみてください。それが1番楽しい男の1人暮らし。

続きを読む

見学したい(無料)

大原ライフ[ペット可]

無料
無料

静岡県磐田市大原2068-33

3LDK /89.01m² /1982年11月

こちらの物件は、磐田市の大原にあります。
周辺は車通りが少なく、とても落ち着いています。
コンビニやスーパーからは少し離れたところにあります。徒歩で行けない距離ではないですが、車を持っているとより便利です!
駐車場も3台停めれるので、来客用の駐車スペースも確保することができます。

間取りは3LDKで、ファミリー層におススメの物件です。
4人家族でも、お子さま一人一人にお部屋を用意することが可能です。ケンカせずに部屋決めができそうです。

LDKは12帖あり、陽当たりもとても良いです。
白で統一されたキッチンは、清潔感がありコンロも設置されています。親子で仲良くクッキングができちゃいます。

1階には6帖和室のお部屋があります。昭和を感じさせる床の間も付いています♪
2階には6帖の和室と12帖の洋室があります。どちらのお部屋にも収納スペースが付いているので、整理整頓に役立ちます。
外にも倉庫が付いているので、普段あまり使わない物はそちらに保管ができそうです。

続きを読む

見学したい(無料)

ゆったりリビングでまったり暮らす

無料
無料

静岡県浜松市中央区早出町991-1

2LDK /60.07m² /1987年05月

この物件のLDKはなんと15.5帖もあるんです!
広々空間で暮らしたい方や、家族連れの方など、いろんな人におすすめしたい物件です。

広~いLDKにはシステムキッチン付き!
シンクが大きく調理スペースもあるので、料理好きの方にピッタリです。
料理が苦手な方でも、料理が楽しくなるかも、、、

LDKからつながる洋室には壁一面の収納があります。
洋服だけでなく様々なものの収納ができそうです。

この物件の周りには徒歩圏内にスーパーや百均、コンビニなどがあり、
とても充実しています。
日用品や食料品が近場で揃えられるので、便利なこと間違いなし!

Let’s ゆったり&まったり Life

続きを読む

見学したい(無料)

ぴかぴかのお風呂がいい!

無料
無料

静岡県浜松市中央区早出町991-1

/60.07m²

こちらは曳馬駅から徒歩13分の位置にあるリノベーション物件です。
こちらの物件の最大の魅力は築年数を感じさせないその綺麗さ。
なんていったって水回りがピカピカなんです。
やっぱりお風呂が綺麗だとテンション上がりませんか?

間取りは2LDKと広々。日当たりもばっちりです!
カップルさんでも家族でもゆったり過ごせる広さですね。
さらに収納もたっぷりあるので荷物が多くても大丈夫!

スーパーや100均も徒歩5分圏内にあるので、立地も抜群です♪
是非こちらのリノベーション部屋でぴかぴかの新生活を送りましょう!

続きを読む

見学したい(無料)

収納上手になるお部屋

無料
無料

静岡県浜松市中央区早出町991-1

/60.07m²

賃貸を借りるなら、収納が多いほうがいい!と考えるあなたにぴったりの物件です。
こちらは2LDKの物件でお部屋も広々としていますが、収納がとにかくたっぷり。
クローゼットには全部にハンガーパイプがついているのも嬉しいポイント。
洋服がたくさんで溢れかえって大変…なんて心配もいりません。
ちなみにシューズボックスも大容量。靴が多くても大丈夫です!

2021年9月にリノベーション工事をしたばかりなので、キッチンや水回りはすべて新品。
新築に住んでる気分が味わえちゃいます。

さらに駅チカで曳馬駅からも上島駅からも徒歩15分以内。
電車を利用して通学・通勤する方にはちょうど良い距離にあると思います。
浜松駅からも電車一本で行けるのもおススメポイントです。

是非こちらのお部屋で収納上手さん目指しましょう♪

続きを読む

見学したい(無料)

【ペット可】ワンニャンLIFE

無料
無料

静岡県浜松市中央区布橋3-7-4

/62.77m²

ワンちゃんも猫ちゃんもどっちも大好きで選べない!という方、必見です。
こちらの物件、小型犬と猫、それぞれ2匹まで相談可となっています。
合計で4匹、なんと賑やかなおうちでしょう。。
徒歩5分圏内に公園が2つあるので、ワンちゃんと遊ぶのにも困りません!

LDKは14.4帖と広々。
洋室は2室ありどちらもリビングとつながっているので、
引き戸を開けると開放感がありさらに広々とします。

キッチンは壁で隔てられている独立型になっているので、
来客の際は人目を気にせずに調理に集中できます!
リビングやダイニングまで油や煙が広がりにくいのも独立型のいいところですね。

スーパーやドラッグストアも徒歩10分圏内にあり立地も良しです!
こちらの物件でぜひ大切なペットたちと過ごしてみてはいかがですか??

続きを読む

見学したい(無料)

緑に囲まれた要塞

無料
無料

静岡県浜松市中央区住吉1-22-3

3DK /57.51m² /1985年10月

こちらは浜松市中区住吉にある3DKのファミリー向けのお部屋になります。
目の前には小学校、裏には幼稚園があり、小さなお子さんも安心して通える近さです。

周りは公園がいくつもあるので、お子さんと遊ぶのにもまったく困りません!
浜松市街からもさほど遠くないのに緑がたくさんあるっていいですよね。

外観はなんだか要塞みたいで個性的です。
ダイニングはキッチンの青いタイルと白いガラス戸がレトロで可愛い雰囲気を出しています。
洋室は2室、和室は1室あるのでファミリーでも難なく過ごせちゃう広さですが、家賃もお手頃。

ネット無料なのも嬉しいポイントです♪

続きを読む

見学したい(無料)

バルコニーからの眺め最高!

無料
無料

静岡県浜松市中央区志都呂町1416-3

賃料60,000円  
共益費/管理費3,000円

2LDK /51.38m² /1995年6月

バルコニーからは遮る建物はなく
新幹線が通過するのが遠目に観えます
とても静かな環境
ファミリーにおススメの物件のご紹介です!

旧西区 志都呂町
子育て世帯には嬉しい徒歩圏内で行ける範囲に
幼稚園には徒歩2分
小学校は徒歩15分
志都呂イオンさんへは徒歩7分です

南側の窓は広く、澄んだな空気が流れ込み、陽当たりポカポカ
晴れた日には、家族分のお洗濯物やお布団も沢山干せますよ

続きを読む

見学したい(無料)

SUNNY HOUSE

無料
無料

静岡県浜松市中央区中沢町45-57

/74.52m²

暖色カラーの壁とレンガが可愛らしいこちらのおうち、
中沢町にあるファミリーにも人気のテラスハウスタイプの物件です。

こちらのおうち、3面採光といいまして南、北、東の3つの面すべてに窓がついているので、日当たり抜群!
まさにお日さまに愛されるおうちなのです。

部屋に入るとまず広がるのは15帖の広いリビング。キッチンも快適な広さです。
そして2階には6帖ほどのお部屋が2室、さらに納戸まであるんです!
洋室2室にはそれぞれクローゼットと物置がついているので、収納スペースは申し分ないはず。
納戸の使い方は自由なので、物置にしてもよし、子供部屋にだってできちゃいます♪

立地も中沢町なので浜松市街からさほど遠くないですし、
徒歩5分圏内に公園が2つもあるので休日はお子さんと遊んだり、
ランニングしたりとリフレッシュにも最適ですよ!
公園までの道のりは緑が多く、晴れた日に車を走らせるとすごく気持ちいいです。

戸建て気分を味わえちゃうこちらの素敵なテラスハウス、ご家族の新生活にいかがでしょうか?

※家近くの坂道は少し急になっています。

続きを読む

見学したい(無料)

多趣味・多忙さんおいで

無料
無料

静岡県浜松市中央区和合町27-7

1LDK /43.80m² /2009年1月

こちらは中区和合町にある1LDKのお部屋です。
リビングと隣の洋室は引き戸でつながっています。

部屋のつくりはいたってシンプルですが
こちらの物件のいいところはなんといっても立地のよさです。
比較的街中にも近い位置にあり、聖隷浜松病院や浜松学院が徒歩5分圏内にあるので
看護師さんや学生さんには嬉しい立地ですね。
また、スーパー、コンビニ、薬局どれも徒歩15分圏内となっています。
さらに近くに和地山公園もあるので、休日はランニングもできますよ♪

対面キッチンにはテーブルスペースがあるので、
一人暮らしの方は忙しい朝にパパっと朝食を食べられたり、
カップルさんは会話をしながら料理を楽しむことができますね。

オートロックなのでセキュリティも安心です。

お仕事にお料理にスポーツ・・・そんな多忙ライフを送る多趣味なあなたにぴったりの物件です!

続きを読む

見学したい(無料)

緑とともに暮らそう

無料
無料

静岡県浜松市中央区幸3-9-11

/54.93m²

こちらの物件は閑静な住宅街にあります。周りが緑豊かな雰囲気でバルコニーからも緑を感じることができます。
大きな道沿いから一本曲がった先にあるこの物件は、車で走ればすぐ大通りに出れちゃう便利な立地です。
周りは戸建ての住宅街で、子供たちが多く元気な声であふれていていました。

3つの洋室の広々とした間取りになっていて、南向きの洋室は目の前に高い建物もなくたっぷりと日差しが入ってきます。
洋室には大きな収納つきで、家族みんなの分も、洋服の多い女性の方でも安心の収納力です。

バルコニーからは緑も感じられ、自然豊かに暮らせます。

広々とした玄関にはシューズボックスがないので自分好みのものを置きましょう。

近くには四ツ池公園もあるので休日はちょっとしたお散歩にでかけたいですね。
ぜひ家族でわいわい住むのもいいですし、新婚さんやカップルで広々暮らしていただきたい物件です。

続きを読む

見学したい(無料)

緑に囲まれた生活

無料
無料

静岡県浜松市中央区幸3-9-13

/54.93m²

こちらの物件は閑静な住宅街にあり、緑に囲まれた物件になっております。

緑を眺めながら、読書をしたりしてゆっくりと過ごす休日。
現実も忘れて、昼寝をしたり、鳥のさえずりを楽しんだり、、、
そんな素敵な生活を送るのにピッタリの物件です。

間取りは3DK。
DK6帖。6帖と5.4帖の洋室が2つ。6帖の和室が1つ。とたくさんお部屋がございます。
DK6帖と洋室6帖はつなげて12帖にしてLDKとして使うこともできるので、生活に合わせて変更してみてもいいかもしれません。
収納も壁一面あるので困らないでしょう。
家族連れの方は、和室はけががしづらいので、子供部屋にしてみてもいいかもしれません。

近くには四ツ池公園もあるので休日はちょっとしたお散歩にでかけたいですね。
ぜひ家族でわいわい住むのもいいですし、新婚さんやカップルで広々暮らしていただきたい物件です。

続きを読む

見学したい(無料)

木漏れ日と一緒に暮らす。

6.1万円
無料

静岡県浜松市中央区幸3-9-13

3DK /54.93m² /2000/07

木漏れ日とは「森林などの木立ちから太陽の日差しが漏れる光景のこと。」
木漏れ日を感じる室内は、冬はポカポカ陽気の暖かさ、夏には木陰の下の涼しさを感じます。
また、影の揺らぎや動きから、風の流れや時間の移り変わりを感じることができます。

わざと、電気を消して窓から入る木漏れ日を楽しみつつ、日向ぼっこしながらのんびり読書に耽る。そんな休日を過ごしてもいいかもしれません。
立地も、閑静な住宅街にあり、ちょっとした避暑地の別荘のような雰囲気を窓からの緑で、感じることができます。

それなのに、大きな道沿いから一本曲がった先にあるこの物件は、車で走ればすぐ大通りに出れちゃう便利な立地です。

間取りは3DK。
DK6帖。洋室が3つ。6帖が2つと5.4帖が1つとお部屋がたくさんあります。
DK6帖と洋室6帖はつなげて12帖にしてLDKとして使うこともできるので、生活に合わせて変更してみてもいいかもしれません。
収納も壁一面あるので困らないでしょう。

近くには四ツ池公園もあるので休日はちょっとしたお散歩にでかけたいですね。
ぜひ家族でわいわい住むのもいいですし、新婚さんやカップルで広々暮らしていただきたい物件です。

続きを読む

見学したい(無料)

大きなキッチンで自炊!

無料
無料

静岡県浜松市中央区城北2-22-11

1LDK /38.07m² /2010年4月

静大の近くの物件お探しになってませんか?
その点このお部屋は静大徒歩5分です!
しかも静大の近くは学生向けに小さい物件が多いですがここは38㎡と広めです。
社会人にも学生にもお勧めです!

そして、一人暮らしとなると、やはり自炊は欠かせません!
そんなときも安心の広々キッチンを兼ね備えています!

また、リビングの隣には洋室があって仕切ることができます!
最近はやっている自宅オンラインでも仕切りを区切ることでオンとオフの切り替えができると思います!
そしてこのお部屋角部屋なので、窓がたくさんあり陽当たりも良好です?

お部屋も1階と2階の2部屋のみ。お隣さんがいないのでお隣の音は気にしなくて良さそう!

ただし、物件の目の前は細い道路なので駐車するのには技術が必要かも。

続きを読む

見学したい(無料)

city boy

無料
9万円

静岡県浜松市中央区砂山町343-1

2LDK /60.18m² /2011年3月

こちらの物件は浜松市中区砂山の生活利便性の良い街に建つ
マンションの1室になります。

浜松市街地にほど近い場所にあるこちらのマンションは
シティボーイにふさわしいガラス壁をあしらった
シックな外観になっておりとってもお洒落です。

内装はシンプルな2LDKのW.in クローゼットがついたお部屋なので
お1人での広々優雅な暮らしも新婚さんやカップルでのご入居にも
おススメです!

街に近いエリアで駐車場があるのもとっても嬉しいポイント!

浜松市街地で勤務の方や飲み歩きがお好きな方には
歩いて帰れるこの物件は羨ましがられること請け合いです♪

続きを読む

見学したい(無料)

リバーサイド山の神

無料
無料

静岡県浜松市中央区神ケ谷町6958-1

賃料68,000円  
共益費/管理費3,000円

2LDK /56.40m² /2008年1月

建物前面には、東神田川と森林が広がり
山の神が住んでいそうな、、、
一本道を入ると田園風景
流れる空気が澄んでいて、とても静かな住宅街にあります
広々2LDK、ファミリー向け物件のご紹介です

東神田川は、2級河川としては小さな川ですが、上流には水神社が祀られているように湧き水が多く、大変きれいな川で、アユやハゼなどの魚や、生き物の種類も豊富だそうです
小さなお子様がいらっしゃるご家庭では、近隣で親子そろって川遊びや魚とりなど自然の大切さを学べますね!

玄関入って正面洋室6.1帖は2面窓があり、とても明るく、綺麗な空気がながれます
広めのWICで、ご家族分のお洋服や物も収納できます
LDKは11.9帖。扉を開ければ広々18帖としてご使用いただけます!
お車2台込、駐輪場と専用ごみ置き場完備
エアコン、モニターホン、浴室乾燥、追い焚きなど、設備も充実してます
静かな地で暮らしたい方、ファミリー向け物件をお探しの方におススメします!

続きを読む

見学したい(無料)

【浜松駅チカ】一人暮らしの贅沢。

無料
7.2万円

静岡県浜松市中央区中島1-11-8

/41.69m² /2019年3月

浜松駅まで徒歩15分の好立地。
飲んだ後にいい酔い覚ましの距離感の物件です。

線路が近いので多少電車が通る音が気になるかもしれません・・・。


ただ、お部屋は素敵です!
駅チカご希望の方にはおススメしたい物件。

12帖のLDKは人気の対面キッチン。
誰かと会話しながらお料理を作れるので
楽しくなること違いなし!!

6帖の洋室とLDKは扉を開けばつながるので扉を開けておけば開放感があります。
ウォークインクローゼットもあるので収納も困らなそうです。

一人暮らしにしては贅沢な41㎡の広さ!カップルさんと2人暮らしもできそうです!
悠々自適な浜松LIFEを過ごすことができそうですね♪

続きを読む

見学したい(無料)

赤いキッチンの素敵なお部屋

無料
6.9万円

静岡県浜松市中央区中島1-11-8

1LDK /41.69m² /2019.03

浜松駅まで徒歩15分の好立地。
飲んだ後にいい酔い覚ましの距離感の物件です。

線路が近いので多少電車が通る音が気になるかもしれません・・・。


ただ、お部屋は素敵です!
駅チカご希望の方にはおススメしたい物件。

12帖のLDKは人気のカウンターキッチン。
赤色のペニンシュラキッチンはかなりお洒落!
お料理を作るのが楽しくなるに違いないです。

6帖の洋室とLDKは扉を開けばつながるので扉を開けておけば開放感があります。
ウォークインクローゼットもあるので収納も困らなそうです。

悠々自適な浜松LIFEを過ごすことができそうですね♪

続きを読む

見学したい(無料)

柔らかい風が頬をなでる。暮らしに色をつける。

無料
無料

静岡県浜松市中央区葵東3-5-14

/39.74m²

こちらの物件は浜松市中区葵東の閑静な街並みにある平屋の物件です。

どこか懐かしい印象のこちらの物件はゆるやかでなつかしく海を感じない地域の
おうちなのにもかかわらず季節を感じられるお家になっています。

間取りは2DKとなっており1人での悠々自適な暮らしも
仲良しカップルでのんびりくらしもどちらでも十分な広さになっています。

オール洋室に改装済みで浴槽とトイレも新品に入れ替えてありとっても綺麗です!
追炊にシャワートイレとエアコンもあり気になるところはバッチリです。

Windy IndieのMVのような現代レトロな暮らしに憧れる人はおおいと思います。
こちらの物件であれば現代の若者暮らしにも十分に馴染んでくれます♪

レトロデザインの白物家電や家具でレイアウトして原色の洋服でキめれば
あなたの暮らしも現代レトロに浸らせることができます。

続きを読む

見学したい(無料)

風の匂いで季節を感じるおうち

無料
無料

静岡県浜松市中央区葵東3-5-13

2DK /39.74m² /1985年3月

こちらの物件は浜松市中区葵東の閑静な街並みにある平屋の物件です。

どこか懐かしい印象のこちらの物件はゆるやかでなつかしく海を感じない地域の
おうちなのにもかかわらず季節を感じられるお家になっています。

間取りは2DKとなっており1人での悠々自適な暮らしも
仲良しカップルでのんびりくらしもどちらでも十分な広さになっています。

オール洋室に改装済みで浴槽とトイレも新品に入れ替えてありとっても綺麗です!
追炊にシャワートイレとエアコンもあり気になるところはバッチリです。

Windy IndieのMVのような現代レトロな暮らしに憧れる人はおおいと思います。
こちらの物件であれば現代の若者暮らしにも十分に馴染んでくれます♪

レトロデザインの白物家電や家具でレイアウトして原色の洋服でキめれば
あなたの暮らしも現代レトロに浸らせることができます。

続きを読む

見学したい(無料)

ゆるやかで懐かしい。季節を感じるおうち

無料
無料

静岡県浜松市中央区葵東3-5-12

/39.74m²

こちらの物件は浜松市中区葵東の閑静な街並みにある平屋の物件です。

どこか懐かしい印象のこちらの物件はゆるやかでなつかしく海を感じない地域の
おうちなのにもかかわらず季節を感じられるお家になっています。

間取りは2DKとなっており1人での悠々自適な暮らしも
仲良しカップルでのんびりくらしもどちらでも十分な広さになっています。

オール洋室に改装済みで浴槽とトイレも新品に入れ替えてありとっても綺麗です!
追炊にシャワートイレとエアコンもあり気になるところはバッチリです。

Windy IndieのMVのような現代レトロな暮らしに憧れる人はおおいと思います。
こちらの物件であれば現代の若者暮らしにも十分に馴染んでくれます♪

レトロデザインの白物家電や家具でレイアウトして原色の洋服でキめれば
あなたの暮らしも現代レトロに浸らせることができます。

続きを読む

見学したい(無料)

景色の良い最上階暮らしをどうぞ

無料
無料

静岡県浜松市中央区幸1-15-36

/61.40m²

6階建ての最上階
浜松の景色を眺める暮らしをどうぞ!

マンション名はシティガーデン・幸
地名にちなんで幸ですが、バルコニーからの眺めは良く、浜松の景色を開放的に感じます
前面は広々遮る建物がないので、新鮮な空気が流れこみます
中区幸。住吉バイパス沿いですが、上の階なので、車の音はほとんど感じられません
駐車場は広々していて2台無料、エレベーター付でオートロック、設備が整った物件になります
駐輪場と専用ゴミ捨て場が設置していて、共有ス―ペースがとてもきれいに管理されてました
間取りは広々2LDK
北南を繋ぐ広々ウォークスルークローゼットがポイントです
ご家族分のお洋服とお荷物を集め沢山収納。スッキリスマートに暮らせます
リビングは広々14帖
洋間6.2帖の間仕切りを広げれば、広々20帖としてもご利用いただけます
キッチン回りも広々
お気に入りのカップボードを置けます
洗面脱衣場と洗濯機置場も広々。廊下側とキッチン側2か所にドアがあり
家事導線がなかなか良いです
建物1階は紳士服のアオキさん。
広々駐車場からはメディカルビル、ケンタッキーさん。
小児科、眼科、整形外科には直ぐに行くことができます!

通勤や通学、スーパーなどのお買い物、病院。
快適に生活することができそうですよ。

続きを読む

見学したい(無料)

新鮮な空気+浜松の景色=幸

無料
無料

静岡県浜松市中央区幸1-15-36

/61.40m²

6階建ての5階
浜松の景色を眺める暮らしです!

マンション名はシティガーデン・幸
地名にちなんで幸ですが、バルコニーからの眺めは良く、浜松の景色を開放的に感じます
前面は広々遮る建物がないので、新鮮な空気が流れこみます
中区幸。住吉バイパス沿いですが、上の階なので、車の音はほとんど感じられません
駐車場は広々していて2台無料、エレベーター付でオートロック、設備が整った物件になります
駐輪場と専用ゴミ捨て場が設置していて、共有ス―ペースがとてもきれいに管理されてました
間取りは広々2LDK
北南を繋ぐ広々ウォークスルークローゼットがポイントです
ご家族分のお洋服とお荷物を集め沢山収納。スッキリスマートに暮らせます
リビングは広々14帖
洋間6.2帖の間仕切りを広げれば、広々20帖としてもご利用いただけます
キッチン回りも広々
お気に入りのカップボードを置けます
洗面脱衣場と洗濯機置場も広々。廊下側とキッチン側2か所にドアがあり
家事導線がなかなか良いです
建物1階は紳士服のアオキさん。
広々駐車場からはメディカルビル、ケンタッキーさん。
小児科、眼科、整形外科には直ぐに行くことができます!

通勤や通学、スーパーなどのお買い物、病院。
快適に生活することができそうですよ。

続きを読む

見学したい(無料)

幸せ家族の住空間

無料
無料

静岡県浜松市中央区幸1-15-36

/61.40m²

6階建ての2階
マンション名はシティガーデン・幸
地名にちなんで幸ですが、バルコニーからの眺めは開放的に感じます
前面は広々遮る建物がないので、新鮮な空気が流れこみます
家族が幸せになれる住空間です
住吉バイパス沿いですが、車の音はほとんど感じられません
駐車場は広々していて2台無料、エレベーター付でオートロック、設備が整った物件になります
駐輪場と専用ゴミ捨て場が設置していて、共有ス―ペースがとてもきれいに管理されてました
間取りは広々2LDK
北南を繋ぐ広々ウォークスルークローゼットがポイントです
ご家族分のお洋服とお荷物を集め沢山収納。スッキリスマートに暮らせます
リビングは広々14帖
洋間6.2帖の間仕切りを広げれば、広々20帖としてもご利用いただけます
キッチン回りも広々
お気に入りのカップボードを置けます
洗面脱衣場と洗濯機置場も広々。廊下側とキッチン側2か所にドアがあり
家事導線がなかなか良いです
建物1階は紳士服のアオキさん。
広々駐車場からはメディカルビル、ケンタッキーさん。
小児科、眼科、整形外科には直ぐに行くことができます!

通勤や通学、スーパーなどのお買い物、病院。
快適に生活することができそうですよ。

続きを読む

見学したい(無料)

暮らしやすい生活

7.6万円
7.6万円

静岡県磐田市鳥之瀬184

3LDK /75.60m² /1991年7月

磐田駅まで徒歩15分圏内!
近くにはスーパーやドラッグストアが徒歩圏内にあり、飲食店も多いので生活環境にはとても暮らしやすいです。

お部屋は17.5帖の広々LDK。
更に南側の洋室の扉を開ければ約23帖ほどの広さに!
使い方には困りません。
また、ファミリーに嬉しい3LDK!
お子様が成長しても子供部屋としてご用意ができますね。


川のほとりで自然を感じながら磐田での生活はいかがでしょうか。

続きを読む

見学したい(無料)
FULL リノベ済み 360VR

NY LIFE in iwata

無料
無料

静岡県磐田市見付1612-77

1LDK /49.85m² /2001年12月

磐田にこんなお洒落なリノベ部屋があるとは。
各所に施されたレンガ調やモルタル風の壁紙が、まるでNYのアパートメントにいるかのような雰囲気を醸し出しています。

L字型の13帖のLDKは、壁一面にある大きな窓からしっかりと日が入り、明るい空間を作ってくれます。
グレーの床とレンガ調のキッチンが洒落ています。
キッチンにはカウンターがついていてとても便利。Bar使用ができます。

LDKからアクセスできる6帖の洋室には、なんと特別なスペースがあるのです。
奥に見える間仕切り壁の奥は収納かと思いきや、デスクと棚付きの書斎です。
書斎って憧れる。しかもライトお洒落。
更にはLDKからも入れるウォークスルークローゼットがあります。

バイパス見付インター近く、お車でのアクセス良好です。
浜松に通勤される方もありかも。というかありです。
お見逃しなく!

続きを読む

見学したい(無料)
RENT リノベ済み 360VR

ヒーリングハウス

無料
無料

静岡県磐田市見付1612-77

賃料55,000円  
共益費/管理費3,000円

2LDK /49.85m² /2001年12月

こちらの物件は磐田市バイパス見付ICからほど近い場所に建つアパートの1室になります。
ICから車で5分もかからない場所にあるので通勤にとっても便利な立地です♪
またお家の付近には多数の飲食店、スーパー、100円ショップ等の毎日の生活に嬉しいお店がそろっていて生活利便性もバッチリ!
毎日忙しいあなたの暮らしのき助けにきっとなってくれる事と思います。

お部屋の内装はウォークスルークローゼットが付いた1LDK!
お洋服が多くても全然問題なしです。

洋室の窓からはアパート奥に流れる今之浦川に沿った森林を見渡すことができます。窓を開ければ天然のマイナスイオンが浴び放題です♪
大きなLDK南側の窓からはしっかり日が差し込むので、お家の中で森林浴と日光浴どちらも楽しんで頂けます。

日々喧騒の中での暮らしに嫌気がさしてしまっている貴方にこそぜひおススメしたい物件になっています。

続きを読む

見学したい(無料)

日の当たる書斎で自分だけのワークデスク。

無料
無料

静岡県磐田市三ケ野台11-6

/66.21m²

こちらの物件は磐田市三ケ野台の閑静な住宅街にあるマンションの一室になります。

人気のアイランドキッチンが構える12帖の広々リビングに和室までついたよくばりな
こちらのお部屋はお家での創作や作業が多いあなたにおすすめしたいお部屋です。

このお部屋で目を引くのはやはり約12帖の広々とした洋室にある書斎スペースです。
備え付けの壁一面についたワークデスクに前面壁は有孔ボードになっていてお仕事効率ばっちりです!
洋室には収納も付いてデスク回りが物であふれかえる心配もありません。

何かと場所を取る男の子の趣味にも自宅でお仕事したいフリーランスなあなたにも
どんなクリエイターのライフスタイルにもマッチする素敵なお部屋で暮らしてみませんか?

続きを読む

見学したい(無料)

まっしろハウス!

無料
無料

静岡県磐田市三ケ野台11-6

/66.21m²

こちらのお部屋、ほんとにまっしろです。
LDKは白、キッチンも白、扉も、洋室も白。まっしろハウスなのです。

LDKは広々12.2帖です。窓が2つついているので明るい日差しもたっぷりはいってきそうです。
キッチンもお部屋と同じく、白です。汚したらすぐに掃除してくださいね。
その隣はこのまっしろハウスからは想像のつかない和室が!!
まさか和室があるなんて思わないですよね。
日本人の方ならだれでも好きな和室だと思います。収納付きも嬉しいポイントです。

そのほかに7.2帖の洋室と、4.5帖の洋室があります。
もちろんまっしろです。もちろん収納もあるのでご安心を。

玄関には女性からしたら嬉しすぎるポイント!全身鏡付きのシューズボックスが!
しかも靴もたくさん入りそうです。
オシャレは足元からっていいますもんね。たくさんの靴をキレイに片付けましょう。

近くにはコンビニから、スーパー、薬局まで徒歩圏内です。
ちょっと頑張ればヤマハスタジアムだってあります!
このまっしろハウスでぜひ充実した生活をお過ごしください。

続きを読む

見学したい(無料)

夢も広がる1LDK

無料
無料

静岡県浜松市中央区布橋3-7-45

/50.20m²

このお部屋はLDKと隣の洋室を引き戸で繋げることができます。
自由度の高いお部屋になっています。
活用の幅が広がりますよ。

LDKには青色のキッチンがついています。
シンプルなお部屋のデザインに青色アクセントになっています。
お料理にハマるかも、、、

洋室にはウォークインクローゼットがついています。
中は洋服を掛けるだけでなく、棚もついているのでたくさん収納できます。

玄関には大きめのシューズボックスがついています。
オシャレが好きな人にピッタリです。

駐輪場もついていますので自転車をお持ちの方にもおすすめです。

続きを読む

見学したい(無料)

広がる1LDK

無料
無料

静岡県浜松市中央区布橋3-7-45

賃料67,000円  
共益費/管理費3,000円

1LDK /50.20m² /2008年8月

このお部屋はLDKと隣の洋室を引き戸で繋げることができます。
自由度の高いお部屋です。

LDKには青色のキッチンがついています。
シンプルなお部屋のデザインに青色がよく映えています。
お料理が楽しくなりそうです。

洋室にはウォークインクローゼットがついています。
中は洋服を掛けるだけでなく、棚もついているのでたくさん収納できます。

玄関には大きめのシューズボックスがついています。
オシャレが好きな人にピッタリです。

駐輪場もついているので、自転車をお持ちの方にもピッタリです。

続きを読む

見学したい(無料)

川沿いに佇む[ペット可]

無料
無料

静岡県浜松市中央区入野町16310-1

2LDK /50.06m² /1998年7月

佐鳴湖畔から流れる新川沿いに佇むこちらのマンション。
お部屋の中は木目調の天井でなんだかログハウスの別荘に来た気分。
バルコニーに出ると、5階からの景色は最高です。
とっても広いバルコニーなので、ガーデンソファを置いて川を眺めながらベランダでワインなんて飲んだらもう、、気分はすっかりリゾートですね。

対面式の広々キッチンは、3口コンロ・グリル付き、収納力も抜群。
半個室になっているので小さいお子様がいるご家庭でも安心してお料理できますよ。

LDKとつながる和室もなんだかモダンな雰囲気で家具次第でおしゃれ空間にできちゃいそう。
さらにペット可の物件なので、わんちゃん猫ちゃんがいるご家庭でも大丈夫!
佐鳴湖畔まですぐ近くなので、お散歩コースは決まりですね。

小中学校も近く、スーパーは徒歩圏内、さらにオートロックもついていてセキュリティもバッチリ。
小さいお子様&わんちゃん猫ちゃんがいるご家庭におすすめの物件です。

続きを読む

見学したい(無料)

お散歩コースは佐鳴湖畔![ペット可]

無料
無料

静岡県浜松市中央区入野町16310-1

2LDK /52.27m² /1998.07

佐鳴湖畔から流れる川面に立地
爽やかな風が流れ、ちょっと別荘にきたような感覚に
リビングの天井は木目で素敵な空間です

11帖のリビングに対してL字に配置されたキッチンは対面式
広々キッチンは、3つ口コンロ・グリル付き、収納力も抜群です
キッチンに立つのが楽しくなりそう

和室6帖は押し入れに天袋と、昔ながらの雰囲気です
リビング和室の窓バルコニー前面は川を眺めながらの生活になります

ペットのご相談可ですよ(犬、猫2匹まで)
オートロックでセキュリティ対策安心

小学校中学校も近く、スーパーは徒歩圏内
佐鳴湖畔まで、ワンちゃんのお散歩コースにどうぞ!

続きを読む

見学したい(無料)

ガッチリセキュリティ~Bar編~

無料
7.2万円

静岡県浜松市中央区八幡町110

1LDK /42.27m² /2021年2月

オートロックのエントランスに入ると
防犯カメラのモニターが。
防犯意識が高いお部屋です!

間取りは1LDKで、洋室にはWICが付いています。
鏡付きシューズボックスや、LDKにも物入があるので
収納ばっちりですね。

LDKの雰囲気は、洒落たバーのよう。
キッチンを照らすダウンライトが大人なムードを高めます…

浴室や脱衣所もブラウンでまとめられていてシックな印象。
2021年2月に完成したピカピカ物件ですので、もちろんとても綺麗です!

駅から徒歩4分の好立地、インターネットも無料で使えます♪

続きを読む

見学したい(無料)

ガッチリセキュリティ

無料
7.5万円

静岡県浜松市中央区八幡町110

賃料75,000円  
共益費/管理費5,000円

1LDK /42.27m² /2021年2月

オートロックのエントランスに入ると
防犯カメラのモニターが。
防犯意識が高いお部屋です!

間取りは1LDKで、洋室にはWICが付いています。
鏡付きシューズボックスや、LDKにも物入があるので
収納ばっちりですね。

所々にライトブラウンが使われていて、優しく可愛い印象です。
浴室乾燥や宅配ボックスなど、あったら嬉しい機能も盛りだくさんです。

駅から徒歩4分の好立地、インターネットも無料で使えます♪

続きを読む

見学したい(無料)

ガッチリセキュリティ

無料
6.9万円

静岡県浜松市中央区八幡町110

1LDK /42.27m² /2021年2月

オートロックのエントランスに入ると
防犯カメラのモニターが。
防犯意識が高いお部屋です!

間取りは1LDKで、洋室にはWICが付いています。
鏡付きシューズボックスや、LDKにも物入があるので
収納ばっちりですね。

所々にライトブラウンが使われていて、優しく可愛い印象です。
2021年2月に完成したピカピカ物件ですので、もちろんとても綺麗です!
浴室乾燥や宅配ボックスなど、あったら嬉しい機能も盛りだくさんです。

駅から徒歩4分の好立地、インターネットも無料で使えます♪

続きを読む

見学したい(無料)

いつも見てるよby防犯カメラ

無料
7.3万円

静岡県浜松市中央区八幡町110

賃料73,000円  
共益費/管理費5,000円

1LDK /41.85m² /2021年2月

オートロックのエントランスに入ると
防犯カメラのモニターが。
防犯意識が高いお部屋です!

間取りは1LDKで、洋室にはWICが付いています。
鏡付きシューズボックスもあるし、収納ばっちりですね。

所々にライトブラウンが使われていて、優しく可愛い印象です。
ピカピカ物件ですので、もちろんとても綺麗です!
浴室乾燥や宅配ボックスなど、あったら嬉しい機能も盛りだくさんです。

駅から徒歩4分の好立地、インターネットも無料で使えます♪

続きを読む

見学したい(無料)

みんなで過ごすおうち

無料
無料

静岡県浜松市中央区天王町771-7

/64.13m²

こちらの物件は浜松市東区天王町の閑静な街に立つマンションの一室になります。

生活利便性に優れた町で人気エリアの天王町で広々2LDKのこちらのおうちは
シックな建物外観でご家族や新婚さんにもピッタリなお部屋になっております。

各部屋についた収納スペースは家族みんなの分の荷物やお洋服を入れても十分な広さになっています♪
変わった2面式のバルコニーは各洋室からLDKへと繋がっています。

人気の対面式キッチンはリビングが見渡せて
小さなお子さんがいらっしゃるお母さんも安心です!

ご家族やパートナーみんなの要望に応えてくれるこのお部屋での
暮らしをしてみませんか??

続きを読む

見学したい(無料)

部屋のサイズが変わっちゃう!? 用途に合わせて変化します

無料
無料

静岡県浜松市中央区天王町771-7

/64.00m²

外観から感じる高級感!
部屋もおしゃれなつくりになっています。

玄関には縦長の下駄箱があり、大容量になってます。
鏡がついているので、出かける前の最終チェックもできますよ。

玄関から入ってすぐ右の洋室には壁一面のクローゼットが!
洋服が大好きな人必見です。

奥の洋室とリビングは引き戸によって1つの部屋にすることもできます。
普段は2つの部屋として使用し、大人数で集まるときには1つの部屋にして活用するのもいいですね!
(コロナウイルスが収まったらの話ですが、、、泣)
大人数で集まらなくても、部屋の模様替えなどで活用してもいいですね。
いずれにしても、自由度が高いお部屋になっています。
ここにもクローゼットや収納スペースがあるので、洋服だけでなくいろんなものを収納できます。

キッチンにはリビングとは違った照明が付けられており、料理するときテンションがあがります。
この照明に照らされると料理がおいしそうに見えるかも、、、(私の勝手なイメージです)

テラスがついており、洗濯物を干すだけでなく遊び場としても活用できます。
気軽に外へ遊びに行くことができなくても、このテラスで充分に身体を動かすことができます。
運動不足の方や、小さなお子様がいる方、必見です!

続きを読む

見学したい(無料)

楽しくなる予感。

無料
7.9万円

静岡県浜松市中央区天王町771-7

2LDK /64.13m² /2015年3月

キッチンは対面式なのでリビングを見渡すことができます。
お子様の様子を見ながら、または大好きなあの人を眺めながら料理することができます!

リビングとは別に洋室が2つあり、用途によって使い分けることができます。
子供部屋や寝室、趣味の部屋など組み合わせはたくさんございます。
この洋室にはそれぞれにクローゼットがついているので、収納面もGOOD◎

部屋のデザインが全体的にシンプルなので、置く家具によって様々な雰囲気が楽しめそうです。
おうち時間が楽しくなる予感、、、!

続きを読む

見学したい(無料)
FULL

【新築】新大学生さん、いらっしゃい!

無料
無料

静岡県浜松市中央区布橋2-335-2

/25.40m²

静岡大学近くに現在建築中!
ワクワクするキャンパスライフは、新築で!
全4部屋
洋室(7畳) ロフト(6畳)
ロフトが広いです♪

3/20~入居可能になりますのでぜひお問合せ下さい。

続きを読む

見学したい(無料)

戸建風。いや戸建です。高台の素敵な戸建賃貸物件!

12.8万円
12.8万円

静岡県浜松市中央区和合町27-45

賃料128,000円

3LDK /89.42m² /2016年2月

こちら和合にある高台に面した好立地にある一戸建ての物件。
この手の物件はすぐ決まってしまうので、ファミリーで一戸建て賃貸お探しの方はお早めにどうぞ!

間取りは3LDKの庭付きで高台の好立地。
電気自動車の充電ができたり、オール電化となっていてこれからの時代を見据えた設備が付いています。
色々考えてみたのですが文句の付け所が今の所ありません。
小型のわんこを一匹飼うこともできます。

こちらが気になる方はやはり早めの行動をお勧め致します。

続きを読む

見学したい(無料)

駅まで徒歩。だけど静かなところに住みたい。

無料
無料

静岡県磐田市鳥之瀬47-1

/50.19m²

駅まで徒歩圏内!静かな暮らしをしたい!そんな方におススメです。

近くには今之浦川が流れており、今之浦の公園が新しく生まれ変わるそうです。
歩いてお散歩、ランニングする環境に恵まれております。

お部屋の間取りは10.6帖のLDKと洋室が2部屋洋室があります。
約10帖の洋室だけでは少し狭いかな?と感じる方もいらっしゃるかと思いますが、
お隣の6.1帖の洋室とつなげば約16帖の広い空間に大変身!

お好きに間取りを変えてみてくださいね!

続きを読む

見学したい(無料)

静かな環境でスタートしよう

無料
無料

静岡県浜松市中央区立野町417

2LDK /61.74m² /2006年3月

セキュリティーバッチリ。
建物エントランスはオートロック付き。
宅配ボックスも完備しています。

LDKは14帖で広々、収納も多いので荷物の多い方でも安心です。
エアコン、シャワートイレ、追焚、浴室乾燥機、WICなど充実の内容です。
インターネット無料で入居した時からすぐに使用可能です!
嬉しい駐車場は2台まで無料なんです。
また賃貸では珍しく来客用駐車場がありますので、お友達・ご家族の方が遊びに来ても駐車場困りません!
スーパーなど近隣に2件、お買い物が便利ですね。
建物周りは畑や空き地なのでとっても静かな環境です!

新生活にはぜひ静かな環境でいかがでしょうか?

続きを読む

見学したい(無料)

静かな地で新生活スタート

無料
無料

静岡県浜松市中央区立野町417

2LDK /61.74m² /2006.03

セキュリティーバッチリ!
建物エントランスはオートロック付き。
宅配ボックスも完備しています。

LDKは14帖で広々、収納も多いので荷物の多い方でも安心です。
エアコン、シャワートイレ、追焚、浴室乾燥機、WICなど充実の内容です。
インターネット無料で、入居した時からすぐに使用可能です!
嬉しい駐車場は2台まで無料なんです。

また賃貸では珍しく来客用駐車場がありますので、お友達・ご家族の方が遊びに来ても駐車場に困りません!
スーパーなど近隣に2件、お買い物が便利ですね。
建物周りは畑や空き地なのでとっても静かな環境です!

新生活にはぜひ静かな環境でいかがでしょうか?

続きを読む

見学したい(無料)

【新築】ココから。ゆとりライフ初めよう!

無料
無料

静岡県浜松市中央区鹿谷町23-8

/67.90m²

2021年3月完成予定。現在建設中!
追分小・蜆塚中学区、広々2LDK~
1坪風呂、浴室乾燥機、エアコン、浴室乾燥機など充実した最新設備満載。
NET無料(WiFi)・宅配BOX付。4K/8K受信にも対応!
オートロック・エレベーター付きの新築マンションです
入居日は4/15まで相談可能です

新しい生活、ココからスタートしませんか!

続きを読む

見学したい(無料)

JR駅チカで選ぶならここ!!

無料
無料

静岡県磐田市上本郷1005-5

/55.84m²

JR豊田町駅から徒歩4分。
駅の南に立地するのがこちらのお部屋です。

55.84㎡の2LDKで、モノトーンに仕上がっているオトナなお部屋。
対面キッチンの背後には水回りがあり、家事同線もしっかりと考慮されていますね。
収納はウォークスルークローゼットとなっており、ご家族様分しっかりと入るかと思います。

角部屋ですので窓が多く、その先にはアクトタワーが見えました。
浜松へのご通勤にも便利な場所ですね。
周辺にはマックスバリューや業務スーパー、杏林堂など生活に必須のお買い物が徒歩でご利用いただけます。
転勤族でお車を所有していなくても、ここでなら暮らしていけそうです。

続きを読む

見学したい(無料)

White ROOM.

無料
無料

静岡県磐田市森下86

/44.26m²

白が基調の部屋だから、どんな色を飾っても似合いそうだ。
たっぷり入るWICにはお気に入りの服を並べよう。気分はちょっぴりファッション雑誌。


玄関回りもオシャレに気を遣うあなた好み。靴箱は天井までたっぷりとあって足元のお洒落も完ペキに。
玄関からもウォークインクローゼットにはいれちゃう。玄関の鏡で最終チェックしてみたら、ちょっと気分が変わってもすぐにお着替えできるね。
出かけるときは毎回、抜群な状態のあなたでいられそう。

さぁ、とびきりにお気に入りな服を着て、町へ出かけよう!

続きを読む

見学したい(無料)

高台オアシス

無料
無料

静岡県浜松市中央区鹿谷町18-1

/71.50m²

2021年3月築の築浅物件の空きがでました!

広々した3LDKの間取り
ファミリー層におススメします。
キッチンは3口ガスコンロ。
背面にはお気に入りのカップボードを設置してください。
LDK17帖。
ご家族が快適に過ごすことができます。
洋室は6帖×2、5帖と3部屋ですので、お子様のお部屋として、在宅スペースとして、
広々とご利用いただけます!
4階南東角部屋なので、明るく風通しも良く、陽当たりGOODです!

築浅なので、最新設備満載ですよ!
教育施設が全て徒歩圏内と、子育てに最適な環境です。


続きを読む

見学したい(無料)

鹿谷町オアシス

無料
無料

静岡県浜松市中央区鹿谷町18-1

/71.50m²

現在建設中!
2021年3月完成予定。
広沢小・蜆塚中学区、広々3LDKマンションです!
最新設備満載です!
乞うご期待を♪

続きを読む

見学したい(無料)

駅チカ!独身貴族生活!

無料
無料

静岡県磐田市新貝2283-1

/45.62m²

まるでホテルに住んでいるみたいな感覚で、毎日暮らせるお部屋のご紹介です。

なんだか良い匂いがしてきそうな玄関を抜けると、近未来感のするデザインキッチンのあるLDKへ。
なんとここは12帖以上もあるのですが、白ベースの空間なので実際はそれ以上に広く感じてしまうと思います。

お風呂も気を抜かずに、上品に。ホテルに行って部屋のシャワースペースがそっけないとなんだかテンションが下がってしまいますが、ここは大丈夫です。
黒と白のスタイリッシュな空間の中にある、小さな採光面に灯りが映え、まるで007になった気持ちでシャワーを浴びられます。

寝室は6.1帖。大きめの収納スペースも付いているので、同棲をお考えの方でも充分な広さのお部屋です。

ホテルライクな暮らしがしたい方、ジェームスボンドみたいにシャワーを浴びたいという方をお待ちしています。

続きを読む

見学したい(無料)

芳川の桜並木のほとりに

無料
無料

静岡県浜松市中央区頭陀寺町353-9

/81.98m²

浜松市の芳川の桜並木と言えば、とても有名なようです。
川の両岸に桜が並び、春には満開で風情のある景色を見せてくれるようです。
そんなほとりに建つ四角いお家。

2020年6年に建てられた新築戸建、3LDK、81㎡。
LDK15.75帖、主寝室7帖、洋室5.5帖、洋室5.50帖
広々とした間取りになってます。
そして南向きなのでリビングと主寝室は陽当たりポカポカ。お洗濯物もよく乾きそう。
川を挟んで向こう側は芳川小学校。
風に乗って子供達の元気な声やチャイムの音が聞こえてきますが。
窓はペアガラスになっております。
キッチンは2130×650。
キッチンスペースはブルーグレーの壁紙。とても落ち着いた空間に。
そこそこ広いので、お気に入りのカップボードをどうぞ。
1階南側にはウッドデッキが。
小さなお子様がいらっしゃる方はこちらに子供用プールを置いて遊べますね。
駐車場には2台程車が停められます。
学校やスーパーはともに徒歩圏内にあり、生活しやすいのでは。

桜の開花を満喫できる春が待ち遠しい。。。

続きを読む

見学したい(無料)

【賃料変更!】3つの公園に囲まれしリノベルーム

無料
無料

静岡県浜松市中央区富塚町1222-145

/68.25m²

徒歩圏内に3つも公園があって
お散歩コースに飽きがこないこと間違いなし!

リノベーションされてデザイナーズ物件に変身しました♪
室内物干しやお風呂場、トイレなどの小物が洒落ています。

お部屋に入ると、自慢の靴を魅せつつ収納できる
ステキなシューズボックスがお出迎えしてくれます。

LDKの真ん中には一際目を引くキッチン。
主役感がものすごいです…

ウォークインクローゼットが2個もあって収納には困りません!
共に6帖の洋室はシンプルで、落ち着いて過ごせそうです。

設備もしっかりしていてオシャレ、尚且つ
3つの公園を牛耳った気分になれる立地。いいですね!

続きを読む

見学したい(無料)

安心安全オシャレマンション

無料
無料

静岡県浜松市中央区住吉1-22-14

/62.07m²

オートロックでセキュリティ性の高い
築浅マンションのご紹介です

南側には浜松学院大学付属幼稚園。
北側には城北小学校。
幼稚園児の賑やかで可愛らしい声、歌う声が聞こえてくるほどの距離です。
ちょっと気になるかな。
てとこですが、窓はペアガラス。
閉めるとほとんど聞こえませんでした!
南側ベランダからは緑豊かな木々、アクトタワーが眺めれます。
陽当たりもとっても良くポカポカ。
視界も穏やかです。
キッチンは3口ガスコンロ。
幅が2135×970と、広めです。
お料理タイムがスマートにできそう。

聖隷浜松病院まで徒歩圏内。
城北小学校、付属幼稚園が目の前。
スーパーまでの徒歩10分と、
子育て世代にもとてもオススメです!

続きを読む

見学したい(無料)

お日様サンサン リノベルーム

無料
無料

静岡県浜松市中央区恒武町102

1LDK /50.05m² /1995年2月

9月にリノベーションされたばかりの物件のご紹介です

2DK→1LDKへと広々した間取に
LDKは15.3帖。
3階からの視界は広々広がり、お日様サンサンとお部屋に入ってきます。
お洗濯物も良く乾きそうです。
LDKのエアコンは新設です。
とても静かな住環境
スーパーやコンビニなども徒歩圏内。
東名浜松インターまで車で5分という
高速を使って車通勤などされている方にはとても良い立地なのでは。

続きを読む

見学したい(無料)
FULL リノベ済み 360VR

10月のリノベ

無料
無料

静岡県浜松市中央区細島町200-1

1R /31.40m² /1999年06月

2020年10月にリノベされた物件です!

シャワートイレや
エアコン、モニターフォン、宅配ボックスと設備充実!

1Rだけど収納もしっかりあって
バルコニーも比較的広いです

メインルームが12帖あるのも素敵です♪

ところどころ壁が音楽室みたいになっていて
鍵や帽子を掛けておけるの、いい!
また、ユニークな場所に洗面台があるので
印象に残りやすいお部屋ですね

ネットが無料なので
映画や音楽三昧な毎日がやってくる!

続きを読む

見学したい(無料)

凸凹ウッドのデザイナーズリノベーション

13.2万円
無料

静岡県浜松市中央区曳馬5-9-15

2LDK /58.60m² /1996年6月

木をたっぷり感じる、デザイナーズリノベーション。
4戸タイプのアパートの1階、もちろん角部屋です。

玄関からLDKへ続く、凸凹したウッドウォールがお部屋の主役。
15.25帖の広々したリビングはとても開放的。
木×白壁×ダウンライトにきゅんとします。
木柱が空間にアクセントを加えるとともに、ゆるくゾーニングしてくれています。
この柱を境に、リビングとダイニングを分けるとよさそうです。

せっかく木が印象的なお部屋なので、インテリアも同じナチュラルトーンの木を使ってとことん活かすとかわいい気がします。
面白いデザインなので、コーディネートを考える時間もぜひ楽しんでもらえたら。

洋室は6帖が2部屋あります。
どちらも2面採光です。
エアコンは嬉しいことに各お部屋に付いていますよ。

場所は遠州鉄道曳馬駅まで徒歩約8分。
築年は若干ありますが、立地がいいのに広くて賃料が抑えめなのがリノベーションのいいところです。
駐車場2台目も今ならご相談可能。
同棲をスタートしたいカップルや新婚さんにおすすめです。

続きを読む

見学したい(無料)

HIROSAWA LIFE

無料
無料

静岡県浜松市中央区広沢2-23-23

/75.00m²

中区広沢に広め3LDK、築3年ととても魅力的でクオリティの高いマンションに空きがでました!

なんといっても駐車場の広さ&綺麗さに驚きました。
そして嬉しい広々P2台込みなんです!
建物も敷地もトータルに美しい!
建物の外観や駐輪場スペース、共有スペース、、、とっても綺麗に整備お掃除管理されてます。
入口はしっかりオートロック。
宅配boxも付いています!
余裕のHIROSAWAて感じです。

キッチンはオープンキッチンで、コミュニケーションが取りやすく開放的な空間を演出できるのが魅力です。
お子様を眺めながらのお料理タイム楽しめそうですね。
6帖洋室3部屋と広々した間取りで、どの部屋にもクローゼットがあります。
この広さはファミリー向けです。
立地的にも子育て中のファミリーには快適な居住空間なのでは。

幼小中高と学校はどこも徒歩圏内!
子育て世代にはとっても良い環境です。

続きを読む

見学したい(無料)

2021年リノベ物語

無料
7.1万円

静岡県浜松市中央区松城町201-7

1LDK /45.74m² /1986年1月

2021年1月完成のフルリノベーション物件!

浜松駅から徒歩22分
バス停までは徒歩1分
好立地!

設備も、安心オートロックで
上階層でも疲れないエレベータ付き。
ゆっくりお風呂に入れる広めの浴室に浴室乾燥や大容量の収納があったりと
嬉しい設備がたくさん!

どんなあなたにおススメですよ!

続きを読む

見学したい(無料)

Between 浜松城 and アクトタワー

無料
無料

静岡県浜松市中央区松城町201-7

/41.65m²

遠州病院駅から徒歩14分、浜松駅までも徒歩22分の好立地!
バルコニーからは浜松城とアクトタワーが見えます♪

急な坂を上って行くとおしゃれな建物があります。
フルリノベーションをされたので1986年に建てられたとは思えません!

設備も充実!
エントランスは安心オートロック
不在時でも大丈夫な宅配ボックス
雨の日も安心浴室乾燥機
広々1坪風呂

見た目、内装全て新築のようなもの!
素敵なお部屋での生活をお楽しみください。

続きを読む

見学したい(無料)

全リノベ

無料
無料

静岡県浜松市中央区松城町201-7

/41.65m²

2021年1月完成のフルリノベーション物件!


キッチンのライトが魅力的です♪

浜松駅から徒歩22分
バス停までは徒歩1分
好立地!

設備も、安心オートロック
上階層でも疲れないエレベータ
リモートワークには必須のWifi
ゆっくりお風呂に入れる広めの浴室に浴室乾燥
大容量の収納

嬉しい設備がたくさん!
どんなあなたにおススメですよ!

続きを読む

見学したい(無料)
FULL リノベ済み 360VR

絶対洗濯物干すマン

無料
6.7万円

静岡県浜松市中央区松城町201-7

1LDK /41.65m² /1986年1月

2021年1月に完成したばかりのフルリノベーション物件!

バルコニーはもちろん、室内でも、浴室でも
思う存分洗濯物を干すことができます。
きれい好きのあなたにおすすめです♪

浜松駅から徒歩22分
バス停までは徒歩1分
好立地!

設備も、
安心オートロック
上階層でも疲れないエレベータ
リモートワークには必須のWifi
ゆっくりお風呂に入れる広めの浴室
大容量の収納

嬉しい設備がたくさん!
どんなあなたにおススメですよ!

続きを読む

見学したい(無料)

坂の途中で

無料
無料

静岡県浜松市中央区松城町201-7

/41.65m²

遠州病院駅から徒歩14分、浜松駅までも徒歩22分の好立地!

急な坂を上って行くとおしゃれな建物があります。
フルリノベーションをされたので1986年に建てられたとは思えません!

転勤で浜松駅付近で働かれている方、車をお持ちでない方、もちろん車をお持ちの方にもおすすめです。

設備も充実!
エントランスは安心オートロック
不在時でも大丈夫な宅配ボックス
雨の日も安心浴室乾燥機
広々1坪風呂

見た目、内装全て新築のようなもの!
素敵なお部屋での生活をお楽しみください。

続きを読む

見学したい(無料)
FULL リノベ済み 360VR

坂道の途中で

無料
6.7万円

静岡県浜松市中央区松城町201-7

1LDK /41.65m² /1986年1月

遠州病院駅から徒歩14分、浜松駅までも徒歩22分の好立地!

急な坂を上って行くとおしゃれな建物があります。
外観、共有部含めて1棟まるごとフルリノベーションをされたので1986年に建てられたとは思えません!

キッチンの横には、何でも置ける大きな棚があります。
調味料にこだわっても、置く場所に困りません♪

設備も充実!
エントランスは安心オートロック
不在時でも大丈夫な宅配ボックス
雨の日も安心浴室乾燥機
広々1坪風呂

見た目、内装全て新築のようなもの!
素敵なお部屋での生活をお楽しみください。

※写真、360°VRは他のお部屋のものを掲載しています。現況優先です。

続きを読む

見学したい(無料)

シェフの住む家

無料
6.7万円

静岡県浜松市中央区松城町201-7

1LDK /41.65m² /1986年1月

遠州病院駅から徒歩14分、浜松駅までも徒歩22分の好立地!

急な坂を上って行くとおしゃれな建物があります。
フルリノベーションをされたので1986年に建てられたとは思えません!

キッチンの横には、何でも置ける大きな棚があります。
調味料にこだわっても、置く場所に困りません♪

設備も充実!
エントランスは安心オートロック
不在時でも大丈夫な宅配ボックス
雨の日も安心浴室乾燥機
広々1坪風呂

見た目、内装全て新築のようなもの!
素敵なお部屋での生活をお楽しみください。

続きを読む

見学したい(無料)

2021年リノベ物語

無料
6.5万円

静岡県浜松市中央区松城町201-7

1LDK /41.65m² /1986/01

2021年1月にフルリノベーションをした物件!

浜松駅から徒歩22分
バス停までは徒歩1分
好立地!

設備も、
安心オートロック
上階層でも疲れないエレベーター
リモートワークには必須のWifi
ゆっくりお風呂に入れる広めの浴室に、浴室乾燥
大容量の収納

嬉しい設備がたくさん!

駐車場は少しお高めなので、
車を持たないあなたにおススメですよ!

続きを読む

見学したい(無料)

ゆったりとした風が流れる生活

無料
無料

静岡県浜松市中央区青屋町746

1LDK /55.75m² /2000年2月

JR天竜川駅徒歩圏内に素敵にリフォームされた物件が新たにできあがりました。

1LDKへ間取りを変更。
広々LDK18.3帖に。床は木目調で落ち着いた雰囲気です。
新たに作られたウォークインクローゼットには、衣類や小物類などを沢山収納できそうです。
4階建ての3階なので、ベランダからの眺望もなかなかです。風通しも良く。
北側と南側にあるベランダからは浜松のシンボルタワー、アクトタワーも眺めれますよ。
建物西側北側は、ヤマハ(株)さんとヤマハ社員さんの駐車場なので、高い建物がないので、外の風景が広く感じられました。
ヤマハさん工場といっても、騒音などはほとんどなく、またとても静かな環境でした。

日用雑貨類など、スーパーやドラックストアなどは嬉しい徒歩圏内。
天竜川駅徒歩9分。
ファミリーさんも2人暮しさんにも、オススメ物件です。

続きを読む

見学したい(無料)

【ペット可】昭和の時代を建ってきました

無料
無料

静岡県浜松市中央区鹿谷町2-26

/64.42m²

浜松城公園徒歩2分。
ペットのお散歩コースに最適な物件のご紹介です!

ペット可の物件て意外と少ないですよね。
こちらの物件は小型犬1匹のみご相談可能です。
直ぐお隣は松城幼稚園。
子供達の活気のある声を聞いて元気に昭和の時代を長ーく建ってきたんです。
キッチン周り、水回り、クロス、床、階段など綺麗にリフォームしました。
2階洋室は広々10.5帖。収納が沢山あります。
1階洋室にある机や座布団、2階和室の畳に守る敷かれたシーツ。
オーナー様のご厚意でしょう。
どこかおばあちゃん家に来たような感覚になりました。

建物の古さはきにならない!
ペット可物件をお探しの方、いかがでしょう?

続きを読む

見学したい(無料)

stay calm.

無料
無料

静岡県浜松市中央区佐鳴台1-787-1

/76.11m²

穏やかに暮らしたい。

ここは浜松市内でも人気の佐鳴台エリア。
佐鳴湖というちょっとした湖がほど近く、素敵なお店がぽつぽつとあって
お気に入りのお店を見つけたくなります。

コンクリート打ちっぱなしの都会的な外観がとても目を引きます。
お部屋は74.68㎡と2LDKのマンションとしては広めなクラスになりますね。
全体的に白を基調としていて、かなり高級感を感じます。
気になるのがリビングから見えるインナーバルコニー。
外観の素敵な打ちっぱなしの外壁がお目見えし、花粉や雨風からお洗濯物を守るのはもちろんのこと、
この空間でグリーンを育てたら無機質な雰囲気に生命感が出て住む人の心を癒してくれることでしょう。

設備面は築年数の浅いハイグレードマンション、さすがの充実さです。
エントランスにはオートロックと宅配BOX、お部屋のキッチンは広々W2200で調理スペースとしても活用できるカウンターがついています。
水回りは天井までのびた大きな鏡が特徴的な洗面脱衣所に、ゆったりとくつろげる1坪風呂があります。トイレもタンクレスでとってもスマートな印象です。


家での時間の充実こそ今の時代の家族には大切だと思います。
上質で少しリッチなこのマンションでの暮らし、いかがですか?

続きを読む

見学したい(無料)

白を基調としたホテルライクな空間での暮らし

無料
無料

静岡県浜松市中央区佐鳴台1-787-1

/76.11m²

穏やかに暮らしたい。

ここは浜松市内でも人気の佐鳴台エリア。
佐鳴湖というちょっとした湖がほど近く、素敵なお店がぽつぽつとあって
お気に入りのお店を見つけたくなります。

コンクリート打ちっぱなしの都会的な外観がとても目を引きます。
お部屋は74.68㎡と2LDKのマンションとしては広めなクラスになりますね。
全体的に白を基調としていて、かなり高級感を感じます。
気になるのがリビングから見えるインナーバルコニー。
外観の素敵な打ちっぱなしの外壁がお目見えし、花粉や雨風からお洗濯物を守るのはもちろんのこと、
この空間でグリーンを育てたら無機質な雰囲気に生命感が出て住む人の心を癒してくれることでしょう。

設備面は築年数の浅いハイグレードマンション、さすがの充実さです。
エントランスにはオートロックと宅配BOX、お部屋のキッチンは広々W2200で調理スペースとしても活用できるカウンターがついています。
水回りは天井までのびた大きな鏡が特徴的な洗面脱衣所に、ゆったりとくつろげる1坪風呂があります。トイレもタンクレスでとってもスマートな印象です。


家での時間の充実こそ今の時代の家族には大切だと思います。
上質で少しリッチなこのマンションでの暮らし、いかがですか?

続きを読む

見学したい(無料)

やさしくて、あたたかい。丘の上のおうち。

無料
16万円

静岡県浜松市中央区鴨江2-34-52

4LDK /97.75m² /2018年1月

やさしくて、あたたかい。


ステキなおへやは数多くあれど、入った瞬間にやすらぎとワクワクを同時にくれるおへやはそう多くはありません。
浜松駅から車で8分という立地にありながら、まるで森の中の丸太小屋にやってきたようなほがらかさ。やさしくて、あたたかい、丘の上の一軒家をご紹介します。

と言っても、外から見ればよくある普通のおうちに見えるでしょう。でもここだけの話、見かけで判断してはもったいないですよ。中身はステキなログハウスのようになっているのだから...!ナチュラルテイストとでも言うんでしょうか。天井・梁・床・壁、あらゆるところから木のぬくもりが溢れ出します。洗面所やトイレまでテーマを貫くこだわりっぷりです。街の生活を忘れさせてくれるようなとくべつな空間。

特にあなたのお気に入りのおへやになりそうなのが1階の洋室です。洋室なのに畳付きという変わったおへや。でも畳の上の至福感を味わえるのですから細かいことは気にしないで…!窓際にはベンチがあり高台の開けた景色を一望できます。贅沢なくつろぎ。もちろんこだわりの木も忘れずに、ダークブラウンの床、ライトブラウンの天井、ベージュのベンチと場所に合わせた見事な配置。晴れた日にこのお部屋でゆっくり読書でもしたらたまらないだろうな。なんて思わせる最高のいやし空間です。

この魅力はぼくの語彙力と15枚の写真じゃあらわしきれません…!ぜひ、360°VRで、そして現地で、ワクワク感を感じてみてください!!

続きを読む

見学したい(無料)

こんな部屋でひとり暮らしがしたいなあ、、、

無料
無料

静岡県浜松市中央区富塚町88

1K /22.40m² /1985年3月

富塚の素敵なデザイナーズリノベのワンルームです。
大学生や社会人のひとり暮らしにぜひおすすめしたいです!
駐車場をつけても5万円を切るというお財布への優しさ。
学生のときのひとり暮らしでこんなお部屋に住みたかった、、、
羨ましい。友達に自慢できます。

ベットで寝たいけど、ベットが高い。
布団派なの私。だけど畳むのはめんどくさい!
そんなあなたの願いを叶えた小上がりのベットコーナー。

素敵なテレビカウンターや机、棚が備え付け!
英語の分厚い本でも飾ってみたいな・・・。きっと読まないけど。

最近はリモート授業やリモート会議も増えていますが、ネット使用料が無料。
こんなおしゃれなお部屋なら背景を使わなくてもリモートで参加して自慢しちゃいましょう。

少し狭いですが、ひとり暮らしなら問題なし。
本当に素敵なお部屋でした。
備え付けのアイテムをうまく使って、是非自由にレイアウトを楽しんでくださいね!

続きを読む

見学したい(無料)

桜色のキッチンで川の流れのように、穏やかに

無料
無料

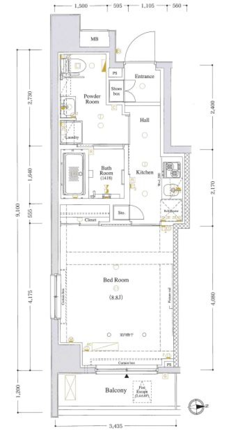
静岡県磐田市鳥之瀬176-1

/51.84m²

静かに、穏やかに

お部屋探しの中で【周辺環境】を特に重視したいという方にとてもオススメなお部屋です。
磐田駅から10分ちょっと、今之浦川を超えた場所にこのマンションはあります。
5階建ての5階に今回のお部屋はあり、最上階角部屋というだけで嬉しい感じ!
お部屋のバルコニーからは今之浦川が一望できて、春には桜並木が見事に咲き誇るのでお部屋からお花見が出来ちゃいます^^

お部屋にあるキッチンや洗面台もさりげなく桜色でふふっと思わず笑顔になっちゃいます。
LDKは9.8帖で、隣の洋室とは引き戸で区切れるので、逆に引き戸を開放していたら15.8帖もの広々LDKに変貌します!
収納力も充実していますし、お風呂も綺麗だし、周辺環境という1番大事にしたいことだけでなく、
お部屋のスペックも申し分ありませんね!

豊かな自然を感じられる磐田での生活はここで過ごしませんか?

続きを読む

見学したい(無料)
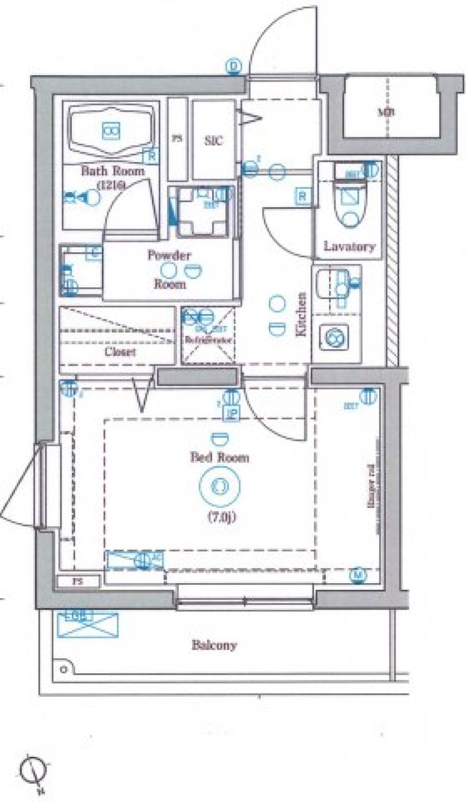
FULL リノベ済み 360VR

さくらカラーのキッチンと静かな環境で読書を

無料
無料

静岡県磐田市鳥之瀬176-1

2LDK /51.84m² /1994年7月

1994年に建てられた物件がリノベーションされ綺麗になって登場!

かわいい桜色のキッチンがトレードマークのお部屋です。
キッチンのおかげで可愛い雰囲気になっています。
9.8帖のLDKと南側の6帖の洋室は扉を開けるとひと空間になり広く感じます。
可動棚が設置されており、本をたくさん置くことができます。
本棚を買わなくてもよさそうですね!

本好きの方、自然が豊かな方におすすめです。


続きを読む

見学したい(無料)

SOCIAL MEDIA