閲覧履歴

お気に入り物件

お気に入り物件は会員登録すると使用できます。
未ログインの場合はログインして再度お試しください。

ログイン

保存した検索条件

保存した検索条件は会員登録すると使用できます。
未ログインの場合はログインして再度お試しください。

ログイン

賃貸物件を探す

売買物件を探す

店舗・事務所を探す

賃貸物件を見る

売買物件を見る

続報、待たれよ

駅近ガレージ

賃料82,000円

1R /62.94m² /2026年5月

RENT 新築

情報修正日:2026年02月23日 物件ID:00001100037779

閲覧数:381お気に入り数:0質問(0件)

室内イメージが待ち遠しい

1/1
室内イメージが待ち遠しい

お気に入り
室内イメージが待ち遠しい
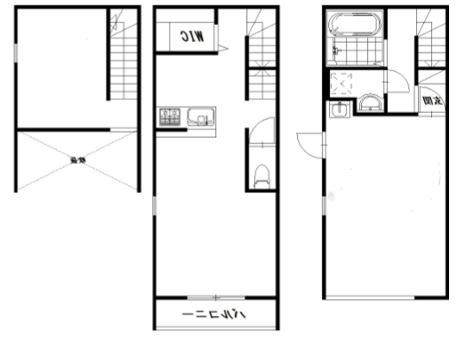
駅徒歩2分の激駅近ガレージ付き物件。

完成は26年7月。全5戸のテラスハウスタイプ。
今わかっている情報を並べます。

東向きのワンルームタイプ。
ガレージは19.87㎡ シャッターのワイドが2500㎜ ガレージの奥行きが5400㎜
LDKは13.7帖で、WIC付き。吹き抜けの上には6.5帖のロフト付き。


いまは未だこれまで、続報を待たれよ。

Cost

費用について

賃料
82,000円
駐車場
賃料に含む:1台
保証会社費用
月額の1.2%
SEED
880円
敷金
164,000円
礼金
82,000円
保証会社初回費用
要加入 24,864円
更新料 5000円/年
住宅保険
18,000円程度
保険期間2年
更新料
16,500円
仲介手数料
90,200円

365LIFEでは賃料の他に、実際に毎月かかる費用と契約時に必要な費用を算出して提示しております。

Guideline rent

概算月次費用

賃料
82,000円
駐車場
賃料に含む:1台
SEED
880円
概算月次費用
82,880円

概算月次費用は概算の数字になります。システムの都合上計算に含まれない費用もあります。また、お客様の個別の事情により費用が変わってくる場合があります。あくまでも目安としてご確認ください。

Approximate initial cost

概算初期費用

初月家賃等
82,880円
敷金
164,000円
礼金
82,000円
保証会社初回費用
24,864円
住宅保険
18,000円程度
保険期間2年
仲介手数料
90,200円
概算初期費用
461,944円

概算初期費用は概算の数字になります。システムの都合上計算に含まれない費用もあります。また、お客様の個別の事情により費用が変わってくる場合があります。あくまでも目安としてご確認ください。

Base Information

基本情報

物件に関する基本的な情報

建物種別
テラスハウス
部屋番号
B号室
建物階数
地上2階
総戸数
5戸
築年
2026年5月
建物構造
木造
専有面積
62.94㎡
間取り
1R
所在階
地上1-2階
主要採光
バルコニー
あり
契約期間
2年
入居/引渡時期
7月下旬
現況
建築中
取引態様
媒介
ペット可否
不可

物件特徴

Equipment

付帯設備

専有設備

洗濯機置き場
室内
冷暖房
エアコン
その他設備
給湯
バストイレ
バスルーム トイレ バス・トイレ別 シャワー付き洗面化粧台 洗面所独立 追焚機能 温水洗浄便座 一坪風呂
キッチン
システムキッチン 対面キッチン
コンロ種類
ガス
収納設備
ウォークインクローゼット ガレージ
セキュリティ
TVドアホン
インターネット
インターネット使用料無料

基本設備

水道
公営
ガス
プロパン

共有設備

宅配BOX

備考

Map & Address

地図と住所

住所

静岡県浜松市浜名区貴布祢677-2

周辺施設

ミニストップ 浜松貴布祢店(100m)
セブン-イレブン 浜北沼店(600m)
エブリィビッグデー 浜北店(700m)
マックスバリュ浜北店(700m)
浜松赤十字病院(900m)

交通機関

美薗中央公園駅 徒歩2分

Agency

取扱い不動産会社

株式会社スズヒロ

所在地
静岡県浜松市中央区曳馬2-1-25
営業時間
10:00~18:00
定休日
水曜日
免許番号
静岡県知事(12)第4821号
加盟団体
公益社団法人 全国宅地建物取引業協会連合会
SNS

Another room

同じ物件の別の部屋

RENT 新築

新築は5つ

16.6万円
8.3万円

静岡県浜松市浜名区貴布祢677-2

賃料83,000円

1R /63.76m² /2026年5月

駅徒歩2分の激駅近ガレージ付き物件。

完成は26年7月。全5戸のテラスハウスタイプ。
今わかっている情報を並べます。

南向きのワンルームタイプ。
ガレージは23.52㎡ シャッターのワイドが2900㎜ ガレージの奥行きが6000㎜
LDKは12.75帖で、WIC付き。吹き抜けの上には9帖のロフト付き。
バスルーム・トイレ・洗面はLDKと同じ2階のフロアに集結してるのはポイント高いです。

いまは未だこれまで、続報を待たれよ。

続きを読む

見学したい(無料)
RENT 新築

イメージが膨らむ・・・

16.6万円
8.3万円

静岡県浜松市浜名区貴布祢677-2

賃料83,000円

1R /63.76m² /2026年5月

駅徒歩2分の激駅近ガレージ付き物件。

完成は26年7月。全5戸のテラスハウスタイプ。
今わかっている情報を並べます。

南向きのワンルームタイプ。
ガレージは23.52㎡ シャッターのワイドが2900㎜ ガレージの奥行きが6000㎜
LDKは12.75帖で、WIC付き。吹き抜けの上には9帖のロフト付き。
バスルーム・トイレ・洗面はLDKと同じ2階のフロアに集結してるのはポイント高いです。

いまは未だこれまで、続報を待たれよ。

続きを読む

見学したい(無料)
RENT 新築

2026最新版ガレージ

16.6万円
8.3万円

静岡県浜松市浜名区貴布祢677-2

賃料83,000円

1R /63.76m² /2026年5月

駅徒歩2分の激駅近ガレージ付き物件。

完成は26年7月。全5戸のテラスハウスタイプ。
今わかっている情報を並べます。

南向きのワンルームタイプ。
ガレージは23.52㎡ シャッターのワイドが2900㎜ ガレージの奥行きが6000㎜
LDKは12.75帖で、WIC付き。吹き抜けの上には9帖のロフト付き。
バスルーム・トイレ・洗面はLDKと同じ2階のフロアに集結してるのはポイント高いです。

いまは未だこれまで、続報を待たれよ。

続きを読む

見学したい(無料)
RENT 新築

NEWガレージKIFUNE

16.4万円
8.2万円

静岡県浜松市浜名区貴布祢677-2

賃料82,000円

1R /62.94m² /2026年5月

駅徒歩2分の激駅近ガレージ付き物件。

完成は26年7月。全5戸のテラスハウスタイプ。
今わかっている情報を並べます。

東向きのワンルームタイプ。
ガレージは19.87㎡ シャッターのワイドが2500㎜ ガレージの奥行きが5400㎜
LDKは13.7帖で、WIC付き。吹き抜けの上には6.5帖のロフト付き。


いまは未だこれまで、続報を待たれよ。

続きを読む

見学したい(無料)

Q&A

この物件への質問(0件)

気になる物件の詳細で確認したいことがあれば、匿名にて質問ができる機能です。
物件の下調べの段階で確認しておきたいことがあればご活用ください。

※この物件への質問は会員登録すると使用できます。
未ログインの場合はログインして再度お試しください。

株式会社スズヒロ

公式LINEに友達登録後に送信される
アンケートにご返信お願いします。

LINEお問い合わせ

株式会社スズヒロ

TEL:053-411-6008

365LIFEを見たとお伝えください。

気になる物件の物件IDもしくは
タイトルをお伝えいただければ
スムーズにご案内ができます。

電話する

この物件に質問する

気になる物件の詳細で確認したいことがあれば、匿名にて質問ができる機能です。
物件の下調べの段階で確認しておきたいことがあればご活用ください。

※この物件への質問は会員登録すると使用できます。
未ログインの場合はログインして再度お試しください。

会員登録   ログイン

SOCIAL MEDIA