閲覧履歴

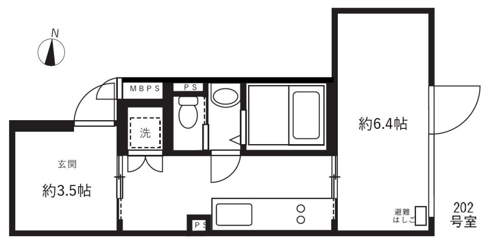
幸せ家族の住空間

無料
無料

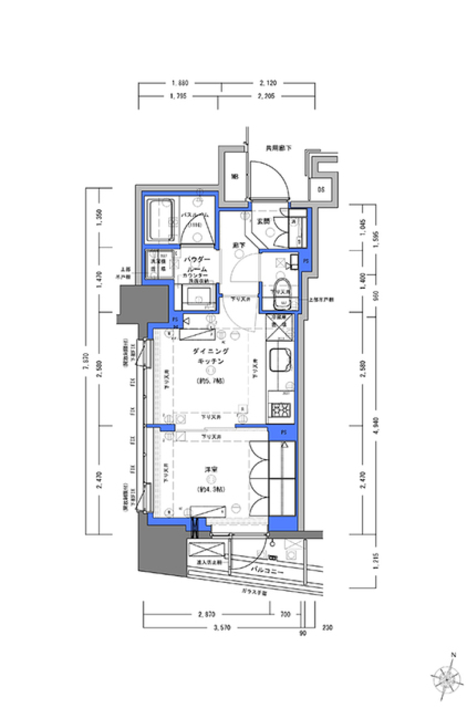
静岡県浜松市中央区幸1-15-36

/61.40m²

6階建ての2階
マンション名はシティガーデン・幸
地名にちなんで幸ですが、バルコニーからの眺めは開放的に感じます
前面は広々遮る建物がないので、新鮮な空気が流れこみます
家族が幸せになれる住空間です
住吉バイパス沿いですが、車の音はほとんど感じられません
駐車場は広々していて2台無料、エレベーター付でオートロック、設備が整った物件になります
駐輪場と専用ゴミ捨て場が設置していて、共有ス―ペースがとてもきれいに管理されてました
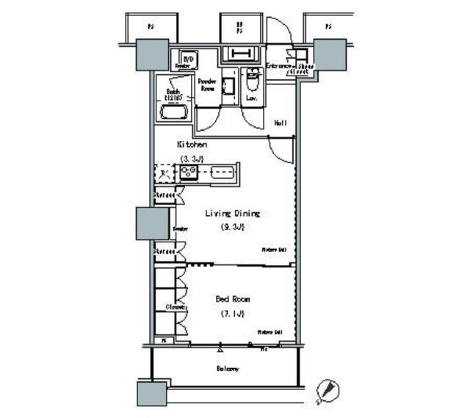
間取りは広々2LDK
北南を繋ぐ広々ウォークスルークローゼットがポイントです
ご家族分のお洋服とお荷物を集め沢山収納。スッキリスマートに暮らせます
リビングは広々14帖
洋間6.2帖の間仕切りを広げれば、広々20帖としてもご利用いただけます
キッチン回りも広々
お気に入りのカップボードを置けます
洗面脱衣場と洗濯機置場も広々。廊下側とキッチン側2か所にドアがあり
家事導線がなかなか良いです
建物1階は紳士服のアオキさん。
広々駐車場からはメディカルビル、ケンタッキーさん。
小児科、眼科、整形外科には直ぐに行くことができます!

通勤や通学、スーパーなどのお買い物、病院。
快適に生活することができそうですよ。

続きを読む

見学したい(無料)

新たな暮らしを

無料
7.4万円

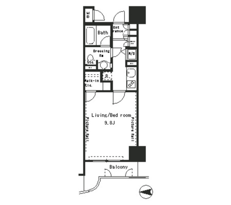
静岡県浜松市中央区植松町1474-5

1LDK /43.87m² /2021年8月

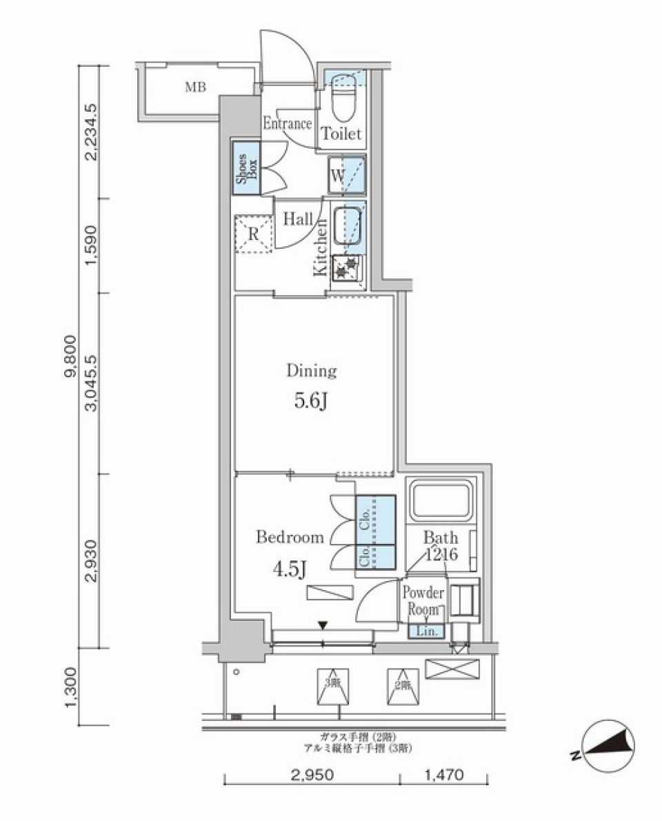
築浅物件を探していらっしゃる方、必見です!
こちらの物件はなんと2021年8月にできたばかりの物件です。

間取りは1LDKで、最上階の角部屋です。
一人暮らしの方でも、二人暮らしの方でも大歓迎です!

LDKは13.6帖の広さで、角部屋のため窓の数が多く陽当たりがとても良いです。
キッチンは、対面タイプなのでお話をしながら、TVを観ながらご飯作りやお皿洗いができます。
収納スペースも付いているので、整理整頓に役立ちそうです。

洋室は6帖です。便利なウォークインクローゼットも付いています!
玄関先にもクローゼットが付いているので、収納スペースに困ることはありません。

周辺には、便利なコンビニや大型スーパーがありますので、お買い物も楽ちんです。

続きを読む

見学したい(無料)

ぴかぴかのお風呂がいい!

無料
無料

静岡県浜松市中央区早出町991-1

/60.07m²

こちらは曳馬駅から徒歩13分の位置にあるリノベーション物件です。
こちらの物件の最大の魅力は築年数を感じさせないその綺麗さ。
なんていったって水回りがピカピカなんです。
やっぱりお風呂が綺麗だとテンション上がりませんか?

間取りは2LDKと広々。日当たりもばっちりです!
カップルさんでも家族でもゆったり過ごせる広さですね。
さらに収納もたっぷりあるので荷物が多くても大丈夫!

スーパーや100均も徒歩5分圏内にあるので、立地も抜群です♪
是非こちらのリノベーション部屋でぴかぴかの新生活を送りましょう!

続きを読む

見学したい(無料)

White ROOM.

無料
無料

静岡県磐田市森下86

/44.26m²

白が基調の部屋だから、どんな色を飾っても似合いそうだ。
たっぷり入るWICにはお気に入りの服を並べよう。気分はちょっぴりファッション雑誌。


玄関回りもオシャレに気を遣うあなた好み。靴箱は天井までたっぷりとあって足元のお洒落も完ペキに。
玄関からもウォークインクローゼットにはいれちゃう。玄関の鏡で最終チェックしてみたら、ちょっと気分が変わってもすぐにお着替えできるね。
出かけるときは毎回、抜群な状態のあなたでいられそう。

さぁ、とびきりにお気に入りな服を着て、町へ出かけよう!

続きを読む

見学したい(無料)

川沿いに佇む[ペット可]

無料
無料

静岡県浜松市中央区入野町16310-1

2LDK /50.06m² /1998年7月

佐鳴湖畔から流れる新川沿いに佇むこちらのマンション。
お部屋の中は木目調の天井でなんだかログハウスの別荘に来た気分。
バルコニーに出ると、5階からの景色は最高です。
とっても広いバルコニーなので、ガーデンソファを置いて川を眺めながらベランダでワインなんて飲んだらもう、、気分はすっかりリゾートですね。

対面式の広々キッチンは、3口コンロ・グリル付き、収納力も抜群。
半個室になっているので小さいお子様がいるご家庭でも安心してお料理できますよ。

LDKとつながる和室もなんだかモダンな雰囲気で家具次第でおしゃれ空間にできちゃいそう。
さらにペット可の物件なので、わんちゃん猫ちゃんがいるご家庭でも大丈夫!
佐鳴湖畔まですぐ近くなので、お散歩コースは決まりですね。

小中学校も近く、スーパーは徒歩圏内、さらにオートロックもついていてセキュリティもバッチリ。
小さいお子様&わんちゃん猫ちゃんがいるご家庭におすすめの物件です。

続きを読む

見学したい(無料)

stay calm.

無料
無料

静岡県浜松市中央区佐鳴台1-787-1

/76.11m²

穏やかに暮らしたい。

ここは浜松市内でも人気の佐鳴台エリア。
佐鳴湖というちょっとした湖がほど近く、素敵なお店がぽつぽつとあって
お気に入りのお店を見つけたくなります。

コンクリート打ちっぱなしの都会的な外観がとても目を引きます。
お部屋は74.68㎡と2LDKのマンションとしては広めなクラスになりますね。
全体的に白を基調としていて、かなり高級感を感じます。
気になるのがリビングから見えるインナーバルコニー。
外観の素敵な打ちっぱなしの外壁がお目見えし、花粉や雨風からお洗濯物を守るのはもちろんのこと、
この空間でグリーンを育てたら無機質な雰囲気に生命感が出て住む人の心を癒してくれることでしょう。

設備面は築年数の浅いハイグレードマンション、さすがの充実さです。
エントランスにはオートロックと宅配BOX、お部屋のキッチンは広々W2200で調理スペースとしても活用できるカウンターがついています。
水回りは天井までのびた大きな鏡が特徴的な洗面脱衣所に、ゆったりとくつろげる1坪風呂があります。トイレもタンクレスでとってもスマートな印象です。


家での時間の充実こそ今の時代の家族には大切だと思います。
上質で少しリッチなこのマンションでの暮らし、いかがですか?

続きを読む

見学したい(無料)

【ペット可】ワンニャンLIFE

無料
無料

静岡県浜松市中央区布橋3-7-4

/62.77m²

ワンちゃんも猫ちゃんもどっちも大好きで選べない!という方、必見です。
こちらの物件、小型犬と猫、それぞれ2匹まで相談可となっています。
合計で4匹、なんと賑やかなおうちでしょう。。
徒歩5分圏内に公園が2つあるので、ワンちゃんと遊ぶのにも困りません!

LDKは14.4帖と広々。
洋室は2室ありどちらもリビングとつながっているので、
引き戸を開けると開放感がありさらに広々とします。

キッチンは壁で隔てられている独立型になっているので、
来客の際は人目を気にせずに調理に集中できます!
リビングやダイニングまで油や煙が広がりにくいのも独立型のいいところですね。

スーパーやドラッグストアも徒歩10分圏内にあり立地も良しです!
こちらの物件でぜひ大切なペットたちと過ごしてみてはいかがですか??

続きを読む

見学したい(無料)

SUNNY HOUSE

無料
無料

静岡県浜松市中央区中沢町45-57

/74.52m²

暖色カラーの壁とレンガが可愛らしいこちらのおうち、
中沢町にあるファミリーにも人気のテラスハウスタイプの物件です。

こちらのおうち、3面採光といいまして南、北、東の3つの面すべてに窓がついているので、日当たり抜群!
まさにお日さまに愛されるおうちなのです。

部屋に入るとまず広がるのは15帖の広いリビング。キッチンも快適な広さです。
そして2階には6帖ほどのお部屋が2室、さらに納戸まであるんです!
洋室2室にはそれぞれクローゼットと物置がついているので、収納スペースは申し分ないはず。
納戸の使い方は自由なので、物置にしてもよし、子供部屋にだってできちゃいます♪

立地も中沢町なので浜松市街からさほど遠くないですし、
徒歩5分圏内に公園が2つもあるので休日はお子さんと遊んだり、
ランニングしたりとリフレッシュにも最適ですよ!
公園までの道のりは緑が多く、晴れた日に車を走らせるとすごく気持ちいいです。

戸建て気分を味わえちゃうこちらの素敵なテラスハウス、ご家族の新生活にいかがでしょうか?

※家近くの坂道は少し急になっています。

続きを読む

見学したい(無料)

こっちの部屋からあっちの部屋へ

無料
9.5万円

静岡県浜松市中央区上西町1255

2LDK /61.07m² /2021/08

こちらは2021年8月に建てられた新築のマンションです。

ご紹介するのは、最上階3階の角部屋!!隣や上階を気にすることが無いのがいいですよね♪

お部屋は、温かい茶色と白をベースに、どんな色の家具でも合わせやすいようになっています。木を感じられるデザインに、心が落ち着くこと間違いなし!今以上に家が好きになりますよ。

LDKのアクセントクロスは、陶磁器が割れて生まれたひび割れをイメージしたデザインになっていて、光が当たると艶感や立体感を色と質感で表現してくれます。
デザイン性もバッチリです。

15.1帖のLDKにはみんな大好きカウンターキッチンがあります。なんと約2メートルを超える大型システムキッチンで、使いやすさバッチリ!!調理スペースも充分です料理もはかどりますね。横には収納棚もあるので便利です。

他に2つの洋室があり、洋室同士を繋ぐウォークスルークローゼットになっているので、部屋の移動も楽々♪たくさん服をしまいたくなるような広々空間です。間取り的にも動線がとっても動きやすくなっています。

近くにはコストコ、スーパー、コンビニが勢ぞろいで、柳通りが近くにあるのでアクセスも良好♪
休日はどこにお買い物に行こうか悩んじゃいますね。

続きを読む

見学したい(無料)

夢も広がる1LDK

無料
無料

静岡県浜松市中央区布橋3-7-45

/50.20m²

このお部屋はLDKと隣の洋室を引き戸で繋げることができます。
自由度の高いお部屋になっています。
活用の幅が広がりますよ。

LDKには青色のキッチンがついています。
シンプルなお部屋のデザインに青色アクセントになっています。
お料理にハマるかも、、、

洋室にはウォークインクローゼットがついています。
中は洋服を掛けるだけでなく、棚もついているのでたくさん収納できます。

玄関には大きめのシューズボックスがついています。
オシャレが好きな人にピッタリです。

駐輪場もついていますので自転車をお持ちの方にもおすすめです。

続きを読む

見学したい(無料)
FULL リノベ済み 360VR

10月のリノベ

無料
無料

静岡県浜松市中央区細島町200-1

1R /31.40m² /1999年06月

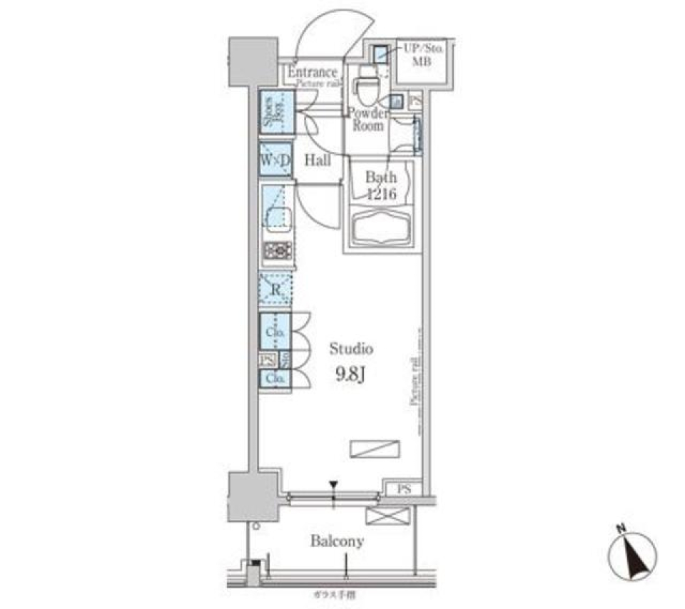
2020年10月にリノベされた物件です!

シャワートイレや
エアコン、モニターフォン、宅配ボックスと設備充実!

1Rだけど収納もしっかりあって
バルコニーも比較的広いです

メインルームが12帖あるのも素敵です♪

ところどころ壁が音楽室みたいになっていて
鍵や帽子を掛けておけるの、いい!
また、ユニークな場所に洗面台があるので
印象に残りやすいお部屋ですね

ネットが無料なので
映画や音楽三昧な毎日がやってくる!

続きを読む

見学したい(無料)

お気に入り物件

お気に入り物件は会員登録すると使用できます。
未ログインの場合はログインして再度お試しください。

ログイン

保存した検索条件

保存した検索条件は会員登録すると使用できます。
未ログインの場合はログインして再度お試しください。

ログイン

賃貸物件を探す

売買物件を探す

店舗・事務所を探す

賃貸物件を見る

売買物件を見る

掲載物件一覧

7864件

FULL リノベ済み 360VR

シンプルかつオシャレ

7.2万円
7.2万円

静岡県浜松市中央区上島5-16-59

1LDK /59.50m² /1992年

浜松市中区上島にあるお部屋です!
リノベがされてオシャレな、かわいいお部屋になっています!

お部屋に入った瞬間、広い!と思いました。
LDKの扉を開けると大きく四角いシンプルなお部屋が広がっています。
こだわっていないように見えて、キッチンとの仕切りの壁はポップな黄色で華やかに。
ライトはダウンライトになっています。
優しい光で夜はオシャレな雰囲気に変わりそうです!
キッチンもシンプルですが、収納は上下の棚で十分にあるのがうれしいポイントです。
窓が大きく2つもあるので開放感も抜群です。

さらに収納はウォークインクローゼット。
細長い形なので、狭そうに見えて奥まで続く超広々ウォークインクローゼットでした。
なんだか得した気分ですね!

5.3帖の洋室もあります。
こちらにも小さめですがクローゼット、さらにバルコニーもついていますよ。

物件周辺はスーパー、コンビニなど充実しています。
さらに遠州鉄道上島駅までは徒歩7分!
休日は赤電に乗って、浜松を楽しみましょう!

続きを読む

見学したい(無料)
FULL リノベ済み 360VR

時代に沿った生活スタイル

7.7万円
7.7万円

静岡県浜松市中央区上島5-16-59

1LDK /61.24m² /1992年

浜松市上島にあるお部屋です!
リノベがされてオシャレな、かわいいお部屋になっています!

まずこのお部屋の最大のポイントは玄関から続く土間スペース。
そのまま進むとそこには洗面所があります!
外から帰ってきて、どこにも触れる前に手洗いができるのはうれしいですね。
今の時代に沿った間取りになっています。

LDKは12.6帖のスペース。
人気の対面キッチンの前にはカウンターが設置されています。
L字型になっているので食事をしたり、デスクとしても使えそうです。
窓のすぐ目の前なので太陽の光も入ってきてポカポカです!

LDKの隣には6帖の洋室があります。
角部屋ということもあり、出窓がついています。

洋室をでるとすぐにウォークインクローゼットがあります!
広々していて、2人分でも十分に収納することができそうです。

1階ですがバルコニー前に木が植わっているので、目の前をすぐ人が通るということはないです。
ちょっとした住みやすさも大事なところですね。

間取りは1LDKですが、それ以上に広々感じるような気がします。
時代に沿った生活スタイルをこのお部屋で始めませんか?

続きを読む

見学したい(無料)
FULL リノベ済み 360VR

土間がつなぐ、新しい生活

7.7万円
7.7万円

静岡県浜松市中央区上島5-16-59

1LDK /61.24m² /1992年

浜松市上島にあるお部屋です!
リノベがされてオシャレな、かわいいお部屋になっています!

まずこのお部屋の最大のポイントは玄関から続く土間スペース。
そのまま進むとそこには洗面所があります!
外から帰ってきて、どこにも触れる前に手洗いができるのはうれしいですね。
今の時代に沿った間取りになっています。

LDKは12.6帖のスペース。
人気の対面キッチンの前にはカウンターが設置されています。
L字型になっているので食事をしたり、デスクとしても使えそうです。
窓のすぐ目の前なので太陽の光も入ってきてポカポカです!

LDKの隣には6帖の洋室があります。
角部屋ということもあり、出窓がついています。

洋室をでるとすぐにウォークインクローゼットがあります!
広々していて、2人分でも十分に収納することができそうです。

1階ですがバルコニー前に木が植わっているので、目の前をすぐ人が通るということはないです。
ちょっとした住みやすさも大事なところですね。

間取りは1LDKですが、それ以上に広々感じるような気がします。
時代に沿った生活スタイルをこのお部屋で始めませんか?

続きを読む

見学したい(無料)

デザイン性と利便性をマッチング [ペット可]

無料
12.5万円

静岡県浜松市中央区鹿谷町12-22

2LDK /59.90m² /2013年3月

1階からお部屋に入り、1階にリビングがあるメゾネットタイプのお部屋となっております。
2階にはお部屋が2つと収納スペースがあります。

16帖のLDKはキッチンも大きく、正面の吹抜まである大きな窓から入る光で全体的に明るく
とても開放感があります。
2Fのオープンスペースが映えるこの吹抜がとにかくカッコいい!

立地、デザイン性、価格のこの3拍子が揃った上でペットと暮らせる物件というと中々見つかりません。
デザイン性と利便性を兼ね備えたお家、クアトロ。
より質の高い生活になりそうなお家です。

そしてそしてなんとこのお部屋、事務所としても利用することができるんです!
気になった人はぜひお問合せを!!

続きを読む

見学したい(無料)

佐鳴台の住まい。

無料
無料

静岡県浜松市中央区佐鳴台1-12-20

2LDK /74.63m² /2017年3月

コンクリート壁のカッコイイ建物外観のお部屋です!
お部屋のなかは白の床、壁で高級感のある雰囲気。
ドアなどは黒が使われていて、シンプルですがスタイリッシュでかっこいいお部屋です。
キッチン上のライトがオシャレで夜はさらにオシャレな空間になりそうです!
キッチン前は収納になっているので、荷物はここに収納しましょう!
LDKの広さも21.8帖で十分すぎる広さです。

さらにほかにも2つの洋室があります。
6帖の洋室にはそれぞれ収納付きで、ひとつはウォークインクローゼットになっています。
家族みんなの分も、洋服が大好きな方でも安心の収納力です。

お風呂は足を伸ばせる一坪風呂です。
さらに浴室乾燥もついていますので、雨の日のお洗濯物も安心です。

LDKには2つのバルコニー。洋室にも1つバルコニーが付いていて、なんと合計で3つのバルコニーがついています。
植物を育てたり、洗濯物を干したりと色々な使い方をすることができますね。

マンション入り口は安心のオートロックです。
佐鳴台の住宅街に鎮座する贅沢な2LDKのお部屋で新しい暮らしを始めましょう!

続きを読む

見学したい(無料)
FULL リノベ済み 360VR

見た目も中身も可愛く![ペット可]

6.9万円
無料

静岡県浜松市中央区若林町 1091-1

2LDK /58.41m² /1982年12月

真っ赤な外観がレトロで可愛いお部屋のご紹介です!
建物外観だけでなく、お部屋の中までリノベーションでしっかりかわいいです!

お部屋は広々とした間取りの2LDK。
16帖のLDKはL字型になっていて、キッチンスペースと空間を分けることができるのが嬉しいです。
カウンターキッチンは木で統一されていて料理がしたくなるようなキッチンです。
壁紙がさりげないオシャレで一気にお部屋の雰囲気を高めてくれてます!
備え付けの棚も充実していて、収納力の面でも困ることはなさぞうです。

6帖の洋室には壁一面のクローゼットが付いています。
洋服をたくさん持っている方でも安心の収納力です!
もうひとつの4.5帖の洋室にも小さめですがクローゼット完備です。
これだけの収納があれば2人分でもしっかりキレイに片づけることができそうです。

ペット飼育も相談可です。
公園が近くにあるのでお散歩に出かけるのも楽しいですね。
物件周辺は、近くにはドンキ、飲食店が充実しています。
大好きなペットと一緒に新しい生活を始めませんか?

続きを読む

見学したい(無料)
RENT リノベ済み 360VR

アクトタワーのふもとで。

8.7万円
8.7万円

静岡県浜松市中央区八幡町18-3

賃料87,000円  
共益費/管理費3,000円

1LDK /48.15m² /2000年11月

浜松市中区八幡にあるリノベのされたお部屋です!
LDKは13.4帖のお部屋です。真ん中にはカウンターキッチンがドンとあります。
シンプルですが、オシャレにまとまったお部屋です。
窓が2つ大きくあり、8階ということもあり浜松の景色を一望できる開放感のある空間です。

5帖の洋室にはウォークインクローゼット付きで、たくさんのお洋服を収納可能です。
角部屋ということもあり、南側の窓からの太陽の日差しがたくさん入ってきてポカポカです!

お風呂は足を伸ばせる広々とした浴槽が嬉しいです。
一日の疲れはお風呂で洗い流しましょう!

バルコニーからはアクトタワーを見ることができます。
遠州病院駅まで徒歩3分。浜松駅まで徒歩13分。
浜松を移動するのには便利すぎる立地です。
アクトタワーのふもとで、大好きな浜松での暮らしを始めましょう!

続きを読む

見学したい(無料)
FULL リノベ済み 360VR

浜松を堪能するリノベ

6.7万円
6.7万円

静岡県浜松市中央区八幡町18-3

1R /35.48m² /2000年11月

浜松市中央区八幡にあるリノベーションされたお部屋です!
LDKは13.6帖のお部屋です。真ん中にはカウンターキッチンがドンとあります。
木目で統一されたシンプルですが、オシャレにまとまったお部屋です。
窓が2つ大きくあるので、開放感があります。

LDKにはウォークインクローゼット付きで、ワンルームですが収納には不便することはなさそうです。
さらにキッチン横にも可動式棚が設置されていますので、小物などを収納するのに便利です。

お風呂はシャワータイプのみでバスタブはありません。
シャワーでサッと済ませて、時間を有効活用しましょう。
シュッとした黒がかっこいいですね。

バルコニーからは赤電が走る様子が見えます。
遠州病院駅まで徒歩4分、浜松駅まで徒歩13分。
浜松を移動するのには便利すぎる立地です。

赤電の音を聞きながら、大好きな浜松で暮らしましょう!

続きを読む

見学したい(無料)
FULL リノベ済み 360VR

白×木

6.2万円
無料

静岡県浜松市中央区天王町742

1LDK /54.65m² /1984年5月

こちらはシンプルですがとってもオシャレな部屋です!!
LDKは全体的に白×木でまとめられています。
ドアノブなどは黒でまとめられていて、シンプルですがオシャレを感じる部屋です。
広さも17帖でゆとりのある広さ。
窓が2つついていて、1階ですが太陽の光が入ってくるので温かさも感じます。
LDKの収納はなんと超広々ウォークインクローゼットです!
1人ではもったいないくらいの広さで、洋服好きの方には最高のクローゼットですね!

6帖の洋室はこちらもシンプル。
出窓、備え付けの棚付きでシンプルですが便利でオシャレなお部屋になっています。
北向きの部屋なので、出窓にはなにか植物を置いたらお部屋がパッと明るくなりそうです!

玄関には小さめですがシューズボックス付き。
その隣には傘立て、小物置きなどになりそうな棚付き。
オシャレですが便利なポイントが詰まって住む想像ができる、そんなお部屋だと思います。
洋服好きの方、こちらのお部屋で決まりです!

続きを読む

見学したい(無料)

【ペット可】大好きなペットとの暮らしはここで。

無料
無料

静岡県浜松市中央区天王町781

2SLDK /51.00m² /1984/5/1

こちらはリノベーションで生まれ変わったお部屋です!
このお部屋の一番のポイントはキッチンの水色のタイルです!
キッチン前にはカウンターもついていて、イスを置いてここでさっとご飯を食べることもできそうです。
備え付けの棚がしっかりついているのも料理好きの方には嬉しいポイントだと思います。
木目調の床に、アクセントクロスのグレーと最高に相性のいい、オシャレなLDKになっています。

12帖のLDKはそれだけでも十分な広さですが、そのまま繋がる6帖の洋室とは扉で仕切られています。
その扉を開けるとなんと広々18帖のLDKに変化します!
窓が2つも付いているので開放感も抜群になりますよ!

さらにもうひとつ6帖の洋室があります。
洋室の間にはウォークインクローゼットがあり、各洋室から行き来が可能になっています。
服をシェアして楽しいクローゼットになりそうですね!

キッチンが魅力的なこのお部屋。
さらにはこのお部屋は小型犬なら可です!大好きなペットとの暮らしをこのお部屋で。
料理、犬好きの方にぜひ暮らしていただきたいです!

続きを読む

見学したい(無料)

毎日する料理だからこそ、このお部屋で。

無料
無料

静岡県浜松市中央区天王町781

2SLDK /51.00m² /1984/5/1

こちらはリノベーションで生まれ変わったお部屋です!
このお部屋の一番のポイントはキッチンの水色のタイルです!
キッチン前にはカウンターもついていて、イスを置いてここでさっとご飯を食べることもできそうです。
備え付けの棚がしっかりついているのも料理好きの方には嬉しいポイントだと思います。
木目調の床に、アクセントクロスのグレーと最高に相性のいい、オシャレなLDKになっています。

12帖のLDKはそれだけでも十分な広さですが、そのまま繋がる6帖の洋室とは扉で仕切られています。
その扉を開けるとなんと広々18帖のLDKに変化します!
窓が2つも付いているので開放感も抜群になりますよ!

さらにもうひとつ6帖の洋室があります。
洋室の間にはウォークインクローゼットがあり、各洋室から行き来が可能になっています。
服をシェアして楽しいクローゼットになりそうですね!

キッチンが魅力的なこのお部屋。
料理好きの方にぜひ暮らしていただきたいです!

続きを読む

見学したい(無料)
FULL リノベ済み 360VR

壁紙が主役のお部屋

6.5万円
6.5万円

静岡県浜松市中央区篠ケ瀬町338

2LDK /56.38m² /1987年1月

篠ケ瀬町にあるリノベーションのされたお部屋のご紹介です!
道路を走っていると見えてくる真っ赤な外観が目印のこのマンションは、お部屋の中もとってもかわいい内装です。

12帖のLDKは入った瞬間に目を引きます。
タイル柄のアクセントクロスがお部屋の主役で、一気にオシャレな雰囲気にしてくれます。
床は木目であたたかい印象です。
ライトはダウンライトで落ち着く空間になっています。
普通は家具をいれて完成するお部屋ですが、このお部屋はもうすでにオシャレな空間に仕上がっていますね。
家具はシンプルに置くだけで、オシャレ部屋を作り上げることができそうです!

LDKから続く洋室は7帖の広さ。
収納付きで写真よりも奥行きがあって広いです!
こちらの洋室からも洗面所へ行くことができる造りになっています。

もうひとつ6帖の洋室があります。
こちらのクローゼットは少し大きめのサイズです。
南向きなので日当たりは抜群です!

玄関にはもちろんシューズボックスつき。
さらに小物を置けそうな棚が付いているのがなかなか無いデザインで嬉しいポイントです。

物件周辺にはイオン市野、コストコなどが充実しています!
休日はショッピングに出かけましょう!

続きを読む

見学したい(無料)

今日の気分は、2LDK時々1LDK。

6.5万円
無料

静岡県浜松市中央区北島町324

2LDK /56.52m² /1992/02

お部屋をご紹介。

国1・浜松インターや自動車街へほど近いここは東区北島町、安間川公園近くに当物件はあります。
築30年が経ちそろそろ入居者が減り始める頃かと思う当物件、実は空室になった部屋毎に様々なリノベーション施工され空きが出てもすぐに決まってしまう物件なのです。

間取りこそオーソドックスな2LDKのタイプではあるが4枚の引込戸の使い方次第では大きな1LDKとしての使用も可能。
収納はウォークインクローゼットの1ヶ所のみですが、このウォークインクローゼットは圧巻の広さ!!

これから同棲始めるよ!とういう新婚にはオススメのお部屋ですね。

続きを読む

見学したい(無料)

【築浅ガレージハウス】車好きのための1LDK

9.5万円
9.5万円

静岡県浜松市中央区葵西2-15-4

1LDK /76.18m² /2022年10月

築浅のガレージハウスが浜松の葵西に登場!
建物自体は2022年10月に完成。

この物件は、車を持っている方で、愛車の手入れをするのが大好きな方にぴったりです。なぜなら愛車を守ることができる広々としたガレージと、施設内にある駐車場が魅力的だから。
シンプルでクールなデザインのガレージで愛車がより映える。今以上に惚れこんでしまうかも?

LDKは14帖。デザインにもこだわりがあり、ナチュラルウッドの床と灰色のキッチンが落ち着いた雰囲気を演出してくれます。
アイランドキッチンになっていて、ここで料理をするのが楽しくなりそうですね。
さらに、洋室にある南向きのベランダからは陽光がたっぷりと入り、気持ちのいい時間を過ごすことができます。
バストイレは別になっていて、お風呂には追い炊き機能が付いています。エアコンも完備しているので、夏場も快適に過ごせます。
さらに、ウォークインクローゼットがあるので、収納にも困らないでしょう。宅配ボックスもあるので、忙しい方でも安心です。

この物件で愛車との快適な暮らしを始めることができれば、毎日がより充実したものになること間違いなし!
愛車にもっと惚れる生活を、ぜひご検討ください。

続きを読む

見学したい(無料)
FULL

【新築ガレージハウス】家族と愛車を守ります

9.5万円
9.5万円

静岡県浜松市中央区葵西2-15-4

1LDK /76.18m² /2022年10月

新築のガレージハウスが浜松の葵西に登場!

建物自体は10月中に完成予定、入居時期は11月20日予定です!

西棟、東棟の2戸タイプ。

新築のガレージハウスはとにかく早い者勝ち。

興味がある方は是非お問合せください!

続きを読む

見学したい(無料)

【築浅】自宅、いや基地

無料
無料

静岡県掛川市亀の甲1-11-1

2LDK /97.00m² /2022年9月

誰かに自慢したくなる、そんな物件が掛川に誕生しました!
充実した設備に、駅チカの環境、全てが最高!
最高以上の満足感を提供します。

ガレージにはEV車を充電できる設備が付いています。
こんな賃貸なかなかない!すっごく貴重です。
車が大好きな人、必見です!

ガレージ以外にも充実した設備がたくさんあります!
リビングにはホームシアター、キッチンには食器洗い乾燥機、一坪風呂、2つのウォークインクローゼットなど
日々の生活を豊かにしてくれるものが沢山です。
それに加えて掛川駅まで徒歩4分!!
立地にも設備にも恵まれたこの物件、控えめに言って「最高」です。

ただ注意しておきたいのが、
・新幹線の音が気になってしまうかも…
・最上階のおトイレまで我慢が必要かも…
人生楽ありゃ苦があるさ!?
…デメリットも凌駕してしまう…最高のガレージハウスなんです。

続きを読む

見学したい(無料)

【新築】これが俺の基地

無料
無料

静岡県掛川市亀の甲1-11-1

2LDK /97.00m² /2022年9月

大人気のガレージハウスが掛川にも誕生しました!
充実した設備に、駅チカの環境、全てが最高!
最高以上の満足感を提供します。

ガレージにはEV車を充電できる設備が付いています。
こんな賃貸なかなかない!すっごく貴重です。
車が大好きな人、必見です!

ガレージ以外にも充実した設備がたくさんあります!
リビングにはホームシアター、キッチンには食器洗い乾燥機、一坪風呂、2つのウォークインクローゼットなど
日々の生活を豊かにしてくれるものが沢山です。
それに加えて掛川駅まで徒歩4分!!
立地にも設備にも恵まれたこの物件、控えめに言って「最高」です。

ただ注意しておきたいのが、
・新幹線の音が気になってしまうかも…
・最上階のおトイレまで我慢が必要かも…
人生楽ありゃ苦があるさ!?
…デメリットも凌駕してしまう…最高のガレージハウスなんです。

続きを読む

見学したい(無料)

【ペット可】ガレージハウスで愛車を守る

無料
無料

静岡県磐田市福田424-1

4LDK /152.90m²

磐田に大人気のガレージハウスが登場!

築浅で4LDKの広さを持つガレージハウスのご紹介です。
18.3帖のLDKには対面式のキレイなキッチンが!
3口コンロでお料理がはかどります。
お料理好きにはたまりませんね。

ガレージは事務所としても活用することができます。(要相談)
あなた次第でガレージが様々な場所に早変わり、、、

ペット可でガレージも付いて万能すぎるこちらのお家
これからの生活に欠かせない存在になりますよ!

続きを読む

見学したい(無料)

ミッション!ミニ工場を活用せよ!

33万円
16.5万円

静岡県浜松市中央区上浅田1-1-13

/95.31m²

浜松駅からほど近い上浅田の新幹線高架線沿いの元自動車修理工場のご紹介です。

広さ約60坪の土地に28坪の工場と物置が付いています。
外装と屋根は波板スレートぶきでインダストリアルな雰囲気を醸し出しています。工場内は鉄骨に水銀灯照明が吊るされており、こちらもインダストリアルなデザイン。

広さは車3台分は余裕で入る間口です。

工場内にはコンテナハウスが設置されており、こちらを事務所として活用していたようです。エアコンも付いています。

トイレは工場の隣に設置されており、和式のトイレに様式のカバータイプのトイレをかぶせた仕様となっております。
古いですが、リフトジャッキも付いております。

建物は昭和51年に建築されたものなので、痛みもありますし、シャッターが開けにくいとかの不具合もありますので現状渡しをご了承いただいた上での賃貸となります。

ここで活用方法ですが、もちろん自動車修理工場やバイク修理工場や販売などで活用頂くこともできますし、美容室などの用途変更でもいいかもしれません。工場内にキッチンカーを配置した屋台的な飲食業態も面白そうですね。

新たな活用方法を是非是非ご検討ください。

365LIFEでは賃貸仲介とともに、お店のコンセプト作りから内装デザインまで一貫して承っております。
ぜひ事業内容をお聞かせください。
掲載以外の物件もお取り扱い可能です。
ご相談お待ちしております。

続きを読む

見学したい(無料)

【売買物件】田舎暮らし、浜名湖徒歩50m

静岡県浜松市西区古人見町3033

価格1,490万円

4R /149.85m² /1983年4月

ここは浜松市西区の浜名湖畔にある古人見という町。
浜松近郊にある田舎といっていいのどかな場所です。今回売却に出たのが、この物件なのですが、建物としては昭和58年の築なのでほぼ40年近く経っておりかなり古さを感じますが、この立地は捨てがたい。

なんと浜名湖まで徒歩50mという距離に建っております。徒歩でサクサク歩いて行くと、ちょっとした土手を上がり、そこから鉄梯子で下ります。そこに広がる眺望はまさしくレイクビュー!

ここからボートやSUPなどで湖に繰り出すことを考えたらこの付加価値は捨てがたい。

湖岸からははぜやせいごなどの小魚や車エビなどが取れるようです。もう少し沖に出ればコチなんかも取れるとのこと。釣り好きにはたまりませんね。

お庭にはいくつかの木が生えており、下草も生えております。ナチュラルフォレストガーデンのような感じが素敵ですが、だいぶ生い茂ってきているので多少選定も必要な状況です。

建物は古いため、このまま住むというよりは改装を前提として考えないといけないのが少しネックです。

また接道が幅員3.5m強しかありませんので、建て替え時に若干のセットバックが必要です。

田舎だけどイオンモール志都呂も5kmほどの距離だし、住んでいて不便はあまり感じないのではないでしょうか。
ただ、就学時をお持ちのご家庭では、近くの小学校も基本的にバスで行かなければいけない距離だそうで、その辺がネックかな。

第二の人生の移住先とかでも是非ご検討ください!

続きを読む

見学したい(無料)

【新築!!】ぜんぶ好きにしよう【ガレージハウス】

無料
8.9万円

静岡県浜松市中央区北島町261-1

1SLDK /84.14m² /2022年12月

待ち望んでいた方も多いと思います。
そう!ワガママがぜーんぶ詰まった新築ガレージハウスのご紹介です!!

静岡県浜松市東区北島町の浜松バイパス入口付近に新しく建築中のガレージハウスになります。
浜松市内や磐田方面,新居方面どこへでも大きな道が通っており通勤,通学にとっても便利です♪

明るく広々としたガレージは
入口幅265㎝ 入口高さ240㎝ 奥行550㎝と
かなりゆとりのある広さ!
手洗い場や、EVコンセントも付いているのはうれしいポイントです。

こういったガレージハウスにありがちだったのはとにかく居住区の収納スペースが少ない事!!
こちらのお家の間取りはなんと1LDK+納戸!リビングと洋室の間にはなんと大きなウォークインクローゼット!
洋室にも大きな備え付け可動棚がつけられており、ガレージハウスを選んで暮らす多趣味な貴方にピッタリです♪

さらに嬉しいポイントが洋室にあるサンルーム!
バルコニーとは別に寝室にサンルームがあるのはとっても便利です。

さらにさらに、エアコン2台付きや、宅配ボックスにシステムキッチン等々・・・
新築ならではの充実設備も他所のガレージハウスでは妥協していた部分ではないでしょうか!?

流行に敏感なあなたの生活に寄り添ってくれる相棒のようなお部屋です♪

続きを読む

見学したい(無料)

夢がもりもり[ガレージ]

無料
9万円

静岡県浜松市中央区北島町261-1

1SLDK /84.14m² /2022年12月

待ち望んでいた方も多いと思います。
そう、築浅のガレージハウスです。

場所は旧東区の北島町。
バイパスへのアクセスもよく、磐田方面に出勤の方にもおすすめです。

広々ガレージは、幅265cm×奥行550cm×高さ240cm。
出入り口は重厚な電動シャッターです。
スロップシンクやEVコンセントも付いています。

ガレージハウスにありがちなのは、居住エリアは何かしらの妥協ポイントがあること。
特に収納は小さいことが多いのですが、このお部屋にはなんと、大きなウォークスルークローゼットが付いているのです。拍手。
たくさん入るだけじゃなく、ウォークスルーってところがさらにいいですよね。

洋室側にはバルコニーとは別にサンルームが用意されています。
雨の日はもちろん、洗濯物を花粉で外に干せない方、中干し派の方にはうれしい。

設備も築浅だからきれいです。そして充実。
3口ガスコンロにグリル付きのシステムキッチンに、浴室には追い焚きと浴室乾燥機、トイレはもちろんウォシュレット。
エアコンはうれしい2台付き、ネットも無料で使えます。宅配ボックスもあります。

ガレージハウスに住みたい、そして快適に暮らしたいというあなたにおすすめです。
現入居者様の退去前ではありますが、これは人気が出そうな予感。

続きを読む

見学したい(無料)

【新築!!】あなただけの自由な空間!【ガレージハウス】

無料
8.9万円

静岡県浜松市中央区北島町261-1

1LDK /84.14m² /2022年12月

待ち望んでいた方も多いと思います。
そう!ワガママがぜーんぶ詰まった新築ガレージハウスのご紹介です!!

静岡県浜松市東区北島町の浜松バイパス入口付近に新しく建築中のガレージハウスになります。
浜松市内や磐田方面,新居方面どこへでも大きな道が通っており通勤,通学にとっても便利です♪

こういったガレージハウスにありがちだったのはとにかく居住区の収納スペースが少ない事!!
こちらのお家の間取りはなんと1LDK+納戸!リビングと洋室の間にはなんと大きなウォークインクローゼット!
洋室にも大きな備え付け可動棚がつけられており、ガレージハウスを選んで暮らす多趣味な貴方にピッタリです♪

さらに嬉しいポイントが洋室にあるサンルーム!
バルコニーとは別に寝室にサンルームがあるのはとっても便利です。

さらにさらに、エアコン2台付きや、宅配ボックスにシステムキッチン等々・・・
新築ならではの充実設備も他所のガレージハウスでは妥協していた部分ではないでしょうか!?

流行に敏感なあなたの生活に寄り添ってくれる相棒のようなお部屋です♪

続きを読む

見学したい(無料)

【新築!!】待望のガレージハウスが今!

無料
9万円

静岡県浜松市中央区北島町261-1

1LDK /84.14m² /2022年12月

待ち望んでいた方も多いと思います。
そう!ワガママがぜーんぶ詰まった新築ガレージハウスのご紹介です!!

静岡県浜松市東区北島町の浜松バイパス入口付近に新しく建築中のガレージハウスになります。
浜松市内や磐田方面,新居方面どこへでも大きな道が通っており通勤,通学にとっても便利です♪

明るく広々としたガレージは
幅265㎝ 高さ240㎝ 奥行550㎝と
かなりゆとりのある広さ!
手洗い場や、EVコンセントも付いているのはうれしいポイントです。

こういったガレージハウスにありがちだったのはとにかく居住区の収納スペースが少ない事!!
こちらのお家の間取りはなんと1LDK+納戸!リビングと洋室の間にはなんと大きなウォークインクローゼット!
洋室にも大きな備え付け可動棚がつけられており、ガレージハウスを選んで暮らす多趣味な貴方にピッタリです♪

さらに嬉しいポイントが洋室にあるサンルーム!
バルコニーとは別に寝室にサンルームがあるのはとっても便利です。

さらにさらに、エアコン2台付きや、宅配ボックスにシステムキッチン等々・・・
新築ならではの充実設備も他所のガレージハウスでは妥協していた部分ではないでしょうか!?

流行に敏感なあなたの生活に寄り添ってくれる相棒のようなお部屋です♪

続きを読む

見学したい(無料)
FULL

人気のエリアで便利なおうち!

12万円
12万円

静岡県浜松市中央区市野町1571-1

3LDK /83.50m² /2022年10月

浜松市中区市野町の町に新しく建つ一軒家のご紹介です!
大型ショッピング施設が付近に数多く点在する人気のエリアに3LDKの戸建てが登場!

15.3帖の広々LDKや、人気の対面式システムキッチン等高機能を兼ね備えております。
そして、なんと大きなバルコニーまで!目くらの壁も高めに設計されているので人の目を気にせずにお洗濯が出来ちゃいます♪

駐車場も建物前になんと3台も!家族みんなの車が停められます♪
生活に車必須の浜松市在住家族には嬉しいですね。

充実設備の家族みんなでのんびり過ごせるおうち。早い者勝ちです。
気になる方はぜひお問い合わせを!

続きを読む

見学したい(無料)

Forest Garden住吉~そこに季節を感ず~

14.8万円
無料

静岡県浜松市中央区住吉5-10-11

2LDK /68.91m² /1985年6月

オリエンタルな高級感の雰囲気が漂います。
西洋と東洋の入り混じったテイストが外観の魅力を引き出しています。永い間、ここで様々なライフスタイルを得て、ますます魅力的な物件になっています。

80年代に建てられたヴィンテージマンションですが、リノベーションをすることで、さらに素敵なお部屋になっていき、次の時代へ引き継がれていきます。

窓に映る木々もいいですです。四季を感じながら日々を過ごす。窓の形状もちょっと時代を感じます。レトロ調な雰囲気も残るお部屋ですね。

真っ白なお部屋に対し木々の緑、季節の移り変わりによって色のコントラストがお楽しみいただけます。
窓に描かれた「自然風景絵画」を楽しみながら生活してみませんか?

続きを読む

見学したい(無料)

【店舗・事務所】頭の中をカタチに

49.5万円
16.5万円

静岡県浜松市浜名区内野1019-1

/36.43m² /2020年6月

こちらの物件は浜松市浜北区内野に建つ幹線道路沿いで築浅の貸店舗のご紹介です。
浜松市の繁華街から山地帯までを繋ぐ飛龍街道と呼ばれる幹線道路から一本入った場所にある建物なので、交通量が多すぎず少なすぎず、尚且つ閑静な街並みを併せ持つ素敵な立地となっております。

駐車場は無料で空き3台分ご利用いただけます。プラス2台分は2Fの店舗様との共同利用ができ、しかも別途来客者向け駐車場がなんと5台分!!
スタッフとお客様の駐車スペースに困る事はなさそうです!
1つ難があるとすれば駐車場の出入口が坂になっており沿道から入口が少し見えづらいなと感じました。
しかしその難点も、駐車場出入口に建てられた大きなロードサイド看板が設置可能なので解決は簡単そうです♪

気になる内装は築浅の特権!壁紙無しの床コンクリむき出しのまっさらな状態なので業種に合わせて店内の雰囲気を好きにカスタマイズできちゃいます♪
シンプルな間取りで照明の取り付け位置まで決まっていない状態なのでお店の動線などに合わせて設置ができるので、可愛らしいペンダントライトやライティングレールの設置だって出来ちゃうんです!これは夢が広がります♪

残念ながら飲食店は不可ですが、美容院や各種サロン系も映えそうです。そのほかの業種もご相談ください。

マッサージ屋さんや小さな雑貨屋さん、塾やスクールなんかも良さそうですね。

写真だけでなくぜひ360°viewもご覧ください!きっと妄想が捗る事請け合いです♪


365LIFEでは賃貸仲介とともに、お店のコンセプト作りから内装デザインまで一貫して承っております。
ぜひ事業内容をお聞かせください。
掲載以外の物件もお取り扱い可能です。
ご相談お待ちしております。

詳細情報Detail-Information

続きを読む

見学したい(無料)

キュートな内装を生かして

16万円
無料

静岡県浜松市中央区大島町419

/34.71m² /2000年4月

東区大島町にあるキュートなテナントの紹介です。
レンガが散りばめられた淡いピンクの外壁はまるでヨーロッパの建物のよう。
お隣は美容室さんで、キュートな外観を生かしたかわいらしい入口になっていました。
雰囲気を合わせて女性向けのエステサロンや、生菓店なんかでも人気が出そうです。
ちなみに以前はテイクアウト専門のから揚げ屋さんが入っていたよう。

交通量の多い道路沿いなので、看板を設置して入口を改装すれば目立つこと間違いなし!
駐車場も店舗前に2台、隣の敷地にも3台ほど空きがあるようなので最大で5台駐車可能。(要確認)
交通量が多く店舗前は少し停めづらいので、隣の敷地の駐車場を活用した方がよさそう。

洗面台は小さなミラーがついていて可愛らしい印象。
室内全体の雰囲気が統一されているのがお店をつくりやすいポイントになっています。
トイレは和式なので小さいお子様やお年寄りのことを考えるとリフォームは必要ですが、壁紙の色や腰板がやっぱり可愛い!
ドアも木目調でログハウスのような雰囲気です。

裏口付近にはカウンターがあり荷物置きや休憩などちょっとしたスペースに使えそう。
冷蔵庫も入りそうなスペースがありました。

キュートな内装を生かして、あなただけのとっておきのお店をつくりましょう!

365LIFEでは賃貸仲介とともに、お店のコンセプト作りから内装デザインまで一貫して承っております。
ぜひ事業内容をお聞かせください。
掲載以外の物件もお取り扱い可能です。
ご相談お待ちしております。

続きを読む

見学したい(無料)

有玉台で巣作りを

10万円
無料

静岡県浜松市中央区有玉台1-6-7

1LDK /44.71m² /2003年5月

情報修正日:2019年06月09日物件ID:001055015202 お気に入り

間取り間取りを表示
2人入居も可能な1LDKです。

広さも2人入居でちょうどいい感じ。リビングが12帖で寝室になる洋室が7.5帖です。
LDK空間にはキッチンがどぉーんとあります。

有玉台の陽がよく当たる高台で2人で過ごすにちょうど良い空間です。
身を寄せ合って仲良く過ごす風景が想像できます。
鳥は小さな巣を作り、そこで身を寄せ合って過ごします。ヒナが巣立てばまた新しい場所へ向かいます。ここはそんな鳥の巣かもしれません。

続きを読む

見学したい(無料)

【売買物件】高い天井そして上質な空間

静岡県浜松市中区海老塚1-9

/67.87m² /1985年8月

浜松駅から徒歩9分の好立地に建つマンションの一室をリノベーション。
とてもセンス良く仕上がりました。

床は杉の無垢材。木目のコントラストが美しく、一目で気に入ってしまいました。
建具もラワン合板の制作建具で、天井高までの高さのドアはこの部屋の意匠的なポイントとなっています。ほかの量産建具と違い、オンリーワンのこの部屋らしさが際立ちます。

天井はコンクリートあらわしの仕上げとなっており、高さがある分お部屋の広さを感じますし、何よりも木の床とのコントラストが素敵!無機質すぎないセンスを感じます。

壁には各所にフックが配置されていたり、小物が置ける棚が設置されていたり、住まい手のセンスで飾りつけが自由自在なところもポイントです。

リビングは南側に面しており、北側の居室の窓を開けると気持ち良い風が通り抜けます。撮影した日も暑い日だったのですが、すがすがしい風通りで癒されました。

購入価格を抑えたセンスのいいリノベマンションはなかなかないので、リノベで検討されている方は一度ご検討してみては?

続きを読む

見学したい(無料)

新しい風、新たな生活。

14.7万円
14.7万円

静岡県浜松市中央区住吉5-8-41

3LDK /98.75m² /2022.09

19.4帖の広々LDKや、人気の対面式キッチン、浴室乾燥機に宅配バックスect…充実設備が揃った3LDK!
そして、なんと大きなウッドデッキまで!お休みの日はウッドデッキでうとうと・・・なんて生活憧れます・・

そして何より可愛らしい建物の外観!
お家に帰るだけで絵になる、キュートな四角い外観がとっても素敵です。

充実設備の家族みんなでのんびり過ごせるおうち。早い者勝ちです。
気になる方はぜひお問い合わせを。

続きを読む

見学したい(無料)
FULL

【新築】高林の戸建て賃貸!

29万円
14.5万円

静岡県浜松市中央区高林4-796-1

3LDK /83.25m² /2022年9月

速報です!!
浜松市中区高林に新築一戸建て賃貸の募集が出ました。

9月下旬に完成予定のこの物件、全室エアコン付き、宅配ボックス、3口ガスコンロ、追い焚きなど、現代住宅の基本ともいえる設備はもちろん設備されています。

さらに、この物件が次世代レジデンスと銘打つべき理由は「電気自動車対応のメルセデス純正充電器」が設置されていること。
このメルセデス純正充電器(EV/PHV対応)は、他メーカー国産・外車問わず充電可能とのことです。
スマホも、自動車も「朝、起きたら充電100%」って時代なんですね。

1階2階ともにトイレが設置されていたり、大型のシューズクロークや衣類乾燥機もあり、家族の暮らしやすいお家が誕生します。

飛龍街道沿い、浜松市中区でもちょうど真ん中にある高林。
東西南北どこへでもアクセスしやすい立地も魅力的です。

黒を基調としたシックでスタイリッシュな外観のデザイナーズ戸建て賃貸。
急ぎお問い合わせ下さい!

続きを読む

見学したい(無料)
FULL

【新築】2LDKテラスハウス賃貸!

29万円
14.5万円

静岡県浜松市中央区高林4-796-1

2SLDK /85.25m² /2022年9月

速報です!!
浜松市中区高林に新築テラスハウスの募集が出ました。

9月下旬に完成予定のこの物件、全室エアコン付き、宅配ボックス、3口ガスコンロ、追い焚きなど、現代住宅の基本ともいえる設備はもちろん設備されています。

さらに、この物件が次世代レジデンスと銘打つべき理由は「電気自動車対応のメルセデス純正充電器」が設置されていること。
このメルセデス純正充電器(EV/PHV対応)は、他メーカー国産・外車問わず充電可能とのことです。
スマホも、自動車も「朝、起きたら充電100%」って時代なんですね。

1階2階ともにトイレが設置されていたり、大型のシューズクロークや衣類乾燥機もあり、
サービスルームは書斎としても使え、リモートワークなどにぴったり。

飛龍街道沿い、浜松市中区でもちょうど真ん中にある高林。
東西南北どこへでもアクセスしやすい立地も魅力的です。

黒を基調としたシックでスタイリッシュな外観のデザイナーズテラスハウス賃貸。
急ぎお問い合わせ下さい!

続きを読む

見学したい(無料)
FULL

【新築】高林のテラスハウス賃貸!

29万円
14.5万円

静岡県浜松市中央区高林4-796-1

3LDK /85.25m² /2022年9月

速報です!!
浜松市中区高林に新築テラスハウスの募集が出ました。

9月下旬に完成予定のこの物件、全室エアコン付き、宅配ボックス、3口ガスコンロ、追い焚きなど、現代住宅の基本ともいえる設備はもちろん設備されています。

さらに、この物件が次世代レジデンスと銘打つべき理由は「電気自動車対応のメルセデス純正充電器」が設置されていること。
このメルセデス純正充電器(EV/PHV対応)は、他メーカー国産・外車問わず充電可能とのことです。
スマホも、自動車も「朝、起きたら充電100%」って時代なんですね。

1階2階ともにトイレが設置されていたり、大型のシューズクロークや衣類乾燥機もあり、ファミリーにはうれしい機能がいっぱい。

飛龍街道沿い、浜松市中区でもちょうど真ん中にある高林。
東西南北どこへでもアクセスしやすい立地も魅力的です。

黒を基調としたシックでスタイリッシュな外観のデザイナーズテラスハウス賃貸。
急ぎお問い合わせ下さい!

続きを読む

見学したい(無料)

吹き抜けルーム

無料
無料

静岡県掛川市緑ケ丘1-3-2

1LDK /42.23m² /2014年12月

掛川に吹き抜け空間で開放感のあるお部屋がありました。
※急ぎ、いただいた写真で掲載いたします!

ただ天井が高いだけではありません。
キッチン、浴室、トイレ、洗面、水回りなど最新型の設備が揃っています。
人気のカウンター対面キッチンにはオシャレアクセントクロス。
人気のくすみカラーのキッチンは2口ガスのシステムキッチン。
このキッチンで作られたご飯は全て映えるオシャ飯になってしまうことでしょう。

2帖のロフトへはしっかりと備え付けられたハシゴ階段で、
備え付けのカウンターを、このロフトスペースをどう使うかはアナタ次第です。
吹き抜けになっているのでロフトもそんなに窮屈な感じはしないはず。
南抜きの採光窓は暖かな光をお部屋全体に届けてくれます。

駐車場は縦列で2台込み。2人暮らしにはありがたく、一人暮らしの方は来客用にもできますね。
このお部屋はぜひお友達を呼んで、見せびらかしちゃいましょう!

掛川駅近く、高速のインターにも近いこちらのオシャレルーム。必見です!

続きを読む

見学したい(無料)

シンプルで使いやすく

無料
無料

静岡県浜松市中央区天王町742

1SLDK /54.65m² /1984年05月

17帖の広々リビングにカウンターキッチン。
ウォークインクローゼットに、いろんなところにちょっとした棚。
シンプルでオシャレ、かつ使いやすいそんなお部屋の紹介です。

リビングはとにかく広い!
カップルで過ごすのにピッタリ。
これだけ広いとお友だちを呼んでホームパーティーも難なくできちゃいますね。

キッチンはシステムキッチンでカウンターデスクが付いています。
お料理好きにはたまりません。
カウンターで出来立ての料理をつまみながら、お酒をしっぽりと、、、
まるでBARみたいな使い方が出来そうです。

コンビニやスーパーが徒歩圏内にあり生活しやすい環境です!
イオンも徒歩圏内にありますよ!
新しい生活の場として、とってもおススメです!

続きを読む

見学したい(無料)

夢を叶える住まい

14.6万円
無料

静岡県浜松市中央区入野町6429

2LDK /79.80m² /2007年08月

こちらのお部屋は浜松市西区入野町にある、玄関を開けてからずっと木の温もりを感じることのできる温かすぎるおうちです!

LDKは13帖の広さ。
キッチンが奥にあるため生活スペースを最大限に広く使えることができます。
大きな窓から差し込む陽の光と、木目のお部屋が相性抜群でお昼はLDKで日向ぼっこでもしたいですね。

廊下に出るとすぐに、階段下を利用した収納スペースがあります。
その奥には木に包まれたトイレ。
薄ピンク色がかわいい洗面台があります。
お風呂も超広々で、1日の疲れを吹き飛ばすことのできる足を伸ばせる浴槽です!

2階に上がると2つの洋室があります。
7.5帖と10帖の十分すぎる広さの洋室に、それぞれ超広々のクローゼット付きです。
バルコニーは屋根ありで、洗濯物を干しているときに多少の雨が降ってきてもこれなら安心です。

物件周辺はイオン、飲食店が並ぶ交通量もなかなか多い場所です。
ほしいものはサッと買いに行けるのでとっても便利です!

さらになんと、こちらの物件は事業用相談可です。
LDKを利用して、自宅サロンを開いてもいいですし、2階にも十分すぎる広さのお部屋があります。
使い方はたくさんありそうです!自分の夢も叶う、そんなお部屋です!

続きを読む

見学したい(無料)

私のお気に入り。

9.7万円
無料

静岡県浜松市中央区三島町379-1

2LDK /65.59m² /2016年09月

この物件、設備の充実性がすごいんです。
ウォークインクローゼットにシューズクローク、大きなアイランド型キッチンにキッチンボード、
太陽の温かみが素晴らしい室内サンテラス、お風呂好きには堪らない大きな1坪風呂…。
この賃料も納得の2LDKです。

LDKには室内サンテラスがあり、大きな窓でたくさんの日光を取り込むことが可能です。
角部屋の特権、2面採光の窓はお気に入りの場所になるはず。

LDKと隣の洋室と繋げると約20帖の大きな1部屋になります。
ホームパーティーなど人がたくさん集まる際には、大きな1部屋として活用できますよ。

水回りも清潔感があります。
とくにお風呂はキレイかつ広い!
1坪も広さがあるので、足を伸ばして湯船に浸かることができますよ。
普段シャワーで済ませている人も、湯船に浸かりたくなることまちがいなし!

お早めにお問い合わせください!

続きを読む

見学したい(無料)

開け!夢への扉!

30万円
無料

静岡県浜松市中央区八幡町199-1

/50.02m² /1979年12月

浜松市中区八幡町にある貸店舗事務所のご紹介です!
遠州鉄道八幡駅から徒歩5分の場所にある立地の良さもポイントの高い物件です。
交通量の多い電車通り沿いにあるので、看板を立てることで建物前を通る人には宣伝効果大です。

中はシンプルな50.02㎡の事務所スペースです。
白が基調で清潔感があり、仕事がはかどりそうです。
採光面は東向きですが、メインの窓が大きく3つもあるので開放感抜群です。
さらには歩道に植えてある大きな樹木がちょうど見えます。窓から緑を感じられるのも気持ちよく仕事できますね。
窓を出るとバルコニーがついています。
建物目の前を行き交う車、赤電が通ったりと、ほんとに交通量が多いことが分かります。
名前を広めたい方にはほんとにピッタリの場所です!

事務所のなかには小さめですがキッチンがついてます。
ちょっとした料理ならここで十分です!
おトイレは昔懐かしい和式トイレ。

ビル入口はお花が植えてあります。
お客様をお出迎えするには最高の入り口ですね。
駐車場はビル南側にすぐあります!
車種によっては4台以上駐車可能です!
浜松で夢への扉、開きましょう!

続きを読む

見学したい(無料)

イイとこどりしてあなただけのお店に!

39.6万円
13.2万円

静岡県浜松市中央区西伊場町75-30

/59.94m² /1995年09月

こちらは浜松市中区西伊場町にある貸店舗事務所です!
中は白と木でまとめられてシンプルな空間。
3つのお部屋があるのでシーン別で使い分けることができ、便利そうです。
主要なお客様用スペースは奥に長くシンプルな場所です。
洗面とトイレが2つついてます。

以前まで薬局として使われていた面影が残っています。
奥のお部屋にはやり取りのできる子窓付きの扉があります。
おそらく以前は調剤室だったのでしょうか。

まだあるもうひとつのお部屋は裏口から通じる小さめの空間です。
従業員用にいいですね。
こちらにもトイレがあり、お客様用と分けられるのは便利なポイントです。
さらに階段下を利用した収納があり、たくさんの荷物を収納可能です。

建物場所はオレンジストリートから1本入った所にあります。
同じ建物の2階は税理士事務所です。
近くには整形外科があります。この構造を活かしてそのまま薬局として使うのもありですね。
建物外観はピンク色で可愛いです。
空間がいい具合に区切られていることを活かして、お店を開業してみませんか?

続きを読む

見学したい(無料)
FULL リノベ済み

LIFE IS GOOD

無料
無料

静岡県浜松市中央区大蒲町99-5

1K /25.92m² /2005年11月

このお部屋に入った人にこの部屋のテーマは?と聞けば、ほぼ全員が ”LIFE IS GOOD" と答えるでしょう。何故ならば、壁に大きく書かれているからです!
持ち主が決まる前から、これほどまでに主張を高らかに宣言しているお部屋は珍しいですね。

コルク調の壁と黒い天井、そこに4つ並んだ裸電球は、正に少し肩の力が緩んだ「LIFE IS GOOD」を体現していると思います。こんなところに「1Kだけど、妥協せず、いい生活・オシャレな生活を送らせよう」というお部屋の矜持が見え隠れしています。

LIFE IS GOOD
たかが10文字の言葉ですが、
嬉しい時には「人生って最高」と共感してくれて、へこんだ時には、「どうにかなるさ、人生は」と背中を押してくれそうな、そんな明るい言葉。

明るい友人のように強い励ましの言葉をくれるこのお部屋にあなたも訪れてみませんか?

続きを読む

見学したい(無料)

思わず恋しそう…

無料
無料

静岡県浜松市中央区若林町1400

賃料70,000円  
共益費/管理費3,000円

1LDK /61.28m² /1989年04月

リノベが完成したおしゃれ物件!
キッチンや棚など、細部までこだわった素敵空間に、思わず恋しそう…

間取りは1LDKで、注目のLDKはなんと21帖。
広々で最高です!!
真ん中に少しだけ凹凸があるので、そこに家具を置くとよいかも!
アンティークな家具とか似合いそうです(私はセンスがないので信憑性0)

扉の裏がブックスタンドになっていたり
白いおしゃれな棚があったり…
こだわりのインテリアもきっと映えます。

キッチンはウッディでカウンター付き!
まるでBARのようです。
パントリーも付いていて、機能性も抜群ですよ。

お風呂の壁も他とは一味違います。
木目の棚に温かい雰囲気に包まれて、一日の疲れを吹っ飛ばせそうです!

これは住むしかないな。
まさにイチオシ物件です!

続きを読む

見学したい(無料)

4帖の秘密基地ルーム

無料
無料

静岡県浜松市中央区東若林町35-1

2LDK /57.44m² /1997年03月

こちらはちょっと変わった間取りの2LDKのお部屋です!
17帖のLDKのなかにドンとあるのは4帖の箱のようなお部屋が。
仕事部屋にしたら集中できそうなお部屋です。
在宅ワークが主流となってきた今の時代にはうれしいですね!
ちょっとした秘密基地のようにもなりそうな、使い方はたくさんありそうなお部屋です。

LDKは黒が基調の、クールでカッコいい雰囲気のお部屋です。
窓が2つあって5階ということもあり、眺めも抜群です。
太陽の光もたくさん入ってきそうですね!
キッチンも同じく黒でまとめられてお部屋の統一感を守っています。
スペースも充分にあり、コンセントも壁に設置されていたりと充実した料理が出来そうなキッチンです。

北側には6帖の洋室があります。
こちらには広々ウォークインクローゼットが付いています!
棚付きですのですぐにもお洋服を収納することが可能です。

各水回りもキレイで清潔感があります◎
マンション入り口は安心のオートロックになっています。
エレベーターもついているので5階まででも苦労はしません。
さらにマンション目の前はMEGAドンキがあるので必要なものはすぐに揃えることができそうです。

続きを読む

見学したい(無料)

マイファミリー

23万円
11.5万円

静岡県浜松市中央区泉町2-20-4

3LDK /89.43m² /2015年08月

中区泉町のメガドンキから、ちょっと西側の住宅地にある一戸建て賃貸のご紹介です。
3LDKの間取りの全居室が2面採光で、陽当たりも風通りもよく、気持ちがいいお家。

LDKは15帖の広さ。家族のだんらんの中心は今も昔もリビングです。
広いリビングからテラスに出ることもできます。
水栓もあるのでちょっとした家庭菜園やガーデニングも楽しめそうです。

1階に水回りは集中しており、お風呂は広々足を伸ばせるゆとりのある大きさ。
お子さんと一緒にお風呂に浸かることもできますよ!
もちろん脱衣所もゆとりのあるつくりになっています。

2階の洋室は9帖、6帖、6帖の全てが2面採光でとっても明るく風通しが◎
収納はお部屋にも、階段下のスペースにもありますのでご安心を。

玄関ポーチにプチカーポート。みんなの自転車はこちらに駐輪を。
こちらの学区は小学校は泉小学校、中学校は高台中学校になります。

ファミリーで暮らすのにぴったりな戸建て賃貸!
360VRでじっくりご覧ください!

続きを読む

見学したい(無料)

充実したナチュラルライフ

無料
無料

静岡県浜松市中央区高林3-10-14

1LDK /55.80m² /1983年2月

こちらは浜松市中区高林にあるリノベーションで生まれ変わったお部屋です!
1LDKのお部屋はナチュラルテイストの雰囲気です。

まず12.9帖のLDKは収納棚が備え付けの広々した空間です。
人気のカウンターキッチンには3口コンロが付いていますので、料理もはかどります。
スペースも広々で、目の前のカウンターでさっと朝食をとることもできます。
外を眺められる位置にあるので、朝からオシャレカフェに来たかのような気分に浸れそうです。
お部屋は最上階の3階です。マンション前は建物もないので、太陽の光もたくさん入ってきますよ!

洋室は10.4帖の十分すぎる広さです。
さらには2面分のクローゼットと、備え付けのデスクまであります。
リモートワークの今の時代に沿ったお部屋です。

洗面所、お風呂がキッチンの奥にあります。
玄関には全身鏡付きのシューズボックスがあります。
さらに玄関にはハンガーポールがついていて、帰ってきた服をさっとかけることができます。
いつも着るアウターなどを掛けておけるのは便利ですね。

遠州鉄道助信駅までは歩いて9分の位置です。
お部屋も広々の1LDKで、収納力も抜群のこのお部屋で充実した暮らしを始めませんか?

続きを読む

見学したい(無料)

この家で、人生はもっと楽しくなる。

無料
無料

静岡県磐田市見付3044-1

2LDK /86.32m² /2021年01月

磐田市見付の国分寺跡すぐ隣に、なんともおしゃれな戸建が募集されました。
磐田市在住のスタッフも、こんな物件が近くにあったとは!と驚いたものです。

こちらの物件は、おしゃれなハウスメーカーさんが建てられました。
まず外観からして、築年の古い家の多いこの辺りにはめずらしい洒落感。
中に入ってみると、この間取りの面白さ。
こんな間取りはわたくし初めて見ました。
細長い土地をおしゃれにうまく使うためですね。
2階の洋室は凹の形なので、使い方は工夫が必要そう。
お子さまがいらっしゃるご家庭でしたら、子供部屋にいいですね。

設備はさすがのこだわりで、ぜひ現地を見ていただきたい。
LDK壁際にL字に配置されたテレビ台にもベンチにもなる収納棚は、造り付けだからこそのぴったり完璧な仕上がり。
その他、洗面台の装飾やキッチン横のタイル、床の木目やアイアンの階段など、素敵なポイントがたくさんあります。

場所も磐田駅からのジュビロードからまーっすぐの好立地。
お隣の国分寺跡に加え、目の前には地元の人に愛される神社が。
お散歩コースに困ることはありません。
税務署も徒歩数分、市役所までのアクセスもよく、近くにスーパーやコンビニなどもあるかなりのいい場所です。
またすぐ近くに磐田南高校があり登下校の道ですので、毎日学生から活気をもらえますよ!

磐田で戸建をお探しの方、お見逃しのないよう。

続きを読む

見学したい(無料)

江戸の長屋を再現したらこうなる?!

無料
8.5万円

静岡県掛川市高御所1642

2SLDK /84.45m² /2004年07月

掛川市高御所にある賃貸住宅はまるで江戸の長屋を再現したかのような外観。
建物外観から周りの住宅街のなかに、いい意味で浮いてるようなひときわ目を引く建物です。

昔の懐かしい引き戸タイプの玄関を開けると、これでもか!というほどの日本家屋がしっかりと再現されています。

さて、物件を見てみましょう。

12帖のLDKはどこを切り取っても絵になるようなお部屋で、丸いライトがお部屋の雰囲気を高めてますね。
今からでもステキな食卓が目に浮かびます。
美味しいお米をたくさん食べましょう。

奥にはカウンターキッチンがあります。このお部屋からは想像のつかないなんとピンク色です!
キッチンにいくとパッと明るくなるような気がします。
オシャレな部屋を眺めながら作る料理は最高ですね!おいしい料理をたくさん作りましょう!

その隣には6帖の洋室があります。
南向きで日当たりもいいので、くつろぐ空間になりそうです。
LDKにある階段を上ると広めのロフトスペースがあります。
洋室、和室にも収納は付いてますが、こちらにも洋服などをしまえるとなると片付けには困らなそうですね!

その他にも6帖の和室があります。
ここでやる習字はいつもより気合が入りますね。上手に書けそうです。

お部屋についている家具、備品は入居される方にプレゼントされます。
オーナーさんが入居者さまのために気持ちをこめてセレクトされたそうですよ。
お友達を招いた際にはびっくりされそうな、そんなステキすぎる物件です。
和の雰囲気が大好きな方、ぜひ掛川で和に包まれた生活を始めませんか?

続きを読む

見学したい(無料)

あなたとの時間を大切に。

270万円
無料

静岡県浜松市中央区高林5-8-8

/170.92m² /1986年01月

こちらは浜松市を渡る152号線、通称飛龍街道沿いに建つ大きなテナント物件のご紹介です。
大きな看板の飲食店や小売店が立ち並ぶ車通りのとても多いエリアで尚且つ、遠州鉄道 曳馬駅まで徒歩9分のとっても利便性に優れた物件となっております♪

こちらのテナントのポイントはなんと言っても元ショールーム居抜きの内装設備が充実した素敵なデザインの内装!店舗前に8台の駐車スペースと広々とした店舗内は1階のフロアと2階の事務所合わせてなんと170.32㎡!

1Fのショールーム内だけでも大きなテーブルの商談スペースが3カ所も用意されています。
しかもそのうち1つは仕切りのついた個室にもなっちゃうんです!
デザイン性溢れる店内でお客様とゆっくりお話しをすることができます♪

ショールーム中央にはカフェさながらの大きな可愛らしいカウンターキッチンまでついています。
商談中にお客様へコーヒーの提供がすんなり出来てしまうのもお洒落ポイント!

2階は事務所となっていますが、事務所とは別に大きな窓が素敵なホールや客間までついているので大人数での営業でも手狭に感じることはなさそうです。

屋上看板とロードサイド看板が大きく目立つ位置に設置してあり交通量も多い場所なので新しい物好きな浜松人への路面店としての利点もバッチリです♪

飲食店は残念ながらNGですが、お客様との商談スペースが多く用意されているのでそのような業種なら他とは一味違った営業ができそうです♪
お洒落な写真屋さんなんかも映えそうです。雑貨屋さんやギャラリースペースなんかも良さそうですね。
そのほかの業種もご相談ください。

内装の写真は可愛いらしい部分が多過ぎて全部載せきれませんでした・・・
360°viewにて様々なこだわりをぜひ見つけてみてください。

大切なお客様との時間を可愛らしい空間で過ごしたい。そんなお店を夢見るあなたに是非とも一度ご覧になって頂きたいです!ぜひご検討ください。


365LIFEでは賃貸仲介とともに、お店のコンセプト作りから内装デザインまで一貫して承っております。
ぜひ事業内容をお聞かせください。
掲載以外の物件もお取り扱い可能です。
ご相談お待ちしております。

続きを読む

見学したい(無料)

【戸建】Dinner with family

34万円
17万円

静岡県浜松市中央区和合町1048-9

5SLDK /130.32m² /2017年07月

こちらの物件は和合町の閑静な住宅街に建つ一軒の戸建てのご紹介です。

このおうちのポイントはなんと言っても充実した設備!セントラルヒーティングという、一箇所に給湯器熱源装置(ボイラーなど)を設置して、熱を暖房が必要な各部へ送り届ける暖房方式を採用しているので、年中快適な室温でお過ごしいただけます♪

間取りは広々22.3帖のLDKがありながらなんと5SLDK。
お部屋に入ってまず驚くのがゴージャスなリビングとおっっっっっっきなアイランドキッチン!
おおきな備付食器棚や食器洗い乾燥機のついた自宅のキッチンとは思えないほどのシステムキッチンはあなたをシェフに変身させてくれるでしょう。
お料理の苦手な方もこのキッチンでなら、きっと克服できるはずです♪

洗面所に足を運ぶとリゾートホテルさながらの2ボウルついた洗面台がお出迎え。
綺麗な一坪風呂ではお風呂に浸かりながらお好きな音楽を流せるようにもなっています。

2階には4部屋の洋室とホール部分には天窓のついた書斎スペース♪
大きなウォークインクローゼットまでついた主寝室に、デザイン窓が可愛らしい洋室等、部屋割りで揉めかねない魅力がたっぷり!

広々とした玄関の隣にはなんと、たかーい天井のシューズクロークが!
ご家族全員分の靴だけでなくアウトドア用品や自転車まで置けそうな広さでした。

BBQやガーデニングの甲斐あるリッチな専用庭。外にも収納用倉庫があるのでBBQもガーデニングも用品で溢れることはなさそうです♪
綺麗に整備された石畳と人工芝のお庭はお子様や大人の方でも安心してのんびりとした時間が過ごせます。

このおうちの魅力を最低限ご説明しただけでこのボリューム・・・!
広々5SLDKにリッチな大きい専用庭までついて、ここまでの充実設備が揃った賃貸のおうちはめったに見られません!!少しでも気になった方はぜひ早めにお問い合わせください。

掲載している写真はお家の中のほんの一部だけです。こだわりポイントが多すぎてすべて載せきれませんでした・・
ぜひ360°viewでこちらのお家の細かいところまでチェックしてみて下さい♪

続きを読む

見学したい(無料)

家族みんなで、ただいま!

25万円
12.5万円

静岡県浜松市中央区頭陀寺町353-9

3LDK /83.62m² /2020年06月

浜松市南区頭陀寺町にある戸建の物件のご紹介です!
芳川のほとりに建つオシャレな外観のこのおうちは、家族で暮らすのにピッタリです。

白とグレーの落ち着いた色でまとめられたLDKは16帖の広さ。
玄関を入ると絶対にLDKを通るつくりになっているため、家族の顔をみてただいま!が言えるおうちです。
キッチンは少し奥にあるつくり。
カウンターキッチンで親子並んで料理ができそうな広々すぎるスペースです。
その隣には収納があります。
家族で暮らすと荒れがちなキッチンもここに綺麗に収納して片づけることができそうです。

その隣の扉を開けると水回りが集結しています。
扉を開けると、洗面台の大きすぎる鏡に圧倒されました。
お風呂は足を伸ばせる広々浴槽。
浴室乾燥もついているので梅雨の時期の洗濯物もへっちゃらです。
トイレには手洗い場、窓付きで文句なしです。

2階へ上がると3つの洋室があります。
全洋室にクローゼット完備です!
洋服の片付けも困りません!

バルコニーがない代わりに、1階にはウッドデッキがあります。
周りを囲まれているので外からの視線を気にする心配はなさそうです!
家族でゆっくり日向ぼっこするにもいいですね。
ウッドデッキからLDKにつづく窓も大きいため、たくさんの光をLDKに取り込めそうです!

家族みんなで仲良く暮らすならこのおうちで決まりです!

続きを読む

見学したい(無料)

【ガレージハウス】街中近くに募集出ました!

15万円
無料

静岡県浜松市中央区鴨江4-10-12

1R /57.24m² /2005年03月

浜松市中区鴨江にガレージハウスの募集が出ました!
浜松駅まで歩ける距離で、駐車場2台目も確保可能、この賃料はお手頃ではないでしょうか?
※管理会社さんの写真をお借りして掲載しております。

駅までのアクセスがいいガレージハウスをお探しの方、お見逃しなきよう!

続きを読む

見学したい(無料)
FULL

\速報/【新築ガレージハウス】もう間もなく!!!

8.3万円
8.3万円

静岡県浜松市中央区神田町216

1SLDK /72.87m² /2022年08月

速報です!!
浜松市中区神田町に、8月完成予定の新築ガレージハウスの募集が出ました。

まだ情報が少ないですが、ネット無料、宅配ボックス付き、3口ガスコンロ、追い焚きなど、設備も充実しているよう。

ガレージハウスの難点と言えば、収納が少ない場合が多いということ。
このお部屋は6.62㎡(4帖)のロフトがありますので、大きなものもしまえそうですね◎

浜松市中区で10万円以下のガレージハウスをお探しだった方、お見逃しなく!!!
ガレージハウスは早いもの勝ちですよ。

続きを読む

見学したい(無料)
FULL

\速報/【新築ガレージハウス】もう間もなく!!!

8.3万円
8.3万円

静岡県浜松市中央区神田町216

1SLDK /72.87m² /2022年08月

速報です!!
浜松市中区神田町に、8月完成予定の新築ガレージハウスの募集が出ました。

まだ情報が少ないですが、ネット無料、宅配ボックス付き、3口ガスコンロ、追い焚きなど、設備も充実しているよう。

ガレージハウスの難点と言えば、収納が少ない場合が多いということ。
このお部屋は6.62㎡(4帖)のロフトがありますので、大きなものもしまえそうですね◎

浜松市中区で10万円以下のガレージハウスをお探しだった方、お見逃しなく!!!
ガレージハウスは早いもの勝ちですよ。

続きを読む

見学したい(無料)

【猫可】愛ねこちゃんのために!!

無料
無料

静岡県浜松市中央区十軒町681-1

2LDK /63.40m² /1989年06月

大変貴重な、ねこちゃん飼育可物件出ました!!
間取りは2LDK、リビングは14帖あるのでかなり広々。
南向きで日当たりもいいので開放感ばっちりです。

外観はちょっと歴史を感じますが、中に入ればぴかぴかのリノベーション部屋。
こんなきれいなお部屋を誰が想像したでしょう。
白を基調として、ポイントにダークブランを使った、落ちついた配色です。
お部屋、収納、脱衣所、玄関までも広々としていて、ゆったりのびの~び暮らせるお部屋です。

さらに曳馬駅までは徒歩12分の駅チカ。
周辺にはコンビニやドラッグストアなどの施設が充実しているので買い物も近くで済ませられます。
公園も目の前にあっていい環境です。

ペット可というだけでも賃貸物件はぐっと少なくなり、ねこちゃん可にするだけでもっともっと候補が目減りしていく中、中区・2LDK・ぴかぴかリノベーション・駅チカなんて、こんな好条件は見逃すわけにはいきませんよね。
さあ大好きなねこちゃんとの暮らしを始めましょう!

続きを読む

見学したい(無料)

幸せを運ぶ店舗に

151.8万円
無料

静岡県浜松市中央区幸1-15-27

/132.67m² /1982年08月

中区幸にあります、前面ガラスの路面店のご紹介です。
2つの国道に接続する、車通りのしっかりある道路に面しています。
敷地内に4棟店舗が連なっており存在感があります。
他のテナントは理美容室、学習塾、脱毛サロンなどでした。
駐車場は店舗前に3台しっかり確保されています。

外観は黒いキューブ型。
ガラスの外からでも目立つのは、店舗の奥にある煉瓦風の壁!
これ壁紙かと思いきや立体的なのです。
内見時に近づいて見てください。
フロアは広々としてどうとでもアレンジできそう。
床はグレーのマット敷になっています。

1階の2つの扉は、それぞれ簡易給湯室と裏口に繋がる通路、洗面とトイレに繋がっています。
トイレは綺麗ですが、お客様にご利用いただくようなら洗面スペースはリフォームしてもよさそうです。

レトロモダンな感じのかっこいい階段を上って2階に行ってみましょう。
窓が壁一面にあり、採光ばっちりの明るいフロアが広がります。

2階奥には1階よりも広めのスタッフスペースが完備。
休憩もゆったりと取ることができます。
ガスコンロが設置可能なキッチンがありますので、簡易調理も可能です。
キッチンはブラインドで隠しておくことができます。

幸だけに、お客さまに幸せを届ける店舗を始めませんか??


365LIFEでは賃貸仲介とともに、お店のコンセプト作りから内装デザインまで一貫して承っております。
ぜひ事業内容をお聞かせください。
掲載以外の物件もお取り扱い可能です。
ご相談お待ちしております。

続きを読む

見学したい(無料)

四角いオフィス

15.4万円
7.7万円

静岡県浜松市中央区丸塚町543-19

/24.92m² /1988年07月

コストコ、イオンモールなどが集まる、浜松でも賑わうエリアの近くでの募集です!
3階建てのビルのなかの1階が今回募集のある貸事務所になります。
柳通りから北へ少し走るとすぐにあるので交通の便もいいです◎
近くには事務所として構えているような場所が多く、さらには学習塾まであります。

気になる中はシンプルな四角のBOXの様な事務所スペースです。
広さも24.92㎡でコンパクトサイズ。
そんななかでも道路に面したガラス扉からお客様をお出迎えすることができます。
従業員用と分けられるのは便利なポイント。
扉もガラス張りで中の様子が分かるので重い印象がないです!

トイレ、キッチンは共用になります。
キッチンはガスコンロの設置がなかったのであまり実用的には使え無さそうです。
トイレは男女で分かれているので嬉しいですね!

ビル全体も窓が多く、爽やかな印象の建物です。
ぜひここでお仕事に励みませんか?

続きを読む

見学したい(無料)

20帖のLDKにも!自分だけのお部屋づくり!

無料
無料

静岡県浜松市中央区天王町771-7

2LDK /64.00m² /2015年03月

この物件、シンプルな2LDKのお部屋ではありません!
お部屋のなかはまず14帖のLDKから。
白が基調のシンプルなお部屋です。
そんな白のお部屋の中にある黒いキッチンが一気に引き締めてくれてバランスが最高にいいです◎
さらにはカウンターキッチンになっていますので、カウンター部分にイスを置いたりしてサッと食事を取ることも可能です。
リビングにいる人とお話しできるのもいいところですね!

このお部屋の最強なポイントです。
LDK隣には6帖の洋室があります。
扉で仕切られているのでこの扉を開けておけば、なんと超広々20帖のLDKとしての使い方も!!
ここを広々使っても、まださらに7帖の洋室が残っていますので安心です。
もちろん扉を閉めてスッキリ使うのも大賛成です。
来客時だけ閉めてキレイに見せることもできますね。
使い方はあなた次第で無限大です!

お風呂の浴槽は一坪風呂で広々。
足を伸ばして入れるお風呂ほど幸せなものはありません。
1日の疲れをここで全て落としてあげましょう!

玄関にあるシューズボックスは全身鏡付きの縦に長い形。
たくさんの靴を収納できます。
この自由自在な使い方ができるお部屋で暮らしてみませんか?
あなただけのお部屋作り始めてみましょう!

続きを読む

見学したい(無料)

電車の音を聞きながら

19万円
無料

静岡県浜松市中央区天龍川町303-3

2LDK /61.78m² /1993年12月

東海道本線天竜川駅の目の前に建つ14階建てのマンションです!
今回ご紹介するお部屋は2階になります!
まずLDKの開放感に驚きます。
南向きに設けられた3つの窓からはもう目の前に天竜川駅が。
ほんとうに目の前なんです。
LDKには備え付けの棚があります。
テレビ台として使うのに便利そうです!

そんなLDKの隣には6帖の洋室があります。
扉で仕切られているので空けておけば更に開放感抜群になります。
さらにもうひとつ5.6帖の洋室があります。
どちらのお部屋もクローゼット付きですので洋服をたくさん持っている女性でも安心です。

キッチンスペースにはさらにまた収納が。
洗面所にもまたまた十分すぎる棚があります。
洗面所に備え付けの棚があるのはなかなか無いところが多いので便利なポイントですね。

天竜川駅がすぐのお部屋。
通勤にも便利ですし、休日のお出かけにも便利な駅チカなお部屋いかがでしょうか?

続きを読む

見学したい(無料)

家族で過ごすおうち。

20万円
10万円

静岡県浜松市中央区篠ケ瀬町951-1

3LDK /79.48m² /2011年02月

家族みんなで暮らすのにぴったりな戸建てのおうちです!
LDKは16帖で広々です。
大きな窓からはたくさん太陽の光が沢山入ってきそうです。
キッチンは料理が楽しくなっちゃうカウンターキッチン!
スペースも広々で親子並んで料理することもできそうです。
カウンター上のライトがオシャレで、LDKのオシャレポイントです。

2階には3つの洋室があります。
各洋室にはクローゼットが付いていますので、洋風の収納には困りません。

水回りは1階にあります。
お風呂は足を伸ばして入れる浴槽です。仕事で疲れた体をここでいたわりましょう。
階段下を利用したトイレは玄関入って直ぐにあります。
トイレにある棚は何かと便利ですね。

2階にはバルコニーがありますが、1階にはなんと庭が付いています!
休日は家族みんなでBBQで決まりです!!

続きを読む

見学したい(無料)

WHITE HOUSE

24万円
無料

静岡県浜松市中央区大蒲町80-4

3LDK /83.05m² /2019年01月

誰もが住みたくなるようなまっしろな戸建のご紹介です!
15.4帖のLDKはこれまでにないぐらいのまっしろさ。
高級感が漂うようなお部屋です。
ダウンライトが一層オシャレにしてくれています。
昼間は大きな窓からはいる太陽の光でポカポカ気分で、夜はダウンライトで落ち着いた印象に。
どちらの雰囲気も最高にオシャレですね!

そんなLDKを眺めることのできるカウンターキッチン。
スペースもゆとりがあって、庭に通じる勝手口付きです。
大きな窓からは、ウッドデッキを眺めることができるので開放感も抜群です。

2階に上がると3つの洋室があります。
各洋室にはクローゼットが完備されているので、片付けも安心です。

さらに玄関には大容量すぎるシューズボックスつきです。
家族の分がスッキリ収納できます。

近くにはコストコ、イオンなどがあったりと便利なところです。
まっしろなおうちで家族で浜松ライフを始めませんか?

続きを読む

見学したい(無料)

休日は家族みんなでベランピング!

45万円
15万円

静岡県浜松市中央区三組町40-1

4LDK /78.95m² /2005年03月

浜松市中区三組町にある4LDKの広々とした分譲賃貸マンションのご紹介です!
4LDKのお部屋。それだけで広くていいなと思いますがこのお部屋それだけではありません。
なんと超広い大型ルーフバルコニー付きなんです!
ゆっくり日光浴するも良し、星空を眺めるのも良しですね。
使い方は無限大です!

LDKは11帖の広さです。南向きの窓が大きく、開放感が抜群なのでのびのび暮らせることができそうです。
6階なので陽の光もたくさん入ってきそうですね!
キッチンはそんな窓を眺めながら料理のできるカウンターキッチンです。
後ろには備え付けの棚があります。またこの棚が超大容量なので家族の食器などもこれ一つでまかなえそうです。

LDKの隣には6帖の和室があります。
こちらも南向きなので畳でゴロゴロできそうです。
そのほかにも3つの洋室があります。
和室ももちろん、洋室にはすべての部屋に収納がついているのもうれしいところです。
お部屋だけでなく、廊下、洗面所などにも備え付けの棚があったりと片付けには困らなそうです!

お風呂は足を伸ばせる広々浴槽です。
1日の疲れをお風呂で癒しましょう。
洗面台はなんと2つついてます!
家族で暮らすときには争奪戦になりがちなので嬉しいポイントですね!

休日は大型ルーフバルコニーでchillで決まりです!
家族みんなで仲良く暮らしましょう!

続きを読む

見学したい(無料)

【新築】浜松市和合町に新築一戸建て賃貸!!

27.8万円
13.9万円

静岡県浜松市中央区和合町936-121

3LDK /91.91m² /2022年07月

たった今建築中の、浜松市和合町のぴっかぴか新築戸建て貸家のご紹介です。
お待たせいたしました。建築途中の写真をいただいたので、公開いたします!

18.5帖の広々LDKや、人気の対面式キッチン、一坪風呂、やテラスなど高機能を兼ね備えております。
そして、なんと大きなテラスまで!テラス横には目くらの植物も植えられるので人の目を気にせずにお洗濯が出来ちゃいます♪

駐車場も建物前に並列で2台停められます。
生活に車必須の浜松市在住家族には嬉しいですね。

新築の戸建て賃貸でありながらペット飼育も相談可なのは驚きです(・□・;)

充実設備の家族みんなでのんびり過ごせるおうち。早い者勝ちです。
気になる方はぜひお問い合わせを!

続きを読む

見学したい(無料)

【速報!】浜松市和合町に新築一戸建て賃貸!!

26.4万円
13.2万円

静岡県浜松市中央区和合町936-121

3LDK /87.77m² /2022年07月

たった今建築中の、浜松市和合町のぴっかぴか新築戸建て貸家のご紹介です。
お待たせいたしました。建築途中の写真をいただいたので、公開いたします!

16.0帖の広々LDKや、人気の対面式キッチン、一坪風呂など、高機能を兼ね備えております。
そして、なんと大きなバルコニーまで!目くらの壁も高めに設計されているので人の目を気にせずにお洗濯が出来ちゃいます♪

駐車場も建物前に2台停められます。
生活に車必須の浜松市在住家族には嬉しいですね。

新築の戸建て賃貸でありながらペット飼育も相談可なのは驚きです(・□・;)

充実設備の家族みんなでのんびり過ごせるおうち。早い者勝ちです。
気になる方はぜひお問い合わせを!

続きを読む

見学したい(無料)

【速報!】浜松市和合町に新築一戸建て賃貸!!

27万円
13.5万円

静岡県浜松市中央区和合町936-121

3LDK /95.22m² /2022年07月

たった今建築中の、浜松市和合町のぴっかぴか新築戸建て貸家のご紹介です。
お待たせいたしました。建築途中の写真をいただいたので、公開いたします!

16.0帖の広々LDKや、人気の対面式キッチン、一坪風呂など、高機能を兼ね備えております。
そして、なんと大きなバルコニーまで!目くらの壁も高めに設計されているので人の目を気にせずにお洗濯が出来ちゃいます♪

駐車場も建物前に並列で2台停められます。
生活に車必須の浜松市在住家族には嬉しいですね。

新築の戸建て賃貸でありながらペット飼育も相談可なのは驚きです(・□・;)

充実設備の家族みんなでのんびり過ごせるおうち。早い者勝ちです。
気になる方はぜひお問い合わせを!

続きを読む

見学したい(無料)

浜松市和合町に新築一戸建て賃貸!!

28.8万円
14.4万円

静岡県浜松市中央区和合町936-121

3LDK /95.22m² /2022年07月

たった今建築中の、浜松市和合町のぴっかぴか新築戸建て貸家のご紹介です。
お待たせいたしました。建築途中の写真をいただいたので、公開いたします!

16.0帖の広々LDKや、人気の対面式キッチン、一坪風呂など、高機能を兼ね備えております。
そして、なんと大きなテラスまで!テラス横にお家はなく、目くらの植物も植えられるので人の目を気にせずにお洗濯が出来ちゃいます♪

駐車場も建物前に並列で2台停められます。
生活に車必須の浜松市在住家族には嬉しいですね。

新築の戸建て賃貸でありながらペット飼育も相談可なのは驚きです(・□・;)

充実設備の家族みんなでのんびり過ごせるおうち。早い者勝ちです。
気になる方はぜひお問い合わせを!

続きを読む

見学したい(無料)

ザ!シンプル!

34.5万円
無料

静岡県浜松市中央区上西町62-8

/47.56m² /2000年12月

浜松市上西町貸事務所のご紹介です!
1つの建物に6つの事務所が集まっているようなテナントです。
中がシンプルな、ザ事務所スペースということもあるため同じ建物内でも事務所として構えている方が多いです。
周りは住宅街が多く、お店でにぎわっているという雰囲気ではありません。
ですが、建物反対側の芳川の通り沿いは車通りがかなりあります。
大通り沿いではなくても、1本入ればすぐに分かりやすい場所にあります。

中はかなりシンプル。
白で清潔感もあるため仕事がはかどりそうですし、自分の好きなように店構えを作ることも可能です。
シンプルのいいところは自分流に変えられるところですね!

入口からちょうど死角になっている場所にはキッチンがあります。
コンパクトサイズなので簡単な調理ならここでできそうです。
その奥の扉をあけると洗面台、トイレがあります。
トイレは窓付きなので明るい印象です。

店舗入り口が一面ガラス張りになっているため、外からも見えるのが安心できますね。
会社の名前を宣伝するのにピッタリの扉です。

近くにはコストコ、イオンモールがあるため車の通りが多いエリアです。
看板などを設置したらあっという間に知名度は広まりそう!!

縦列ですが、車を6台置ける駐車場も魅力的。
東区の商業エリアの近くに、事業拠点を構えてみては?


365LIFEでは賃貸仲介とともに、お店のコンセプト作りから内装デザインまで一貫して承っております。
ぜひ事業内容をお聞かせください。
掲載以外の物件もお取り扱い可能です。
ご相談お待ちしております。

続きを読む

見学したい(無料)
FULL リノベ済み 360VR

Tの形の正体とは…!

26.4万円
無料

静岡県浜松市中央区新津町3-4

/52.40m² /1988年09月

こちらはTの形をした変わった形のテナントです!
隣には学習塾、美容室、飲食店が揃っていて、交通量も多い道路に面しています。
さらに建物の形が変わっていることもあって道路からもパッと見つけやすいのが嬉しいところですね。
遠州鉄道八幡駅からは徒歩9分の距離です。
車を持っていないと不便な浜松市では比較的駅チカの部類に入るんではないでしょうか。

事務所スペースのなかは外観からは予想もしなかったオシャレなスペースです。
青色の壁紙に木目調の床の事務所スペースはダウンライトで照らされてとってもオシャレな空間。
トイレは1階のみです。
2階に上がると東側の道路に面している部分が一面窓になっています。
窓からは目の前を走る赤電が見えたり、電車通りを行き交う車が沢山通ります。
お店の名前を宣伝するには絶好の立地です。

さらにコンパクトサイズですが、キッチンが備わっています。
スタイリッシュなカッコいいキッチンは簡単な調理なら可能です。

2階建ての間取りを活かして、1階はお客様用にしてもいいですし、そのまま受付などにも使用できます。
ただ、飲食店は不可です。

立地の良さを生かし、浜松に名を広めましょう!!


365LIFEでは賃貸仲介とともに、お店のコンセプト作りから内装デザインまで一貫して承っております。
ぜひ事業内容をお聞かせください。
掲載以外の物件もお取り扱い可能です。
ご相談お待ちしております。

続きを読む

見学したい(無料)

『サードプレイス』家族とともに[ペット可]

43.5万円
14.5万円

静岡県浜松市中央区元城町222-27

2LDK /56.26m² /2015.09

人気のハイグレード分譲マンションで知られる『アートフォルム』シリーズ。
久々に募集が始まりました!

ここの最大の特徴は『街に開かれたライブラリー』空間があること。

街に開かれたというのは、誰でも気軽に入れる空間。もちろん居住者とその関係の人しか使えませんが、いつでも気軽に自分の『サードプレイス』として使っていただけるそうです。

ライブラリーは中央を本棚で仕切ってカウンタータイプのデスク、そして癒しのソファー空間に分かれています。

集中したいときとリラックスしたいときのオンオフを切り替えられるよう設計された空間です。
書籍もアートから建築など豊富。コーヒードリッパーもありますのでスタバではないけどまさに『サードプレイス』です。

更にエントランスに入ってすぐにある『セカンドライブラリー』は大人な雰囲気がステキな空間です。入居者同士、もしくは来客者との語らいの場になりそう。

お部屋は何タイプかありますが、どのお部屋もリビングは床暖房付き。上層階からの眺めはステイタスを感じます。

街中立地でこれほどまでの空間が手に入るのは数少ないと思いますよ。

続きを読む

見学したい(無料)
FULL リノベ済み 360VR

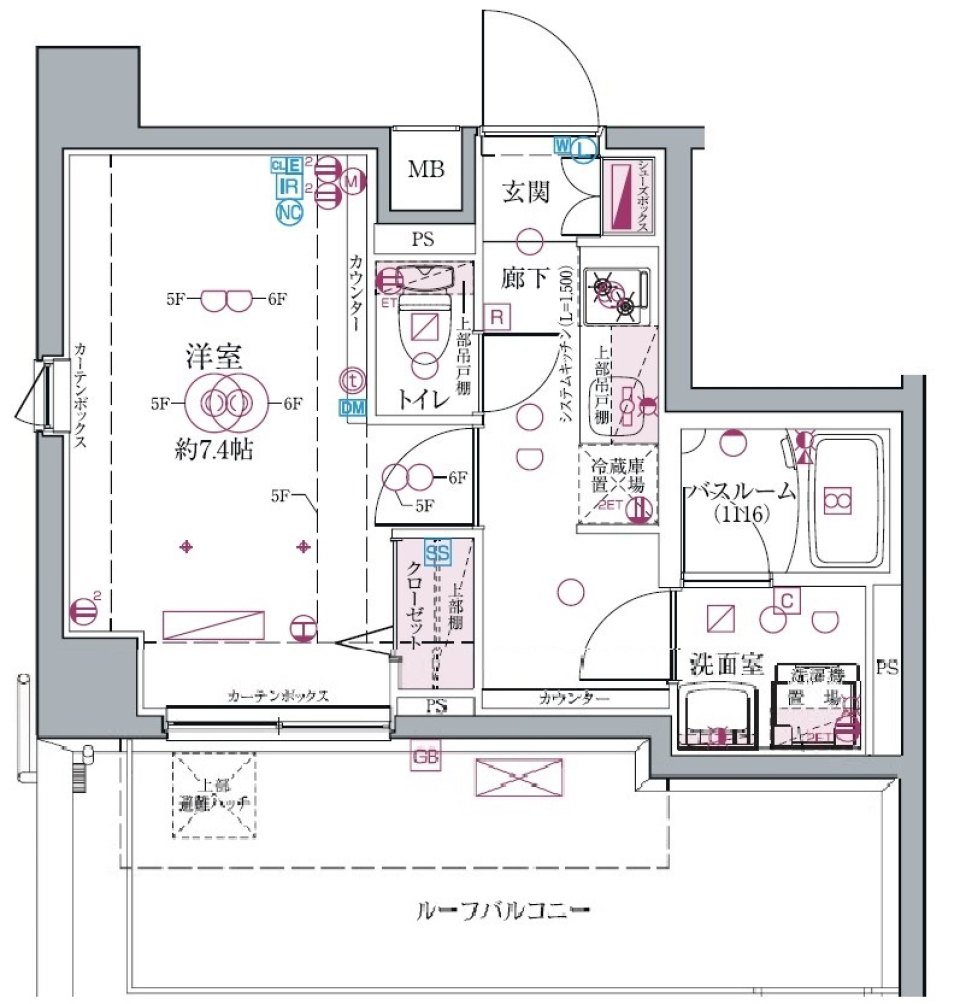
お庭でガーデニング

6.1万円
無料

静岡県浜松市中央区根洗町1360-6

1LDK /59.40m² /1984/3/1

外で遊ぶのが憚られるこの頃、、、
お家で新しい趣味を見つけませんか?

こちらのお部屋にはなんと専用庭が付いています!
1階ならではの特権ですね。
窓3面分の長さがあるので、とっても広々としていますよ。
お庭を使ったガーデニングはいかがでしょう?
新しいお部屋で新しい趣味を始めてみませんか?

リビングは18帖の広さがあります。
3面の窓からたくさんの日光を取り入れ、お部屋を明るく照らします。
キッチンからリビングを見渡すことができるので、お料理をしながらでもリビングの様子を知ることができます。

洋室にはウォークインクローゼットが付いています!
お洒落好きにはたまりません。
LDKからも洋室からもウォークインクローゼットに入ることができる非常に便利な造りです。

新しいお部屋と新しい趣味、充実した生活が始まりそうです。

続きを読む

見学したい(無料)

世界との距離が近くなる! ゲストハウス併設シェア住居

無料
無料

静岡県浜松市中央区曳馬2-1-25

/18.90m²

2015年7月にオープンしたソーシャルアパートの365BASEの1階をゲストハウスにしました。これまでの住人同士のコミュニティーに加えて、旅行者などもそのコミュニティーに加わりました。ゲストハウスは昨年12月にオープンしたばかりですが、旅の外国人も宿泊者の25%程度いまして、これまでに世界各国からいろんな人たちが365BASEに宿泊し、住人との交流も行われるようになってきました。

365BASEは当社で運営しておりまして毎日英語の実践です。浜松でこれだけ英語の環境になるのかというくらい。そして世界中の人と話ができるのはとても刺激になります。

365BASEが目指すのはこの言葉に象徴されています。
『人生とはあなたが出会う人々であり、その人たちとあなたがつくるもの』

一度きりの人生なので多くの人と出会い、見分を広げたり、想いを共有したりすることが大切だと思っています。

また、全室ホテルのように家具家電付きにしました。
そして契約スタイルも長期契約と短期契約で選べるようになりました。
なので気軽にお引っ越しができ、世界との距離が近い生活をお楽しみ頂けます。

~料金プラン~
長期でお住まいになりたい方におススメ

1年契約 家賃49,000円
2年契約 家賃46,000円
※その他共益費、水道光熱費等は別途掛かります。

出張などの短期利用におススメ

7日~13日の短期滞在   4,800円/日 
14日~30日の短期滞在  3,800円/日
31日以上の短期滞在   3,300円/日
※水道光熱費は滞在費に含まれます。
※リネン交換及び室内清掃が必要な場合は別途1,200円の清掃費用を頂きます。

もちろん、ちょっと特殊な物件なので普通の一人暮らしを考えている人にとっては不向きな部分もあります。なのでご案内させて頂くときにしっかりとご説明させて頂きます。

ちょっとでも興味がある方は見に来るだけでも大歓迎です。きっとあなたの知らない世界がここにありますよ!

続きを読む

見学したい(無料)
FULL

自分の色で彩る新生活。壁紙チョイスはあなたセレクト!

無料
無料

静岡県浜松市中央区佐鳴台2-17-8

/64.04m²

佐鳴湖の近くにあるファミリー向けの賃貸マンションのご紹介です。


玄関扉を開けてすぐ目に入るのは玄関の床!
ピカピカの石の質感が高級感あり。
廊下にすりガラスがあり玄関回りが明るくなりオシャレな印象。

こちらインターネットが無料で使え、
脱衣所には電気温水器が設置されていて光熱費が節約ができます。

リビングは15.5帖もありますが凹凸があるため狭く感じます。
しかし凹凸によってそれぞれ独立したスペースとして使うことができて面白い間取り
今なら壁紙は希望にあわせて張ることができるので自分のお気に入りの色をセレクトしては如何でしょう?

全体的にシックな印象なこちらのお部屋
貴方ならどの色をプラスしますか?

続きを読む

見学したい(無料)

GIARDINO

26万円
13万円

静岡県浜松市中央区助信町28-2

3LDK /86.12m² /2007年03月

庭付きの物件をお探しのあなた、
条件ピッタリの物件のご紹介です!!

こちらは助信町にある3LDKの間取りの物件になります。
2階には洋室が3部屋あるので、大家族でも安心です!

LDKは陽当たりがよく、16.3帖の広さです。
収納スペースも付いており、整理整頓されたリビングルームで過ごすことができます。
キッチンはシステムキッチンで便利な3口コンロが付いております。
キッチンに窓も付いているので、喚起がバッチリとできます。

2階にあるすべての洋室には、ハンガーのまま洋服を収納できるクローゼットが付いております。
お子様の制服や仕事用のスーツや季節物のコートなどをしっかりと保管することができます。
8.5帖と階段の左手奥にある5.3帖の洋室には、なんとロフトも付いております。
お部屋にロフトがあるだけでなんだかワクワクしませんか?
ロフト部分はそこまで広々としていないので、生活スペースとしてはご使用できませんが、収納スペースとしてはばっちりとご活用することができます!

庭はLDKの目の前にあり、リビングルームから素敵なお庭を鑑賞することができます♪
庭のスペースにも余裕がございますので、お花はもちろん、旬のお野菜を栽培することもできます。

ステキなお庭生活をここから始めてみてはいかがですか~

続きを読む

見学したい(無料)

【新築戸建】家族みんなで磐田LIFE

無料
無料

静岡県磐田市安久路1-18-9

/69.56m²

こちらの物件は2022年3月に建てられたばかりの新築のおうちです!
一戸建てですので家族でのびのび暮らすことができます。

おうちのなかももちろんピカピカです。
1階には12.5帖のLDKがあります。
背の高い窓で開放感抜群。真ん中にはドンとキッチンがあります。
大きな窓から外の景色を眺めながら、リビングにいる人たちと楽しくお話をしながらなど料理がはかどりそうです。

2階へ上がると2つの洋室があります。
4.5帖と6帖の洋室どちらも南向きのお部屋なのがうれしいポイントです。
クローゼットはもちろんどちらのお部屋にもついています!

さらに2階には珍しいお風呂があります。
浴室乾燥もついているので便利です。
洗面所ともに窓付きで換気もバッチリできそうです。

玄関横には超大容量シューズクロークがついています!
家族みんなの分も、ちょっとした荷物もここに収納できそうなスペースの広さです。

周りは閑静な住宅に囲まれています。近くにはヤマハスタジアムがあるのでジュビロファンのかたはぜひ!
家族みんなで磐田LIFEをたのしみましょう!

続きを読む

見学したい(無料)

非日常。ペチカ。【戸建】

無料
無料

静岡県浜松市中央区萩丘3-1-13

2SLDK /58.00m² /2005年4月

浜松市中区萩丘の閑静な住宅地に建つ珍しい戸建の賃貸物件のご紹介です。

まず玄関を開けてびっくりするのは大判タイルが施された床にペチカ風の装飾!!
ペチカとはロシアのアンティークストーブの事。
このおうちのペチカは装飾ですがインテリアスペースとしてはこれ以上ない場所ですね♪
内装の外観とのギャップとあまりの可愛らしさに思わず笑顔になってしまいました。

ログハウスのような雰囲気が素敵な2Fの7帖洋室。
床のフローリングの木目が柱や所々に使われている立派な材木とマッチしてとっても可愛らしい内装に仕上がっています。

さらに2Fには吹き抜けの上に5.5帖のロフトまでついているんです!
ロフト上部では168㎝の筆者が立ち上がっても頭が付かないほど天井に余裕がありました。
広さや収納も申し分無しのロフトは中々お目にかかれません!

近隣には、スーパーやコンビニ、金融機関、など生活に便利な施設が充実しており生活利便性もバッチリです♪

一つだけマイナスな要素があるとすれば、家に入るための目の前の道がかなりの急こう配になっているので自転車等の乗り物は少し大変かと思われます。
ですが高台の上に建つおうちなので目の前を遮るものはほとんどありません!
浜松市内を見渡せるviewポイントがお家にあるのは心おどりますね♪

他のリノベーション物件等でも似たものは中々見かけません。
この内装は普通の物件に飽き飽きしていたあなたにきっと刺さるはず!
ぜひ360°viewで可愛らしい内装を隅々までチェックしてみて下さい。

続きを読む

見学したい(無料)

コーヒー片手にまったりTIME

無料
無料

静岡県浜松市中央区早出町231-7

1LDK /44.62m² /1986年3月

お部屋に入ってひとこと、「カフェみたい!」
ホワイトウッドのクロスを使ったカウンターに、煉瓦風のアクセントクロス、おしゃれな照明、、、
ヴィンテージ風の内装がかわいらしいお部屋です。
キッチン背面にあるカウンターでは、インスタントコーヒーではなく豆から挽いたコーヒーを飲みたくなっちゃいます。

LDKは約12帖、ダイニングテーブルとソファ両方置いても大丈夫そうです。
カウンターにハイチェアを置いてダイニングテーブルにすれば、リビングスペースを広く使うこともできます。
ヴィンテージ家具やグリーンが似合いそうな空間です。

洋室は5.5帖、シンプルな白いお部屋です。
壁にオープン収納があります。

2人暮らしの場合は収納が少し足りないかもしれません。
お部屋にもマッチしそうな、アイアンラックやヴィンテージチェストを追加するのもおすすめです。

最寄りは遠州鉄道曳馬駅、徒歩16分です。
建物目の前には公園があり、緑が感じられるのもいいですね。

続きを読む

見学したい(無料)

みんなの大好き詰め込んで【バイクガレージ付き一軒家】

無料
無料

静岡県浜松市中央区植松町157-4

/108.48m²

バイクファンの皆様お待たせしました!
浜松市東区植松町にビルトインバイクガレージ付きの一軒家の登場です♪

ガレージ幅 3,470㎜ 奥行 2,570㎜
シャッター入口幅 2,300㎜ 高さ 1,670㎜

と大型のバイクでも余裕を持った駐車のできるバイクガレージ!
さらに!なんと奥にある広々とした20帖のLDKについた窓からガレージ内が見える内装?
これだけでもバイク好きにはたまらないおうちであることが分かってもらえると思います。

4LDKでお部屋の数も多くの収納もバッチリ!
さらにさらにこちらのおうちは炎を使わず空気やキッチンを汚さないオール電化仕様のシステムキッチンなので日々のお料理が楽しくなっちゃいます♪

ご家族みんなの幸せをいっぱいに詰め込めるおうちで瀟洒な暮らしを楽しんでみてください。

続きを読む

見学したい(無料)

【賃貸でも募集が出ました!】高林 望みの家

無料
無料

静岡県浜松市中央区高林2-4-1

/101.32m²

街を、緑を、空を遠く富士山を、星を、夜景を…未来を。
それぞれの窓からはそうしたさまざまな望みを愉しめる時間があります。
コンパクトな家でありながらフロアごとに豊かな表情を醸しています。
そんな想いをコンセプトに建てられた、『望みの家』

影が表情をつくる白い鎧張りの外壁
木肌がきれいな広葉樹セランガンバツの軒天井が特徴的
チラリと主張するところがカッコ良いです
お車は2台駐車可能です

開放的なキッチンは製作ステンレス製
そこに立つだけでテンションが上がりそうだな
お料理が愉しめる空間です
造作食器棚にはなんでも収まるほどの大きさ◎感動です
広々リビングは家族の中心の間
肌ざわりのいいナチュラルな桜の木の床
とても落ち着いた空間になってます
一家団欒の賑やかな時間が流れることが想像できました
ワークスペースとして、お子様の勉強デスクとしての空間
少し奥まっているので、静かで落ち着いたスペースになってます
壁は描いたり貼ったりできるクロスには
お子さまの絵やスケジュール表を貼り付ける、など想い想いにどうぞ
南面には建物がないので陽当たりも良好!
3階のお部屋からは緑、街、お天気がいいと富士山
さまざまな景色が望めます

戸建てだけどお庭が無い。
前面道路は主要幹線道路なので、交通量が割と多め
お車の駐車には少し困難。その2つぐらいでしょうか。
閑静な住宅街と利便性の良い二俣街道沿い建つ
助信駅まで徒歩9分、浜松駅までは2キロと街中へのアクセス良好!

必要なものを必要なだけ 最小にして最大の空間
室内は外観から想像つかないほど広く開放的な間取り
多種多様な生活を。。。

続きを読む

見学したい(無料)

美容室やエステ向けのテナントです!

49.5万円
16.5万円

静岡県浜松市中央区佐鳴台5-26-1

/72.00m² /1976年09月

住居区域として人気の高い佐鳴台を渡るホワイトストリートは浜松市博物館へと続く通りでお店が数多くあり交通量も多い道です。
そんなホワイトストリート沿いに建つこちらの物件のご紹介です♪

すぐ近くにある佐鳴湖は浜松市民や地域住民の憩いの場所です。
周囲には多くの公園や憩いのスペースがあり、ジョギングや楽器の演奏を楽しむ方々を始め、春は桜、夏は新緑、秋は紅葉、冬は野鳥の観察等と様々な季節の楽しみもあります。

気になる物件の内装は壁一面の大きな窓が特徴の、72㎡長方形のシンプルな内装の事務所です。
美容・健康・介護、教育・スクール、向けの内装になっております
清潔感のある事務所で仕事や勉強もはかどりそうな、そんな感じがします!

ホワイトストリートを通る車からも良く見える人気の立地であなたのお店を始めてみませんか?
熱心に仕事に取り組むならまずは場所から!
ぜひこの陽の当たる明るいオフィスでバリバリ仕事に打ち込みましょう!!

365LIFEでは賃貸仲介とともに、お店のコンセプト作りから内装デザインまで一貫して承っております。
ぜひ事業内容をお聞かせください。
掲載以外の物件もお取り扱い可能です。
ご相談お待ちしております。

続きを読む

見学したい(無料)

憧れのトレーラーハウス【購入もご相談可!】

5.5万円
5.5万円

静岡県磐田市中泉2462-4

1R /20.65m² /2020年12月

磐田市中泉の磐田細江線と呼ばれる2617号線沿いに建つ事務利用可のトレーラーハウスです。
建物前にしっかりと駐車スペースがしっかり確保されておりクールな外観を際立たせます♪
運転の苦手な方も多い若い女性やお年寄りの方を客層とするお店では、嬉しいポイントになるのではないでしょうか?
築1年の未入居物件なのでほぼ新築と言ってもいいですね!

入口はトレーラーの奥側にあり道路側からは見えないようになっています
内装はシンプルな20.65㎡の長方形。
癖のない内装になっているのでそのままオフィスとして使うのもありですし、仕切りを設置しサロンや物販、各種スクールなんかにもいいですね。
あなたのオリジナリティを表現しましょう!

365LIFEでは賃貸仲介とともに、お店のコンセプト作りから内装デザインまで一貫して承っております。
ぜひ事業内容をお聞かせください。
掲載以外の物件もお取り扱い可能です。
ご相談お待ちしております。

続きを読む

見学したい(無料)

ガレージも、店舗も、住宅も

無料
無料

静岡県浜松市中央区中島3-16-14

/135.06m²

中島の3階建て戸建て賃貸物件のご紹介です。

1階は事務所としての利用もOKで、2階と3階が住居スペースとなっています。
幅4.5 奥行き4.5mのガレージも完備。車2台も余裕です。

1階の事務所スペースには、トイレとミニキッチンも完備。
ガレージと繋がっているお部屋で、ホビールームとしても◎
趣味の道具のお手入れをしたり、ゆったりとした時間を過ごせそう。

2階の20帖を超えるリビングは、陽もよく入って気持ちが良い。
リビングのハシゴはオブジェなんかじゃなく、ちゃんと1階の事務所と繋がっていて
人や物の行き来もできる…かも?

3階には洋室3部屋と和室があり、すべてのお部屋にエアコンと収納があります。
バルコニーも南向き。陽当たりばっちりでした!

ガレージに、事務所にできるフロアと住居フロア。
なかなか遊び心のあるお家です。

続きを読む

見学したい(無料)

【ペット可】鴨江ヴィンテージ

無料
無料

静岡県浜松市中央区鴨江町4-30-7

/38.58m²

鴨江4丁目の坂をのぼったところに佇むおしゃれな外観のアパート。
古いアパートを本格リノベーションしたヴィンテージ物件です。

間取りは1LDKと、仲良く二人暮らしやゆったりと一人暮らしをしたい方におススメ。
ところどころ古さを感じますが、リノベの力で愛着のあるおしゃレトロな空間に仕上がっています。
さらに嬉しいのはペット小型2匹まで飼育可能というところ。2匹OKなところはとてもレアですよ。

リビングルームとダイニングスペースは分けて使用することができます。
洋室は6帖の広さで、ベッドや仕事用のデスクを置くことができます。
収納スペース抜群の押し入れも完備されており、洋服や普段使わないものをバッチリと収納することが可能です。

デメリットは専用の駐車場が付いてない点ですが、街中ということもあり、電車やバス、自転車を使って移動する方にはピッタリです。
屋根付きの駐輪場もついておりますので、原付をお持ちの方にも嬉しいポイントです♪

浴槽が付いておらず、シャワー室のみになっています。シャワー派の方にはピッタリですね♪
でもやっぱりお風呂に浸かりたい!そんなときはぜひ銭湯へ行ってきてください~
大好きなペットちゃんと暮らしたい方はぜひお問い合わせください!

続きを読む

見学したい(無料)

パークサイドライフ

無料
無料

静岡県浜松市中央区本郷町1357-20

/85.29m²

ペットと一緒に暮らせる賃貸戸建物件をお探しの方へ!
2021年10月に完成されたばかりの物件のご紹介です。

間取りは3LDKで、大家族でもゆったりと過ごすことができます。
大きな公園が目の前にあり、ワンちゃんと一緒に遊ぶこともできます♪

LDKは広々と13.8帖あり、家族みんなでゴロゴロし放題です!
フローリングがピカピカで、シンプルな構造だからお好きなように家具を配置することができます。
キッチンは便利な3口コンロが付いており、親子並んで仲良くお料理をすることも可能です。

2階にある洋室はすべて6帖の広さとなっています。
ハンガーのまま洋服を収納できるクローゼットが二部屋に付いております。
玄関先にもクローゼットが付いており、コートを着る季節には玄関先で収納することが可能です。

車が3台駐車可能なので、ご友人が遊びに来た時にも場所に困らず駐車をすることができます。

ピカピカのお家で大好きなペットちゃんと素敵なライフを送ってみませんか♪
愛ペットちゃんと暮らしたい方は是非ご相談ください!

続きを読む

見学したい(無料)

パークサイドハウス

無料
無料

静岡県浜松市中央区本郷町1357-20

/85.29m²

南区本郷町に完成したばかりの賃貸戸建物件のご紹介です!

【3つのおすすめポイント】
①ペット飼育OK
②目の前に大きな公園
③3台分の駐車スペース

お家の前はすぐ公園。緑がたくさんで気持ちいいです♪
ワンちゃんのお散歩コースに公園をぐるっと一周もいいですね。
コンビニやスーパーも近く、生活がしやすい立地です。
小学校や中学校も近いので子育ても◎

冒頭のおすすめのポイント以外にもお伝えしたいのが、玄関。
容量充分なシューズボックスというのはよくあるお部屋ですが、
このお家にはシューズボックスに加えて、目の前にクローゼット!
いつも着る上着や、お子様のランドセルや習い事の道具などなど、
外から帰って、そのままさっとしまえて、とっても便利です。この動線はありがたい!

築浅のペット可の戸建賃貸はなかなかレアだと思います!
気になる方はすぐ内覧のお問い合わせを!

続きを読む

見学したい(無料)

明日、お店開きます!

無料
無料

静岡県浜松市中央区鴨江2-41-17

/45.00m²

浜松市中区鴨江にあるテナントのご紹介です!
オレンジストリートから一本はずれた道にある、3階建ての1階部分のお店になります。
同じ建物内には24時間のジム、店舗周辺には多くの飲食店、コンビニなどが並ぶ比較的車通りも多い道なのが最高なポイント。

元スナックということもあってお店の中にはそのまま家具や食器などが残されています!
入り口入ってすぐにはいすや机が明日からにでも使えそうなぐらいあります。
奥にはカウンターがあります。
カウンターでお客さんと楽しく話しながら接客できるのは楽しいですね!
ここにもキレイに残された棚と食器があります!
いろいろな種類のグラスが並べられていますのでグラスを買う手間もはぶけそう!
その奥にはガスコンロや冷蔵庫を置けるスペースがあります。
お客さんからは見えない造りになっていますよ!

手洗い付きトイレもしっかりあります。
壁紙が大人な感じで夜の雰囲気に溶け込みそうなオシャレな空間にしてくれています!

近所の常連さんをつくったり、ふらっと立ち寄れるようなそんなお店を鴨江で開きませんか?
すぐにでも開業したい!そんなあなたにピッタリの店舗、ここにあります!

続きを読む

見学したい(無料)
FULL リノベ済み 360VR

STYLISH

8.6万円
8.6万円

静岡県浜松市中央区佐鳴台5-22-22

3LDK /77.04m² /1983/12

佐鳴台で物件をお探しのあなたへ!お待たせいたしました!!
こちらは3LDKのファミリー物件になります。

今回ご紹介する物件はスタイリッシュな間取りとなっております。
広々としたLDKは18帖あり、家族みんなでまったりと過ごすことができます。

玄関からリビングまでは少し距離があり、3ステップの階段をおりた先にリビングルームがあります。
キッチンは便利な対面式で、お料理をするときの眺めも良いです!天気の良い日は外の緑を見ながらお料理をすることも可能です。

寝室は7帖と6帖の洋室になります。
6帖の洋室はとてもシンプルな造りになっており、子供部屋にピッタリです。
7帖の洋室にはハンガーのまま洋服を収納できるクローゼットが付いています。

間取り図の「DEN」は小部屋やちょっとしたスペースを意味します。
DENの使い方は自由です。物置スペースとしてはももちろん、ワークスペースやお子様の遊び部屋としてもご利用できます♪

スタイリッシュなお家で家族みんなで楽しくのんびり過ごしてみてはいかがでしょうか!

続きを読む

見学したい(無料)

さあ、エステサロンを始めよう!

無料
無料

静岡県浜松市中央区田町331-14

/62.74m²

エステ事業を始める方必見のこの物件。ほぼこのままエステが開業できます!

場所は浜松市中区田町のビルの6階にあります。部屋数は4部屋+待合とスタッフルームという構造です。
機材や施術ベッドなどは付きませんが、内装譲渡という形でお譲りします。金額は現在のオーナーにご相談ください。

エアコンは待合とスタッフルームにルームエアコンがそれぞれ1台ずつついていて、施術ルームには1台業務用のエアコンが付いています。業務用のエアコンはリースですが、そのまま契約を引き継ぐことが可能です。逆に3月末までに引き継ぎが無ければエアコンは撤去されます。

スタッフルームにはキッチンと洗濯機置き場があります。トイレは広々した空間です。

居ぬきのまま引き継ぎたい場合はお早目にお問合せください。

続きを読む

見学したい(無料)

温もりを感じるおうち

無料
無料

静岡県浜松市中央区蜆塚3-6-15

/61.86m²

こちらは蜆塚にあるリノベーション物件です。内観・外観ともに美しい状態です♪
こちらの物件の間取りは2LDKで、ファミリー層におススメです!
お部屋全体から、木の温もりを感じ取ることができのんびりと過ごすことができます。

LDKはゆったりとしており、家族みんなで楽しくおしゃべりをしながらリビングルームで過ごすことができます。
キッチンは便利なシステムキッチンで、シンク台の片付けもサッと拭くだけでキレイになります。
便利な3口コンロが付いており、時短かつスムーズにお料理を作ることができます。
キッチンスペースはゆったりとしており、親子仲良く並んで一緒にクッキングをすることも可能です!

リビング横の洋室は縦長で、収納スペースたっぷりのクローゼットが付いています。
こちらの洋室はバルコニーと直接つながっており、天気の良い日は電気をOFFにして過ごすこともできそうです。
もう一つの洋室にもハンガーのまま洋服を収納できるクローゼットが付いており、窓も付いているので換気をバッチリとすることができます。

今回ご紹介するお部屋は3階にあり、エレベーターは付いていませんが、階段を毎日上り下りすることによって自然と運動をすることができます!

周辺にはコンビニやスーパーもあるので、お買い物をするのにもとても便利です。

続きを読む

見学したい(無料)

バルコニーの活かし方

無料
無料

静岡県浜松市中央区蜆塚3-1-50

3SLDK /94.40m² /2000年09月

こちらは蜆塚にある一戸建ての物件の紹介です。
間取りは3LDK+Sになっており、自宅として又は事務所兼自宅としてご利用できます!
お部屋も沢山あるので、大家族にもピッタリです。

LDKは2階部分にあり、広々と15帖あります。天井の木の骨組みが見えますがとてもオシャレに感じさせます。
キッチンの前にミニ窓があって、明るい空間でお料理をすることが可能です。
便利な3口コンロが付いており、時短かつスムーズにおいしくご飯作りをすることができます。
2階には7帖の洋室と2帖の収納部屋があります。洋室のお部屋にはクローゼットが2つ付いており、収納スペースに困りません!
収納部屋にもたくさんの物を保管しておくのがポイントです。

1階には、6帖と8.5帖の二部屋と洗面脱衣所と浴室があります。
どのお部屋にも窓が付いており、お部屋内に自然光を取り込むことが可能です。

事務所兼自宅としてご利用する場合は、1階部分を事務所・2階部分を自宅としてご使用することができます。

特に注目して欲しいのが、バルコニーです。
普通のお家のバルコニーよりも少し広く、のんびりと過ごすことができます。バルコニーでの過ごし方はあなたの想像次第です♪

ワンちゃん・猫ちゃんと一緒に暮らせられるのも嬉しいポイントです!
愛ペットちゃんなしでは暮らせない方にピッタリです。
ぜひご相談ください。

続きを読む

見学したい(無料)

喧噪の中で心地良いおへやを。

無料
無料

静岡県浜松市中央区東伊場2-6-2

1SLDK /47.47m² /1990/4/1

こちらの物件は浜松市中区東伊場、雄踏海道沿いに建つマンションの一室のご紹介です。

普通のおへやでは満足出来ない!
ぜひともそんなあなたにお勧めしたいリノベーションルームです♪

スタイリッシュでモダンな内装でありながら玄関を開けた瞬間から可愛いが溢れる内装に仕上がっています!
少し変わった間取りですが、広々とした玄関に17帖LDK、さらにはウォークインクローゼットまで付いた1LDKのお部屋なので住み心地バッチリ。


浜松駅まで自転車圏内の好立地も魅力的。
駅前まで近いので飲み屋さんから家電屋まで何でもそろった街での暮らしはあなたの毎日を彩ります。


※こちらのお部屋の写真はスカイポート株式会社様から頂いた物になります。

続きを読む

見学したい(無料)
FULL

成功はガレージから始まる…!

無料
無料

静岡県磐田市城之崎1-10-4

/194.25m²

磐田市にとっても活用のしがいがありそうなガレージ付き戸建て物件が登場しました!

え?ガレージって車・バイクを格納する以外にどう活用できるのって?

なんとなんと!こちら車2台分もの広さのあるガレージスペースを事務所や店舗、教室などのテナントとして利用することができちゃうんです!!すごい!
有名な起業家たちはガレージからスタートしたなんて逸話がありますが、磐田のこの地から未来のスティーブ・ジョブズが誕生するんじゃないかと思うとワクワクしませんか!?

肝心のお部屋ですが、2019年4月築とまだまだ新しく15帖オーバーのLDKとそこから続くウッドデッキ・お庭で開放的なリビングに。
洋室は4部屋あり、ペットのためのお部屋も用意してあげられそう!
ちなみにこちらのおうち、ペットは犬猫ともに可能で、なんと大型犬もOKとのこと!これは年に1件あるかどうかというレベルに珍しい条件です!


貴方ならこのお家、どう活用しますか??

続きを読む

見学したい(無料)

あなたは何と暮らす?

12万円
6万円

静岡県磐田市気子島1572-14

1LDK /53.78m² /2019年08月

こちらの物件は磐田市気子島の閑静な町に建つアパートの1室になります。

1階部分はテナントになっており店舗が入っているので入口は裏手の道路からは見えないようになっているので、人目も気になりません。

玄関から2Fへ上がると11.5帖のLDKがお出迎え♪
シンプルな内装は木目の綺麗なフローリングと白の壁紙が映えてとても締まった印象を受けます。
半面木の柔らかな印象もあり日の当たる室内はどんなインテリアも馴染んでくれそうです。

各居室に収納はもちろん、ホールにはなんと3つも収納部があるのに驚きました!
何かと嵩張りがちなひとり暮らしやカップルでの暮らしにピッタリです。

一味違った理想の「お一人暮らし」このお部屋で叶えましょう!

続きを読む

見学したい(無料)

わくわくっ!スケルトン!

無料
無料

静岡県磐田市中泉226-4

/78.30m² /1988年9月

このテナントは磐田駅から続くシンボルロード、ジュビロード沿いにあります。
磐田駅からとにかくまっすぐ歩けば着きます。
とっても分かりやすい立地。

そして一部レンガのデザインと、5階建てという高さのあるこの物件はとても目立ちます。
ジュビロードは人通りも車通りも多いので、この辺りが生活圏の方なら「ああ、あの建物ね!」となるでしょう。

中は、、わくわくスケルトン!
スケルトンってこれからどうしていこうか?わくわくどきどきしますよね。
初期費用はかかるけど自分色を出せるというとてつもない魅力があります。

磐田のシンボルロードで、愛し愛される場所を作ってみませんか?


365LIFEでは賃貸仲介とともに、お店のコンセプト作りから内装デザインまで一貫して承っております。
掲載以外の物件もお取り扱いできますので、まずはぜひ事業内容をお聞かせください!
ご相談お待ちしております。

続きを読む

見学したい(無料)

開業を夢見て

無料
無料

静岡県浜松市中央区西伊場町75-30

/59.94m²

新しい事業を始めてみたい、そんな願いや夢をお持ちではありませんか?
ここであなたの願いや夢を叶えてみませんか、、、?

路面に面したピンクの建物が目印。
可愛い外観がポイントです◎
駐車場も敷地内にあり、お店をはじめるにはなかなかの好立地です。

扉を開けると1つ目のお部屋が見えます。
こちらには収納とお手洗いがついています。
収納は階段下にありますよ。
シンプルで使いやすい造りです。

2つ目のお部屋は一部がガラスになっていてホールの様子を見ることができます。
デザイン的にもお洒落で高ポイント◎
2つのお部屋両方とも扉を開けてすぐにホールと繋がっているので、行き来が楽にできます。

ホールには大きな窓がついているので、外から内の様子を知ることができます。
外から内を見れるというのは大きな窓のメリット!

駅からは少し遠いですが、徒歩3分のところにバス停(遠鉄バス 根上り停)があるため交通の便は良さそうです。
新しい土地で新しい事業を始めてみませんか?

続きを読む

見学したい(無料)

目印ですぐわかる!

無料
無料

静岡県磐田市上万能494

/40.95m²

旧国道1号線沿いにある、2階建て複数店舗が入る建物1階角店舗の募集です。

なんといってもこの店舗の利点は、目印がいっぱいあって分かりやすい!
目の前に家具の上野屋さん、対角にOGIYAさん、お隣にイエローハットさん、と大きな建物つまりご案内しやすい目印になるものがたくさんあるのです。
これって店舗にはとても大事。

しかもここはバイパス池田入口につながる旧国道1号線沿い。
車の交通量は昼夜問わず多いです。

駐車場も、共同利用の来客者用駐車場が3台、徒歩1分程度の敷地外に確保もご相談可能。
車生活の磐田人、バイパスから来る浜松人もターゲットになります。

内装はシンプル・コンパクト。
構造上フロア西側が三角にとがっていますが、この奥まっているところで簡単に空間を区切って、オフィス兼店舗などにしてもよいかもしれません。

賃料抑えめの事業拠点をお探しの方に、車でのアクセスのよさをお求めの方にお勧めです。


365LIFEでは賃貸仲介とともに、お店のコンセプト作りから内装デザインまで一貫して承っております。
掲載以外の物件もお取り扱いできますので、まずはぜひ事業内容をお聞かせください!
ご相談お待ちしております。

続きを読む

見学したい(無料)

まっしろオフィス

無料
無料

静岡県浜松市中央区細島町8-2

/39.60m²

浜松市中区細島町のテナントのご紹介です!
コストコと同じ路線上にあるこの物件は道路に面したわかりやすい立地です!

2階建てのビルの中には1階には人材派遣の会社がありました。
近くには畳屋、事務用品店、学校洋品店など系統に絞られていないお店が並んでいます。

気になる物件の中は縦に長い、白が基調の事務所です。
教育、スクール、オフィス向けということです。
清潔感のある事務所で仕事や勉強もはかどりそうな、そんな感じがします!

コンパクトなキッチンも設備されていて、調理することも可能です。
さらに独立洗面台もついています。
トイレは清潔感があって、窓もあって換気もバッチリできそう◎

熱心に仕事に取り組むならまずは場所から!
ぜひこのまっしろオフィスでバリバリ仕事に打ち込みましょう!!

続きを読む

見学したい(無料)

The sky's the limit.

無料
無料

静岡県磐田市今之浦3-8-8

/155.63m²

磐田は今之浦、2021年3月にリニューアルした今之浦公園は市民の憩いの場としてとても居心地のいいものになりましたね。

天気の良い日には、噴水や遊具で遊ぶお子さん連れに、芝生でキャッチボールを楽しむ小学生、木陰で語らう中学生、
踊ってる高校生、わんちゃんと一緒にお散歩しているご年配のご夫婦などなどたくさんの市民が集う場になりました。

そんな今之浦公園の目の前の交差点に現在建築中なのが〈SORA〉というテナントです。
募集条件は以下の3パターン他ご相談も可能です。
①1階一括貸し 使用面積:133.31㎡(40.32坪) 月額賃料(税込):443,000円
②1階3分割貸し(フードコート) 使用面積:44.43㎡(13.44坪) 月額賃料(税込):147,000円
③2階一括貸し 使用面積:155.63㎡(47.07坪) 月額賃料(税込):517,000円

業種は飲食、福祉系、美容系、オフィス、塾など多様なニーズにてご相談頂けます。
この立地、このデザイン性、磐田市民の幅広い世代に愛される場所になるんだろうな。
どんなお店が入るのか今からとても楽しみにしてます! ( 磐田市在住のスタッフより )

The sky's the limit.

可能性は無限大です。自分の叶えたいお店づくりをはじめましょう! 

続きを読む

見学したい(無料)

空谷の跫音

無料
無料

静岡県磐田市今之浦3-8-8

/133.31m²

磐田は今之浦、2021年3月にリニューアルした今之浦公園は市民の憩いの場としてとても居心地のいいものになりましたね。

天気の良い日には、噴水や遊具で遊ぶお子さん連れに、芝生でキャッチボールを楽しむ小学生、木陰で語らう中学生、
踊ってる高校生、わんちゃんと一緒にお散歩しているご年配のご夫婦などなどたくさんの市民が集う場になりました。

そんな今之浦公園の目の前の交差点に現在建築中なのが〈SORA〉というテナントです。
募集条件は以下の3パターン他ご相談も可能です。
①1階一括貸し 使用面積:133.31㎡(40.32坪) 月額賃料(税込):443,000円
②1階3分割貸し(フードコート) 使用面積:44.43㎡(13.44坪) 月額賃料(税込):147,000円
③2階一括貸し 使用面積:155.63㎡(47.07坪) 月額賃料(税込):517,000円

業種は飲食、福祉系、美容系、オフィス、塾など多様なニーズにてご相談頂けます。
この立地、このデザイン性、磐田市民の幅広い世代に愛される場所になるんだろうな。
どんなお店が入るのか今からとても楽しみにしてます! ( 磐田市在住のスタッフより )

空谷の跫音、まだまだこれから伸びていく磐田市に嬉しい便りとなるようなお店づくりをはじめましょう! 

続きを読む

見学したい(無料)

天馬空を行く

無料
無料

静岡県磐田市今之浦3-8-8

/44.43m²

磐田は今之浦、2021年3月にリニューアルした今之浦公園は市民の憩いの場としてとても居心地のいいものになりましたね。

天気の良い日には、噴水や遊具で遊ぶお子さん連れに、芝生でキャッチボールを楽しむ小学生、木陰で語らう中学生、
踊ってる高校生、わんちゃんと一緒にお散歩しているご年配のご夫婦などなどたくさんの市民が集う場になりました。

そんな今之浦公園の目の前の交差点に現在建築中なのが〈SORA〉というテナントです。
募集条件は以下の3パターン他ご相談も可能です。
①1階一括貸し 使用面積:133.31㎡(40.32坪) 月額賃料(税込):443,000円
②1階3分割貸し(フードコート) 使用面積:44.43㎡(13.44坪) 月額賃料(税込):147,000円
③2階一括貸し 使用面積:155.63㎡(47.07坪) 月額賃料(税込):517,000円

業種は飲食、福祉系、美容系、オフィス、塾など多様なニーズにてご相談頂けます。
この立地、このデザイン性、磐田市民の幅広い世代に愛される場所になるんだろうな。
どんなお店が入るのか今からとても楽しみにしてます! ( 磐田市在住のスタッフより )

天馬空を行く、自由な発想で自分の叶えたいお店づくりをはじめましょう! 

続きを読む

見学したい(無料)

浜松市役所近くのオフィスビル

無料
無料

静岡県浜松市中央区元城町216-4

/81.15m²

国道152号線と公園通りの交差点角、浜松市役所近くにあるオフィスビルです。
10階建ての重厚な外観は非常に目立ちます。

共有部分にはきれいなエントランスホールとエレベーター2基を備えております。
お手洗いも非常に清潔感がある空間です。
専有部分はシンプルなマット敷フロアです。

アクセスは遠州鉄道の駅まで10分程度、またバスであれば徒歩2分のバス停から7-8分程度で浜松駅まで直接行くことができます。
浜松街中中心地の便利な立地でオフィスをお探しの方、ぜひご検討ください。

※掲載写真は管理会社からいただいた写真の転載です。

続きを読む

見学したい(無料)

浜松の中心地でオフィスワーク

無料
無料

静岡県浜松市中央区元城町216-4

/81.15m²

国道152号線と公園通りの交差点角、浜松市役所近くにあるオフィスビルです。
10階建ての重厚な外観は非常に目立ちます。

共有部分にはきれいなエントランスホールとエレベーター2基を備えております。
お手洗いも非常に清潔感がある空間です。
専有部分はシンプルなマット敷フロアです。

アクセスは遠州鉄道の駅まで10分程度、またバスであれば徒歩2分のバス停から7-8分程度で浜松駅まで直接行くことができます。
浜松街中中心地の便利な立地でオフィスをお探しの方、ぜひご検討ください。

※掲載写真は管理会社からいただいた写真の転載です。

続きを読む

見学したい(無料)

SOCIAL MEDIA