掲載物件一覧
26314件
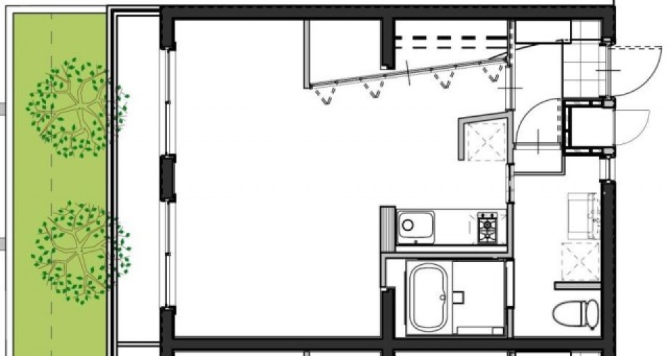
和室の活かし方
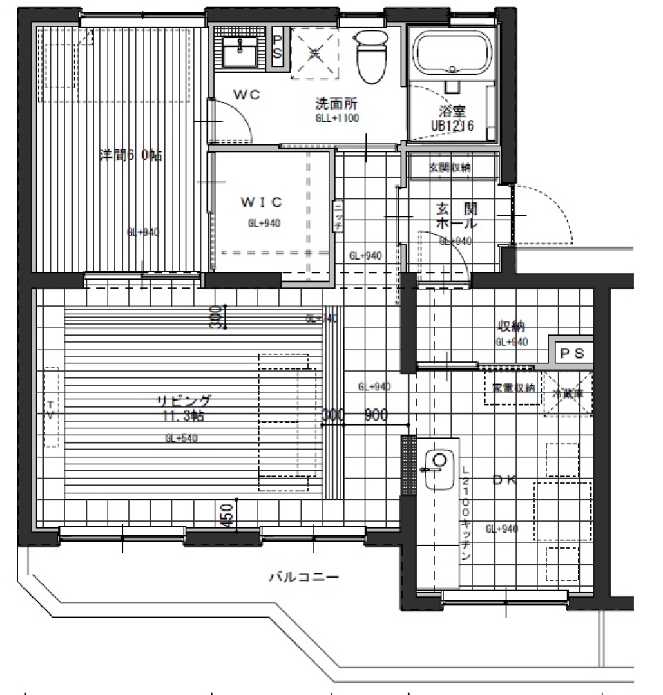
静岡県浜松市中央区野口町478
2LDK /53.37m² /1994/03
街中にありますが、周辺はとても物静かです。
お部屋の間取りは2LDKとなっています。
LDKは広々と13.5帖あり、TVやソファー、ダイニングテーブルを自分のお好きなように配置することができます。
キッチンは壁向きタイプですが、3口のコンロが付いているのでお料理好きな方にはとてもありがたいです。
和室のお部屋は6帖あり、押し入れも付いているのでものを収納するのに助かります。
洋室のお部屋も6帖あります。こちらのお部屋にはクローゼットが付いており、ハンガーのまま洋服を収納することもできるので、洋服のシワの心配がありません!
周辺には、スーパーやコンビニがあり日頃のお買い物をするのに便利です。
スターバックスも近くにあるので、パソコン作業をしたいときやおいしいコーヒーを飲みたいときにご利用できます。
続きを読む
見学したい(無料)ダブルL(エル)
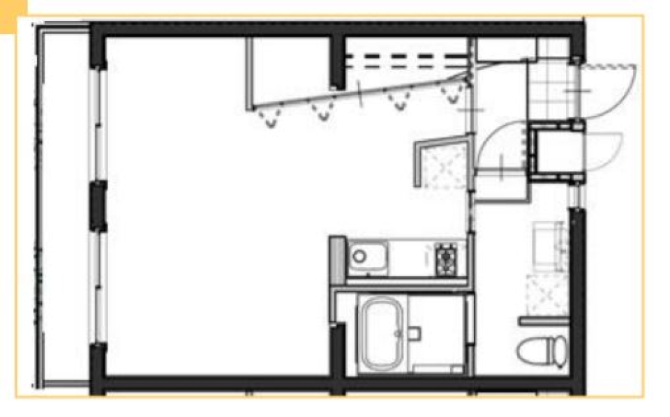
静岡県浜松市中央区野口町478
/53.37m²
L字のキッチンってあまり見かけませんが、L字キッチンはコーナーを活かしてカウンターの作業スペースが広くなっているのでいいですよ。
さらにL字の13.5帖LDKにテトリスのように入り込む6帖の和室。この2部屋をつなげば19帖の開放スペースの出来上がり!
リビングと6帖の洋室にはエアコンがありますが、シューズBOXがないので買い足しが必要です。
南面ではありますが1階、しかも目の前にマンションがあるので日当たりはあまりよくありません。
野口町なので遠鉄の八幡からも徒歩圏内ですし、街中からも歩いても苦にはならない距離なので終電を逃しても安心です。
続きを読む
見学したい(無料)Natural antique LIFE。
静岡県浜松市中央区元浜町284
/45.00m²
室内のドアにはペット専用扉が付けられアナタの留守時でもペットが行き来、散歩から帰った際はバルコニーからの出入りも可能、入口部分には足洗い場まで付けちゃいました。
さらになんと屋上には簡易ドッグランもあるそうです...。ヾ(´▽`;)ゝ
室内の床・壁紙は傷・匂い・汚れ対策のされたペット使用になっています。
まさにペットの事を第1に考える方にオススメのお部屋ですね。
続きを読む
見学したい(無料)木漏れ日を感じられるミニマムな暮らし
静岡県浜松市中央区蜆塚1-16-28
/38.00m²
蜆塚の住宅街の小道をくねくねと入り込み、時には切り返し。。
たどり着いた先には、パッと見、かわいらしい建物。
ライムグリーンの外壁塗装のせいか、清潔感があります。
奥まった立地なので、暗いのかと思って入ると南西の窓から、なんとまぁ光がキラキラ。
道路側からは想像つかなかったのですが、DK側と洋室側の窓の先は、高台のため、緑が茂って、その緑もうっそうとしていない丁度良い木陰で、先の見晴らしも良いのです。
お部屋も内装を綺麗にしてあって、白を基調としたクッションフロア、壁紙、ドアなので、より明るくなっています。
4.5帖の洋室との仕切り戸は、引き戸なので、開けて使えば、それほど狭さを感じません。
キッチン周りのレンジフードなども新品に変えられていました!
水色のキッチンはこのお部屋にぴったりなかわいらしさ。
ベランダは、狭いですが、洗濯物はよく乾きそう!
狭い道ですが、住居者しか通らない道なので静かです。
清潔感があって、ゆらぎを感じながら暮らせるお部屋です!
続きを読む
見学したい(無料)コンパクトな清潔感とグリーン
静岡県浜松市中央区蜆塚1-16-28
/38.00m²
蜆塚の住宅街の小道をくねくねと入り込み、時には切り返し。。
たどり着いた先には、パッと見、かわいらしい建物。
ライムグリーンの外壁塗装のせいか、清潔感があります。
1階のお部屋なので、暗いのかと思って入ると南西の窓から、なんとまぁ光がキラキラ。
道路側からは想像つかなかったのですが、DK側と洋室側の窓の先は、高台のため、緑が茂って、その緑も、うっそうとしていない丁度良い木陰で、先の見晴らしも良いのです。
お部屋も内装を綺麗にしてあって、白を基調としたクッションフロア、壁紙、ドアなので、より明るくなっています。
4.5帖の洋室との仕切り戸は、引き戸で、すりガラスなので、より開放感があり、それほど狭さを感じません。
キッチン周りのレンジフードなども新品に変えられていました!
ベランダは、降りられますが、段差が高く、お隣との仕切りがなくて、つながっているので、あまり外に出て使わないかもしれません。
ですが、外にでなくても木漏れ日がゆれるリビングがあるので十分です。
狭い道ですが、住居者しか通らない道なので静かです。
コンパクトながらも清潔感があって、ゆらぎを感じながら暮らせるお部屋です!
続きを読む
見学したい(無料)室内スタイルにこだわった照明3type。
静岡県浜松市中央区安松町62-1
/41.58m²
ス...スポット照明
ダ...ダウンライト照明
ペ...ペンダント照明
照明にもそれぞれの特徴がありお部屋の雰囲気を作るアイテムの一つです。
リビングスペースに使われた「4連スポット照明」、光の方向を自由に変えられ個性的な演出効果が可能です。足りない光量は間接照明で補えばオシャレ空間の完成。
お次は寝室に使われた「ダウンライト」、天井面に照明本体を埋め込み隠れているため空間に圧迫感を感じません。
落ち着いておやすみいただける寝室など空間造りに1番ベストなタイプでしょう。
最後はキッチンスペースの「ペンダント照明」、それにしても今回のペンダント照明は大きかった...。洞窟内にある様なキッチンスペースの間取りのためこの大きなペンダント照明でキッチンスペースの隅々まで明かりを照らす役割をしておりました。
それぞれの照明器具が使用用途の違うお部屋の内装にマッチした雰囲気に仕上がっておりました。
続きを読む
見学したい(無料)仕事はお家で
静岡県浜松市中央区安松町62-1
1LDK /41.58m² /1991年9月
一番のポイントは、ネットが無料であるということ!
コロナ禍により在宅ワークが増えて、お家でもパソコン作業をしなければならない方にはピッタリの物件です。
間取りは1LDKで、LDKは12帖あります。
リビングルームスペースとダイニングスペースに分けることができます。
リビングルームへの日当たりも良好なので、昼間は電気をOFFにして過ごすことができます。
洋室は8帖あり、ダブルサイズのベッドや化粧台などをお好きなように置くことができます。
押し入れも付いているので、お部屋の整理整頓を簡単にこなすことができます。
トイレ、浴室、洗面所などの水回りも清潔感があります。
周辺にはコンビニやスーパーがあり、徒歩で行くこともできます。
続きを読む
見学したい(無料)コンクリート打ちっぱなし.....風。
静岡県浜松市中央区安松町62-1
1LDK /41.58m² /1991.09
玄関は、あえて棚のみを設置した、飾れる靴置き場。
靴にこだわりのある人なら、華麗なディスプレイになるはず!
LDKと洋室は、とにかくシンプルに!
むき出しの電球と配線がお部屋をスタイリッシュに、
より広く魅せています!
洗面、トイレ、浴室は、黒を取り入れたデザインで、
設備の白さ、清潔感を際立ちます!
洗面下の収納がオシャレで便利!!
続きを読む
見学したい(無料)いらっしゃいませ♪
静岡県浜松市浜名区貴布祢1048-2
1LDK /41.00m² /1990年1月
今日からあなたもCafeのマスターに変身可能。
人気の遠鉄沿線「浜北駅」からは徒歩8分、浜北のショッピングエリア「プレ葉ウォーク」が目と鼻の先が今回の場所、宇宙戦艦ヤマトの様な厳つい外観からはとても想像の出来ないお部屋でした。
室内は、落ち着いた雰囲気の内装で特にハイセンスな建具と装飾品にうっとりしてしまいます。
個人的にはカーテンレールに是非注目してほしいですね。(o ̄∇ ̄o)♪
ペットの飼育も可能なのでCatカフェ仕様にすることも可能、家具は薄い色合いの木目調のモノを設置されてみてはいかが...。
続きを読む
見学したい(無料)ペールオレンジの温かみ。
静岡県浜松市中央区瓜内町533-5
/55.69m²
南区と聞くと浜松でお部屋探しされている方は嫌煙しがちですが、馬込川1本挟めばすぐに中区です。さらにJR浜松駅まで約1.7㌔と意外や近い!頑張れば街中から徒歩での帰宅も十分視野に入れていただけるのではないでしょうか...。
室内の建具は全て白色のフレンチカフェ調のモノを使用しております。白は人間の目に1番綺麗に映る色、しっかりと清潔感を感じることでしょう。
リノベーション工事された際に一新された水廻り・各戸専用の物置、さらには無料インターネットとこれだけのメリットがあるのにお得な家賃設定、これは次週末にお部屋の内覧に行くしかないでしょう!
続きを読む
見学したい(無料)憧れのティファニーブルー
静岡県浜松市中央区瓜内町533-5
賃料64,000円
共益費/管理費3,000円
2LDK /55.69m² /1990年9月
そんな気持ちでお部屋探しをしている、カップルや新婚さんにおすすめです。
建具や壁の配色にこだわってリノベーションされたこのお部屋。
キッチンの爽やかなブルーや落ち着いた雰囲気のお風呂場のオレンジなど、所々にアクセントカラーが使われています。
そこにカフェや美容室を連想させるような具が加わり、よりかわいらしいお部屋に。
LDKは12帖と広めで、大きめのバルコニーも付いています。
3階で日当たりもよいお部屋なので、洗濯にも困りませんね。
無料でインターネットが使えたり追い炊き機能等設備が充実していたりと、高コスパなお部屋です。
続きを読む
見学したい(無料)毎日の大冒険のためのアジト。
静岡県浜松市中央区瓜内町533-5
/55.69m²
マンションの外装は一見地味に見えますがお部屋の内装は可愛らしくリノベーションされたシンプルな2LDKのお部屋になります。
12帖の広々LDKは陽当たりと風通しもとっても良く、ターコイズグリーンのキッチンが映える真っ白な壁紙に囲まれたとっても明るいお部屋です♪
壁一面の大きなクローゼットがついた7帖の洋室には黄色の壁紙が大胆に施されており、とっても可愛らしいお部屋です。
他にも各所にこういった明るいカラーが忍ばせてあるシンプルながらも遊び心に溢れた内装に仕上がっています。
敷地内に大きな倉庫が各お部屋についており、お部屋に入れられないような大きなアウトドアギアや荷物なんかも収納ができ倉庫として使用していただくことが出来るので、アウトドアが趣味で遊び心溢れる少年のような気持ちをいつまでもお持ちの方にこそぜひおすすめしたい物件です♪
続きを読む
見学したい(無料)POPカラーでワクワクなライフスタイルを
静岡県浜松市中央区瓜内町533-5
2LDK /55.69m² /1990年10月
とっても斬新なカラーの組み合わせ!POPな感じでとてもワクワクします。
カラーの組み合わせで気分もあがりますね。さらに、インテリアでPOPカラーを追加して、
自分好みのお部屋にしましょう。
白い建具のデザインが各部屋異なるのが特徴的!
FIXガラスを入れたり、ドアノブの黒アイアンもアクセントに。
とてもワクワクしたお部屋です。
続きを読む
見学したい(無料)コテージでの暮らしのような・・・
静岡県浜松市中央区瓜内町533-5
2LDK /55.69m² /1990年10月
建てられたのは平成の始め。
しかし、入ってびっくり!とても綺麗です。
お部屋のほとんどがリノベーションされ、
新しいものと既存のものが入り混じってる
なんとも最近はやりのレトロ感を醸し出しています。
南区と聞くと浜松でお部屋探しされている方は嫌煙しがちですが、馬込川1本挟めばすぐに中区です。さらにJR浜松駅まで約1.7㌔と意外や近い!頑張れば街中から徒歩での帰宅も十分視野に入れていただけるのではないでしょうか...。
更にリノベーション工事された際に一新された水廻り・各戸専用の物置、さらには無料インターネットとこれだけのメリットがあるのにお得な家賃設定、これは次週末にお部屋の内覧に行くしかないでしょう!
続きを読む
見学したい(無料)ホワイトベース、時々重厚感。
静岡県浜松市中央区瓜内町533-5
/55.69m²
女性的なイメージが強いキッチンがブラックになると男性的なイメージに。偏見ですかね?ご主人もキッチンに立って料理を振舞いませんか?
LDKは12帖と広めで、大きめのバルコニーも付いています。無料でインターネットが使えたり、部屋外に専用の物置があったり、追い炊き機能まで付いていたりと2LDKにしては良いコストパフォーマンスのお部屋です!
お部屋があるのは、浜松駅南側から徒歩21分の瓜内町。近くには、コンビニやスーパーもあり、浜松駅からギリギリ徒歩圏でこの機能性とクオリティはかなりお得です。
浜松駅南側に目を向けてみれば、思い描いたお部屋が見つかります!
続きを読む
見学したい(無料)THE TATAMI LIFE
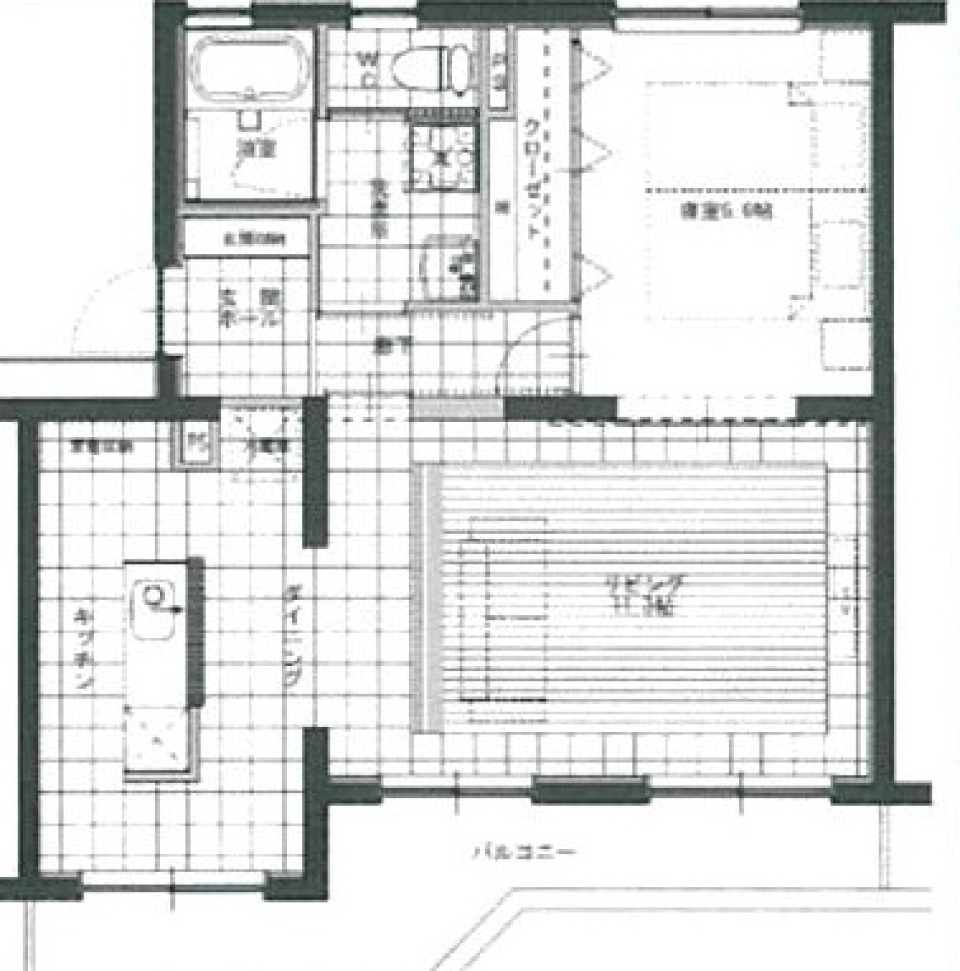
静岡県浜松市中央区神田町128
賃料52,000円
共益費/管理費3,000円
1LDK /49.58m² /1995年2月
近隣には、遠鉄ストア、杏林堂などが建ち並ぶショッピングモールがあります。
日用品から食品、衣料品のお店もありとても便利なエリアです。
また、道路や公園も整備されている場所も多くキレイな街並みです。
こちらの物件の特徴は、2つあります。
1つ目は、6帖の和室です。畳と押入れがある和室が生活には欠かせない方は、とてもオススメな物件です。
2つ目は、ピロティータイプの駐車場です。屋根付きなので雨の日も安心ですね。
ただし、ピロティーに入るまでの通路が狭めなので、運転に自信がない方は内見時の現地確認がおすすめ。
お引越し後をイメージしながら、ご自身のお車を停めてみましょう。
続きを読む
見学したい(無料)モダン空間をアレンジす。
静岡県浜松市中央区神田町128
/49.58m²
ダークブラウンの床とアフリカンブラウンの壁がうまく融合されたモダン空間。
すでに設置されている「可動式カウンターと「リビングローボード」に合わせて家具は揃えろよう!!
今までは白い壁に茶色の床のシンプルなお部屋に住んでいた方でも入居しやすいデザインのお部屋だと思います。
このデザインを生かすも殺すもアナタのアレンジ次第です!!。
続きを読む
見学したい(無料)モダン空間を演出
静岡県浜松市中央区神田町128
1LDK /49.58m² /1995年02月
近隣には、遠鉄ストア、杏林堂などが建ち並ぶショッピングモールがあります。日用品から食品、衣料品のお店もありとても便利なエリアです。また、道路や公園も整備されている場所も多くキレイな街並みです。
元々は和室だったお部屋をリノベーション。ホワイト×ダークブラウンの落ち着いた雰囲気のお部屋は大人の空間を作るのに最適な配色。和室だった部分も一変してモダンな洋室空間。
お風呂も追い焚き付きで湯船につかりたい人はチェックした方がいいです。
駐車場がピロティになっています。雨の日は荷物の出し入れがしやすくていいですが、このマンションのピロティは通路が狭いので車の出し入れは苦労します。大きな車の方は特にご用心。
続きを読む
見学したい(無料)シャビーシックの大人カワイイが詰まってる
静岡県浜松市中央区佐鳴台5-26-5
/60.21m²
外観のドアや階段の手すりにアイアンの飾りがあって、入る前から期待感いっぱい!
ドアを開けて入ると、思わず「カワイイー!」と叫んじゃう。
ここ数年、海外モデルさんにも人気のインテリアテーマ「シャビーシック」の世界が広がっています。
ドアノブやポイントとなる飾り棚や鍵掛けは、全て黒のアイアンで統一。
白を基調とした中にもライトグレーのコンクリートタイル調クッションフロアがしっかりとシャビーシックを演出しています。
キッチンのインディゴブルーの壁紙も印象的でお料理していても絵になっちゃう!
広いシンクと作業スペースもあって、更に3つ口ガスコンロだからお料理し放題です。
お料理写真が増えそうですね!
もう1部屋は、また違う遊び心がある壁紙とフローリング調で1室の中でどれだけ楽しませてくれるんでしょう!
トイレ・お風呂・洗面台も抜かりなく世界観が統一されていて、
間違いなく大人カワイイ世界を満喫できるお部屋!
家具にもぜひこだわってみてください!
続きを読む
見学したい(無料)French shabby cick SANARUDAI
静岡県浜松市中央区佐鳴台5-26-5
2LDK /60.21m² /1978年06月
外観のドアや階段の手すりにアイアンの飾りがあって、入る前から期待感いっぱい!
ドアを開けて入ると、思わず「カワイイー!」と叫んじゃう。
ここ数年、海外モデルさんにも人気のインテリアテーマ「フレンチシャビーシック」の世界が広がっています。
Shabby=着古した・みすぼらしい・粗末・ボロ
Chic=上品・あか抜けた・優雅
Shabbyだけではあまり良い意味にとらえることは出来ませんが、Chicと合わせて使うことでアンティーク感を表現しております。
ガーリーな面を持ちつつも、エレガントでクラシックな大人の一面もあるので幅広い年代の女性に人気のあるデザインです。
続きを読む
見学したい(無料)紺碧が似合うお部屋で
静岡県浜松市中央区佐鳴台5-26-5
/60.21m²
味のある色合いで洗練されたLDKは
まるでCafeのような空間――
4.5帖の洋室には、
壁一面、上から下まで
全てを使って作られた大容量のクローゼット
そして、毎日の身支度が楽しみになりそうなほど、
可愛らしいデザインの洗面所
全居室には2重窓が施工されており断熱効果や防音効果も期待できそうです♪
個人的にとってもオススメです♪♪
続きを読む
見学したい(無料)湖畔CAFE
静岡県浜松市中央区佐鳴台5-26-5
2LDK /60.21m² /1978年6月
洗練されたLDKはまるでCafeのような空間――
くすみピンクとタイル風のフロア、そしてかわいらしいペンダントライト。
どこを切り取っても素敵な景色です、、。
甘いだけではなくて、淡い色味の中にポイントでダークトーンの扉やアイアンがあり空間を引き締めています。
上品で小洒落た雰囲気があるお部屋なので、アンティークの家具や雑貨が似合いそう。
お部屋は2部屋。
4.5帖の洋室には、壁一面に大容量のクローゼット。
お部屋からLDKにも廊下にもアクセスができる便利な動線です。
6帖の洋室にも、コンパクト目ですがクローゼット付きです。
こちらを寝室にして、4.5帖は書斎や趣味スペース、収納に使うのもいいですね◎
全てのお部屋が南向きのバルコニーに面しており明るいのもとっても魅力的。
駐車場も2台目がご用意可能ですので、カップルやご夫婦におすすめです。
お休みの日には佐鳴湖に遊びに行きましょう。
春には桜並木がとってもきれいですよ!
続きを読む
見学したい(無料)懐かしき面影残し現代風
静岡県浜松市中央区佐鳴台5-26-5
2LDK /60.00m² /1978年6月
それもそのはず今回ご紹介の「佐鳴台ハイツ」は1978に完成したまもなく40歳を迎えるオールドマンションです。今となればテレビと間違えられる「4K」というファミリー向けの間取りを2LDKへ。
現代の生活スタイルで使いやすいよう改装されたお部屋ですが、古き良きものを残しoldとnewが混在していました。
その中で1番印象に残ったのがタイル張りの浴室。
ユニットバスが主流の今となってはやはりoldを代表するアイテムの1つでしょう。
左右はホワイトタイル、正面は濃淡つけたグリーンのタイル張り。
現代の賃貸物件にはないレトロ感漂う、だけど味のある浴室ですね。
新しいモノ好きの日本人にはこの価値が分からないかもしれないが、古いモノには古いモノなりの良さがある。
きっと何処かに1人でもこの価値を分かってもられる入居がいることを祈るのみ...。
続きを読む
見学したい(無料)お風呂にこだわりました
静岡県浜松市中央区佐鳴台5-26-5
/60.21m²
お部屋はナチュラルフロアとブリックでリトルアンティークな仕上がり。リビングに入る扉だけマットブラックの仕上げで全体のデザインが引き締まります。ついでにドアノブもブラックで!
一番のこだわりはお風呂!
一般的な賃貸はユニットバスが多いのですが、このお部屋は在来工法のタイル張り!質感が違います。高級ホテルに来たような感覚で毎日お風呂に入れます!
もちろんユニットバスと違って、しっかりとお掃除しないとタイル目地にカビが生えたりしがちですが、お風呂にこだわりたい方は毎日お風呂も掃除しますよね~!
もちろん追い炊き付きなのでファミリーの方にもばっちり!
たまにはバラを浮かべたりして楽しんでみてください!
あっ、それからこのマンション、マンション内にゴミ当番があるみたいです。賃貸ではなかなかない当番制ですが、これもコミュニティーに参加できる一つの楽しみと思って頂ければ幸いです!
続きを読む
見学したい(無料)Shabby Chic Room.
静岡県浜松市中央区佐鳴台5-26-5
2LDK /60.21m²
外観のドアや階段の手すりにアイアンの飾りがあって、入る前から期待感いっぱい!
ドアを開けて入ると、思わず「カワイイー!」と叫んじゃう。
ここ数年、海外モデルさんにも人気のインテリアテーマ「シャビーシック」の世界が広がっています。
ドアノブやポイントとなる玄関のランプシェードなどは、全て黒のアイアンで統一。
グレージュを基調とした中にもホワイトウッド調のヘリンボーンの床でしっかりとシャビーシックを演出しています。
キッチンのペンダントライトも印象的でお料理していても絵になっちゃう!
広いシンクと作業スペースもあって、更に3つ口ガスコンロだからお料理し放題です。
お料理写真が増えそうですね!
もう1部屋は、床の切り替えが印象的で1室の中でどれだけ楽しませてくれるんでしょう!
トイレ・お風呂・洗面台も抜かりなく世界観が統一されていて、
間違いなく大人カワイイ世界を満喫できるお部屋!
家具にもぜひこだわってみてください!
続きを読む
見学したい(無料)おとぎ話のような
静岡県浜松市中央区佐鳴台5-26-5
2LDK /60.21m² /1978年6月
玄関入ると曲線が入ったドア。
おとぎ話に出てくる木みたい!
お風呂はお姫様が出てきそうなキラキラした水色の浴室。
キッチンは広々で料理を作るのが楽しみになっちゃいます。
そしてリビングの隣の洋室の壁紙もなんとも素敵ですね!
新婚さん、ファミリー向けのおすすめ物件です!
あっ、それからこのマンション、マンション内にゴミ当番があるみたいです。賃貸ではなかなかない当番制ですが、これもコミュニティーに参加できる一つの楽しみと思って頂ければ幸いです!
続きを読む
見学したい(無料)自然が友達
静岡県浜松市中央区佐鳴台5-26-5
2LDK /60.21m² /1978年6月
自然が多い佐鳴台は浜松の中でも、アウトドアベストスポットの1つなんです。
周辺を散歩したり、ジョギングしたりするのも良し。マリンスポーツを楽しむのも良し。家族みんなでBBQをやってみるのも、楽しいですよ~。
お部屋はリノベされてスタイリッシュに生まれ変わった2LDK。バルコニーも大きいので、アウトドアグッズの保管にも困りません。
「住む場所、住むお部屋でライフスタイルは変わる!」ことを実感してみて下さい!
続きを読む
見学したい(無料)ティファニーブルーに憧れて。
静岡県浜松市中央区萩丘2-28-7
/54.09m²
唯一無二のブランドのアイコニックカラーは、世界中の女性の憧れではないでしょうか?
そんなブルーが印象的なお部屋のご紹介です!
全体的にホワイトでまとめられたお部屋にキッチンのブルーがひと際目を引きます。
建具にも細部までこだわりが。框の扉にデザインガラス。取っ手のブラックが全体を引き締めてくれています。
フレンチテイストのインテリアが似合いそう。照明はシンプルなシャンデリアを使いたいなぁ♪
ちなみに、ティファニーブルーの由来は、春の訪れを告げるコマドリの卵の色だそうです。
新生活を爽やかな空間でスタートさせてみてはいかがですか?
続きを読む
見学したい(無料)ひまわりの部屋
静岡県浜松市中央区萩丘2-28-7
2LDK /54.00m² /1987年3月
ひまわりって見ているだけで人を元気にしてくれる気がしますよね。
そんなひまわりを感じながら生活してみませんか?
こちらのお部屋、12帖のLDKの一面にひまわりのアクセントウォールが。
オーク系の色味の床材と鮮やかすぎない黄色がよくマッチしています。
北欧テイストの家具が似合いそうですね。
ひまわりの花言葉は「私はあなただけを見つめる」
新婚さんにもおすすめのお部屋です。
カラーセラピーの観点では、黄色は人の心を明るくし積極性を生み出すとのこと。
このお部屋に住んだら、おのずと会話が弾み温かい気持ちになるかもしれません。
日々の生活をより楽しく明るいものにしてくれることでしょう。
続きを読む
見学したい(無料)壁にこだわリンリン
静岡県浜松市中央区萩丘2-28-7
2LDK /54.09m² /1987年
壁がかわいい柄だったらテンション爆上げ待ったなし!
このお家のメインの部屋の壁、半分ウッディで階段状になってるんです。
トイストーリーじゃないですよ?
どんなのか想像しづらい言い方ですよね。
写真見てください…!!!
もう一つの洋室の壁も…写真見てください…
キッチンや脱衣所はシンプルで清潔感があり、気持ちよく使えそう!
トイレや浴室に窓があるのもいいですねぇ
窓が2重になっていて、鍵が2個かけられるので心配性なあなたも安心して暮らせます
音漏れ防止にもなりますよ!
どんな時も目に入る壁がかわいかったら
見るたびワクワクしちゃいますね!
続きを読む
見学したい(無料)デザインのToriko。
静岡県浜松市中央区萩丘2-28-6
/54.09m²
特徴はリビングのアクセントウォールとシックな天井。
シアターのようなスクリーン風アクセントが「おっ!斬新」と印象付けてくれるでしょう。
目の行きにくい天井でもここのお部屋はダウンライト&天井部に切り替えしがあって、デザイン通にはたまりません!
住居スペースも同じお部屋の中に設けることができるので、元手を少なく事業を始めたい方には嬉しいですよね~。しかもリノベーションされたお部屋なので、お安い家賃でもおしゃれです!
「自分の好きなことを仕事にすること」、「自分の好きなペースで働くこと」。
多少元手が少なくたって、そんな気持ちを実現することができます。
続きを読む
見学したい(無料)Vintage taste~黒アイアン・古材風フロア~
静岡県浜松市中央区萩丘2-28-6
/54.09m²
黒アイアン×ダーク調の古材風がいい感じ!!
リビングの建具を見ると、開き戸の上部をFIXのすりガラスが入っていたり、黒いドアノブや蝶番(ちょうつがい)でアクセントを利かしています。
各部屋の建具にもポイントに黒アイアン風の部品を使い、ヴィンテージ感を表現しています。
床の素材もいいですね!横長の空間伸びたブラウン・ブラックなどのダーク調の古材風の板材をバランスよく敷き詰めたデザインがかっこいいです!
続きを読む
見学したい(無料)シンプルだからイイ。
静岡県浜松市中央区萩丘2-28-6
2LDK /54.09m² /1987
ファミリー層やゆったりとした生活を送りたい方におすすめの物件です。
LDKは12帖あり、シンプルな造りだからお好きなように家具を配置することが可能です。
キッチンもとてもシンプルですが、使い勝手が良く、お好きなサイズのコンロを設置することができます。
天気の良い日は電気をOFFにして過ごすこともできそうです。
リビングと繋がっている洋室は7帖あり、収納スペースたっぷりの押し入れが付いています。
家族全員分の洋服や普段使わないものを保管しておくのにピッタリです。
6帖の洋室はメインバルコニーと繋がっており、換気をしっかりとすることができます。
ハンガーのまま洋服を収納できるクローゼットが付いているのも便利な点です。
周辺には、コンビニやスーパー等お買い物スポットが沢山あり天気の良い日は徒歩でも行けちゃう距離です!
お子様が通う小学校や中学校からも近く、安心して送り出すことができます。
続きを読む
見学したい(無料)これは必見!住むだけじゃ満足できない!
静岡県浜松市中央区曳馬2-2-3
2LDK /55.00m² /1983年3月
リノベーションによりグレードアップしまして、絶対に見逃し厳禁なお部屋になりました。
では、そんなおすすめ物件の推しポイントをご紹介いたします。
まずはなんといってもこれでしょう。
LDKに設置されているのは、今大人気の照明一体型プロジェクター《popIn Aladdin》。
照明に高性能プロジェクターと高音質スピーカーを搭載している、コードレスで場所をとらない画期的な3 in 1のシーリングライト。
大画面で映画や動画が毎日楽しめる他、お部屋の雰囲気を変えるコンテンツなどもあります。
リビングが映画館に、壁がインテリアに。
魔法のような暮らしを体験させてくれるのです。
まるでpopIn Aladdinのまわしもののようになりましたが、そのようなことは一切ありませんのでご安心ください。
純粋なファンです。
続きまして、キッチン。
グリーンカラーが目を引くキッチンは、可動式のカウンターが備え付けです。
お料理が好きな方は分かるはず、カウンターってとっても有り難いのです。
しかも動くから好きなところに持ってこられるのです。
そして元々12帖のLDKは、お隣の洋室との境目の扉を開けておくと、なんと18帖の広々リビングにもできます。
洋室の収納は壁いっぱいに広がっていて、たっぷり入ります。
お風呂、トイレ、洗面、水回りもとてもきれいです。
お部屋の魅力だけで大容量になって参りましたが、実はそれだけではないのです!
このマンションに住むとさらに特典が付いてきます。
その特典とは、365BASE outdoor hostelの共有スペースのフリーパス。
共有のリビングやキッチンがお使いいただけます。
来客時の駐車場も事前に申請すれば土曜日や夏休みなどのホテル繁忙期以外は利用可能。
またご予約制で別料金ですが、宿泊者と同じ料金でのBBQテラスのレンタル、お友達が来たときなどご宿泊も入居者割10%割引が受けられます。
365BASEを最大限活用すれば、プラスαな充実生活が実現できますよ!
遠州鉄道助信駅から徒歩4分という好立地も魅力です。
車でも北にも南にも移動しやすく、周辺環境もばっちりな便利な場所です。
電車通勤の方、車通勤の方、どちらもお見逃しなく!
続きを読む
見学したい(無料)曳馬の大人モダンスタイル
静岡県浜松市中央区曳馬2-2-3
/55.00m²
えっ!?これが昭和58年の建物...Σ(゚д゚lll)
重厚感ある建具・壁紙・床の色合いで造られたモダンスタイルなお部屋です。
アート状の入口がリビングとキッチンスペースを完全に分断すような形になっています。
リビングは2列で等間隔に配置した計8個のダウンライトがさらに室内を大人な雰囲気の演出に一役買っています。
キッチンスペースは冷蔵庫置き場・キッチンの順に配置したことによって可動エリアがU字型になっていまう。キッチン対面側に小さな収納可能なカウンターテーブルがついているので有効活用したいですね。
モダンスタイルだからこそ誰にでも簡単にお部屋の統一感が出すことが出来るし万人受けしやすいお部屋になること間違いナシですね。
なお、建物が古い為建物の構造・消防法上洋室にはエアコンの設置が出来ませんのでご注意下さい。
続きを読む
見学したい(無料)ひだまりスポット
静岡県浜松市中央区曳馬2-2-3
/55.00m²
2012年5月にリノベーション施工され室内は一新されております。
なんとも温もりを感じるお部屋。朝が来れば陽が差込み、夕方になれは陽が沈む。そんな当たり前な1日をひだまりスポットで過ごしてみてはいかがでしょうか?
白の基調とした内装で清潔感をとても感じます。
水廻り空間はに至っては白1色、そんな場に柔らかい陽が差込み時間が止まったからの様なスローライフがおくれそう。
平日はせかせかと過ごす時間だが、休日は時間を気にするとこなくマイペースに過ごす。心にゆとりを持って過ごせそうなお部屋ですね。
続きを読む
見学したい(無料)センスのよい白い空間
静岡県浜松市中央区曳馬2-2-3
/55.00m²
白いタイルに白い壁、白い建具。白い空間は面白くないと思ったあなた。ただの白い空間ではありません。
リビングには段差があり、この高低差が普通の白い空間を面白くしています。
低くなったリビングスペースを1周回るように白いタイルの段差で囲まれており、腰かけることもできます。
とても自由なスタイルでこのリビングを活用できる気がしてきました。
このリビングからキッチンにかけてW1800の腰窓が3つあり、まぶしいぐらいに日光が入ってきます。これだけ明るいリビングはほかにはなかなかないですね。
北側の寝室は床がナチュラルブラウン。ウォークインクローゼットを開けるとカラフルな壁紙で遊び心を感じます。
玄関は黒いタイルでこのコントラストも素敵!そし玄関先とキッチンの間にも収納があり、外と中をつなぐ収納ってとてもいいなって思いました!
ゴルフバックやサーフボード、釣り道具などの収納スペースにもいいし、キッチン側からはパントリーとしても使えるので機能的。
続きを読む
見学したい(無料)ステップを踏んでさわやかな暮らし
静岡県浜松市中央区曳馬2-2-3
1LDK /55.00m² /1983年3月
空間ごとに使われている色が違うので、床の色に合わせて違う雰囲気のインテリアを楽しめそうです。
広々としたLDKは、スキップフロアにすることで開放感は維持しつつ空間にメリハリを持たせています。
一段低く設けられたフローリングのリビングルームでは、あえて家具はロータイプのもので揃えるのも良さそうです。
木目の床にビーズクッションをおけば、段差が背もたれになって落ち着いたおこもりスペースができそう。
本棚やローテーブルも周りに置いて、自分だけの快適な落ち着きスペースを作り上げましょう。
洋室は床も壁もホワイトな空間。
家具はホワイトで揃えるもよし、ナチュラルな木目を差し込むもよし。ちょっと差し色を加えるのも素敵です。
そしてキッチンは、さわやかなブルーを背にしたアイランドキッチン!
窓から自然光が入ってくるので、いつもの食材やお料理がもっと美しく映えそうです。
LDK・キッチン・洋室・水回りの全てに窓があるため、室内はとても明るく開放的な雰囲気。
向かい合っている窓を開ければ風の通り道になり、換気も気持ち良くできそうです。
さわやかなお部屋で、毎日が映画のワンシーンのようにキラキラ輝くような暮らしができそう。
憧れの新生活は、こんなお部屋ではじめてみませんか?
続きを読む
見学したい(無料)てくてく最上階の棲み処
静岡県浜松市中央区西伊場町15-8
2LDK /55.20m² /1983年10月
「リノベーション」に関しては、とにかくお洒落。
玄関はリノベ前のタイルを利用。美しいデザインは不変ですね。
良いものはそのまま再利用して新しいものに組み込みましょう。
床材に合わせた建具の配色。浴室やトイレもカラートーンを合わせて。
そして、「ペット可」
ワンちゃん・ネコちゃんも一緒に住めます!
リノベ物件でペット可というのは珍しいのではないでしょうか。
すぐになくなってしまうことが予想されます。。。
建物自体は新しくはないので、エレベーターも無く、4階というのが気になるかもしれませんが…
リノベ物件がいいけど、ペットも飼いたいというあなたはすぐにでもお問い合わせください!
続きを読む
見学したい(無料)レトロが残る懐かしいお部屋
静岡県浜松市中央区西伊場町15-8
/62.52m²
共有部分は、昔からあるようなコンクリートの階段&壁。
しかし、ドアを開けると新築かと思うくらいのお部屋。
ところどころに昔の面影が残っていますがそこもまたいい味を出しています。
収納も片側の壁一面!いっぱい収納できますよ!
西側のバルコニーからは現在は建物は無く地平線が見えるのではないかと思うような広大な土地。
今後、何か建つ可能性があるので要注意ポイントかもしれません・・・・。
続きを読む
見学したい(無料)【ペット可】眺めのいいお部屋で君と
静岡県浜松市中央区西伊場町15-8
/55.20m²
目の前には日本たばこ産業の跡地があり、現在は建物がないため、バルコニーからの眺めは地平線を見渡せるくらい何もありません。
間取りは1LDKですが、リビングが18帖と広々としているので二人暮らしにも最適な広さです。
洋室とLDKにはどちらにも大きなクローゼットがついているので収納も困りません。
さらに外には有料ですが倉庫付。荷物が多いあなたにはぴったりの物件です。
ペットは猫と犬どちらも飼育可能です♪
飲食店、スーパー、コンビニも車で5分以内に多くあるので、立地も便利ですよ!
続きを読む
見学したい(無料)今日のわんこ。
静岡県浜松市中央区西伊場町15-8
2LDK /70.24m² /1983年10月
この物件の一番の売りはなんといっても小型犬と一緒に生活ができるというところ。
築33年の古さも感じさせないほどに室内はきれいにリノベーションされていてワンちゃんと新しい生活を始めるにはもったこいの物件です。
室内の収納が充実している&マンションのピロティに設置している外部収納が用意されているので、アウトドア用品や自転車(子供用)など収納できるのもポイント高めです!!
食欲をそそる黄色のキッチンで浜松自慢の青い空を眺めながらの料理もはかどるはず・・
西図書館にも近いので時間があるときにフラッと文学に触れてみませんか?
続きを読む
見学したい(無料)「リノベ ペット」検索
静岡県浜松市中央区西伊場町15-8
2LDK /55.20m² /1983年10月
「リノベーション」に関しては、とにかくおしゃれです。
床材に合わせたキッチンの配色。
同じく床材を邪魔しない壁紙。
浴室もカラートーンを合わせて。。
リノベ物件はどれもいいと思うのですが、
とりわけカラーコーディネートが抜群に良いと思います。
そして、「ペット可」
ワンちゃん・ネコちゃんも一緒に住めるというポイントが!
リノベ物件でペット可というのは珍しいのではないでしょうか。
すぐになくなってしまうことが予想されます。。。
リノベ物件がいいけど、ペットも飼いたいというあなたはすぐにでもご連絡を!
続きを読む
見学したい(無料)お庭で遊ぶワンコ。
静岡県浜松市中央区西伊場町15-8
2LDK /70.24m² /1983年10月
リビングは広々18帖で、南面に横長の間取り。壁から壁まで6.3mもあるので広々明るいリビングです。
リビングの掃き出し窓からはお庭に出られます。
お庭は幅6m×奥行き3.3mとかなり広め!コンクリート基礎の部分は1.1mありますので、ここにアウトドアチェアやテーブルを並べればアウトドアリビングも実現可能!
お庭の部分はもちろん土のスペースなので手入れは大変だと思いますが、ガーデニングにやりがいを感じる方にはとっても有難いお庭です。もちろんペット飼育可なのでドッグランとしても使えます。
リビングのほかに6帖の洋室が2部屋。お風呂もキッチンも洗面も新品です。
別料金で倉庫も借りれますので、荷物が多いファミリーの方にはとっても便利。
雄踏街道沿いから入ってすぐの立地なので西へ東へアクセスも良く、徒歩1分の場所にコンビニもあるのでとっても便利。
家族とペットと一緒に住んでください!
続きを読む
見学したい(無料)お庭でべランピング[ペット可]
静岡県浜松市中央区西伊場町15-8
2DK /62.52m² /1983年10月
最近流行りのべランピングが出来そうなうな物件を発見!
1983年に建てられた雄踏街道にアクセスが良い物件の1階には専用庭があります。
テントを張れるような十分な広さがあり、目の前は目隠しがされているのでべランピングを楽しむことができそうです。
お部屋は2DKと昔懐かしい間取りですが、
12帖の洋室は広いリビングとして使えばなじみのある間取りに大変身!
お料理に集中したい方や御飯中はTV禁止!という家庭にも最適な物件ですね。
更に、設備も充実。
お風呂は賃貸のノーマルサイズですが浴室乾燥が設置されています。
ネットも無料なところがかなりポイント高いですね。
晴れて日にはキャンプ場に行かなくてもテントを張って楽しくべランピングいかがでしょうか?
続きを読む
見学したい(無料)ナチュラルテイストのReちょこルーム
静岡県浜松市中央区西伊場町15-8
/55.20m²
室内雰囲気はナチュラルスタイル、南面の掃き出し窓から降り注ぐポカポカな日差しが眩しき感じられる当物件、実はペット共生型マンションなのです。可愛い貴方のパートナーと共に一新されたお部屋で新生活を始めてみてはいかがでしょうか?
キッチンの対面壁には流行りのニッチが、1階のお部屋だからこそ確保出来る専用庭スペースまであります。
間取りこそオーソドックスな2LDKではあるものの、だからこそ使い勝手いい間取り。唯一の残念ポイントは寝室スペースにエアコン電源がなかったことぐらいか....。
共有スペースに置かれた物置も空きがあれば月額料金を支払えば利用も可能(空き状況・料金要確認)
荷物が多いご家族でも安心して生活出来そうですね!!
ペットも飼育可能ですので愛犬・愛猫と住みたい方にもおすすめです!
続きを読む
見学したい(無料)専用庭で何をする~?
静岡県浜松市中央区西伊場町15-8
/62.52m²
車で5分以内に飲食店・スーパー・コンビニがあるので
生活しやすそうです!
見どころは専用のお庭!
家庭菜園を始めるのでもよし
ペットをいっぱい遊ばせてあげるのでも良し
夢が膨らみます…
3DKの各部屋は壁やドアで区切られているので
プライベートもしっかり守ることができます
収納もしっかりありますよ~
しかもネット無料、浴室乾燥機付きときた。
ご家族と、ペットと仲良く暮らせそうです♪
続きを読む
見学したい(無料)ゆとりの1LDK
静岡県浜松市中央区根洗町1360-6
1LDK /59.40m² /1984年3月
注目していただきたいのがスペースの広さ。
まずはLDK。18帖の広々空間になりました!
そしてキッチン。フロアが切り替えになっていてかわいい。
広さは1m50cm×3m35cmもあります。
大きめ冷蔵庫や奥行広めの収納を置いても余裕です。
キッチンの横の通路も1m60cm幅があるので、キッチン横にカウンターを置いて作業スぺスを増やすのもよいですね。
窓の外に目をやると遮るものの無い気持ちのよい景色。
ご機嫌に料理をすれば品数も増えちゃいます。
またクローゼットも2帖程と大容量。
リビングと寝室をつなぐ便利なウォークスルーになっています。
洗面も造作収納があり、収納棚を購入しなくてもすっきりタオルなどが収まります◎
ゆとりのスペースで、日々快適に楽しく過ごせそうですね。
続きを読む
見学したい(無料)隠れデザインが面白い
静岡県浜松市中央区根洗町1360-6
1LDK /59.40m² /1984年3月
ここに隠れデザインを見つけました。
裏に回ると鮮やかなレッドカラーで料理のテンションも上がります!
キッチンカウンターのアクセントウォールは、
大きなお花のモチーフがとてもインパクトで、空間が華やかになります。
LDKのシーリングファンでガラッとお部屋の空間にスパイスをプラス。
水回りには、手すりを完備!
えっ?手すり?以外とあると便利なんです。
思いがけない怪我や体調を崩したときに重要な役割をしてくれます。
ユニバーサルデザインもしっかりと設置されている物件もチェック!
リノベーションの物件は、面白いデザインがいっぱいです。
アクセントウォール、床、天井・・・隠れたデザインの宝庫です!
続きを読む
見学したい(無料)冷静と情熱のお部屋~Spanish style~
静岡県浜松市中央区根洗町1360-6
賃料61,000円
共益費/管理費3,000円
1LDK /59.40m² /1984年3月
朱色のキッチンにシーリングファン。キッチンユニットは白壁のアクセントと、どことなく情熱とオシャレさを併せ持つヨーロピアンスタイルのお部屋です。
実はリノベーションされ3DK→1LDKへ大変身した物件なのです。
注目していただきたいのがスペースの広さ!
まずはキッチン。赤い!トメート色です。
キッチンはスペースが1m50cm×3m35cmもあります!
大きめ冷蔵庫や奥行広めの収納を置いても余裕です。
キッチンの横の通路も1m60cm幅があるので、キッチン横にカウンターを置いて作業スぺスを増やすのもよいですね。
窓の外に目をやると遮るものの無い気持ちのよい景色。ご機嫌に料理をすれば品数も増えちゃいますね!
またWICも2帖程のスペースがあり、リビングと寝室をつなぐ様な間取りになっています。
洗面も造作収納があり、収納棚を購入しなくてもすっきりタオルなどが収まりそう。
ゆとりのスペースで日々の家事が楽しくなりそう!
続きを読む
見学したい(無料)光り輝くホワイトハウス
静岡県浜松市中央区根洗町1360-6
2LDK /59.40m² /1984年3月
南向きのお部屋には日光を遮るものはなく、2面の大きな窓からこれでもかと光が差し込みます。
白の壁紙と相まって、お部屋を明るく照らしてくれるでしょう。
キッチンは、収納も十分な人気の対面型。
11.7帖のLDKをさらに広く感じさせてくれます。
バルコニー続きの6帖の洋室も同様に、陽の光を充分に感じることができます。
ミントグリーンの壁紙が目を引く5.3帖の洋室や、洗面所・トイレのレンガ風フロアもかわいいポイント!
光り輝くお部屋で太陽の光を思いっきり浴びながら過ごしてみては?
~マイページを活用して便利な検索!~
マイページ登録すれば以下の便利機能が使えます!
・気になった物件のハートを押して「お気に入り」に保存
・お気に入り登録された物件の条件が変わったら更新情報がメールで送信されます。
・勤務先からの距離と時間で検索できるBP検索(ベストプレイス検索)
・検索条件を保存して、同じ条件で検索できる「検索条件保存機能」
この物件が気になったら
まずは内見のご予約を!
以下の問合せフォームよりご連絡ください。
続きを読む
見学したい(無料)どっち?どっち?ラクラクウォークイン。
静岡県浜松市中央区根洗町1360-6
/59.40m²
2方向から出入りできるウォークイン!
メリットもたくさんあります。
書斎でもいい。
片方締め切ってつかってもいい。
せっかく両方使えるのだから真ん中で区切って収納分別してもいい!
ライフスタイルの合わせた収納スタイルを選べるから面白い!
LDK大きな開口も特徴的で採光・換気も心地よい空気を感じることができそう!
開放的な空間に床の素材を切り返したデザインで、空間の変化を楽しめます。
アクセントウォールでオシャレ度をプラス。
廊下のニッチでお部屋までのアプローチを楽しめたり、
浴室はタイルでレトロな雰囲気を残しています。
リノベーションの物件を楽しめる一つです。
続きを読む
見学したい(無料)大地は ほの白く
静岡県浜松市中央区根洗町1360-6
賃料61,000円
共益費/管理費3,000円
1LDK /59.40m² /1984年3月
注目していただきたいのがスペースの広さ!
まずはキッチン。
狭い場所での料理はストレスになる上にスピードも落ちますよね。
こちらのキッチンはスペースが1500×3350もあります!
大きめ冷蔵庫や奥行広めの収納を置いても余裕です。
キッチンの横の通路も1600幅があるので、キッチン横にカウンターを置いて作業スぺスを増やすのもよいですね。
窓の外に目をやると遮るものの無い気持ちのよい景色。ご機嫌に料理をすれば品数も増えちゃいます!
また、WICも2帖程のスペースがあり、リビングと寝室をつなぐ様な間取りになっています。
洗面も造作収納があり、収納棚を購入しなくてもすっきりタオルなどが収まりそう。
ゆとりのスペースで日々の家事が楽しくなりそうですね~
続きを読む
見学したい(無料)リノベーションでレトロ×機能的なデザイン
静岡県浜松市中央区根洗町1360-6
/59.40m²
タイルをきれいに磨いた日は、気持ちよくお風呂タイムを満喫!
ところどころ昭和の空気感を感じられるこちらの物件。
窓のサッシやガラスなど、昭和レトロなアイテムが残っています。
レトロなデザインの良さを生かしたリノベーション物件です。
さらにリノベーションで機能性をアップしています。
可動式棚の収納スペースは、とても利便性があります。
ライフスタイルに応じて高さを変えることができ、
壁一面にあるのがポイントです。
また、アクセントウォールでオシャレな空間に仕上がっています。
玄関フロア、キッチンフロア、キッチンの壁などにデザイン柄を使用。
リノベーションは、“今”と“昔”が混在している新しいスタイルです。
レトロなデザインの良さを残して、
現代のライフスタイルに合わせて機能的なアイテムを取り入れる。
浜松市のリノベーションされた物件もじわじわと増えてきてます。
続きを読む
見学したい(無料)チャームポイントは畳ゾーン
静岡県浜松市中央区根洗町1360-6
1LDK /59.40m² /1984年3月
なんだかワクワク、畳ゾーンが!
キッチンは広くて使いやすそう!
真ん中のゾーンはシンプル~
畳ゾーンの畳は正方形でカワイイ印象♪
洋室の壁がミントグリーンでさわやか!
寝室にすると落ち着いて寝られそうです
収納は大きなウォークスルークローゼットがあります
荷物をまとめて詰め込んじゃいましょう~
1LDKですが畳ゾーンのおかげで
2LDKに感じられます!
あと、1階の特権として広々としたお庭が付いてきます!!
ガーデニングするも良し、アウトドアに凝ってみるも良し!
単純に洗濯物が気持ちよく干せるという良さもあります◎
くつろぐのが大好きなあなたに!オススメです
続きを読む
見学したい(無料)美しき白壁の世界。
静岡県浜松市中央区根洗町1360-6
/59.40m²
築30年以上の建物ですが、そんなことは微塵も感じさせない清潔感。これがリノベーションの力です。
なんと言っても印象的なのは白いお部屋にさらにアクセントとして加えられている白壁のキッチンユニット。アイアンの家具やアンティークな小物が映えそう。
掃出し窓3面で、南面は遮るものなし。白いお部屋に太陽の光がさらに明るさを提供してくれます。
バルコニーに出るともう一段下がれるではないですか。そう、1階には庭があります。しかもかなり広い!砂利の敷き詰められた庭ですが、隣のお部屋はプランターで家庭菜園を楽しいんでしました。夏はプールを置いて子供と遊ぶこともできそうです。
こんな広いお庭がついているのに、さらに倉庫まであります。
さすが平原・根洗といったマンションです。周辺の解放感は抜群ですが、お店が少なかったり、遠かったりするので、利便性は要確認です。
続きを読む
見学したい(無料)光と風とシャーロット
静岡県浜松市中央区安松町44-8
/36.00m²
今日も風が気持ち良いね。
さあ、ご飯にしようか?」
ペットと過ごす休日。
イメージするだけでワクワクしてしまうのは私だけでしょうか??
洗面と部屋の扉にはペットドア、腰壁もありペットと暮らすのにもってこい。
キッチンの棚や洗面のモザイクタイル風クッションフロア、タオル掛けはプロバンスを思わせるディテール。
長さ1800のキッチンは調理スペース広めの2口ガスコンロ。ちょっとした戸棚にはハーブやスパイス、キッチンツールを置いて…料理が楽しくなっちゃいます。
光あふれるお部屋にお気に入りの家具や観葉植物でステキな空間に。
リビングは広々使えるので、ペットがいても走りまわれます。
もちろんうちのシャーロットも快適に過ごしてます。
あっ、シャーロットってペルシャ猫のこと。このお部屋を見た時に頭に浮かんだ想像の猫です|д゚)
続きを読む
見学したい(無料)光と風とジョージ。
静岡県浜松市中央区安松町44-8
1R /38.88m² /1986年10月
ペットと過ごす休日。
イメージするだけでワクワクしてしまうのは私だけでしょうか??
洗面と部屋の扉にはペットドア、腰壁もありペットと暮らすのにもってこい。
キッチンの棚や洗面のモザイクタイル風クッションフロア、タオル掛けはプロバンスを思わせるディテール。
長さ1800のキッチンは調理スペース広めの二口ガスコンロ。ちょっとした戸棚にはハーブやスパイス、キッチンツールを置いて…料理が楽しくなっちゃいます。
光あふれるお部屋にお気に入りの家具や観葉植物でステキな空間に。
リビングは広々使えるので、ペットがいても走りまわれます。
もちろんうちのジョージも快適に過ごしてます。
あっ、ジョージってコーギー犬のこと。このお部屋を見た時に頭に浮かんだ想像の犬です|д゚)
続きを読む
見学したい(無料)光と風とエリザベス。
静岡県浜松市中央区安松町44-8
/36.00m²
今日も風が気持ち良いね。
さあ、ご飯にしようか?」
ペットと過ごす休日。
イメージするだけでワクワクしてしまうのは私だけでしょうか??
洗面と部屋の扉にはペットドア、腰壁もありペット(猫)と暮らすのにもってこい。
キッチンの棚や洗面のモザイクタイル風クッションフロア、タオル掛けはプロバンスを思わせるディテール。
長さ1800のキッチンは調理スペース広めの二口ガスコンロ。ちょっとした戸棚にはハーブやスパイス、キッチンツールを置いて…料理が楽しくなっちゃいます。
光あふれるお部屋にお気に入りの家具や観葉植物でステキな空間に。
リビングは広々使えるので、ペットがいても走りまわれます。
もちろんうちのエリザベスも快適に過ごしてます。
あっ、エリザベスってペルシャ猫のこと。このお部屋を見た時に頭に浮かんだ想像の猫です|д゚)
続きを読む
見学したい(無料)究極のワンルーム![ペット可]
静岡県浜松市中央区安松町44-8
1R /38.88m² /1986.1
お部屋はシンプルな1R。
ですが普通のワンルームではないのです。
なんと洋室の広さが14.5帖あります!広い!
猫ちゃんとわいわい遊んでも充分の広さです。毎日思いっきり遊んであげましょう。
お部屋もオレンジの壁紙と白い床がなんとも可愛らしい雰囲気。
キッチンも棚の一工夫で一気にオシャレに。作業スペースも広々していて、実用性もばっちりです。
さらに驚くのが収納の大きさ!
キッチン後ろにクローゼットが2つあるんです。
ハンガーパイプがついているものと2段に仕切られているものがあり、片付けのしやすさ抜群です。
さらにお部屋を繋ぐ各扉には、猫ちゃんに優しい小窓付き、、!
毎日可愛いが止まらないお部屋になりそうです。
是非このお部屋でダイスキな猫ちゃんとの暮らしはいかがでしょうか?
続きを読む
見学したい(無料)フランスの街角からボンジュール~
静岡県浜松市中央区安松町44-8
/38.88m²
ここいらではひと際、目を引く物件。
間取りは1Rですが、キッチンが仕切られていたり
トイレとバスが別室にあったりでそこそこ広さを感じます。
なんといっても中々巡り合えないデザイン性の高い物件。
物件名の「Runon」は仏語で「キラキラと光り輝く」という意味です。
キラキラ明るい毎日をこちらのお部屋で実現してみては如何でしょう?
続きを読む
見学したい(無料)やっぱりいちゃいちゃしたい[ペット可]
静岡県浜松市中央区安松町44-8
賃料56,000円
1R /38.88m² /1986年10月
そんなおしゃれな物件は、大好きなペットといちゃいちゃできるマンションです。
お部屋は茶色を基調とした大人っぽい雰囲気。
間取りはワンルームですが14.5帖もあります。
ペットと遊んでも充分の広さです。
お部屋はぐるっと腰壁で囲われ、部屋の扉にはかわいいミニドアもあります。
ドアをくぐってお出迎えに来てくれたら、、かわいすぎて悶絶です。
ただし、その分脱走にはくれぐれもご注意くださいね。
居室とキッチンの床は切り替えになっていて、ワンルームをゆるやかにゾーニングしてくれています。
ワイド1800のキッチンは、調理スペース広めの2口ガスコンロ。
お料理もばっちり楽しめそうです。
そしてこのお部屋、ところどころにかわいいディティールが仕込まれているのがポイント。
カーテンレールやタオルハンガー、ペーパーホルダーまでこだわっています。
キッチン横には脱衣洗面所と繋がる小窓があります。
かわいいだけじゃなくって、いつでも洋室をのぞけるのでペットストーキングができます。
ペットちゃんは近くから見てもかわいいですが、遠くから客観的に見てもめちゃくちゃかわいいんですよね。
このお部屋なら人間も快適に、愛するペットちゃんとラブラブな日々が送れそうですね。
続きを読む
見学したい(無料)NYブルックリンの街並みが現る[ペット可]
静岡県浜松市中央区冨塚町2071-1
3LDK /74.92m² /2020/01
古びたブリックレンガのような風合い。アイアン風なブラックな玄関ポーチのひさし。無骨なポーチの壁付け照明。
外観が素敵すぎ!
でも中に入って外観だけじゃないことが分かりました。
1階は16帖のLDK。キッチンはワイド2400のシステムキッチンで、なんと食洗機付きです。
そしてなんとリビングの一部には床暖房。賃貸で床暖房はうれしすぎますね。
お風呂も1坪風呂と設備強めです。
2階へ上がると3部屋、それぞれシンプルです。
ベランダは外観と同じブリックブロック風に仕上がっています。
場所は富塚の浜松いわた信用金庫の目の前。スーパーも、小学校や中学校も近い。
そして佐鳴湖へのアクセスもよいとても素敵なエリアです。
わんちゃん、ねこちゃんとも一緒に住めます。
続きを読む
見学したい(無料)土間が変えるライフスタイル。
静岡県浜松市中央区早出町1211-7
/48.76m²
このお部屋の特徴は『土間! 30cm角のタイルが玄関からキッチンスペースまで敷き詰められています。お買い物した荷物を靴を脱がなくてもキッチンまで運び込めるということです!両手いっぱいにお買い物したとき、荷物を置いて、靴を脱いで、また持って運ぶって意外と面倒ですよね。
こちらのお部屋では、そんな日々のささやかなラッキー感が幸せへと繋がるのかもしれません。
床はナチュラルカラーのフローリング材を使用し、木の温かみを感じるお部屋です。壁紙は全体的に薄く土色をした壁紙を使っているので空間としてはとてもシックな印象です。
水廻りはキッチンも含め、何も文句はありません。お風呂は追い焚きですし、浴室乾燥まで付いています。
北側の洋室は5.5帖ですが、少し横長の作りになっています。幅が1.9m程なのでダブルベッドがちょうどよく入って50cmほどの通路が出来る位ですので大きいベッドを入れたい方は注意が必要です。
コンビニも徒歩1分。面する道路には街路樹が整備されていて環境的にも素敵な場所です。
ちょっと余裕のある一人暮らしの方や新婚さんにぴったりなお部屋です。
続きを読む
見学したい(無料)ローズ色のキッチン
静岡県浜松市中央区早出町1211-7
賃料67,000円
共益費/管理費3,000円
1LDK /48.76m² /1982年1月
玄関からキッチンまでタイルで繋がっており、欧米らしい雰囲気を玄関から感じとることが出来ます。
キッチン台は全体的にローズ色で、とても可愛らしいです!
料理好きな人はもちろん、そうでない方も気分がアップして料理をしたくなるに違いありません。
16.4帖もあるリビングルームは自由自在に家具を設置することが可能です。
バス・トイレは別になっており、お風呂は追い炊き機能が付いてます。
洋室は、縦長になっているのでベッドなどの配置には注意が必要かもしれません。
西向きなので、夕方になると電気を付けなくても良いくらい気持ちいい太陽の光が入ってきます。
一人暮らしの方や、カップルにおすすめです。
続きを読む
見学したい(無料)ふたりではじめて
静岡県浜松市中央区早出町1211-7
/48.76m²
そんなお部屋が中区早出町にあります。
建物自体は、築40年のベテランマンション。
でも内装はリノベーション工事をして現代風に仕上がっています。
10.6帖のLDKは、4.7帖の洋室とつないでしまえば大きなLDKに。
4.7状の洋室には幅250㎝の容量の大きなクローゼット。
寝室となる5.5帖の洋室には、200㎝のクローゼットの他に120㎝×70㎝のプチ収納。
二人暮らしには十分なクローゼットと収納力があります。
シャワートイレはもちろん、追い焚き機能も、浴室乾燥機能も付いた水回りの設備クオリティ。
エアコンは、2つの洋室に一つずつ付いています。
インターネットは無料で利用できるので、お部屋でまったり映画を観たり、音楽を聴いたり。
縦列ですが、お二人のお車は1台ずつ停められます。ちなみに、一番近くのコンビニは徒歩1分のセブンイレブン♪
ドラッグストアも、スーパーも近く、生活しやすいこのエリア。
二人の新生活を、このお部屋でスタートしましょう!
続きを読む
見学したい(無料)salida del sol Sohde
静岡県浜松市中央区早出町1211-7
1LDK /48.76m² /1981年12月
土間リビングとスキップフロアの融合したお洒落なアーバン空間。
もちろんサロンとしての店舗や事務所としての利用も可能になります。
来店時も1階の特典「専用庭」から直接LDKへの出入りも可能でまさに店舗としての利用にもってこいのお部屋。
アナタの夢の開業をしてみませんか?
もちろん居住用のお部屋としてもご利用も可能です。
続きを読む
見学したい(無料)築40年の極上リノベ。
静岡県浜松市中央区早出町1211-7
/48.76m²
もちろん良質な物件だからこそ意味があるのだ。
築40年のこちらの建物は、この町のシンボルタワーとして町や暮らす人々を見守り続けている。
更にオーナー様が語る、町や歴史に対しての熱い思いがたくさん詰まった場所だからこそ極上のリノベーションが完成するのだ。
地域全体の活性化と建物というのは、切っても切り離せないのだ。
周囲の環境を熟知したカタチがこのようなシンボルタワーとなって、これから先も人々に愛され続けていってほしい。
続きを読む
見学したい(無料)SARON dE Soude。
静岡県浜松市中央区早出町1211-7
/48.76m²
と言っても1LDKのお部屋になります。
もちろんサロンとしての店舗や事務所としての利用も可能になります。
玄関から続き土間続きのLDK17.4帖はこのままでもネイルなどのサロンとしての利用が可能な内装になっております。
来店時も1階の特典「専用庭」から直接LDKへの出入りも可能でまさに店舗としての利用にもってこいのお部屋。
アナタの夢の開業をしてみませんか??(=^・^=)
もちろん居住用のお部屋としてもご利用も可能です。
続きを読む
見学したい(無料)salida del sol Sohde。
静岡県浜松市中央区早出町1211-7
/48.76m²
土間リビングとスキップフロアの融合したお洒落なアーバン空間。
もちろんサロンとしての店舗や事務所としての利用も可能になります。
来店時も1階の特典「専用庭」から直接LDKへの出入りも可能でまさに店舗としての利用にもってこいのお部屋。
アナタの夢の開業をしてみませんか??(=^・^=)
もちろん居住用のお部屋としてもご利用も可能です。
続きを読む
見学したい(無料)気軽に部屋でHome Party
静岡県浜松市中央区原島町8-1
賃料52,000円
共益費/管理費3,000円
1DK /43.74m² /1988年7月
「恋人に料理の腕を振るいたい!」、でも実家住みでは親の目が気になって...。
そんな方に是非オススメしたいお部屋です。
元々は2DKのお部屋はリノベーションし大きな1Kへと生まれ変わりました。
これだけの広さが大人数でワイワイ出来そうです。
注)騒音と、来客用駐車場はありませんのでご注意ください。
通常の1Kタイプは玄関ドア開け廊下のスペースにキッチンがありなかなか料理に集中することが出来ません。
今回はキッチンルームが作られこれでアナタの料理力本領発揮出来ること間違いなし。
キッチンは2口コンログリル付き。
冷蔵庫や調理器具をしっかり出来る収納も完備されたスペースは約3帖、廊下には料理本をストック出来る収納棚を作りました。
お部屋にはクローゼットが2ヶ所あるので内1ヶ所を調理器具の中の場所にしてもいいかもしれませんね。
さぁHome Partyを始めよう!
続きを読む
見学したい(無料)浜松で叶える開業の夢!
静岡県浜松市中央区西浅田2-6-25
/56.67m²
浜松に最近できたニュースポット、スイーツバンクのほど近い場所にある今回の物件はピンクの外観が目を引く建物です。
近くに人気のスポットがあると自然と人が集まるからうれしいですね!
隣には学習塾があり、周辺には小学校があります。
住宅街に囲まれていて、物件前は大きい道路ではないですが車通りは結構多い印象でした。
お店を開くにあたって道路に面しているのはやっぱり大事なポイントですよね!
気になる内装は、前面ガラス張りで開放感抜群!
シンプルなので自分流に店舗づくりしましょう!
ちょっとした収納があって、ここにも荷物を収納できます。
キッチンも備わっているので簡単な調理も可能です。
独立洗面所、トイレもシンプルで清潔感ありです◎
募集は美容、健康、介護、教育、オフィス向けで出ております。
隣に学習塾があるので、子供向けの習い事でも人が集まりそうですね。
浜松駅からは南口より車で7分です!
浜松で店舗をお探しの方はぜひご検討ください。
365LIFEでは賃貸仲介とともに、お店のコンセプト作りから内装デザインまで一貫して承っております。
掲載以外の物件もお取り扱いできますので、まずは事業内容をお聞かせください!
続きを読む
見学したい(無料)高丘の人が集まる場所に。
静岡県浜松市中央区高丘北1-52-23
/56.07m²
おススメの業種としては、エステ、パーソナルトレーニングジム、介護施設など。
住宅が多く、小中学校も近いので、学習塾やスクールも◎
もちろん事務所としての利用も、可能です!
駐車場は建物裏に4台を確保しております。
前面はガラス張りで四角い構造なので、どんな業種もレイアウトしやすいと思います。
前面の道路は交通量が多いわけではないので、左右から駐車場へ入れる点も、地味に◎
高丘に住む人々の集まる場所に、なりましょう。
続きを読む
見学したい(無料)TERAWAKIスタイリッシュハウス
静岡県浜松市中央区寺脇町893-3
/77.84m²
壁・天井・床1枚隔てて知らない人が住んでるというとやっぱり少し抵抗はありますね。
特に小さなお子さんのいる家庭は子供の夜泣きや走り回る音特に気になっちゃいますね。
たとえ音の響きにくい「鉄筋コンクリート造」であったとしても隔てる部分があれば100%聞こえないと言い切れません。
そんな時こそ「戸建て」物件を探そうじゃありませんか。
数は少ないですが、探せばあるんです。
外観もスタイリッシュデザインで格好いいですよ。
子供の成長を戸建て住宅で見届けてみませんか??
続きを読む
見学したい(無料)平成最後の新年は新居にて.1F
静岡県浜松市中央区鴨江3-39-16
/27.30m²
そして来年はいよいよ平成ラストイヤーです。
平成ラストイヤーだからこそ何か記念になることしてみませんか!?
今回ご紹介のお部屋は12月完成予定の新築物件、1棟4戸の小さなアパートが中区鴨江に現在建築中です。
室内設備は充実、JR浜松駅も頑張れば徒歩圏内と好立地、もちろん駐車場も敷地内にて1台分確保可能です。
今までの生活を変えたい!メモリアルな年だから何か記念になることをしたい!、という考え方に共感出来る方は是非この機会にひとり暮らしを始めてみよう。初めてだからお部屋選びの右も左も分かりませんという方、新築物件を選んでおけば間違いありませんよ。
続きを読む
見学したい(無料)出窓をオシャレにインテリアコーディネート!
静岡県浜松市中央区布橋3-7-15
賃料47,000円
共益費/管理費3,000円
1R /24.80m² /1987年3月
ちょっとレトロなイメージが漂う出窓のスペースが魅力的な物件です。
80年代後半に建てられ、壁紙やキッチンスペースなど、使い勝手やデザインを現代のライフスタイルにあわせリノベーションしています。
この出窓スペースは、奥行があり、小さな空間ですが、一つの世界観が生まれます。
好きな雑貨を置いてみたり、観葉植物や多肉植物などを置いてみたり・・・色々な楽しみ方をしたいですね!
洗面室と洋室の間にある小窓で光の演出を楽しんだり、窓があることで部屋と部屋のつながりを感じることができます。
続きを読む
見学したい(無料)MIKATABARAスタイリッシュハウス 2nd
静岡県浜松市中央区三方原町34-5
/76.59m²
壁・天井・床1枚隔てて知らない人が住んでるというとやっぱり少し抵抗はありますね。
特に小さなお子さんのいる家庭は子供の夜泣きや走り回る音特に気になっちゃいますね。(´・ω・`)
たとえ音の響きにくい「鉄筋コンクリート造」であったとしても隔てる部分があれば100%聞こえないと言い切れません。
そんな時こそ「戸建て」物件を探そうじゃありませんか。
数は少ないですが、探せばあるんです。
外観もスタイリッシュデザインで格好いいですよ。
子供の成長を戸建て住宅で見届けてみませんか??
続きを読む
見学したい(無料)【新築】年に数棟、人気の遠鉄沿線新築2LDK。
静岡県浜松市中央区上島5-6-7
/57.32m²
人気の遠鉄沿線エリアの新築物件入居募集開始です。
人気エリアということもあり通年お部屋探し苦労するエリア、それが「遠鉄沿線」。新築物件は建っても年に数棟、かと言って築浅の建物もそう多くはない新婚にとって激戦区のエリアです。
現在建築中の当物件は6月末の完成予定、建築中のお部屋の為ご内覧は出来ませんが同型モデルのお部屋でもよろしければ市内の内覧可能なお部屋をお探しします。
何より悩んでいる暇はないさ!なんせ人気の遠鉄沿線だもの!!
迷う暇さえない人気エリアでお部屋探しのするのであればもっとも決断力が必要です。
続きを読む
見学したい(無料)年に数回、人気の遠鉄沿線築浅1LDK。
静岡県浜松市中央区上島5-6-7
/45.84m²
人気の遠鉄沿線エリアの築浅物件入居募集中です。
人気エリアということもあり通年お部屋探し苦労するエリア、それが「遠鉄沿線」。築浅建物がそう多くはない新婚さんにとって激戦区のエリアです。
何より悩んでいる暇はないさ!なんせ人気の遠鉄沿線だもの!!
迷う暇さえない人気エリアでお部屋探しのするのであればもっとも決断力が必要です。
続きを読む
見学したい(無料)Stylish House KASAI。
静岡県浜松市中央区笠井町1612-1
/77.84m²
壁・天井・床1枚隔てて知らない人が住んでるというとやっぱり少し抵抗はありますね。
特に小さなお子さんのいる家庭は子供の夜泣きや走り回る音特に気になっちゃいますね。(´・ω・`)
たとえ音の響きにくい「鉄筋コンクリート造」であったとしても隔てる部分があれば100%聞こえないと言い切れません。
そんな時こそ「戸建て」物件を探そうじゃありませんか。
数は少ないですが、探せばあるんです。
外観もスタイリッシュデザインで格好いいですよ。
子供の成長を戸建て住宅で見届けてみませんか??
続きを読む
見学したい(無料)スタリッシュハウスKASAI。
静岡県浜松市中央区笠井町1612-1
/77.84m²
壁・天井・床1枚隔てて知らない人が住んでるというとやっぱり少し抵抗はありますね。
特に小さなお子さんのいる家庭は子供の夜泣きや走り回る音特に気になっちゃいますね。(´・ω・`)
たとえ音の響きにくい「鉄筋コンクリート造」であったとしても隔てる部分があれば100%聞こえないと言い切れません。
そんな時こそ「戸建て」物件を探そうじゃありませんか。
数は少ないですが、探せばあるんです。
外観もスタイリッシュデザインで格好いいですよ。
子供の成長を戸建て住宅で見届けてみませんか??
続きを読む
見学したい(無料)【新築】LUTAN~家族・愛犬と過ごす時間をカタチに~2F
静岡県浜松市中央区古川町330
/58.99m²
家事は分担し、楽しく効率的にしたい。
生活感は隠しつつ、趣味や想い出と一緒に暮らしたい。
一緒に過ごすスペースを充実したい。
そんな「ふたり目線でアレンジできる暮らし」がコンセプトです。
今回はペットの同居も可能なお部屋です。
続きを読む
見学したい(無料)【新築】LUTAN~家族・愛犬と過ごす時間をカタチに~1F
静岡県浜松市中央区古川町330
/48.35m²
家事は分担し、楽しく効率的にしたい。
生活感は隠しつつ、趣味や想い出と一緒に暮らしたい。
一緒に過ごすスペースを充実したい。
そんな「ふたり目線でアレンジできる暮らし」がコンセプトです。
今回はペットの同居も可能なお部屋です。
続きを読む
見学したい(無料)【新築】LUTAN~家族の時間をカタチに~2F。
静岡県浜松市中央区下石田町1759-1
/58.04m²
家事は分担し、楽しく効率的にしたい。
生活感は隠しつつ、趣味や想い出と一緒に暮らしたい。
一緒に過ごすスペースを充実したい。
そんな「ふたり目線でアレンジできる暮らし」がコンセプトです。
今回はペットの同居も可能なお部屋です。
続きを読む
見学したい(無料)【新築】LUTAN~家族の時間をカタチに~1F。
静岡県浜松市中央区下石田町1759-1
/49.60m²
家事は分担し、楽しく効率的にしたい。
生活感は隠しつつ、趣味や想い出と一緒に暮らしたい。
一緒に過ごすスペースを充実したい。
そんな「ふたり目線でアレンジできる暮らし」がコンセプトです。
今回はペットの同居も可能なお部屋です。
続きを読む
見学したい(無料)【新築】電車通勤の夢を!2F。
静岡県浜松市浜名区小林1446-2
/42.28m²
人気エリアと言うこともあり中々見つからないんですよね希望物件が...。
ましてや新築・築浅物件を探したらつくづく実感するのではないでしょうか?
そんな方に朗報です!
来年3月完成予定の新築物件の募集が開始になりました。
建築中の為ご内覧は出来ませんが、同型モデルのお部屋でもよろしければ市内で内覧可能なお部屋を探してみます。
室内の設備が充実しているのも魅了ですが、新築1LDKなのに家賃が52,000円とお得な設定は最大の魅了ですね。
続きを読む
見学したい(無料)【新築】電車通勤の夢を!1F。
静岡県浜松市浜名区小林1446-2
/32.44m²
人気エリアと言うこともあり中々見つからないんですよね希望物件が...。
ましてや新築・築浅物件を探したらつくづく実感するのではないでしょうか?
そんな方に朗報です!
来年3月完成予定の新築物件の募集が開始になりました。
建築中の為ご内覧は出来ませんが、同型モデルのお部屋でもよろしければ市内で内覧可能なお部屋を探してみます。
室内の設備が充実しているのも魅了ですが、家賃が新築1LDKなのに4万円代とお得な家賃設定は最大の魅了ですね。
続きを読む
見学したい(無料)MIKATABARA stylish 3L。
静岡県浜松市中央区三方原町186-11
/77.84m²
壁・天井・床1枚隔てて知らない人が住んでるというとやっぱり少し抵抗はありますね。
特に小さなお子さんのいる家庭は子供の夜泣きや走り回る音特に気になっちゃいますね。(´・ω・`)
たとえ音の響きにくい「鉄筋コンクリート造」であったとしても隔てる部分があれば100%聞こえないと言い切れません。
そんな時こそ「戸建て」物件を探そうじゃありませんか。
数は少ないですが、探せばあるんです。
今回のお部屋は来年3月完成予定の希少な3LDK戸建物件、あの馬鈴薯の産地「三方原町」に発見しました。
外観もモダンデザインで格好いいですよ。
子供の成長を戸建て住宅で見届けてみませんか??
続きを読む
見学したい(無料)MISHIMA stylish terrace。
静岡県浜松市中央区三島町1318-2
/77.84m²
今回ご紹介の「ライフソラージュ」は、2階建て総戸数2戸のテラスハウスです。
市内でよく見かけるテラスハウスの間取りとはことなり、1階に洋室2室・2階に約14帖もある大きなLDK・洋間1室となっております。
室内は設備充実でママも嬉しい、素敵な外観で友人招いてパパも自慢げ!
さらには嬉しいペット飼育可物件、そんなお部屋です。
続きを読む
見学したい(無料)【新築】浜松駅近の新築をお探しなら...Big。
静岡県浜松市中央区龍禅寺町280
/48.02m²
JR浜松駅徒歩圏内の新築物件!、さらに敷地内駐車場まで確保可!!。
探してたんだよこんな物件を!!
なんて人も多いのではないでしょうか?
多少職場まで遠くても車があれば通勤可能、それよりは週末LIFEを重視して駅近に住まう。
毎週末時間気にすることなく飲み会を!
そんなアナタへ贈る素敵なお部屋です。
続きを読む
見学したい(無料)【新築】愛犬と共に新築で!2L。
静岡県浜松市中央区御給町18-2
/57.54m²
南区御給町に2018年2月に完成予定!!
御給町って...!?
あまり聞きなれない町名かもしれませんが、国道150号線・国道1号線の芳川町近くと言えばお分かりになる方もいるのではないでしょうか...。
浜松市内のみならず竜洋・福田方面や新居・湖西方面への通勤も便利です。
正直あまり人気のあるエリアとは言えないのですが、南区だからこそ出来るこの家賃!
とってもお得だと思いません??
あっ、ちなみに小型犬のみならず猫の飼育も可能です。
続きを読む
見学したい(無料)