掲載物件一覧
26314件
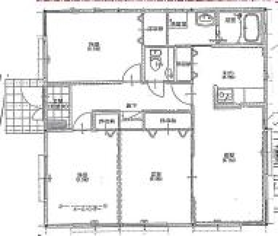
平屋という幸福感。
静岡県浜松市中央区冨塚町2132-80
/56.43m²
住まいの原型とも言われている平屋ですが、現代でもその人気は衰えません。
平屋に住むメリットとして最初に思い浮かぶのが、縁側があること。高齢の方や小さなお子様がいるご家庭だとこれほど安心できる空間はありません。近年の住宅はバルコニーやベランダを2階に設置するのが主流ですが、安心感や落ち着く感じという点では縁側の方が高いです。
バリアフリーで階段がなく、シンプルな同線という点も大きなメリットです。最近では全ての人にとって使いやすい空間がユニバーサルデザインと呼ばれていますが、平屋はその元祖とも言えます。高齢の方だけではなく、全ての世代にとって住みやすい形なのです。毎日いる場所だからこそ、無駄な動きがないストレスフリーな空間というのは意外に大事なことですよね。
そんなメリットの多い平屋が街中へのアクセスも良い富塚町にあります。しかも築浅の物件なので、デザインも新しく、設備も綺麗な状態です。
最新版の平屋ライフ、あなたも試してみませんか?
続きを読む
見学したい(無料)「平屋住宅」に住まう。
静岡県浜松市中央区芳川町541-1
/53.35m²
久々に登場、「人気の平屋借家シリーズ」今回はさらに小型犬飼育可のバージョンアップでお届け。
人の目が届きやすく人の移動が容易であるため幼児向け施設や高齢者住宅に向いている平屋住宅、アパートやマンションなどの共同住宅で1番気になる騒音問題は心配ご無用でストレスフリーです。
お子様だけでなく愛犬も嬉しい大きな専用庭付き、母はプランターで家庭菜園・父は日曜大工・子供はプールで遊び犬は日向ぼっこ、1年中様々な要素で大活躍しそうですね。
続きを読む
見学したい(無料)愛犬と共に「平屋住宅」で…
静岡県浜松市中央区法枝町400-3
/56.25m²
久々に登場、「人気の平屋借家シリーズ」今回はさらに築浅・小型犬飼育可・オール電化と3大要素を加味しパワーアップバージョンでお届けです。
人の目が届きやすく人の移動が容易であるため幼児向け施設や高齢者住宅に向いている平屋住宅、アパートやマンションなどの共同住宅で1番気になる騒音問題は心配ご無用でストレスフリーです。
お子様だけでなく愛犬も嬉しい大きな専用庭付き、母はプランターで家庭菜園・父は日曜大工・子供はプールで遊び犬は日向ぼっこ、1年中様々な要素で大活躍しそうですね。
続きを読む
見学したい(無料)楽!生活動線スッキリ戸建賃貸!
静岡県浜松市浜名区高畑32-1
2LDK /60.20m² /2009
戸建ては、一度は憧れますね。
小さいお子さんがいると特に"音"が気になります。しかし、上下の音の心配もなく生活ができますね。のびのびと子供の成長を感じることができそうですね。
またバルコニーからちょっと覗くと駐車場です。大きなモノのお買い物などバルコニーからひょいっと搬入できそうです!また駐車場は、2台込。
キッチンから洗面・浴室・トイレへの動線がまとまっています。コンパクトでスッキリしているので、家事の時短にもなります。
生活動線を機にされる方は、ぜひお問い合わせ下さい。
続きを読む
見学したい(無料)街中ひっそり佇むapartment。
静岡県浜松市中央区塩町7171
/29.23m²
2階建総戸数4戸の建物は都会の形相とかけ離れたどこにでもあるアパートというべきか...。
1番のアピールポイントはやはり立地でしょう!!。
JR浜松駅まで徒歩10分圏内の当物件には、なんと駐車場料金が1台分含まれております。街中物件でも駐車場が確保されているという点は浜松が車社会だという点を物語っているのでしょう。
間取りこそ1LDK表記ではあるが、広さが約29㎡と最低限のリビングと寝室が確保出来る大きさです。JRを使っての出張や毎週末街中でオールナイトという方単身者にオススメのお部屋ですね。
続きを読む
見学したい(無料)家族もペットも守る24時間セキュリティ。
静岡県浜松市中央区恩地町9-3
/68.88m²
人の目に届きやすく人の移動が容易であるため幼児向け施設や高齢者住宅に向いています。
特にこの物件はセコムの24時間セキュリティがついていますので、仮に侵入者がいたとしてもすぐに知らせてくれます。セキュリティ対策を強化したい方にはかなりオススメです。
そして3つの部屋からアクセスできるほどの大きな庭。平屋の物件でもここまで広い庭はまれです。
しかもペット可で、小型犬やネコちゃんが部屋を行き来しやすいように各扉に窓もついています。お庭でペットや子供と遊ぶにもガーデニングを楽しむにも充分なスペースとなっています。
玄関はバリヤフリーになっているので高齢者の方や車いすの方がいても入りやすい構造になっています。家族を大切にしたい方に必見の平屋物件です。
続きを読む
見学したい(無料)家族に優しい平屋生活。
静岡県浜松市中央区楊子町175-16
3SLDK /68.00m² /2009年3月
土地の価格が高くなり建物を上へ上へ積み上げる様になり戸建て住宅では2階建て・3階建てを多く目にするようになりました。
最近ではまた「平屋」が見直されてきており新築される住宅でもポツポツと平屋住宅目にします。
人の目に届きやすく人の移動が容易であるため幼児向け施設や高齢者住宅に向いています。
アパートやマンションの共同住宅で1番気になるのが騒音問題、特に小さなお子さんの走り回る音や楽器類の音が出るおもちゃで遊ぶ音そんな音も気にしなくていいんです。
ご家族で住める物件を探している方、ぜひご検討くださいませ。
続きを読む
見学したい(無料)駅近です。3LDKです。新築なんです!
静岡県浜松市中央区曳馬4-3-40
/85.50m²
遠州鉄道曳馬駅から徒歩9分。曳馬の中心的に位置するこの貸家はなんと3LDK!個人的には自分の家を建てるなら理想の間取りと設備でした。
1階は約15帖の広々LDKとサニタリーが集約。対面型のシステムキッチンは2口のIHクッキングヒーター。人口大理石なのでお手入れも楽チンです。
脱衣所もお風呂もキレイで広いのはもちろんのこと、どちらにも採光窓があるので明るいです。
2階をご案内します。3部屋全ての部屋に収納があり、特に南側のバルコニーがある洋室にはウォークインクローゼット。3階のメインルームになります。
専用の庭も砂利が敷き詰められてかなり大きく、水道もあります。現状は前に建物がないのでとても明るいですが、隣が空地なので建物が建つかもしれません。
駅近ですがもちろん駐車場もあります。2台止められます。
個人的には家の前の交差点が交通量が多いのに両側一旦停止なので、とても苦手な交差点です。ご注意を。
続きを読む
見学したい(無料)前も後ろも視界良好
静岡県浜松市中央区小池町2493
/63.36m²
家の大きな開口部からの視界良好です!
前方よーし!後方よーし!という具合でしょうか。
2階からの景色もよさそうですね。
玄関の前には、しっかりガードレールと視界除けのボードがあります。
飛び出し防止策もしっかり完備されています。
室内の注目ポイントは、2点あります。
①L字型のLDKです。キッチンが半独立タイプ。
システムキッチンもレッドカラーでお料理もはかどります。
②収納スペースが充実しています。
まず、廊下の収納スペースです。上段と下段で使い分けができます。
寝室のウォークインクローゼットは天井高も高く広々と収納できそうです。
続きを読む
見学したい(無料)毎日SHOPPING!
静岡県浜松市中央区小池町2493
/63.36m²
のどかな田畑や細い道路を抜けて、261号線沿いにある戸建てです。
敷地内に4戸並んで建っていて、こちらが残りの1戸です!
お買い物に便利な立地の築浅物件だけに人気です。
お部屋に入ると、使い易い形のLDK。お部屋に入ってすぐに見えない奥にあるきっちんの配置もいいですね!
2階の2部屋は、どちらも6.5帖。
お子さんが1?2人くらいいるご家庭の暮らしが浮かびます。
駐車場が目の前に2台というのも嬉しいですね!
ぜひ、お早めにご覧ください!
続きを読む
見学したい(無料)ALL DAY静かな暮らし
静岡県浜松市中央区市野町452-2
/61.76m²
住宅地なので住環境としては、とても静かです。
敷地内に2戸並んで建っていますが、駐車場1台分をあけて建っているので、圧迫感などは感じません。
お部屋に入ると、横長のLDK。真新しいシステムキッチンがこの家の顔といった佇まいです。
落ち着いたトーンのフローリングは、幅広い年齢層に受け入れられそう。
新婚さんから、ご年配まであらゆる方に好かれそうなお部屋です。
ぜひ、ご覧ください!
続きを読む
見学したい(無料)主役は子供の「平屋住宅」。
静岡県浜松市中央区名塚町115
3LDK /68.88m² /2006年12月
2階建て以上の建物と比較すると階段などの垂直方向の移動設備が不要で、
動線が水平方向のみで構成されるため、平面計画が容易であるという特徴があります。
土地の価格が高くなり建物を上へ上へ積み上げる様になり、戸建て住宅では2階建て・3階建てを多く目にするようになりました。
最近ではまた「平屋」が見直されてきており新築される住宅でもポツポツと平屋住宅目にします。
人の目に届きやすく人の移動が容易であるため幼児向け施設や高齢者住宅に向いています。
アパートやマンションの共同住宅で1番気になるのが騒音問題、
特に小さなお子さんの走り回る音や楽器類の音が出るおもちゃで遊ぶ音そんな音も気にしなくていいんです。
走り回る子供の姿を見ながら子供の成長を楽しめる家でもありますね。
続きを読む
見学したい(無料)【賃料変更しました!】愉快痛快「平屋住宅」。
静岡県浜松市中央区名塚町115
3LDK /68.88m² /2006年12月
土地の価格が高くなり建物を上へ上へ積み上げる様になり戸建て住宅では2階建て・3階建てを多く目にするようになりました。
最近ではまた「平屋」が見直されてきており新築される住宅でもポツポツと平屋住宅目にします。
人の目に届きやすく人の移動が容易であるため幼児向け施設や高齢者住宅に向いています。
アパートやマンションの共同住宅で1番気になるのが騒音問題、特に小さなお子さんの走り回る音や楽器類の音が出るおもちゃで遊ぶ音そんな音も気にしなくていいんです。
走り回る子供の姿を見ながら子供の成長を楽しめる家でもありますねO(≧▽≦)O
続きを読む
見学したい(無料)陰ながら新築我が家
静岡県浜松市中央区葵西2-24-7
/75.00m²
葵西小学校も徒歩3分と生活に便利な条件が揃っている場所に新築の戸建てです。
来春から小学校ご入学を控えたお子様のいるご家庭には、特にオススメです。
学校だけでなく、徒歩10秒で公文のお教室もあるからです!
現在では、世界49カ国でも学ばれている公文式学習は、お母様方にも見直されていますね。
ただ、こちらの建物、南側と西側に隣接した家があるため、午後3時で写真のようにすっかり日陰になります。
冬場は、暖房がしっかりと必要かもしれません。
ですが、夏には、とても良いのです。隣接した家が日よけの役割をしてくれるので、強い日差しや熱から守ってくれます。
地球温暖化のせいか、暖冬で猛暑の年が増えていますから、この方が良いのかもしれませんね!
小学生くらいのお子様がいるご家庭は、基本的には朝型の生活でしょうから、
朝日が当たる東側の日当たりを重視されて、決断してもいいと思います。
是非、内見して、体験してみてください!
続きを読む
見学したい(無料)夜勤のご主人へ。
静岡県浜松市中央区恩地町158
3LDK /83.74m² /2008年4月
ただ、建物は南向きなのですが、西側が広い駐車場のため、西日を遮るものがなく
夕方には、小さな窓からでも西日がしっかりと射し込みます。
西日は、冬には日照が長ければ室内が暖まり、暖房の省エネ効果が得られます。
また、夜型の人にとっては、西向きだと朝日の昇る頃に日差しで目が覚めてしまうことなく、
午後からのより長い日差しを楽しめるというのもメリットです。
西日好き、または、夜勤のご主人がいるファミリーなどにオススメです。
あまりに夏の西日が強いと感じたら、外に簾などをつけ、対策をすると良いでしょう。
続きを読む
見学したい(無料)のどかスポット見つけた!
静岡県浜松市中央区薬師町550-3
/63.00m²
騒音などが心配でしたが、到着してみると、この場所だけ驚くほどのどかな雰囲気。
騒音も気になりません。
主要道路を通勤などに使用される方には、ぴったりの場所です。
建物の南側に畑が見えることも穏やかな気持ちにさせてくれるのかもしれません。
目の前の畑に触発されて、ガーデニングも始めたくなりそう!
お部屋は、スタンダードな2階建て。1Fがリビングダイニング、
2Fの2部屋は、大きさはほとんど差がないので、収納の大きさで使い方を決めると良さそうですね。
駐車場は、3台停められそうなんですけどね。。要確認ですね。
続きを読む
見学したい(無料)野球少年たちがお友達を待ってます!
静岡県浜松市中央区安松町1864
/60.20m²
お話の中から住み心地や暮らしを垣間見て、情報を載せることも任務かと思っています^^。
こちらの戸建ては、敷地に5棟あるうちの1戸です。
車で到着すると駐車場でバットの素振りをしていたお隣の男の子が、
「こんにちは!」と元気良く声を掛けてきてくれました。
リトルリーグに入っているそうで、前に住んでいた子ともお友達だったそうです。
「でも、秋田に引っ越しちゃったんだぁ」と淋しそう。
撮影を始めると、「おじゃまします。僕も入っていい?」と今度は、弟くんが登場。
人懐っこさと愛嬌のある弟くんの申し出を断れず、時々写り込むなど楽しい時間になりました。
どんなお友達が来たら嬉しい?と聞くと、「一緒に野球がしたい!」とのことでした。明るくて、楽しいお友達になってもらえそうです。
野球少年のお子さん、ぜひ、お待ちしています!
お部屋は、南向きですが、西側が畑のため、西日を遮るものがなく
夕方には、小さな窓からでも西日がしっかりと射し込みます。
西日は、冬には日照が長ければ室内が暖まり、暖房の省エネ効果が得られます。
あまりに夏の西日が強いと感じたら、外に簾などをつけ、対策をすると良いでしょう。
続きを読む
見学したい(無料)平屋の快適さを痛感。
静岡県浜松市中央区頭陀寺町352-3
/71.00m²
2階建ての方が効率的に部屋数や広いスペースを取れるので、今では2階建ては当たり前で多くなっていますが、実は近年では、少子化や高齢化に伴い、平屋が見直されています。
個人的にも将来住むなら平屋を希望します。
メリットは、
「移動が楽!」コレは大きいですね。
毎日の中で階段の上り下りは、いい運動にもなりますが、主婦にとっては、お掃除も含めて大変なものです。
次に「家族とのコミュニケーションが取りやすい」、「構造的な危険が少ない」といったことも挙げられます。
階段を上がった部屋に入ってしまうと家族の声が届かないので、階段を上がって「ごはんできたよ。」と声を掛けなければならないですが、平屋なら、すぐに声が掛けられます。
構造的な危険というのは、高齢者、または身体に障がいがある場合など、階段がないだけで、日々の暮らしでの困難、疲労度は格段に下がります。
こちらの戸建ては、平屋ながら全て洋室の3部屋が確保され、更に家の目の前の広い駐車場に3台駐車できることも大きな魅力です。
駐車場から玄関へは、スロープになっていて手摺りもあります。
新築で、平屋をお探しの方、必見です!
続きを読む
見学したい(無料)平屋で子供の成長を。
静岡県浜松市中央区天神町6-24
/68.88m²
土地の価格が高くなり建物を上へ上へ積み上げる様になり戸建て住宅では2階建て・3階建てを多く目にするようになりました。
最近ではまた「平屋」が見直されてきており新築される住宅でもポツポツと平屋住宅目にします。
人の目に届きやすく人の移動が容易であるため幼児向け施設や高齢者住宅に向いています。
アパートやマンションの共同住宅で1番気になるのが騒音問題、特に小さなお子さんの走り回る音や楽器類の音が出るおもちゃで遊ぶ音そんな音も気にしなくていいんです。
走り回る子供の姿を見ながら子供の成長を楽しめる家でもありますね。O(≧▽≦)O
続きを読む
見学したい(無料)平屋住宅で子育て奮闘記。
静岡県浜松市中央区大柳町374-3
/56.74m²
土地の価格が高くなり建物を上へ上へ積み上げる様になり戸建て住宅では2階建て・3階建てを多く目にするようになりました。
最近ではまた「平屋」が見直されてきており新築される住宅でもポツポツと平屋住宅目にします。
人の目に届きやすく人の移動が容易であるため幼児向け施設や高齢者住宅に向いています。
アパートやマンションの共同住宅で1番気になるのが騒音問題、特に小さなお子さんの走り回る音や楽器類の音が出るおもちゃで遊ぶ音そんな音も気にしなくていいんです。
走り回る子供の姿を見ながら子供の成長を楽しめる家でもありますね。O(≧▽≦)O
続きを読む
見学したい(無料)心と土地のゆとり「平屋借家」。
静岡県浜松市中央区入野町16139-10
2LDK /56.43m² /2009
土地の価格が高くなり建物を上へ上へ積み上げる様になり戸建て住宅では2階建て・3階建てを多く目にするようになりました。
最近ではまた「平屋」が見直されてきており新築される住宅でもポツポツと平屋住宅目にします。
人の目に届きやすく人の移動が容易であるため幼児向け施設や高齢者住宅に向いています。
そんな平屋も大きな土地がなければ建てられません。
大きな土地持ち=お金持ち、平屋を建てることがお金持ちの証でもあると思います。
駐車場もゆとりのスペースを確保し合計3台駐車可能です。
趣味や子育てを平屋借家でじっくり楽しむのも良いかもれしれませんね。(゜∀。)
続きを読む
見学したい(無料)あなたの理想のお部屋、ここにあります!
静岡県掛川市中央高町68-2
2LDK /75.76m² /1991年09月
天竜浜名湖鉄道 掛川市役所前駅を降りて徒歩6分のところにあります!
掛川は車がないと結構生活しずらいです。
ですがこのお家の周りには徒歩圏内にコンビニ、さらに何でもそろうドン・キホーテがあります!
すぐに買い物に行きたいときにパッと買いに行けるのはうれしいところですよね!
気になるお部屋は、圧倒的にキッチンが主役のお部屋。
LDKの真ん中にドンとかまえているキッチンはこのお部屋の最大の魅力であり主役です。
人気の対面式キッチンで料理も楽しく作れます。
さらに3口グリルにスペースも広々していて実用性も抜群なのが最高なポイント!
キッチンから見えるLDKは縦に長いです。
LDKのほかに2つの洋室があります。
2つとも十分な広さのクローゼットが付いていますが、なんとこのお部屋にはまだまだ魅力ポイントが!
なんと廊下にウォークインクローゼットが付いているんです!!
逆に収納を余らしてしまいそうなほど、このお家の収納力には驚きます、、
間取りも2LDKですので新婚さんや、家族で暮らす方も多いと思います。
洋服の多い女性や、家族分の洋服をしまう場所に迷っている方、、ここのお部屋ならそんな悩みとはさよならです!
キッチンのこだわりが強い女性の方、収納力が欲しい主婦の方、電車で通勤するパパ。
みんなの願いがこもった、そんなお部屋だと思います!
続きを読む
見学したい(無料)STEP BY STEP
静岡県浜松市中央区入野町1900-25
2LDK /1993/03
ご紹介するお部屋は3階にあり、エレベーターは付いておりません。
これからの生活に階段を避けて通ることはできません!ステップ by ステップです。
LDKはなんと19帖もあり、この上なく広々としています!!家族みんなでゴロゴロし放題です。
こんなに広いと、自由自在に家具を動かすことができ、飽きることがありません。
クローゼットもあるので、リビングルームの整理整頓に役立てそうです。
キッチンはシンプルな造りですが、使い勝手は良さそうです。
ピンク色がとても可愛らしく、お料理中のテンションを上げてくれること間違いなしです。
7帖の洋室にはハンガーのまま洋服を収納できるクローゼットが付いており、さらに専用のバルコニーもついております。
6帖の広さの洋室にはクローゼットは付いておりませんので、収納棚のご用意が必要です。
周辺にはスーパーやコンビニ等があり、お買い物をするのにとても便利です♪
続きを読む
見学したい(無料)【ペット可】陽だまりハウス
静岡県浜松市中央区植松町100-1
/71.12m²
お部屋のなかは木のぬくもりあふれる広々14.1帖のLDK!
人気の対面式キッチンで、リビングにいる家族とおしゃべりしながら料理を楽しむことだってできます。
キッチンスペースも余裕たっぷりですので、なんと床下収納もついていますよ!
料理好きの方、たくさんキッチングッズ揃えちゃいましょう!
そしてスペースをうまく使って上手にお片付けもしましょう!
キッチン奥の扉をあけるとここからも洗面所に行くことができます。
シンプルなお風呂と洗面所ですが、窓付きがうれしいポイントです。
水回りはしっかり換気しましょう!
LKDにある階段をのぼると2階に続きます。
2つの洋室があって、どちらの洋室にも十分すぎる広さの収納がついていますよ!
片方の洋室にはバルコニーが付いています。洗濯物も良く乾きそう!
そして、こちらの物件はなんとペット可なんです!!
大好きなペット、やっぱりのびのびと暮らしてもらいたいですよね。
近くには子安公園があります。もうちょっと歩いたらまた公園が、、。お散歩コースに決まりです!
続きを読む
見学したい(無料)ちょっと贅沢 わたしたちだけの空間
静岡県浜松市中央区新津町601-11
2LDK /51.61m² /1976.06
と、ご覧になった方全員がおっしゃると思います。
リノベーション物件によくあるのは、外観はそのままに、内装のみをアップデートするというパターンですが、
こちらの物件は過去の面影がぜんぜん残っていないんです。
三角地と言われる変わった形の土地に建つこのお家、小さな土地でも満足度の高い内装に仕上がっているんですよ!
場所は浜松市中央区新津町、この辺は駅もスーパーもコンビニも、ドラッグストアだって徒歩圏内に揃っていてとっても便利です。
さて、玄関を開けると、の前にご注目頂きたいのが玄関ドア。
なんとキーレスになっております。荷物がかさばっていてもスマートにご帰宅できちゃいますね!
ブラックな床が特徴のLDKは11.2帖と戸建としてはやや小ぶりな印象ですが、大きな掃き出し窓があって開放感があります。
ここでポイントなのが変形地なのでお庭という感じはないのですが、LDKに室内干しができるようになっています。
キッチンは収納がたっぷりとあり、こだわりの食器も、ストック食材もしっかりとしまえますね。
驚きなのが、階段下のデッドスペースを活用して洗濯機置き場が作られていました!
扉が付いているので普段は隠せるし、家事同線としても楽だし、これはいいなと!
洗面脱衣所・浴室もやっぱりコンパクトなんだけど、むしろ落ち着くなあと感じました。
2階には洋室が2部屋あり、南向きなのでぽかぽか!(夏はアツアツですが…)
エアコンが設置できるように室外機置き場をつくってくれているので快適にお過ごし頂けそうです。
2人暮らしであれば在宅ワークであったり、趣味の部屋として5.5帖の洋室を使い、6帖を寝室にするという贅沢。ありです。
もちろん3~4人のご家族での暮らしも行けそうなかんじ!
個人的にはとっても気に入っておりますが、1こだけ!駐車の難易度はちょっと高いです!
高いですが、車1台と自転車複数台は置けそうな駐車場です◎
いやぁ、なんといってもこの外観が感動…
このアラフィフ物件、ぜひとも実際に見てほしいです!!
続きを読む
見学したい(無料)テラスハウスで余裕のある暮らしを。
静岡県浜松市中央区富塚町784-13-12
/72.63m²
テラスハウスは、一戸建てが壁を共有して、くっついて並んだような集合住宅のこと。
戸建て住宅は高くて手が届かないけど、戸建てのような賃貸に住みたい...という人にはとてもお勧めの物件です。
1階部分のLDKは14帖あり、
キッチンは、カウンターキッチンなので、家族のようすをみながら料理をすることができます◎
LDKの窓には、雨戸シャッターが付いています!
雨戸シャッターには、防犯効果、 台風対策による防災効果、遮光効果による光熱費削減、防音効果、遮熱効果など様々な効果が期待できるのでとてもありがたいです。
しかもなんと、ボタン一つで自動で閉まるので、わざわざ手で閉めなくても閉めれるのでとても便利です。
収納スペースは、
いろんな場所にたくさんあるので、物が多くて収納に困っているひとは安心してください。
例えば、洋室6.3帖のお部屋にはウォークインクローゼット。
LDKのシステムキッチンの壁も収納スペースになっていますし、階段下にも収納できるスペースがあります。
また、玄関には物置きがあります。外で使う道具を入れることができるのでとても便利です。
他にも合わせて、7か所収納スペースがあります。
駐車場は無料で2台停めることができます。
戸建感覚で住めるテラスハウス型賃貸で、余裕のある暮らしを送ってみませんか。
続きを読む
見学したい(無料)浜松暮らしの第一歩
静岡県浜松市中央区高丘東3-41-5
/29.75m²
洋室とキッチンが離れているため、料理を作る空間とくつろぐ空間を分けることができます。
ただ、洋室でわいわいと料理を作ったり、食べたりしながら友達や恋人と楽しむには少し遠く感じるかもです、、、
引き戸をあけておくことで1つの空間にすることができます。
使い勝手に合わせて活用できます。
洋室には収納棚がついています。
上下2段に分かれており、上の段は服、下の段はその他様々なものをしまうことができます。
玄関には鏡付きのシューボックスがついています。
玄関にある鏡って何かと役に立ちませんか?
ちょっとしたことですがうれしいですね。
この物件の周りの道は比較的に道が広かったです。
徒歩圏内にスーパーやコンビニがあるので、非常に便利です。
続きを読む
見学したい(無料)Let's 一人暮らし
静岡県浜松市中央区高丘東3-41-5
/29.75m²
洋室とキッチンが離れているため、料理を作る空間とくつろぐ空間を分けることができます。
ただ、洋室でわいわいと料理を作ったり、食べたりしながら友達や恋人と楽しむには少し遠く感じるかもしれません。
しかし、引き戸をあけておくことで1つの空間にすることができます。
洋室には収納棚がついています。
上下2段に分かれており、服やその他いろんなものをしまうことができます。
玄関にはシューボックスがついています。
シューボックスの鏡って何かと役に立ちませんか?
ちょっとしたことですがうれしいですね。
この物件の周りの道は比較的に道が広かったです。
徒歩圏内にスーパーやコンビニがあるので、非常に便利です。
続きを読む
見学したい(無料)大切なキミとの暮らしをここから
静岡県浜松市中央区名塚町355
1LDK /50.62m² /1996年
ペットと一緒に暮らしたい方必見です!
マンションの目の前には〈東部やすらぎ公園〉という大きな公園があって、わんちゃんを飼う方にはとっても嬉しい立地です。
LDKには大きな窓が2つ付いており、長いバルコニーが特徴的です。
キッチンは黄色で、お部屋の差し色になっています。
一部の壁紙がブラウンになっていてお洒落なデザインです。
大きな窓のおかげで、風通しも日当たりも良好です。
6帖の洋室にはウォークインクローゼット付き!!
それだけでなく、棚までついてます。
収納もバッチリです。
玄関には鏡付きのシューズボックスがあります。
鏡付きってなにかと便利じゃないですか?
お出かけ前のコーディネートやメイクのチェックをすることができます。
おさんぽへLet’s Go!なこのお部屋、ぜひご検討ください♪
続きを読む
見学したい(無料)【ペット可】 ペットと一緒にLet's 新生活
静岡県浜松市中央区名塚町355
/50.62m²
ペットと一緒に暮らしたい方必見です!
LDKには大きな窓が2つ付いており、長いバルコニーが特徴的です。
キッチンは黄色で、お部屋の差し色になっておりお洒落なデザインです。
一部の壁紙が黒色なので、お部屋が締まって見えます。
置く家具によってお部屋の雰囲気をガラリと変化させることが出来そうです。
6帖の洋室にはウォークインクローゼット付き!!
棚もついているので、洋服の収納だけでなく様々な収納にも便利です。
棚がだけ黒色なので、収納棚としても飾り棚としても活用できそうです。
玄関には鏡付きのシューズボックスがあります。
鏡付きって便利ですよね!
お出かけ前のコーディネートやメイクのチェックをすることができます。
続きを読む
見学したい(無料)convenient life
静岡県浜松市中央区早出町820
/58.18m²
間取りは3DKで、ファミリー向けです。
6帖のダイニングキッチンの他に、お部屋が三部屋あります。
一番大きい8帖の洋室にはクローゼットと物入が付いており、収納スペースがバッチリ確保されています。
他の二部屋は6帖の洋室となっています。どちらもシンプルな造りをしていますが、ベッドの他に勉強付けなども設置することが可能です。
ダイニングキッチンは6帖あり、キッチンもシンプルな造りをしていますが使い勝手が良さそうです!
台所の目の前には大きな窓があるので、換気をしっかりとできます。
洗面脱衣所にも、物入があるのでタオルや洗剤などを収納することができます。
浴室にもトイレにも窓が付いており、昼間は明るいです。
徒歩2分の所にフィールがあるので、しょうゆや砂糖、トイレットペーパーが突然切れてもパッと家を出ればすぐに買えます!!これほど便利なところはありません~
続きを読む
見学したい(無料)シンプル but 暮らしやすい
静岡県浜松市中央区早出町820
/58.18m²
早出町にあり、周辺に買い物ができるスポットがたくさんあるのでとても便利です。
間取りは3DKで、ファミリー向けの物件となっています。
小さなお子様がいるご家庭や、小中学生のお子様がいるご家庭にとってとても暮らしやすい町となっています。
洋室が三部屋あり、8帖のお部屋と6帖のお部屋が二部屋です。
一番大きい8帖の洋室にはクローゼットと物入が付いており、ハンガーのまま洋服を収納できるのが便利です。
バルコニーともつながっており、昼間は気持ち良い太陽の光がお部屋を照らしてくれます。
6帖の洋室はどちらもシンプルですが、ベッドや机を置くことが可能です。
ダイニングキッチンは6帖で、キッチンはとてもシンプルな造りをしています。
台所の目の前には、大きな窓があり換気がしっかりとできます。
馬込川も近くにあり、川沿いを散歩することができます。
続きを読む
見学したい(無料)一体感キッチン
静岡県浜松市中央区曳馬4-9-12
賃料63,000円
共益費/管理費3,000円
2LDK /77.60m² /1982年1月
元々6帖の洋室と10帖のキッチンスペースだったのか、途中まで衝立が付いています。
そんな2つに区切られかけたLDKを一望できる位置にあるのがL字型のキッチン。
キッチンが立体的にありながら、部屋との仕切りがない状態なのでスペースが広く、
「2人で協力して料理を作る」なんてシチュエーションに向いているかもしれません。
料理を中心に家族の一体感を引き出せそう。
洋間は広さそれぞれですが、どのお部屋も白の壁、ダークブラウンの床、窓、クローゼット付きで統一されています。
どのお部屋にもクローゼットがあるので収納はたっぷり確保できるでしょう。
洗面所やトイレはレンガ調やアースカラーの壁で統一されていて、オシャレな雰囲気。水回りはキレイですが洗面台のシンクが直径40㎝と一般的な洗面台に比べて少し小さいかもしれません。お風呂は追炊きなどの機能が付いた便利さでGood。
マンションのお隣は幼稚園のため、昼間は子供たちの声が響いてきます。
続きを読む
見学したい(無料)ヘリンボーンとレトロホワイトと2LDK。
静岡県浜松市中央区笠井町1211-2
/49.95m²
浜北区の玄関口といっても過言ではないエリア。
人気のリノベーション物件であるこちらのお部屋。
白を基調に。というまでもないくらい白い内装。
ダイニング部分の奥にある壁がレトロなヘリンボーンのアクセントとなっていて良い味感。
間取りはオーソドックスな2LDKとなっていて
カップルで住まわれる方でも小さいお子さんが居るご家族でも
快適に使いやすい間取りかと思います。
もちろん駐車場は2台確保可能となっておりますよ。
続きを読む
見学したい(無料)私のドリームキッチン
静岡県浜松市中央区笠井町1211-2
1LDK /49.95m² /1987年6月
周辺にはコンビニもスーパーもそろっているので、車をお持ちでない方にも便利な場所です。
間取りは1LDKで、カップルや新婚さんにおススメの物件です。
お部屋全体がリノベーションされており、内観がとても素敵な仕上がりになっています。
特に注目をしてほしいのが、キッチンです!!
キッチンはシステムキッチンで、3口コンロが付いています。キッチンのスペースも広々としており、二人並んでお料理ができます。
高級感のあるキッチンは、友人にも自慢したくなるくらいです!
洋室はとてもシンプルで、5帖のスペースです。ウォークインクローゼットもありますが、それはリビングルームにあります。
余裕のあるウォークインクローゼットは二人分の洋服をすべて収納することができます。
ここから二人だけの新たな生活をしてみてはいかがでしょうか。
続きを読む
見学したい(無料)眺めが良好!ペットと暮らす。うちは個性派2LDK。
静岡県浜松市中央区渡瀬町807-2
/61.24m²
周辺の渋滞も少なく東西南北の道が続いているので密かに便利な場所。
主要道路から一本入った所にあるのがこちらの物件。
公園の目の前にあり落ち着いた雰囲気があります。
広いお部屋にお手ごろ価格で住みたいのであれば
築年数が古いけれどリノベーションされた物件がおススメです。
こちらの間取りは12帖のリビングダイニングキッチンに6帖の洋室と和室がついた2LDK。
洋室に収納が無いのが気になりますが、隣の和室には大きな押入れが二つ付いております。
内装は綺麗なへリーンボーンの床にアクセントとなる壁紙が良いバランス。
4階のお部屋だけあって眺めが良い!エレベーターが無いのでそこだけご注意。
ベランダが広いうえ玄関前にもスペースがあるので、
植木を置いてみたりしてガーデニングを楽しんでみては如何ですか?
続きを読む
見学したい(無料)ペットと暮らす。うちは個性派2LDK。
静岡県浜松市中央区渡瀬町807-2
2LDK /61.24m² /1992年12月
周辺の渋滞も少なく東西南北の道が続いているので密かに便利な場所。
主要道路から一本入った所にあるのがこちらの物件。
公園の目の前にあり落ち着いた雰囲気があります。
広いお部屋にお手ごろ価格で住みたいのであれば
築年数が古いけれどリノベーションされた物件がおススメです。
こちらの間取りは12帖のリビングダイニングキッチンに6帖の洋室と和室がついた2LDK。
洋室に収納が無いのが気になりますが、隣の和室には大きな押入れが二つ付いております。
内装は綺麗なへリーンボーンの床に白ベースのコンクリート調の壁紙が良いバランス。
ベランダが広いうえ玄関前にもスペースがあるので、植木を置いてみたりしてガーデニングを楽しんでみてはいかがですか?
続きを読む
見学したい(無料)家族の安心はオール電化から。
静岡県浜松市中央区高丘北2-23-9
/57.31m²
セキスイハイムさん施工で地震にも強く、オール電化で安心。
設備も充実していて痒いとこに手が届く物件となっております。
住んで納得のお部屋をぜひ体感してください。
続きを読む
見学したい(無料)バイク・クルマ・ガレージ。無骨な暮らしはこちらで。
静岡県浜松市中央区葵西5-23-22
1DK /59.40m² /2018年4月
写真を見ても分かる通りめちゃくちゃ無骨でカッコ良い物件です。
ガレージの螺旋階段を上がると天井高めの1LDKにロフトがついた間取りのお部屋。
細かい照明や装飾にもこだわりを感じます。
ちなみガレージは映画みたいにリモートで開閉可能ですよ。
クルマやバイクが趣味の方に多い愛犬家。こちらでは大型犬も飼えるので
相棒たちと友に夢のライススタイルを実現しませんか?
続きを読む
見学したい(無料)\待望のガレージハウス/
静岡県磐田市匂坂上320-1
/62.54m²
かなりかっこよくて、機能性・デザインともに間違いなく素敵です!
電動シャッターの間口はW2490㎜ H2300㎜です。奥行きは5592㎜。
洗車用の水道はガレージ内にないものの、かなりの広さのクロークがついていて、
ありとあらゆる愛車のお手入れ道具を仕舞い込めます。
螺旋階段を上った先にはこれまた素敵なワンルームが広がっています。
古材のようなフロアタイルとむき出しの鉄骨の黒がなんとも男心をくすぐります。
お部屋の雰囲気と合ったキッチンは最小限の1口IHです。
間仕切りがあるおかげでキッチンにも生活感が出すぎないところに心遣いを感じます。
水回りも文句のない設備です。素晴らしい。
駐車場がガレージ+1台あるので、バイクをガレージに入れたいという人にもありがたい!
住居はもちろん事務所としてもご相談可能ですので、ぜひお問い合わせ下さい。
続きを読む
見学したい(無料)私の隠れ家!
静岡県浜松市中央区鹿谷町17-1
賃料41,000円
共益費/管理費5,000円
1K /26.08m² /2018年7月
と言ってもキッチンや脱衣所は思ったより広く、
1人で生活するならこの広さで十分ですね
キッチンが広めなのでお料理は思いっきりできます。
収納は、リビングにはもちろん
玄関からお部屋まで続いています!
そしてなんといってもロフト!
The・安心する空間
すごく広いし高めの壁があるので落ちる心配なし
高さは1mなので、寝室として使うなら小柄な人向きかも
静岡大学まで自転車で10分圏内、
浜松駅にもバスで15分ということでアクセスも良いです
何気に配色が可愛らしいし、
追い焚きや照明操作などの機能も充実しています
鍵も2個あるので防犯もばっちり!
静大の学生さんに向いてる感じのお部屋です~
コンパクトな生活がしたい方、どうぞ!
続きを読む
見学したい(無料)好きかどうか。それが大事。
静岡県浜松市中央区上島6-18-4
賃料40,000円
共益費/管理費3,000円
1LDK /34.02m² /1974/5
どれを第一とするかは人それぞれだと思います。
そのお部屋は「この空間が好きか」それを一番大切にしたいという人にぜひおすすめしたいなと感じたお部屋です。
間取りは1DK。
リビングがないと古くて今の生活スタイルに合わないんじゃないかな?って心配になるかもしれませんが、
この部屋については心配に及びません!洋室部分が10.5帖、それにダイニングキッチンが6帖あって、1人暮らしには十分ですよね?
1974年に建てられた平屋ですが、中はリノベーションされていて、新旧入り混じる面白さがありました!
扉の向こうは木の温もる、映画で見たようなどこか異国の田舎にあるこじんまりとしたかわいいお家のような空間となっています。
むき出しのランプ、ぱちぱちしたくなる照明のスイッチ、調節可能な木の棚、レトロな蛇口の水道、アイアンのトイレットペーパーホルダー
どれも素敵ですねぇ...
古い建物ですが、安心してください。洗濯機置き場は室内だし、インターネットも使えますよ!
お風呂はご愛嬌...!
外を歩けば、おデブな猫と会えたり、四つ池公園の草花に触れられて、小さな幸せとたくさん出会えそうなお家です。
続きを読む
見学したい(無料)ここは高円寺ですか?
静岡県浜松市中央区飯田町748
/65.00m²
求めてたけど、見つけるのは都会のおしゃれリノベーションばっかり。
私の暮らすこの街にもあったらなあ.....
待ちわびてきたこの素敵空間
浜松にもありました!
ここまで振り切ってもいいじゃんね!
1日のうち、お仕事で9時間、残りの15時間を過ごすお部屋だもの
好きな空間で気の向くままに暮らしましょ
ちなみにペットも飼えちゃいます!
こんなお家だったら残業せずにすーーぐ愛犬の待つわが家へ帰りたくなっちゃうね!
続きを読む
見学したい(無料)ギャップサイコウ!
静岡県浜松市中央区新津町264
/64.89m²
周りにスーパー、コンビニ、ドラッグストアなど便利な地域の物件のご紹介です。
タイトル通り、外観から想像もつかないリノベ―ションされたお部屋です。
まずドアを開けると、広めの玄関スペース。
可動式の棚は使い方は自由!
家族の写真を飾ったり、靴を並べたり、外で使うおもちゃを置いたりできますよ!
さらに泥んこになって帰ってきた子供は玄関からすぐにお風呂で汚れを洗い流すことができます!
お部屋の汚れを最小限に抑えることができますよ!
LDKは広々!
人気の対面式のキッチンではありませんが、
キッチンの前に調理棚やカウンターを置くと素敵なンされたお部屋です。
まずドアを開けると、広めの玄関スペース。
可動式の棚は使い方は自由!
家族の写真を飾ったり、靴を並べたり、外で使うおもちゃを置いたりできますよ!
さらに泥んこになって帰ってきた子供は玄関からすぐにお風呂で汚れを洗い流すことができます!
お部屋の汚れを最小限に抑えることができますよ!
LDKは広々!
人気の対面式のキッチンではありませんが、
キッチンの前に調理棚やカウンターを置くと素敵なLDKになりますよ!
お子様が小さいときは和室でみんなで川の字で寝て、
お子様が大きくなったら、子供部屋を準備することが可能です!
ぜひぬくもりのある生活いかがでしょうか。
続きを読む
見学したい(無料)馬込川でおさんぽしましょ!
静岡県浜松市中央区十軒町590-1
/54.13m²
曳馬駅、上島駅のどちらにもアクセスできる十軒町にあるのがこのマンション。
間取りは2LDKです。新婚カップルでペットを飼いたいなという方は多いかと思います!
ただ、ペットが飼えるお部屋でリノベーションがされているお家ってなかなかないんですよね。
このお部屋はわんちゃんネコちゃんどちらもOK!わんちゃんであれば、馬込川沿いでおさんぽコースは決定ですね^^
LDKは12帖ととても広いわけではありまsんが、キッチンが壁向きなので、空間としては広くアレンジができます!
また、つながっている4.5帖の洋室もリビングの一部として使えば広々L字リビングとしても◎
水回りも交換されているのでいいですね!洗面がカフェにありそうなかわいい鏡なのがわたし的お気に入りポイントです!
稀少なペット可物件!ご内覧してみませんか^^?
続きを読む
見学したい(無料)My Reno House!
静岡県浜松市中央区上西町66-15
/81.02m²
ポイントは
・アイランドキッチン
・専用庭とウッドデッキ
・かわいい個室たち
となっております。
*その1*
アイランドキッチン!これはオープンカフェにありそうな素敵なキッチンで、
ペンダントライトがよりおしゃれさを引き立たせていました。
家族の笑顔溢れる空間になりそうな予感です。
*その2*
専用庭とウッドデッキはLDKからすぐに出られるようになっていて、
リビングの延長としての空間演出を出来そうです。砂利の上にフェイクの芝生を引いて、ガーデニングを楽しんでみてください♪
*その3*
2階に上がると7.7帖/6帖/4.3帖の3つの個室があり、みずいろ、きいろ、しろの程よいかわいさを醸し出してくれるお部屋でした。
みずいろのお部屋には大きなウォークインクローゼットがあって、子供部屋にも出来ちゃそう(笑)
小学校、中学校共に近く、バスを利用すれば駅前にも18分でつくのは嬉しいですよね!
ご内覧のお問い合わせお待ちしております!
続きを読む
見学したい(無料)BRUTUSに住む
静岡県浜松市中央区常盤町143-27
/96.00m²
ここの部屋には玄関をいうものはなく、少しの土間スペースになっているだけ。キッチン前だというのにオープンの下駄箱という、住みやすさや性能などを気にもしない、かっこよく暮らす人のために向けたリノベーションが飾らなくてかっこいい。
まるでBRUTUSの雑誌に載ってそうな部屋が浜松の街中に存在するのです。
賃貸マンションでありながら下階に寝室があるという不思議空間。造棚とアクセントクロスがドラマに出てきそう。
収納も見せる収納なのでインテリアにこだわりたい方の腕の見せ所です。
床は杉の無垢フローリング、扉は既製品ではなく造作扉、天井はコンクリートむき出し、ステンレスのコンクリートカバー、使用しているマテリアルがどこを撮っても絵になる部屋です。
立地も遠州病院駅から徒歩2分、徒歩13分で有楽街に、ついでに徒歩5分には遠州病院。通勤にも遊び、健康にもうれしい好立地!!
おしゃれは暮らしから。住まいも車同様、ステータスを与えてくれることでしょう。BRUTUSな暮らし初めてみませんか?
続きを読む
見学したい(無料)【ペット可】大人カッコいい、BROOKLYN style
静岡県浜松市中央区飯田町748
1LDK /65.00m² /1981年8月
ブラックとブラウンを基調としたデザインで非常にオシャレ。
壁という壁がレンガ調で気分はまさに大都会NY。
言葉よりも写真でより一層伝わると思います。
LDKには大きなシステムキッチンがあります。
デザイン性にも利便性にも長けていてGOOD!
対面式の良さはリビングを見渡すことができること!
パートナーとお話ししたり、ペットの様子をみることができますよ。
洋室にはクローゼット、リビングにはウォークインクローゼットがあり収納量◎
家族の分もペットの分もまとめて収納できそうです。
近くにはスーパーやコンビニがあり生活しやすい環境になっています。
続きを読む
見学したい(無料)【ペット可】杜を感じる落ち着きナチュラルルーム
静岡県浜松市中央区飯田町748
/65.00m²
そして、これだけの落ち着きを感じさせながら、なんとペットと住むこともできます!自然な雰囲気を感じられる空間はペットにとっても気持ちの良いものかもしれませんね。
立地としては新幹線の線路のすぐ隣。少し音が気になってしまうかもしれません。
それでも、このナチュラル空間でペットと過ごせるのはかなり魅力ですよ!!
続きを読む
見学したい(無料)【ペット可】浜を感じるときめきナチュラルルーム
静岡県浜松市中央区飯田町748
2LDK /65.00m² /1981年8月
凹凸感のある木の床がナチュラルさを感じさせつつ、多種多様の青を用いた配色やタイル地の壁などの素材感からはなんとなく浜の香りを感じさせられます!
どこを切り取ってもキュンとするような可愛さを感じられるのがポイント!
まず、水色タイルのキッチン。細かいタイルの模様感の可愛さはさることながら、ワンポイント照らしてくれるスポットライトが演出する特別感がとってもかわいいです。玄関横は白と黒のタイルのチェックがかわいい。床やシューズボックスの木の色との相性もばっちりです。洗面台はガーリーテイスト。くすんだマリンブルーの壁にベージュの扉がよく映えます。
そして、そんな明るくかわいいお部屋にペットと住むこともできます!部屋の可愛さとペットの可愛さがかけ合わさって可愛さが爆発してしまいそうですね。
立地としては新幹線の線路のすぐ隣。少し音が気になってしまうかもしれません。
それでも、このナチュラル空間でペットと過ごせるのはかなり魅力ですよ!!
続きを読む
見学したい(無料)【ペット可】アトリエ?秘密基地?線路沿いの隠れ家ハウス
静岡県浜松市中央区飯田町748
/65.00m²
という表現は写真を見て貰えれば納得するはず!?
良い意味で外国のスラムの様な通りを抜け
部屋の中に潜入すると無骨極まりない内装に目を疑う。
間取りは2DLK。一段下がったリビングはとにかく広い。
私がバンドマンならここで仲間を集めて次のライブを打ち合わせたり。
私がアーティストだったらそこらへんに作品を無造作に散らかす。
私がバイカーだったら革のソファーをポンと置いて酒を飲みながらパーツ磨きに勤しむ。
なんて妄想が膨らむお部屋です。
続きを読む
見学したい(無料)【ペット可】ソレイユの家
静岡県浜松市中央区富塚町2156-8
/62.45m²
間取りは2LDKで、ファミリー向けの物件となっています。
LDKは広々と14帖あり、陽当たりもとても良いです。
キッチンは便利な対面式になっており、お子様の様子を見ながら、お話しをしながら料理や後片付け作業を進めることができます。
コンロは3口タイプで、時短&スムーズにご飯づくりができちゃいます♪
リビング横の洋室は6帖で、ハンガーのまま洋服を収納できるクローゼットが付いています。
6.2帖の洋室にもクローゼットが付いているので、洋服の収納スペースに困ることはありません。
全室に窓が付いており、換気をすることもバッチリとできます!
こちらの物件はペットの相談も可能ですので、大好きなペットちゃんと仲良く過ごしたい方は是非ご相談ください!
続きを読む
見学したい(無料)生活に工夫を取り入れて
静岡県浜松市中央区増楽町529-1
2LDK /46.40m² /1991/9
ファミリー層にも、ゆったりとした2人暮らしをしたい方にもおすすめです。
LDKは7.8帖あります。洋室6帖のお部屋と扉で分けることができます。
別々としても使えますし、扉を全開にしておけば、広いLDKとしてもご利用できます。使い方はあなた次第!
キッチンは対面式で、スペースにも余裕があります。2人で並んでもお料理ができます。
どちらの洋室もバルコニーと繋がっているので、日当たりが良いです。換気もバッチリできます!
もうひとつの6帖の洋室には、ハンガーのまま洋服を収納するこができます。洋服の整理をする時間を短縮できます。
スーパーやコンビニも揃っているので、お買い物をするのにも困りません。
高塚駅まで歩いて11分の好立地で、新たな生活を送ってみませんか?
続きを読む
見学したい(無料)no more 遅刻
静岡県浜松市中央区増楽町529-1
賃料58,000円
共益費/管理費2,000円
2LDK /46.40m² /1991年9月
2LDKの物件で、ファミリー層にもおすすめです!
周辺には、お子さまが通える幼稚園・小学校・中学校がすべて徒歩圏内にあります。この上なく便利です。
アラームを一回くらいスヌーズしても間に合います!
LDKは7.8帖あります。キッチンはスペースに余裕があり、二人並んでもお料理ができます。
対面式のキッチンなので、お子さまの様子を見ながら、TVを見ながら作れちゃいます!
洋室6帖のお部屋が二部屋あります。一つはLDKと繋がっており、シンプルですがバルコニーから気持ち良い太陽の光が入ってきます。
もう一つの洋室も日当たりが良く、収納スペースたっぷりのクローゼットが付いています。
ハンガーのまま収納できるので、整理をするのにも便利です。
スーパーやコンビニも揃っているので、お買い物をするのにも困りません。
続きを読む
見学したい(無料)暇さえあればBBQ
静岡県浜松市中央区大平台2-3-1
/84.46m²
大平台の閑静な住宅街にあり、佐鳴湖も近くにあるため自然を間近で感じることができます。
間取りは3SLDKで、ファミリー向けの物件です。
玄関は広く、シューズボックスも付いており、家族分の靴を収納することができます。
洋室は全部で三部屋あり、6帖のお部屋が二部屋と8帖のお部屋が一つです。
6帖の洋室にはクローゼットが完備されており、8帖の洋室にはウォークインクローゼットが完備されています。
どちらもハンガーのまま洋服を収納することができるのが便利です!
キッチンにこだわりのある方には嬉しい、アイランドキッチンになっています!!
コンロも3口付いており、料理をスムーズに作る事ができます。
家族でお話しをしながらクッキングできるのもポイントです♪
このお家のメインポイントはなんといっても、芝生の庭です。
天気の良い日はテントを張って、アウトドア感を味わうことができます。
お友達を呼んでBBQをすることも可能です~
続きを読む
見学したい(無料)開放感のあるテラスハウス
静岡県浜松市中央区入野町16105-9
/59.34m²
浜松志都呂のイオンがあったり、レストランも多く周辺にあったりととても便利です。
お部屋の間取りは2LDKで、ファミリー向けとなっています。
リビングダイニングルームは11帖あって、日当たりも良好です。
キッチンは、システムキッチンで3口コンロとグリルが付いています。料理好きな方にはたまりませんね♪
2階には、洋室が二部屋あります。
6.6帖の洋室にはクローゼットが2つあり、窓も3か所あるので日当たり&風通しが良いです。
6帖の洋室にはクローゼットが1つ完備されています。こちらのお部屋にはバルコニーが付いています。
駐車場も2台分付いているので、車を2台お持ちの方でもご安心ください。
周辺には、小学校や中学校も徒歩圏内にあるのでお子様がいるご家庭でも便利で安心です。
続きを読む
見学したい(無料)小型わんちゃん、ねこちゃんとの暮らし。
静岡県浜松市中央区佐鳴台2-7-25
2DK /49.00m² /1987/01
南向きなので採光もばっちり、わんちゃん、ねこちゃんとひなたぼっこが楽しめそうです!
小さいですが公園も近くにありますので、小型わんちゃんでしたらお散歩にもよいですね。
6帖の洋室が2部屋あるのでプライベートもしっかり守られます。
またリフォーム済みのため、水回りとてもきれいです。
玄関の石畳風の三和土もかわいくて洒落ていました。
わんちゃん・ねこちゃんと暮らせる物件は人気ですので、ご興味のある方は一度お問い合わせください!
続きを読む
見学したい(無料)蜆塚の隠れ家[ペット可]
静岡県浜松市中央区蜆塚1-21-7
賃料45,000円
共益費/管理費2,000円
2LDK /53.53m² /1981年12月
すごくお財布に優しい賃料ですよね。
特にこちらのお部屋で何かあったわけではないですよ!
少し奥まったところにあり築年数が経過している。それだけです。
さらに大切なペットとも一緒に暮らせますよ!
古さはところどころ感じますが、このお家賃なら!という範囲内。
家賃を抑えた分、家具類にちょっとお金をかけてもよさそうですね。
続きを読む
見学したい(無料)日々の想い出、貯めこんで。
静岡県浜松市中央区蜆塚2-10-9
賃料110,000円
1SLDK /55.07m² /1996年12月
日々生活していく中で使う物たちには愛着やエピソードが湧いてきます。
何かを貯め込めるスペースがたくさんあることは、
そんな様々な物に込められた思い出を貯めて置けるということでもあります。
この部屋は、収納というものにとことんこだわったお部屋。
玄関の外には、エアコン付きの物置スペースがあり、大きな棚が設置されています。
廊下や洋室にも収納スペースが用意されており、
大きな洗面台の後ろには、これまた棚が設置されています。
そして、極めつけはキッチン周り。
キッチンに立てば、前と後ろ、2つの料理台に囲まれます。
その料理台の下のスペースはもちろん収納空間になっています。
続いて、キッチンの右を覗けば、そこにあるのは、小さなお部屋。
サービスルームのこの部屋にも、大きな棚が2つ設置。
食材も貯め込めて置けそうですね。
物がいつでも手元にあれば、安定した生活につながります。
収納が沢山あれば、自分の好きな物を沢山もっていられます。
ミニマリストが脚光を浴びることの多い今日この頃、
あえて貯めこむ生活を送ってみませんか?
続きを読む
見学したい(無料)自然を感じたいあなたへ
静岡県浜松市中央区蜆塚2-10-9
/55.44m²
この物件は全体的に木目調になっており、どこにいても自然を感じることができます。
玄関には下駄箱が無い分、非常に広くなっています。
ゆったりとしたスペースなので、荷物の出し入れがしやすいと思います。
リビングにはキッチンがあり、キッチンからリビングを見渡すことができます。
お子様の様子や、テレビを見ながら料理をすることができます。
シンクが非常に広く、作業台もついているので料理好きにはたまりません。
そして、実はこの物件、床暖房がついているんです!!!
賃貸では非常に珍しいんですよ。
床暖房で寒い冬も乗り越えられそうです。
クローゼット2つにウォークインクローゼットがあり、収納スペースがたくさんあります。
家族が増えても安心ですね。
外観からも高級感を感じることができます。
芸能人になった気分を味わってみませんか、、、
続きを読む
見学したい(無料)生きることは食べること
静岡県浜松市中央区蜆塚2-10-9
賃料80,000円
1SLK /55.44m² /1996年12月
毎日何気なく行いながらも、それは確実に自分の糧となっていきます。
そんな「食べる」が充実すれば、生活も充実していきます。
この部屋は、そんな食べるをこだわるための設備がいっぱい。
部屋に入ってまず目を惹くのが、キッチンの前にぽっかり浮かぶカウンター。
キッチンにこだわりたい方にぴったりです。
続いて、キッチンのお隣にある扉を覗けば、そこにあるのは小さなお部屋。
パントリーとして使える納戸です。
ストックをたんまり買い込めば、食材切らした...を減らせそう。
いろんな食材調味料を置いておけるから、食も充実しそうです。
生活の基礎である食事が安定すれば、日々の生活も安定していく。
なんだか丁寧な暮らしを送れそうなお部屋です。
※画像は前回募集時のものです。現況を優先いたします。
続きを読む
見学したい(無料)ホワイトキュートなお部屋
静岡県浜松市中央区増楽町529-1
/46.40m²
白いお家は住む人に清潔感や安心感を与えます
安心しておうち時間をエンジョイできそうです♪
LDKから見たキッチンの壁が
レンガ風でかわいい感じに仕上がっております。
イタリアのカッフェのようですね。
キッシュを作りましょう。
収納は天井まで高く続いています
いらないけどいつか使うかな?みたいなものたちは
上の方に置いて視界から消えてもらいましょう。
洋室とLDKは扉を全開にすると
1つのお部屋のようにできるので
急な来客にも対応できます◎
インターネット使用が無料なので
素敵なおうちに1日中居たくなっちゃいますね!
続きを読む
見学したい(無料)愛猫との新たな暮らし[ペット可]
静岡県浜松市中央区佐鳴台2-2-10
2LDK /62.50m² /1993年8月
LDKは15.7帖もあり、広々としています。南向きのため、日当たりもとても良いです。
リビングの一角はガラス張りになっており、眺めが良いのも特徴です。
キッチンは対面式のタイプで、TVを見ながら、お子様の様子を見ながらお料理をすることができます。
また、キッチン自体スペースに余裕があるので、お子様と一緒に料理をしても楽しいかもしれません!
ほかに洋室のお部屋が二部屋あり、どちらも6.5帖あります。
リビングから直接入ることのできる洋室の方には、クローゼットと、物入の収納があります。
玄関に近い方の洋室には、収納スペースはありませんが、収納棚を置くスペースは十分にあります。
トイレと浴室はシンプルな作りですが、浴室には小さな窓と鏡がついています。
周辺には、コンビニやスーパーなども徒歩圏内に揃っています。
また、小中学校も10分圏内にあるのでお子様のいるご家庭には安心ですね♪
続きを読む
見学したい(無料)シェフわたし。
静岡県浜松市中央区蜆塚2-10-9
/55.44m²
ナチュラル木目調リビングに
アイランドキッチンが目を惹きます。
これだけ目を惹く島なのだから、
やっぱり料理好きにはたまらない
魅力がどっさり詰まってます。
まず、料理台が前と後ろの両方に。
場所をたっぷり使うことが出来るから、
何品も並行作業でも大丈夫!
バランスの良い食事が作れそうですね!
更に左を見てください。
そこにあるのは、なんと小さなお部屋なのです。
サービスルームのこの部屋に
食材をたんまり買い込めば
食材切らした...を減らせそうです。
すっかり、気分はシェフですね。
もちろん、島の形だからこそ、
料理を作りながら、対面で、
お話しすることも出来ます!
自分の好きな料理を介して、
美味しいものを介して始まるコミュニケーション。
なんだかおいしい時間が過ごせそうですね。
続きを読む
見学したい(無料)【猫可】near 佐鳴湖湖畔
静岡県浜松市中央区佐鳴台6-8-6
1LDK /39.70m² /1986年2月
ネコの飼育が可能な物件になっております。猫好きな方には必見です!
こちらの物件の外観はとても可愛らしい雰囲気があります。
黄色を基調としていて、ベランダ側の方には大きな木が一本あります。
LDKは12帖あり、使い勝手の良い造りになっています。
家具などを自由自在に置くことができます!
リビングの隣にある洋室は6帖あり、ウォークインクローゼットが完備されています。
コートやワンピースをハンガーのまま掛けることができるのとても便利です。
キッチンはとてもシンプルな造りになっていますが、その前には大きな窓があるので
日当たりももちろん良いですし、窓を開ければ気持ちの良い風が入ってきます!
リビングルームからも洋室のどちらからもバルコニーへ出ることが可能です。
佐鳴湖湖畔の周辺に立地するので、週末にはサイクリングに出かけてみても楽しいかもしれません♪
また、こちらのお部屋は事業用利用も可です!
続きを読む
見学したい(無料)ペットも人も集まるお家
静岡県浜松市中央区楊子町181
/72.84m²
浜松駅まで車で10分以内。
ペットも小型犬、猫ともに可能です。
ウッドデッキで愛犬が遊ぶ様子が目に浮かびます。
また小さなお子様の遊具を置いて、遊ばせるのも良いかと。
囲いがあるので、どっかにいってしまうこともなく、気兼ねなく遊ばせられます!
広い敷地に6棟ほど同じ形の住宅が並び建っていて、外観が同じですから、
この場所だけ洗練された区画という印象です。
それぞれの駐車場も広いですし、駐輪場は各家の目の前に専用でありますから、
お隣に気を使い過ぎるということもなさそうです。
ペット可物件をお探しの方。
事業用、事務所やサロン等の使用も可能です。ご相談ください。
是非どうでしょうか!
続きを読む
見学したい(無料)ペットと暮らしたい
静岡県浜松市中央区入野町10634-1
/38.88m²
建物近辺は広大な更地に、ポツンと建てられたこちらのマンション。
1階部分は店舗や事務所になってます。
バルコニー先には、新幹線の線路が。数分おきには新幹線が通りますが。
窓を閉めればさほどきにならなかったんです。
建物前面は幹線道路の為、騒音はします。。。
洗面脱衣場トイレ洗濯機置場が一緒になったタイプ。
少し広めなスペースになってます。
洋室6帖にあるクローゼットはワイドにドーンと広く。
洋服が沢山収納できそうで嬉しいですね。
しかしなんといっても、ペット飼育ができるのです。
ペットの飼育ができる物件て希少ですよね。
ペット可物件をお探しの方、どうでしょう?
続きを読む
見学したい(無料)週末はアウトドア?冬はスノボ?
静岡県浜松市中央区大平台4-10-33
/38.50m²
浜松市西区大平台と、とっても人気で閑静な住宅街。
さなる幼稚園、大平台小学校、入野中学校など学校も近くにあり、お子様がいらっしゃる方には徒歩圏内で通いやすいです。
近隣には大きな公園が3つもあります。
また、遠鉄ストア、杏林堂なども食料品などは徒歩圏内でいけます。
なんといっても、賃貸で外に大型物置があるのが嬉しいです。
週末はご家族でキャンプ?
冬はスキーやスノボなどやります?
スタットレスタイヤも収納したい?
バイクを整備します?
ざっくり収納できちゃいます。
荷物をざっくり収納できるような物件をお探しの方、いかがでしょう?
続きを読む
見学したい(無料)ペットと共に暮らしたい
静岡県浜松市中央区入野町16132-14
/50.27m²
ご紹介させていただきます。
広めのLDKと洋室6帖は南ベランダに面していてとっても明るいんです。
洗濯機置場は室内にありますが、白いロールカーテンを閉めれば、洗濯機隠せます。
都市ガス栓ですが、ガスコンロを購入しなければなりませんが。
大平台小学校や大平台高校、入野中学校、さなる幼稚園など学校施設も近隣にあり。
遠鉄ストアやイオン、クックマートなどスーパーも近隣にあり。
ペット飼育可能な物件をお探しの方いかがでしょうか?
続きを読む
見学したい(無料)バルコニーから浜松の景色を楽しもう!
静岡県浜松市中央区冨塚町2156-8
/62.05m²
角部屋南東の2面採光とベランダからはアクトタワーが小さく眺望
スーパーや病院、学校など近隣設備も充実してます。
築浅物件なので、設備が新しくて気持ちよいです!
舘山寺街道に面しているので、朝夕の通勤時間などは交通量が多く車の音もしますが。。。
日当たりの良いお部屋をお探しの方、いかがでしょうか?
続きを読む
見学したい(無料)かわいいアンティークハウス
静岡県浜松市中央区楊子町3-1
3LDK /90.00m² /2010年2月
レンガ調の屋根と柔らかな曲線のバルコニーでできた南欧風の外観。
白い壁をベースに梁、階段手摺など古材風にテイストされた素材がアクセントになって南欧風を感じることができます。
実は省エネ化と快適性を両立させる高気密・高断熱ハウスとなっているので、デザイン性だけでなく、機能性もばっちりです◎
こんな素敵なおうちで、さらにペットも一緒に暮らすことが出来ますよ!
また、事務所としてやサロンとしてもご利用頂けますので、ご要望の多い住居兼サロンといった使い方も可能です^^
お気軽にご相談下さい!
続きを読む
見学したい(無料)Antique design~南欧風スタイル~
静岡県浜松市中央区楊子町3-1
2LDK /85.00m² /2010年02月
レンガ調の屋根と柔らかな曲線のバルコニーでできた南欧風の外観。
白い壁をベースに梁、階段手摺など古材風にテイストされた素材がアクセントになって南欧風を感じることができます。
2階がLDKスペースになっています。
なんと、アイランドキッチン!
ホームパーティーやおもてなしの時に大活躍、間違いなし!
リビング上部は、シーリングファンと吹き抜けで気持ちのよい空間になっています。
こちらは事業用の利用も可!
サロンなどにしても雰囲気があっていいかも。
続きを読む
見学したい(無料)Which do you like1Ror 1LDK?
静岡県浜松市中央区三方原町911-1
/33.12m²
ただ間取りの表記は1LDKです。どうやって部屋を仕切る?
答えはロールスクリーンでお部屋を区切ります。
引き戸のように一部壁が残ってしますようなことがないので、スクリーンを開放すれば完全なワンルームに変身します!
よく言えばワンルームをベースに1LDKにも自由自在に変えられる、ネガティブに言えばちょっとチープ感が・・・
ただ水回りもきれいで1人暮らし用として広くて家賃も抑え目なのでかなりオススメです!
続きを読む
見学したい(無料)白いアート空間、Carre blanc。
静岡県浜松市中央区大平台3-17-24
/83.20m²
LDKに囲まれた約6帖ほどの広さのウッドデッキと1階のLDKに敷き詰められた真っ白なフロアタイルが大きな特徴。お部屋の照明にはダウンライトを採用することにより天井面がすっきりと演出されております。。
ウッドデッキで元気に遊ぶ子供達を2階から見下ろすことも可能、ウッドデッキの使い道はアナタ次第です。
個人的には昼間はハンモックで読書をしながら日光浴+昼寝、夜は七輪で秋の味覚秋刀魚やキノコ類を焼きながら1杯など楽しみ方をしてみたい。(≧∇≦)/
戸建の様に見えますが境界壁を共有しているため「テラスハウス」としてのお部屋の紹介になります。
続きを読む
見学したい(無料)【ペット可戸建】家族みんなの暮らし!
静岡県浜松市中央区楊子町181
/72.84m²
広い敷地に同じ形のおうちが並んで立っており、オシャレな雰囲気が漂っています。
室内もしっかりオシャレ。
LDKはシンプルな木目調をベースに、黒のキッチンで引き締まってワンランク上の感じです。
LDKからつながるウッドデッキも、小さめですが日当たりはよく洗濯物を干すにはぴったり。
外の人の目をオシャレに遮ることができるのも嬉しいですね!
LDKにある階段を登ると、3つの洋室があります。
どのお部屋もオープン式のみせる収納です。
1つの洋室はなんとウォークインクローゼットつき!
奥行きもちゃんとあってたくさん収納可能です。
またこちらのお家はペット可なんです!
わんちゃん、ねこちゃんならOKで、大好きなペットと充実ライフを送ることができちゃうんです。
家族みんなでどんな生活を送ろうか、、夢が広がります!
ぜひ家族みんなで楽しい暮らしを!
続きを読む
見学したい(無料)リフォームが待ちきれない戸建
静岡県浜松市中央区楊子町182
/72.84m²
場所は、南区の中でも浜松駅に近いエリアの楊子。浜松駅まで車で10分以内です。
ペットも小型犬、猫ともに可能です。
ウッドデッキで愛犬が遊ぶ様子が目に浮かびます。
広い敷地に6棟ほど同じ形の住宅が並び建っていて、外観が同じですから、
この場所だけ洗練された区画という印象です。
それぞれの駐車場も広いですし、駐輪場は各家の目の前に専用でありますから、
お隣に気を使い過ぎるということもなさそうです。
リフォーム前にも決まってしまいそうなお部屋です。
どうぞ、お急ぎお問い合わせください。
続きを読む
見学したい(無料)Galva Town yozuuuuu
静岡県浜松市中央区楊子町182
/72.84m²
ご近所さんとの距離もあり、敷地内の共有道路もゆとりがあります。
外観のデザインは、黒と白でスタイリッシュなイメージ。
そこに木のルーバーのウッドバルコニーがついて、とてもオシャレな空間です。
内装は、13帖のLDK+3室。3LDK。
ベースは、ナチュラルカラー。アクセントに"黒"を効かせてしまりのある空間になっています。
続きを読む
見学したい(無料)猫足バスタブの南仏カントリー。
静岡県浜松市中央区植松町268-1
/40.40m²
急にそこが、レトロな南仏カントリーの装いでビックリ!
なんとまぁ、可愛らしい世界でしょう!
床のクッションフロア、塗装された建具、ガラス戸の細工、照明、洗面台、
全てが愛らしくリフォームされています。
中でも驚きは、猫足のバスタブ!
レトロなタイルの浴室を見事に猫足の印象で素敵にしています。
追い炊きができなくても、楽しいバスタイムが過ごせます!
バルコニーの手前がちょっとしたインルームバルコニーになっているので、
雨の日の洗濯物もここで干せます。
一度見たら、忘れられないリフォームアイデアが満載のお部屋です。
ぜひ、ご覧ください!
続きを読む
見学したい(無料)「TOKYO 2020」目指す。
静岡県浜松市中央区蜆塚4-17-18-1
/169.66m²
今までで一番沢山のカット数を撮影した戸建てかもしれません^^;
住所は蜆塚ですが、佐鳴台にとても近いエリアの住宅街です。
玄関では、ワンちゃんがお出迎え^^
まず、1階のLDK16帖と同じくらいの広さのサンルームが!
そして、こちらには、卓球台があります!
一人で来たことを後悔しました。遊びたい!!打ち合いたい!!
更に見たことのない装置。。。もしかして。。卓球マシン?!
東京オリンピック目指している方、お子さんを卓球選手に育てたい方、いかがですか(笑)
キッチンは、シンクが2つあります。
これなら、ホームパーティーにも大活躍するキッチン。
お家で卓球大会を開催して、終わったら、3階の屋上で、BBQパーティー!
遊び心満載のオール電化一戸建てです。
お部屋も5部屋あり、全て6帖以上、クローゼットも充実していて、ほとんどのお部屋にエアコンもついています。
現在、お隣に住む大家さんが住んでいたお宅です。
屋上にソーラーパネルがあり、そちらの点検など、大家さんにお世話になることもあります。優しい大家さんに色々とご相談もできそうです。
掲載しきれないお写真もありますので、ぜひ、ご覧になりたい方、お問い合わせください!
続きを読む
見学したい(無料)入野の異空間 事業用戸建て
静岡県浜松市中央区入野町9093
/238.00m²
印象的なリビングは10帖と8帖の大広間。ここは畳の代わりに木材を幾何学的に配置した独特のデザイン。そして緑色に塗装された壁。何とも奇抜な空間です。
1階にはこの大広間以外にも和室が3部屋あります。どのお部屋もかつての高級感漂う建具や備え付け家具が建築当時を思い起こさせます。
2階へ上がるとお部屋は4部屋。絨毯敷きのお部屋にはキッチンがあり、かつての利用者のものと思われる造作がそのまま残っています。
北側の洋室はトパーズブルーで塗装された空間に壁付のランプ、そして木の扉がとても素敵な空間でした。
和室の壁もブルーで塗装されており、センスを感じる空間です。
バルコニーはとても広く、こちらも十分に活用の余地があります。
入居時に現状渡しということで内装や建物全体はかなり傷みがあるので多少修繕は必要ですが、空間的にはなかなかのものでしたので居ぬきでも使えるのではないかと思います。
事業内容は飲食不可で、人が多数出入りするようなものは近隣に迷惑を掛けたくないので避けてほしいとのことでしたので物販などは難しいでしょう。
事務所としての活用やサロンなどには面白い空間かもしれません。
用途地域は工業地域なので旅館・ホテルと劇場以外の事業であれば基本大丈夫です。
駐車スペースは建物南側に十分なスペースがありますので何台か停められます。
場所も旧雄踏街道と大平台に抜ける片側2車線のバイパスに近いので来客時のアクセスもよさそうです。接道は少し細めなのでそのあたりは現地で確認してください。
この空間、この広さで9万円はお得感があります。あとはあなたの使い方次第。是非事業プランを考えてみてください。
続きを読む
見学したい(無料)【新築】佐鳴台で始めるREIWA LIFE
静岡県浜松市中央区佐鳴台4-20-3
/50.44m²
詳しいことはまだ伝えれないのですが、
新築なので間違いなく良い!はず・・・
また詳しいことが分かり次第随時更新いたしますね!
続きを読む
見学したい(無料)屋上にオアシスあります。
静岡県浜松市中央区入野町1008-1
/57.96m²
ここは1階に14帖のLDK、2階に7帖の洋室とWIC。これだけ聞くと普通の1LDKだよね、と思ってしまうのですが、そうではありませんよ!12帖のバルコニーがついています。
この広さ写真でも広いですが、実際に見るとかなり広い!
無限大に広がる空を独り占めする感じがとても素敵な物件です。
1階にはワイド2600以上ある大型システムキッチン。一坪風呂など、住宅設備はGOODなグレードです。
2階は寝室としてご利用いただけるスペースですが、若干天井が低め。
WICの先にあるはめ殺しの大きな窓。そこにちょっとしたスペースがあり、椅子を置けば特等席。ちょっとした空間の使い方が素敵です。
駐車場は縦列で2台取れますし、2人暮らしにも対応しております。
屋上をあなただけのオアシスといて是非活用してみてください!
続きを読む
見学したい(無料)23歳女性に捧げる。
静岡県掛川市成滝164-1
/25.92m²
23歳の女性は社会に出てまだ間もない、だけども自立しようと頑張って、毎日仕事だけでなく遊びも、そして恋もしたい!そんな方には是非住んでいただきたいと思えるお部屋です。
エントランスはオートロック。防犯カメラも完備しており、お部屋にはTVモニターインターフォンが付いているなど、セキュリティーは万全です。
W120cmと小さいながらキッチンは2口のコンロでシンクも大きく、シンクカバーもついているので作業スペースも十分に取れるキッチン。
可動式の棚が壁側とキッチン側の2箇所。ここには自分の好きな小物を置いてインテリアを楽しめそう。
壁一面はバリ風の壁紙でアジアンテイストが魅力です。
水回りもお風呂とトイレは別のタイプ。お風呂の壁はピンク。かわいらしいデザインです。
収納も十分で洋服持ちの女性のこともちゃんと考えられています。
あったらいいなというのは部屋干しの物干し。実はこれがあるんです。女性の方だとベランダに干すのを躊躇したこともあるはず。このお部屋には部屋干し機が付いているので気兼ねなくお部屋に干せます。これからの時期花粉症対策にも良いですね。
大家さんも気さくな人で、とっても素敵でした。タケノコの時期には入居者さんにタケノコご飯を振舞ったり、松茸が手に入ったら松茸ごはんを振舞ったりしているそうですよ。住んでいて楽しいのはそんな大家さんとのコミュニケーションが取れるところかも。
365LIFEは浜松拠点なのでご案内はできませんが、お問合せ頂ければ大家さんから直接ご連絡させて頂きます。その分仲介手数料も掛からなくてお得ですよ。
続きを読む
見学したい(無料)音楽をタノシム『ビッグリビング!』
静岡県浜松市中央区入野町1900-37
/59.00m²
とにかく広い!普通のワンルームの3倍の面積があります!
ただ広いだけでなく天井の中央にカーテンレールが付いていますので、カーテンでお部屋を2つに仕切ることもできます。白い無地の光の透過性が高い薄手のカーテンなんかつけるととっても素敵な空間になりそう。
そして他の物件には無い最大の特徴は有線放送が付いているのです!スピーカーも2つついていますので音楽聞き放題!クラッシックからポップスまで選び放題です!なんと素敵なんでしょう。音楽好きにはたまりませんね。
あっ、もう一つおまけで眺望が抜群に良いです。建物が入野の丘の上にあるので、ベランダ南面からの眺望は入野から遠くアクトシティまで見渡せる素晴らしい眺望。とにかく空が広く感じますよ。
価格もお手ごろだし、贅沢な広さで一人暮らし満喫してください。
続きを読む
見学したい(無料)音楽をタノシム『ビッグワンルーム!』
静岡県浜松市中央区入野町1900-34
/47.00m²
とにかく広い!普通のワンルームの3倍の面積があります!
ただ広いだけでなく天井の中央にカーテンレールが付いていますので、カーテンでお部屋を2つに仕切ることもできます。白い無地の光の透過性が高い薄手のカーテンなんかつけるととっても素敵な空間になりそう。
そして他の物件には無い最大の特徴は有線放送が付いているのです!スピーカーも2つついていますので音楽聞き放題!クラッシックからポップスまで選び放題です!なんと素敵なんでしょう。音楽好きにはたまりませんね。
あっ、もう一つおまけで眺望が抜群に良いです。建物が入野の丘の上にあるので、ベランダ南面からの眺望は入野から遠くアクトシティまで見渡せる素晴らしい眺望。とにかく空が広く感じますよ。
価格もお手ごろだし、贅沢な広さで一人暮らし満喫してください。
続きを読む
見学したい(無料)【店舗物件】入野のファサード
静岡県浜松市中央区入野町1900-37
/48.00m²
部屋の中に壁で仕切られた小部屋があり、トイレやキッチン、シャワー室まで既設されています。店舗開店時には物件の契約金以外に内装工事費など投資がかさみます。ここであれば既存の設備をある程度居ぬきで活用しながら自分のお店をオープンできそう。
サロン系やペットトリマーさんで事業スペースを探されている方なんかいいかもです。もちろんそのほかの事業でも是非是非ご検討ください。
場所は旧雄踏街道から少し入ったところ。入野と言っても佐鳴台のホワイトストリートやオレンジストリートにほど近い場所です。
同じ1階には理容室、美容室、雑貨屋さん、フランス料理屋さんが入居されています。
365LIFEではあなたの事業内容に応じて物件をお探し致します。
続きを読む
見学したい(無料)個性派LDKで豊かな暮らし
静岡県浜松市中央区西伊場町24-7
/64.36m²
建物外観もまだまだきれいなこの物件は中に入るとお部屋が白で溢れています!
シンプルに白でまとめられた各部屋には至る所に収納があって、うれしいポイント盛りだくさんのおうちです。
まず10帖のLDKは、もちろん白。
変わった形が特徴的なLDKは人気の対面式キッチンで料理もはかどりそうです。
階段下を利用した収納がついていて、見た目よりも大きな収納付きで片付けに困る事もなく広々とした暮らしができそうです。
二階に上がると2つの洋室があります。
南向きの8.5帖の洋室は両側にハンガーポールがついている超広々ウォークインクローゼット付き!
クローゼットいっぱいにお洋服をしまって、何を着ようかたくさん悩むあの時間が、女の子からしたら楽しくて仕方ないですよね!
もう一つは6帖の洋室。こちらにもしっかりクローゼット付きです!
間取りは2LDKで広々しています。
新婚さんや、カップルの方はもちろん、おひとりさまで広々快適な暮らしをこのお部屋で、、!
続きを読む
見学したい(無料)白くてキレイなお部屋に住みたい!
静岡県浜松市中央区西伊場町24-7
/64.36m²
建物外観もまだまだきれいなこの物件は中に入るとお部屋が白で溢れています!
シンプルに白でまとめられた各部屋には至る所に収納があって、うれしいポイント盛りだくさんのおうちです。
まず10帖のLDKは、もちろん白。
変わった形が特徴的なLDKは人気の対面式キッチンで料理もはかどりそうです。
階段下を利用した収納がついていて、見た目よりも大きな収納付きで片付けに困る事もなく広々とした暮らしができそうです。
二階に上がると2つの洋室があります。
南向きの8.5帖の洋室は両側にハンガーポールがついている超広々ウォークインクローゼット付き!
クローゼットいっぱいにお洋服をしまって、何を着ようかたくさん悩むあの時間が、女の子からしたら楽しくて仕方ないですよね!
もう一つは6帖の洋室。こちらにもしっかりクローゼット付きです!
間取りは2LDKで広々しています。
新婚さんや、カップルの方はもちろん、おひとりさまで広々快適な暮らしをこのお部屋で、、!
続きを読む
見学したい(無料)お帰りを言いたくて
静岡県浜松市中央区西伊場町24-7
/64.36m²
シックな外観と同じくお部屋の内装も白で統一されシンプルかつ機能的な
お部屋となっております。
2FにはW.in クローゼットがついたお部屋もあり
ついついお洋服が増えて溢れてしまうというお悩みを持つ
日々おしゃれに気遣う貴女もこのお部屋でならもう心配ありません♪
2LDK のお部屋なのでおうちでお仕事をする方には仕事部屋が作れちゃうのはうれしいですね
もちろん新婚さんやカップルでのご入居にもおススメな物件です!
続きを読む
見学したい(無料)ぽかぽか太陽と穏やかな生活を。
静岡県浜松市浜名区寺島2403-1
/57.18m²
このお部屋は2階なので、玄関の扉を開けてからまず階段を上るタイプです。
お部屋は白とライトブラウンを基調をしていて、とても清潔感があります。
建物の周りに遮るものがないので、窓からは日差しがしっかり差し込んでぽかぽか。
穏やかな気持ちになります。
11帖のLDKと6.5帖の洋室は間仕切りを開けるとひと続きになり、広々使えます。
2つの洋室にはそれぞれハンガークローゼットがあって、収納もしっかり備えています。
この建物はオール電化で、太陽光システムを採用しているエコなおうち。
温暖化対策が叫ばれる昨今、住まいから意識してみるのもよいかもしれませんね!
ぽかぽか太陽と、のどかに穏やかにくらしてみませんか?
続きを読む
見学したい(無料)どうも、収納の鬼です。
静岡県浜松市中央区泉2-29-17
/63.50m²
5か所…だと…?
しかも、WICもある…?
と、収納の多さに思わずバトル漫画の敵キャラのようなセリフが。
2017年に完成したピカピカな物件です♪
お部屋に入るといきなり
大容量シューズボックスとコートなどを収納できるスペースがお出迎え。
洋室には、これ1つで良くない?ってくらいのWICが。
それだけでは飽き足らず、LDK横の洋室にはまたまたクローゼットが!
物が多い方の救世主です。
キッチンはIHで、照明がスポットライトのよう。
ステージ気分で料理を楽しみましょう♪
また、3階な上に窓にも玄関扉にも電子ロックのようなものが。
セキュリティもパーフェクトって訳です。
新しくてキレイで、2LDKで3階で駐車場2台付きで
収納もたくさん。の割にお家賃は高くない。
こんな要素モリモリ物件、中々ありませんよ!
続きを読む
見学したい(無料)くせが強いんじゃ
静岡県浜松市中央区天王町600-3
/40.33m²
満員電車、大都会、駅近....
なかなか無理のあるアプローチでした。申し訳ございません。
要は人が集まるところメリットが多いけど、デメリットもあるということです。
あまり住宅が密集したところには住みたくないけど、便利なところに住みたい。そんな方はここの立地はどうでしょう?
浜松市民のアミューズメントパーク、イオン市野や東名浜松ICのちょうど中間に位置します。しかも歩いて2分のところにビッグ冨士が!こりゃ便利。
お部屋はすごい細いバルコニーやちょっと奇抜な寝室の壁紙や、なぜそこまで横長になった?と思うお風呂の鏡等ちょこちょこクセがあるのがまたおつなのです。
続きを読む
見学したい(無料)No side good days。
静岡県浜松市中央区早出町826-3
1LDK /33.74m² /2008年2月
引っ越しする時の心配事といえば、お隣さんのこと。騒がしい人だったらどうしようという心配を持ったままだと、どんなに素敵な部屋に住んでも毎日を楽しむことができません。でもこの部屋なら心配ご無用!隣にお部屋はないんです。角部屋とかそういうことじゃなくて、両サイドに部屋がないんです!なんて贅沢!
この2階建てアパートにあるのは贅沢に2部屋だけ。各階1部屋の造りで、今回の募集はその1階のお部屋です。お部屋の中はとてもシンプルで、肩ひじ張らずゆっくりとしたライフスタイルが送れそうなイメージ。「かくれんぼするなら、確実ここでしょ」って感じのウォークインクローゼットが嬉しい1LDKです。
対面式キッチンや大きな鏡の洗面台など、「ゆったりとした日常生活」をイメージしやすいお部屋。採光面もたくさんあって、気持ちの良い生活が送れそうな気になります。
お隣さんを気にせずのびのびと暮らしたい方、お待ちしています!
続きを読む
見学したい(無料)Low cost 1LDK
静岡県浜松市中央区志都呂2-13-23
/34.94m²
そんな賃貸住宅だとして見ていただくと早いでしょう。
1LDKと言っても単身向けサイズの約35㎡、居室と寝室を別々にしたい人向けのコンパクトサイズ。
寝室にはベッド置いたらそれで横幅いっぱい、奥に室内唯一の収納空間、奥行は多少あるがウォークインクローゼットタイプではないですね。
室内設備もエアコンこそ設置されているもののその他設備はTVインターホンと照明器具のみ、これもLCCとよく似ています。
室内がコンパクトな分、居室も寝室も設置されているエアコン1台で補えると思います。
というよりそもそも寝室にはエアコン設置するスペースがありません。
設備などは必要最小限とし低価格でユーザーへて提供する。
そんな、現代社会向け ミニマリストへのお部屋です。
続きを読む
見学したい(無料)