閲覧履歴

お気に入り物件

お気に入り物件は会員登録すると使用できます。
未ログインの場合はログインして再度お試しください。

ログイン

保存した検索条件

保存した検索条件は会員登録すると使用できます。
未ログインの場合はログインして再度お試しください。

ログイン

賃貸物件を探す

売買物件を探す

店舗・事務所を探す

賃貸物件を見る

売買物件を見る

掲載物件一覧

26233件

お耳が幸せ[新築]

無料
無料

静岡県浜松市浜名区新原1964-9

1LDK /58.78m² /2024年9月

ライブやコンサートに行った後の余韻って、すごいですよね。
多幸感に包まれて、日常に帰りたくない!ってそんな気分になったことのある方も多いのでは?

こちらのお部屋、朝起きてから眠るまで、心地のいい音に囲まれて過ごしたい、そんなあなたにおすすめ。
なんてったって、LDKのシーリングライトにスピーカー機能がついてるんです!!!
お好みのBGMをかけたり、テンションの上がる曲をかけて、毎日ご機嫌で過ごしましょ?

場所は浜名区新原。お家の周りは住宅街で、窓を開けると小鳥のさえずりが聞こえました。
音楽を聴かない時にも、自然とリラックスタイムが流れる。そんな、静寂さえも素敵な空間です。

お掃除も料理もお洗濯も、好きな音を聞きながらだったら、きっとがんばれちゃう。
この新築1LDKで、お耳が幸せな日々を送りませんか?

続きを読む

見学したい(無料)

時代の波に乗ろう[新築]

無料
無料

静岡県浜松市浜名区新原1964-9

1LDK /58.78m² /2024年9月

イタリア語で”前進”を意味する「AVANTI」。
こちらのアパートにはそんな名前がついています。

2024年9月に完成したばかりの1LDK。
さすが新築なだけあって、今の時代に即した最新の設備がふんだんに盛り込まれているんです。

たとえば・・・
①駐車場には、電気自動車用の充電口付き。
ガソリン車から乗り換えようと思っているあなたの人生を”前進”させます。

②リビングの照明には、スピーカー付きのシーリングライトを採用。
リビングで好きな音楽をかけて、あなたの毎日を素敵に彩ります。

③お部屋全体で、コンセントがなんと17か所!キッチンや廊下、いたるところにコンセントがついてます。
調理家電やAlexa、ルンバなど最新家電に囲まれて生活できます。


これだけ揃っていれば、QOLがアップすること間違いなし!
人生いろいろありますが、いい時も悪い時も、ぼちぼち前に進みましょ。
ここに住まえば、そんな前向きな気持ちになれそうなお部屋です。

続きを読む

見学したい(無料)

くすみカラーの包容力[新築]

無料
無料

静岡県浜松市浜名区新原1964-9

1LDK /58.78m² /2024年9月

男女問わず人気な、くすみカラー・ニュアンスカラー。
そんな、落ち着いた色味で統一された新築物件が完成しました。

玄関の扉を開けた瞬間から漂う和やかで落ち着いた空気感。
サンドベージュやスモーキーグレイのアクセントクロス、オフホワイトの壁紙、そこにライトオークの床材。
明るすぎず、もちろん暗くもならない、絶妙なバランスが素敵なんです。
どんな色味の家具を置いてもオシャレに決まる、なじみのいい雰囲気のお部屋なので、インテリアの幅も広がります。

お部屋は1LDKながら、13.3帖のゆったりリビングと、8帖の洋室。2人暮らしにちょうどいい広さです。
メゾネットの構造で水回りが2階にあり、洗濯機⇒バルコニー⇒洋室の収納の流れで、お洗濯を2階で完結できちゃうのも嬉しいポイント。

こだわりのインテリアで自分たちらしいお部屋作りを楽しみたい方に、ぜひとも味わっていただきたい、オシャレさんWelcomeな物件です。

続きを読む

見学したい(無料)
FULL

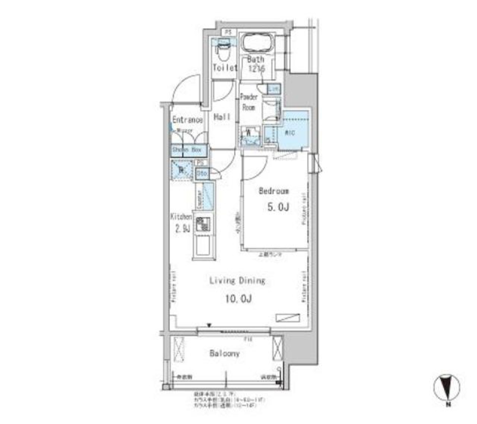
MFPR目黒タワー 608号室[ペット可]

33.9万円
67.8万円

東京都目黒区目黒1丁目24-9

2LDK /56.24m² /2008/02

~マイページを活用して便利な検索!~
マイページを登録すると以下の便利機能が使えます!
・気になった物件のハートを押して「お気に入り」に保存
 お気に入り登録された物件の条件が変わったら更新情報がメールで送信されます。
・勤務先からの距離と時間で検索できる「BP(ベストプレイス)検索」
・検索条件を保存して、同じ条件で検索できる「検索条件保存機能」

こちらの物件が気になったら、まずは内見のご予約を!
以下のお問い合わせフォームよりご連絡ください。

続きを読む

見学したい(無料)

パークアクシス表参道レジデンス 304号室[ペット可]

25.5万円
25.5万円

東京都渋谷区神宮前5丁目36-6

1DK /37.75m² /2017/11

~マイページを活用して便利な検索!~
マイページを登録すると以下の便利機能が使えます!
・気になった物件のハートを押して「お気に入り」に保存
 お気に入り登録された物件の条件が変わったら更新情報がメールで送信されます。
・勤務先からの距離と時間で検索できる「BP(ベストプレイス)検索」
・検索条件を保存して、同じ条件で検索できる「検索条件保存機能」

こちらの物件が気になったら、まずは内見のご予約を!
以下のお問い合わせフォームよりご連絡ください。

続きを読む

見学したい(無料)

ライトテラス世田谷砧 404号室[ペット可]

29.5万円
44.25万円

東京都世田谷区砧5丁目8-22

3LDK /70.47m² /2018/08

~マイページを活用して便利な検索!~
マイページを登録すると以下の便利機能が使えます!
・気になった物件のハートを押して「お気に入り」に保存
 お気に入り登録された物件の条件が変わったら更新情報がメールで送信されます。
・勤務先からの距離と時間で検索できる「BP(ベストプレイス)検索」
・検索条件を保存して、同じ条件で検索できる「検索条件保存機能」

こちらの物件が気になったら、まずは内見のご予約を!
以下のお問い合わせフォームよりご連絡ください。

続きを読む

見学したい(無料)

南麻布仙台坂レジデンス 606号室

24.2万円
48.4万円

東京都港区南麻布1丁目5-1

1LDK /43.47m² /2023/01

~マイページを活用して便利な検索!~
マイページを登録すると以下の便利機能が使えます!
・気になった物件のハートを押して「お気に入り」に保存
 お気に入り登録された物件の条件が変わったら更新情報がメールで送信されます。
・勤務先からの距離と時間で検索できる「BP(ベストプレイス)検索」
・検索条件を保存して、同じ条件で検索できる「検索条件保存機能」

こちらの物件が気になったら、まずは内見のご予約を!
以下のお問い合わせフォームよりご連絡ください。

続きを読む

見学したい(無料)

グランシエル南青山 905号室

20万円
無料

東京都港区南青山6丁目9-5

1LDK /37.53m² /2019/08

~マイページを活用して便利な検索!~
マイページを登録すると以下の便利機能が使えます!
・気になった物件のハートを押して「お気に入り」に保存
 お気に入り登録された物件の条件が変わったら更新情報がメールで送信されます。
・勤務先からの距離と時間で検索できる「BP(ベストプレイス)検索」
・検索条件を保存して、同じ条件で検索できる「検索条件保存機能」

こちらの物件が気になったら、まずは内見のご予約を!
以下のお問い合わせフォームよりご連絡ください。

続きを読む

見学したい(無料)

パークアクシス成増二丁目 201号室[新築]

19.3万円
19.3万円

東京都板橋区成増2丁目21-6

1SLDK /57.01m² /2024/06

~マイページを活用して便利な検索!~
マイページを登録すると以下の便利機能が使えます!
・気になった物件のハートを押して「お気に入り」に保存
 お気に入り登録された物件の条件が変わったら更新情報がメールで送信されます。
・勤務先からの距離と時間で検索できる「BP(ベストプレイス)検索」
・検索条件を保存して、同じ条件で検索できる「検索条件保存機能」

こちらの物件が気になったら、まずは内見のご予約を!
以下のお問い合わせフォームよりご連絡ください。

続きを読む

見学したい(無料)

パークスフィア牛込神楽坂 710号室[ペット可]

19.8万円
無料

東京都新宿区南山伏町3-3

1LDK /40.01m² /2021/07

~マイページを活用して便利な検索!~
マイページを登録すると以下の便利機能が使えます!
・気になった物件のハートを押して「お気に入り」に保存
 お気に入り登録された物件の条件が変わったら更新情報がメールで送信されます。
・勤務先からの距離と時間で検索できる「BP(ベストプレイス)検索」
・検索条件を保存して、同じ条件で検索できる「検索条件保存機能」

こちらの物件が気になったら、まずは内見のご予約を!
以下のお問い合わせフォームよりご連絡ください。

続きを読む

見学したい(無料)

アヴァンカーサ町屋 408号室[ペット可]

23万円
無料

東京都荒川区荒川4丁目39-1

2SLDK /56.40m² /2023/08

~マイページを活用して便利な検索!~
マイページを登録すると以下の便利機能が使えます!
・気になった物件のハートを押して「お気に入り」に保存
 お気に入り登録された物件の条件が変わったら更新情報がメールで送信されます。
・勤務先からの距離と時間で検索できる「BP(ベストプレイス)検索」
・検索条件を保存して、同じ条件で検索できる「検索条件保存機能」

こちらの物件が気になったら、まずは内見のご予約を!
以下のお問い合わせフォームよりご連絡ください。

続きを読む

見学したい(無料)

ルフォンプログレ文京湯島 1101号室[ペット可]

28.5万円
28.5万円

東京都文京区湯島3丁目12-13

2LDK /53.26m² /2020/09

~マイページを活用して便利な検索!~
マイページを登録すると以下の便利機能が使えます!
・気になった物件のハートを押して「お気に入り」に保存
 お気に入り登録された物件の条件が変わったら更新情報がメールで送信されます。
・勤務先からの距離と時間で検索できる「BP(ベストプレイス)検索」
・検索条件を保存して、同じ条件で検索できる「検索条件保存機能」

こちらの物件が気になったら、まずは内見のご予約を!
以下のお問い合わせフォームよりご連絡ください。

続きを読む

見学したい(無料)

Brillia ist 町屋 806号室[ペット可]

24万円
無料

東京都荒川区荒川6丁目6-4

2LDK /50.01m² /2022/03

~マイページを活用して便利な検索!~
マイページを登録すると以下の便利機能が使えます!
・気になった物件のハートを押して「お気に入り」に保存
 お気に入り登録された物件の条件が変わったら更新情報がメールで送信されます。
・勤務先からの距離と時間で検索できる「BP(ベストプレイス)検索」
・検索条件を保存して、同じ条件で検索できる「検索条件保存機能」

こちらの物件が気になったら、まずは内見のご予約を!
以下のお問い合わせフォームよりご連絡ください。

続きを読む

見学したい(無料)

Brillia ist 千駄ヶ谷 720号室[ペット可]

23.8万円
無料

東京都新宿区大京町31-4

1LDK /41.36m² /2019/05

~マイページを活用して便利な検索!~
マイページを登録すると以下の便利機能が使えます!
・気になった物件のハートを押して「お気に入り」に保存
 お気に入り登録された物件の条件が変わったら更新情報がメールで送信されます。
・勤務先からの距離と時間で検索できる「BP(ベストプレイス)検索」
・検索条件を保存して、同じ条件で検索できる「検索条件保存機能」

こちらの物件が気になったら、まずは内見のご予約を!
以下のお問い合わせフォームよりご連絡ください。

続きを読む

見学したい(無料)

COMPOSITE高輪 401号室

27.5万円
無料

東京都港区高輪1丁目13-6

1SLDK /47.40m² /2024/05

~マイページを活用して便利な検索!~
マイページを登録すると以下の便利機能が使えます!
・気になった物件のハートを押して「お気に入り」に保存
 お気に入り登録された物件の条件が変わったら更新情報がメールで送信されます。
・勤務先からの距離と時間で検索できる「BP(ベストプレイス)検索」
・検索条件を保存して、同じ条件で検索できる「検索条件保存機能」

こちらの物件が気になったら、まずは内見のご予約を!
以下のお問い合わせフォームよりご連絡ください。

続きを読む

見学したい(無料)

PREMIUM CUBE 上野 1401号室[新築]

35万円
35万円

東京都台東区東上野2丁目8-1

2LDK /78.95m² /2024/03

~マイページを活用して便利な検索!~
マイページを登録すると以下の便利機能が使えます!
・気になった物件のハートを押して「お気に入り」に保存
 お気に入り登録された物件の条件が変わったら更新情報がメールで送信されます。
・勤務先からの距離と時間で検索できる「BP(ベストプレイス)検索」
・検索条件を保存して、同じ条件で検索できる「検索条件保存機能」

こちらの物件が気になったら、まずは内見のご予約を!
以下のお問い合わせフォームよりご連絡ください。

続きを読む

見学したい(無料)

フォーリア西麻布CASA 104号室

26万円
無料

東京都港区西麻布4丁目7-6

1LDK /40.43m² /2021/06

~マイページを活用して便利な検索!~
マイページを登録すると以下の便利機能が使えます!
・気になった物件のハートを押して「お気に入り」に保存
 お気に入り登録された物件の条件が変わったら更新情報がメールで送信されます。
・勤務先からの距離と時間で検索できる「BP(ベストプレイス)検索」
・検索条件を保存して、同じ条件で検索できる「検索条件保存機能」

こちらの物件が気になったら、まずは内見のご予約を!
以下のお問い合わせフォームよりご連絡ください。

続きを読む

見学したい(無料)

TRADIS池袋本町 306号室[ペット可]

無料
無料

フリーレント

東京都豊島区池袋本町2丁目35-12

2LDK /47.91m² /2024/06

~マイページを活用して便利な検索!~
マイページを登録すると以下の便利機能が使えます!
・気になった物件のハートを押して「お気に入り」に保存
 お気に入り登録された物件の条件が変わったら更新情報がメールで送信されます。
・勤務先からの距離と時間で検索できる「BP(ベストプレイス)検索」
・検索条件を保存して、同じ条件で検索できる「検索条件保存機能」

こちらの物件が気になったら、まずは内見のご予約を!
以下のお問い合わせフォームよりご連絡ください。

続きを読む

見学したい(無料)

パークアクシス菊川ステーションイースト 804号室[ペット可]

20.3万円
無料

東京都墨田区菊川3丁目11-12

2LDK /43.15m² /2022/09

~マイページを活用して便利な検索!~
マイページを登録すると以下の便利機能が使えます!
・気になった物件のハートを押して「お気に入り」に保存
 お気に入り登録された物件の条件が変わったら更新情報がメールで送信されます。
・勤務先からの距離と時間で検索できる「BP(ベストプレイス)検索」
・検索条件を保存して、同じ条件で検索できる「検索条件保存機能」

こちらの物件が気になったら、まずは内見のご予約を!
以下のお問い合わせフォームよりご連絡ください。

続きを読む

見学したい(無料)

Brillia下丸子 701号室

47万円
無料

東京都大田区下丸子2丁目11-11

3LDK /75.93m² /2014/06

~マイページを活用して便利な検索!~
マイページを登録すると以下の便利機能が使えます!
・気になった物件のハートを押して「お気に入り」に保存
 お気に入り登録された物件の条件が変わったら更新情報がメールで送信されます。
・勤務先からの距離と時間で検索できる「BP(ベストプレイス)検索」
・検索条件を保存して、同じ条件で検索できる「検索条件保存機能」

こちらの物件が気になったら、まずは内見のご予約を!
以下のお問い合わせフォームよりご連絡ください。

続きを読む

見学したい(無料)

グランシティ本所錦糸町 201号室

44万円
22万円

東京都墨田区業平4丁目4-12

3LDK /77.28m² /2001/09

~マイページを活用して便利な検索!~
マイページを登録すると以下の便利機能が使えます!
・気になった物件のハートを押して「お気に入り」に保存
 お気に入り登録された物件の条件が変わったら更新情報がメールで送信されます。
・勤務先からの距離と時間で検索できる「BP(ベストプレイス)検索」
・検索条件を保存して、同じ条件で検索できる「検索条件保存機能」

こちらの物件が気になったら、まずは内見のご予約を!
以下のお問い合わせフォームよりご連絡ください。

続きを読む

見学したい(無料)

山手町戸建

116万円
58万円

神奈川県横浜市中区山手町120-11

4LDK /182.48m² /1997/07

~マイページを活用して便利な検索!~
マイページを登録すると以下の便利機能が使えます!
・気になった物件のハートを押して「お気に入り」に保存
 お気に入り登録された物件の条件が変わったら更新情報がメールで送信されます。
・勤務先からの距離と時間で検索できる「BP(ベストプレイス)検索」
・検索条件を保存して、同じ条件で検索できる「検索条件保存機能」

こちらの物件が気になったら、まずは内見のご予約を!
以下のお問い合わせフォームよりご連絡ください。

続きを読む

見学したい(無料)

つつじが丘戸建

44万円
22万円

神奈川県横浜市青葉区つつじが丘28-230

4LDK /108.48m² /2020/12

~マイページを活用して便利な検索!~
マイページを登録すると以下の便利機能が使えます!
・気になった物件のハートを押して「お気に入り」に保存
 お気に入り登録された物件の条件が変わったら更新情報がメールで送信されます。
・勤務先からの距離と時間で検索できる「BP(ベストプレイス)検索」
・検索条件を保存して、同じ条件で検索できる「検索条件保存機能」

こちらの物件が気になったら、まずは内見のご予約を!
以下のお問い合わせフォームよりご連絡ください。

続きを読む

見学したい(無料)

青空と青空と私

44万円
22万円

東京都渋谷区代々木4丁目22-1

1R /50.49m² /1970/06

*こちらの物件は2年の定期借家契約です。

小田急線 参宮橋駅から徒歩約5分。
明治神宮や代々木公園にほど近く、気軽にお散歩に行ける距離。
新宿までは電車で約3分・渋谷までも16分ほどと、都心へのアクセスも良好です。

お部屋は、建物の最上階、7階に位置するひろびろとしたワンルーム!
約21帖もあるので、かなりゆとりを持って暮らせそうです。
大きなふかふかのソファをどーんと置いて、ゆったり映画を見たりしたいな。

これだけ広さのあるワンルームなら、棚や植物、パーテーションでお部屋をゆるく区切って使うのもおすすめです。
寝食のスペースを分けたり、仕事スペースとプライベートスペースを分けたりして使うことも。

そして大きな窓が2つ!最上階なので遮るものがなく、晴れた日は青空がよく見えます。
あっちの窓の青空と、こっちの窓の青空と、交互に眺めながらぼーっと過ごすのも素敵です。

ベランダも幅があるので、チェアを置いて星を眺めたり風にあたったりできそう。
せっかくの最上階、空を独り占めして満喫しましょう!

~マイページを活用して便利な検索!~
マイページを登録すると以下の便利機能が使えます!
・気になった物件のハートを押して「お気に入り」に保存
 お気に入り登録された物件の条件が変わったら更新情報がメールで送信されます。
・勤務先からの距離と時間で検索できる「BP(ベストプレイス)検索」
・検索条件を保存して、同じ条件で検索できる「検索条件保存機能」

こちらの物件が気になったら、まずは内見のご予約を!
以下のお問い合わせフォームよりご連絡ください。

続きを読む

見学したい(無料)

Brillia ist 文京六義園 201号室[ペット可]

27.4万円
無料

東京都文京区本駒込6丁目3-9

2LDK /50.65m² /2023/09

~マイページを活用して便利な検索!~
マイページを登録すると以下の便利機能が使えます!
・気になった物件のハートを押して「お気に入り」に保存
 お気に入り登録された物件の条件が変わったら更新情報がメールで送信されます。
・勤務先からの距離と時間で検索できる「BP(ベストプレイス)検索」
・検索条件を保存して、同じ条件で検索できる「検索条件保存機能」

こちらの物件が気になったら、まずは内見のご予約を!
以下のお問い合わせフォームよりご連絡ください。

続きを読む

見学したい(無料)

Brillia ist 浅草橋 1103号室[ペット可]

無料
無料

東京都台東区浅草橋1丁目34-2

2LDK /52.48m² /2021/10

~マイページを活用して便利な検索!~
マイページを登録すると以下の便利機能が使えます!
・気になった物件のハートを押して「お気に入り」に保存
 お気に入り登録された物件の条件が変わったら更新情報がメールで送信されます。
・勤務先からの距離と時間で検索できる「BP(ベストプレイス)検索」
・検索条件を保存して、同じ条件で検索できる「検索条件保存機能」

こちらの物件が気になったら、まずは内見のご予約を!
以下のお問い合わせフォームよりご連絡ください。

続きを読む

見学したい(無料)

ラティエラ横濱大通り公園 604号室

15万円
無料

神奈川県横浜市南区高根町1丁目3-1

1LDK /38.50m² /2022/12

~マイページを活用して便利な検索!~
マイページを登録すると以下の便利機能が使えます!
・気になった物件のハートを押して「お気に入り」に保存
 お気に入り登録された物件の条件が変わったら更新情報がメールで送信されます。
・勤務先からの距離と時間で検索できる「BP(ベストプレイス)検索」
・検索条件を保存して、同じ条件で検索できる「検索条件保存機能」

こちらの物件が気になったら、まずは内見のご予約を!
以下のお問い合わせフォームよりご連絡ください。

続きを読む

見学したい(無料)
FULL

レジデンス文京春日 302号室[ペット可]

14.3万円
14.3万円

東京都文京区春日2丁目24-18

1DK /25.16m² /2022/11

~マイページを活用して便利な検索!~
マイページを登録すると以下の便利機能が使えます!
・気になった物件のハートを押して「お気に入り」に保存
 お気に入り登録された物件の条件が変わったら更新情報がメールで送信されます。
・勤務先からの距離と時間で検索できる「BP(ベストプレイス)検索」
・検索条件を保存して、同じ条件で検索できる「検索条件保存機能」

こちらの物件が気になったら、まずは内見のご予約を!
以下のお問い合わせフォームよりご連絡ください。

続きを読む

見学したい(無料)

パークアクシス錦糸公園 906号室[ペット可]

15.7万円
15.7万円

東京都墨田区錦糸4丁目10-4

1LDK /31.08m² /2023/04

~マイページを活用して便利な検索!~
マイページを登録すると以下の便利機能が使えます!
・気になった物件のハートを押して「お気に入り」に保存
 お気に入り登録された物件の条件が変わったら更新情報がメールで送信されます。
・勤務先からの距離と時間で検索できる「BP(ベストプレイス)検索」
・検索条件を保存して、同じ条件で検索できる「検索条件保存機能」

こちらの物件が気になったら、まずは内見のご予約を!
以下のお問い合わせフォームよりご連絡ください。

続きを読む

見学したい(無料)
FULL

レジデンス文京春日 201号室[ペット可]

12.9万円
無料

東京都文京区春日2丁目24-18

1DK /25.12m² /2022/11

~マイページを活用して便利な検索!~
マイページを登録すると以下の便利機能が使えます!
・気になった物件のハートを押して「お気に入り」に保存
 お気に入り登録された物件の条件が変わったら更新情報がメールで送信されます。
・勤務先からの距離と時間で検索できる「BP(ベストプレイス)検索」
・検索条件を保存して、同じ条件で検索できる「検索条件保存機能」

こちらの物件が気になったら、まずは内見のご予約を!
以下のお問い合わせフォームよりご連絡ください。

続きを読む

見学したい(無料)

プレール・ドゥーク新宿West 409号室[ペット可]

13万円
無料

東京都新宿区北新宿2丁目2-5

1K /25.30m² /2020/12

~マイページを活用して便利な検索!~
マイページを登録すると以下の便利機能が使えます!
・気になった物件のハートを押して「お気に入り」に保存
 お気に入り登録された物件の条件が変わったら更新情報がメールで送信されます。
・勤務先からの距離と時間で検索できる「BP(ベストプレイス)検索」
・検索条件を保存して、同じ条件で検索できる「検索条件保存機能」

こちらの物件が気になったら、まずは内見のご予約を!
以下のお問い合わせフォームよりご連絡ください。

続きを読む

見学したい(無料)

パークアクシス錦糸公園 207号室[ペット可]

15万円
15万円

東京都墨田区錦糸4丁目10-4

1DK /29.48m² /2023/04

~マイページを活用して便利な検索!~
マイページを登録すると以下の便利機能が使えます!
・気になった物件のハートを押して「お気に入り」に保存
 お気に入り登録された物件の条件が変わったら更新情報がメールで送信されます。
・勤務先からの距離と時間で検索できる「BP(ベストプレイス)検索」
・検索条件を保存して、同じ条件で検索できる「検索条件保存機能」

こちらの物件が気になったら、まずは内見のご予約を!
以下のお問い合わせフォームよりご連絡ください。

続きを読む

見学したい(無料)

パークアクシス錦糸公園[ペット可]

17.1万円
無料

東京都墨田区錦糸4丁目10-4

1LDK /38.04m² /2023/04

~マイページを活用して便利な検索!~
マイページを登録すると以下の便利機能が使えます!
・気になった物件のハートを押して「お気に入り」に保存
 お気に入り登録された物件の条件が変わったら更新情報がメールで送信されます。
・勤務先からの距離と時間で検索できる「BP(ベストプレイス)検索」
・検索条件を保存して、同じ条件で検索できる「検索条件保存機能」

こちらの物件が気になったら、まずは内見のご予約を!
以下のお問い合わせフォームよりご連絡ください。

続きを読む

見学したい(無料)

パークアクシス駒込HILLTOP 304号室[ペット可]

14.7万円
無料

フリーレント

東京都北区中里3丁目18-4

1DK /35.04m² /2014/12

~マイページを活用して便利な検索!~
マイページを登録すると以下の便利機能が使えます!
・気になった物件のハートを押して「お気に入り」に保存
 お気に入り登録された物件の条件が変わったら更新情報がメールで送信されます。
・勤務先からの距離と時間で検索できる「BP(ベストプレイス)検索」
・検索条件を保存して、同じ条件で検索できる「検索条件保存機能」

こちらの物件が気になったら、まずは内見のご予約を!
以下のお問い合わせフォームよりご連絡ください。

続きを読む

見学したい(無料)

ジオエント本郷三丁目 1003号室

15万円
無料

フリーレント

東京都文京区本郷3丁目16-13

1K /25.12m² /2024/03

~マイページを活用して便利な検索!~
マイページを登録すると以下の便利機能が使えます!
・気になった物件のハートを押して「お気に入り」に保存
 お気に入り登録された物件の条件が変わったら更新情報がメールで送信されます。
・勤務先からの距離と時間で検索できる「BP(ベストプレイス)検索」
・検索条件を保存して、同じ条件で検索できる「検索条件保存機能」

こちらの物件が気になったら、まずは内見のご予約を!
以下のお問い合わせフォームよりご連絡ください。

続きを読む

見学したい(無料)

ジオエント本郷三丁目 602号室

15.2万円
無料

東京都文京区本郷3丁目16-13

1DK /25.12m² /2024/03

~マイページを活用して便利な検索!~
マイページを登録すると以下の便利機能が使えます!
・気になった物件のハートを押して「お気に入り」に保存
 お気に入り登録された物件の条件が変わったら更新情報がメールで送信されます。
・勤務先からの距離と時間で検索できる「BP(ベストプレイス)検索」
・検索条件を保存して、同じ条件で検索できる「検索条件保存機能」

こちらの物件が気になったら、まずは内見のご予約を!
以下のお問い合わせフォームよりご連絡ください。

続きを読む

見学したい(無料)

ポートタワー山下町 701号室

19.5万円
19.5万円

神奈川県横浜市中区山下町112番地3

1LDK /67.00m² /1988/11

~マイページを活用して便利な検索!~
マイページを登録すると以下の便利機能が使えます!
・気になった物件のハートを押して「お気に入り」に保存
 お気に入り登録された物件の条件が変わったら更新情報がメールで送信されます。
・勤務先からの距離と時間で検索できる「BP(ベストプレイス)検索」
・検索条件を保存して、同じ条件で検索できる「検索条件保存機能」

こちらの物件が気になったら、まずは内見のご予約を!
以下のお問い合わせフォームよりご連絡ください。

続きを読む

見学したい(無料)
FULL

パークアクシス神楽坂・早稲田通り 1106号室[ペット可]

15.7万円
無料

フリーレント

東京都新宿区東榎町7-1

1DK /30.07m² /2022/03

~マイページを活用して便利な検索!~
マイページを登録すると以下の便利機能が使えます!
・気になった物件のハートを押して「お気に入り」に保存
 お気に入り登録された物件の条件が変わったら更新情報がメールで送信されます。
・勤務先からの距離と時間で検索できる「BP(ベストプレイス)検索」
・検索条件を保存して、同じ条件で検索できる「検索条件保存機能」

こちらの物件が気になったら、まずは内見のご予約を!
以下のお問い合わせフォームよりご連絡ください。

続きを読む

見学したい(無料)

ラティエラ横濱大通り公園 801号室

15.2万円
無料

神奈川県横浜市南区高根町1丁目3-1

1LDK /38.50m² /2022/12

~マイページを活用して便利な検索!~
マイページを登録すると以下の便利機能が使えます!
・気になった物件のハートを押して「お気に入り」に保存
 お気に入り登録された物件の条件が変わったら更新情報がメールで送信されます。
・勤務先からの距離と時間で検索できる「BP(ベストプレイス)検索」
・検索条件を保存して、同じ条件で検索できる「検索条件保存機能」

こちらの物件が気になったら、まずは内見のご予約を!
以下のお問い合わせフォームよりご連絡ください。

続きを読む

見学したい(無料)

ルフォンプログレ中野富士見町 406号室[ペット可]

12.4万円
無料

東京都杉並区和田2丁目3-11

1DK /27.13m² /2016/08

~マイページを活用して便利な検索!~
マイページを登録すると以下の便利機能が使えます!
・気になった物件のハートを押して「お気に入り」に保存
 お気に入り登録された物件の条件が変わったら更新情報がメールで送信されます。
・勤務先からの距離と時間で検索できる「BP(ベストプレイス)検索」
・検索条件を保存して、同じ条件で検索できる「検索条件保存機能」

こちらの物件が気になったら、まずは内見のご予約を!
以下のお問い合わせフォームよりご連絡ください。

続きを読む

見学したい(無料)

パークアクシス日本橋茅場町ステーションゲート 303号室[ペット可]

14.2万円
無料

フリーレント

東京都中央区日本橋茅場町2丁目5-9

1DK /25.02m² /2023/09

~マイページを活用して便利な検索!~
マイページを登録すると以下の便利機能が使えます!
・気になった物件のハートを押して「お気に入り」に保存
 お気に入り登録された物件の条件が変わったら更新情報がメールで送信されます。
・勤務先からの距離と時間で検索できる「BP(ベストプレイス)検索」
・検索条件を保存して、同じ条件で検索できる「検索条件保存機能」

こちらの物件が気になったら、まずは内見のご予約を!
以下のお問い合わせフォームよりご連絡ください。

続きを読む

見学したい(無料)

パークアクシス日本橋茅場町ステーションゲート 304号室[ペット可]

14.2万円
無料

フリーレント

東京都中央区日本橋茅場町2丁目5-9

1DK /25.17m² /2023/09

~マイページを活用して便利な検索!~
マイページを登録すると以下の便利機能が使えます!
・気になった物件のハートを押して「お気に入り」に保存
 お気に入り登録された物件の条件が変わったら更新情報がメールで送信されます。
・勤務先からの距離と時間で検索できる「BP(ベストプレイス)検索」
・検索条件を保存して、同じ条件で検索できる「検索条件保存機能」

こちらの物件が気になったら、まずは内見のご予約を!
以下のお問い合わせフォームよりご連絡ください。

続きを読む

見学したい(無料)
FULL

プレミスト板橋 906号室[ペット可]

13.9万円
無料

東京都板橋区板橋3丁目4-3

1LDK /32.48m² /2021/03

~マイページを活用して便利な検索!~
マイページを登録すると以下の便利機能が使えます!
・気になった物件のハートを押して「お気に入り」に保存
 お気に入り登録された物件の条件が変わったら更新情報がメールで送信されます。
・勤務先からの距離と時間で検索できる「BP(ベストプレイス)検索」
・検索条件を保存して、同じ条件で検索できる「検索条件保存機能」

こちらの物件が気になったら、まずは内見のご予約を!
以下のお問い合わせフォームよりご連絡ください。

続きを読む

見学したい(無料)

レガーロ西早稲田 1006号室

16.6万円
16.6万円

東京都新宿区西早稲田2丁目21-8

1LDK /42.72m² /2007/03

~マイページを活用して便利な検索!~
マイページを登録すると以下の便利機能が使えます!
・気になった物件のハートを押して「お気に入り」に保存
 お気に入り登録された物件の条件が変わったら更新情報がメールで送信されます。
・勤務先からの距離と時間で検索できる「BP(ベストプレイス)検索」
・検索条件を保存して、同じ条件で検索できる「検索条件保存機能」

こちらの物件が気になったら、まずは内見のご予約を!
以下のお問い合わせフォームよりご連絡ください。

続きを読む

見学したい(無料)

レガーロ西早稲田 104号室

12.4万円
12.4万円

東京都新宿区西早稲田2丁目21-8

1R /32.89m² /2007/03

~マイページを活用して便利な検索!~
マイページを登録すると以下の便利機能が使えます!
・気になった物件のハートを押して「お気に入り」に保存
 お気に入り登録された物件の条件が変わったら更新情報がメールで送信されます。
・勤務先からの距離と時間で検索できる「BP(ベストプレイス)検索」
・検索条件を保存して、同じ条件で検索できる「検索条件保存機能」

こちらの物件が気になったら、まずは内見のご予約を!
以下のお問い合わせフォームよりご連絡ください。

続きを読む

見学したい(無料)

ラティエラ横濱大通り公園 309号室

18万円
18万円

神奈川県横浜市南区高根町1丁目3-1

2LDK /49.41m² /2022/12

~マイページを活用して便利な検索!~
マイページを登録すると以下の便利機能が使えます!
・気になった物件のハートを押して「お気に入り」に保存
 お気に入り登録された物件の条件が変わったら更新情報がメールで送信されます。
・勤務先からの距離と時間で検索できる「BP(ベストプレイス)検索」
・検索条件を保存して、同じ条件で検索できる「検索条件保存機能」

こちらの物件が気になったら、まずは内見のご予約を!
以下のお問い合わせフォームよりご連絡ください。

続きを読む

見学したい(無料)

Luma高輪 302号室[ペット可]

12.7万円
無料

フリーレント

東京都港区高輪1丁目21-4

1K /25.26m² /2021/09

~マイページを活用して便利な検索!~
マイページを登録すると以下の便利機能が使えます!
・気になった物件のハートを押して「お気に入り」に保存
 お気に入り登録された物件の条件が変わったら更新情報がメールで送信されます。
・勤務先からの距離と時間で検索できる「BP(ベストプレイス)検索」
・検索条件を保存して、同じ条件で検索できる「検索条件保存機能」

こちらの物件が気になったら、まずは内見のご予約を!
以下のお問い合わせフォームよりご連絡ください。

続きを読む

見学したい(無料)

ミリアレジデンス新宿御苑 805号室[ペット可]

無料
無料

東京都新宿区新宿5丁目1-20

1K /25.03m² /2022/02

~マイページを活用して便利な検索!~
マイページを登録すると以下の便利機能が使えます!
・気になった物件のハートを押して「お気に入り」に保存
 お気に入り登録された物件の条件が変わったら更新情報がメールで送信されます。
・勤務先からの距離と時間で検索できる「BP(ベストプレイス)検索」
・検索条件を保存して、同じ条件で検索できる「検索条件保存機能」

こちらの物件が気になったら、まずは内見のご予約を!
以下のお問い合わせフォームよりご連絡ください。

続きを読む

見学したい(無料)
FULL

アヴェルーナ月島 802号室

17.9万円
無料

東京都中央区月島3丁目16-1

1DK /40.17m² /2022/07

~マイページを活用して便利な検索!~
マイページを登録すると以下の便利機能が使えます!
・気になった物件のハートを押して「お気に入り」に保存
 お気に入り登録された物件の条件が変わったら更新情報がメールで送信されます。
・勤務先からの距離と時間で検索できる「BP(ベストプレイス)検索」
・検索条件を保存して、同じ条件で検索できる「検索条件保存機能」

こちらの物件が気になったら、まずは内見のご予約を!
以下のお問い合わせフォームよりご連絡ください。

続きを読む

見学したい(無料)

J.GRAN Court 品川西大井EAST 203号室[ペット可]

13.5万円
無料

東京都品川区西大井2丁目11-14

1DK /27.30m² /2023/09

~マイページを活用して便利な検索!~
マイページを登録すると以下の便利機能が使えます!
・気になった物件のハートを押して「お気に入り」に保存
 お気に入り登録された物件の条件が変わったら更新情報がメールで送信されます。
・勤務先からの距離と時間で検索できる「BP(ベストプレイス)検索」
・検索条件を保存して、同じ条件で検索できる「検索条件保存機能」

こちらの物件が気になったら、まずは内見のご予約を!
以下のお問い合わせフォームよりご連絡ください。

続きを読む

見学したい(無料)

ルフォンプログレ中野富士見町ザ・レジデンス 308号室[ペット可]

16.8万円
無料

東京都杉並区和田1丁目39-30

1LDK /40.74m² /2021/08

~マイページを活用して便利な検索!~
マイページを登録すると以下の便利機能が使えます!
・気になった物件のハートを押して「お気に入り」に保存
 お気に入り登録された物件の条件が変わったら更新情報がメールで送信されます。
・勤務先からの距離と時間で検索できる「BP(ベストプレイス)検索」
・検索条件を保存して、同じ条件で検索できる「検索条件保存機能」

こちらの物件が気になったら、まずは内見のご予約を!
以下のお問い合わせフォームよりご連絡ください。

続きを読む

見学したい(無料)

パークアクシス文京ステージ 1103号室[ペット可]

18.8万円
18.8万円

東京都文京区水道2丁目4-12

1LDK /42.51m² /2005/09

~マイページを活用して便利な検索!~
マイページを登録すると以下の便利機能が使えます!
・気になった物件のハートを押して「お気に入り」に保存
 お気に入り登録された物件の条件が変わったら更新情報がメールで送信されます。
・勤務先からの距離と時間で検索できる「BP(ベストプレイス)検索」
・検索条件を保存して、同じ条件で検索できる「検索条件保存機能」

こちらの物件が気になったら、まずは内見のご予約を!
以下のお問い合わせフォームよりご連絡ください。

続きを読む

見学したい(無料)

ベルファース神田神保町 605号室

14.8万円
無料

フリーレント

東京都千代田区神田神保町1丁目46-5

1DK /25.05m² /2024/01

~マイページを活用して便利な検索!~
マイページを登録すると以下の便利機能が使えます!
・気になった物件のハートを押して「お気に入り」に保存
 お気に入り登録された物件の条件が変わったら更新情報がメールで送信されます。
・勤務先からの距離と時間で検索できる「BP(ベストプレイス)検索」
・検索条件を保存して、同じ条件で検索できる「検索条件保存機能」

こちらの物件が気になったら、まずは内見のご予約を!
以下のお問い合わせフォームよりご連絡ください。

続きを読む

見学したい(無料)

ジオエント中野弥生町 102号室

17万円
無料

東京都中野区弥生町1丁目33-13

1LDK /40.18m² /2021/02

~マイページを活用して便利な検索!~
マイページを登録すると以下の便利機能が使えます!
・気になった物件のハートを押して「お気に入り」に保存
 お気に入り登録された物件の条件が変わったら更新情報がメールで送信されます。
・勤務先からの距離と時間で検索できる「BP(ベストプレイス)検索」
・検索条件を保存して、同じ条件で検索できる「検索条件保存機能」

こちらの物件が気になったら、まずは内見のご予約を!
以下のお問い合わせフォームよりご連絡ください。

続きを読む

見学したい(無料)

パークアクシス浅草田原町ガーデン 405号室[ペット可]

15.9万円
無料

フリーレント

東京都台東区寿1丁目14-5

1LDK /35.39m² /2023/04

~マイページを活用して便利な検索!~
マイページを登録すると以下の便利機能が使えます!
・気になった物件のハートを押して「お気に入り」に保存
 お気に入り登録された物件の条件が変わったら更新情報がメールで送信されます。
・勤務先からの距離と時間で検索できる「BP(ベストプレイス)検索」
・検索条件を保存して、同じ条件で検索できる「検索条件保存機能」

こちらの物件が気になったら、まずは内見のご予約を!
以下のお問い合わせフォームよりご連絡ください。

続きを読む

見学したい(無料)

パークキューブ目黒タワー 313号室

17万円
無料

東京都目黒区下目黒2丁目2-2

1K /32.80m² /2008/02

~マイページを活用して便利な検索!~
マイページを登録すると以下の便利機能が使えます!
・気になった物件のハートを押して「お気に入り」に保存
 お気に入り登録された物件の条件が変わったら更新情報がメールで送信されます。
・勤務先からの距離と時間で検索できる「BP(ベストプレイス)検索」
・検索条件を保存して、同じ条件で検索できる「検索条件保存機能」

こちらの物件が気になったら、まずは内見のご予約を!
以下のお問い合わせフォームよりご連絡ください。

続きを読む

見学したい(無料)
FULL 新築

アーバネックス早稲田テラス 908号室[新築]

14.6万円
無料

フリーレント

東京都新宿区早稲田鶴巻町555-2

1DK /25.00m² /2024/09

~マイページを活用して便利な検索!~
マイページを登録すると以下の便利機能が使えます!
・気になった物件のハートを押して「お気に入り」に保存
 お気に入り登録された物件の条件が変わったら更新情報がメールで送信されます。
・勤務先からの距離と時間で検索できる「BP(ベストプレイス)検索」
・検索条件を保存して、同じ条件で検索できる「検索条件保存機能」

こちらの物件が気になったら、まずは内見のご予約を!
以下のお問い合わせフォームよりご連絡ください。

続きを読む

見学したい(無料)
FULL 新築

アーバネックス早稲田テラス 906号室[新築]

14.8万円
無料

フリーレント

東京都新宿区早稲田鶴巻町555-2

1DK /25.30m² /2024/09

~マイページを活用して便利な検索!~
マイページを登録すると以下の便利機能が使えます!
・気になった物件のハートを押して「お気に入り」に保存
 お気に入り登録された物件の条件が変わったら更新情報がメールで送信されます。
・勤務先からの距離と時間で検索できる「BP(ベストプレイス)検索」
・検索条件を保存して、同じ条件で検索できる「検索条件保存機能」

こちらの物件が気になったら、まずは内見のご予約を!
以下のお問い合わせフォームよりご連絡ください。

続きを読む

見学したい(無料)
FULL 新築

アーバネックス早稲田テラス 905号室[新築]

14.8万円
無料

フリーレント

東京都新宿区早稲田鶴巻町555-2

1DK /25.28m² /2024/09

~マイページを活用して便利な検索!~
マイページを登録すると以下の便利機能が使えます!
・気になった物件のハートを押して「お気に入り」に保存
 お気に入り登録された物件の条件が変わったら更新情報がメールで送信されます。
・勤務先からの距離と時間で検索できる「BP(ベストプレイス)検索」
・検索条件を保存して、同じ条件で検索できる「検索条件保存機能」

こちらの物件が気になったら、まずは内見のご予約を!
以下のお問い合わせフォームよりご連絡ください。

続きを読む

見学したい(無料)

プライムブリス上野元浅草 1304号室

12.7万円
無料

東京都台東区元浅草3丁目17-12

1DK /25.37m² /2022/10

~マイページを活用して便利な検索!~
マイページを登録すると以下の便利機能が使えます!
・気になった物件のハートを押して「お気に入り」に保存
 お気に入り登録された物件の条件が変わったら更新情報がメールで送信されます。
・勤務先からの距離と時間で検索できる「BP(ベストプレイス)検索」
・検索条件を保存して、同じ条件で検索できる「検索条件保存機能」

こちらの物件が気になったら、まずは内見のご予約を!
以下のお問い合わせフォームよりご連絡ください。

続きを読む

見学したい(無料)
FULL

アーバネックス森下Ⅳ 507号室

13万円
無料

東京都江東区常盤2丁目9-4

1DK /26.03m² /2020/03

~マイページを活用して便利な検索!~
マイページを登録すると以下の便利機能が使えます!
・気になった物件のハートを押して「お気に入り」に保存
 お気に入り登録された物件の条件が変わったら更新情報がメールで送信されます。
・勤務先からの距離と時間で検索できる「BP(ベストプレイス)検索」
・検索条件を保存して、同じ条件で検索できる「検索条件保存機能」

こちらの物件が気になったら、まずは内見のご予約を!
以下のお問い合わせフォームよりご連絡ください。

続きを読む

見学したい(無料)

ライオンズフォーシア清澄白河 904号室[ペット可]

13.9万円
無料

東京都江東区高橋9-5

1DK /27.29m² /2021/05

~マイページを活用して便利な検索!~
マイページを登録すると以下の便利機能が使えます!
・気になった物件のハートを押して「お気に入り」に保存
 お気に入り登録された物件の条件が変わったら更新情報がメールで送信されます。
・勤務先からの距離と時間で検索できる「BP(ベストプレイス)検索」
・検索条件を保存して、同じ条件で検索できる「検索条件保存機能」

こちらの物件が気になったら、まずは内見のご予約を!
以下のお問い合わせフォームよりご連絡ください。

続きを読む

見学したい(無料)

Luma高輪 702号室[ペット可]

13.1万円
無料

フリーレント

東京都港区高輪1丁目21-4

1K /25.26m² /2021/09

~マイページを活用して便利な検索!~
マイページを登録すると以下の便利機能が使えます!
・気になった物件のハートを押して「お気に入り」に保存
 お気に入り登録された物件の条件が変わったら更新情報がメールで送信されます。
・勤務先からの距離と時間で検索できる「BP(ベストプレイス)検索」
・検索条件を保存して、同じ条件で検索できる「検索条件保存機能」

こちらの物件が気になったら、まずは内見のご予約を!
以下のお問い合わせフォームよりご連絡ください。

続きを読む

見学したい(無料)

L・BASE押上North 302号室[ペット可]

無料
16.8万円

フリーレント

東京都墨田区横川2丁目20-11

1LDK /40.00m² /2021/03

~マイページを活用して便利な検索!~
マイページを登録すると以下の便利機能が使えます!
・気になった物件のハートを押して「お気に入り」に保存
 お気に入り登録された物件の条件が変わったら更新情報がメールで送信されます。
・勤務先からの距離と時間で検索できる「BP(ベストプレイス)検索」
・検索条件を保存して、同じ条件で検索できる「検索条件保存機能」

こちらの物件が気になったら、まずは内見のご予約を!
以下のお問い合わせフォームよりご連絡ください。

続きを読む

見学したい(無料)

パークアクシス木場キャナル ウエスト 707号室[ペット可]

12.9万円
無料

東京都江東区塩浜2丁目4-35

1DK /28.82m² /2018/10

~マイページを活用して便利な検索!~
マイページを登録すると以下の便利機能が使えます!
・気になった物件のハートを押して「お気に入り」に保存
 お気に入り登録された物件の条件が変わったら更新情報がメールで送信されます。
・勤務先からの距離と時間で検索できる「BP(ベストプレイス)検索」
・検索条件を保存して、同じ条件で検索できる「検索条件保存機能」

こちらの物件が気になったら、まずは内見のご予約を!
以下のお問い合わせフォームよりご連絡ください。

続きを読む

見学したい(無料)

ルフォンプログレ西大井プレミア 813号室[ペット可]

14万円
無料

東京都品川区西大井1丁目9-19

1DK /26.34m² /2024/01

~マイページを活用して便利な検索!~
マイページを登録すると以下の便利機能が使えます!
・気になった物件のハートを押して「お気に入り」に保存
 お気に入り登録された物件の条件が変わったら更新情報がメールで送信されます。
・勤務先からの距離と時間で検索できる「BP(ベストプレイス)検索」
・検索条件を保存して、同じ条件で検索できる「検索条件保存機能」

こちらの物件が気になったら、まずは内見のご予約を!
以下のお問い合わせフォームよりご連絡ください。

続きを読む

見学したい(無料)

Brillia ist 上野稲荷町 702号室[ペット可]

14.5万円
無料

東京都台東区北上野2丁目3-1

1DK /26.33m² /2024/02

~マイページを活用して便利な検索!~
マイページを登録すると以下の便利機能が使えます!
・気になった物件のハートを押して「お気に入り」に保存
 お気に入り登録された物件の条件が変わったら更新情報がメールで送信されます。
・勤務先からの距離と時間で検索できる「BP(ベストプレイス)検索」
・検索条件を保存して、同じ条件で検索できる「検索条件保存機能」

こちらの物件が気になったら、まずは内見のご予約を!
以下のお問い合わせフォームよりご連絡ください。

続きを読む

見学したい(無料)

パークアクシス浅草・蔵前 901号室[ペット可]

18.2万円
18.2万円

東京都台東区寿3丁目13-6

1LDK /42.65m² /2013/05

~マイページを活用して便利な検索!~
マイページを登録すると以下の便利機能が使えます!
・気になった物件のハートを押して「お気に入り」に保存
 お気に入り登録された物件の条件が変わったら更新情報がメールで送信されます。
・勤務先からの距離と時間で検索できる「BP(ベストプレイス)検索」
・検索条件を保存して、同じ条件で検索できる「検索条件保存機能」

こちらの物件が気になったら、まずは内見のご予約を!
以下のお問い合わせフォームよりご連絡ください。

続きを読む

見学したい(無料)

ワイズパティオ 305号室

15.5万円
15.5万円

東京都新宿区余丁町6-4

1LDK /38.42m² /2017/08

~マイページを活用して便利な検索!~
マイページを登録すると以下の便利機能が使えます!
・気になった物件のハートを押して「お気に入り」に保存
 お気に入り登録された物件の条件が変わったら更新情報がメールで送信されます。
・勤務先からの距離と時間で検索できる「BP(ベストプレイス)検索」
・検索条件を保存して、同じ条件で検索できる「検索条件保存機能」

こちらの物件が気になったら、まずは内見のご予約を!
以下のお問い合わせフォームよりご連絡ください。

続きを読む

見学したい(無料)

アーバンプレミア秋葉原 304号室

18.5万円
無料

フリーレント

東京都千代田区外神田6丁目13-1

1LDK /41.70m² /2020/03

~マイページを活用して便利な検索!~
マイページを登録すると以下の便利機能が使えます!
・気になった物件のハートを押して「お気に入り」に保存
 お気に入り登録された物件の条件が変わったら更新情報がメールで送信されます。
・勤務先からの距離と時間で検索できる「BP(ベストプレイス)検索」
・検索条件を保存して、同じ条件で検索できる「検索条件保存機能」

こちらの物件が気になったら、まずは内見のご予約を!
以下のお問い合わせフォームよりご連絡ください。

続きを読む

見学したい(無料)

ワイズパティオ 106号室

15.2万円
7.6万円

東京都新宿区余丁町6-4

1LDK /38.42m² /2017/08

~マイページを活用して便利な検索!~
マイページを登録すると以下の便利機能が使えます!
・気になった物件のハートを押して「お気に入り」に保存
 お気に入り登録された物件の条件が変わったら更新情報がメールで送信されます。
・勤務先からの距離と時間で検索できる「BP(ベストプレイス)検索」
・検索条件を保存して、同じ条件で検索できる「検索条件保存機能」

こちらの物件が気になったら、まずは内見のご予約を!
以下のお問い合わせフォームよりご連絡ください。

続きを読む

見学したい(無料)

パークキューブ目黒タワー 312号室

18.2万円
無料

東京都目黒区下目黒2丁目2-2

1K /35.51m² /2008/02

~マイページを活用して便利な検索!~
マイページを登録すると以下の便利機能が使えます!
・気になった物件のハートを押して「お気に入り」に保存
 お気に入り登録された物件の条件が変わったら更新情報がメールで送信されます。
・勤務先からの距離と時間で検索できる「BP(ベストプレイス)検索」
・検索条件を保存して、同じ条件で検索できる「検索条件保存機能」

こちらの物件が気になったら、まずは内見のご予約を!
以下のお問い合わせフォームよりご連絡ください。

続きを読む

見学したい(無料)
FULL 新築

RJRプレシア大森北 205号室[新築]

15.3万円
無料

東京都大田区大森北5丁目4-17

1LDK /33.44m² /2024/12

~マイページを活用して便利な検索!~
マイページを登録すると以下の便利機能が使えます!
・気になった物件のハートを押して「お気に入り」に保存
 お気に入り登録された物件の条件が変わったら更新情報がメールで送信されます。
・勤務先からの距離と時間で検索できる「BP(ベストプレイス)検索」
・検索条件を保存して、同じ条件で検索できる「検索条件保存機能」

こちらの物件が気になったら、まずは内見のご予約を!
以下のお問い合わせフォームよりご連絡ください。

続きを読む

見学したい(無料)

プライムブリス東中野駅前 901号室

16.5万円
無料

東京都中野区東中野1丁目50-3

1LDK /33.05m² /2023/10

~マイページを活用して便利な検索!~
マイページを登録すると以下の便利機能が使えます!
・気になった物件のハートを押して「お気に入り」に保存
 お気に入り登録された物件の条件が変わったら更新情報がメールで送信されます。
・勤務先からの距離と時間で検索できる「BP(ベストプレイス)検索」
・検索条件を保存して、同じ条件で検索できる「検索条件保存機能」

こちらの物件が気になったら、まずは内見のご予約を!
以下のお問い合わせフォームよりご連絡ください。

続きを読む

見学したい(無料)

パークアクシス溜池山王 1104号室[ペット可]

15.4万円
無料

東京都港区赤坂2丁目12-30

1R /26.45m² /2005/12

~マイページを活用して便利な検索!~
マイページを登録すると以下の便利機能が使えます!
・気になった物件のハートを押して「お気に入り」に保存
 お気に入り登録された物件の条件が変わったら更新情報がメールで送信されます。
・勤務先からの距離と時間で検索できる「BP(ベストプレイス)検索」
・検索条件を保存して、同じ条件で検索できる「検索条件保存機能」

こちらの物件が気になったら、まずは内見のご予約を!
以下のお問い合わせフォームよりご連絡ください。

続きを読む

見学したい(無料)

パークアクシス西馬込 501号室[ペット可]

15.6万円
無料

フリーレント

東京都大田区仲池上2丁目14-5

1LDK /37.00m² /2019/02

~マイページを活用して便利な検索!~
マイページを登録すると以下の便利機能が使えます!
・気になった物件のハートを押して「お気に入り」に保存
 お気に入り登録された物件の条件が変わったら更新情報がメールで送信されます。
・勤務先からの距離と時間で検索できる「BP(ベストプレイス)検索」
・検索条件を保存して、同じ条件で検索できる「検索条件保存機能」

こちらの物件が気になったら、まずは内見のご予約を!
以下のお問い合わせフォームよりご連絡ください。

続きを読む

見学したい(無料)

KDXレジデンス桜上水 601号室

15.9万円
15.9万円

東京都杉並区下高井戸1丁目26-14

1LDK /42.35m² /2016/09

~マイページを活用して便利な検索!~
マイページを登録すると以下の便利機能が使えます!
・気になった物件のハートを押して「お気に入り」に保存
 お気に入り登録された物件の条件が変わったら更新情報がメールで送信されます。
・勤務先からの距離と時間で検索できる「BP(ベストプレイス)検索」
・検索条件を保存して、同じ条件で検索できる「検索条件保存機能」

こちらの物件が気になったら、まずは内見のご予約を!
以下のお問い合わせフォームよりご連絡ください。

続きを読む

見学したい(無料)

パークアクシス新御徒町East 1002号室[ペット可]

18.2万円
18.2万円

東京都台東区三筋2丁目21-10

1LDK /44.26m² /2012/09

~マイページを活用して便利な検索!~
マイページを登録すると以下の便利機能が使えます!
・気になった物件のハートを押して「お気に入り」に保存
 お気に入り登録された物件の条件が変わったら更新情報がメールで送信されます。
・勤務先からの距離と時間で検索できる「BP(ベストプレイス)検索」
・検索条件を保存して、同じ条件で検索できる「検索条件保存機能」

こちらの物件が気になったら、まずは内見のご予約を!
以下のお問い合わせフォームよりご連絡ください。

続きを読む

見学したい(無料)

パークアクシス芝浦 404号室[ペット可]

12.8万円
12.8万円

東京都港区芝浦2丁目8-11

1R /25.95m² /2012/10

~マイページを活用して便利な検索!~
マイページを登録すると以下の便利機能が使えます!
・気になった物件のハートを押して「お気に入り」に保存
 お気に入り登録された物件の条件が変わったら更新情報がメールで送信されます。
・勤務先からの距離と時間で検索できる「BP(ベストプレイス)検索」
・検索条件を保存して、同じ条件で検索できる「検索条件保存機能」

こちらの物件が気になったら、まずは内見のご予約を!
以下のお問い合わせフォームよりご連絡ください。

続きを読む

見学したい(無料)

パークアクシス芝浦 301号室[ペット可]

17.6万円
17.6万円

東京都港区芝浦2丁目8-11

1LDK /37.12m² /2012/10

~マイページを活用して便利な検索!~
マイページを登録すると以下の便利機能が使えます!
・気になった物件のハートを押して「お気に入り」に保存
 お気に入り登録された物件の条件が変わったら更新情報がメールで送信されます。
・勤務先からの距離と時間で検索できる「BP(ベストプレイス)検索」
・検索条件を保存して、同じ条件で検索できる「検索条件保存機能」

こちらの物件が気になったら、まずは内見のご予約を!
以下のお問い合わせフォームよりご連絡ください。

続きを読む

見学したい(無料)

パークアクシス東陽町レジデンス 802号室[ペット可]

11.9万円
無料

東京都江東区東陽5丁目31-12

1R /25.71m² /2022/08

~マイページを活用して便利な検索!~
マイページを登録すると以下の便利機能が使えます!
・気になった物件のハートを押して「お気に入り」に保存
 お気に入り登録された物件の条件が変わったら更新情報がメールで送信されます。
・勤務先からの距離と時間で検索できる「BP(ベストプレイス)検索」
・検索条件を保存して、同じ条件で検索できる「検索条件保存機能」

こちらの物件が気になったら、まずは内見のご予約を!
以下のお問い合わせフォームよりご連絡ください。

続きを読む

見学したい(無料)

パークアクシス秋葉原East 1401号室[ペット可]

12.1万円
無料

東京都台東区浅草橋5丁目5-9

1R /26.03m² /2012/05

~マイページを活用して便利な検索!~
マイページを登録すると以下の便利機能が使えます!
・気になった物件のハートを押して「お気に入り」に保存
 お気に入り登録された物件の条件が変わったら更新情報がメールで送信されます。
・勤務先からの距離と時間で検索できる「BP(ベストプレイス)検索」
・検索条件を保存して、同じ条件で検索できる「検索条件保存機能」

こちらの物件が気になったら、まずは内見のご予約を!
以下のお問い合わせフォームよりご連絡ください。

続きを読む

見学したい(無料)

アビティグランデ砧 (B棟) 419号室

14.6万円
無料

東京都世田谷区砧7丁目18-26

1LDK /39.07m² /2021/06

~マイページを活用して便利な検索!~
マイページを登録すると以下の便利機能が使えます!
・気になった物件のハートを押して「お気に入り」に保存
 お気に入り登録された物件の条件が変わったら更新情報がメールで送信されます。
・勤務先からの距離と時間で検索できる「BP(ベストプレイス)検索」
・検索条件を保存して、同じ条件で検索できる「検索条件保存機能」

こちらの物件が気になったら、まずは内見のご予約を!
以下のお問い合わせフォームよりご連絡ください。

続きを読む

見学したい(無料)

オープンブルーム東日本橋 201号室

12.2万円
無料

東京都中央区東日本橋2丁目15-13

1K /25.37m² /2022/09

~マイページを活用して便利な検索!~
マイページを登録すると以下の便利機能が使えます!
・気になった物件のハートを押して「お気に入り」に保存
 お気に入り登録された物件の条件が変わったら更新情報がメールで送信されます。
・勤務先からの距離と時間で検索できる「BP(ベストプレイス)検索」
・検索条件を保存して、同じ条件で検索できる「検索条件保存機能」

こちらの物件が気になったら、まずは内見のご予約を!
以下のお問い合わせフォームよりご連絡ください。

続きを読む

見学したい(無料)

ユニゾンタワー 2006号室

13.4万円
6.7万円

東京都中野区東中野5丁目1-1

1K /26.86m² /2007/11

~マイページを活用して便利な検索!~
マイページを登録すると以下の便利機能が使えます!
・気になった物件のハートを押して「お気に入り」に保存
 お気に入り登録された物件の条件が変わったら更新情報がメールで送信されます。
・勤務先からの距離と時間で検索できる「BP(ベストプレイス)検索」
・検索条件を保存して、同じ条件で検索できる「検索条件保存機能」

こちらの物件が気になったら、まずは内見のご予約を!
以下のお問い合わせフォームよりご連絡ください。

続きを読む

見学したい(無料)

ラテスト白金台 305号室

13.7万円
無料

東京都港区白金台4丁目5-9

1K /25.18m² /2022/02

~マイページを活用して便利な検索!~
マイページを登録すると以下の便利機能が使えます!
・気になった物件のハートを押して「お気に入り」に保存
 お気に入り登録された物件の条件が変わったら更新情報がメールで送信されます。
・勤務先からの距離と時間で検索できる「BP(ベストプレイス)検索」
・検索条件を保存して、同じ条件で検索できる「検索条件保存機能」

こちらの物件が気になったら、まずは内見のご予約を!
以下のお問い合わせフォームよりご連絡ください。

続きを読む

見学したい(無料)

西馬込テラスコート 206号室

17.3万円
17.3万円

東京都大田区西馬込2丁目5-2

1LDK /39.80m² /2013/06

~マイページを活用して便利な検索!~
マイページを登録すると以下の便利機能が使えます!
・気になった物件のハートを押して「お気に入り」に保存
 お気に入り登録された物件の条件が変わったら更新情報がメールで送信されます。
・勤務先からの距離と時間で検索できる「BP(ベストプレイス)検索」
・検索条件を保存して、同じ条件で検索できる「検索条件保存機能」

こちらの物件が気になったら、まずは内見のご予約を!
以下のお問い合わせフォームよりご連絡ください。

続きを読む

見学したい(無料)

アリビオ学芸大学 104号室[ペット可]

13.5万円
13.5万円

東京都目黒区五本木3丁目25-25

1DK /25.20m² /2024/03

~マイページを活用して便利な検索!~
マイページを登録すると以下の便利機能が使えます!
・気になった物件のハートを押して「お気に入り」に保存
 お気に入り登録された物件の条件が変わったら更新情報がメールで送信されます。
・勤務先からの距離と時間で検索できる「BP(ベストプレイス)検索」
・検索条件を保存して、同じ条件で検索できる「検索条件保存機能」

こちらの物件が気になったら、まずは内見のご予約を!
以下のお問い合わせフォームよりご連絡ください。

続きを読む

見学したい(無料)

J.GRAN Court 品川西大井WEST 505号室[ペット可]

無料
無料

東京都品川区西大井2丁目10-3

2LDK /40.26m² /2023/08

~マイページを活用して便利な検索!~
マイページを登録すると以下の便利機能が使えます!
・気になった物件のハートを押して「お気に入り」に保存
 お気に入り登録された物件の条件が変わったら更新情報がメールで送信されます。
・勤務先からの距離と時間で検索できる「BP(ベストプレイス)検索」
・検索条件を保存して、同じ条件で検索できる「検索条件保存機能」

こちらの物件が気になったら、まずは内見のご予約を!
以下のお問い合わせフォームよりご連絡ください。

続きを読む

見学したい(無料)

パークアクシス横浜阪東橋 415号室[ペット可]

12.4万円
無料

神奈川県横浜市南区浦舟町3丁目45

1LDK /32.10m² /2023/10

~マイページを活用して便利な検索!~
マイページを登録すると以下の便利機能が使えます!
・気になった物件のハートを押して「お気に入り」に保存
 お気に入り登録された物件の条件が変わったら更新情報がメールで送信されます。
・勤務先からの距離と時間で検索できる「BP(ベストプレイス)検索」
・検索条件を保存して、同じ条件で検索できる「検索条件保存機能」

こちらの物件が気になったら、まずは内見のご予約を!
以下のお問い合わせフォームよりご連絡ください。

続きを読む

見学したい(無料)

ルフォンプログレ清澄白河プレミア 702号室[ペット可]

13.9万円
13.9万円

東京都江東区白河2丁目23-7

1K /25.23m² /2019/10

~マイページを活用して便利な検索!~
マイページを登録すると以下の便利機能が使えます!
・気になった物件のハートを押して「お気に入り」に保存
 お気に入り登録された物件の条件が変わったら更新情報がメールで送信されます。
・勤務先からの距離と時間で検索できる「BP(ベストプレイス)検索」
・検索条件を保存して、同じ条件で検索できる「検索条件保存機能」

こちらの物件が気になったら、まずは内見のご予約を!
以下のお問い合わせフォームよりご連絡ください。

続きを読む

見学したい(無料)

パークアクシス三番町 402号室[ペット可]

17.7万円
無料

東京都千代田区三番町3-2

1DK /30.02m² /2021/02

~マイページを活用して便利な検索!~
マイページを登録すると以下の便利機能が使えます!
・気になった物件のハートを押して「お気に入り」に保存
 お気に入り登録された物件の条件が変わったら更新情報がメールで送信されます。
・勤務先からの距離と時間で検索できる「BP(ベストプレイス)検索」
・検索条件を保存して、同じ条件で検索できる「検索条件保存機能」

こちらの物件が気になったら、まずは内見のご予約を!
以下のお問い合わせフォームよりご連絡ください。

続きを読む

見学したい(無料)

TRADIS池袋本町 401号室[ペット可]

無料
無料

フリーレント

東京都豊島区池袋本町2丁目35-12

2K /35.02m² /2024/06

~マイページを活用して便利な検索!~
マイページを登録すると以下の便利機能が使えます!
・気になった物件のハートを押して「お気に入り」に保存
 お気に入り登録された物件の条件が変わったら更新情報がメールで送信されます。
・勤務先からの距離と時間で検索できる「BP(ベストプレイス)検索」
・検索条件を保存して、同じ条件で検索できる「検索条件保存機能」

こちらの物件が気になったら、まずは内見のご予約を!
以下のお問い合わせフォームよりご連絡ください。

続きを読む

見学したい(無料)

パークアクシス菊川ステーションイースト 801号室[ペット可]

14.7万円
14.7万円

東京都墨田区菊川3丁目11-12

1DK /31.29m² /2022/09

~マイページを活用して便利な検索!~
マイページを登録すると以下の便利機能が使えます!
・気になった物件のハートを押して「お気に入り」に保存
 お気に入り登録された物件の条件が変わったら更新情報がメールで送信されます。
・勤務先からの距離と時間で検索できる「BP(ベストプレイス)検索」
・検索条件を保存して、同じ条件で検索できる「検索条件保存機能」

こちらの物件が気になったら、まずは内見のご予約を!
以下のお問い合わせフォームよりご連絡ください。

続きを読む

見学したい(無料)

イプセ住吉 503号室

12.2万円
無料

東京都墨田区江東橋5丁目4-10

1DK /25.17m² /2022/10

~マイページを活用して便利な検索!~
マイページを登録すると以下の便利機能が使えます!
・気になった物件のハートを押して「お気に入り」に保存
 お気に入り登録された物件の条件が変わったら更新情報がメールで送信されます。
・勤務先からの距離と時間で検索できる「BP(ベストプレイス)検索」
・検索条件を保存して、同じ条件で検索できる「検索条件保存機能」

こちらの物件が気になったら、まずは内見のご予約を!
以下のお問い合わせフォームよりご連絡ください。

続きを読む

見学したい(無料)

イプセ住吉 603号室

12.3万円
無料

東京都墨田区江東橋5丁目4-10

1DK /25.17m² /2022/10

~マイページを活用して便利な検索!~
マイページを登録すると以下の便利機能が使えます!
・気になった物件のハートを押して「お気に入り」に保存
 お気に入り登録された物件の条件が変わったら更新情報がメールで送信されます。
・勤務先からの距離と時間で検索できる「BP(ベストプレイス)検索」
・検索条件を保存して、同じ条件で検索できる「検索条件保存機能」

こちらの物件が気になったら、まずは内見のご予約を!
以下のお問い合わせフォームよりご連絡ください。

続きを読む

見学したい(無料)

キューブと台形

16.9万円
16.9万円

東京都中央区新富1丁目7-17

1LDK /42.51m² /2005/07

お部屋の形が台型だって、窓がたくさんあったって。
好きな形のお部屋に住めばいいんです。

徒歩5分圏内で新富町駅・八丁堀駅、徒歩6分ほどで宝町駅も利用可能!
都心でバリバリ働くあなたにぜひおすすめしたい好立地。
オフィスへの通勤も出先からの直帰も、都内のアクセスはかなり良さそうです。

お部屋の間取り図を見ると、10.3帖ほどのLDKは台型?
さらに壁には小さな正方形の窓がたくさん!
台型に正方形に、図形がたくさん出てくるお部屋ですね。

正方形の窓には、好きなものを飾っておくこともできそう。
本や絵を並べるのも素敵だし、ガチャガチャを回してゲットしたミニチュアを飾るのも素敵。
好きなものをたくさん飾って、前を通るたびににやにやしてしまうお気に入りの一画になりそうです。

お部屋の特性を活かして、あれこれ好きなものを飾って。
疲れて帰って来た日も帰ると元気がでるような、素敵なマイルームになりますね。


~マイページを活用して便利な検索!~
マイページを登録すると以下の便利機能が使えます!
・気になった物件のハートを押して「お気に入り」に保存
 お気に入り登録された物件の条件が変わったら更新情報がメールで送信されます。
・勤務先からの距離と時間で検索できる「BP(ベストプレイス)検索」
・検索条件を保存して、同じ条件で検索できる「検索条件保存機能」

こちらの物件が気になったら、まずは内見のご予約を!
以下のお問い合わせフォームよりご連絡ください。

続きを読む

見学したい(無料)

T’s SQUARE KAGURAZAKA 103号室

16万円
無料

東京都新宿区矢来町57-5

1DK /40.20m² /2022/01

~マイページを活用して便利な検索!~
マイページを登録すると以下の便利機能が使えます!
・気になった物件のハートを押して「お気に入り」に保存
 お気に入り登録された物件の条件が変わったら更新情報がメールで送信されます。
・勤務先からの距離と時間で検索できる「BP(ベストプレイス)検索」
・検索条件を保存して、同じ条件で検索できる「検索条件保存機能」

こちらの物件が気になったら、まずは内見のご予約を!
以下のお問い合わせフォームよりご連絡ください。

続きを読む

見学したい(無料)

ALERO中野 304号室

12.8万円
12.8万円

東京都中野区中野3丁目43-7

1DK /27.49m² /2017/08

~マイページを活用して便利な検索!~
マイページを登録すると以下の便利機能が使えます!
・気になった物件のハートを押して「お気に入り」に保存
 お気に入り登録された物件の条件が変わったら更新情報がメールで送信されます。
・勤務先からの距離と時間で検索できる「BP(ベストプレイス)検索」
・検索条件を保存して、同じ条件で検索できる「検索条件保存機能」

こちらの物件が気になったら、まずは内見のご予約を!
以下のお問い合わせフォームよりご連絡ください。

続きを読む

見学したい(無料)

コーポレート鷺沼 402号室

13万円
13万円

神奈川県川崎市宮前区鷺沼1丁目7-1

1LDK /48.45m² /1997/08

~マイページを活用して便利な検索!~
マイページを登録すると以下の便利機能が使えます!
・気になった物件のハートを押して「お気に入り」に保存
 お気に入り登録された物件の条件が変わったら更新情報がメールで送信されます。
・勤務先からの距離と時間で検索できる「BP(ベストプレイス)検索」
・検索条件を保存して、同じ条件で検索できる「検索条件保存機能」

こちらの物件が気になったら、まずは内見のご予約を!
以下のお問い合わせフォームよりご連絡ください。

続きを読む

見学したい(無料)

SOCIAL MEDIA