閲覧履歴

お気に入り物件

お気に入り物件は会員登録すると使用できます。
未ログインの場合はログインして再度お試しください。

ログイン

保存した検索条件

保存した検索条件は会員登録すると使用できます。
未ログインの場合はログインして再度お試しください。

ログイン

賃貸物件を探す

売買物件を探す

店舗・事務所を探す

賃貸物件を見る

売買物件を見る

掲載物件一覧

26314件

お部屋の60%はリビング!

14万円
無料

静岡県浜松市中央区丸塚町231

1SLDK /54.09m² /1992/10/

1SLDKと聞いて、狭いのかな…?と思うかもしれませんが、そんなことはありません。
このお部屋、リビングが15帖もあるのです。
間取り図を見ると一目瞭然、リビングがその大半を占めています。
これは広々使いやすそうですね。
そんなリビングは、白いライトと明るめの木を使った床で落ち着いた雰囲気を醸し出しています。

収納スペースに様々な特徴があるのもポイント。
3.3帖、窓まで付いた大型ウォークインクローゼットのほか、
アウターや傘が掛けて置ける玄関横のスペースや洋室の壁際に現れた棚など、
使い心地を重視した収納スペースがたくさんあるのが嬉しいです。

立地としては、コストコやユニクロなどの大型店まで徒歩6分程度というショッピングに最適な地。
イオンモールまでも自転車で10分程度で行けちゃいます。
浜松最大級の買い物エリアに面していると言っていいでしょう。
買い物エリアで沢山買い物した後に、しっかり収納できるスペースがあるのが嬉しいですね。

リノベーションで新しく生まれ変わったお部屋です!
こういった間取りはリノベならでは、ぜひご検討ください!

続きを読む

見学したい(無料)

女性だからこそ「土間LIFE」を。

無料
無料
無料

静岡県浜松市中央区佐鳴台5-11-10

/47.37m²

人気エリア・中区佐鳴台の佐鳴湖湖畔に新築マンションの登場です!

365LIFE注目の土間があるお部屋。
玄関土間から直接リビングへGO!3帖の広々土間は自転車を置いたり、棚を置いて趣味のスペースにしたり自由自在です。

室内は、柔らかく可愛らしい雰囲気のデザインで土間と言えば男性のイメージが強いですが、女性も気に入るデザインになりそうです。

続きを読む

見学したい(無料)

New outdoor life。

無料
無料
無料

静岡県浜松市中央区佐鳴台5-11-10

/47.37m²

浜松でも屈指のおしゃれタウン佐鳴台にできたばかりの、遊び心満載の新築マンションのご紹介です。

佐鳴台は自然に恵まれた、アウトドアな街。かっこいいアウトドアギアを揃えて、あなたもアウトドアデビューしちゃいましょう!

お部屋は雑誌に出てきそうなほど、デザイン性の高い1LDK。アウトドアテイストの素敵なバルコニーも付いているので、アウトドアグッズの保管にも困りません。

人気エリアにこのクオリティの新築マンションとなると、早めの完売が予想されます。気になる方は、なるべくお早めに!!

続きを読む

見学したい(無料)

土間とウッドデッキで嗜む!

7.5万円
7.5万円

静岡県浜松市中央区佐鳴台5-11-10

1LDK /47.37m² /2017.12

人気エリア・佐鳴台、佐鳴湖湖畔で人気の高いデザイナーズマンションに空室が出ました!!

佐鳴湖湖畔の中区佐鳴台に、365LIFE注目の土間のあるお部屋!
玄関土間から直接リビングへGO!3帖の広々土間は自転車を置いたり、棚を置いて趣味のスペースにしたり自由自在です。

1階だけの特権、ウッドデッキと専用庭を完備。
既に植栽が綺麗に植えられていますが、さらに作りこむ余地があって新しい趣味が楽しめそうです!
キッチンの淡いオレンジのタイルがすごく心を掴まれます...
水回りも築浅で使い勝手が良く作られていますし、広々1坪風呂となっています!

佐鳴湖・土間・ウッドデッキ・専用庭ときたらアウトドア好きにはもってこいのお部屋ですね。
なくなってしまう前に…いそげ!

続きを読む

見学したい(無料)

愛犬といっしょにカフェっCaio[ペット可]

6.7万円
6.7万円

静岡県浜松市中央区中島1-11-29

2LDK /55.80m² /1982年8月

浜松駅から徒歩15分のこのマンション、新築のようですが、実は築33年なんです。

リノベーションによって蘇ったこのお部屋は水回りは刷新されています。キッチンがピッカピカなのはリノベーションしたての特権ですよ!

こちらのマンションは様々な間取りでリノベーションされていますが、今回ご紹介するお部屋は2LDK。
所々使っているアイアンのアクセント、シャビーシックな建具、人気のカウンターキッチンとカフェスタイルのお部屋がとっても似合いそう!

リノベーションなのにペットが飼える稀少な物件。ネコカフェスタイルなんてコンセプトも面白いですね!

駐車場は少し狭くて5ナンバーがちょうど止めれるくらいです。なので大きめのお車は難しいかもしれませんね。

続きを読む

見学したい(無料)

ワンニャンCafe style

無料
無料
無料

静岡県浜松市中央区中島1-11-29

/55.80m²

浜松駅から徒歩13分のこのマンション、新築のようですが、実は築33年なんです。

リノベーションによって蘇ったこのお部屋は水回りは刷新されています。キッチンがピッカピカなのはリノベーションしたての特権ですよ!

こちらのマンションは様々な間取りでリノベーションされていますが、今回ご紹介するお部屋は2LDK。
所々使っているアイアンのアクセント、シャビーシックな建具、人気のカウンターキッチンとカフェスタイルのお部屋がとっても似合いそう!

リノベーションなのにペットが飼える稀少な物件。ネコカフェスタイルなんてコンセプトも面白いですね!

駐車場は少し狭くて5ナンバーがちょうど止めれるくらいです。なので大きめのお車は難しいかもしれませんね。

続きを読む

見学したい(無料)

街中でペット飼っCiao!

無料
無料
無料

静岡県浜松市中央区中島1-11-29

/55.80m²

浜松駅から徒歩13分のこのマンション、新築のようですが、実は築33年なんです。

リノベーションによって蘇ったこのお部屋は水回りは刷新されています。キッチンがピカピカなのはリノベーションしたての特権ですよ!

こちらのマンションは様々な間取りでリノベーションされていますが、今回ご紹介するお部屋は2LDK。
所々使っているアイアンのアクセント、シャビーシックな建具、人気のカウンターキッチンとカフェスタイルのお部屋がとっても似合いそう!

リノベーションなのにペットが飼える稀少な物件。ネコカフェスタイルなんてコンセプトも面白いですね!

駐車場は少し狭くて5ナンバーがちょうど止めれるくらいです。なので大きめのお車は難しいかもしれませんね。

続きを読む

見学したい(無料)

ネイチャー大好き!

無料
無料
無料

静岡県浜松市中央区中島1-11-29

/55.80m²

浜松駅から徒歩13分のこのマンション、新築のようですが、実は1982年に建てられたんです。

リノベーションによって蘇ったこのお部屋は水回りは刷新されています。キッチンがピカピカなのはリノベーションしたての特権ですよ!

こちらのマンションは様々な間取りでリノベーションされていますが、今回ご紹介するお部屋は2LDK。
所々使っているアイアンのアクセント、シャビーシックな建具、人気のカウンターキッチン。

観葉植物を置くと、森のような他のお部屋とは異なる雰囲気になるのに間違いない!
自然派のみなさんにおススメの物件です!

駐車場は少し狭いので、大きめのお車は難しいかもしれませんね。

続きを読む

見学したい(無料)

カフェStyleにしCiao![ペット可]

6.7万円
6.7万円

静岡県浜松市中央区中島1-11-29

2LDK /55.80m² /1982年8月

浜松駅から約徒歩16分という素敵な立地のこのマンション。
きれいなお部屋からは想像できませんが、実は築40年越えなんです。

こちらのマンションは様々なプランで各部屋リノベーションされていますが、今回ご紹介するお部屋は2LDKの間取り。
シャビーシックな建具、所々使っているアイアンのアクセント、カウンターキッチンと、細部までかわいらしいカフェスタイルのお部屋に仕上がっています。
ヴィンテージや壁とフロアに合わせた白の家具が似合いそうです。
南向きで建物前は駐車場なので遮るものがなく日当たりもよいので、グリーンなど置いても映えるんじゃないでしょうか。

またペットと暮らす物件探しで苦労されている方に朗報です。
このマンションはわんちゃんもねこちゃんも相談可なのです。
ぜひお見逃しのなきよう。

40歳オーバーのお部屋のリノベーションですので、梁の高さや洗面スペース等が一段上がっている点など、昭和の建物の名残はあります。
また駐車場はちょっと狭めかも。大きな車の方は現地を必ずご確認ください。

駅近でパートナー&愛ペットと暮らせるお部屋をお探しの方へ。
カフェスタイルのリノベーションルームはいかがですか?

続きを読む

見学したい(無料)

FOREST HOUSE

無料
無料
無料

静岡県浜松市中央区中島1-11-29

/55.80m²

浜松駅から徒歩13分のこのマンション、新築のようですが、実は1982年に建てられたんです。

リノベーションによって蘇ったこのお部屋は水回りは刷新されています。キッチンがピカピカなのはリノベーションしたての特権ですよ!

こちらのマンションは様々な間取りでリノベーションされていますが、今回ご紹介するお部屋は2LDK。
所々使っているアイアンのアクセント、シャビーシックな建具、人気のカウンターキッチン。

観葉植物を置くと、森のような他のお部屋とは異なる雰囲気になるのに間違いない!

駐車場は少し狭いので、大きめのお車は難しいかもしれませんね。

続きを読む

見学したい(無料)

Coming soon リノベルーム with ペット

無料
無料
無料

静岡県浜松市中央区若林町1091-1

/58.41m²

臨時速報です。
ペット飼育をご希望されているお客様に朗報です。

現在、絶賛リノベーション工事中の物件情報が入ってきました。
南区若林町、12月中旬完成予定の当物件は市内でも稀少なペット共生型リノベーション。
恐らく年内入居のお部屋ではラストチャンスかと思います。

現在掲載中の物件写真は、同物件内別室の写真を仕様しているため現物ではありませんが同仕様のお部屋が完成する予定です。

限定1部屋ですが、入居者の募集開始しました!!

続きを読む

見学したい(無料)

ペットといっしょにヘリンボーン

6.5万円
無料

静岡県浜松市中央区若林町1091-1

2LDK /58.41m² /1982年12月

リノベーションで生まれ変わった、ヘリンボーンのお部屋。
白い壁と木の茶色に、キッチンの柔らかいブルーが映えます。
対面キッチンを彩るグリーンのモチーフもアクセントに。

全体的にかわいらしい空間ですが、照明や備え付けの棚、ドアノブなど、各所に使われたアイアンが空間を引き締めています。
ヴィンテージ感があっておしゃれです。
これで築40年超ですから、リノベってすごい。

上品ヴィンテージを楽しみたい方へ。
ペットも種類等によりご相談可能です。

続きを読む

見学したい(無料)

大平台の浮世に咲いてみな

無料
無料
無料

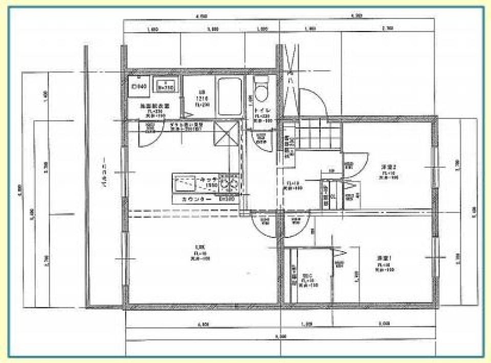
静岡県浜松市中央区神ヶ谷町2048

/71.22m²

365LIFE一押しのエリア、大平台。区画整備された街並みは外観も内装もオシャレな物件が多いです。
そんな大平台の一角に一際目立つマンションが今回ご紹介するお部屋です。

大平台の高台に建つ5階建てのマンション。閑静な住宅地には一際輝きを放つ高さです。
その最上階5階。眺望の良さもさることながら、他のお部屋とは違う仕様になっています。

15帖越えの広々LDKや和室を含めた3つのお部屋は他の階と同じですが、5階はなんと隠し部屋つき!リビングの天井裏に屋根裏があります。
ハシゴを降ろして屋根裏へ。ちょっと上り下りしにくいですが倉庫代わりとして活用しましょう。

オシャレなカフェや雑貨屋さんがどんどん進出してきてワクワクする大平台。新しい幼稚園や小学校も近くにあります。目の前の西岸中央公園には大きな遊具もあるので、休日子供と過ごす時間も充実しそうです。

続きを読む

見学したい(無料)

家族でまったり団らん

9.5万円
無料

静岡県浜松市中央区神ヶ谷町2048

賃料95,000円  
共益費/管理費5,000円

3LDK /71.22m² /1999年03月

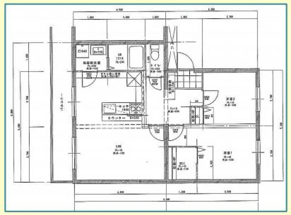
区画整備された街並みは外観も内装もオシャレな物件が多い大平台周辺エリア。
その一角に建つ、ひと際目立つオートロックを備えたこのマンションが今回ご紹介するお部屋です。

間取りは3LDK。
15帖超えのLDKには大きな窓が付いています。
4階なので見晴らし良好です◎
さらに2部屋分の長いバルコニーがとてもお洒落なデザインになっています。

3つのお部屋のうち1部屋は和室。
洋室の良さも和室の良さも両方感じることができます。

そしてそして、、このお部屋なんと床暖房が付いているんです!
寒い冬でも暖かさを感じることができます。

オシャレなカフェや雑貨屋さんがどんどん進出してきてワクワクするこのエリア。
新しい幼稚園や小学校も近くにあります。
目の前の西岸中央公園には大きな遊具もあるので、休日子供と過ごす時間も充実しそうです。

この見晴らしのよい角部屋で、家族で穏やかに暮らしてみませんか?
撮影時に電気が付かず、、頑張って撮りましたがご興味ある方はぜひご内見を。

続きを読む

見学したい(無料)

一際目立つ、大平台Gate Tower

9.5万円
無料

静岡県浜松市中央区神ヶ谷町2048

3LDK /76.88m² /1999年3月

区画整備された街並みは外観も内装もオシャレな物件が多い大平台周辺エリア。
その一角に建つ、ひと際目立つオートロックを備えたこのマンションが今回ご紹介するお部屋です。

高台に建つ5階建てのマンション。
閑静な住宅地には一際輝きを放つ高さです。

間取りは3LDK。
LDKが15帖越えと広いのはもちろんのこと、各お部屋も6帖以上と比較的広くなっています。
収納も各お部屋に備えられているのもGood!

3つのお部屋のうち一部屋は和室。
もしかすると世代によってはあまり馴染みがないかもしれない和室ですが、ここは畳が縁なしなのでスタイリッシュな和室が味わえます。
和室でごろごろするのって最高ですよ!

オシャレなカフェや雑貨屋さんがどんどん進出してきてワクワクするこのエリア。
新しい幼稚園や小学校も近くにあります。
目の前の西岸中央公園には大きな遊具もあるので、休日子供と過ごす時間も充実しそうです。

このお部屋で家族で新生活をスタートしてみませんか?

続きを読む

見学したい(無料)

大平台で暮らすメモワール

9.5万円
無料

静岡県浜松市中央区神ヶ谷町2048

賃料95,000円  
共益費/管理費5,000円

3LDK /75.30m² /1999年3月

365LIFE一押しのエリア、大平台。区画整備された街並みは外観も内装もオシャレな物件が多いです。
そんな大平台の一角に一際目立つマンションが今回ご紹介するお部屋です。

大平台の高台に建つ5階建てのマンション。閑静な住宅地には一際輝きを放つ高さです。

間取りは3LDK。LDKが15帖越えと広いのはもちろんのこと、収納も各お部屋に備えられているのもGood!

3つのお部屋のうち一部屋は和室。和室はどちらかというと敬遠されがちですが、ここは畳が縁なしなのでスタイリッシュな和室が味わえます。

オシャレなカフェや雑貨屋さんがどんどん進出してきてワクワクする大平台。新しい幼稚園や小学校も近くにあります。目の前の西岸中央公園には大きな遊具もあるので、休日お子さんたちと過ごす時間も充実しそうです。

続きを読む

見学したい(無料)

Central Park IN HAMAMATSU

9.5万円
無料

静岡県浜松市中央区神ヶ谷町2048

3LDK /76.88m² /1999年3月

東京、パリ、ニューヨーク。魅力的な街に共通することは、素敵な公園と大通りがあるということです。
今回ご紹介する物件の近くにも、とっても素敵な公園と大通りがありますよ~!

ご紹介するお部屋があるのは、大平台。
近くにはカフェやレストラン、美容院、エステサロンなど、おしゃれなショップが並んでいる大通りと、西岸中央公園という大きな公園があります。

街並みがとっても綺麗なので、お散歩しているだけでも、楽しい気持ちになれそうです。

物件の特徴ですが、お部屋は窓が大きく、高台からの眺めを堪能でき、とっても開放的な空間。
お部屋の雰囲気や明るさって、何気に子育てにとっても大事なことですよね。

おしゃれな街並みだけではなく、新しい幼稚園や小学校も近くにあるこのお部屋。
最高の環境の中で、あなたも新しい暮らしを始めてみませんか?

続きを読む

見学したい(無料)
RENT リノベ済み

Parkside Oasis

9.5万円
無料

静岡県浜松市中央区神ヶ谷町2048

賃料95,000円  
共益費/管理費5,000円

3LDK /71.22m² /1999年3月

大平台にそびえ立つ、高級感溢れるマンションのご紹介です。

まずはなんと言っても、マンションの外観に上品さを感じられます。目の前にある大きな公園や、おしゃれな雑貨屋さんやカフェ、レストランが並ぶ大通りが目の前にあり、雰囲気がものすごく良いですよ~!
幼稚園や小学校からも近く、子育て環境も良いエリアだと言えそうです。

お部屋の最大の特徴は、やはりその展望の良さ。高台の上にある、上品なマンションから見回す景色は、そこに住んだ人にしか味わえない特権ですよね。

浴室乾燥機や床暖房など、基本設備もバッチリなこの物件。
ご家族でのお引越しをお考えの方としては、見逃せない物件です!!

大平台で、上品かつ開放的な生活を始めましょう。

続きを読む

見学したい(無料)

湖のある暮らし

9.5万円
無料

静岡県浜松市中央区神ヶ谷町2048

3LDK /71.22m² /1999年3月

こちらの物件は、神ヶ谷にあります。
マンションの目の前には立派な公園があり、小さいお子様がいるご家庭にはピッタリの場所です。

お部屋の間取りは3LDKで、ファミリー向けとなっています。
LDKは15.8帖あり、日当たりも良好です。
バルコニーの目の前は畑になっており、自然の緑があなたを癒してくれます。
キッチンは対面タイプで、TVを観ながら・お子様の様子を見ながら料理をすることができます。
3口のコンロも付いているので、時短でお料理ができること間違いなしです。

居室は、洋室が2部屋と和室が1部屋あります。
洋室にはクローゼットが付いており、スーツやコートなどをハンガーのまま収納できるのでシワの心配がありません。
和室には押し入れがあり、整理整頓に役立ちます。

佐鳴湖からも近い場所にあり、散歩をするのにもってこいの場所です!
休日には家族みんなでウォーキングをするのもおすすめ。
仲良しファミリーさんにぜひおすすめしたいお部屋です。

続きを読む

見学したい(無料)

眩しき白いお部屋かなっ!。

無料
無料
無料

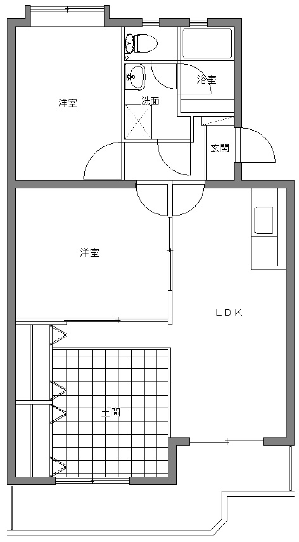
静岡県浜松市中央区龍禅寺町241

/42.31m²

マンションの2室を1つに繋げた広々スペースの1LDKのお部屋。
廊下・キッチン・水回り以外の床は1段下がって土間のようなつくりになっているのが印象的です。靴下ではなくお気に入りのスリッパを履いて生活したくなります♪

9.3帖のリビングダイニングは床・壁・天井が真っ白でスタイリッシュな印象。プロジェクターを壁に投影するのにも良さそうです。リビングの壁の飾り棚にはお気に入りの本や雑貨などを並べて、オリジナルディスプレイを完成させてみてください。

寝室となる5.7帖洋室のベランダ窓は2重サッシ。お休み時、気になる外の音を遮音します。落ち着いた雰囲気でスタイリッシュなアクセントウォールも良い感じです。

実はこちらのお部屋、もともとの間取りの名残でなんと玄関が2つあるんです。これにはびっくり!!キッチン側の玄関の土間部分は広いので、自転車やアウトドア用品を保管する外物置として利用するのに便利そうです。
その他にもキッチンには床下&クローゼット式の収納、そして廊下にはウォークインクローゼット…と、広々スペースを活用して収納が多いのも嬉しいですね!

続きを読む

見学したい(無料)

この明るさは角部屋の特権。

13.2万円
6.6万円

静岡県浜松市中央区龍禅寺町241

1LDK /47.34m² /1993/7

コンセプトは「自分らしさが叶う自由空間」
趣味の自転車やサーフィンをなどのアウトドアを楽しみたい。料理を楽しみたい。休日は映画や音楽鑑賞で浸りたい。そんな自分らしさに合う空間が作れる自由な間取りです。

なんと言っても目立つのはL字の玄関土間とその壁に沿うように動かせる可動収納。斬新です。
片面はオープン棚に、リビング側の面は扉付き収納となっています。可動収納の位置を動かしても裏面のべニアが丸出しという状況がありません!なので土間を2分割にすることも可能です。

今人気の対面キッチンと相反するように、リビング・ダイニングには向かず土間と対面する位置にあるキッチン。愛する人が帰ってきたら笑顔で迎えてあげましょう?

土間には自転車やサーフボードなどのアウトドア用品が置けそうですが、お部屋には大きなウォークインクローゼット。収納力も抜群です。

浜松の駅から徒歩10分ほどのところにありますが、駐車場1台込み。街中近くでお探しで車所有の方にもオススメです。

続きを読む

見学したい(無料)

-自分らしさが叶う自由空間-

無料
無料
無料

静岡県浜松市中央区龍禅寺町241

/47.79m²

「自分らしさ」って一体なんですか?
言葉を調べてみると「その人の特性・性格・性質」ということになるそうです。

しかしその「自分らしさ」を見失ってしまうことよくありますよね。
自分って一体なんだろう...。

テレビや雑誌・誰かの影響を強く意識してしまい自分を見失ってしまうこと。

そんな時こそこの独創的なお部屋に引越ししてみませんか!?(^_-)-☆

何処を探してもこのこんな間取りはないでしょう!!
そのお部屋から独創力が宿りいつしかそれがアナタの「自分らしさ」になるかもしれない。

そんな夢の実現が出来るかもしれない「ライフコア」です。

続きを読む

見学したい(無料)
FULL リノベ済み 360VR

リノベでオシャレルームに!

13万円
6.5万円

静岡県浜松市中央区南浅田1-14-30

2LDK /54.27m² /1988年06月

浜松駅からもほど近い南浅田のリノベーションされたお部屋。
間取りは2LDKですが、キッチンが大きいので1LDK使用推奨のお部屋です。

対面式キッチンでリビングに居る人とたのしくお話をしながら料理をすることもできます。
広々としたスペースで、目の前のカウンターでサッと朝食をとることも出来そうです。
キッチン上にはダウンライトがついているので夜はまたオシャレな雰囲気になりそう!!

隣の洋室と引き戸で仕切ることもできますが、リビングが狭くなってしまうので常時開放しておく方がストレスがなさそうです。

主な収納はちょっと変わったクローゼット。通常のハンガーパイプクローゼットに省スペースの棚が。面白いです。
北側の洋室は収納がない代わりに吊棚仕様にしています。これも珍しい。

もちろんお風呂や洗面台もリノベーション時に新しくなっています。

比較的、街寄りにも関わらず駐車場1台付き。しかも無料インターネットなので月々に掛かる費用は抑え目です。
2LDKの広々とした間取りです!
新婚さんなど、誰かと暮らすにちょうどいいお部屋です!

続きを読む

見学したい(無料)

New enclosed kitchen.

6.2万円
無料

静岡県浜松市中央区南浅田1-14-30

2LDK /54.27m² /1988年6月

浜松駅からもほど近い南浅田のリノベーションされたお部屋。
間取りは2LDKにもですがキッチンが大きいので1LDK使用推奨のお部屋です。

そう、一番気になるのはその新装された大きなキッチン。なんとL字キッチン!!
リノベーションされたお部屋で新しいL字キッチンは珍しい。
L字のメリットはコーナー部分の作業スペースが広く取られているところ。そして、このキッチンはコンセントがあるので電子レンジやトースターなどの家電も置いておけるスペースがあります。

隣の洋室と引き戸で仕切ることもできますが、リビングが狭くなってしまうので常時開放しておく方がストレスがなさそうです。

主な収納はちょっと変わったクローゼット。通常のハンガーパイプクローゼットに省スペースの棚が。面白いです。
北側の洋室は収納がない代わりに吊棚仕様にしています。これも珍しい。

もちろんお風呂や洗面台もリノベーション時に新しくなっています。

比較的街よりにも関わらず駐車場1台付き。しかも無料インターネットなので月々に掛かる費用は抑え目です。

続きを読む

見学したい(無料)

南仏Cute STYLE。

無料
無料
無料

静岡県浜松市中央区有玉台2-32-3

/55.48m²

玄関扉を開くと、まるで異国に足を踏み入れたような感覚。
照明やタオルハンガー、カーテンレールにまでこだわり尽くした、
可愛らしい印象の2LDKのお部屋!
洗面化粧台は、デザイン性に優れており
規格に少し飽きてしまった…そんな人にオススメです◎

12帖のLDKには、コンセント付きのカウンターを設置!
お料理をする際の作業テーブルとして、家電の収納スペースとして、、、
様々な用途にお使いいただけます!
もちろん、3口コンロ付きのシステムキッチンです!

最新のデジタロック、TVモニターフォン、エアコン、24時間換気、
ウォシュレット、追い焚き機能…と設備面も充実!

周辺環境は、整備された広い道路に囲まれた、閑静な住宅地です。
三方原スマートICまで約5分!浜松医大まで7分!
車で10分圏内にスーパー飲食店等、豊富に揃ってます!

続きを読む

見学したい(無料)

今宵、Bar kitchenで

無料
無料
無料

静岡県浜松市中央区鴨江2-4-12

/47.53m²

玄関からリビングに入るとその印象的なキッチンがすぐに目に入ります。

いまでは珍しいコーナー型のカウンターキッチン。コーナーの特性を生かしてカウンター部分が広く作られています。さらにカウンター下は飾り棚になっていて、お気に入りのワインやウイスキーなどのボトルやグラスを置いてオシャレなバーカウンタースタイルを楽しむのもいいんじゃないでしょうか!?

リノベーションされていますが、全体的にはよく言えばレトロ、ネガティブに言えば古さが残る印象です。
LDKには大きな窓がなく、排煙装置のハンドルを回して換気をします。
2部屋の洋室収納は押入れ型を一部ハンガーパイプのクローゼットタイプにしています。

1階はなんと行っても大きな庭があるのがこのマンションの特徴。しかも101号室は駐車場直結!この部屋だけの仕様です。
ただ入出庫は前の道の狭さに苦戦しそう。

続きを読む

見学したい(無料)

L字キッチンのお部屋。

無料
無料
無料

静岡県浜松市中央区曳馬2-8-3

/65.70m²

12帖のお部屋の隅っこにあるのは、
L字型したキッチンです。

L字型キッチンは、導線が短く済んでGood!
大きなこの部屋にみんなで集まっていれば、
食事の準備が出来たよと呼びに行く導線も
短く済みそうですね。

和室は襖が青一色。
はじめはちょっぴり気になるけれど、
以外と畳と相性がいいんです。
ワンポイントになってオシャレです。

トイレや洗面所は一段高くなっています。
お年寄りの方が住むには少し不便かも…。
でも、トイレには手摺もついているので、
たまにおじいちゃんが遊びに来るぐらいなら
大丈夫そうです。

続きを読む

見学したい(無料)

家族の笑顔が生まれるキッチン。

無料
無料
無料

静岡県浜松市中央区曳馬2-8-3

/65.70m²

子ども部屋にぴったりな3つの部屋と、大きなLDKのある物件!

対面式のキッチンがあるLDKには自然光が降り注ぎ、家事や食事の時間など、何気ない日常を明るく過ごせるような空間です。

シンプルでお部屋に入ってくる自然光と調和のとれたデザインのお部屋。遠鉄曳馬駅から徒歩6分という立地も嬉しいポイントですね。

「光と笑顔が溢れる空間」、きっとそんな雰囲気を感じてもらえるお部屋だと思うので、ご家族で内覧してみて下さい!

続きを読む

見学したい(無料)

ENTETSU Wayside× Re Choco☆彡。

無料
無料
無料

静岡県浜松市中央区曳馬2-8-3

/65.70m²

このエリアでお部屋探しをされている方多くいるのではないでしょうか?

まんをじしてのの登場です。
人気エリアの遠鉄沿線、中区曳馬にあり最寄り駅は「助信駅」!
さらに駅までは徒歩6分の好立地、程よく街中に近く駐車場も2台まで敷地内で確保可能、これは迷っている暇なんて無いですね。

室内は、ここのところ徐々に人気が高くなっている「Re Choco」シリーズ。
お部屋探し時に条件として挙げられる設備はすべて完備。

続きを読む

見学したい(無料)

オレンジのL字キッチンのお部屋。

無料
無料
無料

静岡県浜松市中央区曳馬2-8-3

/65.70m²

12帖のお部屋の隅っこにあるのは、
L字型したキッチンです。

L字型キッチンは、導線が短く済んでGood!
大きなこの部屋にみんなで集まっていれば、
食事の準備が出来たよと呼びに行く導線も
短く済みそうですね。

トイレや洗面所は一段高くなっています。
お年寄りの方が住むには少し不便かも…。

続きを読む

見学したい(無料)

FUKUROI貸家群。

無料
無料
無料

静岡県袋井市浅岡245-2

/44.71m²

お待たせしました!人気の平屋物件をご紹介しますよ~。

最近、「平屋の価値」が見直され、注目を浴びていますね。2階建ての住宅が主流の現在で平屋が注目されているのはなぜでしょうか?

その理由はやはり、移動が楽なワンフロアの構造。平屋は全てが同じフロアにあるので生活の動線が短く済み、階段がないので家が上下に分断される事がありません。そのため、平屋は移動が楽なうえに家を広く感じられるようになるんです。
設計的に見ても、平屋の構造は強いです。賃貸でもやっぱり、構造のことは気になりますよね。

家庭を持って子どもができたり、老後に生活をするなら、やっぱり平屋が便利だと思います。
この物件は、一人もしくは二人で住むのにちょうど良いサイズです。

長い目で見るとメリットの多い、平屋生活。
あなたも「平屋入門」してみては?

続きを読む

見学したい(無料)

Slow Life Asaba

無料
無料
無料

静岡県袋井市浅羽2677-6

/50.00m²

浅羽ってどこだろう?と思ってGoogle mapで検索すると・・
なんてのどかな場所!まわりは緑豊かな平地です。

その地の利を生かしたこのお部屋は、大きな掃出し窓からサンサンと太陽の光が入る明るい1LDK。リノベーションされてホワイト基調のさわやかな内装に仕上がっています。

車が必須な場所ですが、1台込み。2台目は2,000円ととてもリーズナブル。
この辺りに職場がある方は一度ご相談を。

続きを読む

見学したい(無料)

【DIY可】自分好みのお部屋にDYI!

無料
無料
無料

静岡県袋井市浅羽2677-6

/55.00m²

DIY好きの皆様必見!
袋井にDIYが可能なお部屋を発見いたしました!

内装はシンプルな2DK
壁紙は白、茶色のフローリング

ミントグリーンのキッチン
結構広めです!

あれ?2DKでこのお値段!?
これならDIYにもお金かけれちゃうかも・・・


この内装を変身させるのはあなた次第!
ワクワクドキドキですね!

続きを読む

見学したい(無料)
FULL リノベ済み

2トーンキッチンに惚れた。

6.7万円
無料

静岡県浜松市中央区早出町1211-7

1LDK /48.76m² /1981年12月

外観からフルリノベーションした、早出町の物件のご紹介です!
遠州鉄道の曳馬駅、上島駅、助信駅3駅にアクセスができます。

お部屋で目を引くのは、各所にあるレトロなアクセントカラー。
キッチンはパステルカラーの2トーン。
見れば見るほどポップでかわいい◎
他にも浴室やキッチンに、黄色やオレンジ、ピンクを使っています。

そして、16.4帖のたっぷり日差しが差し込む広めのLDKの壁の一面はバラの壁紙が。
白い壁地に、光によってバラが見え隠れします。
レトロでシック、お上品な印象で素敵です。
この住まいで美しくゆとりのある生活を始めてみませんか?

続きを読む

見学したい(無料)

愛読書を飾る美空間。

無料
無料

静岡県浜松市中央区篠原町21454-1

1K /26.64m² /2005年4月

間取りだけみると至って普通の1K。しかし、扉を開けるとそこにはファンタジー感あふれるオシャレな空間が広がっていました。

壁にはオシャレなウォールシェルフが設置されています。
お気に入りの本や雑貨を置いてお部屋をコーディネイト。パイプ調の棚受けも他ではないアクセントでかなりGood!

場所が篠原なので街や駅からはかなり遠め。なので駐車場は1台付き。しかも無料インターネット付きです。オシャレなのにリーズナブルな賃料がとてもよい!

続きを読む

見学したい(無料)

UK Classical STYLE

無料
無料

静岡県浜松市中央区篠原町21454-1

1K /26.64m² /2005年4月

アクセントウォールがとても特徴的なお部屋です。
白い壁に黒いラインが入って、クラシカルなスタイルです。
とてもユニークでオシャレな空間ですね。

そして、お部屋の隅にバックや帽子等をかけるポールがあ置いてあります。
お部屋のマッチしたインテリア家具に床の古材風の板もとても雰囲気がいいです!

アフタヌーンティーの午後のひと時をここで味わいたい方は、ぜひ!

続きを読む

見学したい(無料)

プチリノ、シャレオツアレンジ!

無料
無料
無料

静岡県浜松市中央区篠原町21454-1

/26.64m²

1Kだと間取りのカタチがたいてい同じパターンですよね。

プチリノベでオシャレに1Kをアレンジした物件です。

アクセントウォール、作り棚などでお部屋の印象をさらにワンランクアップ!

フクロウのイラストがキュート!トイレもブルーカラーのイラストがかわいい!
各部屋のアクセントウォールが空間のアクセントになってとてもユニークです。

さらにメインルームにあるパイプと板でできたDIY風の棚が
とても便利でオシャレな空間にしてくれます。

続きを読む

見学したい(無料)

IWATAアウトドアハウス

無料
無料
無料

静岡県磐田市森下34-2

/110.10m²

アウトドアされる方に是非オススメしたいお部屋が登場です。
磐田エリアにてお部屋探し中のお客様、大変お待たせしました。

旧豊田町の事務キチのある交差点すぐ近く、国道1号線からは1本入った場所に今回のお部屋はあります。

ガルバリウム鋼板を使用したお洒落な外観、敷地内に2棟並んだ戸建賃貸。
間取りこそ2LDKではあるが室内のスペース1つ1つのサイズが大きく専有面積は約110㎡、テラスと専用庭はアウトドア派のあなたにはもってこいのスペースです。

玄関横のシューズクローク奥には納戸スペースがあり自転車であれば2台ほど駐輪可能、物で溢れかえってしまったら物置を購入し専用庭に置くのも一つの手ですね。

まっ、とにかくこの物件は1度ご内覧するべきだと思いますよ。

続きを読む

見学したい(無料)

カフェ風インテリアにときめいて

無料
無料

静岡県浜松市中央区渡瀬町171

1LDK /39.74m² /1989年4月

「ちょこっとだけ室内イジってみました」。
そんな連絡をもらったので意気揚々と現地へ急行。

ええ…!全然ちょこっとじゃないですよ!
驚き。しっかりリノベーション工事されているではないですか...。
ちょこっとと言いつつ水回りも綺麗です。
これは立派に「カフェ風リノベーションしました」な完成度ですね。

2人暮らしや小さなお子さんがいるご家族に人気の2LDKの間取り。
リビングと4.5帖の洋室は引き戸で開放的に使うことができるので、
広々16.5帖リビングとして使える可変性のある間取りなのもおすすめなポイントです。

「カフェっぽいインテリアにしてみたいんです!」
そんなご希望がぴったり叶うこんなお部屋、どうですか?

続きを読む

見学したい(無料)
FULL リノベ済み

BIGなワンルームに変身っ

5.3万円
無料

静岡県浜松市中央区渡瀬町171

1R /39.74m² /1989年4月

広いリビングが人気の昨今、需要が少なくなってきた間取り「2DK」。
一昔前は新婚さんに人気が高く、1990年代後半まで浜松市内にも多くのお部屋が建てられてきました。
ただ大きなテレビに大きなソファーを置く今の時代には使い勝手が悪いこともあり、世相に合わせて2DKは1LDKへリノベーションされることが多々あります。

ただし普通じゃつまらない。このお部屋は1LDKではなく「BIGワンルーム」へリノベーションされました。
約40㎡ある室内はリノベーションの力が存分に発揮された空間です。
ウォークインクローゼットも2DKの名残がありおもしろいですね。たっぷり容量です。

部屋数は多くなくていいから大きな空間でくつろぎたい。
そんな方におすすめのお部屋です。

続きを読む

見学したい(無料)

森ガールになりました。

5.2万円
5.2万円

静岡県浜松市中央区渡瀬町171

1R /39.74m² / 1989年6月

女子に人気のシリーズの登場です。
本当にかわいいんです。

イメージは森ガール。
ウォークインクローゼットがあるのでお洋服が多いかたでも安心。
全部ウォークインにひとまとめしてしまいましょう◎
その分広々とスペースを使用できますよ。

1Rですがご入居者次第で1Kにも1DKにもなります。
模様替えも楽しくなること間違いなし!

続きを読む

見学したい(無料)
FULL リノベ済み 360VR

まんまるライトとの暮らし

無料
無料

静岡県浜松市中央区渡瀬町171

1LDK /39.74m² /1989年4月

12帖のLDKにあるまんまるライトが主役のお部屋です。
真っ白な壁紙とグレーの床が相性抜群で、オシャレすぎる空間になっています。

2022年にリノベしたばかりのまだピカピカなお部屋です!

LDKの隣には6帖の洋室があります。
クローゼット付きで、扉を開けると見た目よりも奥行があって広々していました。
収納力もお部屋選びで大事なポイントですよね!

キッチンはコンパクトなサイズ。
コンロは2口で、収納棚付きとなかなか便利なポイントが詰まっています。
日常的に料理をしない方には十分かもしれませんね。
お風呂、トイレもピカピカなのが嬉しいです。

1階ですが、目の前は駐車場なので太陽の光も入ってきます。
徒歩圏内にはスーパーやドラッグストア、コンビニなど生活に必要な物を購入できるお店があって便利です!

続きを読む

見学したい(無料)

I'm MAXIMALIST!!

無料
無料

静岡県浜松市中央区渡瀬町171

1R /39.74m² /1989年4月

広~いワンルームのご紹介です!

巷では「ミニマリスト」なんて言葉をよく聞きますが、「物がいっぱいあった方が楽しいに決まってるじゃん!!」というあなたにピッタリなお部屋!
15.5帖のワンルームとウォークインクローゼットをフル活用して下さい。

ワンルームなので、掃除の手間もかかりません。

流行なんて気にしない!!

続きを読む

見学したい(無料)

明日の気分は、ワンルーム時々1LDK。

5.2万円
無料

静岡県浜松市中央区渡瀬町171

1LDK /39.74m² /1989年4月

なんだか普段見る天気予報みたいお部屋が完成しました。
その名も「ワンルーム時々1LDK」!!

普段遣いは大きなビッグワンルームとして、来客時は3枚の引き戸を使用し1LDKへ変更。
急な来客時でも安心、寝室空間を隠してしまおう...。隠しきれないモノは一時的に3帖もある収納内でもいいのかな。

室内は白い壁紙のみの使用となるため今回は男性・女性問わずお選びいただける内装になっております。
建具はカフェ風のお洒落なタイプ、観葉植物どのGreenを置いていただけるとより室内雰囲気よりアップします。

近隣の1LDKに比べ少しコンパクトなお部屋の為、賃料も抑えめの5万円代前半に設定されているのも嬉しい。

気分やシチュエーションによって変幻自在に変わえられます。
カフェ風な色味も含めて、いつでもあなたにぴったりフィットするお部屋です。

続きを読む

見学したい(無料)

リノベのオモシロさここにあり!

無料
無料
無料

静岡県浜松市中央区篠ケ瀬町338

/56.38m²

団地リノベのおもしろさを感じることのできる物件です!
リノベーション物件好きにはたまらないこのアプローチとデザイン!

エントランスのアプローチがナナメ!!かっこよすぎ!!
まっすぐではなく、あえてナナメ!
また、ドアと壁半円のデザインで開き度合で雰囲気を楽しむことができそうです。

大きなリビングの一部スペースに、大胆にも和室空間があります!ただ広いだけではなく、大空間の開放感を残しつつ、さりげなく区切っていますね。

そして、外観は、インパクトのある赤です!

続きを読む

見学したい(無料)

カッコいいはお部屋から

無料
無料
無料

静岡県浜松市中央区篠ケ瀬町338

/56.38m²

東区篠ケ瀬町にある、ダンディなお部屋のご紹介。

ダウンライトが埋め込まれた12帖のリビングはダークブランとグレーの配色がとってもクール。
お部屋全体の色が統一されているので、家具も選びやすそうですね。
ネイビーや観葉植物の緑を入れるとグッとおしゃれになりそう。

南向き、4階のお部屋なので日当たりも良好です。
2部屋ある洋室はどちらも6帖、収納たっぷり。

ちなみに、外観はモダンでクールなお部屋とは打って変わってド派手な赤色。
エントランス部分もしっかりつくられていて高級感があります。
外観とお部屋のイメージのギャップが激しい、1度で2度おいしいそんなお部屋です。

続きを読む

見学したい(無料)

リノベで感じる面白さ

無料
無料
無料

静岡県浜松市中央区篠ケ瀬町338

/56.38m²

団地リノベのおもしろさを感じることのできる物件です!
リノベーション物件好きにはたまらないこのアプローチとデザイン!

エントランスのアプローチがナナメ!!かっこよすぎ!!
まっすぐではなく、あえてナナメ!
また、ドアと壁半円のデザインで開き度合で雰囲気を楽しむことができそうです。

大きなリビングの一部スペースに、大胆にも和室空間があります!ただ広いだけではなく、大空間の開放感を残しつつ、さりげなく区切っていますね。

そして、外観は、インパクトのある赤です!

続きを読む

見学したい(無料)

休日、二人、ポカポカ

無料
無料
無料

静岡県浜松市中央区篠ケ瀬町338

/56.00m²

浜松市東区篠ケ瀬町に太陽の光に癒される場所がありました

近くにはコストコがあるから、たっぷり買い物ができますね。
また徒歩圏内にはコンビニがあるので安心!

バルコニーに面したリビングと洋室の窓からは、太陽の光が差し込み二人をやさしく包み込んでくれます。
水回りもリノベーションされて、清潔感あふれる姿に!

リビングにある出窓からは青空を独り占め!
休日には二人で空を眺めながらポカポカライフを過ごしませんか?

続きを読む

見学したい(無料)

ダウンライトで照らすモダンリビング

無料
無料
無料

静岡県浜松市中央区篠ケ瀬町338

/56.38m²

赤いド派手な外観は周囲からも一際目立つ建物でした。

そんな派手な外観と打って変わりお部屋の中はモダンスタイルにまとめられております。

玄関扉を開ければまず目の前には曲線美の美しい壁を見ることが出来ます。
これは玄関スペースと脱衣所を隔てる壁、建具・靴箱の色ともうまくマッチし外観の色とはいい意味でミスマッチに感じました。

バルコニーに面したLDK12帖には山吹色の天井に3つのダウンライトが埋め込まれたリビングスペース、壁にもこの山吹色を使用し落ち着いた色合いが感じるスペースが確保されております。

外観とお部屋のイメージのギャップが激しい、1度で2度おいしいそんなお部屋です。

続きを読む

見学したい(無料)

Wood+Downlight+Arch…=リノベ!

無料
無料

静岡県浜松市中央区篠ケ瀬町338

2LDK /56.38m² /1987年1月

天井の木の素材感がアクセント。
12帖のLDKは、柔らかなモザイク柄のアクセントクロス、ダウンライトがとてもおしゃれ。
ポイント部分の他は白に統一。
2つの洋室は、両方とも白くてシンプルな6帖の空間になっています。

お気に入りは脱衣洗面所。
とても広いところと、洋室と玄関両方から出入りできるところがいいですね。
フロアが大理石風なのがスタイリッシュな感じです。

1点、トイレは脱衣洗面所の奥にあります。
来客時にお通しすることになるので綺麗にしておくのがよいかも。

玄関のアーチデザインもポイント。
脱衣洗面所の扉を閉めたときには、LDKと同じモザイク柄がちらっと顔を出します。

場所は旧東区の篠ケ瀬町。
コストコやロピア、イオンモールへのアクセス良好な、買い物に便利な場所です。
国道1号線へも出やすい位置なので、街中方面や磐田方面に通勤の方にも。

建物は80年代と若干歴史があるのでぴかぴかとはいきませんが、その分賃料は抑えめ。
同棲カップルや新婚さんにおすすめです。

※画像は前回募集時のものです。現況を優先いたします。

続きを読む

見学したい(無料)

キッチンに集う、リビング。

7.2万円
無料

静岡県浜松市中央区篠ケ瀬町338

2LDK /56.38m² /1987年8月

ついにリノベーション完成しました!
浜松市東区篠ケ瀬町の物件のご紹介です。

このお部屋の推しポイントは、キッチンと収納。
キッチンは、料理好きなら一度は憧れるであろうアイランドキッチンです。
しかも3口コンロと広々シンク。
周辺にスーパーもありますので、お料理が楽しくなること間違いなしです。
このキッチンを中心に、にぎやかな生活が送れそうですね!

そして収納は、なんと洋室それぞれにウォークインクローゼットが。
これは大変嬉しいですね!!新たに収納が不要で、見えるスペースがすっきり整頓できます。
さらに、廊下に押入もあります。

コンクリートの壁と、グレーや白を基調とした雰囲気もスタイリッシュなので、すっきりとスタイリングしてみてはいかがでしょうか?

続きを読む

見学したい(無料)

6+12の大空間を活用す

無料
無料
無料

静岡県浜松市中央区篠ケ瀬町338

/56.38m²

「6⇒12⇒18」
さて問題です。
この数字が意味するものは何でしょう??Σ(゚д゚lll)

実はこれ今回のお部屋の家族団らん場の広さです。

元々3DKの間取りで建てられたお部屋は当初6帖のダイニングキッチンが家族団らんのスペースでした。

ソファーを置く家庭が増えテレビも大型化、時代の流れと共にリビングを必要とする家庭が増えダイニングキッチンと隣りのお部屋を一体型に、そして生まれたのが12帖のリビングスペースを完備した2LDKの間取りです。

さらに時が流れリビングの大型化が求められ今回12帖のリビングと6帖の洋間が合体し大きな18帖のリビングスペースが完成しました。

これだけの大きなスペースがあればあんな家具やこんな家電もちろん設置可能です。
アナタの思い描いた生活を、この大空間へ彩って見てください。

続きを読む

見学したい(無料)

ダウンライトで照らしたモダンリビング

無料
無料
無料

静岡県浜松市中央区篠ケ瀬町338

/56.38m²

赤いド派手な外観は周囲からも一際目立つ建物でした。

そんな派手な外観と打って変わりお部屋の中はモダンスタイルにまとめられております。

玄関扉を開ければまず目の前には曲線美の美しい壁を見ることが出来ます。
これは玄関スペースと脱衣所を隔てる壁、建具・靴箱の色ともうまくマッチし外観の色とはいい意味でミスマッチに感じました。

バルコニーに面したLDK12帖には山吹色の天井に3つのダウンライトが埋め込まれたリビングスペース、壁にもこの山吹色を使用し落ち着いた色合いが感じるスペースが確保されております。

外観とお部屋のイメージのギャップが激しい、1度で2度おいしいそんなお部屋です。

※現在水回りを交換工事中です!

続きを読む

見学したい(無料)
FULL リノベ済み 360VR

ダウンライトが照らすモダンリビング

無料
無料

静岡県浜松市中央区篠ケ瀬町338

2LDK /56.38m² /1987年

赤いド派手な外観は周囲からも一際目立つ建物でした。

そんな派手な外観と打って変わりお部屋の中はモダンスタイルにまとめられております。

玄関扉を開ければまず目の前には曲線美の美しい壁を見ることが出来ます。
これは玄関スペースと脱衣所を隔てる壁、建具・靴箱の色ともうまくマッチし外観の色とはいい意味でミスマッチに感じました。

バルコニーに面したLDK12帖には山吹色の天井に3つのダウンライトが埋め込まれたリビングスペース、壁にもこの山吹色を使用し落ち着いた色合いが感じるスペースが確保されております。

外観とお部屋のイメージのギャップが激しい、1度で2度おいしいそんなお部屋です。

続きを読む

見学したい(無料)

赤いマンションのナチュラルルーム!

無料
無料
無料

静岡県浜松市中央区篠ケ瀬町338

/56.38m²

こちらのお部屋はリノベーションされたばっかりの物件になります。
玄関を開けると脱衣所の曲線デザインが目を引きます。
全身鏡付きのシューズボックスもついている嬉しい玄関になっています。
左手にはちょっとした台のスペースがあります。下にはポールがついていたので置き場所に困りがちな傘をここに置けるのはまたまた嬉しいポイントです。

LDKに入ると木目調と黒のナチュラルな雰囲気で統一されています。
大きな2つの窓があるので陽当たりも心配することなく過ごせそうです。

細かいところまでキレイにリノベーションされたこのお部屋はトイレ、お風呂もピカピカです。
その中でも脱衣所は広々空間です!玄関からも洋室からも繋がっているので、帰ってきたらすぐに手を洗いに行けるので今の時期にも嬉しいポイントです。

建物は赤いド派手な目を引く外観です。ですがお部屋の中は木目調のナチュラルな雰囲気のお部屋です。
外観とお部屋のギャップがまた面白くていいポイントですね。
近くにはコストコ、コンビニなども揃っていてお買い物には便利な立地です。
休日にはたくさんお買い物に出かけましょう!

続きを読む

見学したい(無料)
RENT リノベ済み

グリーンだよ

無料
無料

静岡県浜松市中央区篠ケ瀬町338

賃料65,000円  
共益費/管理費3,000円

2LDK /56.38m² /1987年8月

団地リノベのおもしろさを感じることのできる物件です!
リノベーション物件好きにはたまらないこのアプローチとデザイン!

エントランスのアプローチがナナメ、かっこよすぎ。
まっすぐではなく、あえてナナメ!
また、ドアと壁半円のデザインで開き度合で雰囲気を楽しむことができそうです。

大きなリビングの一部スペースに、大胆にも和室空間があります!ただ広いだけではなく、大空間の開放感を残しつつ、さりげなく区切っていますね。それにしてもグリーンの色が濃い畳空間だ....。

そして、外観は、インパクトのある赤です!

続きを読む

見学したい(無料)
FULL リノベ済み 360VR

ナチュラルルーム

6.7万円
6.7万円

静岡県浜松市中央区篠ケ瀬町338

2LDK /56.38m² / 1987/08

こちらの物件は、篠ヶ瀬町にあります。
建物の外観は赤色で、各棟の入り口が可愛らしくなっています。

間取りは2LDKになっており、ファミリー向けのお部屋となっています。

LDKは広々と12帖あり、TVやソファーなどの家具を自由自在に置くことができます。
キッチンは壁向きですが、親子一緒に料理を作ることができます。

洋室は二部屋あります。どちらも洋室6帖になります。
玄関近くの洋室は、押し入れが完備されており、洋服などを収納することができます。
また、こちらのお部屋バルコニーとも繋がっています。

もう一つの洋室は、リビングルームと繋がっており、小さめですが収納スペースも付いています。

洗面脱衣所は広々としています。
浴室はシャンプードレッサーの他に鏡や窓も付いています。

玄関には、シューズボックスが完備されています。
全身をチェックできる鏡が付いていないので、必要な方は購入が必要です!

スーパーもコンビニもドラックストアも周辺にあるので、生活をするのにあたって何かと便利です。

続きを読む

見学したい(無料)

シングルライフを憧れのデザイナーズMで!

無料
7.3万円

静岡県浜松市中央区瓜内町191-4

1LDK /43.42m² /2015年2月

有名建築家、竹原義二が監修デザインしたデザイナーズマンション。

外観から内装まで、全てにおいてハイセンス。そんなお部屋が瓜内町にあります。
「お部屋探しの第一条件は、デザイン性の高さ!」という方は必見です!

マンションに着いた瞬間から、思わずテンションが上がってしまう外観。コンクリート打ちの壁に突如現れる赤い扉の向こうに、お部屋があります。
無骨だけどセンスを感じる1LDKで、バルコニー付なので収納にも困りません。

浜松にだってシャレオツなお部屋はたくさんあるのです!

続きを読む

見学したい(無料)

有名建築家によるデザイナーズルーム

無料
無料
無料

静岡県浜松市中央区瓜内町191-4

/42.75m²

築浅デザイナーズ物件に空き予定が出ました!
おしゃれに暮らしたい。そんな方にぴったりのお部屋です。

こちらのマンションを手がけたのは、数々の受賞歴を持つ建築家の竹原義二さん。

無機質になりがちなデザイナーズ物件ですが、モルタルのアクセントウォールに、有孔ボードや木を使った空間は、温かみのあるやわらかな印象。リビングダイニングとキッチン、洋室で床材が異なっていたり、レンガを敷き詰めた玄関など、こだわりが随所に見られます。窓も大きく、たっぷりの光が入るのも魅力的です。

洋室に大きなウォークインクローゼットがあります。収納はここだけですが、ひとり暮らしならそんな心配も入らないくらいの大きさです。

トイレは洗面などと同じスペースにあって、海外のホテルやアパルトマンのような雰囲気。その分、居室にゆとりのあるつくりになっています。

追い炊きに浴室乾燥、シャワートイレなど、設備はばっちり。

交通量は多くないですが、道路に面しているので、車が通ると少し音が聞こえます。

馬込川に近いので、休日の朝は川沿いをランニング。そんなライフスタイルが叶いそうです。
人気物件になること必至なので、早めの見学がおすすめです♪

続きを読む

見学したい(無料)

URIUCHI Designers' Mansion

無料
7.1万円

静岡県浜松市中央区瓜内町191-4

1LDK /43.42m² /2015年2月

デザイナーズ物件の募集が出ましたよ!
おしゃれに暮らしたい。まさにそんな方にぴったりのお部屋です。

こちらのお部屋は、自分だけの専用エントランスが特長。
幅1.5m、長さ4mほどでしょうか(すいません、測るのを忘れました…。)
自転車を置いたり、グリーンをディスプレイしたり、自分らしくアレンジを楽しめそう。

ここのお部屋だけ特別にエントランスを通らなくても玄関まで行けるアプローチがありプレミアム感を感じられ、気分も上々です。

部屋へは大きなガラス扉を開けて入る、ユニークなスタイル。
ガラスなのでスケスケですが、採光と空間の広がりを感じられます。

こちらのマンションを手がけたのは、数々の受賞歴を持つ建築家の『竹原義二さん』。

無機質になりがちなデザイナーズ物件ですが、モルタルのアクセントウォールに、有孔ボードや木を使った空間は、温かみのあるやわらかな印象。リビングダイニングとキッチンで床材が異なっていたり、玄関にはレンガが敷き詰められたり、こだわりが随所に見られます。ガラス窓になった玄関から、たっぷりの光が入るのも魅力的です。

そしてなんと、ペット飼育可!
ワンちゃん、猫ちゃんとおしゃれな空間に住みたいあなたにもってこいの物件です。

続きを読む

見学したい(無料)

ESPOIR

無料
無料
無料

静岡県浜松市中央区増楽町448

/38.88m²

希望に満ち溢れている皆さんへお届けしたい。


一、フランス語でespoir 意味は希望。

二、リラックスルームとワークスペースの使い分け

三、リノベーションしているのに賃料が安い

これから始めたい方、希望のために貯金したい方

フランスのようなお部屋に住みたい方

是非お問い合わせください。


きっと素敵な未来になりますよ

続きを読む

見学したい(無料)

シックな雰囲気を残したリノベーション

無料
無料
無料

静岡県湖西市新居町中之郷3621-6

/42.49m²

ダークブラウンを基調とし、築20年の時間を積み重ねてできたシックな空間だ。
リノベーションすることでさらにその良さを引き出している。
建具や開口部にある木枠によって、空間のメリハリ感が出て、一層上品さを感じることができる。

間取を見るともう一つ大きな特徴があります。
LDKと洋室の間にウォークインクローゼットがあり廊下ともう一つの動線があります。ライフスタイルに合わせて、自由に動線を使えるので嬉しいですね。


続きを読む

見学したい(無料)
FULL リノベ済み

Herringboooooone

無料
無料

静岡県浜松市中央区北島町416-1

1K /25.92m² /2003年8月

上品でクラシカルな雰囲気にしてくれるヘリンボーンは、どこか懐かしさも感じられる雰囲気です。
また、リノベーション物件の良さを最大限に引き出してくれます。

光沢感もあり、濃いブラウンカラーで落ち着いた空間ですね。
家に帰ってきて、ホッとできる場所になりそうです。

玄関からお部屋全体に続くヘリンボーンが贅沢な1K空間に!

続きを読む

見学したい(無料)

かわいいお部屋?

無料
無料
無料

静岡県浜松市中央区富塚町4710-13

/36.45m²

かわいいです。



浜松市中区富塚町の医療センター近くのリノベーション物件!
人気の物件で久々に空きが出ました。
医療センターやその周辺で働く方には大変おススメの物件です。


玄関には大きなシューズボックス。
靴をたくさんお持ちのお洒落さんでも安心の容量です。
そして姿見鏡もついているので、出かける前に身だしなみチェック!
「今日も私、きれいだわっ!」・・・なんて

お風呂は水色の壁、そして浴槽は角が丸目のものを使用。
第一印象で気に入るはず。

キッチンは料理好きには嬉しい3口コンロ!
シンクは黄色で、思わずテンションが上がっちゃいます。


全部屋の窓は2重窓になっているので、
女性の一人暮らしでも安心。


キュートな部屋をお探しのあなたにピッタリです。

続きを読む

見学したい(無料)

パステルなリノベ、蜆塚の丘で

無料
6.2万円

静岡県浜松市中央区富塚町4710-13

1LDK /36.45m² /1986年1月

パステルカラーがかわいいリノベーションのこのお部屋。
白の中に映えるLDKのブルーのアクセントクロス、キッチンのイエローのシンク。
思わずきゅんとなる組み合わせ。

収納はウォークインクローゼット付き。
LDKと洋室両方から入れる優れものです。
ちょっとしたことに感じるけれど、日々の暮らしの中でこれって結構便利なのです。

さらに浴室にはサウンドシャワー。
湯船で音楽に浸かりながらリラックス、1日の癒しの時間になりそうです。

蜆塚の丘の上のリノベルームでした。

※画像は前回募集時のものです。現況を優先いたします。

続きを読む

見学したい(無料)
FULL リノベ済み

お風呂で音楽鑑賞

無料
5.9万円

静岡県浜松市中央区富塚町4710-13

1LDK /36.45m² /1986年1月

これからお風呂で音楽聴きましょう。

浜松市中区富塚町の医療センター近くのリノベーション物件。
人気で久々に空きが出ました。

LDKは10帖。キッチンとリビングがしっかり分けられる形です。
白のシステムキッチンは料理好きには嬉しい3口コンロ。
黄緑色のシンクがポイントです。

お風呂は水色の壁、そして浴槽は角丸のものを使用。
浴室乾燥と追い焚きだけじゃなく、なんとサウンドシャワーが付いているとか。

玄関には大きなシューズボックス。
靴をたくさんお持ちのお洒落さんでも安心の容量です。
姿見鏡もついているので、出かける前に身だしなみチェック。
「今日もいい感じ」・・・なんて

お風呂で音楽聴くよという方、素敵なお部屋も快適さも諦められないという方、医療センターやその周辺で働く方、おすすめです。

続きを読む

見学したい(無料)
FULL リノベ済み

かわいいも快適も

無料
5.7万円

静岡県浜松市中央区富塚町4710-13

1LDK /36.45m² /1986年1月

かわいいです。

浜松市中区富塚町の医療センター近くのリノベーション物件。
人気で久々に空きが出ました。
1階ですが、全部屋の窓は2重窓になっているので安心です。

LDKは10帖。キッチンとリビングがしっかり分けられる形です。
白のシステムキッチンは料理好きには嬉しい3口コンロ。
レモンイエローのシンクがかわいくて、思わずテンションが上がっちゃいます。

お風呂はピンク色の壁がかわいい。
浴室乾燥と追い焚きだけじゃなく、なんとサウンドシャワーが付いているとか。

玄関には大きなシューズボックス。
靴をたくさんお持ちのお洒落さんでも安心の容量です。
姿見鏡もついているので、出かける前に身だしなみチェック。
「今日も私、きれいだわっ!」・・・なんて

かわいさも快適さも諦められないという方、お風呂では音楽聴くよという方、医療センターやその周辺で働く方、おすすめです。

続きを読む

見学したい(無料)

赤い屋根と赤電車。

無料
無料
無料

静岡県浜松市中央区上島4-1-1

/51.81m²

遠鉄上島駅目の前、赤い屋根が目印の2階建て建物があります。

昔はガラガラ今大人気、知る人ぞ知るお部屋に空室情報が入ってきました。

SOHO使用も可能な当物件には既にネイルサロンやボディエステ・接骨院までもが入る個人事業主には人気のお部屋です。

1階のお部屋は白い柵で囲まれた専用庭スペースも付いておりますが、今回は残念ながら2階のお部屋の募集です。

通常の住居使用としてご入居いただいているお客様もいるため事前に事業内容・営業時間・1日平均の応対人数など入居審査がありますのでご注意下さい。

また別料金にはなりますが、1階共用部に店舗看板を作成することも可能です。
詳細はお問い合わせ下さい。

続きを読む

見学したい(無料)

ナチュラル×ガルバでオシャレな戸建て

無料
無料
無料

静岡県浜松市中央区上島1-14-14

/89.42m²

上島周辺エリアのファミリー向け戸建て賃貸のご紹介です。
とても人気のあるエリアの遠州鉄道「上島駅」徒歩4分の場所にあります。通勤・4通学に電車を利用されたい方は、とても便利なエリアです。また、上島幼稚園や上島小学校なども近隣にあります。

ガルバリウム×白でデザインされた壁は、とてもオシャレです。
角地に立地していて、白壁側にある1階の大きな窓2面と2階の窓3面のある部屋には、採光も十分に確保できていていいですね。また、ガルバ側には、正方形の窓が2面。シンプルでスッキリした印象です。

内装はシンプルでナチュラル感のある空間です。フローリングの心地よい木の素材がいいですね。落ちついた雰囲気で、優しい気分にさせてくれます。
キッチンは、システムキッチンにIH仕様です!

続きを読む

見学したい(無料)

テナント仕様可能、築浅戸建賃貸

無料
無料
無料

静岡県浜松市中央区和合町220-214

/80.04m²

小さな敷地でも合理的にオシャレな住宅を作る20~30代の若い世代に人気の「片流れ屋根」、そんな屋根をした戸建賃貸住宅の入居者を募集開始しました。

なんと今回の戸建賃貸住宅はテナント使用も相談可能です。
これは珍しい!!

駐車場は敷地内には2台分しか確保出来ないため、対1人の接客業「ネイルサロン」や「ボディエステ」、駐車場の心配のない対子供の学習塾「公文塾」や「習字教室」や「そろばん塾」などがオススメの業種ですね。

現業回復が必須になりますが、敷地内であれば看板など設置することも可能です。

続きを読む

見学したい(無料)

夢の国へようこそ!

12.4万円
6.2万円

静岡県浜松市中央区上島3-27-5

1LDK /36.43m² /1985年08月

「コクーム」英語の繭「cocoon」と部屋「room」を掛け合わせたもの。
建物の名前の由来からすてきですね。

女性は、いつまでも美しくいたいと思うもの。

慌ただしい朝、洋室の壁をくり抜いた小窓から優しく降り注ぐ朝の光が「コクーム」に差し込む。
そんな自然光の中でメークをする。少しでも長くここにいたくなるような「おこもり」空間が魅力的。

レトロ感が漂うヨーロピアン風の外観と外構の世界観がハイクオリティーです。ワクワク感とドキドキ感を毎日味わえるでしょう!

続きを読む

見学したい(無料)

夢の国へようこそ!

無料
無料
無料

静岡県浜松市中央区上島3-27-5

/36.40m²

まるで東京ディズニーランドの一角に住んでいるかのように錯覚してしまう程、外観や内装のディテールにこだわったマンションです。

外観は南仏プロバンス風と言いましょうか、その風合い、アイアンの門、植栽、駐車場の砂利にまでこだわり抜いています。

外観は外断熱仕様ということで、暑い夏も寒い冬も中の温度を一定に保つとってもエコなマンションなんです。撮影に行った時も外の気温が32度以上ある日にも関わらず、中はとっても快適でした。(エアコンはつけていません)

内装もステキ過ぎます。アイアンとアンティークな建具が中世ヨーロッパを彷彿させます。

また、パウダールームには白い格子窓がついていてお部屋の中にもう一つ家があるような景色が広がります。朝、歯を磨きながら格子窓越しにダーリンにおはよう!と声を掛けてみましょう。きっと素敵な朝が迎えられるはず。

お風呂にはテレビも付いています。これがあればゆっくりリラックスしたバスタイムが楽しめますね。

まあとにかく一見していただきたい!ステキ×100倍くらい言っても嘘でないマンションです。

続きを読む

見学したい(無料)

夢の国へようこそ!

無料
無料
無料

静岡県浜松市中央区上島3-27-5

/36.40m²

まるで東京ディズニーランドの一角に住んでいるかのように錯覚してしまう程、外観や内装のディテールにこだわったマンションです。

外観は南仏プロバンス風と言いましょうか、その風合い、アイアンの門、植栽、駐車場の砂利にまでこだわり抜いています。

外観は外断熱仕様ということで、暑い夏も寒い冬も中の温度を一定に保つとってもエコなマンションなんです。撮影に行った時も外の気温が32度以上ある日にも関わらず、中はとっても快適でした。(エアコンはつけていません)

内装もステキ過ぎます。アイアンとアンティークな建具が中世ヨーロッパを彷彿させます。

また、パウダールームには白い格子窓がついていてお部屋の中にもう一つ家があるような景色が広がります。朝、歯を磨きながら格子窓越しにダーリンにおはよう!と声を掛けてみましょう。きっと素敵な朝が迎えられるはず。

お風呂にはテレビも付いています。これがあればゆっくりリラックスしたバスタイムが楽しめますね。

まあとにかく一見していただきたい!ステキ×100倍くらい言っても嘘でないマンションです。

続きを読む

見学したい(無料)

小窓がかわいい"コクーム"スペース

12.4万円
6.2万円

静岡県浜松市中央区上島3-27-5

賃料62,000円  
共益費/管理費5,000円

1LDK /36.43m² /1985年8月

南仏プロヴァンス、、?いいえ上島です。

ヴィラ・コクーム。
英語の繭「cocoon」と部屋「room」を掛け合わせたもの。
建物の名前の由来から素敵ですね。

朝洋室の壁をくり抜いた小窓から、優しく降り注ぐ日の光がコクームに差し込む。
そんな自然光の中で支度をする。少しでも長くここにいたくなるような、おこもり空間が魅力的。

レトロ感が漂うヨーロピアン風の外観と外構の世界観がハイクオリティーです。
毎日お家に帰るのが楽しみになる。貴女だけの繭になってくれる、そんなお部屋です。

事務所利用、店舗利用もご相談可能です。

続きを読む

見学したい(無料)

うっとり眺めるハーバルガーデン

12.4万円
6.2万円

静岡県浜松市中央区上島3-27-5

賃料62,000円  
共益費/管理費5,000円

1LDK /36.43m² /1985年8月

以前ご紹介した『夢の国へようこそ!』の1階に空きが出ました!

ここのお庭がすごいんです。

お庭は縦4m×横5.5mで、約13帖ほどの広さがあります。全体をお手入れの行き届いたふかふかの芝生に覆われていて、ラべンダーやローズマリーがしっかりと自生しています。

このお庭の中央にガーデンテーブルとチェアを置けば、アウトドアリビングの完成です!これだけ広くて素敵なお庭、ひとりで楽しむのはもったいないですよね。休日にはお友達呼んでガーデンパーティーも楽しんじゃいましょう!

内装もステキ過ぎます。アイアンとアンティークな建具が中世ヨーロッパを彷彿させます。

また、パウダールームには白い格子窓がついていてお部屋の中にもう一つ家があるような景色が広がります。朝、歯を磨きながら格子窓越しにダーリンにおはよう!と声を掛けてみましょう。きっと素敵な朝が迎えられるはず。

お風呂にはテレビも付いています。これがあればゆっくりリラックスしたバスタイムが楽しめますね。

あ、それから忘れてならないのは、外観が外断熱仕様ということ。暑い夏も寒い冬も中の温度を一定に保つとってもエコなマンションなんです。

きっとここに住んでいる人は素敵な人たちばかりなんだろうな~!

続きを読む

見学したい(無料)

ここにあったか夢の国

12.4万円
6.2万円

静岡県浜松市中央区上島3-27-5

1LDK /36.43m² /1985年8月

ここのお庭がすごいんです。

お庭は縦4m×横5.5mで、約13帖ほどの広さがあります。全体をお手入れの行き届いたふかふかの芝生に覆われていて、ラべンダーやローズマリーがしっかりと自生しています。

このお庭の中央にガーデンテーブルとチェアを置けば、アウトドアリビングの完成です!これだけ広くて素敵なお庭、ひとりで楽しむのはもったいないですよね。休日にはお友達呼んでガーデンパーティーも楽しんじゃいましょう!

内装もステキ過ぎます。アイアンとアンティークな建具が中世ヨーロッパを彷彿させます。

また、コクームには白い格子窓がついていてお部屋の中にもう一つ家があるような景色が広がります。

続きを読む

見学したい(無料)

Cawaii

無料
6万円

静岡県浜松市中央区富塚町4710-13

1LDK /36.45m² /1986年1月

かわいいです。



浜松市中区富塚町の医療センター近くのリノベーション物件!
人気の物件で久々に空きが出ました。
医療センターやその周辺で働く方には大変おススメの物件です。


玄関には大きなシューズボックス。
靴をたくさんお持ちのお洒落さんでも安心の容量です。
そして姿見鏡もついているので、出かける前に身だしなみチェック!
「今日も私、きれいだわっ!」・・・なんて

お風呂はピンク色の壁、そして浴槽は角が丸目のものを使用。
第一印象で気に入るはず。

キッチンは料理好きには嬉しい3口コンロ!
シンクは黄色で、思わずテンションが上がっちゃいます。


全部屋の窓は2重窓になっているので、
女性の一人暮らしでも安心。


Cawaii部屋をお探しのあなたにピッタリです。

続きを読む

見学したい(無料)

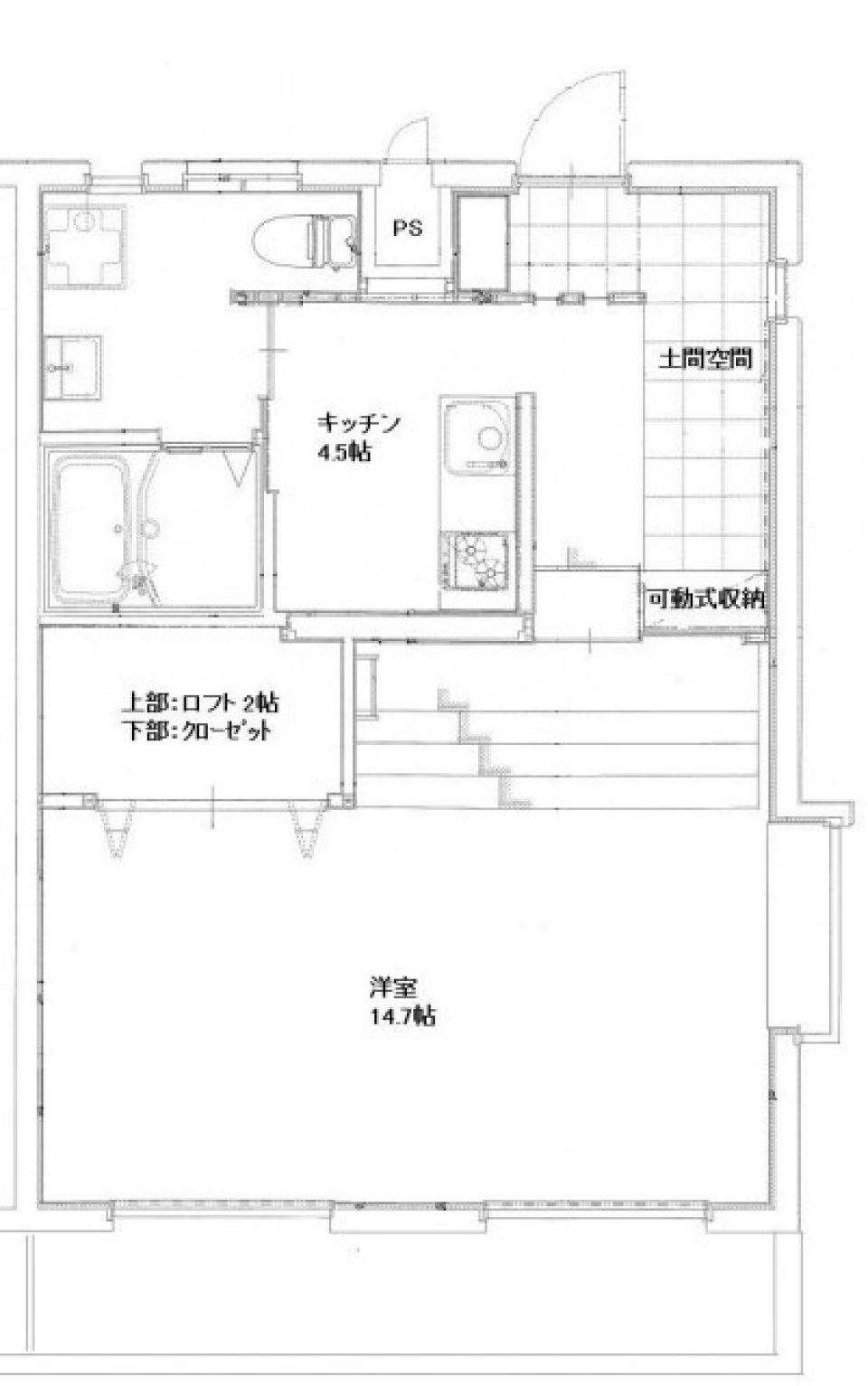
土間リビングを3段階の広さで活用!

無料
無料
無料

静岡県浜松市中央区東若林町1016-7

/60.33m²

この物件の特徴は、広い土間。「土間」「土間?+LDK」「土間+LDK+洋室」と3段階の広さを楽しめる。

「土間」には、大きな収納スペース!アウトドア用品、釣り具etc…広さもあるので大型の用品を広げて、手入れしたりするのもよし。リラクゼーションチェアーを置いて、のんびりしたり、ちょっと暮らしを贅沢に感じる空間になりそうですね。

さらに、空間を広げることによって、家具の配置も自由自在!また、友達を呼んでホームパーティを楽しんだりするのはいかがでしょうか。

またこちらは、事業用としても募集をしています。事業内容の詳細など不明な点などございましたらお気軽にお問合せください!部屋を大空間にできるメリットがあります。空間を上手に活用できます!

続きを読む

見学したい(無料)

下池SOHKO。

無料
無料
無料

静岡県浜松市中央区下池川町20-5

/221.83m²

六軒通り沿いの浜松市中消防署の近くにあるこの倉庫はちょっと面白い物件です。
1階がピロティになっていて前面に駐車スペース、その奥が倉庫になっています。倉庫部分はそれほど大きくありませんが、23坪ほどの大きさです。天井高は3.2mほど。天井高があると広く見えますね。天井は鉄板と鉄骨がむき出し。塗装やショップラインなどでカッコよく見せれるあれです。

2階に上がる階段もレトロでかわいい感じ。

2階は事務所スペースになっています。広さはだいたい44坪あり、いくつかのお部屋に分かれていますが、かなり広くスペースが取れます。現在は広々した事務所スペースと応接室、会議室の3つのお部屋と小スペースの男女更衣室が2つ、あとはトイレと給湯室に分かれています。

立地としては道路拡張途中のわりと交通量の多い道路に面していますので利便性もありいいのではないでしょうか。

近隣商業地域とあって、周囲には事務所だけでなく、ヘアサロンやお菓子やさん、ペットトリマーのお店、ゲームセンターなどがあります。

駐車場が縦列でMAX6台前後しか停められませんので駐車場が必要な業種は向いていないかもしれません。近くのコイン駐車場はコンコルドさんや浜松城公園などがありますが、そこからも徒歩3分程度あります。

ただ空間としては面白いものが出来そう。このピロティから倉庫スペースの繋がりを持たせたり、2階の窓のファサードイメージをかっこよくすることでランドマーク的な存在になりそうです。

この建物をみてピンときた方は是非問合せお待ちしております。

365LIFEでは不動産仲介だけでなく、その事業者さんを成功に導くノウハウと熱い思いでお待ちしております!

続きを読む

見学したい(無料)

憧れのホテル暮らし、してみませんか?

5.8万円
5.8万円

静岡県浜松市中央区上島7-15-36

1K /31.06m² /2014年9月

馬込川近く、遠州鉄道上島駅まで徒歩12分の好立地の物件のご紹介です。
馬込川沿いの公園や緑地が近いので、お散歩がゆっくり楽しめそうな環境です。
そして、外観も内装もとっても綺麗でした!

建物横の駐車場から、オートロックのエントランスを入り玄関前まで向かいます。
階段はコンクリではなく、音がしないマットタイプ。
玄関扉も高級感、、扉を開けたら廊下もまるでホテル、、!

設備もとっても綺麗でした。
私のお気に入りは、個室のキッチン!
しかも、3口コンロのシステムキッチンです。
広さも十分、ちょっとしたカウンターもあって便利。
お料理がはかどること間違いなしです。

気になることがあるとすれば、お手洗いがキッチンの奥にあるのが??でした。
でも、総合的には◎です!

全体的にコンパクトですが、ひとり暮らしの方であれば収納も問題ないかと思います。
ホテル暮らししてみたかった!という方、要チェックです!

続きを読む

見学したい(無料)

縦に並ぶ面白間取り。

6.2万円
6.2万円

静岡県浜松市中央区上島7-15-36

賃料62,000円  
共益費/管理費3,000円

2K /30.80m² /2014年9月

なかなか面白い間取りでした。

玄関扉を開けてビックリ!!Σ(゚д゚;)
廊下の長さが...み、短すぎます。

その分お部屋は広いんです。
間取り表記は1DKになりますが、2Kと表記するべきか...。

如何に北側約6帖のお部屋を使いこなせるかがポイントの間取りです。

ダイニングスペースとしてゆっくり食事をするもよし、2部屋繋げて大きなワンルームを作るもよしです。

突然の来客時にはキッチンスペースを2枚の扉で隠せる点も好印象でした。

続きを読む

見学したい(無料)

たいせつに、大切に。

無料
無料
無料

静岡県磐田市一言489

/50.72m²

1988年築の2棟並んだ戸建て住居、きっと大家さんがたいせつに大切に管理してきたんだなと思います。

なんせ全く築年数を感じさせない!、定期的に悪くなった部分を修繕しつつ今に至るんだなと。


日本人なら畳を愛せ!、日本人なら畳を使え!!
そんな大家さんの叫びが聞こえるかのように唯一ここだけは築当初のままでした。

春のポカポカ陽気に畳でする昼寝ってとても気持ちいいですね。
小さなお子様がいるご家庭もフローリングよりの畳の方がなにかと安心なのではないでしょうか?



畑も使用出来るみたいなので自給自足生活ってものいいかもしれませんね。

続きを読む

見学したい(無料)

SimpleがNo1

無料
無料
無料

静岡県磐田市立野2015-2

/40.17m²

オーソドックスなリノベーション施工されます。

2DK⇒1LDKへ、DKと洋室を一体型にLDK12帖空間に、そして不人気な和室を洋室へ。収納は押入のままだという点はみんなに内緒ですよ...。
久々に見たアコーディオンカーテン、これが脱衣所の扉として使われ...。

当物件の目玉は立地でしょう!!
JR豊田町駅までは徒歩6分の好立地、近隣には多数商店などもありますよ。

浜松からの最終電車は23:51。
WEEK ENDは浜松の歓楽街で!とお考えのあなたにはピッタリなお部屋です。

続きを読む

見学したい(無料)

シンプルライフ

無料
無料
無料

静岡県磐田市立野2015-2

/40.17m²

オーソドックスなリノベーション施工されます。

2DK⇒1LDKへ、DKと洋室を一体型にLDK12帖空間に、そして不人気な和室を洋室へ。収納は押入のままだという点はみんなに内緒ですよ...。
久々に見たアコーディオンカーテン、これが脱衣所の扉として使われ...。

当物件の目玉は立地でしょう!!
JR豊田町駅までは徒歩6分の好立地、近隣には多数商店などもありますよ。

浜松からの最終電車は23:51。
WEEK ENDは浜松の歓楽街で!とお考えのあなたにはピッタリなお部屋です。

続きを読む

見学したい(無料)
FULL リノベ済み

Simple STYLE

無料
無料

静岡県磐田市立野2015-2

1LDK /40.17m² /1933年9月

オーソドックスなリノベーション施工。

2DK⇒1LDKへ、DKと洋室を一体型にLDK12帖空間に、そして不人気な和室を洋室へ。
収納は押入のままだという点はみんなに内緒ですよ...。
久々に見たアコーディオンカーテン、これが脱衣所の扉として使われ...。

当物件の目玉は立地でしょう!!
JR豊田町駅までは徒歩6分の好立地、近隣には多数商店などもありますよ。

浜松からの最終電車は23:51。
WEEK ENDは浜松の歓楽街で!とお考えのあなたにはピッタリなお部屋です。

続きを読む

見学したい(無料)
FULL リノベ済み

Simple Renovation

無料
無料

静岡県磐田市立野2015-2

1LDK /40.17m² /1993年8月

オーソドックスなリノベーション施工されます。

2DK⇒1LDKへ、DKと洋室を一体型にLDK12帖空間に、そして不人気な和室を洋室へ。
収納は押入のままだという点はみんなに内緒ですよ。
久々に見たアコーディオンカーテン、これが脱衣所の扉として使われ。

当物件の目玉は立地でしょう!!
JR豊田町駅までは徒歩7分の好立地、近隣には多数商店などもありますよ。
WEEK ENDは浜松の歓楽街で!とお考えのあなたにはピッタリなお部屋です。

続きを読む

見学したい(無料)

Simple LIFE

無料
無料
無料

静岡県磐田市立野2015-2

/40.17m²

オーソドックスなリノベーション施工されます。

2DK⇒1LDKへ、DKと洋室を一体型にLDK12帖空間に、そして不人気な和室を洋室へ。収納は押入のままだという点はみんなに内緒ですよ...。
久々に見たアコーディオンカーテン、これが脱衣所の扉として使われ...。

当物件の目玉は立地でしょう!!
JR豊田町駅までは徒歩6分の好立地、近隣には多数商店などもありますよ。

浜松からの最終電車は23:51。
WEEK ENDは浜松の歓楽街で!とお考えのあなたにはピッタリなお部屋です。

続きを読む

見学したい(無料)

プチ・Re・Born~早い者勝ちの西向き~

無料
無料

静岡県浜松市中央区冨塚町1135

1K /25.92m² /1999年10月

もうマンション名を僕の考えたタイトルにしてほしいです!
以前の外装に比べてオシャレな配色になり、ガーデンパークのようなエントランスになりました♪

お部屋の中はシンプルな1Kです。しかしバス・トイレ別でシャンプードレッサーの独立洗面台、インターネット無料でこの値段は魅力的!
202号室は西向きの角部屋。東面の部屋もある中ある程度の日当たりは期待できます。
冨塚でちょっとスーパーなどからも離れたところにあるので、車がないと不便なところではあります。

続きを読む

見学したい(無料)

プチ・Re・Born

無料
無料

静岡県浜松市中央区冨塚町1135

1K /25.92m² /1999.1

もうマンション名を僕の考えたタイトルにしてほしいです!
以前の外装に比べてオシャレな配色になり、ガーデンパークのようなエントランスになりました。

お部屋の中はシンプルな1Kです。しかしバス・トイレ別でシャンプードレッサーの独立洗面台、インターネット無料でこの値段は魅力的!

105号室は1階の東向き。しかも前に家があるので日当たりはあまりよくありません。1階が他の階よりも安い所以です。
冨塚でちょっとスーパーなどからも離れたところにあるので、車がないと不便なところではあります。

続きを読む

見学したい(無料)

ちょっとだけよ

無料
無料

静岡県浜松市中央区冨塚町1135

1K /25.92m² /1999年10月

富塚地域でご検討中の単身の方へおすすめの物件のご紹介です。

壁紙を変更することによってガラッと雰囲気が変わりカフェ風になりました。

また現在掲載中の写真はモデルルームをセッティング中のもので、
同じようにしたい!という方は是非ホームセンターで今話題の2×4を買ってセッティングしてくださいね!

スヌーピーのTシャツが飾られていますが、
オーナーさんがスヌーピー好きなのかね・・・・

続きを読む

見学したい(無料)

わたしここがいい

6.4万円
6.4万円

静岡県浜松市浜名区於呂3183-3

1LDK /55.71m² /1988年10月

条件がどうでもよくなっちゃうくらい好きになった経験ってありますか?
住まい探しのとき、立地・賃料・間取り・設備条件、いろいろな条件で絞り込んで探しますよね。
でももし人生で一度でも、条件なんてちょっとくらい妥協してもいいって思えるくらい惚れ込んだお部屋に出会えたとしたら。
とっても素敵なことじゃないでしょうか。
お部屋って帰りたくなるかどうか、住んでいて幸せだなと思えるかどうか、とっても大切なことな気がします。

数としては少なめの浜名区のフルリノベーションのお部屋。
遠州鉄道の遠州岩水寺駅から徒歩約10分の於呂にあるこの物件は、異なるデザインのリノベーション部屋が集まる素敵マンションです。
築年数はちょっとありますが、外装も内装もきれいにメンテナンスされています。

このお部屋、まず間取りからあまり見たことがない感じです。
LDKは15帖。天井も高くて日差しも入る、開放感があります。
キッチンとのフロアの切り替え、壁や建具のアクセントなどが素敵。こだわりを感じます。
まるでスタジオのよう。

お隣には6.5帖の洋室があります。
LDKとの間の引き戸を開けておくと、21.5帖のより広々とした空間に。
こちらもバルコニーに面しており明るいです。
出窓には何を飾ろう。

洋室の脇には廊下があります。
脱衣洗面所に続くただのストレートの廊下ではなく、右手にはウォークインクローゼット、左手にはオープンラックが。
スペースを無駄にしない感じがいいですね。
窓もあって廊下も明るさがしっかり確保されています。

その先の脱衣洗面所は、365LIFE的かなりの注目ポイント。
ここまで大胆にスペースを使った洗面台、しかもタイル貼りでかわいい、、。
窓も大きくて朝から気持ちよく支度ができそうです。
お気に入りの場所になる予感。

そしてこの脱衣洗面所、洋室からだけでなく玄関側からも入れます。
来客があったとき、プライベートゾーン洋室を通すことなく洗面台を使えます。
ここはむしろ自慢のために見せたい。

玄関にはシューズクロークもあります。
なんと至れり尽くせりな。
しかも玄関まで漏れなくかわいくて、帰ってきて幸せな気持ちになれそうです。

かわいいだけにとどまらず、生活動線がとてもよい。
ストレスフリーに暮らせそうなフルリノベーションのお部屋です。
サッシなど古さを感じるところがないわけじゃないけれど、それもこのお部屋の歴史として愛してもらえたら。

※画像は前回募集時のものです。現況を優先いたします。

続きを読む

見学したい(無料)

光と風と人の通り道。

無料
無料
無料

静岡県浜松市浜名区於呂3183-3

/47.85m²

築30年を迎えるoldマンションがリノベーション工事により室内が一新されております。

久々に登場、浜北区内で待望のリノベーション物件済物件。
場所は人気の遠鉄沿線、芝本駅と岩水寺駅のちょうど中間の「於呂エリア」、光と風と人の通り道を考えた間取りプランです。

・生活にストレスを感じさせないゆとりのある回遊動線。
・玄関からリビングまで自然採光の入る明るい部屋。
・窓から窓へ北から南へ心地よい風の通り道。

最近流行りのシャビーシックデザインの内装で、観葉録物などの緑も映える。
日々の生活で自然を心地よく感じる、そんなお部屋ですね。

続きを読む

見学したい(無料)

風と光の通り道

無料
無料
無料

静岡県浜松市浜名区於呂3183-3

/55.71m²

築30年が経ったoldマンションがリノベーション工事により室内が一新されております。

久々に登場、浜北区内で待望のリノベーション物件済物件。
場所は人気の遠鉄沿線、芝本駅と岩水寺駅のちょうど中間の「於呂エリア」、風と光と人の通り道を考えた間取りプランです。

・生活にストレスを感じさせないゆとりのある回遊動線。
・玄関からリビングまで自然採光の入る明るい部屋。
・窓から窓へ北から南へ心地よい風の通り道。

日々の生活で自然を心地よく感じる、そんなお部屋ですね。

続きを読む

見学したい(無料)

シンプル&ナチュラルStyle

無料
無料

静岡県浜松市浜名区於呂3183-3

2LDK /55.71m² /1988年10月

「すっきりした空間が好き」そんなスタイルを目指すご夫婦にオススメなのがこの
「ナチュラル&シンプル」なお部屋です。

シンプルだからこそ引き立つものもあります。
縦長の12帖LDKは壁付きにすることで空間を大きく使え、家具の配置もしやすくなります。

ホワイト×ナチュラルをベースのお部屋の内装そのものに、家具もナチュラル×ホワイトで統一するのがオススメ。空間のよさがさらに引きたちます。

新東名の浜松浜北ICすぐそば。遠鉄の岩水寺駅も近いので、車でも電車でも通勤しやすい立地も魅力です。
北側の洋室にエアコン取り付け不可なのがちょっと痛い所ではあります。

続きを読む

見学したい(無料)

光と風の通り道

無料
無料
無料

静岡県浜松市浜名区於呂3183-3

/55.71m²

築30年を迎えるoldマンションがリノベーション工事により室内が一新されております。

久々に登場、浜北区内で待望のリノベーション物件済物件。
場所は人気の遠鉄沿線、芝本駅と岩水寺駅のちょうど中間の「於呂エリア」、光と風と人の通り道を考えた間取りプランです。

・生活にストレスを感じさせないゆとりのある回遊動線。
・玄関からリビングまで自然採光の入る明るい部屋。
・窓から窓へ北から南へ心地よい風の通り道。

日々の生活で自然を心地よく感じる、そんなお部屋ですね。

続きを読む

見学したい(無料)
FULL リノベ済み

ピクニック気分

無料
無料

静岡県浜松市中央区安松町62-1

1LDK /41.58m² /1991年09月

こちらの物件は、安松町にあります。
お部屋の造りはとてもシンプルですが、とても住みやすいです。

間取りは1LDKで、仲良しカップルや新婚さんにおすすめの物件です。
LDKは12帖あり、陽当たりも最高です。ダイニングスペースとリビングルームスペースと分けることもできます。
キッチンにはご自身のお好きなコンロを設置することが可能です。キッチンの目の前には窓があり、電気を付けなくても明るいです。
洋室は8帖あり、ベッドや机を置くこともできます。押し入れが完備されており、洋服を整理するのに助かります。

玄関にはシューズボックスが付いていませんが、お好きなサイズの靴箱を置けるスペースが確保されています。
浴室や洗面所、トイレなどの水回りもとても清潔感がります。

周辺には、コンビニやスーパーがあり徒歩でも行けちゃいます!
また、物件の目の前に公園があり、休日にはピクニックをすることもできます。

続きを読む

見学したい(無料)

ブルーゲートシティ浜松。

無料
無料
無料

静岡県浜松市中央区安松町62-1

/41.58m²

正直なくても困らないリビングとダイニングを隔てるブルーのゲート?でも、ないとシンプル1LDKですよ!作る人の遊び心を感じます♪

しかもそのゲートに合わせるように配されたブルーのシステムキッチン珍しい色です。ダイニングは固定のテーブルがあるので、あとはイスを用意するだけ。

洋室に移るとおそらく収納があると思われる場所に鳩目カーテンが・・・開ければ案の定収納でしたが、奥行きがあって想像以上の大きさにビックリします。

安松という土地柄あまり住宅が密集してなく、目の前に市街地では考えられないほど広大な安松第2公園があります。しかも国道1号にすぐ出られるので、結構いい立地にあります。

続きを読む

見学したい(無料)
FULL リノベ済み 360VR

LEAN×ANG

4.9万円
無料

静岡県浜松市中央区安松町62-1

1LDK /41.58m² /1991年9月

物件の名前にもなっているLIANGE

フランス語でLEAN=絆、ANGE=天使
これが由来となったかわかりませんがこれだけでなんか素敵・・・。

お部屋は1LDKですがキッチンが対面式ではないので、
とても広いです。

キッチンの近くにダイニングテーブル。
バルコニーの近くにソファとテレビを置くことができます。

1LDKでソファとダイニングテーブルを両方置くことができる物件はあまりないような気がします。


お仕事がお休みの日にはお家でゆっくりでも、
近くに公園があるので公園でゆっくりやランニングもできますよ!


賃料を抑えたい新婚さんやおしゃれな生活をしたい単身の皆様におススメです!

続きを読む

見学したい(無料)

Wood × Good Home

無料
無料
無料

静岡県浜松市中央区北島町324

/56.52m²

この物件はリノベーションされており、全体的にブラウンを基調としたデザインになっています。
家に居ながら、木のぬくもりや自然を感じられますよ。
LDKの床が2色で分けられているため、同じ部屋の中にいるのに異なった雰囲気を感じました。
キッチンがあるほうは少しかっちりとしたイメージ、その隣のLDKはほっこりとしたイメージを持ちました。
LDKが広いため、洗濯物を干したりクローゼットにしまう導線としては長く感じるかもしれません、、、
でも洗濯物をいれたり畳んだりする作業は広い分、やりやすいと思います。

LDKと洋室は引き戸によって区切られているため、用途によって1部屋にも2部屋にもなります。
使い分けができる自由度が高いお部屋になっています。

LDKのお隣の洋室には壁一面のクローゼットがあり、たくさん収納できそうです。
出窓がついているので、季節の応じた小物を飾ったり、家族や友人、恋人との写真や想い出の品を飾ったりしてもいいですね。

もう1つの洋室には、壁の一部に棚が据え付けられておりちょっとした収納やインテリアとして活用できそうです。
棚の高さが自由に変えられるので、活用方法は無限大です。

浴室の壁は、1部が鏡になっており珍しいデザインになっています。
まるで高級ホテルのようなオシャレなつくりです。
お風呂に入るとき、テンション上がっちゃいます♪

続きを読む

見学したい(無料)
RENT リノベ済み

13.8帖2LDK⇔19.8帖1LDK

6.7万円
無料

静岡県浜松市中央区北島町324

賃料67,000円  
共益費/管理費3,000円

2LDK /56.52m² /1992年1月

シックで大人なカラーが素敵な空間です。
引き戸次第で2タイプの間取りが楽しめます。

LDKと洋室間の引き戸を開放すれば、約19.8帖の広々LDKの1LDKとして。
閉じておけば洋室2部屋の、プライベート空間をしっかり確保した2LDKとして。
状況に合わせてアレンジできる自由な間取りです。

キッチンはアイランドタイプ。
キッチンスペースはフロアが白いタイルに切り替えられており、掃除もしやすいしデザイン的にもかわいいです。

そして驚きなのは収納の大きさ。
まるで部屋のようなウォークインクローゼットがあるんです。
これはきっと重宝しますよ。
ただし収納スペースはこのウォークインクローゼットのみなのでご注意ください。

国道1号線、浜松インターへのアクセスも便利です。
イオン、ロピア、コストコもご近所で買い物には困りません。

※画像は前回募集時のものです。現況を優先いたします。

続きを読む

見学したい(無料)

SOCIAL MEDIA